7
±Ù¸°½Ã¼³
¼­¿ïÁß¾ÓÁö¹æ¹ý¿ø
 °¨Á¤°¡9,935,891,440 ¿ø
 ÃÖÀú°¡(100%) 9,935,891,440 ¿ø
 º¸Áõ±Ý(10%) 993,589,144 ¿ø
 Ã»±¸¾×5,130,804,458 ¿ø
¼­¿ïƯº°½Ã °­³²±¸ ³íÇöµ¿ 99-10
»ç°Ç¹øÈ£ 2025Ÿ°æ984
°æ¸ÅÁ¾·ùºÎµ¿»êÀÓÀǰæ¸Å
¸Å°¢´ë»óÅäÁö ¹× °Ç¹°Àϰý¸Å°¢
¸Å°¢±âÀÏ    2026.04.23(¸ñ) 10:00 ÀÔÂû 13ÀÏÀü    
ÅäÁö¸éÀû249.80§³(75.56 Æò)
°Ç¹°¸éÀû741.33§³(224.25 Æò)
乫/¼ÒÀ¯ÀÚÁÖOOO OOOOO / ÁÖOOO OOOOO
ä±ÇÀÚÁÖOOO OOOO
±è¼ºÈÆ ´ëÇ¥ÀÌ»ç
°øÀÎÁß°³»ç, ºÎµ¿»ê°ø°æ¸Å»ç, ÇѾç´ëÇб³ Á¹¾÷
Àü) ÅÂÀÎÄÁ¼³ÆÃ(ÁÖ) ´ëÇ¥ÀÌ»ç
Àü) ¿©ÀÇÁֺε¿»êÁß°³¹ýÀÎ(ÁÖ) ´ëÇ¥ÀÌ»ç
Çö) ¿©ÀÇÁÖ°æ¸Å¹ýÀÎ ´ëÇ¥ÀÌ»ç
010-2371-3237
ÆäÀ̽ººÏ Æ®À§ÅÍ ±¸±Û+
īī¿À½ºÅ丮
īī¿ÀÅå sms¹®ÀÚº¸³»±â
 

±âÀϳ»¿ª

°æ°ú ³¯Â¥ Àú°¨ ÃÖÀú°¡ °á°ú
Á¢¼öÀÏ 2025-03-17 °æ¸ÅÁ¢¼ö
~1ÀÏ 
2025-03-18 °æ¸Å°³½Ã°áÁ¤
~87ÀÏ 
2025-06-12 ¹è´ç¿ä±¸Á¾±âÀÏ
~402ÀÏ 
2026-04-23 100%
9,935,891,440
ÁøÇà
¹°°Ç¸í¼¼¼­ ÇöȲÁ¶»ç¼­ ¹®°ÇÁ¢¼ö ¼Û´Þ³»¿ª

°¨Á¤Æò°¡ÇöȲ

¸ñ·Ï ÁÖ¼Ò ±¸Á¶/¿ëµµ/´ëÁö±Ç ¸éÀû ºñ°í
ÅäÁö
³íÇöµ¿ 99-10 ´ë 217.2 §³
(65.70Æò)
³íÇöµ¿ 99-11 ´ë 32.6 §³
(9.86Æò)
°Ç¹°
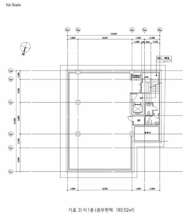
³íÇöµ¿ 99-10 ÁöÇÏ1Ãþ ±Ù¸°»ýȰ½Ã¼³ ö±ÙÄÜÅ©¸®Æ®±¸Á¶ 183.52 §³
(55.51Æò)
³íÇöµ¿ 99-10 1Ãþ ±Ù¸°»ýȰ½Ã¼³ ö±ÙÄÜÅ©¸®Æ®±¸Á¶ 53.91 §³
(16.31Æò)
³íÇöµ¿ 99-10 2Ãþ ±Ù¸°»ýȰ½Ã¼³ ö±ÙÄÜÅ©¸®Æ®±¸Á¶ 142.34 §³
(43.06Æò)
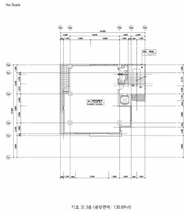
³íÇöµ¿ 99-10 3Ãþ ±Ù¸°»ýȰ½Ã¼³ ö±ÙÄÜÅ©¸®Æ®±¸Á¶ 130.89 §³
(39.59Æò)
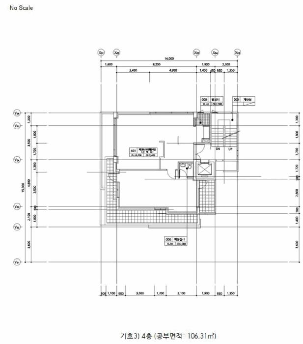
³íÇöµ¿ 99-10 4Ãþ ±Ù¸°»ýȰ½Ã¼³ ö±ÙÄÜÅ©¸®Æ®±¸Á¶ 106.31 §³
(32.16Æò)
³íÇöµ¿ 99-10 5Ãþ ±Ù¸°»ýȰ½Ã¼³ ö±ÙÄÜÅ©¸®Æ®±¸Á¶ 63.49 §³
(19.21Æò)
³íÇöµ¿ 99-10 ¿Áž1Ãþ ö±ÙÄÜÅ©¸®Æ®±¸Á¶ 17.02 §³
(5.15Æò)
Á¦½Ã¿Ü
°Ç¹°
³íÇöµ¿ 99-10 ±Ù¸°»ýȰ½Ã¼³ 39.36 §³
(11.91Æò)
Æ÷ÇÔ
³íÇöµ¿ 99-10 â°í 4.49 §³
(1.36Æò)
Æ÷ÇÔ
1) À§Ä¡/µµ½ÃÁö¿ª/Á¦2Á¾ÀϹÝÁÖ°ÅÁö¿ª/ÅäÁö°Å·¡°è¾à¿¡°üÇÑÇã°¡±¸¿ª/Â÷·®ÀÇ Á¢±ÙÀÌ °¡´É/ÁöÇÏö/³ë¼±¹ö½ºÁ¤·ùÀå/ö±ÙÄÜÅ©¸®Æ®±¸Á¶/Æò½½·¡ºêÁöºØ ´õº¸±â
°¨Á¤Æò°¡ ¿äÇ×Ç¥
1)À§Ä¡ ¹× ÁÖÀ§È¯°æ
º»°ÇÀº ¼­¿ïƯº°½Ã °­³²±¸ ³íÇöµ¿ ¼ÒÀç ¡®¿µµ¿°íµîÇб³¡¯ ºÏ¼­Ãø Àαٿ¡ À§Ä¡Çϸç ÁÖÀ§´Â ±Ù¸°»ýȰ½Ã¼³, ´Üµ¶ÁÖÅà ¹× ´Ù°¡±¸ÁÖÅÃ, ´Ù¼¼´ëÁÖÅà µîÀÌ ¼ÒÀçÇÏ´Â Áö¿ªÀ¸·Î Á¦¹Ý ÁÖÀ§È¯°æÀº º¸ÅëÀÓ.
2)±³Åë»óȲ
º»°Ç±îÁö Â÷·®ÀÇ Á¢±ÙÀÌ °¡´ÉÇϸç Àαٿ¡ ÁöÇÏö7È£¼± ""°­³²±¸Ã»¿ª"" ¹× ³ë¼±¹ö½ºÁ¤·ùÀåÀÌ ¼ÒÀçÇÏ´Â µî Á¦¹Ý ±³Åë»óȲÀº º¸ÅëÀÓ.
3)ÇüÅ ¹× ÀÌ¿ë»óÅÂ
º»°Ç ±âÈ£ 1), 2)´Â ÀÏ´ÜÀ¸·Î ÀÎÁ¢µµ·Î ´ëºñ ´ëü·Î µî°íÆòźÇÑ »ç´Ù¸®ÇüÀÇ ÅäÁö·Î¼­ »ó¾÷¿ë °ÇºÎÁö·Î ÀÌ¿ë ÁßÀÓ.
4)ÀÎÁ¢ µµ·Î»óÅÂ
º»°Ç ºÏ¼­ÃøÀ¸·Î ³ëÆø ¾à 4¹ÌÅÍÀÇ µµ·Î¿¡ Á¢ÇØÀÖÀ½.
5)ÅäÁöÀÌ¿ë°èȹ ¹× Á¦ÇÑ»óÅÂ
º»°Ç ±âÈ£ 1), 2) °øÈ÷: µµ½ÃÁö¿ª, Á¦2Á¾ÀϹÝÁÖ°ÅÁö¿ª, »ó´ëº¸È£±¸¿ª(ÅäÁöÀü»ê¸ÁÀÇ ³»¿ëÀº Âü°í»çÇ×ÀÏ»Ó ±³À°Ã»¿¡ ¹Ýµå½Ã È®Àοä¸Á)<±³À°È¯°æ º¸È£¿¡ °üÇÑ ¹ý·ü>, ´ë°ø¹æ¾îÇùÁ¶±¸¿ª(À§Å¹°íµµ:77-257m)<±º»ç±âÁö ¹× ±º»ç½Ã¼³ º¸È£¹ý>, °ú¹Ð¾ïÁ¦±Ç¿ª<¼öµµ±ÇÁ¤ºñ°èȹ¹ý>, ÅäÁö°Å·¡°è¾à¿¡°üÇÑÇã°¡±¸¿ª(2025-03-24)(°ÇÃ๰ÀÇ ¿ëµµ(¾ÆÆÄÆ®)·Î »ç¿ëµÇ´Â ºÎÁö)

6)Á¦½Ã¸ñ·Ï ¿ÜÀÇ ¹°°Ç
'°¨Á¤Æò°¡¾× »êÃâ±Ù°Å ¹× °áÁ¤Àǰß' ¥°.7. ±âŸÂü°í»çÇ×¶õ Âü°íÇϽñ⠹ٶ÷.
7)°øºÎ¿ÍÀÇ Â÷ÀÌ
'°¨Á¤Æò°¡¾× »êÃâ±Ù°Å ¹× °áÁ¤Àǰß' ¥°.7. ±âŸÂü°í»çÇ×¶õ Âü°íÇϽñ⠹ٶ÷.
8)±âŸÂü°í»çÇ×(ÀÓ´ë°ü·Ê ¹× ±âŸ)
°Ç¹° °¨Á¤Æò°¡¿äÇ×Ç¥ Âü°í.
1)°Ç¹°ÀÇ ±¸Á¶
º»°Ç ±âÈ£ 3)Àº ö±ÙÄÜÅ©¸®Æ®±¸Á¶ Æò½½·¡ºêÁöºØ ÁöÇÏ1Ãþ Áö»ó5Ãþ °Ç¹°·Î¼­,
¿Üº®: ³ëÃâÄÜÅ©¸®Æ® ¸¶°¨ µî
³»º®: ¸ôÅ» À§ ÆäÀÎÆÃ¸¶°¨ µî
âȣ: ¼¦½Ãâȣ µîÀÓ.

2)ÀÌ¿ë»óÅÂ
±Ù¸°»ýȰ½Ã¼³·Î ÀÌ¿ëÁßÀÓ.

3)¼³ºñ³»¿ª
±âº»ÀûÀÎ À§»ý¼³ºñ ¹× ±Þ¹è¼ö¼³ºñ µîÀÌ µÇ¾î ÀÖÀ½.

4)ºÎÇÕ¹° ¹× Á¾¹°
º»°Ç ±âÈ£ 3) °Ç¹°¿¡ ÈÄ÷ ¡®°Ç¹°°³È²µµ¡¯¿Í °°ÀÌ ºÎÇÕ¹° ¹× Á¾¹°·Î º¸ÀÌ´Â Á¦½Ã¿Ü¹°°ÇÀÌ ¼ÒÀçÇϸç, 1Ãþ È®ÀåºÎºÐ ¹× ¿Áž ¼ÒÀç â°í´Â °øºÎ µî¿¡ ÀÇÇÑ ¹°ÀûÇöȲÀÇ È®Á¤ÀÌ °ï¶õÇѹ٠Àü·Ê µî¿¡ ÀÇÇÏ¿© ¸éÀû, ±¸Á¶ µîÀ» ÆÄ¾ÇÇϰí À̸¦ °í·ÁÇÏ¿© Æò°¡ÇÏ¿´À¸´Ï, ¾÷¹« ÁøÇà ½Ã Âü°íÇϽñ⠹ٶ÷.

5)°øºÎ¿ÍÀÇ Â÷ÀÌ
'°¨Á¤Æò°¡¾× »êÃâ±Ù°Å ¹× °áÁ¤Àǰß' ¥°.7. ±âŸÂü°í»çÇ×¶õ Âü°íÇϽñ⠹ٶ÷.
6)±âŸÂü°í»çÇ×(ÀÓ´ë°ü·Ê ¹× ±âŸ)
ÀÓ´ë»çÇ×Àº ¹Ì»óÀÓ.
Âü°í
»çÇ×
Àϰý¸Å°¢. Á¦½Ã¿Ü °Ç¹° Æ÷ÇÔ
1. 4Ãþ ÀÏºÎ¿Í 5ÃþÀº ±è¸í´öÀÌ ÀÓÂ÷ÇÏ¿© »ç¿ëÇϰí ÀÖÀ¸¸ç 2. ³ª¸ÓÁö 4Ãþ ÀϺδ ÁÖ½Äȸ»ç Ç»¾î±×·¡ÇÁÆ®°¡ Á¡À¯ÇÏ¿© »ç¿ëÁßÀÓ

°ÇÃ๰ÇöȲ

¼ÒÀçÁö ¼­¿ïƯº°½Ã °­³²±¸ ³íÇöµ¿ 99-10¹øÁö
´ëÁö¸éÀû 249.8§³
(75.7Æò)
¿¬¸éÀû 680.46§³
(206.2Æò)
°ÇÃà¸éÀû 146.22§³
(44.31Æò)
¿ëÀû·ü»êÁ¤
¿¬¸éÀû
496.94§³
(150.59Æò)
°ÇÆóÀ² 58.53% ¿ëÀû·ü 198.94%
Áö»óÃþ¼ö 5Ãþ ÁöÇÏÃþ¼ö 1Ãþ
ÁÖ¿ëµµ Á¦2Á¾±Ù¸°»ýȰ½Ã¼³ ±¸Á¶ ö±ÙÄÜÅ©¸®Æ®±¸Á¶
Âø°øÀÏÀÚ 2013.06.05 »ç¿ë½ÂÀÎÀÏÀÚ 2014.02.17
°ÇÃ๰Ãþº°ÇöȲ [º¸±â]


µî±âºÎµîº» ¿ä¾à(ÅäÁö)

  Á¢¼öÀÏÀÚ µî±â¸ñÀû/±Ç¸®ÀÚ ±Ç¸®±Ý¾× ±âÁØ
1 2022³â11¿ù28ÀÏ
¼ÒÀ¯±Ç
(OOOO
¼Ò¸ê
2 2022³â11¿ù28ÀÏ
±ÙÀú´ç±Ç
(OOOO
6,720,000,000 ¼Ò¸ê±âÁØ
3 2022³â11¿ù28ÀÏ
±ÙÀú´ç±Ç
(OOOO
1,750,000,000 ¼Ò¸ê
4 2022³â12¿ù23ÀÏ
±ÙÀú´ç±Ç
(OOOO
2,640,000,000 ¼Ò¸ê
5 2025³â2¿ù7ÀÏ
Àü¼¼±Ç
±èOO
2,000,000,000 ¼Ò¸ê
6 2025³â3¿ù18ÀÏ
ÀÓÀǰæ¸Å
(OOOO
¼Ò¸ê
7 2025³â8¿ù18ÀÏ
¾Ð·ù
±¹
¼Ò¸ê

µî±âºÎµîº» ¿ä¾à(°Ç¹°)

  Á¢¼öÀÏÀÚ µî±â¸ñÀû/±Ç¸®ÀÚ ±Ç¸®±Ý¾× ±âÁØ
1 2022³â11¿ù28ÀÏ
¼ÒÀ¯±Ç
(OOOO
¼Ò¸ê
2 2022³â11¿ù28ÀÏ
±ÙÀú´ç±Ç
(OOOO
6,720,000,000 ¼Ò¸ê±âÁØ
3 2022³â11¿ù28ÀÏ
±ÙÀú´ç±Ç
(OOOO
1,750,000,000 ¼Ò¸ê
4 2022³â12¿ù23ÀÏ
±ÙÀú´ç±Ç
(OOOO
2,640,000,000 ¼Ò¸ê
5 2025³â2¿ù7ÀÏ
Àü¼¼±Ç
±èOO
2,000,000,000 ¼Ò¸ê
6 2025³â3¿ù18ÀÏ
ÀÓÀǰæ¸Å
(OOOO
¼Ò¸ê

ÀÓÂ÷ÀÎÇöȲ (¹è´ç¿ä±¸Á¾±âÀÏ: 2025-06-12)



¸Å°¢±âÀÏ 7ÀÏÀü¿¡ ¸Å°¢¹°°Ç¸í¼¼¼­°¡ °ø°íµÇ¿À´Ï È®ÀÎÇϽñ⠹ٶø´Ï´Ù.

ÀÓÂ÷ÀÎ ¿ëµµ/Á¡À¯ º¸Áõ±Ý/¿ù¼¼ ´ëÇ×·Â
ÀüÀÔÀÏ/È®Á¤ÀÏ ¹è´ç¿ä±¸ ºñ°í
±èOO 2,000,000,000

2025.6.5.
´ºOOOOOOOOOO
O
2020.06.11
¹ÚOO
O
2020.07.10
ÁÖOOOOOOO
O
2020.06.11
ÁÖOOOOOOOOOO
X
2023.12.15
ÁÖOOOOOOOOOO
X
2024.06.26
ÁÖOOOOOO
O
2021.12.13
ÁÖOOOOOOOOOO ÁöÇÏÀüºÎ,1Ãþ~3Ãþ
O
2020.07.10
ÁÖOOOOOOOOO 4ÃþÀϺÎ
X
2024.12.30
ƮOOO
O
2022.03.04

¿©ÀÇÁÖ°æ¸Å Á¶¾ð ÇÑ ¸¶µð

³«Âû ÈÄ¿¡ µî±âºÎ»ó ¼Ò¸êµÇÁö ¾Ê´Â ±Ç¸®´Â ¾ø½À´Ï´Ù.
´ë·«ÀûÀÎ °ËÅäÀǰßÀ̹ǷΠÀÔÂûÀü¿¡ Àü¹®°¡ÀÇ Á¶¾ðÀ» Âü°íÇØ º¸½Ã±æ ±ÇÇØµå¸³´Ï´Ù.
´Ù¼öÀÇ ÀÓÂ÷ÀÎÀÌ Á¶»ç, ½Å°íµÇ¾î ÀÖ½À´Ï´Ù.
¸Å°¢¹°°Ç¸í¼¼¼­ ¹× ÇöȲÁ¶»ç¼­¿¡ 10¸íÀÇ ÀÓÂ÷ÀÎÀÌ ³ªÅ¸³ª ÀÖ½À´Ï´Ù. ÀÓÂ÷ÀÎÀÌ ¸¹Àº °æ¿ì ¸íµµ¿¡ ¾î·Á¿òÀÌ ÀÖÀ¸´Ï Àü¹®°¡¿Í ÇùÀÇÇÏ¿© ÁøÇàÇÏ½Ã±æ ±ÇÇØ µå¸³´Ï´Ù.
Á¦½Ã¿Ü ¹°°ÇÀÌ Æ÷ÇԵǾî ÀÖ½À´Ï´Ù.
°¨Á¤ ½ÃÁ¡ÀÌ ¿À·¡µÇ¾î °¡°Ýº¯µ¿ÀÌ ÀÖÀ» ¼ö ÀÖ½À´Ï´Ù.
ÀÌ ¹°°ÇÀº 2025³â 3¿ù 18ÀÏ¿¡ °æ¸Å°¡ °³½ÃµÇ¾ú´Âµ¥ Áö±Ý ½ÃÁ¡À¸·Î ¾à 388ÀÏÀÌ ÀÌ °æ°úµÇ¾ú½À´Ï´Ù. °¨Á¤°¡°ÝÀº 388ÀÏ Àü ½ÃÁ¡¿¡¼­ Æò°¡ÇÑ °¡°ÝÀ̹ǷΠ±× »çÀÌ °¡°Ýº¯µ¿ÀÌ ÀÖÀ» ¼ö ÀÖ½À´Ï´Ù. ƯÈ÷ °¡°Ý º¯µ¿ÀÌ ½ÉÇÑ ¾ÆÆÄÆ®´Â À¯ÀÇÇÏ¼Å¾ß ÇÕ´Ï´Ù. °¨Á¤°¡°ÝÀ» ³Ê¹« ¹ÏÁö ¸¶½Ã°í ÇöÀç ½Ç¸Å¹° °¡°Ý°ú ½Ç°Å·¡°¡¸¦ È®ÀÎÇϽñ⠹ٶø´Ï´Ù.
°£È¤ °¨Á¤°¡°Ýº¸´Ù ³ô°Ô ³«ÂûµÇ´Â °æ¿ì°¡ Àִµ¥ ´ëºÎºÐ ÀÌ·± ÀÌÀ¯ÀÔ´Ï´Ù.
¡Ø ¹°°Ç Ű¿öµå : µµ½ÃÁö¿ª/ÁÖ°ÅÁö¿ª/Á¦2Á¾ÀϹÝÁÖ°ÅÁö¿ª/ÅäÁö°Å·¡°è¾à¿¡°üÇÑÇã°¡±¸¿ª/¹ö½ºÁ¤·ùÀå/Â÷·®ÀÇ Á¢±ÙÀÌ °¡´É/ÁöÇÏö/³ë¼±¹ö½ºÁ¤·ùÀå/ö±ÙÄÜÅ©¸®Æ®±¸Á¶/Æò½½·¡ºêÁöºØ/½½·¡ºêÁöºØ
Àüü ÄÁ¼³ÆÃÀÌ ºÎ´ã½º·¯¿ì½Å°¡¿ä? ±Ç¸®ºÐ¼®¸¸ ÀÇ·ÚÇϼŵµ ±¦Âú½À´Ï´Ù!
½Ç¼Ó ÀÖ°Ô Çٽɸ¸ ´ãÀº ±Ç¸®ºÐ¼® ¼­ºñ½º!! (±Ç¸®ºÐ¼® + ½Ã¼¼Á¶»ç + ³«Âû°¡ »êÁ¤ + ÀÔÂûÇ¥ ÀÛ¼º¹æ¹ý ±îÁö)
ÃÖ´ë Àüü ÄÁ¼³ÆÃ ºñ¿ëÀÇ 10% ¼öÁØ !!

ÁÖÀÇ»çÇ× (ÃÖ¼±¼øÀ§ ¼³Á¤ÀÏ: 2022.11.28.±ÙÀú´ç±Ç ¼³Á¤)

¸Å°¢À¸·Î ¼Ò¸êµÇÁö ¾Ê´Â µî±âºÎ±Ç¸®:
¸Å°¢À¸·Î ¼³Á¤µÈ °ÍÀ¸·Î º¸´Â Áö»ó±Ç:
Àϰý¸Å°¢. Á¦½Ã¿Ü °Ç¹° Æ÷ÇÔ
¡Ø¹Ì³³°ü¸®ºñ(°ø¿ë) Àμö¿©ºÎ¸¦ ÀÔÂû Àü¿¡ È®ÀÎÇϽñ⠹ٶø´Ï´Ù

 

Áö¿ªºÐ¼®

ÁöÇÏö¸í Á÷¼±°Å¸®

Çб³¸í ÀüÈ­¹øÈ£ ÁÖ¼Ò Á÷¼±°Å¸®

¹ý¿ø

¼­¿ïÁß¾ÓÁö¹æ¹ý¿ø (065-94)¼­¿ïƯº°½Ã ¼­Ãʱ¸ ¼­ÃÊÁß¾Ó·Î 157 (¼­Ãʵ¿)
´ëÇ¥ : 02)530-1114, ¾ß°£ : 02)530-1280/536-8003
°üÇÒÁö¿ª : Á¾·Î±¸, Áß±¸, °­³²±¸, ¼­Ãʱ¸, °ü¾Ç±¸, µ¿ÀÛ±¸

µî±â¼Ò ¼­¿ïÁß¾ÓÁö¹æ¹ý¿ø º»¿ø µî±â±¹ (´ëÇ¥:1544-0773, ÆÑ½º:(02)590-1881, ¼­¿ïƯº°½Ã ¼­Ãʱ¸ ¹ý¿ø·Î3±æ 14 (¼­Ãʵ¿ 1707-4))
¼¼¹«¼­ °­³²¼¼¹«¼­ (´ëÇ¥:02-519-420, ÆÑ½º:02-512-3917, ¼­¿ïƯº°½Ã °­³²±¸ Çе¿·Î 425 (û´ãµ¿))

Àαٳ«ÂûÅë°è

±â°£ ¸Å°¢°Ç¼ö Æò±Õ°¨Á¤°¡
Æò±Õ¸Å°¢°¡
¸Å°¢°¡À²
Æò±ÕÀ¯Âû¼ö
3°³¿ù 1°Ç 4,740,000,000¿ø
2,934,800,000¿ø
62%
3ȸ
6°³¿ù 7°Ç 12,853,299,726¿ø
9,274,715,714¿ø
90%
1.1ȸ
12°³¿ù 18°Ç 7,432,074,460¿ø
5,020,126,650¿ø
71%
2.4ȸ


º» °æ¸ÅÁ¤º¸´Â ¹ý¿øÀÚ·á¿Í ÀÏÄ¡Çϵµ·Ï ÇÏ¿´À¸³ª ±Ç¸®»çÇ׺¯µ¿, ÀÔ·ÂÂø¿À µîÀÇ ¿øÀÎÀ¸·Î »ç½Ç°ú ´Ù¸¦ ¼ö ÀÖ½À´Ï´Ù. ÀÌ¿ë¾à°ü¿¡ ÀǰЏéÃ¥Á¶°ÇÀ¸·Î Á¦°øµÊÀ» ¾Ë¸®¸ç, °æ¸ÅÀÔÂû½Ã ¹Ýµå½Ã °ü·Ã °øºÎ¸¦ ÀçÈ®ÀÎÇϽñ⠹ٶø´Ï´Ù. º¸´Ù Æí¸®ÇÑ °æ¸ÅÁ¤º¸ Á¦°øÀ» À§ÇØ Áö¼ÓÀûÀ¸·Î °³¼±ÇϰڽÀ´Ï´Ù. ÀÌ¿ëÇØ Áּż­ °¨»çÇÕ´Ï´Ù.
°ü½É¹°°ÇÀ¸·Î µî·ÏÇÕ´Ï´Ù