22
´Ù¼¼´ë(ºô¶ó)
ÀÎõÁö¹æ¹ý¿ø ºÎõÁö¿ø
 °¨Á¤°¡145,000,000 ¿ø
 ÃÖÀú°¡(100%) 145,000,000 ¿ø
 º¸Áõ±Ý(10%) 14,500,000 ¿ø
 Ã»±¸¾×156,000,000 ¿ø
°æ±âµµ ºÎõ½Ã ¿ÀÁ¤±¸ ³»µ¿ 297-5 û´ãºô¸®Áö 3Ãþ301È£
»ç°Ç¹øÈ£ 2025Ÿ°æ34520
°æ¸ÅÁ¾·ùºÎµ¿»ê°­Á¦°æ¸Å
¸Å°¢´ë»óÅäÁö ¹× °Ç¹°Àϰý ¸Å°¢
¸Å°¢±âÀÏ    2026.04.22(¼ö) 10:00 ÀÔÂû 13ÀÏÀü    
ÅäÁö¸éÀû21.24§³(6.43 Æò)
°Ç¹°¸éÀû36.45§³(11.03 Æò)
乫/¼ÒÀ¯ÀÚ±èOO / ±èOO
ä±ÇÀÚÁÖOOOOOOO
±è¼ºÈÆ ´ëÇ¥ÀÌ»ç
°øÀÎÁß°³»ç, ºÎµ¿»ê°ø°æ¸Å»ç, ÇѾç´ëÇб³ Á¹¾÷
Àü) ÅÂÀÎÄÁ¼³ÆÃ(ÁÖ) ´ëÇ¥ÀÌ»ç
Àü) ¿©ÀÇÁֺε¿»êÁß°³¹ýÀÎ(ÁÖ) ´ëÇ¥ÀÌ»ç
Çö) ¿©ÀÇÁÖ°æ¸Å¹ýÀÎ ´ëÇ¥ÀÌ»ç
010-2371-3237
ÆäÀ̽ººÏ Æ®À§ÅÍ ±¸±Û+
īī¿À½ºÅ丮
īī¿ÀÅå sms¹®ÀÚº¸³»±â
 

±âÀϳ»¿ª

°æ°ú ³¯Â¥ Àú°¨ ÃÖÀú°¡ °á°ú
Á¢¼öÀÏ 2025-09-16 °æ¸ÅÁ¢¼ö
~1ÀÏ 
2025-09-17 °æ¸Å°³½Ã°áÁ¤
~62ÀÏ 
2025-11-17 ¹è´ç¿ä±¸Á¾±âÀÏ
~218ÀÏ 
2026-04-22 100%
145,000,000
ÁøÇà
¹°°Ç¸í¼¼¼­ ÇöȲÁ¶»ç¼­ ¹®°ÇÁ¢¼ö ¼Û´Þ³»¿ª

°¨Á¤Æò°¡ÇöȲ

¸ñ·Ï ÁÖ¼Ò ±¸Á¶/¿ëµµ/´ëÁö±Ç ¸éÀû ºñ°í
´ëÁö±Ç
³»µ¿ 297-5 183.1ºÐÀÇ 21.24 21.24 §³
(6.43Æò)
°Ç¹°
³»µ¿ 297-5 3Ãþ301È£ ö±ÙÄÜÅ©¸®Æ®±¸Á¶ 36.45 §³
(11.03Æò)
1) À§Ä¡/Á¦2Á¾ÀϹÝÁÖ°ÅÁö¿ª/ÅäÁö°Å·¡Çã°¡±¸¿ª/¹ö½ºÁ¤·ùÀå/ö±ÙÄÜÅ©¸®Æ®±¸Á¶ ´õº¸±â
°¨Á¤Æò°¡ ¿äÇ×Ç¥
1)À§Ä¡ ¹× ÁÖÀ§È¯°æ
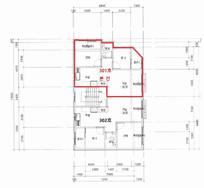
º»°ÇÀº °æ±âµµ ºÎõ½Ã ¿ÀÁ¤±¸ ³»µ¿ ¼ÒÀç "³»ÃÌ»ç°Å¸®" ºÏµ¿Ãø Àαٿ¡ À§Ä¡ÇÏ°í ºÎ±ÙÀº ´Ù¼¼´ëÁÖÅÃ,¿¬¸³ÁÖÅÃ,±Ù¸°»ýȰ½Ã¼³,°ø¿ø µîÀÌ ¼ÒÀçÇϰí ÀÖ´Â Áö¿ªÀÓ.
2)±³Åë»óȲ
º»°Ç±îÁö Á¦¹ÝÂ÷·®ÀÇ ÁøÃâÀÔÀÌ ¿ëÀÌÇϰí Àαٿ¡ ¹ö½ºÁ¤·ùÀåÀÌ ¼ÒÀçÇϰí ÀÖ¾î Á¦¹Ý±³Åë»çÁ¤Àº º¸Åë½Ã µÊ.
3)°Ç¹°ÀÇ ±¸Á¶
2011³â 10¿ù 28ÀÏ »ç¿ë½ÂÀÎÀ» ¹ÞÀº ö±ÙÄÜÅ©¸®Æ®±¸Á¶ (ö±Ù)ÄÜÅ©¸®Æ®(Æò½º¶óºê)ÁöºØ 5Ãþ°ÇÁß Á¦3Ãþ Á¦301È£·Î ¿Üº®:½ºÅæÄÚÆ® ¹× ÀÎÁ¶¼®ºÙÀÓ¸¶°¨µî ³»º®:º®Áö ¹× ÀϺΟÀϸ¶°¨µî âȣ:»þ½Ãâȣµî
4)ÀÌ¿ë»óÅÂ
´Ù¼¼´ëÁÖÅÃÀ¸·Î ÀÌ¿ëµÇ°í ÀÖÀ½.
5)¼³ºñ³»¿ª
À§»ý¼³ºñ,»óÇϼöµµ¼³ºñ,³­¹æ¼³ºñµî µÇ¾îÀÖÀ½.
6)ÅäÁöÀÇ Çü»ó ¹× ÀÌ¿ë»óÅÂ
1ÇÊÁö ´ëü·Î À广ÇüÀÇ ÅäÁö·Î °øµ¿ÁÖÅà ¹× Á¦1Á¾±Ù¸°»ýȰ½Ã¼³ÀÇ °ÇºÎÁö·Î ÀÌ¿ëµÇ°í ÀÖÀ½.
7)ÀÎÁ¢ µµ·Î»óŵî
µ¿Ãø°ú ºÏÃøÀ¸·Î ¾Æ½ºÆÈÆ®Æ÷Àåµµ·Î¿Í Á¢Çϰí ÀÖÀ½.
8)ÅäÁöÀÌ¿ë°èȹ ¹× Á¦ÇÑ»óÅÂ
Á¦2Á¾ÀϹÝÁÖ°ÅÁö¿ª,¼Ò·Î2·ù(Æø8m~10m)(Á¢ÇÔ),¼Ò·Î3·ù(Æø8m¹Ì¸¸)(Á¢ÇÔ), °¡Ãà»çÀ°Á¦Çѱ¸¿ª(ÀüºÎÁ¦Çѱ¸¿ª)<°¡ÃàºÐ´¢ÀÇ °ü¸® ¹× À̿뿡 °üÇÑ ¹ý·ü>, Ç×°øÇ¥¸é<°øÇ׽ü³¹ý>,°ú¹Ð¾ïÁ¦±Ç¿ª<¼öµµ±ÇÁ¤ºñ°èȹ¹ý>,ÅäÁö°Å·¡°è¾à¿¡ °üÇÑÇã°¡±¸¿ª(¿Ü±¹ÀÎ µî ÅäÁö°Å·¡Çã°¡±¸¿ª,´ë»ó:´Üµ¶,´Ù°¡±¸,¾ÆÆÄÆ®,¿¬¸³, ´Ù¼¼´ë(2025.08.26~2026.08.25)).
9)°øºÎ¿ÍÀÇ Â÷ÀÌ
ÇØ´ç»çÇ×¾øÀ½.
10)±âŸÂü°í»çÇ×(ÀÓ´ë°ü·Ê ¹× ±âŸ)
°¡.º»°Ç ÇöÀ广¹®ÇÏ¿´À¸³ª °ÅÁÖÀÎ µî ÀÌÇØ°ü°èÀÎÀÇ ºÎÀç°ü°è·Î ³»ºÎ±¸Á¶ µîÀº °øºÎ ¹× Àα٠À¯»ç¹°°ÇÀÇ Æò°¡Àü·Ê µîÀ» Âü°íÇÏ¿© ÀϹÝÀûÀÎ »ç¾çÀ» ±âÁØÀ¸·Î Æò°¡ÇÏ¿´À¸¸ç ÀÓ´ë¿©ºÎ´Â ÆÄ¾ÇÇÏÁö ¸øÇÏ¿´´Â ¹Ù °æ¸ÅÁøÇà½Ã Âü°í¹Ù¶ø´Ï´Ù. ³ª.º»°Ç µî±â»çÇ×ÀüºÎÁõ¸í¼­»ó ¾Æ·¡¿Í °°ÀÌ ÀÓÂ÷±Çµî±â¸í·ÉÀÌ µîÀçµÇ¾îÀÖÀ½. 2024Ä«ÀÓ(2024.01.26) ÀÓÂ÷º¸Áõ±Ý: 156,000,000¿ø ¹ü À§: °Ç¹°ÀÇ ÀüºÎ ÀÓ´ëÂ÷°è¾àÀÏÀÚ: 2021.12.18 Áֹεî·ÏÀÏÀÚ: 2022.01.12 Á¡À¯°³½ÃÀÏÀÚ: 2022.01.12 È®Á¤ÀÏÀÚ: 2021.12.20 ÀÓÂ÷±ÇÀÚ: ±è**,°æ±âµµ ºÎõ½Ã ¿ÀÁ¤±¸ »ïÀÛ·Î221¹ø±æ 39,301È£

°ÇÃ๰ÇöȲ

¼ÒÀçÁö °æ±âµµ ºÎõ½Ã ¿ÀÁ¤±¸ ³»µ¿ 297-5¹øÁö
´ëÁö¸éÀû 183.1§³
(55.48Æò)
¿¬¸éÀû 363.95§³
(110.29Æò)
°ÇÃà¸éÀû 107.89§³
(32.69Æò)
¿ëÀû·ü»êÁ¤
¿¬¸éÀû
363.95§³
(110.29Æò)
°ÇÆóÀ² 58.92% ¿ëÀû·ü 198.77%
Áö»óÃþ¼ö 5Ãþ ÁöÇÏÃþ¼ö  
ÁÖ¿ëµµ °øµ¿ÁÖÅà ±¸Á¶ ö±ÙÄÜÅ©¸®Æ®±¸Á¶
Âø°øÀÏÀÚ 2011.07.27 »ç¿ë½ÂÀÎÀÏÀÚ 2011.10.28
°ÇÃ๰Ãþº°ÇöȲ [º¸±â]


µî±âºÎµîº» ¿ä¾à(°Ç¹°)

  Á¢¼öÀÏÀÚ µî±â¸ñÀû/±Ç¸®ÀÚ ±Ç¸®±Ý¾× ±âÁØ
1 2022³â2¿ù3ÀÏ
¼ÒÀ¯±Ç
±èOO
¼Ò¸ê
2 2024³â1¿ù29ÀÏ
ÀÓÂ÷±Ç¼³Á¤
±èOO
156,000,000 Àμö
3 2025³â9¿ù17ÀÏ
°­Á¦°æ¸Å
ÁÖOOOO
¼Ò¸ê±âÁØ

ÀÓÂ÷ÀÎÇöȲ (¹è´ç¿ä±¸Á¾±âÀÏ: 2025-11-17)



¸Å°¢±âÀÏ 7ÀÏÀü¿¡ ¸Å°¢¹°°Ç¸í¼¼¼­°¡ °ø°íµÇ¿À´Ï È®ÀÎÇϽñ⠹ٶø´Ï´Ù.

ÀÓÂ÷ÀÎ ¿ëµµ/Á¡À¯ º¸Áõ±Ý/¿ù¼¼ ´ëÇ×·Â
ÀüÀÔÀÏ/È®Á¤ÀÏ ¹è´ç¿ä±¸ ºñ°í
±èOO ÀüºÎ 156,000,000
O
2022.01.12.
2021.12.20.
2022.01.12.
ÁÖOOOOOOOOOOOOOOO ÀüºÎ 156,000,000
O
2022.01.12.
2021.12.20.
2025.11.5. 2022.01.12.~2024.07.03.
ºñ°í
(¸Å°¢¹°°Ç
¸í¼¼¼­)
±èÁÖ¿ë: ÁÖÅÃÀÓÂ÷±Çµî±â±Ç¸®Àڷμ­ ÁÖÅÃÀÓÂ÷±Çµî±âÀÏÀº 2024. 1. 29.ÀÓ ÁÖÅõµ½Ãº¸Áõ°ø»ç(ÀÓÂ÷ÀÎ ±èÁÖ¿ë): °æ¸Å½Åûä±ÇÀÚÀ̰í ÀÓÂ÷ÀÎ ±èÁÖ¿ëÀÇ ÀÓÂ÷º¸Áõ±Ý¹Ýȯä±Ç ¾ç¼öÀÎÀ¸·Î¼­, º¸Áõ±Ý Àü¾×À» ¹è ´ç¹ÞÁö ¸øÇÏ´õ¶óµµ ÀÜÁ¸ ÀÓÂ÷º¸Áõ±Ý¹Ýȯä±ÇÀ» Æ÷±âÇϰí ÁÖÅÃÀÓÂ÷±Çµî±â ¸»¼Ò¿¡ µ¿ÀÇÇÑ´Ù´Â ÃëÁöÀÇ È®¾à¼­¸¦ Á¦ÃâÇÔ

¿©ÀÇÁÖ°æ¸Å Á¶¾ð ÇÑ ¸¶µð

¸Å°¢¹°°Ç¸í¼¼ ºñ°í³­¿¡ ±âÀçµÈ ³»¿ëÀÔ´Ï´Ù.
±èÁÖ¿ë: ÁÖÅÃÀÓÂ÷±Çµî±â±Ç¸®Àڷμ­ ÁÖÅÃÀÓÂ÷±Çµî±âÀÏÀº 2024. 1. 29.ÀÓ ÁÖÅõµ½Ãº¸Áõ°ø»ç(ÀÓÂ÷ÀÎ ±èÁÖ¿ë): °æ¸Å½Åûä±ÇÀÚÀ̰í ÀÓÂ÷ÀÎ ±èÁÖ¿ëÀÇ ÀÓÂ÷º¸Áõ±Ý¹Ýȯä±Ç ¾ç¼öÀÎÀ¸·Î¼­, º¸Áõ±Ý Àü¾×À» ¹è ´ç¹ÞÁö ¸øÇÏ´õ¶óµµ ÀÜÁ¸ ÀÓÂ÷º¸Áõ±Ý¹Ýȯä±ÇÀ» Æ÷±âÇϰí ÁÖÅÃÀÓÂ÷±Çµî±â ¸»¼Ò¿¡ µ¿ÀÇÇÑ´Ù´Â ÃëÁöÀÇ È®¾à¼­¸¦ Á¦ÃâÇÔ
³«Âû ÈÄ¿¡ µî±âºÎ»ó ¼Ò¸êµÇÁö ¾Ê´Â ±Ç¸®ÀÔ´Ï´Ù.
À»±¸ ¼øÀ§ 5¹ø ÁÖÅÃÀÓÂ÷±Çµî±â(´Ù¸¸ ÁÖÅõµ½Ãº¸Áõ°ø»çÀÇ ¸»¼Òµ¿ÀÇ È®¾à¼­°¡ Á¦ÃâµÊ)
¼±¼øÀ§ ÀÓÂ÷±Çµî±â°¡ µÇ¾î ÀÖ½À´Ï´Ù.
¡Ø ¹°°Ç Ű¿öµå : ÁÖ°ÅÁö¿ª/Á¦2Á¾ÀϹÝÁÖ°ÅÁö¿ª/ÅäÁö°Å·¡Çã°¡±¸¿ª/¹ö½ºÁ¤·ùÀå/ö±ÙÄÜÅ©¸®Æ®±¸Á¶
Àüü ÄÁ¼³ÆÃÀÌ ºÎ´ã½º·¯¿ì½Å°¡¿ä? ±Ç¸®ºÐ¼®¸¸ ÀÇ·ÚÇϼŵµ ±¦Âú½À´Ï´Ù!
½Ç¼Ó ÀÖ°Ô Çٽɸ¸ ´ãÀº ±Ç¸®ºÐ¼® ¼­ºñ½º!! (±Ç¸®ºÐ¼® + ½Ã¼¼Á¶»ç + ³«Âû°¡ »êÁ¤ + ÀÔÂûÇ¥ ÀÛ¼º¹æ¹ý ±îÁö)
ÃÖ´ë Àüü ÄÁ¼³ÆÃ ºñ¿ëÀÇ 10% ¼öÁØ !!

ÁÖÀÇ»çÇ× (ÃÖ¼±¼øÀ§ ¼³Á¤ÀÏ: 2025.09.17.°æ¸Å°³½Ã°áÁ¤ ¼³Á¤)

¸Å°¢À¸·Î ¼Ò¸êµÇÁö ¾Ê´Â µî±âºÎ±Ç¸®: À»±¸ ¼øÀ§ 5¹ø ÁÖÅÃÀÓÂ÷±Çµî±â(´Ù¸¸ ÁÖÅõµ½Ãº¸Áõ°ø»çÀÇ ¸»¼Òµ¿ÀÇ È®¾à¼­°¡ Á¦ÃâµÊ)
¸Å°¢À¸·Î ¼³Á¤µÈ °ÍÀ¸·Î º¸´Â Áö»ó±Ç:
¡Ø¹Ì³³°ü¸®ºñ(°ø¿ë) Àμö¿©ºÎ¸¦ ÀÔÂû Àü¿¡ È®ÀÎÇϽñ⠹ٶø´Ï´Ù

 

Áö¿ªºÐ¼®

ÁöÇÏö¸í Á÷¼±°Å¸®

Çб³¸í ÀüÈ­¹øÈ£ ÁÖ¼Ò Á÷¼±°Å¸®

¹ý¿ø

ÀÎõÁö¹æ¹ý¿ø ºÎõÁö¿ø (146-02)°æ±âµµ ºÎõ½Ã ¿ø¹Ì±¸ »óÀÏ·Î 129(»óµ¿)
´ëÇ¥ : 032)320-1114, ¹Î¿ø : 032)320-1234
°üÇÒÁö¿ª : ºÎõ½Ã, ±èÆ÷½Ã

µî±â¼Ò ÀÎõÁö¹æ¹ý¿ø ºÎõÁö¿ø µî±â°ú (´ëÇ¥:1544-0773, ÆÑ½º:(032)320-1484, 320-1485, °æ±âµµ ºÎõ½Ã »óÀÏ·Î 129 (»óµ¿ 445-1))
¼¼¹«¼­ ¼¼¹«¼­ (´ëÇ¥:, ÆÑ½º:, )

Àαٳ«ÂûÅë°è

±â°£ ¸Å°¢°Ç¼ö Æò±Õ°¨Á¤°¡
Æò±Õ¸Å°¢°¡
¸Å°¢°¡À²
Æò±ÕÀ¯Âû¼ö
3°³¿ù 36°Ç 267,694,444¿ø
169,154,072¿ø
65%
1.7ȸ
6°³¿ù 64°Ç 246,636,250¿ø
166,610,073¿ø
68%
1.5ȸ
12°³¿ù 79°Ç 236,249,620¿ø
163,206,876¿ø
70%
1.5ȸ


º» °æ¸ÅÁ¤º¸´Â ¹ý¿øÀÚ·á¿Í ÀÏÄ¡Çϵµ·Ï ÇÏ¿´À¸³ª ±Ç¸®»çÇ׺¯µ¿, ÀÔ·ÂÂø¿À µîÀÇ ¿øÀÎÀ¸·Î »ç½Ç°ú ´Ù¸¦ ¼ö ÀÖ½À´Ï´Ù. ÀÌ¿ë¾à°ü¿¡ ÀǰЏéÃ¥Á¶°ÇÀ¸·Î Á¦°øµÊÀ» ¾Ë¸®¸ç, °æ¸ÅÀÔÂû½Ã ¹Ýµå½Ã °ü·Ã °øºÎ¸¦ ÀçÈ®ÀÎÇϽñ⠹ٶø´Ï´Ù. º¸´Ù Æí¸®ÇÑ °æ¸ÅÁ¤º¸ Á¦°øÀ» À§ÇØ Áö¼ÓÀûÀ¸·Î °³¼±ÇϰڽÀ´Ï´Ù. ÀÌ¿ëÇØ Áּż­ °¨»çÇÕ´Ï´Ù.
°ü½É¹°°ÇÀ¸·Î µî·ÏÇÕ´Ï´Ù