20
¿ÀÇǽºÅÚ
ÀÎõÁö¹æ¹ý¿ø
 °¨Á¤°¡282,000,000 ¿ø
 ÃÖÀú°¡(100%) 282,000,000 ¿ø
 º¸Áõ±Ý(10%) 28,200,000 ¿ø
 Ã»±¸¾×327,000,000 ¿ø
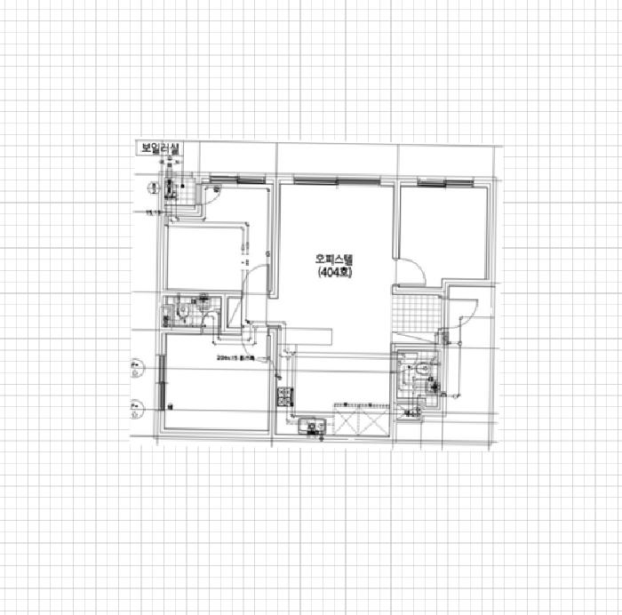
ÀÎõ±¤¿ª½Ã ºÎÆò±¸ ºÎÆòµ¿ 118-43 ƼÁ¦ÀÌ´õÇ÷¹À̽º 4Ãþ404È£
»ç°Ç¹øÈ£ 2025Ÿ°æ509979
°æ¸ÅÁ¾·ùºÎµ¿»ê°­Á¦°æ¸Å
¸Å°¢´ë»óÅäÁö ¹× °Ç¹°Àϰý ¸Å°¢
¸Å°¢±âÀÏ    2026.04.20(¿ù) 10:00 ÀÔÂû 13ÀÏÀü    
ÅäÁö¸éÀû10.26§³(3.10 Æò)
°Ç¹°¸éÀû72.27§³(21.86 Æò)
乫/¼ÒÀ¯ÀÚ¼ÛOO / ¼ÛOO
ä±ÇÀÚÁÖOOOOOOO
±è¼ºÈÆ ´ëÇ¥ÀÌ»ç
°øÀÎÁß°³»ç, ºÎµ¿»ê°ø°æ¸Å»ç, ÇѾç´ëÇб³ Á¹¾÷
Àü) ÅÂÀÎÄÁ¼³ÆÃ(ÁÖ) ´ëÇ¥ÀÌ»ç
Àü) ¿©ÀÇÁֺε¿»êÁß°³¹ýÀÎ(ÁÖ) ´ëÇ¥ÀÌ»ç
Çö) ¿©ÀÇÁÖ°æ¸Å¹ýÀÎ ´ëÇ¥ÀÌ»ç
010-2371-3237
ÆäÀ̽ººÏ Æ®À§ÅÍ ±¸±Û+
īī¿À½ºÅ丮
īī¿ÀÅå sms¹®ÀÚº¸³»±â
 

±âÀϳ»¿ª

°æ°ú ³¯Â¥ Àú°¨ ÃÖÀú°¡ °á°ú
Á¢¼öÀÏ 2025-06-13 °æ¸ÅÁ¢¼ö
~3ÀÏ 
2025-06-16 °æ¸Å°³½Ã°áÁ¤
~87ÀÏ 
2025-09-08 ¹è´ç¿ä±¸Á¾±âÀÏ
~311ÀÏ 
2026-04-20 100%
282,000,000
ÁøÇà
¹°°Ç¸í¼¼¼­ ÇöȲÁ¶»ç¼­ ¹®°ÇÁ¢¼ö ¼Û´Þ³»¿ª

°¨Á¤Æò°¡ÇöȲ

¸ñ·Ï ÁÖ¼Ò ±¸Á¶/¿ëµµ/´ëÁö±Ç ¸éÀû ºñ°í
´ëÁö±Ç
ºÎÆòµ¿ 118-43 464.8ºÐÀÇ 10.26 10.26 §³
(3.10Æò)
°Ç¹°
ºÎÆòµ¿ 118-43 4Ãþ404È£ ö±ÙÄÜÅ©¸®Æ®±¸Á¶ 72.27 §³
(21.86Æò)
1) À§Ä¡/ÀϹݻó¾÷Áö¿ª/¹ö½ºÁ¤·ùÀå/Â÷·® Á¢±ÙÀÌ °¡´É/ö±ÙÄÜÅ©¸®Æ®±¸Á¶ ´õº¸±â
°¨Á¤Æò°¡ ¿äÇ×Ç¥
1)À§Ä¡ ¹× ÁÖÀ§È¯°æ
º»°ÇÀº ÀÎõ±¤¿ª½Ã ºÎÆò±¸ ºÎÆòµ¿ ¼ÒÀç 'ÀÎõºÎÈïÃʵîÇб³' ºÏÃø Àαٿ¡ À§Ä¡Çϸç, ÁÖÀ§´Â µ¿À¯ÇüÀÇ ¿ÀÇǽºÅÚ, ´Ù¼¼´ëÁÖÅà ¹× ±Ù¸°»ýȰ½Ã¼³ µîÀÌ ¼ÒÀçÇϸç ÁÖÀ§È¯°æÀº º¸ÅëÀÓ.
2)±³Åë»óȲ
º»°Ç±îÁö Â÷·® Á¢±ÙÀÌ °¡´ÉÇϸç, Àαٿ¡ ¹ö½ºÁ¤·ùÀåÀÌ ¼ÒÀçÇÏ¸ç ±³Åë»óȲÀº º¸ÅëÀÓ.
3)°Ç¹°ÀÇ ±¸Á¶
ö±ÙÄÜÅ©¸®Æ®±¸Á¶ (ö±Ù)ÄÜÅ©¸®Æ®ÁöºØ ÁöÇÏ1Ãþ/Áö»ó14Ãþ °Ç¹° ³» Á¦4Ãþ Á¦404È£·Î¼­,
(»ç¿ë½ÂÀÎÀÏ : 2017.07.13)
¿Üº® : ¸ôÅ»À§ ÆäÀÎÆÃ ¹× ¼®ÀçºÙÀÓ ¸¶°¨ µî,
âȣ : »þ½Ã âȣ µîÀÓ.
4)ÀÌ¿ë»óÅÂ
¿ÀÇǽºÅÚÀÓ.
5)¼³ºñ³»¿ª
±âº»ÀûÀÎ ±Þ¹è¼ö¼³ºñ, À§»ý¼³ºñ, ³­¹æ¼³ºñ, ½Â°­±â¼³ºñ µîÀÌ ÀÖÀ½.
6)ÅäÁöÀÇ Çü»ó ¹× ÀÌ¿ë»óÅÂ
ÀÎÁ¢ÇÊÁö ´ëºñ µî°íÆòźÇÑ °¡ÀåÇü ÅäÁö·Î¼­ °øµ¿ÁÖÅà ¹× ¾÷¹«½Ã¼³ °ÇºÎÁö·Î ÀÌ¿ë ÁßÀÓ.
7)ÀÎÁ¢ µµ·Î»óŵî
º»°ÇÀº ºÏÃøÀ¸·Î ¼Ò·Î¿Í Á¢ÇÔ.
8)ÅäÁöÀÌ¿ë°èȹ ¹× Á¦ÇÑ»óÅÂ
ÀϹݻó¾÷Áö¿ª, ¹æÈ­Áö±¸, °¡·Î±¸¿ªº° ÃÖ°í³ôÀÌ Á¦ÇÑÁö¿ª<°ÇÃà¹ý>, °ú¹Ð¾ïÁ¦±Ç¿ª<¼öµµ±ÇÁ¤ºñ°èȹ¹ý>ÀÓ.
9)°øºÎ¿ÍÀÇ Â÷ÀÌ
ÇØ´ç»çÇ× ¾øÀ½.
10)±âŸÂü°í»çÇ×(ÀÓ´ë°ü·Ê ¹× ±âŸ)
ÀÓ´ë°ü°è ¹Ì»óÀÓ.

Âü°í
»çÇ×

º» °ÇÀº 14

°ÇÃ๰ÇöȲ

¼ÒÀçÁö ÀÎõ±¤¿ª½Ã ºÎÆò±¸ ºÎÆòµ¿ 118-43¹øÁö
´ëÁö¸éÀû 464.8§³
(140.85Æò)
¿¬¸éÀû 4424.96§³
(1340.9Æò)
°ÇÃà¸éÀû 333.98§³
(101.21Æò)
¿ëÀû·ü»êÁ¤
¿¬¸éÀû
4063§³
(1231.21Æò)
°ÇÆóÀ² 71.85% ¿ëÀû·ü 874.14%
Áö»óÃþ¼ö 14Ãþ ÁöÇÏÃþ¼ö 1Ãþ
ÁÖ¿ëµµ ¾÷¹«½Ã¼³ ±¸Á¶ ö±ÙÄÜÅ©¸®Æ®±¸Á¶
Âø°øÀÏÀÚ 2016.12.05 »ç¿ë½ÂÀÎÀÏÀÚ 2017.07.13
°ÇÃ๰Ãþº°ÇöȲ [º¸±â]


±¹ÅäºÎ½Ç°Å·¡°¡ ÀÎõ±¤¿ª½Ã ºÎÆò±¸ ºÎÆòµ¿

¡Ü ¸Å¸Å

¸éÀû(§³), ±Ý¾×(¸¸¿ø)

¡Ü Àü¼¼

¸éÀû(§³), ±Ý¾×(¸¸¿ø)

°è¾àÀϰǹ°¸íĪÃþÀü¿ëº¸Áõ±Ý¿ù¼¼°ÇÃà
25.10.15TJ´õÇ÷¹À̽º359.3713,32002017

µî±âºÎµîº» ¿ä¾à(°Ç¹°)

  Á¢¼öÀÏÀÚ µî±â¸ñÀû/±Ç¸®ÀÚ ±Ç¸®±Ý¾× ±âÁØ
1 2022³â1¿ù17ÀÏ
¼ÒÀ¯±Ç
¼ÛOO
¼Ò¸ê
2 2023³â1¿ù20ÀÏ
¾Ð·ù
±¹
¼Ò¸ê±âÁØ
3 2024³â10¿ù15ÀÏ
ÀÓÂ÷±Ç¼³Á¤
±èO
327,000,000 ¼Ò¸ê
4 2025³â6¿ù16ÀÏ
°­Á¦°æ¸Å
ÁÖOOOO
¼Ò¸ê

ÀÓÂ÷ÀÎÇöȲ (¹è´ç¿ä±¸Á¾±âÀÏ: 2025-09-08)



¸Å°¢±âÀÏ 7ÀÏÀü¿¡ °ø°íµÇ¿À´Ï È®ÀÎÇϽñ⠹ٶø´Ï´Ù.


¿©ÀÇÁÖ°æ¸Å Á¶¾ð ÇÑ ¸¶µð

³«Âû ÈÄ¿¡ µî±âºÎ»ó ¼Ò¸êµÇÁö ¾Ê´Â ±Ç¸®´Â ¾ø½À´Ï´Ù.
´ë·«ÀûÀÎ °ËÅäÀǰßÀ̹ǷΠÀÔÂûÀü¿¡ Àü¹®°¡ÀÇ Á¶¾ðÀ» Âü°íÇØ º¸½Ã±æ ±ÇÇØµå¸³´Ï´Ù.
¡Ø ¹°°Ç Ű¿öµå : »ó¾÷Áö¿ª/ÀϹݻó¾÷Áö¿ª/¹ö½ºÁ¤·ùÀå/Â÷·® Á¢±ÙÀÌ °¡´É/ö±ÙÄÜÅ©¸®Æ®±¸Á¶
Àüü ÄÁ¼³ÆÃÀÌ ºÎ´ã½º·¯¿ì½Å°¡¿ä? ±Ç¸®ºÐ¼®¸¸ ÀÇ·ÚÇϼŵµ ±¦Âú½À´Ï´Ù!
½Ç¼Ó ÀÖ°Ô Çٽɸ¸ ´ãÀº ±Ç¸®ºÐ¼® ¼­ºñ½º!! (±Ç¸®ºÐ¼® + ½Ã¼¼Á¶»ç + ³«Âû°¡ »êÁ¤ + ÀÔÂûÇ¥ ÀÛ¼º¹æ¹ý ±îÁö)
ÃÖ´ë Àüü ÄÁ¼³ÆÃ ºñ¿ëÀÇ 10% ¼öÁØ !!

ÁÖÀÇ»çÇ× (ÃÖ¼±¼øÀ§ ¼³Á¤ÀÏ: )

¸Å°¢À¸·Î ¼Ò¸êµÇÁö ¾Ê´Â µî±âºÎ±Ç¸®:
¸Å°¢À¸·Î ¼³Á¤µÈ °ÍÀ¸·Î º¸´Â Áö»ó±Ç:
¡Ø¹Ì³³°ü¸®ºñ(°ø¿ë) Àμö¿©ºÎ¸¦ ÀÔÂû Àü¿¡ È®ÀÎÇϽñ⠹ٶø´Ï´Ù

 

Áö¿ªºÐ¼®

ÁöÇÏö¸í Á÷¼±°Å¸®

Çб³¸í ÀüÈ­¹øÈ£ ÁÖ¼Ò Á÷¼±°Å¸®

¹ý¿ø

ÀÎõÁö¹æ¹ý¿ø (222-20)ÀÎõ±¤¿ª½Ã ¹ÌÃßȦ±¸ ¼Ò¼º·Î 163¹ø±æ 17(ÇÐÀ͵¿)
´ëÇ¥ : 032)860-1113~4
°üÇÒÁö¿ª : Áß±¸, µ¿±¸, ³²±¸, ¿¬¼ö±¸, ³²µ¿±¸, ºÎÆò±¸, °è¾ç±¸, ¼­±¸, ¿ËÁø±º, °­È­±º

µî±â¼Ò ÀÎõÁö¹æ¹ý¿ø º»¿ø µî±â±¹ (´ëÇ¥:1544-0773, ÆÑ½º:(032)620-9099, ÀÎõ±¤¿ª½Ã ¹ÌÃßȦ±¸ °æ¿ø´ë·Î 881(Á־ȵ¿ 983))
¼¼¹«¼­ ºÏÀÎõ¼¼¹«¼­ (´ëÇ¥:032-540-62, ÆÑ½º:032-545-0411, ÀÎõ±¤¿ª½Ã °è¾ç±¸ È¿¼­·Î244(ÀÛÀüµ¿ 422-1) )

Àαٳ«ÂûÅë°è

±â°£ ¸Å°¢°Ç¼ö Æò±Õ°¨Á¤°¡
Æò±Õ¸Å°¢°¡
¸Å°¢°¡À²
Æò±ÕÀ¯Âû¼ö
3°³¿ù 133°Ç 217,270,677¿ø
138,741,447¿ø
65%
1.9ȸ
6°³¿ù 300°Ç 217,206,667¿ø
150,463,981¿ø
70%
1.7ȸ
12°³¿ù 548°Ç 220,001,095¿ø
157,403,119¿ø
72%
1.6ȸ


º» °æ¸ÅÁ¤º¸´Â ¹ý¿øÀÚ·á¿Í ÀÏÄ¡Çϵµ·Ï ÇÏ¿´À¸³ª ±Ç¸®»çÇ׺¯µ¿, ÀÔ·ÂÂø¿À µîÀÇ ¿øÀÎÀ¸·Î »ç½Ç°ú ´Ù¸¦ ¼ö ÀÖ½À´Ï´Ù. ÀÌ¿ë¾à°ü¿¡ ÀǰЏéÃ¥Á¶°ÇÀ¸·Î Á¦°øµÊÀ» ¾Ë¸®¸ç, °æ¸ÅÀÔÂû½Ã ¹Ýµå½Ã °ü·Ã °øºÎ¸¦ ÀçÈ®ÀÎÇϽñ⠹ٶø´Ï´Ù. º¸´Ù Æí¸®ÇÑ °æ¸ÅÁ¤º¸ Á¦°øÀ» À§ÇØ Áö¼ÓÀûÀ¸·Î °³¼±ÇϰڽÀ´Ï´Ù. ÀÌ¿ëÇØ Áּż­ °¨»çÇÕ´Ï´Ù.
°ü½É¹°°ÇÀ¸·Î µî·ÏÇÕ´Ï´Ù