74
¾ÆÆÄÆ®
¼ö¿øÁö¹æ¹ý¿ø
 °¨Á¤°¡1,268,000,000 ¿ø
 ÃÖÀú°¡(100%) 1,268,000,000 ¿ø
 º¸Áõ±Ý(10%) 126,800,000 ¿ø
 Ã»±¸¾×511,956,137 ¿ø
°æ±âµµ ¿ëÀνà ¼öÁö±¸ ¼ºº¹µ¿ 767 ¹öµéÄ¡¸¶À» ¼ºº¹ÀÚÀÌ2Â÷ 207µ¿ 1Ãþ103È£
»ç°Ç¹øÈ£ 2025Ÿ°æ55038
Áߺ¹»ç°ÇÁߺ¹ 2025Ÿ°æ55867,
°æ¸ÅÁ¾·ùºÎµ¿»êÀÓÀǰæ¸Å
¸Å°¢´ë»óÅäÁö ¹× °Ç¹°Àϰý ¸Å°¢
¸Å°¢±âÀÏ    2026.04.17(±Ý) 10:00 ÀÔÂû 8ÀÏÀü    
ÅäÁö¸éÀû100.96§³(30.54 Æò)
°Ç¹°¸éÀû179.99§³(54.45 Æò)
乫/¼ÒÀ¯ÀÚ±èOO / ±èOO
ä±ÇÀÚ¿¡OOOOOOOOOOOOOOOOOOO(OOOO OOOO OOOOOOOO)¿Ü 1¸í
±è¼ºÈÆ ´ëÇ¥ÀÌ»ç
°øÀÎÁß°³»ç, ºÎµ¿»ê°ø°æ¸Å»ç, ÇѾç´ëÇб³ Á¹¾÷
Àü) ÅÂÀÎÄÁ¼³ÆÃ(ÁÖ) ´ëÇ¥ÀÌ»ç
Àü) ¿©ÀÇÁֺε¿»êÁß°³¹ýÀÎ(ÁÖ) ´ëÇ¥ÀÌ»ç
Çö) ¿©ÀÇÁÖ°æ¸Å¹ýÀÎ ´ëÇ¥ÀÌ»ç
010-2371-3237
ÆäÀ̽ººÏ Æ®À§ÅÍ ±¸±Û+
īī¿À½ºÅ丮
īī¿ÀÅå sms¹®ÀÚº¸³»±â
 

±âÀϳ»¿ª

°æ°ú ³¯Â¥ Àú°¨ ÃÖÀú°¡ °á°ú
Á¢¼öÀÏ 2025-03-11 °æ¸ÅÁ¢¼ö
~2ÀÏ 
2025-03-13 °æ¸Å°³½Ã°áÁ¤
~76ÀÏ 
2025-05-26 ¹è´ç¿ä±¸Á¾±âÀÏ
~402ÀÏ 
2026-04-17 100%
1,268,000,000
ÁøÇà
¹°°Ç¸í¼¼¼­ ÇöȲÁ¶»ç¼­ ¹®°ÇÁ¢¼ö ¼Û´Þ³»¿ª

°¨Á¤Æò°¡ÇöȲ

¸ñ·Ï ÁÖ¼Ò ±¸Á¶/¿ëµµ/´ëÁö±Ç ¸éÀû ºñ°í
´ëÁö±Ç
¼ºº¹µ¿ 767 67885.9ºÐÀÇ 100.962 100.962 §³
(30.54Æò)
°Ç¹°
¼ºº¹µ¿ 767 207µ¿ 1Ãþ103È£ ö±ÙÄÜÅ©¸®Æ®±¸Á¶ 179.986 §³
(54.45Æò)
1) À§Ä¡/µµ½ÃÁö¿ª/Á¦3Á¾ÀϹÝÁÖ°ÅÁö¿ª/Áö±¸´ÜÀ§°èȹ±¸¿ª/¹ö½ºÁ¤·ùÀå/Â÷·®ÁøÃâÀÔ °¡´É/Â÷·®ÁøÃâÀÔ °¡´É/ö±ÙÄÜÅ©¸®Æ®±¸Á¶ ´õº¸±â
°¨Á¤Æò°¡ ¿äÇ×Ç¥
1)À§Ä¡ ¹× ÁÖÀ§È¯°æ
º»°ÇÀº °æ±âµµ ¿ëÀνà ¼öÁö±¸ ¼ºº¹µ¿ ¼ÒÀç '¼º¼­ÃʵîÇб³' ³²¼­Ãø¿¡ À§Ä¡ÇÑ ºÎµ¿»êÀ¸·Î¼­ ÁÖÀ§´Â ¾ÆÆÄÆ®´ÜÁö, Áß.¼Ò±Ô¸ðÀÇ °øµ¿ÁÖÅÃ, ±Ù¸°»ýȰ½Ã¼³, Çб³ µîÀÌ ¼ÒÀçÇÏ´Â Áö´ë·Î¼­ Á¦¹Ý ÁÖÀ§È¯°æÀº º¸Åë½ÃµÊ.
2)±³Åë»óȲ
º»°Ç±îÁö Â÷·®ÁøÃâÀÔ °¡´ÉÇϰí, Àαٿ¡ ¹ö½ºÁ¤·ùÀå ÀÌ ¼ÒÀçÇÏ´Â µî Á¦¹Ý ±³Åë¿©°ÇÀº ´ëü·Î º¸Åë½ÃµÊ.
3)°Ç¹°ÀÇ ±¸Á¶
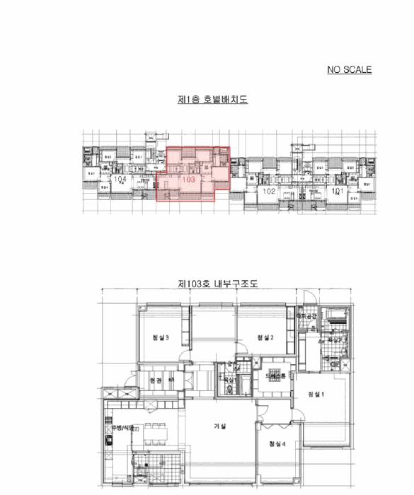
º»°ÇÀº ö±ÙÄÜÅ©¸®Æ®±¸Á¶ (ö±Ù)ÄÜÅ©¸®Æ®ÁöºØ 19Ãþ ³» Á¦1Ãþ Á¦103È£·Î¼­,
¿Üº® : ½Ã¸àÆ®¸ôÅ»À§ ÆäÀÎÆÃ, ÀÎÁ¶¼® ºÙÀÓ µî ¸¶°¨
³»º® : º®Áöµµ¹è, ÀϺΠŸÀϸ¶°¨ µî,
âȣ : »õ½Ãâȣ µîÀÓ.
4)ÀÌ¿ë»óÅÂ
º»°ÇÀº °øµ¿ÁÖÅÃ(¾ÆÆÄÆ®)·Î ÀÌ¿ëÁßÀÓ.(Èĸ顮³»ºÎ±¸Á¶µµ¡¯ ÂüÁ¶)
5)¼³ºñ³»¿ª
À§»ý, ±Þ¹è¼ö, ³­¹æ¼³ºñ, ½Â°­±â ¼³ºñ, ¼ÒÈ­Àü¼³ºñ µî ±¸ºñµÇ¾î ÀÖÀ½.
6)ÅäÁöÀÇ Çü»ó ¹× ÀÌ¿ë»óÅÂ
´ëü·Î ºÎÁ¤Çü ÅäÁö·Î¼­ ¾ÆÆÄÆ® °ÇºÎÁö·Î ÀÌ¿ëÁßÀÓ.
7)ÀÎÁ¢ µµ·Î»óŵî
´ÜÁö ³»¿Ü Æ÷Àåµµ·Î °³¼³µÇ¾î ÀÖÀ¸¸ç, ÀÎÁ¢µµ·Î »óÅ º¸Åë½ÃµÊ.
8)ÅäÁöÀÌ¿ë°èȹ ¹× Á¦ÇÑ»óÅÂ
µµ½ÃÁö¿ª, Á¦3Á¾ÀϹÝÁÖ°ÅÁö¿ª, Áö±¸´ÜÀ§°èȹ±¸¿ª, Áß·Î2·ù(Æø 15m~20m)(Á¢ÇÕ), Áß·Î3·ù(Æø 12m~15m)(Áý»êµµ·Î)(Á¢ÇÕ) °¡Ãà»çÀ°Á¦Çѱ¸¿ª<°¡ÃàºÐ´¢ÀÇ °ü¸® ¹× À̿뿡 °üÇÑ ¹ý·ü>, ¼ºÀå°ü¸®±Ç¿ª<¼öµµ±ÇÁ¤ºñ°èȹ¹ý>
9)°øºÎ¿ÍÀÇ Â÷ÀÌ
--
10)±âŸÂü°í»çÇ×(ÀÓ´ë°ü·Ê ¹× ±âŸ)
ÀÓ´ë°ü°è ¹Ì»óÀÓ.
Âü°í
»çÇ×

º»°Ç ºÎµ¿»êÀÇ ÇöȲÀº ¿Ü

°ÇÃ๰ÇöȲ

¼ÒÀçÁö °æ±âµµ ¿ëÀνà ¼öÁö±¸ ¼ºº¹µ¿ 767¹øÁö
´ëÁö¸éÀû   ¿¬¸éÀû 8.19§³
(2.48Æò)
°ÇÃà¸éÀû 8.19§³
(2.48Æò)
¿ëÀû·ü»êÁ¤
¿¬¸éÀû
8.19§³
(2.48Æò)
°ÇÆóÀ²   ¿ëÀû·ü  
Áö»óÃþ¼ö 1Ãþ ÁöÇÏÃþ¼ö  
ÁÖ¿ëµµ °øµ¿ÁÖÅà ±¸Á¶ ö±ÙÄÜÅ©¸®Æ®±¸Á¶
Âø°øÀÏÀÚ 2007.06.30 »ç¿ë½ÂÀÎÀÏÀÚ 2010.12.03
°ÇÃ๰Ãþº°ÇöȲ [º¸±â]


µî±âºÎµîº» ¿ä¾à(°Ç¹°)

  Á¢¼öÀÏÀÚ µî±â¸ñÀû/±Ç¸®ÀÚ ±Ç¸®±Ý¾× ±âÁØ
1 2017³â8¿ù11ÀÏ
¼ÒÀ¯±Ç
±èOO
¼Ò¸ê
2 2017³â8¿ù11ÀÏ
±ÙÀú´ç±Ç
³óOOOO
674,000,000 ¼Ò¸ê±âÁØ
3 2021³â3¿ù19ÀÏ
±ÙÀú´ç±Ç
(OOOO
390,000,000 ¼Ò¸ê
4 2021³â12¿ù1ÀÏ
±ÙÀú´ç±Ç
(OOOO
231,600,000 ¼Ò¸ê
5 2025³â1¿ù2ÀÏ
¾Ð·ù
±¹
¼Ò¸ê
6 2025³â1¿ù13ÀÏ
¾Ð·ù
±¹
¼Ò¸ê
7 2025³â2¿ù25ÀÏ
¾Ð·ù
±¹OOOO
¼Ò¸ê
8 2025³â3¿ù13ÀÏ
ÀÓÀǰæ¸Å
(OOOO
¼Ò¸ê
9 2025³â5¿ù8ÀÏ
ÀÓÀǰæ¸Å
³óOOOO
¼Ò¸ê
10 2026³â1¿ù9ÀÏ
¾Ð·ù
¿ëOO
¼Ò¸ê
11 2026³â2¿ù2ÀÏ
°¡¾Ð·ù
¼ºOOOO
3,152,060 ¼Ò¸ê

ÀÓÂ÷ÀÎÇöȲ (¹è´ç¿ä±¸Á¾±âÀÏ: 2025-05-26)



¸Å°¢±âÀÏ 7ÀÏÀü¿¡ °ø°íµÇ¿À´Ï È®ÀÎÇϽñ⠹ٶø´Ï´Ù.


¿©ÀÇÁÖ°æ¸Å Á¶¾ð ÇÑ ¸¶µð

³«Âû ÈÄ¿¡ µî±âºÎ»ó ¼Ò¸êµÇÁö ¾Ê´Â ±Ç¸®´Â ¾ø½À´Ï´Ù.
´ë·«ÀûÀÎ °ËÅäÀǰßÀ̹ǷΠÀÔÂûÀü¿¡ Àü¹®°¡ÀÇ Á¶¾ðÀ» Âü°íÇØ º¸½Ã±æ ±ÇÇØµå¸³´Ï´Ù.
ü³³°ü¸®ºñ¸¦ ºÎ´ãÇÒ ¼ö ÀÖ½À´Ï´Ù.
°¨Á¤ ½ÃÁ¡ÀÌ ¿À·¡µÇ¾î °¡°Ýº¯µ¿ÀÌ ÀÖÀ» ¼ö ÀÖ½À´Ï´Ù.
ÀÌ ¹°°ÇÀº 2025³â 3¿ù 13ÀÏ¿¡ °æ¸Å°¡ °³½ÃµÇ¾ú´Âµ¥ Áö±Ý ½ÃÁ¡À¸·Î ¾à 392ÀÏÀÌ ÀÌ °æ°úµÇ¾ú½À´Ï´Ù. °¨Á¤°¡°ÝÀº 392ÀÏ Àü ½ÃÁ¡¿¡¼­ Æò°¡ÇÑ °¡°ÝÀ̹ǷΠ±× »çÀÌ °¡°Ýº¯µ¿ÀÌ ÀÖÀ» ¼ö ÀÖ½À´Ï´Ù. ƯÈ÷ °¡°Ý º¯µ¿ÀÌ ½ÉÇÑ ¾ÆÆÄÆ®´Â À¯ÀÇÇÏ¼Å¾ß ÇÕ´Ï´Ù. °¨Á¤°¡°ÝÀ» ³Ê¹« ¹ÏÁö ¸¶½Ã°í ÇöÀç ½Ç¸Å¹° °¡°Ý°ú ½Ç°Å·¡°¡¸¦ È®ÀÎÇϽñ⠹ٶø´Ï´Ù.
°£È¤ °¨Á¤°¡°Ýº¸´Ù ³ô°Ô ³«ÂûµÇ´Â °æ¿ì°¡ Àִµ¥ ´ëºÎºÐ ÀÌ·± ÀÌÀ¯ÀÔ´Ï´Ù.
¡Ø ¹°°Ç Ű¿öµå : µµ½ÃÁö¿ª/ÁÖ°ÅÁö¿ª/Á¦3Á¾ÀϹÝÁÖ°ÅÁö¿ª/Áö±¸´ÜÀ§°èȹ±¸¿ª/¹ö½ºÁ¤·ùÀå/Â÷·®ÁøÃâÀÔ °¡´É/Â÷·®ÁøÃâÀÔ °¡´É/ö±ÙÄÜÅ©¸®Æ®±¸Á¶
Àüü ÄÁ¼³ÆÃÀÌ ºÎ´ã½º·¯¿ì½Å°¡¿ä? ±Ç¸®ºÐ¼®¸¸ ÀÇ·ÚÇϼŵµ ±¦Âú½À´Ï´Ù!
½Ç¼Ó ÀÖ°Ô Çٽɸ¸ ´ãÀº ±Ç¸®ºÐ¼® ¼­ºñ½º!! (±Ç¸®ºÐ¼® + ½Ã¼¼Á¶»ç + ³«Âû°¡ »êÁ¤ + ÀÔÂûÇ¥ ÀÛ¼º¹æ¹ý ±îÁö)
ÃÖ´ë Àüü ÄÁ¼³ÆÃ ºñ¿ëÀÇ 10% ¼öÁØ !!

ÁÖÀÇ»çÇ× (ÃÖ¼±¼øÀ§ ¼³Á¤ÀÏ: 2017.8.11. ±ÙÀú´ç±Ç ¼³Á¤)

¸Å°¢À¸·Î ¼Ò¸êµÇÁö ¾Ê´Â µî±âºÎ±Ç¸®:
¸Å°¢À¸·Î ¼³Á¤µÈ °ÍÀ¸·Î º¸´Â Áö»ó±Ç:
¡Ø¹Ì³³°ü¸®ºñ(°ø¿ë) Àμö¿©ºÎ¸¦ ÀÔÂû Àü¿¡ È®ÀÎÇϽñ⠹ٶø´Ï´Ù

 

Áö¿ªºÐ¼®

ÁöÇÏö¸í Á÷¼±°Å¸®

Çб³¸í ÀüÈ­¹øÈ£ ÁÖ¼Ò Á÷¼±°Å¸®

¹ý¿ø

¼ö¿øÁö¹æ¹ý¿ø (165-12)°æ±âµµ ¼ö¿ø½Ã ¿µÅ뱸 ¹ýÁ¶·Î 105, Çϵ¿, ¼ö¿ø¹ý¿øÁ¾ÇÕû»ç
´ëÇ¥ : 031)210-1114, ¾ß°£ : 031)210-1111
°üÇÒÁö¿ª : ¼ö¿ø½Ã, ¿À»ê½Ã, È­¼º½Ã, ¿ëÀνÃ

µî±â¼Ò ¼ö¿øÁö¹æ¹ý¿ø º»¿ø ¿ëÀεî±â¼Ò (´ëÇ¥:1544-0773, ÆÑ½º:(031)321-3919, °æ±âµµ ¿ëÀνà óÀα¸ ¼º»ê·Î 7 (¿ªºÏµ¿ 391-28))
¼¼¹«¼­ ¿ëÀμ¼¹«¼­ (´ëÇ¥:031-329-22, ÆÑ½º:031-329-2328, °æ±âµµ ¿ëÀνà óÀα¸ Áߺδë·Î1161¹ø±æ 71 (»ï°¡µ¿))

Àαٳ«ÂûÅë°è

±â°£ ¸Å°¢°Ç¼ö Æò±Õ°¨Á¤°¡
Æò±Õ¸Å°¢°¡
¸Å°¢°¡À²
Æò±ÕÀ¯Âû¼ö
3°³¿ù 22°Ç 855,045,455¿ø
850,497,902¿ø
100%
0.6ȸ
6°³¿ù 34°Ç 883,058,824¿ø
858,265,492¿ø
98%
0.7ȸ
12°³¿ù 93°Ç 851,376,344¿ø
793,314,094¿ø
94%
0.8ȸ


º» °æ¸ÅÁ¤º¸´Â ¹ý¿øÀÚ·á¿Í ÀÏÄ¡Çϵµ·Ï ÇÏ¿´À¸³ª ±Ç¸®»çÇ׺¯µ¿, ÀÔ·ÂÂø¿À µîÀÇ ¿øÀÎÀ¸·Î »ç½Ç°ú ´Ù¸¦ ¼ö ÀÖ½À´Ï´Ù. ÀÌ¿ë¾à°ü¿¡ ÀǰЏéÃ¥Á¶°ÇÀ¸·Î Á¦°øµÊÀ» ¾Ë¸®¸ç, °æ¸ÅÀÔÂû½Ã ¹Ýµå½Ã °ü·Ã °øºÎ¸¦ ÀçÈ®ÀÎÇϽñ⠹ٶø´Ï´Ù. º¸´Ù Æí¸®ÇÑ °æ¸ÅÁ¤º¸ Á¦°øÀ» À§ÇØ Áö¼ÓÀûÀ¸·Î °³¼±ÇϰڽÀ´Ï´Ù. ÀÌ¿ëÇØ Áּż­ °¨»çÇÕ´Ï´Ù.
°ü½É¹°°ÇÀ¸·Î µî·ÏÇÕ´Ï´Ù