83
¾ÆÆÄÆ®
ÀÇÁ¤ºÎÁö¹æ¹ý¿ø ³²¾çÁÖÁö¿ø
 °¨Á¤°¡639,000,000 ¿ø
 ÃÖÀú°¡(100%) 639,000,000 ¿ø
 º¸Áõ±Ý(10%) 63,900,000 ¿ø
 Ã»±¸¾×286,244,828 ¿ø
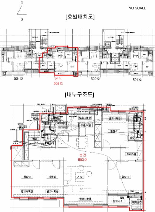
°æ±âµµ ³²¾çÁֽà º°³»µ¿ 872 ³²¾çÁÖº°³»³²±¤ÇϿ콺Å丮 5305µ¿ 5Ãþ503È£
»ç°Ç¹øÈ£ 2025Ÿ°æ71946
°æ¸ÅÁ¾·ùºÎµ¿»êÀÓÀǰæ¸Å
¸Å°¢´ë»óÅäÁö ¹× °Ç¹°Àϰý ¸Å°¢
¸Å°¢±âÀÏ    2026.04.16(¸ñ) 10:30 ÀÔÂû 7ÀÏÀü    
ÅäÁö¸éÀû72.06§³(21.80 Æò)
°Ç¹°¸éÀû104.00§³(31.46 Æò)
乫/¼ÒÀ¯ÀÚÃÖOO / ÃÖOO
ä±ÇÀÚºñOOOOOO OOOO
±è¼ºÈÆ ´ëÇ¥ÀÌ»ç
°øÀÎÁß°³»ç, ºÎµ¿»ê°ø°æ¸Å»ç, ÇѾç´ëÇб³ Á¹¾÷
Àü) ÅÂÀÎÄÁ¼³ÆÃ(ÁÖ) ´ëÇ¥ÀÌ»ç
Àü) ¿©ÀÇÁֺε¿»êÁß°³¹ýÀÎ(ÁÖ) ´ëÇ¥ÀÌ»ç
Çö) ¿©ÀÇÁÖ°æ¸Å¹ýÀÎ ´ëÇ¥ÀÌ»ç
010-2371-3237
ÆäÀ̽ººÏ Æ®À§ÅÍ ±¸±Û+
īī¿À½ºÅ丮
īī¿ÀÅå sms¹®ÀÚº¸³»±â
 

±âÀϳ»¿ª

°æ°ú ³¯Â¥ Àú°¨ ÃÖÀú°¡ °á°ú
Á¢¼öÀÏ 2025-07-03 °æ¸ÅÁ¢¼ö
~5ÀÏ 
2025-07-08 °æ¸Å°³½Ã°áÁ¤
~88ÀÏ 
2025-09-29 ¹è´ç¿ä±¸Á¾±âÀÏ
~287ÀÏ 
2026-04-16 100%
639,000,000
ÁøÇà
¹°°Ç¸í¼¼¼­ ÇöȲÁ¶»ç¼­ ¹®°ÇÁ¢¼ö ¼Û´Þ³»¿ª

°¨Á¤Æò°¡ÇöȲ

¸ñ·Ï ÁÖ¼Ò ±¸Á¶/¿ëµµ/´ëÁö±Ç ¸éÀû ºñ°í
´ëÁö±Ç
º°³»µ¿ 872 59475.3ºÐÀÇ 72.06 72.06 §³
(21.80Æò)
°Ç¹°
º°³»µ¿ 872 5305µ¿ 5Ãþ503È£ ö±ÙÄÜÅ©¸®Æ®±¸Á¶ 103.995 §³
(31.46Æò)
1) À§Ä¡/Á¦3Á¾ÀϹÝÁÖ°ÅÁö¿ª/Áö±¸´ÜÀ§°èȹ±¸¿ª/³ë¼±¹ö½ºÁ¤·ùÀå/ö±ÙÄÜÅ©¸®Æ®±¸Á¶/¹æ4/È­Àå½Ç2 ´õº¸±â
°¨Á¤Æò°¡ ¿äÇ×Ç¥
1)À§Ä¡ ¹× ÁÖÀ§È¯°æ
º»°ÇÀº °æ±âµµ ³²¾çÁֽà º°³»µ¿¿¡ ¼ÒÀçÇÏ´Â ""»ûº°ÃʵîÇб³"" ºÏµ¿Ãø Àαٿ¡ À§Ä¡Çϸç ÁÖÀ§´Â ´ë´ÜÀ§ ¾ÆÆÄÆ®´ÜÁö, °ø°ø½Ã¼³ ¹× ±Ù¸°»ýȰ½Ã¼³ µîÀÌ ¹ÐÁýµÇ¾î ÀÖ´Â ÁÖ°ÅÁö´ë·Î¼­ Á¦¹Ý ÁÖÀ§¿©°ÇÀº º¸ÅëÀÓ.
2)±³Åë»óȲ
º»°Ç±îÁö Á¦¹Ý Â÷·® ÁøÃâÀÔÀÌ ÀÚÀ¯·Î¿ì¸ç Àαٿ¡ ³ë¼±¹ö½ºÁ¤·ùÀåÀÌ À§Ä¡Çϰí ÀÖ¾î Á¦¹Ý ´ëÁß±³Åë¿©°ÇÀº º¸ÅëÀÓ.
3)°Ç¹°ÀÇ ±¸Á¶
ö±ÙÄÜÅ©¸®Æ®±¸Á¶ °æ»çÁÖÅà 13Ãþ °Ç¹° ³» Á¦5Ãþ Á¦503È£·Î¼­(»ç¿ë½ÂÀÎÀÏ:2009.12.23)

¿Üº® : ¼¼¸à¸ôÅ»À§ ÆäÀÎÆ® ¹× ¿ÜÀåŸÀϸ¶°¨.
³»º® : º®Áö ¹× ÀϺΠŸÀϸ¶°¨.
âȣ : ¼¦½ÃâȣÀÓ.
4)ÀÌ¿ë»óÅÂ
¾ÆÆÄÆ®(¹æ4, °Å½Ç, ÁÖ¹æ°â½Ä´ç, ¿å½Ç°âÈ­Àå½Ç2, µå·¹½º·ë, ¹ßÄÚ´Ï, ´ëÇǰø°£, Çö°ü µî)·Î ÀÌ¿ëÁßÀÓ.
5)¼³ºñ³»¿ª
À§»ý ¹× ±Þ¹è¼ö½Ã¼³ µÇ¾î ÀÖÀ¸¸ç ¼ÒÈ­Àü, ½Â°­±â, ³­¹æ¼³ºñ µî ¼³Ä¡µÇ¾î ÀÖÀ½.
6)ÅäÁöÀÇ Çü»ó ¹× ÀÌ¿ë»óÅÂ
ÀÎÁ¢Áö ¹× µµ·Î¿Í ´ëü·Î µî°í ÆòźÇÏ°Ô Á¶¼ºµÈ ºÎÁ¤ÇüÀÇ ÅäÁö·Î¼­ ¾ÆÆÄÆ® °ÇºÎÁö·Î ÀÌ¿ëÁßÀÓ.
7)ÀÎÁ¢ µµ·Î»óŵî
´ÜÁö ³» Æ÷Àåµµ·Î µÇ¾î ÀÖÀ¸¸ç ³²Ãø ¹× ºÏÃøÀ¸·Î ¿ÜºÎ °øµµ¿Í ¿¬°èµÇ¾î ÀÖÀ½.
8)ÅäÁöÀÌ¿ë°èȹ ¹× Á¦ÇÑ»óÅÂ
Á¦3Á¾ÀϹÝÁÖ°ÅÁö¿ª, Áö±¸´ÜÀ§°èȹ±¸¿ª(º°³»ÅÃÁöÁö±¸), ¼Ò·Î3·ù(Æø 8m ¹Ì¸¸)(Á¢ÇÕ), Áß·Î2·ù(Æø 15m~20m)(2014-04-02)(Á¢ÇÕ), Áß·Î3·ù(Æø 12m~15m)(2014-04-02)(Á¢ÇÕ), °¡Ãà»çÀ°Á¦Çѱ¸¿ª, ¹èÃâ½Ã¼³¼³Ä¡Á¦ÇÑÁö¿ª, ¼ºÀå°ü¸®±Ç¿ª, °øÀå¼³¸³½ÂÀÎÁö¿ª, ÅÃÁö°³¹ßÁö±¸(º°³»Áö±¸)ÀÓ.
9)°øºÎ¿ÍÀÇ Â÷ÀÌ
¾ø À½.
10)±âŸÂü°í»çÇ×(ÀÓ´ë°ü·Ê ¹× ±âŸ)
ÀÓ´ë ¹× Á¡À¯°ü°è´Â ¹Ì»óÀÓ.
Âü°í
»çÇ×

ÀÌ »ç°Ç ºÎ

°ÇÃ๰ÇöȲ

¼ÒÀçÁö °æ±âµµ ³²¾çÁֽà º°³»µ¿ 872¹øÁö
´ëÁö¸éÀû   ¿¬¸éÀû 41317.452§³
(12520.44Æò)
°ÇÃà¸éÀû   ¿ëÀû·ü»êÁ¤
¿¬¸éÀû
 
°ÇÆóÀ²   ¿ëÀû·ü  
Áö»óÃþ¼ö   ÁöÇÏÃþ¼ö 2Ãþ
ÁÖ¿ëµµ °øµ¿ÁÖÅà ±¸Á¶ ö±ÙÄÜÅ©¸®Æ®±¸Á¶
Âø°øÀÏÀÚ 2009.12.23 »ç¿ë½ÂÀÎÀÏÀÚ 2012.07.24
°ÇÃ๰Ãþº°ÇöȲ [º¸±â]


µî±âºÎµîº» ¿ä¾à(°Ç¹°)

  Á¢¼öÀÏÀÚ µî±â¸ñÀû/±Ç¸®ÀÚ ±Ç¸®±Ý¾× ±âÁØ
1 2017³â12¿ù21ÀÏ
¼ÒÀ¯±Ç
ÃÖOO
¼Ò¸ê
2 2020³â9¿ù23ÀÏ
±ÙÀú´ç±Ç
ÇÑOOOO
342,700,000 ¼Ò¸ê±âÁØ
3 2022³â3¿ù31ÀÏ
±ÙÀú´ç±Ç
ºñOOOO
331,200,000 ¼Ò¸ê
4 2023³â3¿ù17ÀÏ
±ÙÀú´ç±Ç
(OOOO
150,000,000 ¼Ò¸ê
5 2025³â7¿ù8ÀÏ
ÀÓÀǰæ¸Å
ºñOOOO
¼Ò¸ê

ÀÓÂ÷ÀÎÇöȲ (¹è´ç¿ä±¸Á¾±âÀÏ: 2025-09-29)



¸Å°¢±âÀÏ 7ÀÏÀü¿¡ °ø°íµÇ¿À´Ï È®ÀÎÇϽñ⠹ٶø´Ï´Ù.


¿©ÀÇÁÖ°æ¸Å Á¶¾ð ÇÑ ¸¶µð

³«Âû ÈÄ¿¡ µî±âºÎ»ó ¼Ò¸êµÇÁö ¾Ê´Â ±Ç¸®´Â ¾ø½À´Ï´Ù.
´ë·«ÀûÀÎ °ËÅäÀǰßÀ̹ǷΠÀÔÂûÀü¿¡ Àü¹®°¡ÀÇ Á¶¾ðÀ» Âü°íÇØ º¸½Ã±æ ±ÇÇØµå¸³´Ï´Ù.
ü³³°ü¸®ºñ¸¦ ºÎ´ãÇÒ ¼ö ÀÖ½À´Ï´Ù.
¡Ø ¹°°Ç Ű¿öµå : ÁÖ°ÅÁö¿ª/Á¦3Á¾ÀϹÝÁÖ°ÅÁö¿ª/Áö±¸´ÜÀ§°èȹ±¸¿ª/¹ö½ºÁ¤·ùÀå/³ë¼±¹ö½ºÁ¤·ùÀå/ö±ÙÄÜÅ©¸®Æ®±¸Á¶/¹æ4/È­Àå½Ç2
Àüü ÄÁ¼³ÆÃÀÌ ºÎ´ã½º·¯¿ì½Å°¡¿ä? ±Ç¸®ºÐ¼®¸¸ ÀÇ·ÚÇϼŵµ ±¦Âú½À´Ï´Ù!
½Ç¼Ó ÀÖ°Ô Çٽɸ¸ ´ãÀº ±Ç¸®ºÐ¼® ¼­ºñ½º!! (±Ç¸®ºÐ¼® + ½Ã¼¼Á¶»ç + ³«Âû°¡ »êÁ¤ + ÀÔÂûÇ¥ ÀÛ¼º¹æ¹ý ±îÁö)
ÃÖ´ë Àüü ÄÁ¼³ÆÃ ºñ¿ëÀÇ 10% ¼öÁØ !!

ÁÖÀÇ»çÇ× (ÃÖ¼±¼øÀ§ ¼³Á¤ÀÏ: 2020. 9. 23. ±ÙÀú´ç±Ç ¼³Á¤)

¸Å°¢À¸·Î ¼Ò¸êµÇÁö ¾Ê´Â µî±âºÎ±Ç¸®:
¸Å°¢À¸·Î ¼³Á¤µÈ °ÍÀ¸·Î º¸´Â Áö»ó±Ç:
¡Ø¹Ì³³°ü¸®ºñ(°ø¿ë) Àμö¿©ºÎ¸¦ ÀÔÂû Àü¿¡ È®ÀÎÇϽñ⠹ٶø´Ï´Ù

 

Áö¿ªºÐ¼®

ÁöÇÏö¸í Á÷¼±°Å¸®

Çб³¸í ÀüÈ­¹øÈ£ ÁÖ¼Ò Á÷¼±°Å¸®

¹ý¿ø

ÀÇÁ¤ºÎÁö¹æ¹ý¿ø ³²¾çÁÖÁö¿ø (122-49)°æ±âµµ ³²¾çÁֽà ´Ù»êÁß¾Ó·Î82¹ø¾È±æ 161(´Ù»êµ¿)
´ëÇ¥ : 031)869-4114
°üÇÒÁö¿ª : °¡Æò±º, ±¸¸®½Ã, ³²¾çÁÖ½Ã

µî±â¼Ò ÀÇÁ¤ºÎÁö¹æ¹ý¿ø º»¿ø ³²¾çÁÖµî±â¼Ò (´ëÇ¥:1544-0773, ÆÑ½º:(031)551-2010, °æ±âµµ ³²¾çÁֽà °æÃá·Î 514 (Áö±Ýµ¿ 158-4))
¼¼¹«¼­ ³²¾çÁÖ¼¼¹«¼­ (´ëÇ¥:031-550-32, ÆÑ½º:031-566-1808, °æ±âµµ ±¸¸®½Ã ¾È°ñ·Î 36 (±³¹®µ¿))

Àαٳ«ÂûÅë°è

±â°£ ¸Å°¢°Ç¼ö Æò±Õ°¨Á¤°¡
Æò±Õ¸Å°¢°¡
¸Å°¢°¡À²
Æò±ÕÀ¯Âû¼ö
3°³¿ù 51°Ç 513,411,765¿ø
454,522,374¿ø
87%
0.9ȸ
6°³¿ù 140°Ç 462,721,429¿ø
401,196,141¿ø
85%
1ȸ
12°³¿ù 308°Ç 465,045,455¿ø
398,593,577¿ø
84%
1.1ȸ


º» °æ¸ÅÁ¤º¸´Â ¹ý¿øÀÚ·á¿Í ÀÏÄ¡Çϵµ·Ï ÇÏ¿´À¸³ª ±Ç¸®»çÇ׺¯µ¿, ÀÔ·ÂÂø¿À µîÀÇ ¿øÀÎÀ¸·Î »ç½Ç°ú ´Ù¸¦ ¼ö ÀÖ½À´Ï´Ù. ÀÌ¿ë¾à°ü¿¡ ÀǰЏéÃ¥Á¶°ÇÀ¸·Î Á¦°øµÊÀ» ¾Ë¸®¸ç, °æ¸ÅÀÔÂû½Ã ¹Ýµå½Ã °ü·Ã °øºÎ¸¦ ÀçÈ®ÀÎÇϽñ⠹ٶø´Ï´Ù. º¸´Ù Æí¸®ÇÑ °æ¸ÅÁ¤º¸ Á¦°øÀ» À§ÇØ Áö¼ÓÀûÀ¸·Î °³¼±ÇϰڽÀ´Ï´Ù. ÀÌ¿ëÇØ Áּż­ °¨»çÇÕ´Ï´Ù.
°ü½É¹°°ÇÀ¸·Î µî·ÏÇÕ´Ï´Ù