58
´Ù¼¼´ë(ºô¶ó)
ÀÎõÁö¹æ¹ý¿ø
 °¨Á¤°¡102,000,000 ¿ø
 ÃÖÀú°¡(100%) 102,000,000 ¿ø
 º¸Áõ±Ý(10%) 10,200,000 ¿ø
 Ã»±¸¾×65,000,000 ¿ø
ÀÎõ±¤¿ª½Ã ¼­±¸ ¿¬Èñ·Î8¹ø±æ 7-1, 2Ãþ201È£
ÀÎõ±¤¿ª½Ã ¼­±¸ ¿¬Èñµ¿ 685-14
»ç°Ç¹øÈ£ 2024Ÿ°æ575864
°æ¸ÅÁ¾·ùºÎµ¿»ê°­Á¦°æ¸Å
¸Å°¢´ë»óÅäÁö ¹× °Ç¹°Àϰý ¸Å°¢
¸Å°¢±âÀÏ    2026.04.15(¼ö) 10:00 ÀÔÂû 6ÀÏÀü    
ÅäÁö¸éÀû23.82§³(7.21 Æò)
°Ç¹°¸éÀû35.76§³(10.82 Æò)
乫/¼ÒÀ¯ÀÚ¹ÚOO / ¹ÚOO
ä±ÇÀÚÁÖOOOOOOO
±è¼ºÈÆ ´ëÇ¥ÀÌ»ç
°øÀÎÁß°³»ç, ºÎµ¿»ê°ø°æ¸Å»ç, ÇѾç´ëÇб³ Á¹¾÷
Àü) ÅÂÀÎÄÁ¼³ÆÃ(ÁÖ) ´ëÇ¥ÀÌ»ç
Àü) ¿©ÀÇÁֺε¿»êÁß°³¹ýÀÎ(ÁÖ) ´ëÇ¥ÀÌ»ç
Çö) ¿©ÀÇÁÖ°æ¸Å¹ýÀÎ ´ëÇ¥ÀÌ»ç
010-2371-3237
ÆäÀ̽ººÏ Æ®À§ÅÍ ±¸±Û+
īī¿À½ºÅ丮
īī¿ÀÅå sms¹®ÀÚº¸³»±â
 

±âÀϳ»¿ª

°æ°ú ³¯Â¥ Àú°¨ ÃÖÀú°¡ °á°ú
Á¢¼öÀÏ 2024-11-21 °æ¸ÅÁ¢¼ö
~1ÀÏ 
2024-11-22 °æ¸Å°³½Ã°áÁ¤
~84ÀÏ 
2025-02-13 ¹è´ç¿ä±¸Á¾±âÀÏ
~510ÀÏ 
2026-04-15 100%
102,000,000
ÁøÇà
¹°°Ç¸í¼¼¼­ ÇöȲÁ¶»ç¼­ ¹®°ÇÁ¢¼ö ¼Û´Þ³»¿ª

°¨Á¤Æò°¡ÇöȲ

¸ñ·Ï ÁÖ¼Ò ±¸Á¶/¿ëµµ/´ëÁö±Ç ¸éÀû ºñ°í
´ëÁö±Ç
¿¬Èñµ¿ 685-14 357.3ºÐÀÇ 23.8193 23.8193 §³
(7.21Æò)
°Ç¹°
¿¬Èñµ¿ 685-14 2Ãþ201È£ ö±ÙÄÜÅ©¸®Æ®Á¶ 35.76 §³
(10.82Æò)
1) À§Ä¡/Á¦2Á¾ÀϹÝÁÖ°ÅÁö¿ª/Áö±¸´ÜÀ§°èȹ±¸¿ª/¹ö½ºÁ¤·ùÀå/ÁöÇÏö/ö±ÙÄÜÅ©¸®Æ®Á¶/½½·¡ºêÁöºØ ´õº¸±â
°¨Á¤Æò°¡ ¿äÇ×Ç¥
1)À§Ä¡ ¹× ÁÖÀ§È¯°æ
´ë»ó¹°°ÇÀº ÀÎõ±¤¿ª½Ã ¼­±¸ ¿¬Èñµ¿ ¼ÒÀç "¾Æ½Ã¾Æµå°æ±âÀ忪" ³²¼­Ãø Àαٿ¡ À§Ä¡Çϸç,
ºÎ±ÙÀº ¾ÆÆÄÆ®, ´Ù¼¼´ëÁÖÅÃ, ±Ù¸°»ýȰ½Ã¼³ µîÀÌ È¥ÀçÇÏ´Â Áö¿ªÀ¸·Î¼­ Á¦¹Ý ÁÖÀ§È¯°æÀº
º¸ÅëÀÓ.
2)±³Åë»óȲ
´ë»ó¹°°Ç±îÁö Â÷·® µîÀÇ Á¢±ÙÀÌ °¡´ÉÇϸç, Àαٿ¡ ¹ö½ºÁ¤·ùÀå ¹× ÁöÇÏö ÀÎõ2È£¼± "¾Æ
½Ã¾Æµå°æ±âÀ忪" µîÀÌ ¼ÒÀçÇÏ¿© ´ëÁß±³Åë ÀÌ¿ëÆíÀÍÀº º¸ÅëÀÓ.
3)°Ç¹°ÀÇ ±¸Á¶
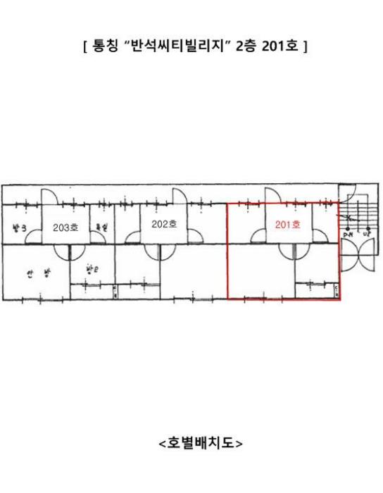
ö±ÙÄÜÅ©¸®Æ®Á¶ ½½·¡ºêÁöºØ 4Ãþ °Ç¹° ³» 2Ãþ 201È£·Î¼­,
1993³â 12¿ù 11ÀÏ »ç¿ë½ÂÀεǾúÀ¸¸ç,
¿Ü º® : ŸÀÏ ºÙÀÓ ¸¶°¨ µî,
³» º® : º®Áöµµ¹è ¹× ÀϺΠŸÀϸ¶°¨ µî,
â È£ : ¼¦½Ãâ µîÀÓ.
4)ÀÌ¿ë»óÅÂ
´ë»ó¹°°ÇÀº ´Ù¼¼´ëÁÖÅÃÀ¸·Î ÀÌ¿ëÁßÀÓ.
(ÈÄ÷ "³»ºÎ±¸Á¶µµ" ÂüÁ¶)
5)¼³ºñ³»¿ª
±âº»ÀûÀÎ À§»ý¼³ºñ ¹× ±Þ¡¤¹è¼ö¼³ºñ, ³­¹æ¼³ºñ µîÀ» °®Ãß¾úÀ½.
6)ÅäÁöÀÇ Çü»ó ¹× ÀÌ¿ë»óÅÂ
´ëü·Î µî°íÆòźÇÑ ¼¼ÀåÇüÀÇ ÅäÁö·Î¼­, ´Ù¼¼´ëÁÖÅà °ÇºÎÁö·Î ÀÌ¿ëÁßÀÓ.
7)ÀÎÁ¢ µµ·Î»óŵî
´ë»ó¹°°Ç ºÎÁö µ¿ÃøÀ¸·Î ³ëÆø ¾à 8MÀÇ Æ÷Àåµµ·Î¿¡ Á¢Çϸç, µµ·Î»óÅ º¸ÅëÀÓ.
8)ÅäÁöÀÌ¿ë°èȹ ¹× Á¦ÇÑ»óÅÂ
Á¦2Á¾ÀϹÝÁÖ°ÅÁö¿ª, Áö±¸´ÜÀ§°èȹ±¸¿ª(¿¬Èñ1,2±¸È¹Á¤¸®), ¼Ò·Î1·ù(Æø 10m-12m)(Á¢ÇÕ),
°¡Ãà»çÀ°Á¦Çѱ¸¿ª(ÀÎõ±¤¿ª½Ã ¼­±¸Á¶·Ê Á¦1749È£ )<°¡ÃàºÐ´¢ÀÇ °ü¸® ¹× À̿뿡 °üÇÑ ¹ý
·ü>, °ú¹Ð¾ïÁ¦±Ç¿ª<¼öµµ±ÇÁ¤ºñ°èȹ¹ý>.
9)°øºÎ¿ÍÀÇ Â÷ÀÌ
¾ø À½.
10)±âŸÂü°í»çÇ×(ÀÓ´ë°ü·Ê ¹× ±âŸ)
ÀÓ´ë°ü°è´Â ¹Ì»óÀÓ.
Âü°í
»çÇ×

ö±ÙÄÜÅ©¸®Æ®Á¶

°ÇÃ๰ÇöȲ

¼ÒÀçÁö ÀÎõ±¤¿ª½Ã ¼­±¸ ¿¬Èñµ¿ 685-14¹øÁö
´ëÁö¸éÀû 363.4§³
(110.12Æò)
¿¬¸éÀû 659.16§³
(199.75Æò)
°ÇÃà¸éÀû 141.48§³
(42.87Æò)
¿ëÀû·ü»êÁ¤
¿¬¸éÀû
541.8§³
(164.18Æò)
°ÇÆóÀ² 38.93% ¿ëÀû·ü 149.09%
Áö»óÃþ¼ö 4Ãþ ÁöÇÏÃþ¼ö 1Ãþ
ÁÖ¿ëµµ °øµ¿ÁÖÅà ±¸Á¶ ö±ÙÄÜÅ©¸®Æ®±¸Á¶
Âø°øÀÏÀÚ 1993.05.06 »ç¿ë½ÂÀÎÀÏÀÚ 1993.12.11
°ÇÃ๰Ãþº°ÇöȲ [º¸±â]


±¹ÅäºÎ½Ç°Å·¡°¡ ÀÎõ±¤¿ª½Ã ¼­±¸ ¿¬Èñµ¿

¡Ü ¸Å¸Å

¸éÀû(§³), ±Ý¾×(¸¸¿ø)

¡Ü Àü¼¼

¸éÀû(§³), ±Ý¾×(¸¸¿ø)

°è¾àÀϰǹ°¸íĪÃþ¿¬¸éÀûº¸Áõ±Ý¿ù¼¼°ÇÃà
26.03.25À¯¼ººô¶ó435.315,20001994
26.03.25·Ôµ¥±×¸°ºô-137.764,2002000
26.03.24´ëÈÆºô¶ó162.6212,0002009
26.03.23ÀϽźô¶ó(741-39)230.14,9002002
26.03.21¹Ý¼®¾¾Æ¼ºô¸®Áö(685-14)-135.762,8001993
¢Ñ ´õº¸±â

µî±âºÎµîº» ¿ä¾à(°Ç¹°)

  Á¢¼öÀÏÀÚ µî±â¸ñÀû/±Ç¸®ÀÚ ±Ç¸®±Ý¾× ±âÁØ
1 2020³â10¿ù12ÀÏ
¼ÒÀ¯±Ç
¹ÚOO
¼Ò¸ê
2 2022³â2¿ù24ÀÏ
¾Ð·ù
±¹
¼Ò¸ê±âÁØ
3 2022³â9¿ù26ÀÏ
ÀÓÂ÷±Ç¼³Á¤
Á¤OO
65,000,000 ¼Ò¸ê
4 2023³â5¿ù17ÀÏ
°¡¾Ð·ù
ÁÖOOOO
3,597,500,000 ¼Ò¸ê
5 2024³â11¿ù22ÀÏ
°­Á¦°æ¸Å
ÁÖOOOO
¼Ò¸ê
6 2025³â5¿ù12ÀÏ
¾Ð·ù
¼­O
¼Ò¸ê
7 2025³â12¿ù22ÀÏ
¾Ð·ù
³²O
¼Ò¸ê

ÀÓÂ÷ÀÎÇöȲ (¹è´ç¿ä±¸Á¾±âÀÏ: 2025-02-13)

ÀÓÂ÷ÀÎ ¿ëµµ/Á¡À¯ º¸Áõ±Ý/¿ù¼¼ ´ëÇ×·Â
ÀüÀÔÀÏ/È®Á¤ÀÏ ¹è´ç¿ä±¸ ºñ°í
°­OO
O
2009.08.04
Á¤OO ÀüºÎ 65,000,000
O
2020.08.31.
2020.07.24.
2020.08.28.~
ÁÖOOOOOOOOOOOOOOOO ÀüºÎ 65,000,000
O
2020.08.31.
2020.07.24.
2025.2.13. 2020.08.28.~2022.08.27.
ºñ°í
(¸Å°¢¹°°Ç
¸í¼¼¼­)
ÁÖÅõµ½Ãº¸Áõ°ø»ç(ÀÓÂ÷ÀÎ:Á¤ÀçÈÆ):ÁÖÅÃÀÓÂ÷±ÇÀÚÀÎ Á¤ÀçÈÆÀÇ ÀÓÂ÷º¸Áõ±Ý¹Ýȯä±ÇÀ» ¾ç¼öÇÑ ½Â°èÀÎÀ¸·Î¼­ °æ¸Å½Åûä±ÇÀÚÀÓ.

¿©ÀÇÁÖ°æ¸Å Á¶¾ð ÇÑ ¸¶µð

¸Å°¢¹°°Ç¸í¼¼ ºñ°í³­¿¡ ±âÀçµÈ ³»¿ëÀÔ´Ï´Ù.
ÁÖÅõµ½Ãº¸Áõ°ø»ç(ÀÓÂ÷ÀÎ:Á¤ÀçÈÆ):ÁÖÅÃÀÓÂ÷±ÇÀÚÀÎ Á¤ÀçÈÆÀÇ ÀÓÂ÷º¸Áõ±Ý¹Ýȯä±ÇÀ» ¾ç¼öÇÑ ½Â°èÀÎÀ¸·Î¼­ °æ¸Å½Åûä±ÇÀÚÀÓ.
³«Âû ÈÄ¿¡ µî±âºÎ»ó ¼Ò¸êµÇÁö ¾Ê´Â ±Ç¸®ÀÔ´Ï´Ù.
À»±¸ ¼øÀ§ 7¹ø ÁÖÅÃÀÓÂ÷±Çµî±â(¹è´ç¿¡¼­ º¸Áõ±ÝÀÌ Àü¾× º¯Á¦µÇÁö ¾Æ´ÏÇÏ¸é ¸Å¼öÀÎÀÌ Àܾ×À» ÀμöÇÔ)
¼±¼øÀ§ ÀÓÂ÷±Çµî±â°¡ µÇ¾î ÀÖ½À´Ï´Ù.
´Ù¼öÀÇ ÀÓÂ÷ÀÎÀÌ Á¶»ç, ½Å°íµÇ¾î ÀÖ½À´Ï´Ù.
¸Å°¢¹°°Ç¸í¼¼¼­ ¹× ÇöȲÁ¶»ç¼­¿¡ 3¸íÀÇ ÀÓÂ÷ÀÎÀÌ ³ªÅ¸³ª ÀÖ½À´Ï´Ù. ÀÓÂ÷ÀÎÀÌ ¸¹Àº °æ¿ì ¸íµµ¿¡ ¾î·Á¿òÀÌ ÀÖÀ¸´Ï Àü¹®°¡¿Í ÇùÀÇÇÏ¿© ÁøÇàÇÏ½Ã±æ ±ÇÇØ µå¸³´Ï´Ù.
°¨Á¤ ½ÃÁ¡ÀÌ ¿À·¡µÇ¾î °¡°Ýº¯µ¿ÀÌ ÀÖÀ» ¼ö ÀÖ½À´Ï´Ù.
ÀÌ ¹°°ÇÀº 2024³â 11¿ù 22ÀÏ¿¡ °æ¸Å°¡ °³½ÃµÇ¾ú´Âµ¥ Áö±Ý ½ÃÁ¡À¸·Î ¾à 503ÀÏÀÌ ÀÌ °æ°úµÇ¾ú½À´Ï´Ù. °¨Á¤°¡°ÝÀº 503ÀÏ Àü ½ÃÁ¡¿¡¼­ Æò°¡ÇÑ °¡°ÝÀ̹ǷΠ±× »çÀÌ °¡°Ýº¯µ¿ÀÌ ÀÖÀ» ¼ö ÀÖ½À´Ï´Ù. ƯÈ÷ °¡°Ý º¯µ¿ÀÌ ½ÉÇÑ ¾ÆÆÄÆ®´Â À¯ÀÇÇÏ¼Å¾ß ÇÕ´Ï´Ù. °¨Á¤°¡°ÝÀ» ³Ê¹« ¹ÏÁö ¸¶½Ã°í ÇöÀç ½Ç¸Å¹° °¡°Ý°ú ½Ç°Å·¡°¡¸¦ È®ÀÎÇϽñ⠹ٶø´Ï´Ù.
°£È¤ °¨Á¤°¡°Ýº¸´Ù ³ô°Ô ³«ÂûµÇ´Â °æ¿ì°¡ Àִµ¥ ´ëºÎºÐ ÀÌ·± ÀÌÀ¯ÀÔ´Ï´Ù.
¡Ø ¹°°Ç Ű¿öµå : ÁÖ°ÅÁö¿ª/Á¦2Á¾ÀϹÝÁÖ°ÅÁö¿ª/Áö±¸´ÜÀ§°èȹ±¸¿ª/¹ö½ºÁ¤·ùÀå/ÁöÇÏö/ö±ÙÄÜÅ©¸®Æ®Á¶/½½·¡ºêÁöºØ
Àüü ÄÁ¼³ÆÃÀÌ ºÎ´ã½º·¯¿ì½Å°¡¿ä? ±Ç¸®ºÐ¼®¸¸ ÀÇ·ÚÇϼŵµ ±¦Âú½À´Ï´Ù!
½Ç¼Ó ÀÖ°Ô Çٽɸ¸ ´ãÀº ±Ç¸®ºÐ¼® ¼­ºñ½º!! (±Ç¸®ºÐ¼® + ½Ã¼¼Á¶»ç + ³«Âû°¡ »êÁ¤ + ÀÔÂûÇ¥ ÀÛ¼º¹æ¹ý ±îÁö)
ÃÖ´ë Àüü ÄÁ¼³ÆÃ ºñ¿ëÀÇ 10% ¼öÁØ !!

ÁÖÀÇ»çÇ× (ÃÖ¼±¼øÀ§ ¼³Á¤ÀÏ: 2022.2.24. ¾Ð·ù ¼³Á¤)

¸Å°¢À¸·Î ¼Ò¸êµÇÁö ¾Ê´Â µî±âºÎ±Ç¸®: À»±¸ ¼øÀ§ 7¹ø ÁÖÅÃÀÓÂ÷±Çµî±â(¹è´ç¿¡¼­ º¸Áõ±ÝÀÌ Àü¾× º¯Á¦µÇÁö ¾Æ´ÏÇÏ¸é ¸Å¼öÀÎÀÌ Àܾ×À» ÀμöÇÔ)
¸Å°¢À¸·Î ¼³Á¤µÈ °ÍÀ¸·Î º¸´Â Áö»ó±Ç:
¡Ø¹Ì³³°ü¸®ºñ(°ø¿ë) Àμö¿©ºÎ¸¦ ÀÔÂû Àü¿¡ È®ÀÎÇϽñ⠹ٶø´Ï´Ù

 

Áö¿ªºÐ¼®

ÁöÇÏö¸í Á÷¼±°Å¸®

Çб³¸í ÀüÈ­¹øÈ£ ÁÖ¼Ò Á÷¼±°Å¸®

¹ý¿ø

ÀÎõÁö¹æ¹ý¿ø (222-20)ÀÎõ±¤¿ª½Ã ¹ÌÃßȦ±¸ ¼Ò¼º·Î 163¹ø±æ 17(ÇÐÀ͵¿)
´ëÇ¥ : 032)860-1113~4
°üÇÒÁö¿ª : Áß±¸, µ¿±¸, ³²±¸, ¿¬¼ö±¸, ³²µ¿±¸, ºÎÆò±¸, °è¾ç±¸, ¼­±¸, ¿ËÁø±º, °­È­±º

µî±â¼Ò ÀÎõÁö¹æ¹ý¿ø º»¿ø µî±â±¹ (´ëÇ¥:1544-0773, ÆÑ½º:(032)620-9099, ÀÎõ±¤¿ª½Ã ¹ÌÃßȦ±¸ °æ¿ø´ë·Î 881(Á־ȵ¿ 983))
¼¼¹«¼­ ¼­ÀÎõ¼¼¹«¼­ (´ëÇ¥:032-560-52, ÆÑ½º:032-561-5777, ÀÎõ±¤¿ª½Ã ¼­±¸ ¼­°ù·Î369¹ø±æ 17 (¿¬Èñµ¿))

Àαٳ«ÂûÅë°è

±â°£ ¸Å°¢°Ç¼ö Æò±Õ°¨Á¤°¡
Æò±Õ¸Å°¢°¡
¸Å°¢°¡À²
Æò±ÕÀ¯Âû¼ö
3°³¿ù 133°Ç 141,122,725¿ø
86,374,164¿ø
61%
2.3ȸ
6°³¿ù 223°Ç 145,523,849¿ø
90,695,180¿ø
62%
2.2ȸ
12°³¿ù 427°Ç 150,128,942¿ø
96,638,003¿ø
64%
2.1ȸ


º» °æ¸ÅÁ¤º¸´Â ¹ý¿øÀÚ·á¿Í ÀÏÄ¡Çϵµ·Ï ÇÏ¿´À¸³ª ±Ç¸®»çÇ׺¯µ¿, ÀÔ·ÂÂø¿À µîÀÇ ¿øÀÎÀ¸·Î »ç½Ç°ú ´Ù¸¦ ¼ö ÀÖ½À´Ï´Ù. ÀÌ¿ë¾à°ü¿¡ ÀǰЏéÃ¥Á¶°ÇÀ¸·Î Á¦°øµÊÀ» ¾Ë¸®¸ç, °æ¸ÅÀÔÂû½Ã ¹Ýµå½Ã °ü·Ã °øºÎ¸¦ ÀçÈ®ÀÎÇϽñ⠹ٶø´Ï´Ù. º¸´Ù Æí¸®ÇÑ °æ¸ÅÁ¤º¸ Á¦°øÀ» À§ÇØ Áö¼ÓÀûÀ¸·Î °³¼±ÇϰڽÀ´Ï´Ù. ÀÌ¿ëÇØ Áּż­ °¨»çÇÕ´Ï´Ù.
°ü½É¹°°ÇÀ¸·Î µî·ÏÇÕ´Ï´Ù