19
¾ÆÆÄÆ®Çü°øÀå
¼­¿ï³²ºÎÁö¹æ¹ý¿ø
 °¨Á¤°¡321,000,000 ¿ø
 ÃÖÀú°¡(100%) 321,000,000 ¿ø
 º¸Áõ±Ý(10%) 32,100,000 ¿ø
 Ã»±¸¾×820,740,960 ¿ø
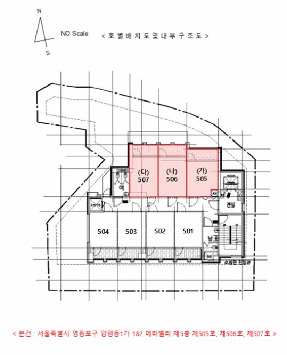
¼­¿ïƯº°½Ã ¿µµîÆ÷±¸ ¾çÆòµ¿1°¡ 182 ¸ÞŸº§¸® Á¦5Ãþ Á¦506È£
»ç°Ç¹øÈ£ 2025Ÿ°æ671 ¹°°Ç¹øÈ£
°æ¸ÅÁ¾·ùºÎµ¿»êÀÓÀǰæ¸Å
¸Å°¢´ë»óÅäÁö ¹× °Ç¹°Àϰý ¸Å°¢
¸Å°¢±âÀÏ    2026.04.07(È­) 10:00 ÀÔÂû 3ÀÏÀü    
ÅäÁö¸éÀû5.12§³(1.55 Æò)
°Ç¹°¸éÀû15.68§³(4.74 Æò)
乫/¼ÒÀ¯ÀÚÁ¤OO / Á¤OO
ä±ÇÀÚÁÖOOO OOOOO OOO OOOOOOOOOOOOO OOOO
±è¼ºÈÆ ´ëÇ¥ÀÌ»ç
°øÀÎÁß°³»ç, ºÎµ¿»ê°ø°æ¸Å»ç, ÇѾç´ëÇб³ Á¹¾÷
Àü) ÅÂÀÎÄÁ¼³ÆÃ(ÁÖ) ´ëÇ¥ÀÌ»ç
Àü) ¿©ÀÇÁֺε¿»êÁß°³¹ýÀÎ(ÁÖ) ´ëÇ¥ÀÌ»ç
Çö) ¿©ÀÇÁÖ°æ¸Å¹ýÀÎ ´ëÇ¥ÀÌ»ç
010-2371-3237
ÆäÀ̽ººÏ Æ®À§ÅÍ ±¸±Û+
īī¿À½ºÅ丮
īī¿ÀÅå sms¹®ÀÚº¸³»±â
 

±âÀϳ»¿ª

°æ°ú ³¯Â¥ Àú°¨ ÃÖÀú°¡ °á°ú
Á¢¼öÀÏ 2025-09-03 °æ¸ÅÁ¢¼ö
~5ÀÏ 
2025-09-08 °æ¸Å°³½Ã°áÁ¤
~213ÀÏ 
¹è´ç¿ä±¸Á¾±âÀÏ
~216ÀÏ 
2026-04-07 100%
321,000,000
ÁøÇà
¹°°Ç¸í¼¼¼­ ÇöȲÁ¶»ç¼­ ¹®°ÇÁ¢¼ö ¼Û´Þ³»¿ª

°¨Á¤Æò°¡ÇöȲ

¸ñ·Ï ÁÖ¼Ò ±¸Á¶/¿ëµµ/´ëÁö±Ç ¸éÀû ºñ°í
´ëÁö±Ç
¾çÆòµ¿1°¡ 182 510.5ºÐÀÇ 5.12 5.12 §³
(1.55Æò)
°Ç¹°
¾çÆòµ¿1°¡ 182 Á¦5Ãþ Á¦506È£ ö±ÙÄÜÅ©¸®Æ®±¸Á¶ 15.68 §³
(4.74Æò)
1) À§Ä¡/µµ½ÃÁö¿ª/Áذø¾÷Áö¿ª/ÅäÁö°Å·¡°è¾à¿¡°üÇÑÇã°¡±¸¿ª/¹ö½ºÁ¤·ùÀå/ÁöÇÏö/ö±ÙÄÜÅ©¸®Æ®±¸Á¶ ´õº¸±â
°¨Á¤Æò°¡ ¿äÇ×Ç¥
1)À§Ä¡ ¹× ÁÖÀ§È¯°æ
´ë»ó¹°°ÇÀº ¼­¿ïƯº°½Ã ¿µµîÆ÷±¸ ¾çÆòµ¿2°¡ ¼ÒÀç ÁöÇÏö 5È£¼± "¾çÆò¿ª" ³²µ¿Ãø Àαٿ¡ ¼ÒÀçÇϸç, ÁÖÀ§´Â ¾ÆÆÄÆ®, ´Ù¼¼´ëÁÖÅÃ, ¿ÀÇǽºÅÚ, ±Ù¸°»ýȰ½Ã¼³ µîÀÌ ¼ÒÀçÇÏ´Â ÁÖ»óÁö´ë·Î¼­ Á¦¹Ý ¿©°ÇÀº º¸Åë½ÃµÊ.
2)±³Åë»óȲ
´ë»ó¹°°Ç±îÁö Â÷·®ÃâÀÔÀÌ ¿ëÀÌÇϸç Àαٿ¡ ÁöÇÏö 5È£¼± "¾çÆò¿ª" ¹× ³ë¼± ¹ö½ºÁ¤·ùÀåÀÌ ¼ÒÀçÇÏ´Â ¹Ù, Á¦¹Ý ±³Åë¿©°ÇÀº º¸ÅëÀÓ.
3)ÇüÅ ¹× ÀÌ¿ë»óÅÂ
-
4)ÀÎÁ¢ µµ·Î»óÅÂ
-
5)ÅäÁöÀÌ¿ë°èȹ ¹× Á¦ÇÑ»óÅÂ
µµ½ÃÁö¿ª, Áذø¾÷Áö¿ª °¡Ãà»çÀ°Á¦Çѱ¸¿ª((¿¹¿Ü : ¾Ö¿Ï ¹× ¹æ¹ü¿ë °¡Ãà)Áö¿ª°æÁ¦°ú ¹®ÀÇ)<°¡ÃàºÐ´¢ÀÇ °ü¸® ¹× À̿뿡 °üÇÑ ¹ý·ü>, °¡·Î±¸¿ªº° ÃÖ°í³ôÀÌ Á¦ÇÑÁö¿ª(°ÇÃà°ú¹®ÀÇ)<°ÇÃà¹ý>, ´ë°ø¹æ¾îÇùÁ¶±¸¿ª(À§Å¹°íµµ:ÇØ¹ß165m(Áö¹Ý+°ÇÃà+¿Áž µî),À°±º ¼öµµ¹æÀ§»ç·ÉºÎ(02-524-3146)°üÇÒ)<±º»ç±âÁö ¹× ±º»ç½Ã¼³ º¸È£¹ý>, °ú¹Ð¾ïÁ¦±Ç¿ª(¼¼ºÎ»çÇ× : ¼­¿ï½Ãû µµ½Ã°èȹ°ú ¹®ÀÇ)<¼öµµ±ÇÁ¤ºñ°èȹ¹ý>, (ÇѰ­)Æó±â¹°¸Å¸³½Ã¼³ ¼³Ä¡Á¦ÇÑÁö¿ª(¸¼ÀºÈ¯°æ°ú ¹®ÀÇ)<ÇѰ­¼ö°è »ó¼ö¿ø¼öÁú°³¼± ¹× ÁÖ¹ÎÁö¿ø µî¿¡ °üÇÑ ¹ý·ü> °ÇÃà¹ý Á¦2Á¶Á¦1Ç×Á¦11È£³ª¸ñ¿¡ µû¸¥ µµ·Î(µµ·ÎÀÏºÎÆ÷ÇÔ) ÅäÁö°Å·¡°è¾à¿¡°üÇÑÇã°¡±¸¿ª((´ë»óÀÚ: ¿Ü±¹ÀÎ µî, ¿ëµµ: ´Üµ¶, ´Ù°¡±¸, ¾ÆÆÄÆ®, ¿¬¸³, ´Ù¼¼´ë, ÁöÁ¤±â°£: 2025.8.26.~2026.8.25.) ), °ÇÃ༱(°ÇÃà°ú ¹®ÀÇ)
6)Á¦½Ã¸ñ·Ï ¿ÜÀÇ ¹°°Ç
-
7)°øºÎ¿ÍÀÇ Â÷ÀÌ
-
8)±âŸÂü°í»çÇ×(ÀÓ´ë°ü·Ê ¹× ±âŸ)
-
1)°Ç¹°ÀÇ ±¸Á¶
ö±ÙÄÜÅ©¸®Æ®±¸Á¶ (ö±Ù)ÄÜÅ©¸®Æ®ÁöºØ ÁöÇÏ1Ãþ/Áö»ó15Ãþ ³» Á¦5Ãþ Á¦505È£ ¿Ü 2°³È£·Î¼­, ¿Üº®: ¼®ÀçºÙÀÓ ¸¶°¨ µî, ³»º®: ³»ºÎ ÀÎÅ׸®¾î ¸¶°¨ µî, âȣ: ¼¦½Ãâȣ ¸¶°¨ µîÀÓ.
2)ÀÌ¿ë»óÅÂ
ÀϷùøÈ£(°¡)~(´Ù) : °øºÎ»ó ¿ëµµ´Â &apos;°øÀå(Áö½Ä»ê¾÷¼¾ÅÍ)&apos;À̸ç, ÇöȲ °ø½Ç »óÅÂÀÓ.
3)¼³ºñ³»¿ª
±âº»ÀûÀÎ À§»ý¡¤±Þ¹è¼ö ¼³ºñ, ½Â°­±â µîÀÇ ¼³ºñ°¡ µÇ¾îÀÖÀ½.
4)ºÎÇÕ¹° ¹× Á¾¹°
-
5)°øºÎ¿ÍÀÇ Â÷ÀÌ
-
6)±âŸÂü°í»çÇ×(ÀÓ´ë°ü·Ê ¹× ±âŸ)
-
Âü°í
»çÇ×

ÇöÀå ¹æ¹® ½Ã ÀüºÎ °ø½Ç »óÅ¿´À½(»çÁø ÂüÁ¶)

°ÇÃ๰ÇöȲ

¼ÒÀçÁö ¼­¿ïƯº°½Ã ¿µµîÆ÷±¸ ¾çÆòµ¿1°¡ 182¹øÁö
´ëÁö¸éÀû 469.74§³
(142.35Æò)
¿¬¸éÀû 2500.99§³
(757.88Æò)
°ÇÃà¸éÀû 212.22§³
(64.31Æò)
¿ëÀû·ü»êÁ¤
¿¬¸éÀû
2172.8§³
(658.42Æò)
°ÇÆóÀ² 45.18% ¿ëÀû·ü 462.55%
Áö»óÃþ¼ö 15Ãþ ÁöÇÏÃþ¼ö 1Ãþ
ÁÖ¿ëµµ °øÀå ±¸Á¶ ö±ÙÄÜÅ©¸®Æ®±¸Á¶
Âø°øÀÏÀÚ 2022.02.25 »ç¿ë½ÂÀÎÀÏÀÚ 2023.07.05
°ÇÃ๰Ãþº°ÇöȲ [º¸±â]


µî±âºÎµîº» ¿ä¾à(°Ç¹°)

  Á¢¼öÀÏÀÚ µî±â¸ñÀû/±Ç¸®ÀÚ ±Ç¸®±Ý¾× ±âÁØ
1 2024³â2¿ù8ÀÏ
¼ÒÀ¯±Ç
Á¤OO
¼Ò¸ê
2 2024³â2¿ù8ÀÏ
±ÙÀú´ç±Ç
(OOOO
957,000,000 ¼Ò¸ê±âÁØ
3 2024³â3¿ù18ÀÏ
°¡¾Ð·ù
ȕOOOO
13,948,342 ¼Ò¸ê
4 2024³â10¿ù14ÀÏ
°¡¾Ð·ù
ÁßOOOO
82,800,000 ¼Ò¸ê
5 2024³â11¿ù18ÀÏ
¾Ð·ù
¿µOOO
¼Ò¸ê
6 2025³â2¿ù26ÀÏ
¾Ð·ù
±¹
¼Ò¸ê
7 2025³â9¿ù8ÀÏ
ÀÓÀǰæ¸Å
(OOOO
¼Ò¸ê

ÀÓÂ÷ÀÎÇöȲ (¹è´ç¿ä±¸Á¾±âÀÏ: )


Á¶»çµÈ ÀÓÂ÷³»¿ªÀÌ ¾ø½À´Ï´Ù.


¿©ÀÇÁÖ°æ¸Å Á¶¾ð ÇÑ ¸¶µð

³«Âû ÈÄ¿¡ µî±âºÎ»ó ¼Ò¸êµÇÁö ¾Ê´Â ±Ç¸®´Â ¾ø½À´Ï´Ù.
´ë·«ÀûÀÎ °ËÅäÀǰßÀ̹ǷΠÀÔÂûÀü¿¡ Àü¹®°¡ÀÇ Á¶¾ðÀ» Âü°íÇØ º¸½Ã±æ ±ÇÇØµå¸³´Ï´Ù.
ÀÌ »ç°Ç¹øÈ£·Î 2°³ÀÇ ¹°°ÇÀÌ °æ¸ÅµÇ¸ç ÀÌ ¹°°Ç¹øÈ£´Â 2¹ø ÀÔ´Ï´Ù.
¡Ø ¹°°Ç Ű¿öµå : µµ½ÃÁö¿ª/°ø¾÷Áö¿ª/Áذø¾÷Áö¿ª/ÅäÁö°Å·¡°è¾à¿¡°üÇÑÇã°¡±¸¿ª/¹ö½ºÁ¤·ùÀå/ÁöÇÏö/ö±ÙÄÜÅ©¸®Æ®±¸Á¶
Àüü ÄÁ¼³ÆÃÀÌ ºÎ´ã½º·¯¿ì½Å°¡¿ä? ±Ç¸®ºÐ¼®¸¸ ÀÇ·ÚÇϼŵµ ±¦Âú½À´Ï´Ù!
½Ç¼Ó ÀÖ°Ô Çٽɸ¸ ´ãÀº ±Ç¸®ºÐ¼® ¼­ºñ½º!! (±Ç¸®ºÐ¼® + ½Ã¼¼Á¶»ç + ³«Âû°¡ »êÁ¤ + ÀÔÂûÇ¥ ÀÛ¼º¹æ¹ý ±îÁö)
ÃÖ´ë Àüü ÄÁ¼³ÆÃ ºñ¿ëÀÇ 10% ¼öÁØ !!

ÁÖÀÇ»çÇ× (ÃÖ¼±¼øÀ§ ¼³Á¤ÀÏ: 2024.02.08. ±ÙÀú´ç±Ç¼³Á¤ ¼³Á¤)

¸Å°¢À¸·Î ¼Ò¸êµÇÁö ¾Ê´Â µî±âºÎ±Ç¸®:
¸Å°¢À¸·Î ¼³Á¤µÈ °ÍÀ¸·Î º¸´Â Áö»ó±Ç:
¡Ø¹Ì³³°ü¸®ºñ(°ø¿ë) Àμö¿©ºÎ¸¦ ÀÔÂû Àü¿¡ È®ÀÎÇϽñ⠹ٶø´Ï´Ù

 

Áö¿ªºÐ¼®

ÁöÇÏö¸í Á÷¼±°Å¸®

Çб³¸í ÀüÈ­¹øÈ£ ÁÖ¼Ò Á÷¼±°Å¸®

¹ý¿ø

¼­¿ï³²ºÎÁö¹æ¹ý¿ø (080-88)¼­¿ïƯº°½Ã ¾çõ±¸ ½Å¿ù·Î 386(½ÅÁ¤µ¿)
´ëÇ¥ : 02)2192-1114
°üÇÒÁö¿ª : ¿µµîÆ÷±¸, °­¼­±¸, ¾çõ±¸, ±¸·Î±¸, ±Ýõ±¸

µî±â¼Ò ¼­¿ï³²ºÎÁö¹æ¹ý¿ø º»¿ø µî±â±¹ (´ëÇ¥:1544-0773, ÆÑ½º:(02)2629-7307, ¼­¿ïƯº°½Ã ¿µµîÆ÷±¸ °æÀηΠ772 (¹®·¡µ¿ 1°¡))
¼¼¹«¼­ ¿µµîÆ÷¼¼¹«¼­ (´ëÇ¥:02-2630-92, ÆÑ½º:02-2678-4909, ¼­¿ïƯº°½Ã ¿µµîÆ÷±¸ ¼±À¯µ¿1·Î 38 (´ç»êµ¿3°¡))

Àαٳ«ÂûÅë°è

±â°£ ¸Å°¢°Ç¼ö Æò±Õ°¨Á¤°¡
Æò±Õ¸Å°¢°¡
¸Å°¢°¡À²
Æò±ÕÀ¯Âû¼ö
3°³¿ù 9°Ç 1,295,455,393¿ø
996,379,523¿ø
69%
2.9ȸ
6°³¿ù 16°Ç 1,192,934,159¿ø
925,491,803¿ø
74%
2.4ȸ
12°³¿ù 25°Ç 999,714,752¿ø
774,916,722¿ø
75%
2.2ȸ


º» °æ¸ÅÁ¤º¸´Â ¹ý¿øÀÚ·á¿Í ÀÏÄ¡Çϵµ·Ï ÇÏ¿´À¸³ª ±Ç¸®»çÇ׺¯µ¿, ÀÔ·ÂÂø¿À µîÀÇ ¿øÀÎÀ¸·Î »ç½Ç°ú ´Ù¸¦ ¼ö ÀÖ½À´Ï´Ù. ÀÌ¿ë¾à°ü¿¡ ÀǰЏéÃ¥Á¶°ÇÀ¸·Î Á¦°øµÊÀ» ¾Ë¸®¸ç, °æ¸ÅÀÔÂû½Ã ¹Ýµå½Ã °ü·Ã °øºÎ¸¦ ÀçÈ®ÀÎÇϽñ⠹ٶø´Ï´Ù. º¸´Ù Æí¸®ÇÑ °æ¸ÅÁ¤º¸ Á¦°øÀ» À§ÇØ Áö¼ÓÀûÀ¸·Î °³¼±ÇϰڽÀ´Ï´Ù. ÀÌ¿ëÇØ Áּż­ °¨»çÇÕ´Ï´Ù.
°ü½É¹°°ÇÀ¸·Î µî·ÏÇÕ´Ï´Ù