140
¾ÆÆÄÆ®
´ëÀüÁö¹æ¹ý¿ø õ¾ÈÁö¿ø
 °¨Á¤°¡224,000,000 ¿ø
 ÃÖÀú°¡(70%) 156,800,000 ¿ø
 º¸Áõ±Ý(10%) 15,680,000 ¿ø
 Ã»±¸¾×239,883,534 ¿ø
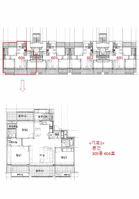
ÃæÃ»³²µµ ¾Æ»ê½Ã ¹è¹æÀ¾ ºÏ¼ö¸® 1535 »õ¼Ö¸¶À»Áß¾ÓÇÏÀÌÃ÷¾ÆÆÄÆ® 305µ¿ 6Ãþ604È£
»ç°Ç¹øÈ£ 2025Ÿ°æ12434
°æ¸ÅÁ¾·ùºÎµ¿»êÀÓÀǰæ¸Å
¸Å°¢´ë»óÅäÁö ¹× °Ç¹°Àϰý ¸Å°¢
¸Å°¢±âÀÏ    2026.05.12(È­) 10:00 ÀÔÂû 34ÀÏÀü    
ÅäÁö¸éÀû46.48§³(14.06 Æò)
°Ç¹°¸éÀû85.00§³(25.71 Æò)
乫/¼ÒÀ¯ÀÚ¹æOO / ¹æOO
ä±ÇÀÚ¿¡OOOOOOOOOOOOO OOOO(OOO OOOO OOOOOO)
±è¼ºÈÆ ´ëÇ¥ÀÌ»ç
°øÀÎÁß°³»ç, ºÎµ¿»ê°ø°æ¸Å»ç, ÇѾç´ëÇб³ Á¹¾÷
Àü) ÅÂÀÎÄÁ¼³ÆÃ(ÁÖ) ´ëÇ¥ÀÌ»ç
Àü) ¿©ÀÇÁֺε¿»êÁß°³¹ýÀÎ(ÁÖ) ´ëÇ¥ÀÌ»ç
Çö) ¿©ÀÇÁÖ°æ¸Å¹ýÀÎ ´ëÇ¥ÀÌ»ç
010-2371-3237
ÆäÀ̽ººÏ Æ®À§ÅÍ ±¸±Û+
īī¿À½ºÅ丮
īī¿ÀÅå sms¹®ÀÚº¸³»±â
 

±âÀϳ»¿ª

°æ°ú ³¯Â¥ Àú°¨ ÃÖÀú°¡ °á°ú
Á¢¼öÀÏ 2025-09-19 °æ¸ÅÁ¢¼ö
~3ÀÏ 
2025-09-22 °æ¸Å°³½Ã°áÁ¤
~96ÀÏ 
2025-12-24 ¹è´ç¿ä±¸Á¾±âÀÏ
~193ÀÏ 
2026-03-31 100%
224,000,000
À¯Âû
~235ÀÏ 
2026-05-12 70%
156,800,000
ÁøÇà
¹°°Ç¸í¼¼¼­ ÇöȲÁ¶»ç¼­ ¹®°ÇÁ¢¼ö ¼Û´Þ³»¿ª

°¨Á¤Æò°¡ÇöȲ

¸ñ·Ï ÁÖ¼Ò ±¸Á¶/¿ëµµ/´ëÁö±Ç ¸éÀû ºñ°í
´ëÁö±Ç
ºÏ¼ö¸® 1535 19234ºÐÀÇ 46.4783 46.4783 §³
(14.06Æò)
°Ç¹°
ºÏ¼ö¸® 1535 305µ¿ 6Ãþ604È£ ö±ÙÄÜÅ©¸®Æ®±¸Á¶ 84.9966 §³
(25.71Æò)
1) À§Ä¡/µµ½ÃÁö¿ª/Á¦2Á¾ÀϹÝÁÖ°ÅÁö¿ª/Á¦1Á¾Áö±¸´ÜÀ§°èȹ±¸¿ª/ÁÖÂ÷Àå/ö±ÙÄÜÅ©¸®Æ®±¸Á¶ ´õº¸±â
°¨Á¤Æò°¡ ¿äÇ×Ç¥
1)À§Ä¡ ¹× ÁÖÀ§È¯°æ
º»°ÇÀº ÃæÃ»³²µµ ¾Æ»ê½Ã ¹è¹æÀ¾ ºÏ¼ö¸® ¼ÒÀç "¾Æ»ê¿ùõÃʵîÇб³" ºÏÃø Àαٿ¡ À§Ä¡Çϸç ÁÖÀ§´Â ¾ÆÆÄÆ®´ÜÁö,ÁÖÅÃ, ±Ù¸°»ó°¡µîÀÌ ¼ÒÀçÇÏ´Â Áö¿ªÀÓ.
2)±³Åë»óȲ
Àαٿ¡ ½Ã³»¹ö½º ½Â°­ÀåÀÌ ¼ÒÀçÇÏ´Â µî Á¦¹Ý±³Åë»óȲÀº º¸ÅëÀÓ.
3)°Ç¹°ÀÇ ±¸Á¶
ö±ÙÄÜÅ©¸®Æ®±¸Á¶ (ö±Ù)ÄÜÅ©¸®Æ®ÁöºØ, °æ»ç½½¶óºêÁöºØ 15Ãþ ¾ÆÆÄÆ®ÀÇ Á¦6Ãþ Á¦604È£·Î ¿Üº®:½Ã¸àÆ®¸ôÅ»À§ ÆäÀÎÆ®¸¶°¨, ¼®ÀçºÙÀÓ¸¶°¨µî ³»º®:º®Áö ¹× ÀϺΟÀϸ¶°¨µî âȣ:¼¦½Ãâȣµî
4)ÀÌ¿ë»óÅÂ
¾ÆÆÄÆ® 1°³È£·Î ÀÌ¿ëÁßÀÓ.
5)¼³ºñ³»¿ª
±âº»ÀûÀÎ Àü±â¼³ºñ,³Ã³­¹æ¼³ºñ,¼Ò¹æ¼³ºñ,À§»ý¼³ºñ, ±Þ¼ö ¹× ¹è¼ö½Ã¼³, °¡½º¼³ºñ,½Â°­±â¼³ºñ,ÁÖÂ÷Àå¼³ºñµîÀÌ ¼³Ä¡µÇ¾î ÀÖÀ½.
6)ÅäÁöÀÇ Çü»ó ¹× ÀÌ¿ë»óÅÂ
´ëü·Î »ç´Ù¸®ÇüÅäÁö·Î ¾ÆÆÄÆ®´ÜÁöÀÇ °ÇºÎÁö·Î ÀÌ¿ëÁßÀÓ.
7)ÀÎÁ¢ µµ·Î»óŵî
ºÏÃø ¹× ¼­ÃøÀ¸·Î ´ë·Î¿¡ Á¢ÇØÀÖÀ¸¸ç µ¿ÃøÀ¸·Î ¼Ò·Î ³²ÃøÀ¸·Î Á߷ο¡ Á¢ÇØÀÖÀ½.
8)ÅäÁöÀÌ¿ë°èȹ ¹× Á¦ÇÑ»óÅÂ
µµ½ÃÁö¿ª , Á¦2Á¾ÀϹÝÁÖ°ÅÁö¿ª , Á¦1Á¾Áö±¸´ÜÀ§°èȹ±¸¿ª(¾Æ»ê¹è¹æºÏ¼öÁß¾ÓÇÏÀÌÃ÷) , ´ë·Î3·ù(Æø 25m~30m)(ÀúÃË) , ¼Ò·Î2·ù(Æø 8m~10m)(2020-07-22)(¼Ò·Î2-119)(Á¢ÇÕ) , Áß·Î1·ù(Æø 20m~25m)(Á¢ÇÕ)
9)°øºÎ¿ÍÀÇ Â÷ÀÌ
-.
10)±âŸÂü°í»çÇ×(ÀÓ´ë°ü·Ê ¹× ±âŸ)
±¸Ã¼ÀûÀÎ ÀÓ´ëÂ÷ °ü°è´Â ¹Ì»óÀÓ.

°ÇÃ๰ÇöȲ

¼ÒÀçÁö ÃæÃ»³²µµ ¾Æ»ê½Ã ¹è¹æÀ¾ ºÏ¼ö¸® 1535¹øÁö
´ëÁö¸éÀû   ¿¬¸éÀû 6086.3725§³
(1844.36Æò)
°ÇÃà¸éÀû   ¿ëÀû·ü»êÁ¤
¿¬¸éÀû
 
°ÇÆóÀ²   ¿ëÀû·ü  
Áö»óÃþ¼ö   ÁöÇÏÃþ¼ö 1Ãþ
ÁÖ¿ëµµ °øµ¿ÁÖÅà ±¸Á¶ ö±ÙÄÜÅ©¸®Æ®±¸Á¶
Âø°øÀÏÀÚ 2005.11.01 »ç¿ë½ÂÀÎÀÏÀÚ 2008.01.28
°ÇÃ๰Ãþº°ÇöȲ [º¸±â]


µî±âºÎµîº» ¿ä¾à(°Ç¹°)

  Á¢¼öÀÏÀÚ µî±â¸ñÀû/±Ç¸®ÀÚ ±Ç¸®±Ý¾× ±âÁØ
1 2008³â4¿ù22ÀÏ
¼ÒÀ¯±Ç
¹æOO
¼Ò¸ê
2 2022³â3¿ù30ÀÏ
±ÙÀú´ç±Ç
(OOOO
145,200,000 ¼Ò¸ê±âÁØ
3 2022³â3¿ù30ÀÏ
±ÙÀú´ç±Ç
(OOOO
118,800,000 ¼Ò¸ê
4 2024³â4¿ù12ÀÏ
°¡¾Ð·ù
ȕOOOO
7,761,388 ¼Ò¸ê
5 2025³â9¿ù22ÀÏ
ÀÓÀǰæ¸Å
¿¡OOOO
¼Ò¸ê
6 2026³â1¿ù13ÀÏ
¾Ð·ù
±¹
¼Ò¸ê

ÀÓÂ÷ÀÎÇöȲ (¹è´ç¿ä±¸Á¾±âÀÏ: 2025-12-24)


Á¶»çµÈ ÀÓÂ÷³»¿ªÀÌ ¾ø½À´Ï´Ù


¿©ÀÇÁÖ°æ¸Å Á¶¾ð ÇÑ ¸¶µð

³«Âû ÈÄ¿¡ µî±âºÎ»ó ¼Ò¸êµÇÁö ¾Ê´Â ±Ç¸®´Â ¾ø½À´Ï´Ù.
´ë·«ÀûÀÎ °ËÅäÀǰßÀ̹ǷΠÀÔÂûÀü¿¡ Àü¹®°¡ÀÇ Á¶¾ðÀ» Âü°íÇØ º¸½Ã±æ ±ÇÇØµå¸³´Ï´Ù.
ü³³°ü¸®ºñ¸¦ ºÎ´ãÇÒ ¼ö ÀÖ½À´Ï´Ù.
¡Ø ¹°°Ç Ű¿öµå : µµ½ÃÁö¿ª/ÁÖ°ÅÁö¿ª/Á¦2Á¾ÀϹÝÁÖ°ÅÁö¿ª/Áö±¸´ÜÀ§°èȹ±¸¿ª/Á¦1Á¾Áö±¸´ÜÀ§°èȹ±¸¿ª/ÁÖÂ÷Àå/ö±ÙÄÜÅ©¸®Æ®±¸Á¶
Àüü ÄÁ¼³ÆÃÀÌ ºÎ´ã½º·¯¿ì½Å°¡¿ä? ±Ç¸®ºÐ¼®¸¸ ÀÇ·ÚÇϼŵµ ±¦Âú½À´Ï´Ù!
½Ç¼Ó ÀÖ°Ô Çٽɸ¸ ´ãÀº ±Ç¸®ºÐ¼® ¼­ºñ½º!! (±Ç¸®ºÐ¼® + ½Ã¼¼Á¶»ç + ³«Âû°¡ »êÁ¤ + ÀÔÂûÇ¥ ÀÛ¼º¹æ¹ý ±îÁö)
ÃÖ´ë Àüü ÄÁ¼³ÆÃ ºñ¿ëÀÇ 10% ¼öÁØ !!

ÁÖÀÇ»çÇ× (ÃÖ¼±¼øÀ§ ¼³Á¤ÀÏ: 2022. 3. 30. ±ÙÀú´ç±Ç ¼³Á¤)

¸Å°¢À¸·Î ¼Ò¸êµÇÁö ¾Ê´Â µî±âºÎ±Ç¸®:
¸Å°¢À¸·Î ¼³Á¤µÈ °ÍÀ¸·Î º¸´Â Áö»ó±Ç:
¡Ø¹Ì³³°ü¸®ºñ(°ø¿ë) Àμö¿©ºÎ¸¦ ÀÔÂû Àü¿¡ È®ÀÎÇϽñ⠹ٶø´Ï´Ù

 

Áö¿ªºÐ¼®

ÁöÇÏö¸í Á÷¼±°Å¸®

Çб³¸í ÀüÈ­¹øÈ£ ÁÖ¼Ò Á÷¼±°Å¸®

¹ý¿ø

´ëÀüÁö¹æ¹ý¿ø Ãµ¾ÈÁö¿ø (311-98)ÃæÃ»³²µµ õ¾È½Ã µ¿³²±¸ û¼ö14·Î 77 (û´çµ¿ 476)
´ëÇ¥ : 041)620-3000, ¹Î¿ø : 041)620-3058
°üÇÒÁö¿ª : õ¾È½Ã, ¾Æ»ê½Ã

µî±â¼Ò ´ëÀüÁö¹æ¹ý¿ø Ãµ¾ÈÁö¿ø ¾Æ»êµî±â¼Ò (´ëÇ¥:1544-0773, ÆÑ½º:(041)546-2695, Ãæ³² ¾Æ»ê½Ã ¿ëÈ­·Î76¹ø±æ 7 (¿ëÈ­µ¿ 970))
¼¼¹«¼­ ¾Æ»ê¼¼¹«¼­ (´ëÇ¥:041-536-72, ÆÑ½º:041-533-1351, ÃæÃ»³²µµ ¾Æ»ê½Ã ¹è¹æÀ¾ ¹è¹æ·Î 57-29(°ø¼ö¸® 280-5))

Àαٳ«ÂûÅë°è

±â°£ ¸Å°¢°Ç¼ö Æò±Õ°¨Á¤°¡
Æò±Õ¸Å°¢°¡
¸Å°¢°¡À²
Æò±ÕÀ¯Âû¼ö
3°³¿ù 30°Ç 216,533,333¿ø
185,633,980¿ø
85%
1.1ȸ
6°³¿ù 51°Ç 188,562,745¿ø
157,863,173¿ø
80%
1.3ȸ
12°³¿ù 117°Ç 200,165,368¿ø
163,545,247¿ø
79%
1.4ȸ


º» °æ¸ÅÁ¤º¸´Â ¹ý¿øÀÚ·á¿Í ÀÏÄ¡Çϵµ·Ï ÇÏ¿´À¸³ª ±Ç¸®»çÇ׺¯µ¿, ÀÔ·ÂÂø¿À µîÀÇ ¿øÀÎÀ¸·Î »ç½Ç°ú ´Ù¸¦ ¼ö ÀÖ½À´Ï´Ù. ÀÌ¿ë¾à°ü¿¡ ÀǰЏéÃ¥Á¶°ÇÀ¸·Î Á¦°øµÊÀ» ¾Ë¸®¸ç, °æ¸ÅÀÔÂû½Ã ¹Ýµå½Ã °ü·Ã °øºÎ¸¦ ÀçÈ®ÀÎÇϽñ⠹ٶø´Ï´Ù. º¸´Ù Æí¸®ÇÑ °æ¸ÅÁ¤º¸ Á¦°øÀ» À§ÇØ Áö¼ÓÀûÀ¸·Î °³¼±ÇϰڽÀ´Ï´Ù. ÀÌ¿ëÇØ Áּż­ °¨»çÇÕ´Ï´Ù.
°ü½É¹°°ÇÀ¸·Î µî·ÏÇÕ´Ï´Ù