14
¾ÆÆÄÆ®
´ëÀüÁö¹æ¹ý¿ø õ¾ÈÁö¿ø
 °¨Á¤°¡215,000,000 ¿ø
 ÃÖÀú°¡(100%) 215,000,000 ¿ø
 º¸Áõ±Ý(10%) 21,500,000 ¿ø
 Ã»±¸¾×142,364,207 ¿ø
ÃæÃ»³²µµ õ¾È½Ã ¼­ºÏ±¸ ½Ö¿ëµ¿ 2050 ½Ö¿ë¿ªÇª¸£Áö¿À 102µ¿ 2Ãþ201È£
»ç°Ç¹øÈ£ 2025Ÿ°æ12230
°æ¸ÅÁ¾·ùºÎµ¿»êÀÓÀǰæ¸Å
¸Å°¢´ë»óÅäÁö ¹× °Ç¹°Àϰý ¸Å°¢
¸Å°¢±âÀÏ    2026.03.30(¿ù) 10:00 ÀÔÂû 13ÀÏÀü    
ÅäÁö¸éÀû43.48§³(13.15 Æò)
°Ç¹°¸éÀû84.97§³(25.70 Æò)
乫/¼ÒÀ¯ÀÚ±æOO / ±æOO
ä±ÇÀÚÇÑOOOOOOO
±è¼ºÈÆ ´ëÇ¥ÀÌ»ç
°øÀÎÁß°³»ç, ºÎµ¿»ê°ø°æ¸Å»ç, ÇѾç´ëÇб³ Á¹¾÷
Àü) ÅÂÀÎÄÁ¼³ÆÃ(ÁÖ) ´ëÇ¥ÀÌ»ç
Àü) ¿©ÀÇÁֺε¿»êÁß°³¹ýÀÎ(ÁÖ) ´ëÇ¥ÀÌ»ç
Çö) ¿©ÀÇÁÖ°æ¸Å¹ýÀÎ ´ëÇ¥ÀÌ»ç
010-2371-3237
ÆäÀ̽ººÏ Æ®À§ÅÍ ±¸±Û+
īī¿À½ºÅ丮
īī¿ÀÅå sms¹®ÀÚº¸³»±â
 

±âÀϳ»¿ª

°æ°ú ³¯Â¥ Àú°¨ ÃÖÀú°¡ °á°ú
Á¢¼öÀÏ 2025-08-17 °æ¸ÅÁ¢¼ö
~1ÀÏ 
2025-08-18 °æ¸Å°³½Ã°áÁ¤
~95ÀÏ 
2025-11-20 ¹è´ç¿ä±¸Á¾±âÀÏ
~225ÀÏ 
2026-03-30 100%
215,000,000
ÁøÇà
¹°°Ç¸í¼¼¼­ ÇöȲÁ¶»ç¼­ ¹®°ÇÁ¢¼ö ¼Û´Þ³»¿ª

°¨Á¤Æò°¡ÇöȲ

¸ñ·Ï ÁÖ¼Ò ±¸Á¶/¿ëµµ/´ëÁö±Ç ¸éÀû ºñ°í
´ëÁö±Ç
½Ö¿ëµ¿ 2050 14054.5ºÐÀÇ 43.4774 43.4774 §³
(13.15Æò)
°Ç¹°
½Ö¿ëµ¿ 2050 102µ¿ 2Ãþ201È£ ö±ÙÄÜÅ©¸®Æ®±¸Á¶ 84.9744 §³
(25.70Æò)
1) À§Ä¡/µµ½ÃÁö¿ª/Á¦2Á¾ÀϹÝÁÖ°ÅÁö¿ª/Á¦1Á¾Áö±¸´ÜÀ§°èȹ±¸¿ª/Â÷·®ÀÇ Á¢±ÙÀÌ °¡´É/ÁöÇÏÁÖÂ÷Àå/ö±ÙÄÜÅ©¸®Æ®±¸Á¶/½½·¡ºêÁöºØ/µµ½Ã°¡½º/¹æ3 ´õº¸±â
°¨Á¤Æò°¡ ¿äÇ×Ç¥
1)À§Ä¡ ¹× ÁÖÀ§È¯°æ
º»°ÇÀº ÃæÃ»³²µµ õ¾È½Ã ¼­ºÏ±¸ ½Ö¿ëµ¿ ¼ÒÀç ¡®½Ö¿ë¿ª¡¯ ³²¼­Ãø Àαٿ¡ À§Ä¡Çϸç, ÁÖÀ§´Â ¾ÆÆÄÆ®´ÜÁö¿Í ±Ù¸°»ýȰ½Ã¼³ÀÌ È¥ÀçÇÑ °øµ¿ÁÖÅÃÁö´ëÀÓ.
2)±³Åë»óȲ
º»°Ç ¾ÆÆÄÆ®´ÜÁö ³» Áö»ó ¹× ÁöÇÏÁÖÂ÷Àå±îÁö Á¦¹Ý Â÷·®ÀÇ Á¢±ÙÀÌ °¡´ÉÇϸç, ´ëÁß±³Åë»óȲÀº º¸Åë½ÃµÊ.
3)°Ç¹°ÀÇ ±¸Á¶
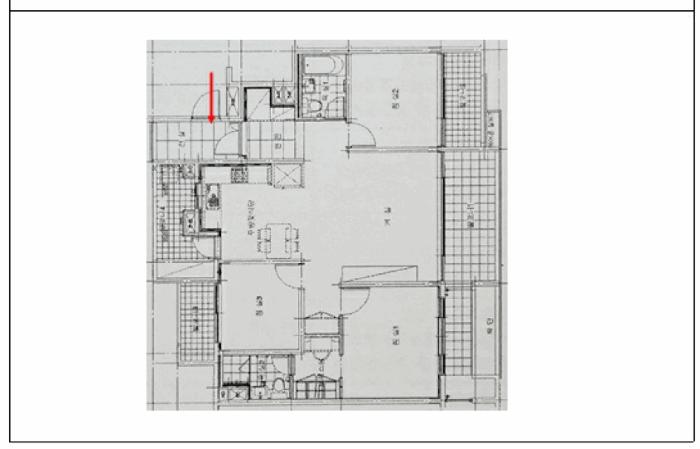
ö±ÙÄÜÅ©¸®Æ®±¸Á¶ ½½·¡ºêÁöºØ 15Ãþ Áß 2Ãþ 201È£·Î¼­ »ç¿ë½ÂÀÎÀÏÀº 2006³â 10¿ù 31ÀÏÀ̰í, ¿Üº®Àº ¸ôÅ»À§ ÆäÀÎÆÃ, ³»º®Àº º®Áöµµ¹è ¹× ŸÀÏ, âȣ´Â PVC»õ½Ã ÀÌÁßâÀÓ.
4)ÀÌ¿ë»óÅÂ
°øµ¿ÁÖÅÃ(¾ÆÆÄÆ®)(¹æ3, °Å½Ç, ÁÖ¹æ ¹× ½Ä´ç, ¿å½Ç, Çö°ü, ¹ßÄÚ´Ï µî)ÀÓ.
5)¼³ºñ³»¿ª
±Þ¹è¼ö¼³ºñ, À§»ý¼³ºñ, ¼Ò¹æ¼³ºñ, ³­¹æ¼³ºñ, ½Â°­±â¼³ºñ, µµ½Ã°¡½º¼³ºñ µÇ¾î ÀÖÀ½.
6)ÅäÁöÀÇ Çü»ó ¹× ÀÌ¿ë»óÅÂ
´ë»óºÎÁö´Â ºÎÁ¤ÇüÀÇ ÅäÁö·Î¼­ ÀÎÁ¢µµ·Î¿Í ´ëü·Î ÆòźÇÑ ¾ÆÆÄÆ®¿ëÁöÀÓ.
7)ÀÎÁ¢ µµ·Î»óŵî
º» ´ÜÁö´Â ¼­ÃøÀ¸·Î Á߷ο¡ Á¢Çϰí, ³²Ãø°ú ºÏµ¿ÃøÀ¸·Î ¼Ò·Î¿¡ Á¢Çϸç, ´ÜÁö³» µµ·Î¿Í ¿¬°èµÇ¾î ÀÖÀ½.
8)ÅäÁöÀÌ¿ë°èȹ ¹× Á¦ÇÑ»óÅÂ
¢Ã ±¹ÅäÀÇ °èȹ ¹× À̿뿡 °üÇÑ ¹ý·ü¿¡ µû¸¥ Áö¿ª?Áö±¸ µî

µµ½ÃÁö¿ª(õ¾Èµµ½ÃÁö¿ª), Á¦2Á¾ÀϹÝÁÖ°ÅÁö¿ª, Á¦1Á¾Áö±¸´ÜÀ§°èȹ±¸¿ª(½Ö¿ë¿ªÇª¸£Áö¿À¾ÆÆÄÆ®), ¼Ò·Î2·ù(Æø 8m~10m)(Á¢ÇÕ), Áß·Î1·ù(Æø 20m~25m)(Á¢ÇÕ)

¢Ã ´Ù¸¥ ¹ý·É µî¿¡ µû¸¥ Áö¿ª?Áö±¸ µî

°¡Ãà»çÀ°Á¦Çѱ¸¿ª(Ÿ¹ý¿¡ ÀÇÇÑ ÀüºÎÁ¦Çѱ¸¿ª)<°¡ÃàºÐ´¢ÀÇ °ü¸® ¹× À̿뿡 °üÇÑ ¹ý·ü>, »ó´ëº¸È£±¸¿ª(³ª»ç·¿´ëÇб³(»ó´ëÁ¤È­±¸¿ª))<±³À°È¯°æ º¸È£¿¡ °üÇÑ ¹ý·ü>, »ó´ëº¸È£±¸¿ª(¿£Á©À¯Ä¡¿ø(»ó´ëÁ¤È­±¸¿ª))<±³À°È¯°æ º¸È£¿¡ °üÇÑ ¹ý·ü>ÀÓ.
9)°øºÎ¿ÍÀÇ Â÷ÀÌ
¾øÀ½.
10)±âŸÂü°í»çÇ×(ÀÓ´ë°ü·Ê ¹× ±âŸ)
ÀÓ´ë°ü°è´Â ¹Ì»óÀÓ.
Âü°í
»çÇ×

ºÙÀÓ

°ÇÃ๰ÇöȲ

¼ÒÀçÁö ÃæÃ»³²µµ õ¾È½Ã ¼­ºÏ±¸ ½Ö¿ëµ¿ 2050¹øÁö
´ëÁö¸éÀû   ¿¬¸éÀû 999.813§³
(302.97Æò)
°ÇÃà¸éÀû 386.921§³
(117.25Æò)
¿ëÀû·ü»êÁ¤
¿¬¸éÀû
668.588§³
(202.6Æò)
°ÇÆóÀ²   ¿ëÀû·ü  
Áö»óÃþ¼ö 2Ãþ ÁöÇÏÃþ¼ö 1Ãþ
ÁÖ¿ëµµ Á¦1Á¾±Ù¸°»ýȰ½Ã¼³ ±¸Á¶ ö±ÙÄÜÅ©¸®Æ®±¸Á¶
Âø°øÀÏÀÚ 2004.07.19 »ç¿ë½ÂÀÎÀÏÀÚ 2006.10.31
°ÇÃ๰Ãþº°ÇöȲ [º¸±â]


µî±âºÎµîº» ¿ä¾à(°Ç¹°)

  Á¢¼öÀÏÀÚ µî±â¸ñÀû/±Ç¸®ÀÚ ±Ç¸®±Ý¾× ±âÁØ
1 2015³â1¿ù9ÀÏ
¼ÒÀ¯±Ç
±æOO
¼Ò¸ê
2 2015³â1¿ù9ÀÏ
±ÙÀú´ç±Ç
±³OOOO
201,600,000 ¼Ò¸ê±âÁØ
3 2016³â5¿ù20ÀÏ
°¡¾Ð·ù
ȕOOOO
8,561,858 ¼Ò¸ê
4 2016³â6¿ù2ÀÏ
°¡¾Ð·ù
(OOOO
5,589,012 ¼Ò¸ê
5 2016³â6¿ù15ÀÏ
°¡¾Ð·ù
·ÔOOOO
41,539,300 ¼Ò¸ê
6 2025³â8¿ù18ÀÏ
ÀÓÀǰæ¸Å
ÇÑOOOO
¼Ò¸ê

ÀÓÂ÷ÀÎÇöȲ (¹è´ç¿ä±¸Á¾±âÀÏ: 2025-11-20)



¸Å°¢±âÀÏ 7ÀÏÀü¿¡ °ø°íµÇ¿À´Ï È®ÀÎÇϽñ⠹ٶø´Ï´Ù.


¾ÆÆÄÆ® Á¤º¸

ÁÖ¼Ò
½Ã°ø»ç ´ÜÁö±Ô¸ð 6°³µ¿ ¼¼´ë
³­¹æ »ç¿ë½ÂÀÎ
°ü¸®¼Ò
Àü¿ë¸éÀû ¼¼´ë¼ö
´ëÁö±Ç
Çö°ü/±¸Á¶ ½Ä / ¹æ, ¿å½Ç
  • Çб³
  • ÁÖº¯½Ã¼³
  • ´ëÁß±³Åë

¿©ÀÇÁÖ°æ¸Å Á¶¾ð ÇÑ ¸¶µð

³«Âû ÈÄ¿¡ µî±âºÎ»ó ¼Ò¸êµÇÁö ¾Ê´Â ±Ç¸®´Â ¾ø½À´Ï´Ù.
´ë·«ÀûÀÎ °ËÅäÀǰßÀ̹ǷΠÀÔÂûÀü¿¡ Àü¹®°¡ÀÇ Á¶¾ðÀ» Âü°íÇØ º¸½Ã±æ ±ÇÇØµå¸³´Ï´Ù.
ü³³°ü¸®ºñ¸¦ ºÎ´ãÇÒ ¼ö ÀÖ½À´Ï´Ù.
¡Ø ¹°°Ç Ű¿öµå : µµ½ÃÁö¿ª/ÁÖ°ÅÁö¿ª/Á¦2Á¾ÀϹÝÁÖ°ÅÁö¿ª/Áö±¸´ÜÀ§°èȹ±¸¿ª/Á¦1Á¾Áö±¸´ÜÀ§°èȹ±¸¿ª/ÁÖÂ÷Àå/Â÷·®ÀÇ Á¢±ÙÀÌ °¡´É/ÁöÇÏÁÖÂ÷Àå/ö±ÙÄÜÅ©¸®Æ®±¸Á¶/½½·¡ºêÁöºØ/µµ½Ã°¡½º/¹æ3
Àüü ÄÁ¼³ÆÃÀÌ ºÎ´ã½º·¯¿ì½Å°¡¿ä? ±Ç¸®ºÐ¼®¸¸ ÀÇ·ÚÇϼŵµ ±¦Âú½À´Ï´Ù!
½Ç¼Ó ÀÖ°Ô Çٽɸ¸ ´ãÀº ±Ç¸®ºÐ¼® ¼­ºñ½º!! (±Ç¸®ºÐ¼® + ½Ã¼¼Á¶»ç + ³«Âû°¡ »êÁ¤ + ÀÔÂûÇ¥ ÀÛ¼º¹æ¹ý ±îÁö)
ÃÖ´ë Àüü ÄÁ¼³ÆÃ ºñ¿ëÀÇ 10% ¼öÁØ !!

ÁÖÀÇ»çÇ× (ÃÖ¼±¼øÀ§ ¼³Á¤ÀÏ: 2015. 1. 9. ±ÙÀú´ç±Ç ¼³Á¤)

¸Å°¢À¸·Î ¼Ò¸êµÇÁö ¾Ê´Â µî±âºÎ±Ç¸®:
¸Å°¢À¸·Î ¼³Á¤µÈ °ÍÀ¸·Î º¸´Â Áö»ó±Ç:
¡Ø¹Ì³³°ü¸®ºñ(°ø¿ë) Àμö¿©ºÎ¸¦ ÀÔÂû Àü¿¡ È®ÀÎÇϽñ⠹ٶø´Ï´Ù

 

Áö¿ªºÐ¼®

ÁöÇÏö¸í Á÷¼±°Å¸®

Çб³¸í ÀüÈ­¹øÈ£ ÁÖ¼Ò Á÷¼±°Å¸®

¹ý¿ø

´ëÀüÁö¹æ¹ý¿ø Ãµ¾ÈÁö¿ø (311-98)ÃæÃ»³²µµ õ¾È½Ã µ¿³²±¸ û¼ö14·Î 77 (û´çµ¿ 476)
´ëÇ¥ : 041)620-3000, ¹Î¿ø : 041)620-3058
°üÇÒÁö¿ª : õ¾È½Ã, ¾Æ»ê½Ã

µî±â¼Ò ´ëÀüÁö¹æ¹ý¿ø Ãµ¾ÈÁö¿ø µî±â°ú (´ëÇ¥:1544-0773, ÆÑ½º:(041)530-0420, Ãæ³² õ¾È½Ã µ¿³²±¸ û¼ö14·Î 77 (û´çµ¿ 476))
¼¼¹«¼­ õ¾È¼¼¹«¼­ (´ëÇ¥:041-559-82, ÆÑ½º:041-555-9556, ÃæÃ»³²µµ õ¾È½Ã µ¿³²±¸ û¼ö14·Î 80 (û´çµ¿))

Àαٳ«ÂûÅë°è

±â°£ ¸Å°¢°Ç¼ö Æò±Õ°¨Á¤°¡
Æò±Õ¸Å°¢°¡
¸Å°¢°¡À²
Æò±ÕÀ¯Âû¼ö
3°³¿ù 44°Ç 233,022,727¿ø
177,274,427¿ø
72%
2.2ȸ
6°³¿ù 82°Ç 236,951,220¿ø
181,254,457¿ø
72%
2ȸ
12°³¿ù 190°Ç 200,952,105¿ø
150,270,978¿ø
70%
1.9ȸ


º» °æ¸ÅÁ¤º¸´Â ¹ý¿øÀÚ·á¿Í ÀÏÄ¡Çϵµ·Ï ÇÏ¿´À¸³ª ±Ç¸®»çÇ׺¯µ¿, ÀÔ·ÂÂø¿À µîÀÇ ¿øÀÎÀ¸·Î »ç½Ç°ú ´Ù¸¦ ¼ö ÀÖ½À´Ï´Ù. ÀÌ¿ë¾à°ü¿¡ ÀǰЏéÃ¥Á¶°ÇÀ¸·Î Á¦°øµÊÀ» ¾Ë¸®¸ç, °æ¸ÅÀÔÂû½Ã ¹Ýµå½Ã °ü·Ã °øºÎ¸¦ ÀçÈ®ÀÎÇϽñ⠹ٶø´Ï´Ù. º¸´Ù Æí¸®ÇÑ °æ¸ÅÁ¤º¸ Á¦°øÀ» À§ÇØ Áö¼ÓÀûÀ¸·Î °³¼±ÇϰڽÀ´Ï´Ù. ÀÌ¿ëÇØ Áּż­ °¨»çÇÕ´Ï´Ù.
°ü½É¹°°ÇÀ¸·Î µî·ÏÇÕ´Ï´Ù