76
µµ½ÃÇü»ýȰÁÖÅÃ
ÀÎõÁö¹æ¹ý¿ø
 °¨Á¤°¡157,480,000 ¿ø
 ÃÖÀú°¡(70%) 110,236,000 ¿ø
 º¸Áõ±Ý(10%) 11,023,600 ¿ø
 Ã»±¸¾×188,000,000 ¿ø
ÀÎõ±¤¿ª½Ã ºÎÆò±¸ ÀåÁ¦·Î52¹ø±æ 13, 10Ãþ 1006È£ (ºÎÆòµ¿,·Îµ©·¹ºä)
ÀÎõ±¤¿ª½Ã ºÎÆò±¸ ºÎÆòµ¿ 505-1
»ç°Ç¹øÈ£ 2024Ÿ°æ570807
°æ¸ÅÁ¾·ùºÎµ¿»ê°­Á¦°æ¸Å
¸Å°¢´ë»óÅäÁö ¹× °Ç¹°Àϰý ¸Å°¢
¸Å°¢±âÀÏ    2026.04.28(È­) 10:00 ÀÔÂû 18ÀÏÀü    
ÅäÁö¸éÀû8.61§³(2.61 Æò)
°Ç¹°¸éÀû53.97§³(16.33 Æò)
乫/¼ÒÀ¯ÀÚÀÌOO / ÀÌOO
ä±ÇÀÚ¹ÚOO
±è¼ºÈÆ ´ëÇ¥ÀÌ»ç
°øÀÎÁß°³»ç, ºÎµ¿»ê°ø°æ¸Å»ç, ÇѾç´ëÇб³ Á¹¾÷
Àü) ÅÂÀÎÄÁ¼³ÆÃ(ÁÖ) ´ëÇ¥ÀÌ»ç
Àü) ¿©ÀÇÁֺε¿»êÁß°³¹ýÀÎ(ÁÖ) ´ëÇ¥ÀÌ»ç
Çö) ¿©ÀÇÁÖ°æ¸Å¹ýÀÎ ´ëÇ¥ÀÌ»ç
010-2371-3237
ÆäÀ̽ººÏ Æ®À§ÅÍ ±¸±Û+
īī¿À½ºÅ丮
īī¿ÀÅå sms¹®ÀÚº¸³»±â
 

±âÀϳ»¿ª

°æ°ú ³¯Â¥ Àú°¨ ÃÖÀú°¡ °á°ú
Á¢¼öÀÏ 2024-11-06 °æ¸ÅÁ¢¼ö
~1ÀÏ 
2024-11-07 °æ¸Å°³½Ã°áÁ¤
~86ÀÏ 
2025-01-31 ¹è´ç¿ä±¸Á¾±âÀÏ
~506ÀÏ 
2026-03-27 100%
157,480,000
~538ÀÏ 
2026-04-28 70%
110,236,000
ÁøÇà
¹°°Ç¸í¼¼¼­ ÇöȲÁ¶»ç¼­ ¹®°ÇÁ¢¼ö ¼Û´Þ³»¿ª

°¨Á¤Æò°¡ÇöȲ

¸ñ·Ï ÁÖ¼Ò ±¸Á¶/¿ëµµ/´ëÁö±Ç ¸éÀû ºñ°í
´ëÁö±Ç
ºÎÆòµ¿ 505-1 714.4ºÐÀÇ 8.6136 8.6136 §³
(2.61Æò)
°Ç¹°
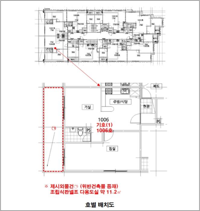
ºÎÆòµ¿ 505-1 10Ãþ 1006È£ ö±ÙÄÜÅ©¸®Æ®±¸Á¶ 42.77 §³
(12.94Æò)
Á¦½Ã¿Ü
°Ç¹°
ºÎÆòµ¿ 505-1 ´Ù¿ëµµ½Ç 11.2 §³
(3.39Æò)
Æ÷ÇÔ
1) À§Ä¡/ÀϹݻó¾÷Áö¿ª/¹ö½ºÁ¤·ùÀå/Â÷·®Á¢±ÙÀÌ °¡´É/ö±ÙÄÜÅ©¸®Æ®Á¶ ´õº¸±â
°¨Á¤Æò°¡ ¿äÇ×Ç¥
1)À§Ä¡ ¹× ÁÖÀ§È¯°æ
º»°ÇÀº ÀÎõ±¤¿ª½Ã ºÎÆò±¸ ºÎÆòµ¿ ¼ÒÀç "±¼´Ù¸®¿À°Å¸®" ³²µ¿Ãø Àαٿ¡ À§Ä¡Çϰí ÀÖÀ¸¸ç, ÁÖÀ§´Â °øµ¿ÁÖÅÃ, ÁÖ»óº¹ÇÕ(¿ÀÇǽºÅÚ Æ÷ÇÔ), »ó°¡Á¡Æ÷ µîÀÌ È¥ÀçÇϰí ÀÖ´Â Áö¿ªÀÓ.
2)±³Åë»óȲ
º»°Ç±îÁö Â÷·®Á¢±ÙÀÌ °¡´ÉÇϰí, Àαٿ¡ ¹ö½ºÁ¤·ùÀåÀÌ ¼ÒÀçÇÏ´Â µî Àü¹ÝÀûÀÎ ±³Åë¿©°ÇÀº ¹«³­ÇÑ ÆíÀÓ.
3)°Ç¹°ÀÇ ±¸Á¶
ö±ÙÄÜÅ©¸®Æ®Á¶ Æò½½¶óºêÁöºØ ÁöÇÏ1Ãþ-Áö»ó10Ãþ °Ç¹° ³» Á¦10Ãþ Á¦1006È£·Î¼­
- ¿Üº® : ¸ôÅ» À§ ÆäÀÎÆÃ µî
- âȣ : »õ½ÃÁ¶ µî ¸¶°¨ÀÓ.
4)ÀÌ¿ë»óÅÂ
µµ½ÃÇü»ýȰÁÖÅÃÀ¸·Î ÀÌ¿ë ÁßÀÓ.
5)¼³ºñ³»¿ª
À§»ý ¹× ±Þ¹è¼ö¼³ºñ, ³­¹æ¼³ºñ, ½Â°­±â¼³ºñ µîÀ» °®Ãß¾úÀ½.
6)ÅäÁöÀÇ Çü»ó ¹× ÀÌ¿ë»óÅÂ
ÀαÙÁö ´ëºñ ´ëüÀûÀ¸·Î ÆòźÇÏ°Ô Á¶¼ºµÈ ¼¼ÀåÇüÀÇ ÅäÁö·Î¼­ ÇöȲ °øµ¿ÁÖÅà ¹× ¾÷¹«½Ã¼³ °ÇºÎÁö µîÀ¸·Î ÀÌ¿ë ÁßÀÓ.
7)ÀÎÁ¢ µµ·Î»óŵî
º»°Ç ³²ÃøÀ¸·Î ³ëÆø ¾à 8m ³»¿ÜÀÇ µµ·Î¿¡ Á¢Çϰí ÀÖÀ½.
8)ÅäÁöÀÌ¿ë°èȹ ¹× Á¦ÇÑ»óÅÂ
ÀϹݻó¾÷Áö¿ª, ¹æÈ­Áö±¸, °¡·Î±¸¿ªº° ÃÖ°í³ôÀÌ Á¦ÇÑÁö¿ª, °ú¹Ð¾ïÁ¦±Ç¿ª ÀÓ.
9)°øºÎ¿ÍÀÇ Â÷ÀÌ
ƯÀÌ»çÇ× ¾øÀ½.
10)±âŸÂü°í»çÇ×(ÀÓ´ë°ü·Ê ¹× ±âŸ)
- ÀÓ´ë°ü°è ¹Ì»óÀÓ.
- º»°ÇÀº ÁýÇÕ°ÇÃ๰´ëÀå »ó °ÇÃà°ú-39414(2023.09.26.)È£¿¡ µû¶ó Á¶¸³½ÄÆÐ³ÎÁ¶ 11.2§³ ¹«´ÜÁõÃàÀ¸·Î ÀÎÇÏ¿© À§¹Ý°ÇÃ๰·Î µîÀçµÈ »óÅ·Π°¨Á¤Æò°¡¸í¼¼Ç¥ »ó Á¦½Ã¿Ü¹°°Ç(À§¹Ý°ÇÃ๰)¿¡ ´ëÇÏ¿© º°µµ °¡°ÝÀ» ºÎ±âÇÏ¿´À¸´Ï ¾÷¹«¿¡ À¯ÀÇÇϽñ⠹ٶ÷.(À§¹Ý°ÇÃ๰¿¡ ´ëÇÑ ½ÃÁ¤Á¶Ä¡(¿ø»óȸº¹ µî), °úÅÂ·á µî Ãß°¡ ºñ¿ë¹ß»ýÀÌ ÀÖÀ¸´Ï ÀÔÂû ½Ã À§¹Ý°ÇÃ๰ °ü·Ã »çÇ׿¡ ´ëÇÏ¿© º°µµ È®ÀÎÇϽñ⠹ٶ÷.)
- º»°ÇÀº ÇöÀåÁ¶»ç ½Ã ÀÌÇØ°ü°èÀÎ ÇùÁ¶ºÎÀç µîÀ¸·Î ÀÎÇÏ¿© ³»ºÎ±¸Á¶¸¦ È®ÀÎÇÏÁö ¸øÇÏ¿´À¸¸ç, °ÇÃ๰´ëÀå »ó µîÀçµÈ ÇöȲµµ¸é, ¿Ü°ü¸ñÃø, ÁÖº¯Å½¹®, µ¿ À¯Çü °øµ¿ÁÖÅà ÀϹÝÇöȲ µîÀ» ÂüÀÛÇÏ¿© Æò°¡ÇÏ¿´´Â ¹Ù, ÀÔÂû ½Ã ³»ºÎ±¸Á¶ µîÀº º°µµ È®ÀÎÇϽñ⠹ٶ÷.
Âü°í
»çÇ×
Á¦½Ã¿Ü °Ç¹° ¸Å°¢¿¡ Æ÷ÇÔ ÁýÇÕ°ÇÃ๰´ëÀå»ó 'À§¹Ý°ÇÃ๰ Á¶¸³½Ä ÆÐ³ÎÁ¶ 11.2§³(¹«´ÜÁõÃà)' µîÀç, À§¹Ý°ÇÃâ¹°¿¡ ´ëÇÑ ½ÃÁ¤Á¶Ä¡(¿ø»óȸº¹ µî) ¹× °úÅÂ·á µî Ãß°¡ ºñ¿ë ¹ß»ý ¿©Áö ÀÖÀ½.
º» °ÇÀº 10Ãþ °øµ¿ÁÖÅà ¹× ¾÷¹«½Ã¼³ÀÌ º¹ÇÕµÈ ÁְŽü³ÀÓ.

°ÇÃ๰ÇöȲ

¼ÒÀçÁö ÀÎõ±¤¿ª½Ã ºÎÆò±¸ ºÎÆòµ¿ 505-1¹øÁö
´ëÁö¸éÀû 714.4§³
(216.48Æò)
¿¬¸éÀû 4916.718§³
(1489.91Æò)
°ÇÃà¸éÀû 570.85§³
(172.98Æò)
¿ëÀû·ü»êÁ¤
¿¬¸éÀû
4360.595§³
(1321.39Æò)
°ÇÆóÀ² 79.91% ¿ëÀû·ü 610.39%
Áö»óÃþ¼ö 10Ãþ ÁöÇÏÃþ¼ö 1Ãþ
ÁÖ¿ëµµ °øµ¿ÁÖÅà ±¸Á¶ ö±ÙÄÜÅ©¸®Æ®±¸Á¶
Âø°øÀÏÀÚ 2012.10.18 »ç¿ë½ÂÀÎÀÏÀÚ 2013.05.08
°ÇÃ๰Ãþº°ÇöȲ [º¸±â]


µî±âºÎµîº» ¿ä¾à(°Ç¹°)

  Á¢¼öÀÏÀÚ µî±â¸ñÀû/±Ç¸®ÀÚ ±Ç¸®±Ý¾× ±âÁØ
1 2022³â1¿ù19ÀÏ
¼ÒÀ¯±Ç
ÀÌOO
¼Ò¸ê
2 2022³â5¿ù25ÀÏ
¾Ð·ù
±¹
¼Ò¸ê±âÁØ
3 2023³â4¿ù17ÀÏ
¾Ð·ù
±¹OOOO
¼Ò¸ê
4 2024³â5¿ù7ÀÏ
¾Ð·ù
ÀÎOOOO
¼Ò¸ê
5 2024³â7¿ù31ÀÏ
ÀÓÂ÷±Ç¼³Á¤
¹ÚOO
188,000,000 ¼Ò¸ê
6 2024³â11¿ù8ÀÏ
°­Á¦°æ¸Å
¹ÚOO
¼Ò¸ê
7 2025³â3¿ù17ÀÏ
¾Ð·ù
ºÎOO
¼Ò¸ê
8 2026³â2¿ù12ÀÏ
¾Ð·ù
ºÎOO
¼Ò¸ê

ÀÓÂ÷ÀÎÇöȲ (¹è´ç¿ä±¸Á¾±âÀÏ: 2025-01-31)



¸Å°¢±âÀÏ 7ÀÏÀü¿¡ ¸Å°¢¹°°Ç¸í¼¼¼­°¡ °ø°íµÇ¿À´Ï È®ÀÎÇϽñ⠹ٶø´Ï´Ù.

ÀÓÂ÷ÀÎ ¿ëµµ/Á¡À¯ º¸Áõ±Ý/¿ù¼¼ ´ëÇ×·Â
ÀüÀÔÀÏ/È®Á¤ÀÏ ¹è´ç¿ä±¸ ºñ°í
¹ÚOO 1006È£ÀüºÎ 188,000,000
O
2021. 12. 22.
2021.12.07.
2024. 11. 28. 2021. 12. 22. ~2023. 12. 21.
ÁÖOOOOOOOOOOOOOOOO 1006È£ÀüºÎ 188,000,000
O
2021 .12. 22.
2021.12.07.
2021. 12. 22. ~2023. 12. 21.
ºñ°í
(¸Å°¢¹°°Ç
¸í¼¼¼­)
<ºñ°í> ¹Ú¼±¾Æ: ÁÖÅÃÀÓÂ÷±Çµî±â±ÇÀڷμ­ ÁÖÅÃÀÓÂ÷±Çµî±âÀÏÀº 2024. 7. 31.ÀÓ ÁÖÅõµ½Ãº¸Áõ°ø»ç(ÀÓÂ÷ÀÎ:¹Ú¼±¾Æ): ÀÓÂ÷ÀÎ ¹Ú¼±¾ÆÀÇ ÀÓÂ÷º¸Áõ±Ý¹Ýȯä±ÇÀÇ ¾ç¼öÀÎÀ¸·Î ¿ì¼±º¯Á¦±Ç ½Â°è

¿©ÀÇÁÖ°æ¸Å Á¶¾ð ÇÑ ¸¶µð

¸Å°¢¹°°Ç¸í¼¼ ºñ°í³­¿¡ ±âÀçµÈ ³»¿ëÀÔ´Ï´Ù.
<ºñ°í> ¹Ú¼±¾Æ: ÁÖÅÃÀÓÂ÷±Çµî±â±ÇÀڷμ­ ÁÖÅÃÀÓÂ÷±Çµî±âÀÏÀº 2024. 7. 31.ÀÓ ÁÖÅõµ½Ãº¸Áõ°ø»ç(ÀÓÂ÷ÀÎ:¹Ú¼±¾Æ): ÀÓÂ÷ÀÎ ¹Ú¼±¾ÆÀÇ ÀÓÂ÷º¸Áõ±Ý¹Ýȯä±ÇÀÇ ¾ç¼öÀÎÀ¸·Î ¿ì¼±º¯Á¦±Ç ½Â°è
³«Âû ÈÄ¿¡ µî±âºÎ»ó ¼Ò¸êµÇÁö ¾Ê´Â ±Ç¸®ÀÔ´Ï´Ù.
¸Å¼öÀο¡°Ô ´ëÇ×ÇÒ ¼ö ÀÖ´Â À»±¸ 5¹ø ÀÓÂ÷±Çµî±â°¡ ÀÖÀ¸¹Ç·Î ¹è´ç¿¡¼­ Àü¾× º¯Á¦µÇÁö ¾Æ´ÏÇϸé Àܾ×À» ¸Å¼öÀÎÀÌ ÀμöÇÔ.
¼±¼øÀ§ ÀÓÂ÷±Çµî±â°¡ µÇ¾î ÀÖ½À´Ï´Ù.
Á¦½Ã¿Ü ¹°°ÇÀÌ Æ÷ÇԵǾî ÀÖ½À´Ï´Ù.
°¨Á¤ ½ÃÁ¡ÀÌ ¿À·¡µÇ¾î °¡°Ýº¯µ¿ÀÌ ÀÖÀ» ¼ö ÀÖ½À´Ï´Ù.
ÀÌ ¹°°ÇÀº 2024³â 11¿ù 7ÀÏ¿¡ °æ¸Å°¡ °³½ÃµÇ¾ú´Âµ¥ Áö±Ý ½ÃÁ¡À¸·Î ¾à 519ÀÏÀÌ ÀÌ °æ°úµÇ¾ú½À´Ï´Ù. °¨Á¤°¡°ÝÀº 519ÀÏ Àü ½ÃÁ¡¿¡¼­ Æò°¡ÇÑ °¡°ÝÀ̹ǷΠ±× »çÀÌ °¡°Ýº¯µ¿ÀÌ ÀÖÀ» ¼ö ÀÖ½À´Ï´Ù. ƯÈ÷ °¡°Ý º¯µ¿ÀÌ ½ÉÇÑ ¾ÆÆÄÆ®´Â À¯ÀÇÇÏ¼Å¾ß ÇÕ´Ï´Ù. °¨Á¤°¡°ÝÀ» ³Ê¹« ¹ÏÁö ¸¶½Ã°í ÇöÀç ½Ç¸Å¹° °¡°Ý°ú ½Ç°Å·¡°¡¸¦ È®ÀÎÇϽñ⠹ٶø´Ï´Ù.
°£È¤ °¨Á¤°¡°Ýº¸´Ù ³ô°Ô ³«ÂûµÇ´Â °æ¿ì°¡ Àִµ¥ ´ëºÎºÐ ÀÌ·± ÀÌÀ¯ÀÔ´Ï´Ù.
¡Ø ¹°°Ç Ű¿öµå : »ó¾÷Áö¿ª/ÀϹݻó¾÷Áö¿ª/¹ö½ºÁ¤·ùÀå/Â÷·®Á¢±ÙÀÌ °¡´É/ö±ÙÄÜÅ©¸®Æ®Á¶
Àüü ÄÁ¼³ÆÃÀÌ ºÎ´ã½º·¯¿ì½Å°¡¿ä? ±Ç¸®ºÐ¼®¸¸ ÀÇ·ÚÇϼŵµ ±¦Âú½À´Ï´Ù!
½Ç¼Ó ÀÖ°Ô Çٽɸ¸ ´ãÀº ±Ç¸®ºÐ¼® ¼­ºñ½º!! (±Ç¸®ºÐ¼® + ½Ã¼¼Á¶»ç + ³«Âû°¡ »êÁ¤ + ÀÔÂûÇ¥ ÀÛ¼º¹æ¹ý ±îÁö)
ÃÖ´ë Àüü ÄÁ¼³ÆÃ ºñ¿ëÀÇ 10% ¼öÁØ !!

ÁÖÀÇ»çÇ× (ÃÖ¼±¼øÀ§ ¼³Á¤ÀÏ: 2022. 5. 25. ¾Ð·ù ¼³Á¤)

¸Å°¢À¸·Î ¼Ò¸êµÇÁö ¾Ê´Â µî±âºÎ±Ç¸®: ¸Å¼öÀο¡°Ô ´ëÇ×ÇÒ ¼ö ÀÖ´Â À»±¸ 5¹ø ÀÓÂ÷±Çµî±â°¡ ÀÖÀ¸¹Ç·Î ¹è´ç¿¡¼­ Àü¾× º¯Á¦µÇÁö ¾Æ´ÏÇϸé Àܾ×À» ¸Å¼öÀÎÀÌ ÀμöÇÔ.
¸Å°¢À¸·Î ¼³Á¤µÈ °ÍÀ¸·Î º¸´Â Áö»ó±Ç:
Á¦½Ã ¿Ü °Ç¹° ¸Å°¢¿¡ Æ÷ÇÔ ÁýÇÕ°ÇÃ๰´ëÀå»ó 'À§¹Ý°ÇÃ๰ Á¶¸³½Ä ÆÐ³ÎÁ¶ 11.2§³(¹«´ÜÁõÃà)' µîÀç, À§¹Ý°ÇÃâ¹°¿¡ ´ëÇÑ ½ÃÁ¤Á¶Ä¡(¿ø»óȸº¹ µî) ¹× °úÅÂ·á µî Ãß°¡ ºñ¿ë ¹ß»ý ¿©Áö ÀÖÀ½.
¡Ø¹Ì³³°ü¸®ºñ(°ø¿ë) Àμö¿©ºÎ¸¦ ÀÔÂû Àü¿¡ È®ÀÎÇϽñ⠹ٶø´Ï´Ù

 

Áö¿ªºÐ¼®

ÁöÇÏö¸í Á÷¼±°Å¸®

Çб³¸í ÀüÈ­¹øÈ£ ÁÖ¼Ò Á÷¼±°Å¸®

¹ý¿ø

ÀÎõÁö¹æ¹ý¿ø (222-20)ÀÎõ±¤¿ª½Ã ¹ÌÃßȦ±¸ ¼Ò¼º·Î 163¹ø±æ 17(ÇÐÀ͵¿)
´ëÇ¥ : 032)860-1113~4
°üÇÒÁö¿ª : Áß±¸, µ¿±¸, ³²±¸, ¿¬¼ö±¸, ³²µ¿±¸, ºÎÆò±¸, °è¾ç±¸, ¼­±¸, ¿ËÁø±º, °­È­±º

µî±â¼Ò ÀÎõÁö¹æ¹ý¿ø º»¿ø µî±â±¹ (´ëÇ¥:1544-0773, ÆÑ½º:(032)620-9099, ÀÎõ±¤¿ª½Ã ¹ÌÃßȦ±¸ °æ¿ø´ë·Î 881(Á־ȵ¿ 983))
¼¼¹«¼­ ºÏÀÎõ¼¼¹«¼­ (´ëÇ¥:032-540-62, ÆÑ½º:032-545-0411, ÀÎõ±¤¿ª½Ã °è¾ç±¸ È¿¼­·Î244(ÀÛÀüµ¿ 422-1) )

Àαٳ«ÂûÅë°è

±â°£ ¸Å°¢°Ç¼ö Æò±Õ°¨Á¤°¡
Æò±Õ¸Å°¢°¡
¸Å°¢°¡À²
Æò±ÕÀ¯Âû¼ö
3°³¿ù 6°Ç 126,833,333¿ø
81,378,200¿ø
65%
2.5ȸ
6°³¿ù 14°Ç 136,428,571¿ø
91,831,657¿ø
69%
2.4ȸ
12°³¿ù 31°Ç 140,580,645¿ø
96,927,462¿ø
70%
1.9ȸ


º» °æ¸ÅÁ¤º¸´Â ¹ý¿øÀÚ·á¿Í ÀÏÄ¡Çϵµ·Ï ÇÏ¿´À¸³ª ±Ç¸®»çÇ׺¯µ¿, ÀÔ·ÂÂø¿À µîÀÇ ¿øÀÎÀ¸·Î »ç½Ç°ú ´Ù¸¦ ¼ö ÀÖ½À´Ï´Ù. ÀÌ¿ë¾à°ü¿¡ ÀǰЏéÃ¥Á¶°ÇÀ¸·Î Á¦°øµÊÀ» ¾Ë¸®¸ç, °æ¸ÅÀÔÂû½Ã ¹Ýµå½Ã °ü·Ã °øºÎ¸¦ ÀçÈ®ÀÎÇϽñ⠹ٶø´Ï´Ù. º¸´Ù Æí¸®ÇÑ °æ¸ÅÁ¤º¸ Á¦°øÀ» À§ÇØ Áö¼ÓÀûÀ¸·Î °³¼±ÇϰڽÀ´Ï´Ù. ÀÌ¿ëÇØ Áּż­ °¨»çÇÕ´Ï´Ù.
°ü½É¹°°ÇÀ¸·Î µî·ÏÇÕ´Ï´Ù