51
¾ÆÆÄÆ®
¼ö¿øÁö¹æ¹ý¿ø
 °¨Á¤°¡513,000,000 ¿ø
 ÃÖÀú°¡(100%) 513,000,000 ¿ø
 º¸Áõ±Ý(10%) 51,300,000 ¿ø
 Ã»±¸¾×415,496,300 ¿ø
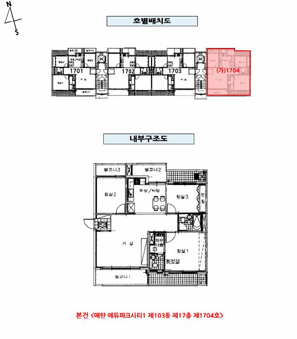
°æ±âµµ ¼ö¿ø½Ã ¿µÅ뱸 ¸Åźµ¿ 1258 ¸Åź ¿¡µàÆÄÅ©½ÃƼ1 103µ¿ 17Ãþ1704È£
»ç°Ç¹øÈ£ 2025Ÿ°æ1574
°æ¸ÅÁ¾·ùºÎµ¿»ê°­Á¦°æ¸Å
¸Å°¢´ë»óÅäÁö ¹× °Ç¹°Àϰý ¸Å°¢
¸Å°¢±âÀÏ    2026.03.25(¼ö) 10:00 ÀÔÂû 9ÀÏÀü    
ÅäÁö¸éÀû50.33§³(15.22 Æò)
°Ç¹°¸éÀû84.51§³(25.56 Æò)
乫/¼ÒÀ¯ÀÚ°­OO / °­OO
ä±ÇÀÚ¹ÚOO¿Ü 2¸í
±è¼ºÈÆ ´ëÇ¥ÀÌ»ç
°øÀÎÁß°³»ç, ºÎµ¿»ê°ø°æ¸Å»ç, ÇѾç´ëÇб³ Á¹¾÷
Àü) ÅÂÀÎÄÁ¼³ÆÃ(ÁÖ) ´ëÇ¥ÀÌ»ç
Àü) ¿©ÀÇÁֺε¿»êÁß°³¹ýÀÎ(ÁÖ) ´ëÇ¥ÀÌ»ç
Çö) ¿©ÀÇÁÖ°æ¸Å¹ýÀÎ ´ëÇ¥ÀÌ»ç
010-2371-3237
ÆäÀ̽ººÏ Æ®À§ÅÍ ±¸±Û+
īī¿À½ºÅ丮
īī¿ÀÅå sms¹®ÀÚº¸³»±â
 

±âÀϳ»¿ª

°æ°ú ³¯Â¥ Àú°¨ ÃÖÀú°¡ °á°ú
Á¢¼öÀÏ 2025-08-13 °æ¸ÅÁ¢¼ö
~1ÀÏ 
2025-08-14 °æ¸Å°³½Ã°áÁ¤
~76ÀÏ 
2025-10-28 ¹è´ç¿ä±¸Á¾±âÀÏ
~224ÀÏ 
2026-03-25 100%
513,000,000
ÁøÇà
¹°°Ç¸í¼¼¼­ ÇöȲÁ¶»ç¼­ ¹®°ÇÁ¢¼ö ¼Û´Þ³»¿ª

°¨Á¤Æò°¡ÇöȲ

¸ñ·Ï ÁÖ¼Ò ±¸Á¶/¿ëµµ/´ëÁö±Ç ¸éÀû ºñ°í
´ëÁö±Ç
¸Åźµ¿ 1258 33565.8ºÐÀÇ 50.33 50.33 §³
(15.22Æò)
°Ç¹°
¸Åźµ¿ 1258 103µ¿ 17Ãþ1704È£ ö±ÙÄÜÅ©¸®Æ®Á¶ 84.51 §³
(25.56Æò)
1) À§Ä¡/µµ½ÃÁö¿ª/Á¦3Á¾ÀϹÝÁÖ°ÅÁö¿ª/Áö±¸´ÜÀ§°èȹ±¸¿ª/³ë¼±¹ö½ºÁ¤·ùÀå/ÁöÇÏÁÖÂ÷Àå/ö±ÙÄÜÅ©¸®Æ®Á¶/°æ»çÁöºØ/ö°ñÁ¶ ´õº¸±â
°¨Á¤Æò°¡ ¿äÇ×Ç¥
1)À§Ä¡ ¹× ÁÖÀ§È¯°æ
º»°ÇÀº °æ±âµµ ¼ö¿ø½Ã ¿µÅ뱸 ¸Åźµ¿ ¼ÒÀç '¸Åź°íµîÇб³' ³²Ãø Àαٿ¡ À§Ä¡Çϸç, ÁÖÀ§´Â ¾ÆÆÄÆ®´ÜÁö, °¢Á¾ ±Ù¸°»ýȰ½Ã¼³, Çб³, °ü°ø¼­ µîÀÌ È¥ÀçÇÏ´Â Áö´ë·Î¼­, Á¦¹Ý ÁÖÀ§È¯°æÀº ¾çÈ£ÇÔ.
2)±³Åë»óȲ
º»°ÇÀÌ ¼ÓÇÏ´Â ¾ÆÆÄÆ®´ÜÁö±îÁö Â÷·®Á¢±ÙÀÌ ¿ëÀÌÇϰí, Àαٿ¡ ³ë¼±¹ö½ºÁ¤·ùÀåÀÌ ¼ÒÀçÇÏ´Â µî Á¦¹Ý ±³Åë»óȲÀº ¹«³­ÇÔ.
3)°Ç¹°ÀÇ ±¸Á¶
ö±ÙÄÜÅ©¸®Æ®Á¶ ö°ñÁ¶ °æ»çÁöºØ 18Ãþ °Ç¹° ³» Á¦17Ãþ Á¦1704È£·Î¼­,

¿Üº®: ¸ôÅ»À§ ÆäÀÎÆÃ ¸¶°¨ µî,
âȣ: ÇÏÀÌ»õ½Ã ¸¶°¨ µî ÀÓ.
4)ÀÌ¿ë»óÅÂ
¾ÆÆÄÆ®·Î ÀÌ¿ëÁßÀÓ.
(ÈÄ÷ '³»ºÎ±¸Á¶µµ' ÂüÁ¶)
5)¼³ºñ³»¿ª
±âº»ÀûÀÎ À§»ý ¹× ±Þ¹è¼ö¼³ºñ, ³­¹æ¼³ºñ, ½Â°­±â¼³ºñ, ¼ÒÈ­Àü¼³ºñ, ÁöÇÏÁÖÂ÷Àå ½Ã¼³ µîÀ» °®Ãß°í ÀÖÀ½.
6)ÅäÁöÀÇ Çü»ó ¹× ÀÌ¿ë»óÅÂ
´ëü·Î ¼¼ÀåÇü¿¡ °¡±î¿î ÅäÁö·Î¼­, ¾ÆÆÄÆ®´ÜÁö ºÎÁö·Î ÀÌ¿ëÁßÀÓ.
7)ÀÎÁ¢ µµ·Î»óŵî
¾ÆÆÄÆ®´ÜÁö ³» µµ·Î¸¦ ÅëÇØ ¾ÆÆÄÆ®´ÜÁö ¿Ü°ûÀÇ ¸Åź·Î, È¿¿ø·Î µî°ú ¿¬°èµÊ.
8)ÅäÁöÀÌ¿ë°èȹ ¹× Á¦ÇÑ»óÅÂ
µµ½ÃÁö¿ª, Á¦3Á¾ÀϹÝÁÖ°ÅÁö¿ª, Áö±¸´ÜÀ§°èȹ±¸¿ª(¸Åź4Áö±¸), ¼Ò·Î1·ù(Æø 10m~12m)(º¸ÇàÀÚÀü¿ëµµ·Î,ÀÚÀü°ÅÀü¿ëµµ·Î)(Á¢ÇÕ), ¼Ò·Î2·ù(Æø 8m~10m)(º¸ÇàÀÚÀü¿ëµµ·Î,ÀÚÀü°ÅÀü¿ëµµ·Î)(Á¢ÇÕ), Áß·Î1·ù(Æø 20m~25m)(Á¢ÇÕ), °¡Ãà»çÀ°Á¦Çѱ¸¿ª<°¡ÃàºÐ´¢ÀÇ °ü¸® ¹× À̿뿡 °üÇÑ ¹ý·ü>, »ó´ëº¸È£±¸¿ª(¸Åź°íµîÇб³(¼ö¿ø±³À°Áö¿øÃ»¹®ÀÇ))<±³À°È¯°æ º¸È£¿¡ °üÇÑ ¹ý·ü>, »ó´ëº¸È£±¸¿ª(¸ÅźÃʵîÇб³(¼ö¿ø±³À°Áö¿øÃ»¹®ÀÇ))<±³À°È¯°æ º¸È£¿¡ °üÇÑ ¹ý·ü>, »ó´ëº¸È£±¸¿ª(È¿µ¿ÃʵîÇб³(¼ö¿ø±³À°Áö¿øÃ»¹®ÀÇ))<±³À°È¯°æ º¸È£¿¡ °üÇÑ ¹ý·ü>, Àý´ëº¸È£±¸¿ª(¸Åź°íµîÇб³(¼ö¿ø±³À°Áö¿øÃ»¹®ÀÇ))<±³À°È¯°æ º¸È£¿¡ °üÇÑ ¹ý·ü>, Àý´ëº¸È£±¸¿ª(È¿µ¿ÃʵîÇб³(¼ö¿ø±³À°Áö¿øÃ»¹®ÀÇ))<±³À°È¯°æ º¸È£¿¡ °üÇÑ ¹ý·ü>, ºñÇà¾ÈÀüÁ¦6±¸¿ª(Àü¼ú)<±º»ç±âÁö ¹× ±º»ç½Ã¼³ º¸È£¹ý>, µµ½Ã±³ÅëÁ¤ºñÁö¿ª<µµ½Ã±³ÅëÁ¤ºñÃËÁø¹ý>, °ú¹Ð¾ïÁ¦±Ç¿ª<¼öµµ±ÇÁ¤ºñ°èȹ¹ý> ÀÓ.
9)°øºÎ¿ÍÀÇ Â÷ÀÌ
ÇØ´ç»çÇ× ¾øÀ½.
10)±âŸÂü°í»çÇ×(ÀÓ´ë°ü·Ê ¹× ±âŸ)
ÀÓ´ë°ü°è: ¹Ì»óÀÓ.
±âŸ: º»°Ç ¾ÆÆÄÆ®´ÜÁö´Â ¿µÅ뱸 °ÇÃà°ú-20950 (2024.11.04.)È£ °ü·Ã 'ÁÖ°ø±×¸°ºô¡¯¿¡¼­ '¸Åź ¿¡µàÆÄÅ©½ÃƼ1¡¯ ·Î ¸íĪÀÌ º¯°æµÇ¾ú´Â ¹Ù, °æ¸Å ÁøÇà½Ã Âü°í ¹Ù¶÷.

Âü°í
»çÇ×
º»°Ç ¾ÆÆÄÆ® ´ÜÁö ¸íĪÀÌ 'ÁÖ°ø±×¸°ºô'¿¡¼­ '¸Åź ¿¡µàÆÄÅ©½ÃƼ1' ·Î º¯°æµÇ¾úÀ½
º»°Ç ºÎµ¿»êÀÇ ÇöȲÀº ¿Ü

°ÇÃ๰ÇöȲ

¼ÒÀçÁö °æ±âµµ ¼ö¿ø½Ã ¿µÅ뱸 ¸Åźµ¿ 1258¹øÁö
´ëÁö¸éÀû   ¿¬¸éÀû 7702.01§³
(2333.94Æò)
°ÇÃà¸éÀû 570.5§³
(172.88Æò)
¿ëÀû·ü»êÁ¤
¿¬¸éÀû
7659.19§³
(2320.97Æò)
°ÇÆóÀ²   ¿ëÀû·ü  
Áö»óÃþ¼ö 18Ãþ ÁöÇÏÃþ¼ö 1Ãþ
ÁÖ¿ëµµ °øµ¿ÁÖÅà ±¸Á¶ ö±ÙÄÜÅ©¸®Æ®±¸Á¶
Âø°øÀÏÀÚ 1999.10.15 »ç¿ë½ÂÀÎÀÏÀÚ 2002.01.19
°ÇÃ๰Ãþº°ÇöȲ [º¸±â]


µî±âºÎµîº» ¿ä¾à(°Ç¹°)

  Á¢¼öÀÏÀÚ µî±â¸ñÀû/±Ç¸®ÀÚ ±Ç¸®±Ý¾× ±âÁØ
1 2021³â2¿ù15ÀÏ
¼ÒÀ¯±Ç
°­OO
¼Ò¸ê
2 2022³â8¿ù19ÀÏ
±ÙÀú´ç±Ç
°­OO
100,000,000 ¼Ò¸ê±âÁØ
3 2024³â3¿ù29ÀÏ
°¡¾Ð·ù
¼­OOOO
100,000,000 ¼Ò¸ê
4 2025³â5¿ù8ÀÏ
ÀÓÂ÷±Ç¼³Á¤
¸ÁOOOO
415,000,000 ¼Ò¸ê
5 2025³â8¿ù18ÀÏ
°­Á¦°æ¸Å
¹ÚOOOO
¼Ò¸ê
6 2026³â1¿ù2ÀÏ
¾Ð·ù
¼öOO
¼Ò¸ê

ÀÓÂ÷ÀÎÇöȲ (¹è´ç¿ä±¸Á¾±âÀÏ: 2025-10-28)



¸Å°¢±âÀÏ 7ÀÏÀü¿¡ ¸Å°¢¹°°Ç¸í¼¼¼­°¡ °ø°íµÇ¿À´Ï È®ÀÎÇϽñ⠹ٶø´Ï´Ù.

ÀÓÂ÷ÀÎ ¿ëµµ/Á¡À¯ º¸Áõ±Ý/¿ù¼¼ ´ëÇ×·Â
ÀüÀÔÀÏ/È®Á¤ÀÏ ¹è´ç¿ä±¸ ºñ°í
¸ÁOOOOOOOOOO 1704È£ 415,000,000
O
2021.02.15
2020.12.17
2021.02.15
¸ÁOOOOOOOOOO 1704È£ 415,000,000
O
2021.02.15
2020.12.17
2021.02.15
¸ÁOOOOOOOOOO 1704È£ 415,000,000
O
2021.02.15
2020.12.17
2021.02.15
¹ÚOO
O
2021.02.15.

¾ÆÆÄÆ® Á¤º¸ ÁÖ°ø±×¸°ºô1´ÜÁö

ÁÖ¼Ò °æ±â ¼ö¿ø½Ã ¿µÅ뱸 ¸Åźµ¿ 1258
½Ã°ø»ç ´ëÇÑÁÖÅðø»ç ´ÜÁö±Ô¸ð 6°³µ¿ 659°¡±¸(9°³µ¿)¼¼´ë
³­¹æ Áö¿ª/¿­º´ÇÕ »ç¿ë½ÂÀÎ 2002-01
°ü¸®¼Ò 031)215-0178
Àü¿ë¸éÀû 84~84 ¼¼´ë¼ö 659°¡±¸(9°³µ¿)
´ëÁö±Ç
Çö°ü/±¸Á¶ °è´Ü½Ä / ¹æ, ¿å½Ç
  • Çб³ È¿µ¿,¸Åź,¸Åź,È¿¿ø,
  • ÁÖº¯½Ã¼³ »ïÀδçÇÑÀÇ¿ø, ¿µÅ뱸û, È¿¿ø°ø¿ø, ¹®È­¿¹¼úȸ°ü
  • ´ëÁß±³Åë °æºÎ°í¼Óµµ·Î,1¹ø±¹µµ,42¹ø±¹µµ ÀÎÁ¢

¿©ÀÇÁÖ°æ¸Å Á¶¾ð ÇÑ ¸¶µð

³«Âû ÈÄ¿¡ µî±âºÎ»ó ¼Ò¸êµÇÁö ¾Ê´Â ±Ç¸®´Â ¾ø½À´Ï´Ù.
´ë·«ÀûÀÎ °ËÅäÀǰßÀ̹ǷΠÀÔÂûÀü¿¡ Àü¹®°¡ÀÇ Á¶¾ðÀ» Âü°íÇØ º¸½Ã±æ ±ÇÇØµå¸³´Ï´Ù.
´Ù¼öÀÇ ÀÓÂ÷ÀÎÀÌ Á¶»ç, ½Å°íµÇ¾î ÀÖ½À´Ï´Ù.
¸Å°¢¹°°Ç¸í¼¼¼­ ¹× ÇöȲÁ¶»ç¼­¿¡ 4¸íÀÇ ÀÓÂ÷ÀÎÀÌ ³ªÅ¸³ª ÀÖ½À´Ï´Ù. ÀÓÂ÷ÀÎÀÌ ¸¹Àº °æ¿ì ¸íµµ¿¡ ¾î·Á¿òÀÌ ÀÖÀ¸´Ï Àü¹®°¡¿Í ÇùÀÇÇÏ¿© ÁøÇàÇÏ½Ã±æ ±ÇÇØ µå¸³´Ï´Ù.
ü³³°ü¸®ºñ¸¦ ºÎ´ãÇÒ ¼ö ÀÖ½À´Ï´Ù.
¡Ø ¹°°Ç Ű¿öµå : µµ½ÃÁö¿ª/ÁÖ°ÅÁö¿ª/Á¦3Á¾ÀϹÝÁÖ°ÅÁö¿ª/Áö±¸´ÜÀ§°èȹ±¸¿ª/¹ö½ºÁ¤·ùÀå/ÁÖÂ÷Àå/³ë¼±¹ö½ºÁ¤·ùÀå/ÁöÇÏÁÖÂ÷Àå/ö±ÙÄÜÅ©¸®Æ®Á¶/°æ»çÁöºØ/ö°ñÁ¶
Àüü ÄÁ¼³ÆÃÀÌ ºÎ´ã½º·¯¿ì½Å°¡¿ä? ±Ç¸®ºÐ¼®¸¸ ÀÇ·ÚÇϼŵµ ±¦Âú½À´Ï´Ù!
½Ç¼Ó ÀÖ°Ô Çٽɸ¸ ´ãÀº ±Ç¸®ºÐ¼® ¼­ºñ½º!! (±Ç¸®ºÐ¼® + ½Ã¼¼Á¶»ç + ³«Âû°¡ »êÁ¤ + ÀÔÂûÇ¥ ÀÛ¼º¹æ¹ý ±îÁö)
ÃÖ´ë Àüü ÄÁ¼³ÆÃ ºñ¿ëÀÇ 10% ¼öÁØ !!

ÁÖÀÇ»çÇ× (ÃÖ¼±¼øÀ§ ¼³Á¤ÀÏ: 2022.8.19.±ÙÀú´ç±Ç ¼³Á¤)

¸Å°¢À¸·Î ¼Ò¸êµÇÁö ¾Ê´Â µî±âºÎ±Ç¸®:
¸Å°¢À¸·Î ¼³Á¤µÈ °ÍÀ¸·Î º¸´Â Áö»ó±Ç:
º»°Ç ¾ÆÆÄÆ® ´ÜÁö ¸íĪÀÌ 'ÁÖ°ø±×¸°ºô'¿¡¼­ '¸Åź ¿¡µàÆÄÅ©½ÃƼ1' ·Î º¯°æµÇ¾úÀ½
¡Ø¹Ì³³°ü¸®ºñ(°ø¿ë) Àμö¿©ºÎ¸¦ ÀÔÂû Àü¿¡ È®ÀÎÇϽñ⠹ٶø´Ï´Ù

 

Áö¿ªºÐ¼®

ÁöÇÏö¸í Á÷¼±°Å¸®

Çб³¸í ÀüÈ­¹øÈ£ ÁÖ¼Ò Á÷¼±°Å¸®

¹ý¿ø

¼ö¿øÁö¹æ¹ý¿ø (165-12)°æ±âµµ ¼ö¿ø½Ã ¿µÅ뱸 ¹ýÁ¶·Î 105, Çϵ¿, ¼ö¿ø¹ý¿øÁ¾ÇÕû»ç
´ëÇ¥ : 031)210-1114, ¾ß°£ : 031)210-1111
°üÇÒÁö¿ª : ¼ö¿ø½Ã, ¿À»ê½Ã, È­¼º½Ã, ¿ëÀνÃ

µî±â¼Ò ¼ö¿øÁö¹æ¹ý¿ø º»¿ø µ¿¼ö¿øµî±â¼Ò (´ëÇ¥:1544-0773, ÆÑ½º:(031)206-1934, 204-4677, °æ±âµµ ¼ö¿ø½Ã ¿µÅ뱸 û¸í·Î 127 (¿µÅ뵿 961-16))
¼¼¹«¼­ µ¿¼ö¿ø¼¼¹«¼­ (´ëÇ¥:031-695-42, ÆÑ½º:031-273-2416, °æ±âµµ ¼ö¿ø½Ã ¿µÅ뱸 û¸í³²·Î 13 (¿µÅ뵿))

Àαٳ«ÂûÅë°è

±â°£ ¸Å°¢°Ç¼ö Æò±Õ°¨Á¤°¡
Æò±Õ¸Å°¢°¡
¸Å°¢°¡À²
Æò±ÕÀ¯Âû¼ö


º» °æ¸ÅÁ¤º¸´Â ¹ý¿øÀÚ·á¿Í ÀÏÄ¡Çϵµ·Ï ÇÏ¿´À¸³ª ±Ç¸®»çÇ׺¯µ¿, ÀÔ·ÂÂø¿À µîÀÇ ¿øÀÎÀ¸·Î »ç½Ç°ú ´Ù¸¦ ¼ö ÀÖ½À´Ï´Ù. ÀÌ¿ë¾à°ü¿¡ ÀǰЏéÃ¥Á¶°ÇÀ¸·Î Á¦°øµÊÀ» ¾Ë¸®¸ç, °æ¸ÅÀÔÂû½Ã ¹Ýµå½Ã °ü·Ã °øºÎ¸¦ ÀçÈ®ÀÎÇϽñ⠹ٶø´Ï´Ù. º¸´Ù Æí¸®ÇÑ °æ¸ÅÁ¤º¸ Á¦°øÀ» À§ÇØ Áö¼ÓÀûÀ¸·Î °³¼±ÇϰڽÀ´Ï´Ù. ÀÌ¿ëÇØ Áּż­ °¨»çÇÕ´Ï´Ù.
°ü½É¹°°ÇÀ¸·Î µî·ÏÇÕ´Ï´Ù