253
¾ÆÆÄÆ®
ÀÇÁ¤ºÎÁö¹æ¹ý¿ø °í¾çÁö¿ø
 °¨Á¤°¡135,000,000 ¿ø
 ÃÖÀú°¡(49%) 66,150,000 ¿ø
 º¸Áõ±Ý(10%) 6,615,000 ¿ø
 Ã»±¸¾×175,367,168 ¿ø
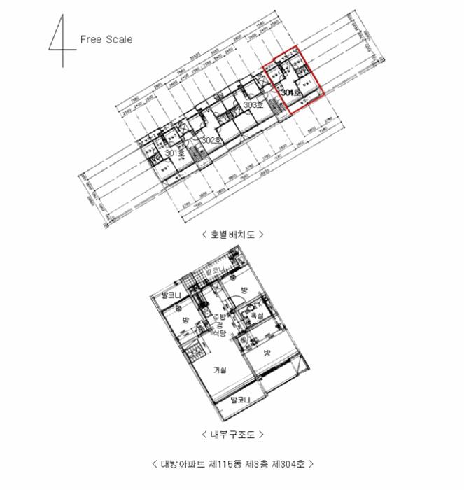
°æ±âµµ ÆÄÁֽà ¾ßµ¿µ¿ 586 ´ë¹æ¾ÆÆÄÆ® 115µ¿ 3Ãþ304È£
»ç°Ç¹øÈ£ 2025Ÿ°æ64622
°æ¸ÅÁ¾·ùºÎµ¿»ê°­Á¦°æ¸Å
¸Å°¢´ë»óÅäÁö ¹× °Ç¹°Àϰý ¸Å°¢
¸Å°¢±âÀÏ    2026.06.02(È­) 10:00 ÀÔÂû 8ÀÏÀü    
ÅäÁö¸éÀû36.99§³(11.19 Æò)
°Ç¹°¸éÀû59.73§³(18.07 Æò)
乫/¼ÒÀ¯ÀÚÀÌOO / ÀÌOO
ä±ÇÀÚÇÑOOOOOOO
±è¼ºÈÆ ´ëÇ¥ÀÌ»ç
°øÀÎÁß°³»ç, ºÎµ¿»ê°ø°æ¸Å»ç, ÇѾç´ëÇб³ Á¹¾÷
Àü) ÅÂÀÎÄÁ¼³ÆÃ(ÁÖ) ´ëÇ¥ÀÌ»ç
Àü) ¿©ÀÇÁֺε¿»êÁß°³¹ýÀÎ(ÁÖ) ´ëÇ¥ÀÌ»ç
Çö) ¿©ÀÇÁÖ°æ¸Å¹ýÀÎ ´ëÇ¥ÀÌ»ç
010-2371-3237
ÆäÀ̽ººÏ Æ®À§ÅÍ ±¸±Û+
īī¿À½ºÅ丮
īī¿ÀÅå sms¹®ÀÚº¸³»±â
 

±âÀϳ»¿ª

°æ°ú ³¯Â¥ Àú°¨ ÃÖÀú°¡ °á°ú
Á¢¼öÀÏ 2025-10-30 °æ¸ÅÁ¢¼ö
~1ÀÏ 
2025-10-31 °æ¸Å°³½Ã°áÁ¤
~88ÀÏ 
2026-01-26 ¹è´ç¿ä±¸Á¾±âÀÏ
~145ÀÏ 
2026-03-24 100%
135,000,000
À¯Âû
~180ÀÏ 
2026-04-28 70%
94,500,000
À¯Âû
~215ÀÏ 
2026-06-02 49%
66,150,000
ÁøÇà
¹°°Ç¸í¼¼¼­ ÇöȲÁ¶»ç¼­ ¹®°ÇÁ¢¼ö ¼Û´Þ³»¿ª

°¨Á¤Æò°¡ÇöȲ

¸ñ·Ï ÁÖ¼Ò ±¸Á¶/¿ëµµ/´ëÁö±Ç ¸éÀû ºñ°í
´ëÁö±Ç
¾ßµ¿µ¿ 586 40300ºÐÀÇ 36.9852 36.9852 §³
(11.19Æò)
°Ç¹°
¾ßµ¿µ¿ 586 115µ¿ 3Ãþ304È£ ö±ÙÄÜÅ©¸®Æ®Á¶ 59.730 §³
(18.07Æò)
1) À§Ä¡/°èȹ°ü¸®Áö¿ª/Á¦2Á¾Áö±¸´ÜÀ§°èȹ±¸¿ª/ÅäÁö°Å·¡°è¾à¿¡°üÇÑÇã°¡±¸¿ª/Â÷·®Á¢±ÙÀÌ °¡´É/³ë¼±¹ö½ºÁ¤·ùÀå/ö±ÙÄÜÅ©¸®Æ®Á¶/°æ»çÁöºØ ´õº¸±â
°¨Á¤Æò°¡ ¿äÇ×Ç¥
1)À§Ä¡ ¹× ÁÖÀ§È¯°æ
º»°ÇÀº °æ±âµµ ÆÄÁֽà ¾ßµ¿µ¿ ¼ÒÀç '¹®»êÁ¦ÀϰíµîÇб³' ºÏ¼­Ãø ±Ù°Å¸®¿¡ À§Ä¡ÇÏ´Â ºÎµ¿»êÀ¸·Î ÁÖº¯Àº ¾ÆÆÄÆ®´ÜÁö ¹× ´Ù¼¼´ëÁÖÅÃ, ±Ù¸°»ýȰ½Ã¼³, ³ó°æÁö µîÀÌ ¼ÒÀçÇÏ´Â Áö¿ªÀ¸·Î¼­, Á¦¹Ý ÀÔÁö¿©°ÇÀº ´ëü·Î º¸Åë½ÃµË´Ï´Ù.
2)±³Åë»óȲ
º»°Ç±îÁö Â÷·®Á¢±ÙÀÌ °¡´ÉÇϸç, Àαٿ¡ ³ë¼±¹ö½ºÁ¤·ùÀåÀÌ ¼ÒÀçÇÏ´Â µî ´ëÁß±³Åë¼ö´ÜÀÌ¿ëÀº º¸ÅëÀÔ´Ï´Ù.
3)°Ç¹°ÀÇ ±¸Á¶
ö±ÙÄÜÅ©¸®Æ®Á¶ °æ»çÁöºØ 15Ãþ °Ç¹° ³» Á¦3Ãþ Á¦304È£·Î¼­, ¿Üº® : ¸ôÅ» À§ ÆäÀÎÆÃ ¸¶°¨ µî ³»º® : º®Áöµµ¹è ¹× ÀϺΠŸÀÏ ¸¶°¨ µî âȣ : ¼¦½Ã âȣ ¸¶°¨ µîÀ¸·Î °ü¸®»óÅ´ ´ëü·Î ¹«³­½ÃµË´Ï´Ù.
4)ÀÌ¿ë»óÅÂ
¾ÆÆÄÆ®·Î ÀÌ¿ë ÁßÀÔ´Ï´Ù.(ÈÄ÷ ³»ºÎ±¸Á¶µµ ÂüÁ¶)
5)¼³ºñ³»¿ª
À§»ý ¹× ±Þ¹è¼ö½Ã¼³, ½Â°­±â¼³ºñ, ÁÖÂ÷¼³ºñ, ¼ÒÈ­Àü ¹× È­ÀçŽÁö¼³ºñ µîÀÌ ±¸ºñµÇ¾î ÀÖ½À´Ï´Ù.
6)ÅäÁöÀÇ Çü»ó ¹× ÀÌ¿ë»óÅÂ
ÀÎÁ¢Áö ´ëºñ ¿Ï°æ»çÁö¸¦ µî°íÆòźÇÏ°Ô ºÎÁöÁ¶¼ºÇÑ 2ÇÊ ÀÏ´ÜÀÇ ºÎÁ¤Çü ÅäÁö·Î¼­, ¾ÆÆÄÆ® °ÇºÎÁö·Î ÀÌ¿ëÁßÀÔ´Ï´Ù.
7)ÀÎÁ¢ µµ·Î»óŵî
º»°Ç ³²µ¿ÃøÀ¸·Î ³ëÆø ¾à 20¹ÌÅÍ ³»¿Ü ¾Æ½ºÆÈÆ® Æ÷Àåµµ·Î¸¦ ÅëÇÏ¿© ÃâÀÔÇϰí ÀÖ½À´Ï´Ù.
8)ÅäÁöÀÌ¿ë°èȹ ¹× Á¦ÇÑ»óÅÂ
°èȹ°ü¸®Áö¿ª , °³¹ßÁøÈïÁö±¸ , Á¦2Á¾Áö±¸´ÜÀ§°èȹ±¸¿ª, °¡Ãà»çÀ°Á¦Çѱ¸¿ª(ÀüºÎÁ¦Çѱ¸¿ª)<°¡ÃàºÐ´¢ÀÇ °ü¸® ¹× À̿뿡 °üÇÑ ¹ý·ü>, ÅäÁö°Å·¡°è¾à¿¡°üÇÑÇã°¡±¸¿ª(25.8.26.~26.8.25. ¿Ü±¹ÀÎ µîÀÇ ´Üµ¶ÁÖÅÃ, ´Ù°¡±¸ÁÖÅÃ, ¾ÆÆÄÆ®, ¿¬¸³ÁÖÅÃ, ´Ù¼¼´ëÁÖÅÃ)
9)°øºÎ¿ÍÀÇ Â÷ÀÌ
-
10)±âŸÂü°í»çÇ×(ÀÓ´ë°ü·Ê ¹× ±âŸ)
1) ÀÓ´ë°ü°è : ¹Ì»óÀÔ´Ï´Ù. 2) ±â Ÿ : -
Âü°í
»çÇ×

-ö±ÙÄÜÅ©¸®Æ®Á¶ °æ»çÁöºØ 15Ãþ ¾ÆÆÄÆ®


µî±âºÎµîº» ¿ä¾à(°Ç¹°)

  Á¢¼öÀÏÀÚ µî±â¸ñÀû/±Ç¸®ÀÚ ±Ç¸®±Ý¾× ±âÁØ
1 2015³â7¿ù27ÀÏ
¼ÒÀ¯±Ç
ÀÌOO
¼Ò¸ê
2 2025³â5¿ù12ÀÏ
ÀÓÂ÷±Ç¼³Á¤
Â÷OO
170,000,000 Àμö
3 2025³â10¿ù31ÀÏ
°­Á¦°æ¸Å
ÇÑOOOO
¼Ò¸ê±âÁØ

ÀÓÂ÷ÀÎÇöȲ (¹è´ç¿ä±¸Á¾±âÀÏ: 2026-01-26)

ÀÓÂ÷ÀÎ ¿ëµµ/Á¡À¯ º¸Áõ±Ý/¿ù¼¼ ´ëÇ×·Â
ÀüÀÔÀÏ/È®Á¤ÀÏ ¹è´ç¿ä±¸ ºñ°í
Â÷OO ÀüºÎ 170,000,000
O
2022.09.19
2022.06.14
2022.09.19~
ÇÑOOOOOOO ÀüºÎ 170,000,000
O
2022.09.19
2022.06.14
2026.1.26. 2022.09.19~
ºñ°í
(¸Å°¢¹°°Ç
¸í¼¼¼­)
Çѱ¹ÁÖÅñÝÀ¶°ø»ç:ÀÓÂ÷±ÇÀÚ Â÷Çö¼®ÀÇ ´ëÀ§º¯Á¦ÀÚÀÓ.

¿©ÀÇÁÖ°æ¸Å Á¶¾ð ÇÑ ¸¶µð

¸Å°¢¹°°Ç¸í¼¼ ºñ°í³­¿¡ ±âÀçµÈ ³»¿ëÀÔ´Ï´Ù.
Çѱ¹ÁÖÅñÝÀ¶°ø»ç:ÀÓÂ÷±ÇÀÚ Â÷Çö¼®ÀÇ ´ëÀ§º¯Á¦ÀÚÀÓ.
³«Âû ÈÄ¿¡ µî±âºÎ»ó ¼Ò¸êµÇÁö ¾Ê´Â ±Ç¸®ÀÔ´Ï´Ù.
¸Å¼öÀο¡°Ô ´ëÇ×ÇÒ ¼ö ÀÖ´Â À»±¸ 15¹ø ÀÓÂ÷±Çµî±â(ÀÓ´ëÂ÷º¸Áõ±Ý 170,000,000¿ø, ÀüÀÔÀÏÀÚ 2022. 9. 19. È®Á¤ÀÏÀÚ 2022. 6. 14.)°¡ ÀÖÀ¸¹Ç·Î ¹è´ç¿¡¼­ Àü¾× º¯Á¦µÇÁö ¾Æ´ÏÇϸé Àܾ×Àº ¸Å¼öÀο¡°Ô ÀμöµÉ ¼ö ÀÖÀ½.
¼±¼øÀ§ ÀÓÂ÷±Çµî±â°¡ µÇ¾î ÀÖ½À´Ï´Ù.
ü³³°ü¸®ºñ¸¦ ºÎ´ãÇÒ ¼ö ÀÖ½À´Ï´Ù.
¡Ø ¹°°Ç Ű¿öµå : °ü¸®Áö¿ª/°èȹ°ü¸®Áö¿ª/Áö±¸´ÜÀ§°èȹ±¸¿ª/Á¦2Á¾Áö±¸´ÜÀ§°èȹ±¸¿ª/ÅäÁö°Å·¡°è¾à¿¡°üÇÑÇã°¡±¸¿ª/¹ö½ºÁ¤·ùÀå/Â÷·®Á¢±ÙÀÌ °¡´É/³ë¼±¹ö½ºÁ¤·ùÀå/ö±ÙÄÜÅ©¸®Æ®Á¶/°æ»çÁöºØ
Àüü ÄÁ¼³ÆÃÀÌ ºÎ´ã½º·¯¿ì½Å°¡¿ä? ±Ç¸®ºÐ¼®¸¸ ÀÇ·ÚÇϼŵµ ±¦Âú½À´Ï´Ù!
½Ç¼Ó ÀÖ°Ô Çٽɸ¸ ´ãÀº ±Ç¸®ºÐ¼® ¼­ºñ½º!! (±Ç¸®ºÐ¼® + ½Ã¼¼Á¶»ç + ³«Âû°¡ »êÁ¤ + ÀÔÂûÇ¥ ÀÛ¼º¹æ¹ý ±îÁö)
ÃÖ´ë Àüü ÄÁ¼³ÆÃ ºñ¿ëÀÇ 10% ¼öÁØ !!

ÁÖÀÇ»çÇ× (ÃÖ¼±¼øÀ§ ¼³Á¤ÀÏ: 2025.10.31. °æ¸Å°³½Ã°áÁ¤ ¼³Á¤)

¸Å°¢À¸·Î ¼Ò¸êµÇÁö ¾Ê´Â µî±âºÎ±Ç¸®: ¸Å¼öÀο¡°Ô ´ëÇ×ÇÒ ¼ö ÀÖ´Â À»±¸ 15¹ø ÀÓÂ÷±Çµî±â(ÀÓ´ëÂ÷º¸Áõ±Ý 170,000,000¿ø, ÀüÀÔÀÏÀÚ 2022. 9. 19. È®Á¤ÀÏÀÚ 2022. 6. 14.)°¡ ÀÖÀ¸¹Ç·Î ¹è´ç¿¡¼­ Àü¾× º¯Á¦µÇÁö ¾Æ´ÏÇϸé Àܾ×Àº ¸Å¼öÀο¡°Ô ÀμöµÉ ¼ö ÀÖÀ½.
¸Å°¢À¸·Î ¼³Á¤µÈ °ÍÀ¸·Î º¸´Â Áö»ó±Ç: ÇØ´ç»çÇ×¾øÀ½
¡Ø¹Ì³³°ü¸®ºñ(°ø¿ë) Àμö¿©ºÎ¸¦ ÀÔÂû Àü¿¡ È®ÀÎÇϽñ⠹ٶø´Ï´Ù

 

Áö¿ªºÐ¼®

ÁöÇÏö¸í Á÷¼±°Å¸®

Çб³¸í ÀüÈ­¹øÈ£ ÁÖ¼Ò Á÷¼±°Å¸®

¹ý¿ø

ÀÇÁ¤ºÎÁö¹æ¹ý¿ø °í¾çÁö¿ø (104-13)°æ±âµµ °í¾ç½Ã Àϻ굿±¸ Àå¹é·Î 209
´ëÇ¥ : 031)920-6114, ¾ß°£ : 031)920-6550, ÆÑ½º : 031)920-6119
°üÇÒÁö¿ª : °í¾ç½Ã, ÆÄÁÖ½Ã

µî±â¼Ò ÀÇÁ¤ºÎÁö¹æ¹ý¿ø °í¾çÁö¿ø ÆÄÁÖµî±â¼Ò (´ëÇ¥:1544-0773, ÆÑ½º:(031)945-4764, 3628, °æ±âµµ ÆÄÁֽà ±ÝÁ¤·Î 45 (±ÝÃ̵¿ 947-28))
¼¼¹«¼­ ÆÄÁÖ¼¼¹«¼­ (´ëÇ¥:031-956-02, ÆÑ½º:031-957-0315, °æ±âµµ ÆÄÁֽà ±Ý¸ª¿ª·Î 62 (±ÝÃ̵¿))

Àαٳ«ÂûÅë°è

±â°£ ¸Å°¢°Ç¼ö Æò±Õ°¨Á¤°¡
Æò±Õ¸Å°¢°¡
¸Å°¢°¡À²
Æò±ÕÀ¯Âû¼ö
3°³¿ù 16°Ç 221,875,000¿ø
174,566,125¿ø
78%
1.6ȸ
6°³¿ù 31°Ç 239,129,032¿ø
188,925,806¿ø
79%
1.4ȸ
12°³¿ù 61°Ç 243,803,279¿ø
191,485,771¿ø
79%
1.2ȸ


º» °æ¸ÅÁ¤º¸´Â ¹ý¿øÀÚ·á¿Í ÀÏÄ¡Çϵµ·Ï ÇÏ¿´À¸³ª ±Ç¸®»çÇ׺¯µ¿, ÀÔ·ÂÂø¿À µîÀÇ ¿øÀÎÀ¸·Î »ç½Ç°ú ´Ù¸¦ ¼ö ÀÖ½À´Ï´Ù. ÀÌ¿ë¾à°ü¿¡ ÀǰЏéÃ¥Á¶°ÇÀ¸·Î Á¦°øµÊÀ» ¾Ë¸®¸ç, °æ¸ÅÀÔÂû½Ã ¹Ýµå½Ã °ü·Ã °øºÎ¸¦ ÀçÈ®ÀÎÇϽñ⠹ٶø´Ï´Ù. º¸´Ù Æí¸®ÇÑ °æ¸ÅÁ¤º¸ Á¦°øÀ» À§ÇØ Áö¼ÓÀûÀ¸·Î °³¼±ÇϰڽÀ´Ï´Ù. ÀÌ¿ëÇØ Áּż­ °¨»çÇÕ´Ï´Ù.
°ü½É¹°°ÇÀ¸·Î µî·ÏÇÕ´Ï´Ù