38
¿ÀÇǽºÅÚ
ÀÎõÁö¹æ¹ý¿ø
 °¨Á¤°¡243,000,000 ¿ø
 ÃÖÀú°¡(100%) 243,000,000 ¿ø
 º¸Áõ±Ý(10%) 24,300,000 ¿ø
 Ã»±¸¾×275,000,000 ¿ø
ÀÎõ±¤¿ª½Ã ¹ÌÃßȦ±¸ ¿ëÇöµ¿ 629-116 ÇÏÀÓºô 6Ãþ601È£
»ç°Ç¹øÈ£ 2025Ÿ°æ514043
°æ¸ÅÁ¾·ùºÎµ¿»ê°­Á¦°æ¸Å
¸Å°¢´ë»óÅäÁö ¹× °Ç¹°Àϰý ¸Å°¢
¸Å°¢±âÀÏ    2026.03.19(¸ñ) 10:00 ÀÔÂû 12ÀÏÀü    
ÅäÁö¸éÀû30.29§³(9.16 Æò)
°Ç¹°¸éÀû84.98§³(25.71 Æò)
乫/¼ÒÀ¯ÀÚ¹ÚOO / ¹ÚOO
ä±ÇÀÚÁÖOOOOOOO
±è¼ºÈÆ ´ëÇ¥ÀÌ»ç
°øÀÎÁß°³»ç, ºÎµ¿»ê°ø°æ¸Å»ç, ÇѾç´ëÇб³ Á¹¾÷
Àü) ÅÂÀÎÄÁ¼³ÆÃ(ÁÖ) ´ëÇ¥ÀÌ»ç
Àü) ¿©ÀÇÁֺε¿»êÁß°³¹ýÀÎ(ÁÖ) ´ëÇ¥ÀÌ»ç
Çö) ¿©ÀÇÁÖ°æ¸Å¹ýÀÎ ´ëÇ¥ÀÌ»ç
010-2371-3237
ÆäÀ̽ººÏ Æ®À§ÅÍ ±¸±Û+
īī¿À½ºÅ丮
īī¿ÀÅå sms¹®ÀÚº¸³»±â
 

±âÀϳ»¿ª

°æ°ú ³¯Â¥ Àú°¨ ÃÖÀú°¡ °á°ú
Á¢¼öÀÏ 2025-11-18 °æ¸ÅÁ¢¼ö
~1ÀÏ 
2025-11-19 °æ¸Å°³½Ã°áÁ¤
~66ÀÏ 
2026-01-23 ¹è´ç¿ä±¸Á¾±âÀÏ
~121ÀÏ 
2026-03-19 100%
243,000,000
ÁøÇà
¹°°Ç¸í¼¼¼­ ÇöȲÁ¶»ç¼­ ¹®°ÇÁ¢¼ö ¼Û´Þ³»¿ª

°¨Á¤Æò°¡ÇöȲ

¸ñ·Ï ÁÖ¼Ò ±¸Á¶/¿ëµµ/´ëÁö±Ç ¸éÀû ºñ°í
´ëÁö±Ç
¿ëÇöµ¿ 629-116 249.7ºÐÀÇ 30.2886 30.2886 §³
(9.16Æò)
°Ç¹°
¿ëÇöµ¿ 629-116 6Ãþ601È£ ö±ÙÄÜÅ©¸®Æ®±¸Á¶ 84.98 §³
(25.71Æò)
1) À§Ä¡/ÀϹݻó¾÷Áö¿ª/ÅäÁö°Å·¡°è¾à¿¡°üÇÑÇã°¡±¸¿ª/¹ö½ºÁ¤·ùÀå/Â÷·®Á¢±Ù ¿ëÀÌ/ö±ÙÄÜÅ©¸®Æ®±¸Á¶/Æò½º¶óºêÁöºØ/°³º°³­¹æ ´õº¸±â
°¨Á¤Æò°¡ ¿äÇ×Ç¥
1)À§Ä¡ ¹× ÁÖÀ§È¯°æ
ÀÎõ±¤¿ª½Ã ¹ÌÃßȦ±¸ ¿ëÇöµ¿ ¼ÒÀç '½ÅÈï¿©ÀÚÁßÇб³' ³²µ¿Ãø Àαٿ¡ À§Ä¡Çϸç, ÀαÙÀÏ´ë´Â ´Ù ¼¼´ëÁÖÅÃ, ¿ÀÇǽºÅÚ, ÁÖ»óº¹Çպε¿»ê µîÀ¸·Î ÀÌ·ç¾îÁø ÀϹݻó¾÷Áö¿ª ³»ÀÇ ÁÖ»óº¹ÇÕÁö´ëÀ̸ç ÁÖ°ÅÁö·Î¼­ÀÇ ÁÖÀ§È¯°æÀº º¸ÅëÀÎ ÆíÀÓ.
2)±³Åë»óȲ
º» °Ç¹°±îÁö Â÷·®Á¢±Ù ¿ëÀÌÇϰí Àαٿ¡ ¹ö½ºÁ¤·ùÀåÀÌ ¼ÒÀçÇϸç, ³²¼­Ãø Á÷¼±°Å¸® ¾à700 ¹ÌÅÍ ÁöÁ¡¿¡ Á¦2°æÀΰí¼Óµµ·Î ´ÉÇØI.C°¡ À§Ä¡ÇÔ.
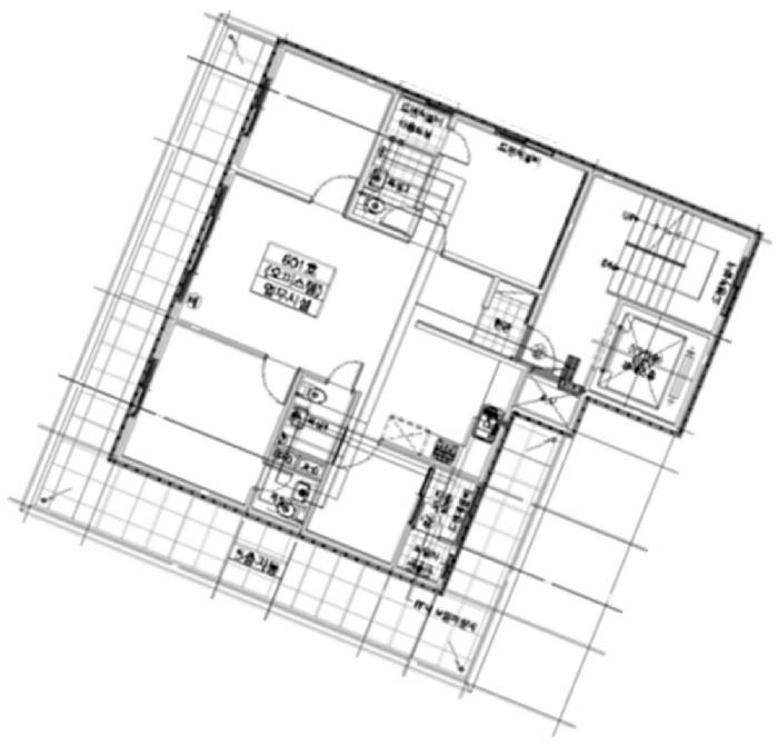
3)°Ç¹°ÀÇ ±¸Á¶
ö±ÙÄÜÅ©¸®Æ®±¸Á¶ Æò½º¶óºêÁöºØ 9Ãþ °Ç¹° ³» 6Ãþ 601È£·Î¼­, ¿Üº® : º®µ¹ÇüŸÀÏ ºÙÀÓ, ÆäÀÎÆÃ µî ¸¶°¨. ³»º® : º®Áö ¹× ŸÀÏ µî ¸¶°¨. âȣ : ÇÏÀ̼¨½Ã ¹× Ä®¶ó¼¦½Ã µî âȣÀÓ.
4)ÀÌ¿ë»óÅÂ
¿ÀÇǽºÅÚÀÓ.
5)¼³ºñ³»¿ª
º¸ÀÏ·¯¼³ºñ¿¡ ÀÇÇÑ °³º°³­¹æ ±¸Á¶À̸ç, À§»ý¼³ºñ, ±Þ.¹è¼ö¼³ºñ, ¿¤¸®º£ÀÌÅͼ³ºñ µî µÇ¾îÀÖÀ½.
6)ÅäÁöÀÇ Çü»ó ¹× ÀÌ¿ë»óÅÂ
À广Çü ÆòÁöÀ̸ç 1°³ µ¿(9°³ È£, ÁÖÂ÷ 8´ë, ¿ëÀû·ü 348%) °ÇºÎÁöÀÓ.
7)ÀÎÁ¢ µµ·Î»óŵî
ºÏ¼­ÃøÀ¸·Î Æø6¹ÌÅÍ Á¤µµÀÇ Æ÷Àåµµ·Î¿¡ Á¢ÇÔ.
8)ÅäÁöÀÌ¿ë°èȹ ¹× Á¦ÇÑ»óÅÂ
ÀϹݻó¾÷Áö¿ª(2022-06-13), ¹æÈ­Áö±¸, °¡Ãà»çÀ°Á¦Çѱ¸¿ª(ÀÎõ±¤¿ª½Ã ¹ÌÃßȦ±¸ °¡Ãà»çÀ°Á¦ÇÑ ¿¡ °üÇÑ Á¶·Ê[2018. 7. 1.])<°¡ÃàºÐ´¢ÀÇ °ü¸® ¹× À̿뿡 °üÇÑ ¹ý·ü>, °ú¹Ð¾ïÁ¦±Ç¿ª<¼öµµ±ÇÁ¤ ºñ°èȹ¹ý>, ÅäÁö°Å·¡°è¾à¿¡°üÇÑÇã°¡±¸¿ª(2025-08-21)(¿Ü±¹ÀÎ µî¿¡ ÇÑÇÔ(ÁöÁ¤±â°£: 2025. 8. 26.~2026. 8. 25.)))
9)°øºÎ¿ÍÀÇ Â÷ÀÌ
ÇØ´ç »çÇ× ¾øÀ½.
10)±âŸÂü°í»çÇ×(ÀÓ´ë°ü·Ê ¹× ±âŸ)
ÀÓÂ÷º¸Áõ±Ý ±Ý275,000,000¿ø ÁÖÅÃÀÓÂ÷±Ç µî±âµÇ¾î ÀÖÀ¸¸ç ÀÓ´ëÂ÷°ü°è´Â ¹Ì»óÀÓ.
Âü°í
»çÇ×

- º»°ÇÀº ½ÅÈï¿©ÀÚÁßÇб³ ºÎ±Ù¿¡ À§Ä¡ÇÑ ¾÷¹«½Ã¼³ ¿Ü·Î ÁÖº¯Àº ´Ù¼¼´ëÁÖÅà ´Üµ¶ÁÖÅà µîÀÌ ¹ÐÁýµÈ Áö¿ªÀÓ. - º»°ÇÀº ÁÖ°Å·Î ÃßÁ¤µÊ.

°ÇÃ๰ÇöȲ

¼ÒÀçÁö ÀÎõ±¤¿ª½Ã ¹ÌÃßȦ±¸ ¿ëÇöµ¿ 629-116¹øÁö
´ëÁö¸éÀû 249.7§³
(75.67Æò)
¿¬¸éÀû 906.63§³
(274.74Æò)
°ÇÃà¸éÀû 168.12§³
(50.95Æò)
¿ëÀû·ü»êÁ¤
¿¬¸éÀû
868.89§³
(263.3Æò)
°ÇÆóÀ² 67.33% ¿ëÀû·ü 347.97%
Áö»óÃþ¼ö 9Ãþ ÁöÇÏÃþ¼ö 1Ãþ
ÁÖ¿ëµµ ¾÷¹«½Ã¼³ ±¸Á¶ ö±ÙÄÜÅ©¸®Æ®±¸Á¶
Âø°øÀÏÀÚ 2019.02.20 »ç¿ë½ÂÀÎÀÏÀÚ 2019.12.23
°ÇÃ๰Ãþº°ÇöȲ [º¸±â]


µî±âºÎµîº» ¿ä¾à(°Ç¹°)

  Á¢¼öÀÏÀÚ µî±â¸ñÀû/±Ç¸®ÀÚ ±Ç¸®±Ý¾× ±âÁØ
1 2021³â9¿ù7ÀÏ
¼ÒÀ¯±Ç
¹ÚOO
¼Ò¸ê
2 2023³â10¿ù16ÀÏ
ÀÓÂ÷±Ç¼³Á¤
Á¶OO
275,000,000 Àμö
3 2023³â12¿ù21ÀÏ
¾Ð·ù
¹ÌOOO
¼Ò¸ê±âÁØ
4 2025³â5¿ù20ÀÏ
¾Ð·ù
±¹
¼Ò¸ê
5 2025³â11¿ù19ÀÏ
°­Á¦°æ¸Å
ÁÖOOOO
¼Ò¸ê

ÀÓÂ÷ÀÎÇöȲ (¹è´ç¿ä±¸Á¾±âÀÏ: 2026-01-23)



¸Å°¢±âÀÏ 7ÀÏÀü¿¡ ¸Å°¢¹°°Ç¸í¼¼¼­°¡ °ø°íµÇ¿À´Ï È®ÀÎÇϽñ⠹ٶø´Ï´Ù.

ÀÓÂ÷ÀÎ ¿ëµµ/Á¡À¯ º¸Áõ±Ý/¿ù¼¼ ´ëÇ×·Â
ÀüÀÔÀÏ/È®Á¤ÀÏ ¹è´ç¿ä±¸ ºñ°í
Á¶OO ÀüºÎ 275,000,000
O
2021.06.03.
2021.04.19.
2021.08.31.
ÁÖOOOOOOOOOOOOOOOO ÀüºÎ 275,000,000
O
2021.06.03.
2021.04.19.
2026.1.22. 2021.08.31.~2024.01.31.
ºñ°í
(¸Å°¢¹°°Ç
¸í¼¼¼­)
Á¶±¸Çü : ÁÖÅÃÀÓÂ÷±Çµî±â±Ç¸®Àڷμ­ ÁÖÅÃÀÓÂ÷±Çµî±âÀÏÀº 2023.10.16.ÀÓ ÁÖÅõµ½Ãº¸Áõ°ø»ç(ÀÓÂ÷ÀÎ:Á¶±¸Çü) : ÀÓÂ÷ÀÎ Á¶±¸ÇüÀÇ ÀÓÂ÷º¸Áõ±Ý¹Ýȯä±Ç ¾ç¼öÀÎÀ¸·Î¼­, º¸Áõ±Ý Àü¾×À» ¹è´ç¹ÞÁö ¸øÇÏ´õ¶óµµ

¿©ÀÇÁÖ°æ¸Å Á¶¾ð ÇÑ ¸¶µð

¸Å°¢¹°°Ç¸í¼¼ ºñ°í³­¿¡ ±âÀçµÈ ³»¿ëÀÔ´Ï´Ù.
Á¶±¸Çü : ÁÖÅÃÀÓÂ÷±Çµî±â±Ç¸®Àڷμ­ ÁÖÅÃÀÓÂ÷±Çµî±âÀÏÀº 2023.10.16.ÀÓ ÁÖÅõµ½Ãº¸Áõ°ø»ç(ÀÓÂ÷ÀÎ:Á¶±¸Çü) : ÀÓÂ÷ÀÎ Á¶±¸ÇüÀÇ ÀÓÂ÷º¸Áõ±Ý¹Ýȯä±Ç ¾ç¼öÀÎÀ¸·Î¼­, º¸Áõ±Ý Àü¾×À» ¹è´ç¹ÞÁö ¸øÇÏ´õ¶óµµ
³«Âû ÈÄ¿¡ µî±âºÎ»ó ¼Ò¸êµÇÁö ¾Ê´Â ±Ç¸®ÀÔ´Ï´Ù.
À»±¸ ¼øÀ§ 1¹ø ÁÖÅÃÀÓÂ÷±Çµî±â(´Ù¸¸, ÁÖÅõµ½Ãº¸Áõ°ø»çÀÇ ¸»¼Òµ¿ÀÇ È®¾à¼­°¡ Á¦Ãâ µÊ)
¼±¼øÀ§ ÀÓÂ÷±Çµî±â°¡ µÇ¾î ÀÖ½À´Ï´Ù.
¡Ø ¹°°Ç Ű¿öµå : »ó¾÷Áö¿ª/ÀϹݻó¾÷Áö¿ª/ÅäÁö°Å·¡°è¾à¿¡°üÇÑÇã°¡±¸¿ª/¹ö½ºÁ¤·ùÀå/Â÷·®Á¢±Ù ¿ëÀÌ/ö±ÙÄÜÅ©¸®Æ®±¸Á¶/Æò½º¶óºêÁöºØ/½º¶óºêÁöºØ/°³º°³­¹æ
Àüü ÄÁ¼³ÆÃÀÌ ºÎ´ã½º·¯¿ì½Å°¡¿ä? ±Ç¸®ºÐ¼®¸¸ ÀÇ·ÚÇϼŵµ ±¦Âú½À´Ï´Ù!
½Ç¼Ó ÀÖ°Ô Çٽɸ¸ ´ãÀº ±Ç¸®ºÐ¼® ¼­ºñ½º!! (±Ç¸®ºÐ¼® + ½Ã¼¼Á¶»ç + ³«Âû°¡ »êÁ¤ + ÀÔÂûÇ¥ ÀÛ¼º¹æ¹ý ±îÁö)
ÃÖ´ë Àüü ÄÁ¼³ÆÃ ºñ¿ëÀÇ 10% ¼öÁØ !!

ÁÖÀÇ»çÇ× (ÃÖ¼±¼øÀ§ ¼³Á¤ÀÏ: 2023.12.21. ¾Ð·ù ¼³Á¤)

¸Å°¢À¸·Î ¼Ò¸êµÇÁö ¾Ê´Â µî±âºÎ±Ç¸®: À»±¸ ¼øÀ§ 1¹ø ÁÖÅÃÀÓÂ÷±Çµî±â(´Ù¸¸, ÁÖÅõµ½Ãº¸Áõ°ø»çÀÇ ¸»¼Òµ¿ÀÇ È®¾à¼­°¡ Á¦Ãâ µÊ)
¸Å°¢À¸·Î ¼³Á¤µÈ °ÍÀ¸·Î º¸´Â Áö»ó±Ç:
2026.01.21 ä±ÇÀÚ ÁÖOOOOOOO ´ëÇ×·ÂÆ÷±âÈ®¾à¼­¹×¸Å°¢±âÀϺ¯°æ½Åû Á¦Ãâ
¡Ø¹Ì³³°ü¸®ºñ(°ø¿ë) Àμö¿©ºÎ¸¦ ÀÔÂû Àü¿¡ È®ÀÎÇϽñ⠹ٶø´Ï´Ù

 

Áö¿ªºÐ¼®

ÁöÇÏö¸í Á÷¼±°Å¸®

Çб³¸í ÀüÈ­¹øÈ£ ÁÖ¼Ò Á÷¼±°Å¸®

¹ý¿ø

ÀÎõÁö¹æ¹ý¿ø (222-20)ÀÎõ±¤¿ª½Ã ¹ÌÃßȦ±¸ ¼Ò¼º·Î 163¹ø±æ 17(ÇÐÀ͵¿)
´ëÇ¥ : 032)860-1113~4
°üÇÒÁö¿ª : Áß±¸, µ¿±¸, ³²±¸, ¿¬¼ö±¸, ³²µ¿±¸, ºÎÆò±¸, °è¾ç±¸, ¼­±¸, ¿ËÁø±º, °­È­±º

µî±â¼Ò ÀÎõÁö¹æ¹ý¿ø º»¿ø µî±â±¹ (´ëÇ¥:1544-0773, ÆÑ½º:(032)620-9099, ÀÎõ±¤¿ª½Ã ¹ÌÃßȦ±¸ °æ¿ø´ë·Î 881(Á־ȵ¿ 983))
¼¼¹«¼­ ÀÎõ¼¼¹«¼­ (´ëÇ¥:032-770-02, ÆÑ½º:032-777-8104, ÀÎõ±¤¿ª½Ã µ¿±¸ ¿ì°¢·Î 75 (⿵µ¿))

Àαٳ«ÂûÅë°è

±â°£ ¸Å°¢°Ç¼ö Æò±Õ°¨Á¤°¡
Æò±Õ¸Å°¢°¡
¸Å°¢°¡À²
Æò±ÕÀ¯Âû¼ö


º» °æ¸ÅÁ¤º¸´Â ¹ý¿øÀÚ·á¿Í ÀÏÄ¡Çϵµ·Ï ÇÏ¿´À¸³ª ±Ç¸®»çÇ׺¯µ¿, ÀÔ·ÂÂø¿À µîÀÇ ¿øÀÎÀ¸·Î »ç½Ç°ú ´Ù¸¦ ¼ö ÀÖ½À´Ï´Ù. ÀÌ¿ë¾à°ü¿¡ ÀǰЏéÃ¥Á¶°ÇÀ¸·Î Á¦°øµÊÀ» ¾Ë¸®¸ç, °æ¸ÅÀÔÂû½Ã ¹Ýµå½Ã °ü·Ã °øºÎ¸¦ ÀçÈ®ÀÎÇϽñ⠹ٶø´Ï´Ù. º¸´Ù Æí¸®ÇÑ °æ¸ÅÁ¤º¸ Á¦°øÀ» À§ÇØ Áö¼ÓÀûÀ¸·Î °³¼±ÇϰڽÀ´Ï´Ù. ÀÌ¿ëÇØ Áּż­ °¨»çÇÕ´Ï´Ù.
°ü½É¹°°ÇÀ¸·Î µî·ÏÇÕ´Ï´Ù