7
¾ÆÆÄÆ®
¼ö¿øÁö¹æ¹ý¿ø ¿©ÁÖÁö¿ø
 °¨Á¤°¡200,000,000 ¿ø
 ÃÖÀú°¡(100%) 200,000,000 ¿ø
 º¸Áõ±Ý(10%) 20,000,000 ¿ø
 Ã»±¸¾×155,734,371 ¿ø
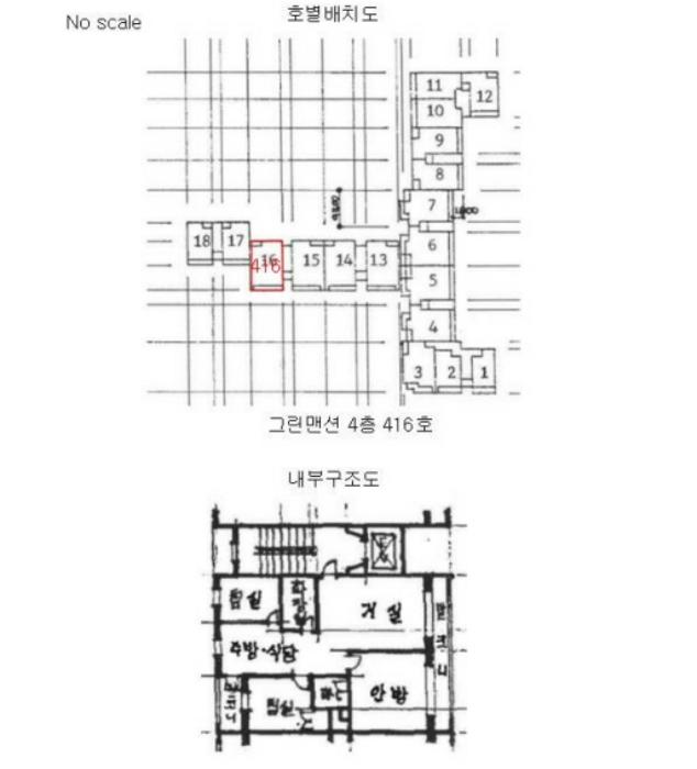
°æ±âµµ ¾çÆò±º ¾çÆòÀ¾ Áß¾Ó·Î 12, 4Ãþ416È£ (±×¸°¸Ç¼Ç)
°æ±âµµ ¾çÆò±º ¾çÆòÀ¾ ¾ç±Ù¸® 137-48
»ç°Ç¹øÈ£ 2024Ÿ°æ34250
°æ¸ÅÁ¾·ùºÎµ¿»êÀÓÀǰæ¸Å
¸Å°¢´ë»óÅäÁö ¹× °Ç¹°Àϰý ¸Å°¢
¸Å°¢±âÀÏ    2026.03.18(¼ö) 10:00 ÀÔÂû 11ÀÏÀü    
ÅäÁö¸éÀû31.10§³(9.41 Æò)
°Ç¹°¸éÀû84.90§³(25.68 Æò)
乫/¼ÒÀ¯ÀÚÇÔOO¿Ü 5¸í / ÇÔOO¿Ü 5¸í
ä±ÇÀÚÇÑOOOOOOO
±è¼ºÈÆ ´ëÇ¥ÀÌ»ç
°øÀÎÁß°³»ç, ºÎµ¿»ê°ø°æ¸Å»ç, ÇѾç´ëÇб³ Á¹¾÷
Àü) ÅÂÀÎÄÁ¼³ÆÃ(ÁÖ) ´ëÇ¥ÀÌ»ç
Àü) ¿©ÀÇÁֺε¿»êÁß°³¹ýÀÎ(ÁÖ) ´ëÇ¥ÀÌ»ç
Çö) ¿©ÀÇÁÖ°æ¸Å¹ýÀÎ ´ëÇ¥ÀÌ»ç
010-2371-3237
ÆäÀ̽ººÏ Æ®À§ÅÍ ±¸±Û+
īī¿À½ºÅ丮
īī¿ÀÅå sms¹®ÀÚº¸³»±â
 

±âÀϳ»¿ª

°æ°ú ³¯Â¥ Àú°¨ ÃÖÀú°¡ °á°ú
Á¢¼öÀÏ 2024-04-25 °æ¸ÅÁ¢¼ö
~92ÀÏ 
2024-07-26 °æ¸Å°³½Ã°áÁ¤
~193ÀÏ 
2024-11-04 ¹è´ç¿ä±¸Á¾±âÀÏ
~692ÀÏ 
2026-03-18 100%
200,000,000
ÁøÇà
¹°°Ç¸í¼¼¼­ ÇöȲÁ¶»ç¼­ ¹®°ÇÁ¢¼ö ¼Û´Þ³»¿ª

°¨Á¤Æò°¡ÇöȲ

¸ñ·Ï ÁÖ¼Ò ±¸Á¶/¿ëµµ/´ëÁö±Ç ¸éÀû ºñ°í
´ëÁö±Ç
¾ç±Ù¸® 137-48 6856ºÐÀÇ 31.1 31.1 §³
(9.41Æò)
°Ç¹°
¾ç±Ù¸® 137-48 4Ãþ416È£ ö±ÙÄÜÅ©¸®Æ® º®½ÄÁ¶ 84.9 §³
(25.68Æò)
1) À§Ä¡/µµ½ÃÁö¿ª/Á¦2Á¾ÀϹÝÁÖ°ÅÁö¿ª/Â÷·®ÃâÀÔ °¡´É/³ë¼±¹ö½º Á¤·ùÀå/½½·¡ºêÁöºØ/ö±ÙÄÜÅ©¸®Æ® º®½ÄÁ¶/µµ½Ã°¡½º/¹æ3 ´õº¸±â
°¨Á¤Æò°¡ ¿äÇ×Ç¥
1)À§Ä¡ ¹× ÁÖÀ§È¯°æ
º»°ÇÀº °æ±âµµ ¾çÆò±º ¾çÆòÀ¾ ¾ç±Ù¸® ¼ÒÀç "¾çÀÏÁßÇб³" ºÏ¼­Ãø Àαٿ¡ À§Ä¡Çϸç ÁÖº¯Àº
ÀÓ¾ß, Àü, ´ä, ´Üµ¶ÁÖÅÃ, ¾ÆÆÄÆ®´ÜÁö, ±Ù¸°»ýȰ½Ã¼³ µîÀÌ È¥ÀçÇÏ´Â Áö¿ªÀ¸·Î ÁÖÀ§È¯°æÀº
º¸ÅëÀÓ.
2)±³Åë»óȲ
º»°Ç±îÁö Â÷·®ÃâÀÔ °¡´ÉÇϸç Àαٿ¡ ³ë¼±¹ö½º Á¤·ùÀåÀÌ ÀÖ¾î ´ëÁß±³ÅëÆíÀÇ ÀÌ¿ëÀº º¸Åë
½ÃµÊ.
3)°Ç¹°ÀÇ ±¸Á¶
ö±ÙÄÜÅ©¸®Æ® º®½ÄÁ¶ ½½·¡ºêÁöºØ 15Ãþ Áß 4Ãþ 416È£·Î¼­
¿Üº® : ¸ôÅ»À§ ÆäÀÎÆÃ ¸¶°¨ µî.
³»º® : º®Áö µµ¹è ¹× ÀϺΠŸÀÏ ºÙÀÓ ¸¶°¨ µî.
âȣ : ¼¦½ÃâȣÀÓ.
4)ÀÌ¿ë»óÅÂ
¾ÆÆÄÆ®·Î¼­ ¹æ3, °Å½Ç, ÁÖ¹æ, È­Àå½Ç, ¹ßÄÚ´Ï µîÀ¸·Î »ç¿ëÁß ÀÎ °ÍÀ¸·Î ޹®Á¶»çµÊ.
5)¼³ºñ³»¿ª
À§»ý ¹× ±Þ¹è¼ö¼³ºñ, È­ÀçŽÁö¼³ºñ, ¼ÒÈ­Àü¼³ºñ, ³­¹æ¼³ºñ, µµ½Ã°¡½º¼³ºñ, ½Â°­±â¼³ºñ
µîÀÌ °®Ãß¾îÁ® ÀÖÀ½.
6)ÅäÁöÀÇ Çü»ó ¹× ÀÌ¿ë»óÅÂ
4ÇÊ 1´ÜÀÇ ºÎÁ¤Æò ÆòÁö·Î¼­ ¾ÆÆÄÆ® °ÇºÎÁö·Î ÀÌ¿ëÁßÀÓ.
7)ÀÎÁ¢ µµ·Î»óŵî
ºÏÃøÀ¸·Î ¿Õº¹ 4Â÷¼± Æ÷Àåµµ·Î¿Í Á¢ÇÔ.
8)ÅäÁöÀÌ¿ë°èȹ ¹× Á¦ÇÑ»óÅÂ
µµ½ÃÁö¿ª, Á¦2Á¾ÀϹÝÁÖ°ÅÁö¿ª, °¡Ãà»çÀ°Á¦Çѱ¸¿ª(ÀüºÎÁ¦Çѱ¸¿ª), ¹èÃâ½Ã¼³¼³Ä¡Á¦ÇÑÁö¿ª,
ÀÚ¿¬º¸Àü±Ç¿ª, °øÀå¼³¸³½ÂÀÎÁö¿ª(2016-12-09)(¼öµµ¹ý ½ÃÇà·ÉÁ¦14Á¶ÀÇ3Á¦1È£), öµµº¸È£
Áö±¸, Çϼö󸮱¸¿ª(¾çÆòÇϼö󸮱¸¿ª(¾çÆò°ø°øÇϼö󸮱¸¿ª)), (ÇѰ­)Æó±â¹°¸Å¸³½Ã¼³
¼³Ä¡Á¦ÇÑÁö¿ª, ¼öÁúº¸ÀüƯº°´ëÃ¥Áö¿ª(1±Ç¿ª).
9)°øºÎ¿ÍÀÇ Â÷ÀÌ
¾ø À½.
10)±âŸÂü°í»çÇ×(ÀÓ´ë°ü·Ê ¹× ±âŸ)
ÀÓ´ë°ü°è ¹Ì»óÀÓ.
Âü°í
»çÇ×

Á¦½Ã ¸ñ·Ï ºÎµ¿»êÀÇ ÇöȲÀº µî±âºÎ»ó Ç¥½Ã¿Í °°ÀÌ ¾ÆÆÄÆ®·Î ÀÌ¿ëµÇ°í ÀÖÀ½.

°ÇÃ๰ÇöȲ

¼ÒÀçÁö °æ±âµµ ¾çÆò±º ¾çÆòÀ¾ ¾ç±Ù¸® 137-48¹øÁö
´ëÁö¸éÀû   ¿¬¸éÀû 253.8§³
(76.91Æò)
°ÇÃà¸éÀû 1925.41§³
(583.46Æò)
¿ëÀû·ü»êÁ¤
¿¬¸éÀû
169.2§³
(51.27Æò)
°ÇÆóÀ² 28.16% ¿ëÀû·ü 318.4%
Áö»óÃþ¼ö 2Ãþ ÁöÇÏÃþ¼ö 1Ãþ
ÁÖ¿ëµµ °øµ¿ÁÖÅà ±¸Á¶ ö±ÙÄÜÅ©¸®Æ®±¸Á¶
Âø°øÀÏÀÚ 1993.07.00 »ç¿ë½ÂÀÎÀÏÀÚ 1995.06.12
°ÇÃ๰Ãþº°ÇöȲ [º¸±â]


±¹ÅäºÎ½Ç°Å·¡°¡ °æ±âµµ ¾çÆò±º ¾çÆòÀ¾ ¾ç±Ù¸®

¡Ü ¸Å¸Å

¸éÀû(§³), ±Ý¾×(¸¸¿ø)

¡Ü Àü¼¼

¸éÀû(§³), ±Ý¾×(¸¸¿ø)

°è¾àÀÏARTÃþÀü¿ëº¸Áõ±Ý¿ù¼¼°ÇÃà
26.02.13±×¸°¸Ç¼Ç21383.3715,75001995
26.02.05±×¸°¸Ç¼Ç21584.7716,00001995
26.01.19±×¸°¸Ç¼Ç2584.919,00001995
26.01.19±×¸°¸Ç¼Ç2584.919,00001995
26.01.17±×¸°¸Ç¼Ç2584.777,000601995
¢Ñ ´õº¸±â

µî±âºÎµîº» ¿ä¾à(°Ç¹°)

  Á¢¼öÀÏÀÚ µî±â¸ñÀû/±Ç¸®ÀÚ ±Ç¸®±Ý¾× ±âÁØ
1 2024³â5¿ù28ÀÏ
¼ÒÀ¯±Ç
ÇÔOO
¼Ò¸ê
2 2024³â5¿ù28ÀÏ
¼ÒÀ¯±Ç
ÇÔOO
¼Ò¸ê
3 2024³â5¿ù28ÀÏ
¼ÒÀ¯±Ç
ÇÔOO
¼Ò¸ê
4 2024³â5¿ù28ÀÏ
¼ÒÀ¯±Ç
ÇÔOO
¼Ò¸ê
5 2024³â5¿ù28ÀÏ
¼ÒÀ¯±Ç
ÇÔOO
¼Ò¸ê
6 2024³â5¿ù28ÀÏ
¼ÒÀ¯±Ç
ÇÔOO
¼Ò¸ê
7 2011³â2¿ù22ÀÏ
±ÙÀú´ç±Ç
ÇÑOOOO
698,000,000 ¼Ò¸ê±âÁØ
8 2011³â2¿ù22ÀÏ
¾àÁ¤/±ÝÁö»çÇ×/ȯ¸ÅƯ¾à
¼Ò¸ê
9 2024³â7¿ù26ÀÏ
ÀÓÀǰæ¸Å
ÇÑOOOO
¼Ò¸ê

ÀÓÂ÷ÀÎÇöȲ (¹è´ç¿ä±¸Á¾±âÀÏ: 2024-11-04)



¸Å°¢±âÀÏ 7ÀÏÀü¿¡ °ø°íµÇ¿À´Ï È®ÀÎÇϽñ⠹ٶø´Ï´Ù.


¿©ÀÇÁÖ°æ¸Å Á¶¾ð ÇÑ ¸¶µð

³«Âû ÈÄ¿¡ µî±âºÎ»ó ¼Ò¸êµÇÁö ¾Ê´Â ±Ç¸®´Â ¾ø½À´Ï´Ù.
´ë·«ÀûÀÎ °ËÅäÀǰßÀ̹ǷΠÀÔÂûÀü¿¡ Àü¹®°¡ÀÇ Á¶¾ðÀ» Âü°íÇØ º¸½Ã±æ ±ÇÇØµå¸³´Ï´Ù.
ü³³°ü¸®ºñ¸¦ ºÎ´ãÇÒ ¼ö ÀÖ½À´Ï´Ù.
°¨Á¤ ½ÃÁ¡ÀÌ ¿À·¡µÇ¾î °¡°Ýº¯µ¿ÀÌ ÀÖÀ» ¼ö ÀÖ½À´Ï´Ù.
ÀÌ ¹°°ÇÀº 2024³â 7¿ù 26ÀÏ¿¡ °æ¸Å°¡ °³½ÃµÇ¾ú´Âµ¥ Áö±Ý ½ÃÁ¡À¸·Î ¾à 589ÀÏÀÌ ÀÌ °æ°úµÇ¾ú½À´Ï´Ù. °¨Á¤°¡°ÝÀº 589ÀÏ Àü ½ÃÁ¡¿¡¼­ Æò°¡ÇÑ °¡°ÝÀ̹ǷΠ±× »çÀÌ °¡°Ýº¯µ¿ÀÌ ÀÖÀ» ¼ö ÀÖ½À´Ï´Ù. ƯÈ÷ °¡°Ý º¯µ¿ÀÌ ½ÉÇÑ ¾ÆÆÄÆ®´Â À¯ÀÇÇÏ¼Å¾ß ÇÕ´Ï´Ù. °¨Á¤°¡°ÝÀ» ³Ê¹« ¹ÏÁö ¸¶½Ã°í ÇöÀç ½Ç¸Å¹° °¡°Ý°ú ½Ç°Å·¡°¡¸¦ È®ÀÎÇϽñ⠹ٶø´Ï´Ù.
°£È¤ °¨Á¤°¡°Ýº¸´Ù ³ô°Ô ³«ÂûµÇ´Â °æ¿ì°¡ Àִµ¥ ´ëºÎºÐ ÀÌ·± ÀÌÀ¯ÀÔ´Ï´Ù.
¡Ø ¹°°Ç Ű¿öµå : µµ½ÃÁö¿ª/ÁÖ°ÅÁö¿ª/Á¦2Á¾ÀϹÝÁÖ°ÅÁö¿ª/Â÷·®ÃâÀÔ °¡´É/³ë¼±¹ö½º Á¤·ùÀå/½½·¡ºêÁöºØ/ö±ÙÄÜÅ©¸®Æ® º®½ÄÁ¶/µµ½Ã°¡½º/¹æ3
Àüü ÄÁ¼³ÆÃÀÌ ºÎ´ã½º·¯¿ì½Å°¡¿ä? ±Ç¸®ºÐ¼®¸¸ ÀÇ·ÚÇϼŵµ ±¦Âú½À´Ï´Ù!
½Ç¼Ó ÀÖ°Ô Çٽɸ¸ ´ãÀº ±Ç¸®ºÐ¼® ¼­ºñ½º!! (±Ç¸®ºÐ¼® + ½Ã¼¼Á¶»ç + ³«Âû°¡ »êÁ¤ + ÀÔÂûÇ¥ ÀÛ¼º¹æ¹ý ±îÁö)
ÃÖ´ë Àüü ÄÁ¼³ÆÃ ºñ¿ëÀÇ 10% ¼öÁØ !!

ÁÖÀÇ»çÇ× (ÃÖ¼±¼øÀ§ ¼³Á¤ÀÏ: 2011. 2. 22. ±ÙÀú´ç±Ç ¼³Á¤)

¸Å°¢À¸·Î ¼Ò¸êµÇÁö ¾Ê´Â µî±âºÎ±Ç¸®:
¸Å°¢À¸·Î ¼³Á¤µÈ °ÍÀ¸·Î º¸´Â Áö»ó±Ç:
¡Ø¹Ì³³°ü¸®ºñ(°ø¿ë) Àμö¿©ºÎ¸¦ ÀÔÂû Àü¿¡ È®ÀÎÇϽñ⠹ٶø´Ï´Ù

 

Áö¿ªºÐ¼®

ÁöÇÏö¸í Á÷¼±°Å¸®

Çб³¸í ÀüÈ­¹øÈ£ ÁÖ¼Ò Á÷¼±°Å¸®

¹ý¿ø

¼ö¿øÁö¹æ¹ý¿ø ¿©ÁÖÁö¿ø (126-38)°æ±âµµ ¿©Áֽà Çö¾Ïµ¿ 640-10 (Çö¾Ï·Î 21-12)
´ëÇ¥ : 031)880-7500, ¾ß°£ : 031)880-7501
°üÇÒÁö¿ª : ¿©ÁÖ½Ã, ÀÌõ½Ã, ¾çÆò±º

µî±â¼Ò ¼ö¿øÁö¹æ¹ý¿ø º»¿ø ¾çÆòµî±â¼Ò (´ëÇ¥:1544-0773, ÆÑ½º:(031)772-7712, °æ±âµµ ¾çÆò±º ¾çÆòÀ¾ ¾ç±Ù·Î 154 (¾ç±Ù¸® 448-7))
¼¼¹«¼­ ÀÌõ¼¼¹«¼­ (´ëÇ¥:031-644-02, ÆÑ½º:031-634-2103, °æ±âµµ ÀÌõ½Ã ºÎ¾Ç·Î 47 (Á߸®µ¿))

Àαٳ«ÂûÅë°è

±â°£ ¸Å°¢°Ç¼ö Æò±Õ°¨Á¤°¡
Æò±Õ¸Å°¢°¡
¸Å°¢°¡À²
Æò±ÕÀ¯Âû¼ö


º» °æ¸ÅÁ¤º¸´Â ¹ý¿øÀÚ·á¿Í ÀÏÄ¡Çϵµ·Ï ÇÏ¿´À¸³ª ±Ç¸®»çÇ׺¯µ¿, ÀÔ·ÂÂø¿À µîÀÇ ¿øÀÎÀ¸·Î »ç½Ç°ú ´Ù¸¦ ¼ö ÀÖ½À´Ï´Ù. ÀÌ¿ë¾à°ü¿¡ ÀǰЏéÃ¥Á¶°ÇÀ¸·Î Á¦°øµÊÀ» ¾Ë¸®¸ç, °æ¸ÅÀÔÂû½Ã ¹Ýµå½Ã °ü·Ã °øºÎ¸¦ ÀçÈ®ÀÎÇϽñ⠹ٶø´Ï´Ù. º¸´Ù Æí¸®ÇÑ °æ¸ÅÁ¤º¸ Á¦°øÀ» À§ÇØ Áö¼ÓÀûÀ¸·Î °³¼±ÇϰڽÀ´Ï´Ù. ÀÌ¿ëÇØ Áּż­ °¨»çÇÕ´Ï´Ù.
°ü½É¹°°ÇÀ¸·Î µî·ÏÇÕ´Ï´Ù