5
´Ù¼¼´ë(ºô¶ó)
ÀÎõÁö¹æ¹ý¿ø ºÎõÁö¿ø
 °¨Á¤°¡177,000,000 ¿ø
 ÃÖÀú°¡(100%) 177,000,000 ¿ø
 º¸Áõ±Ý(10%) 17,700,000 ¿ø
 Ã»±¸¾×193,788,766 ¿ø
°æ±âµµ ºÎõ½Ã ¿ø¹Ì±¸ ¿ª°îµ¿ 20-51 ´ë⽺ÆäÀ̽ººô °¡µ¿ 4Ãþ403È£
»ç°Ç¹øÈ£ 2025Ÿ°æ33043
°æ¸ÅÁ¾·ùºÎµ¿»ê°­Á¦°æ¸Å
¸Å°¢´ë»óÅäÁö ¹× °Ç¹°Àϰý ¸Å°¢
¸Å°¢±âÀÏ    2026.03.18(¼ö) 10:00 ÀÔÂû 14ÀÏÀü    
ÅäÁö¸éÀû25.04§³(7.57 Æò)
°Ç¹°¸éÀû41.22§³(12.47 Æò)
乫/¼ÒÀ¯ÀÚÀÓOO / ÀÓOO
ä±ÇÀÚÁÖOOOOOOO
±è¼ºÈÆ ´ëÇ¥ÀÌ»ç
°øÀÎÁß°³»ç, ºÎµ¿»ê°ø°æ¸Å»ç, ÇѾç´ëÇб³ Á¹¾÷
Àü) ÅÂÀÎÄÁ¼³ÆÃ(ÁÖ) ´ëÇ¥ÀÌ»ç
Àü) ¿©ÀÇÁֺε¿»êÁß°³¹ýÀÎ(ÁÖ) ´ëÇ¥ÀÌ»ç
Çö) ¿©ÀÇÁÖ°æ¸Å¹ýÀÎ ´ëÇ¥ÀÌ»ç
010-2371-3237
ÆäÀ̽ººÏ Æ®À§ÅÍ ±¸±Û+
īī¿À½ºÅ丮
īī¿ÀÅå sms¹®ÀÚº¸³»±â
 

±âÀϳ»¿ª

°æ°ú ³¯Â¥ Àú°¨ ÃÖÀú°¡ °á°ú
Á¢¼öÀÏ 2025-03-21 °æ¸ÅÁ¢¼ö
~3ÀÏ 
2025-03-24 °æ¸Å°³½Ã°áÁ¤
~80ÀÏ 
2025-06-09 ¹è´ç¿ä±¸Á¾±âÀÏ
~362ÀÏ 
2026-03-18 100%
177,000,000
ÁøÇà
¹°°Ç¸í¼¼¼­ ÇöȲÁ¶»ç¼­ ¹®°ÇÁ¢¼ö ¼Û´Þ³»¿ª

°¨Á¤Æò°¡ÇöȲ

¸ñ·Ï ÁÖ¼Ò ±¸Á¶/¿ëµµ/´ëÁö±Ç ¸éÀû ºñ°í
´ëÁö±Ç
¿ª°îµ¿ 20-51 355.1ºÐÀÇ 25.04 25.04 §³
(7.57Æò)
°Ç¹°
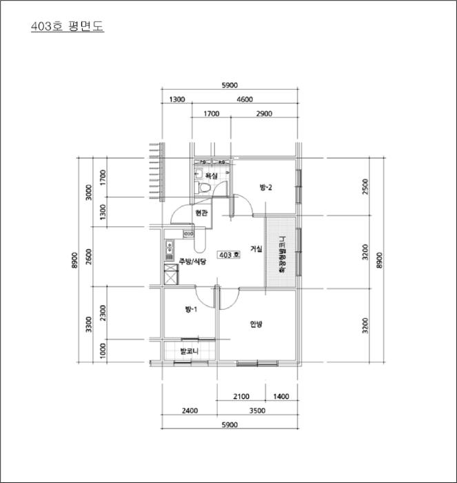
¿ª°îµ¿ 20-51 °¡µ¿ 4Ãþ403È£ ö±ÙÄÜÅ©¸®Æ®±¸Á¶ 41.22 §³
(12.47Æò)
1) À§Ä¡/Á¦2Á¾ÀϹÝÁÖ°ÅÁö¿ª/¹ö½ºÁ¤·ùÀå/ÁöÇÏö/Â÷·®ÃâÀÔ ¿ëÀÌ/ö±ÙÄÜÅ©¸®Æ®±¸Á¶/°³º°³­¹æ/¹æ3 ´õº¸±â
°¨Á¤Æò°¡ ¿äÇ×Ç¥
1)À§Ä¡ ¹× ÁÖÀ§È¯°æ
°æ±âµµ ºÎõ½Ã ¿ø¹Ì±¸ ¿ª°îµ¿ ¼ÒÀç ""Ä«Å縯´ëÇб³¼º½É±³Á¤"" ³²Ãø Àαٿ¡ À§Ä¡ÇÏ´Â ´ë⽺Æä
À̽ººô(´Ù¼¼´ëÁÖÅÃ) °¡µ¿ ³»¿¡ ¼ÒÀçÇϸç, ÀαÙÀÏ´ë´Â ´Ù¼¼´ëÁÖÅÃ, ´Ù°¡±¸ÁÖÅà µîÀ¸·Î ÀÌ·ç
¾îÁø ÁÖ°ÅÁö´ë·Î¼­ ³²Ãø ÀαÙÀ¸·Î ÁöÇÏö1È£¼±ÀÌ Åë°úÇϰí ÀÖÀ½.
2)±³Åë»óȲ
º» °Ç¹°±îÁö Â÷·®ÃâÀÔ ¿ëÀÌÇϰí Àαٿ¡ ¹ö½ºÁ¤·ùÀåÀÌ ¼ÒÀçÇϸç, ¼­Ãø Á÷¼±°Å¸® ¾à550¹ÌÅÍ
ÁöÁ¡¿¡ ¼Ò»ç¿ª(1È£¼±,¼­Çؼ±)ÀÌ À§Ä¡ÇÔ.
3)°Ç¹°ÀÇ ±¸Á¶
ö±ÙÄÜÅ©¸®Æ®±¸Á¶,°æ·®Ã¶°ñ±¸Á¶ (ö±Ù)ÄÜÅ©¸®Æ®ÁöºØ 5Ãþ°Ç ³» 4Ãþ 403È£·Î¼­
¿Üº® : µ¹ºÙÀÓ, ½ºÅæÄÚÆ®, ÆäÀÎÆÃ µî ¸¶°¨.
³»º® : º®Áö ¹× ŸÀÏ µî ¸¶°¨.
âȣ : ÇÏÀ̼¦½Ã ¹× Ä®¶ó¼¦½Ã µî âȣÀÓ.
4)ÀÌ¿ë»óÅÂ
´Ù¼¼´ëÁÖÅÃ(¹æ3, °Å½Ç, ÁÖ¹æ°â½Ä´ç, È­Àå½Ç µî)À¸·Î ÀÌ¿ëÁßÀÓ.
5)¼³ºñ³»¿ª
º¸ÀÏ·¯¼³ºñ¿¡ ÀÇÇÑ °³º°³­¹æ ±¸Á¶À̸ç, À§»ý¼³ºñ, ±Þ.¹è¼ö¼³ºñ, ÃâÀÔ±¸º¸¾È°³Æó¼³ºñ µî
µÇ¾îÀÖÀ½.

6)ÅäÁöÀÇ Çü»ó ¹× ÀÌ¿ë»óÅÂ
Á¦ÇüÀÇ ÅäÁö·Î¼­ ³²ÇÏÇâÀÇ ¿Ï°æ»çÁö¸¦ ÆòźÈ÷ Á¶¼ºÇÏ¿´À¸¸ç, ´Ù¼¼´ëÁÖÅà °ÇºÎÁö·Î ÀÌ¿ë
ÁßÀÓ.
7)ÀÎÁ¢ µµ·Î»óŵî
µ¿ÃøÀ¸·Î Æø5~6¹ÌÅÍ, ³²ÃøÀ¸·Î Æø3¹ÌÅÍ Á¤µµÀÇ Æ÷Àåµµ·Î¿¡ Á¢ÇÔ.
8)ÅäÁöÀÌ¿ë°èȹ ¹× Á¦ÇÑ»óÅÂ
Á¦2Á¾ÀϹÝÁÖ°ÅÁö¿ª, ½Ã°¡Áö°æ°üÁö±¸(ÀϹÝ), ¼Ò·Î3·ù(Æø 8m ¹Ì¸¸)(Á¢ÇÕ) °¡Ãà»çÀ°Á¦Çѱ¸¿ª
(ÀüºÎÁ¦Çѱ¸¿ª)<°¡ÃàºÐ´¢ÀÇ °ü¸® ¹× À̿뿡 °üÇÑ ¹ý·ü>, »ó´ëº¸È£±¸¿ª(°¡Å縯´ë-±³À°Ã»¹®
ÀÇ)<±³À°È¯°æ º¸È£¿¡ °üÇÑ ¹ý·ü>, °ú¹Ð¾ïÁ¦±Ç¿ª<¼öµµ±ÇÁ¤ºñ°èȹ¹ý>
9)°øºÎ¿ÍÀÇ Â÷ÀÌ
¾ø À½.
10)±âŸÂü°í»çÇ×(ÀÓ´ë°ü·Ê ¹× ±âŸ)
ÀÓ´ë°ü°è : ¹Ì »ó ÀÓ.
±â Ÿ : º»°Ç ³»ºÎÀÌ¿ë»óÅ´ °ü°èÀÎ ºÎÀç·Î ÀÎÇÏ¿© °ÇÃ๰ÇöȲµµ ¹× ޹®Á¶»ç¿¡ ÀǰÅ
ÇÏ¿´À¸¸ç, µ¿ À¯Çü °øµ¿ÁÖÅÃÀÇ ÀϹÝÀûÀÎ ¼³ºñ»óȲÀ» ±âÁØÇÏ¿© Æò°¡ÇÏ¿´À¸´Ï
°æ¸ÅÁøÇà½Ã Âü°íÇϽñ⠹ٶ÷.

°ÇÃ๰ÇöȲ

¼ÒÀçÁö °æ±âµµ ºÎõ½Ã ¿ø¹Ì±¸ ¿ª°îµ¿ 20-51¹øÁö
´ëÁö¸éÀû 355.1§³
(107.61Æò)
¿¬¸éÀû 708.77§³
(214.78Æò)
°ÇÃà¸éÀû 211.44§³
(64.07Æò)
¿ëÀû·ü»êÁ¤
¿¬¸éÀû
708.77§³
(214.78Æò)
°ÇÆóÀ² 59.54% ¿ëÀû·ü 199.6%
Áö»óÃþ¼ö 5Ãþ ÁöÇÏÃþ¼ö  
ÁÖ¿ëµµ °øµ¿ÁÖÅà ±¸Á¶ ö±ÙÄÜÅ©¸®Æ®±¸Á¶
Âø°øÀÏÀÚ 2011.12.27 »ç¿ë½ÂÀÎÀÏÀÚ 2012.05.17
°ÇÃ๰Ãþº°ÇöȲ [º¸±â]



ÀÓÂ÷ÀÎÇöȲ (¹è´ç¿ä±¸Á¾±âÀÏ: 2025-06-09)



¸Å°¢±âÀÏ 7ÀÏÀü¿¡ °ø°íµÇ¿À´Ï È®ÀÎÇϽñ⠹ٶø´Ï´Ù.


¿©ÀÇÁÖ°æ¸Å Á¶¾ð ÇÑ ¸¶µð

³«Âû ÈÄ¿¡ µî±âºÎ»ó ¼Ò¸êµÇÁö ¾Ê´Â ±Ç¸®´Â ¾ø½À´Ï´Ù.
´ë·«ÀûÀÎ °ËÅäÀǰßÀ̹ǷΠÀÔÂûÀü¿¡ Àü¹®°¡ÀÇ Á¶¾ðÀ» Âü°íÇØ º¸½Ã±æ ±ÇÇØµå¸³´Ï´Ù.
°¨Á¤ ½ÃÁ¡ÀÌ ¿À·¡µÇ¾î °¡°Ýº¯µ¿ÀÌ ÀÖÀ» ¼ö ÀÖ½À´Ï´Ù.
ÀÌ ¹°°ÇÀº 2025³â 3¿ù 24ÀÏ¿¡ °æ¸Å°¡ °³½ÃµÇ¾ú´Âµ¥ Áö±Ý ½ÃÁ¡À¸·Î ¾à 345ÀÏÀÌ ÀÌ °æ°úµÇ¾ú½À´Ï´Ù. °¨Á¤°¡°ÝÀº 345ÀÏ Àü ½ÃÁ¡¿¡¼­ Æò°¡ÇÑ °¡°ÝÀ̹ǷΠ±× »çÀÌ °¡°Ýº¯µ¿ÀÌ ÀÖÀ» ¼ö ÀÖ½À´Ï´Ù. ƯÈ÷ °¡°Ý º¯µ¿ÀÌ ½ÉÇÑ ¾ÆÆÄÆ®´Â À¯ÀÇÇÏ¼Å¾ß ÇÕ´Ï´Ù. °¨Á¤°¡°ÝÀ» ³Ê¹« ¹ÏÁö ¸¶½Ã°í ÇöÀç ½Ç¸Å¹° °¡°Ý°ú ½Ç°Å·¡°¡¸¦ È®ÀÎÇϽñ⠹ٶø´Ï´Ù.
°£È¤ °¨Á¤°¡°Ýº¸´Ù ³ô°Ô ³«ÂûµÇ´Â °æ¿ì°¡ Àִµ¥ ´ëºÎºÐ ÀÌ·± ÀÌÀ¯ÀÔ´Ï´Ù.
¡Ø ¹°°Ç Ű¿öµå : ÁÖ°ÅÁö¿ª/Á¦2Á¾ÀϹÝÁÖ°ÅÁö¿ª/¹ö½ºÁ¤·ùÀå/ÁöÇÏö/Â÷·®ÃâÀÔ ¿ëÀÌ/ö±ÙÄÜÅ©¸®Æ®±¸Á¶/°³º°³­¹æ/¹æ3
Àüü ÄÁ¼³ÆÃÀÌ ºÎ´ã½º·¯¿ì½Å°¡¿ä? ±Ç¸®ºÐ¼®¸¸ ÀÇ·ÚÇϼŵµ ±¦Âú½À´Ï´Ù!
½Ç¼Ó ÀÖ°Ô Çٽɸ¸ ´ãÀº ±Ç¸®ºÐ¼® ¼­ºñ½º!! (±Ç¸®ºÐ¼® + ½Ã¼¼Á¶»ç + ³«Âû°¡ »êÁ¤ + ÀÔÂûÇ¥ ÀÛ¼º¹æ¹ý ±îÁö)
ÃÖ´ë Àüü ÄÁ¼³ÆÃ ºñ¿ëÀÇ 10% ¼öÁØ !!

ÁÖÀÇ»çÇ× (ÃÖ¼±¼øÀ§ ¼³Á¤ÀÏ: )

¸Å°¢À¸·Î ¼Ò¸êµÇÁö ¾Ê´Â µî±âºÎ±Ç¸®:
¸Å°¢À¸·Î ¼³Á¤µÈ °ÍÀ¸·Î º¸´Â Áö»ó±Ç:
¡Ø¹Ì³³°ü¸®ºñ(°ø¿ë) Àμö¿©ºÎ¸¦ ÀÔÂû Àü¿¡ È®ÀÎÇϽñ⠹ٶø´Ï´Ù

 

Áö¿ªºÐ¼®

ÁöÇÏö¸í Á÷¼±°Å¸®

Çб³¸í ÀüÈ­¹øÈ£ ÁÖ¼Ò Á÷¼±°Å¸®

¹ý¿ø

ÀÎõÁö¹æ¹ý¿ø ºÎõÁö¿ø (146-02)°æ±âµµ ºÎõ½Ã ¿ø¹Ì±¸ »óÀÏ·Î 129(»óµ¿)
´ëÇ¥ : 032)320-1114, ¹Î¿ø : 032)320-1234
°üÇÒÁö¿ª : ºÎõ½Ã, ±èÆ÷½Ã

µî±â¼Ò ÀÎõÁö¹æ¹ý¿ø ºÎõÁö¿ø µî±â°ú (´ëÇ¥:1544-0773, ÆÑ½º:(032)320-1484, 320-1485, °æ±âµµ ºÎõ½Ã »óÀÏ·Î 129 (»óµ¿ 445-1))
¼¼¹«¼­ ¼¼¹«¼­ (´ëÇ¥:, ÆÑ½º:, )

Àαٳ«ÂûÅë°è

±â°£ ¸Å°¢°Ç¼ö Æò±Õ°¨Á¤°¡
Æò±Õ¸Å°¢°¡
¸Å°¢°¡À²
Æò±ÕÀ¯Âû¼ö


º» °æ¸ÅÁ¤º¸´Â ¹ý¿øÀÚ·á¿Í ÀÏÄ¡Çϵµ·Ï ÇÏ¿´À¸³ª ±Ç¸®»çÇ׺¯µ¿, ÀÔ·ÂÂø¿À µîÀÇ ¿øÀÎÀ¸·Î »ç½Ç°ú ´Ù¸¦ ¼ö ÀÖ½À´Ï´Ù. ÀÌ¿ë¾à°ü¿¡ ÀǰЏéÃ¥Á¶°ÇÀ¸·Î Á¦°øµÊÀ» ¾Ë¸®¸ç, °æ¸ÅÀÔÂû½Ã ¹Ýµå½Ã °ü·Ã °øºÎ¸¦ ÀçÈ®ÀÎÇϽñ⠹ٶø´Ï´Ù. º¸´Ù Æí¸®ÇÑ °æ¸ÅÁ¤º¸ Á¦°øÀ» À§ÇØ Áö¼ÓÀûÀ¸·Î °³¼±ÇϰڽÀ´Ï´Ù. ÀÌ¿ëÇØ Áּż­ °¨»çÇÕ´Ï´Ù.
°ü½É¹°°ÇÀ¸·Î µî·ÏÇÕ´Ï´Ù