18
ÁÖÅÃ
ûÁÖÁö¹æ¹ý¿ø ÃæÁÖÁö¿ø
 °¨Á¤°¡221,028,900 ¿ø
 ÃÖÀú°¡(100%) 221,028,900 ¿ø
 º¸Áõ±Ý(10%) 22,102,890 ¿ø
 Ã»±¸¾×250,000,000 ¿ø
ÃæÃ»ºÏµµ ÃæÁֽà »êô¸é ¼®Ãµ¸® 367-15
»ç°Ç¹øÈ£ 2025Ÿ°æ30564
°æ¸ÅÁ¾·ùºÎµ¿»ê°­Á¦°æ¸Å
¸Å°¢´ë»óÅäÁö ¹× °Ç¹°Àϰý¸Å°¢
¸Å°¢±âÀÏ    2026.03.16(¿ù) 10:00 ÀÔÂû 13ÀÏÀü    
ÅäÁö¸éÀû1,363.00§³(412.31 Æò)
°Ç¹°¸éÀû153.18§³(46.34 Æò)
乫/¼ÒÀ¯ÀÚ¸Á OOOO OOOOOOO OOO / ¸Á OOOO OOOOOOO OOO
ä±ÇÀÚÈÞOOOOOO
±è¼ºÈÆ ´ëÇ¥ÀÌ»ç
°øÀÎÁß°³»ç, ºÎµ¿»ê°ø°æ¸Å»ç, ÇѾç´ëÇб³ Á¹¾÷
Àü) ÅÂÀÎÄÁ¼³ÆÃ(ÁÖ) ´ëÇ¥ÀÌ»ç
Àü) ¿©ÀÇÁֺε¿»êÁß°³¹ýÀÎ(ÁÖ) ´ëÇ¥ÀÌ»ç
Çö) ¿©ÀÇÁÖ°æ¸Å¹ýÀÎ ´ëÇ¥ÀÌ»ç
010-2371-3237
ÆäÀ̽ººÏ Æ®À§ÅÍ ±¸±Û+
īī¿À½ºÅ丮
īī¿ÀÅå sms¹®ÀÚº¸³»±â
 

±âÀϳ»¿ª

°æ°ú ³¯Â¥ Àú°¨ ÃÖÀú°¡ °á°ú
Á¢¼öÀÏ 2025-05-20 °æ¸ÅÁ¢¼ö
~1ÀÏ 
2025-05-21 °æ¸Å°³½Ã°áÁ¤
~97ÀÏ 
2025-08-25 ¹è´ç¿ä±¸Á¾±âÀÏ
~300ÀÏ 
2026-03-16 90%
198,368,100
º¯°æ
~300ÀÏ 
2026-03-16 100%
221,028,900
ÁøÇà
¹°°Ç¸í¼¼¼­ ÇöȲÁ¶»ç¼­ ¹®°ÇÁ¢¼ö ¼Û´Þ³»¿ª

°¨Á¤Æò°¡ÇöȲ

¸ñ·Ï ÁÖ¼Ò ±¸Á¶/¿ëµµ/´ëÁö±Ç ¸éÀû ºñ°í
ÅäÁö
¼®Ãµ¸® »ê88-28 ÀÓ¾ß 1363 §³
(412.31Æò)
°Ç¹°
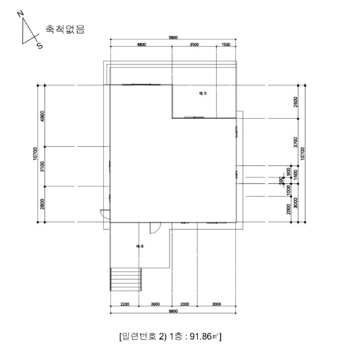
¼®Ãµ¸® 367-15 1Ãþ ÁÖÅà °æ·®Ã¶°ñ±¸Á¶ 91.86 §³
(27.79Æò)
¼®Ãµ¸® 367-15 2Ãþ ÁÖÅà °æ·®Ã¶°ñ±¸Á¶ 61.32 §³
(18.55Æò)
1) À§Ä¡/»ý»ê°ü¸®Áö¿ª/º¸Àü»êÁö/¹ö½ºÁ¤·ùÀå/°£¼±µµ·Î ´õº¸±â
°¨Á¤Æò°¡ ¿äÇ×Ç¥
1)À§Ä¡ ¹× ÁÖÀ§È¯°æ
ÀϷùøÈ£ 2´Â ÃæÃ»ºÏµµ ÃæÁֽà »êô¸é ¼®Ãµ¸® ¼ÒÀç ""¼®Ãµ¼Ò¸® ¸¶À»È¸°ü"" ³²¼­Ãø Àαٿ¡ À§Ä¡Çϸç, ÁÖÀ§´Â ´Üµ¶ÁÖÅÃ, ³ó°æÁö, ÀÓ¾ß µîÀÌ ¼ÒÀçÇÑ Áö¿ªÀ¸·Î¼­, ÁÖÀ§È¯°æÀº º¸ÅëÀÓ.
2)±³Åë»óȲ
ÀϷùøÈ£ 2±îÁö Â÷·®ÀÇ ÁøÃâÀÔÀÌ °¡´ÉÇϳª, ¿ø°Å¸®¿¡ °£¼±µµ·Î ¹× ¹ö½ºÁ¤·ùÀå µîÀÌ ¼ÒÀçÇÏ´Â µî ±³Åë»óȲÀº ´Ù¼Ò ºÒÆíÇÑ ÆíÀÓ.
3)ÇüÅ ¹× ÀÌ¿ë»óÅÂ
ÀϷùøÈ£ 2 : ¿Ï°æ»çÀÇ ºÎÁ¤Çü ÅäÁö·Î¼­, ÅäÁöÀÓ¾ß »óÅÂÀÓ.
4)ÀÎÁ¢ µµ·Î»óÅÂ
º»°Ç ÅäÁö ºÏµ¿ÃøÀ¸·Î Æø ¾à 2~3m ³»¿ÜÀÇ ºñÆ÷Àåµµ·Î¿¡ ÁøÃâÀÔÇÔ.
5)ÅäÁöÀÌ¿ë°èȹ ¹× Á¦ÇÑ»óÅÂ
»ý»ê°ü¸®Áö¿ª °¡Ãà»çÀ°Á¦Çѱ¸¿ª(¼Ò¡¤¸»¡¤¾ç¡¤¿°¼Ò¡¤»ç½¿¡¤Á¥¼Ò¡¤¸ÞÃ߸®)<°¡ÃàºÐ´¢ÀÇ °ü¸® ¹× À̿뿡 °üÇÑ ¹ý·ü>, Áغ¸Àü»êÁö<»êÁö°ü¸®¹ý>.
6)Á¦½Ã¸ñ·Ï ¿ÜÀÇ ¹°°Ç
--.

7)°øºÎ¿ÍÀÇ Â÷ÀÌ
--.
8)±âŸÂü°í»çÇ×(ÀÓ´ë°ü·Ê ¹× ±âŸ)
°¡. º»°Ç ÅäÁö´Â ÀÎÁ¢Áö¿ÍÀÇ °æ°è°¡ ´Ù¼Ò ºÒºÐ¸íÇѹ٠ÁöÀû °øºÎ µîÀ» ÀÌ¿ëÇÏ¿© ¸ñÃø¿¡ ÀǰŠÇöȲÀ» Á¶»çÇÏ¿´À¸¸ç, Á¤È®ÇÑ ÁöÀû°ü·Ã »çÇ×ÀÇ È®ÀÎÀÌ ÇÊ¿äÇÑ °æ¿ì¿¡´Â Ãø·® µîÀ» ÅëÇÑ ÀçÈ®ÀÎÀÌ ÇÊ¿äÇÒ °ÍÀ¸·Î ÆÇ´ÜµÇ´Â¹Ù, °æ¸Å ÁøÇà ¹× ÀÀÂû ½Ã Âü°íÇϽñ⠹ٶ÷.

³ª. º»°Ç ÅäÁö ÀϷùøÈ£ 2¿¡ »êô³ó¾÷Çùµ¿Á¶ÇÕ¿¡¼­ ¼³Á¤ÇÑ Áö»ó±ÇÀÌ Á¸ÀçÇϸç, ÇØ´ç Áö»ó±ÇÀ¸·Î ÀÎÇÏ¿© º»°Ç ÅäÁöÀÇ »ç¿ë¡¤¼öÀÍÀÌ Á¦Çѹ޴ °æ¿ìÀÇ °¨Á¤Æò°¡¾×À» ¡®ÅäÁö °¨Á¤Æò°¡¸í¼¼Ç¥¡¯ ºñ°í¶õ¿¡ ±âÀçÇÏ¿´À¸´Ï, °æ¸Å ÁøÇà ¹× ÀÀÂû ½Ã Âü°íÇϽñ⠹ٶ÷.

´Ù. º»°Ç ÅäÁö ÀϷùøÈ£ 2 ºÏµ¿Ãø ÀϺΠ¸éÀû¿¡ ÈÄ÷ ""»çÁø¿ëÁö, ÁöÀûµµ""¿Í °°ÀÌ Å¸ÀμÒÀ¯·Î ÃßÁ¤µÇ´Â °Ç¹°ÀÌ ¼ÒÀçÇϸç, ŸÀμÒÀ¯°Ç¹°·Î ÀÎÇØ ÅäÁöÀÇ »ç¿ë¡¤¼öÀÍÀÌ Á¦Çѹ޴ °æ¿ìÀÇ °¨Á¤Æò°¡¾×À» ¡®ÅäÁö °¨Á¤Æò°¡¸í¼¼Ç¥¡¯ ºñ°í¶õ¿¡ ±âÀçÇÏ¿´À¸´Ï, °æ¸Å ÁøÇà ¹× ÀÀÂû ½Ã Âü°íÇϽñ⠹ٶ÷.

¶ó. º»°Ç ÅäÁö ÀϷùøÈ£ 2¿¡ ÁøÃâÀÔÇϱâ À§Çؼ­ »çÀ¯µµ·Î¸¦ Áö³ª°¡¾ßÇϱ⠶§¹®¿¡ »ç¿ë·á µîÀÌ ¹ß»ýÇÒ ¼ö ÀÖÀ¸´Ï, °æ¸Å ÁøÇà ¹× ÀÀÂû ½Ã Âü°íÇϽñ⠹ٶ÷.

¸¶. ÀÓ´ë°ü°è´Â ¹Ì»óÀÓ.
1)°Ç¹°ÀÇ ±¸Á¶
ÀϷùøÈ£ 1
°æ·®Ã¶°ñ±¸Á¶ ±âŸÁöºØ 2Ãþ °Ç¹°·Î¼­,
¿Ü º® : µå¶óÀ̺ñÆ® ¸¶°¨ µîÀÓ.
³» º® : º®Áöµµ¹è ¸¶°¨ ¹× ŸÀϺÙÀÓ ¸¶°¨, ºí·°½×±â ¸¶°¨ µîÀÓ.
â È£ : »õ½Ãâȣ µîÀÓ.
2)ÀÌ¿ë»óÅÂ
ÀϷùøÈ£ 1 : ´Üµ¶ÁÖÅÃÀ¸·Î ÀÌ¿ëÁßÀÓ.
3)¼³ºñ³»¿ª
ÀϷùøÈ£ 2 : À§»ý¼³ºñ, ±Þ¹è¼ö¼³ºñ, ³­¹æ¼³ºñ µîÀ» °®Ãß°í ÀÖÀ½.
4)ºÎÇÕ¹° ¹× Á¾¹°
--.
5)°øºÎ¿ÍÀÇ Â÷ÀÌ
--.
6)±âŸÂü°í»çÇ×(ÀÓ´ë°ü·Ê ¹× ±âŸ)
°¡. º»°Ç °Ç¹° ÀϷùøÈ£ 1Àº ÅäÁö¸¦ ¼ö¹ÝÇÏÁö ¾ÊÀº °Ç¹°¸¸ÀÇ °¨Á¤Æò°¡·Î¼­, ÅäÁöÀÇ ¼ö¹Ý¿©ºÎ¿¡ ±¸¾Ö¾øÀÌ °Ç¹°¸¸À» °¨Á¤Æò°¡ÇÏ¿´À¸´Ï, °æ¸Å ÁøÇà ¹× ÀÀÂû ½Ã Âü°íÇϽñ⠹ٶ÷.

³ª. º»°Ç °Ç¹° ÇöÀåÁ¶»ç½Ã ´©¼ö ¹× »õ½Ãâȣ Æ´¹ß»ý µî ³»¿ëÀÌ Å½¹®Á¶»çµÇ¾úÀ¸¸ç, ±âŸ ¸ñÃøÀ¸·Î ¹ß°ßµÇÁö ¾ÊÀº °áÇÔÀÌ ÀÖÀ» ¼ö ÀÖÀ¸´Ï, °æ¸Å ÁøÇà ¹× ÀÀÂû ½Ã ÀçÈ®ÀÎÇϽñ⠹ٶ÷

´Ù. ÀÓ´ë°ü°è´Â ¹Ì»óÀÓ.
Âü°í
»çÇ×
-Àϰý ¸Å°¢ -¸ñ·Ï 1 ÅäÁö¸¦ ¼ö¹ÝÇÏÁö ¾Ê´Â °Ç¹°¸¸ÀÇ ¸Å°¢À̹ǷΠÀÀÂû½Ã ÁÖÀÇ ¿äÇÔ. -¸ñ·Ï 1 ´©¼ö µî ¸ñÃøÀ¸·Î ¹ß°ßµÇÁö ¾Ê´Â °áÇÔ °¡´É¼º ÀÖÀ½. -¸ñ·Ï 2 À»±¸ ¼øÀ§¹øÈ£ 6¹ø Áö»ó±Ç¼³Á¤µî±â(2016.8.26. Á¦39609È£)´Â ¸»¼ÒµÇÁö ¾Ê°í ¸Å¼öÀο¡°Ô ÀμöµÊ -¸ñ·Ï 2 ÀÎÁ¢Áö¿Í °æ°è°¡ ºÒºÐ¸íÇϹǷΠ°æ°èÃø·® ÇÊ¿ä -¸ñ·Ï 2 ºÏµ¿Ãø ÀϺΠ¸éÀû¿¡ ŸÀμÒÀ¯·Î ÃßÁ¤µÇ´Â °Ç¹°ÀÌ ¼ÒÀç(¹ýÁ¤Áö»ó±Ç¼º¸³¿©ºÎºÒºÐ¸í) -¸ñ·Ï 2 ÁøÃâÀÔÇϱâ À§ÇÏ¿©´Â »çÀ¯µµ·Î¸¦ Áö³ª°¡¾ßÇϱ⠶§¹®¿¡ »ç¿ë·áµîÀÌ ¹ß»ýÇÒ ¼ö ÀÖÀ¸´Ï ÀÀÂû½Ã Âü°í¿ä
¸ñÀû¹° 2¹ø¿¡ ¼ÒÀ¯ÀÚ ¹Ì»óÀÇ Ã¶°ñÁ¶ ÆÇ³ÚÁöºØ ´Ù¿ëµµ½Ç ÀϺΠ°ÉÃÄÁ® º¸¿©Áö³ª, °æ°è°¡ ºÒºÐ¸í ÇϹǷΠ°æ°è Ãø·® ¿äÇϰí, ÀϺΠµµ·Î·Î ÀÌ¿ëÁßÀÓ.

°ÇÃ๰ÇöȲ

¼ÒÀçÁö ÃæÃ»ºÏµµ ÃæÁֽà »êô¸é ¼®Ãµ¸® 367-15¹øÁö
´ëÁö¸éÀû 660§³
(200Æò)
¿¬¸éÀû 153.18§³
(46.42Æò)
°ÇÃà¸éÀû 91.86§³
(27.84Æò)
¿ëÀû·ü»êÁ¤
¿¬¸éÀû
153.18§³
(46.42Æò)
°ÇÆóÀ² 13.92% ¿ëÀû·ü 23.21%
Áö»óÃþ¼ö 2Ãþ ÁöÇÏÃþ¼ö  
ÁÖ¿ëµµ ´Üµ¶ÁÖÅà ±¸Á¶ °æ·®Ã¶°ñ±¸Á¶
Âø°øÀÏÀÚ 2019.04.13 »ç¿ë½ÂÀÎÀÏÀÚ 2021.12.09
°ÇÃ๰Ãþº°ÇöȲ [º¸±â]


±¹ÅäºÎ½Ç°Å·¡°¡ ÃæÃ»ºÏµµ ÃæÁֽà »êô¸é

¡Ü ¸Å¸Å

¸éÀû(§³), ±Ý¾×(¸¸¿ø)

¡Ü Àü¼¼

¸éÀû(§³), ±Ý¾×(¸¸¿ø)

°è¾àÀÏ¿¬¸éÀûº¸Áõ±Ý¿ù¼¼°ÇÃà
26.01.16104.326,0002005
26.01.0872.65,0001925
25.08.2170.747,7002018
25.07.1851.9611,5002022
25.07.0288.0115,5002014
¢Ñ ´õº¸±â

µî±âºÎµîº» ¿ä¾à(°Ç¹°)

  Á¢¼öÀÏÀÚ µî±â¸ñÀû/±Ç¸®ÀÚ ±Ç¸®±Ý¾× ±âÁØ
1 2021³â12¿ù13ÀÏ
¼ÒÀ¯±Ç
±èOO
¼Ò¸ê
2 2021³â12¿ù14ÀÏ
Àü¼¼±Ç
ÈÞOOOO
250,000,000 ¼Ò¸ê±âÁØ
3 2025³â5¿ù21ÀÏ
°­Á¦°æ¸Å
ÈÞOOOO
¼Ò¸ê

ÀÓÂ÷ÀÎÇöȲ (¹è´ç¿ä±¸Á¾±âÀÏ: 2025-08-25)

ÀÓÂ÷ÀÎ ¿ëµµ/Á¡À¯ º¸Áõ±Ý/¿ù¼¼ ´ëÇ×·Â
ÀüÀÔÀÏ/È®Á¤ÀÏ ¹è´ç¿ä±¸ ºñ°í
±èOO ¹Ì»ó ¹Ì»ó
[¿ù]¹Ì»ó
X
2024.12.27
¹Ì»ó
ÈÞOOOOOO ¸ñÀû¹°ÀüºÎ 2¾ï5õ¸¸¿ø
[¿ù]¾øÀ½
¹ÌÀüÀÔ
2021.10.18ºÎÅÍ2³â°£(°è¾à°»½Å)

¿©ÀÇÁÖ°æ¸Å Á¶¾ð ÇÑ ¸¶µð

³«Âû ÈÄ¿¡ µî±âºÎ»ó ¼Ò¸êµÇÁö ¾Ê´Â ±Ç¸®ÀÔ´Ï´Ù.
-¸ñ·Ï 2 À»±¸ ¼øÀ§¹øÈ£ 6¹ø Áö»ó±Ç¼³Á¤µî±â(2016.8.26. Á¦39609È£)´Â ¸»¼ÒµÇÁö ¾Ê°í ¸Å¼öÀο¡°Ô ÀμöµÊ (°¨Á¤°¡°ÝÀº À̸¦ ¹Ý¿µ ÇÑ ´Ü°¡ÀÓ)
¹ýÁ¤Áö»ó±ÇÀÌ ¼º¸³ÇÒ ¿©Áö°¡ ÀÖ´Â ¹°°ÇÀÔ´Ï´Ù
¡Ø ¹°°Ç Ű¿öµå : °ü¸®Áö¿ª/»ý»ê°ü¸®Áö¿ª/º¸Àü»êÁö/¹ö½ºÁ¤·ùÀå/°£¼±µµ·Î
Àüü ÄÁ¼³ÆÃÀÌ ºÎ´ã½º·¯¿ì½Å°¡¿ä? ±Ç¸®ºÐ¼®¸¸ ÀÇ·ÚÇϼŵµ ±¦Âú½À´Ï´Ù!
½Ç¼Ó ÀÖ°Ô Çٽɸ¸ ´ãÀº ±Ç¸®ºÐ¼® ¼­ºñ½º!! (±Ç¸®ºÐ¼® + ½Ã¼¼Á¶»ç + ³«Âû°¡ »êÁ¤ + ÀÔÂûÇ¥ ÀÛ¼º¹æ¹ý ±îÁö)
ÃÖ´ë Àüü ÄÁ¼³ÆÃ ºñ¿ëÀÇ 10% ¼öÁØ !!

ÁÖÀÇ»çÇ× (ÃÖ¼±¼øÀ§ ¼³Á¤ÀÏ: ¸ñ·Ï 1 2021.12.14. Àü¼¼ ±Ç ¼³Á¤ ¸ñ·Ï 2 2025.02.13. °¡¾Ð ·ù)

¸Å°¢À¸·Î ¼Ò¸êµÇÁö ¾Ê´Â µî±âºÎ±Ç¸®: -¸ñ·Ï 2 À»±¸ ¼øÀ§¹øÈ£ 6¹ø Áö»ó±Ç¼³Á¤µî±â(2016.8.26. Á¦39609È£)´Â ¸»¼ÒµÇÁö ¾Ê°í ¸Å¼öÀο¡°Ô ÀμöµÊ (°¨Á¤°¡°ÝÀº À̸¦ ¹Ý¿µ ÇÑ ´Ü°¡ÀÓ)
¸Å°¢À¸·Î ¼³Á¤µÈ °ÍÀ¸·Î º¸´Â Áö»ó±Ç: -¸ñ·Ï 2 ºÏµ¿Ãø ÀϺΠ¸éÀû¿¡ ŸÀμÒÀ¯·Î ÃßÁ¤µÇ´Â °Ç¹°ÀÌ ¼ÒÀç(¹ýÁ¤Áö»ó±Ç¼º¸³¿©ºÎ ºÒºÐ¸í, °¨Á¤°¡°ÝÀº À̸¦ ¹Ý¿µÇÑ ´Ü°¡ÀÓ)
-Àϰý ¸Å°¢ -¸ñ·Ï 1 ÅäÁö¸¦ ¼ö¹ÝÇÏÁö ¾Ê´Â °Ç¹°¸¸ÀÇ ¸Å°¢À̹ǷΠÀÀÂû½Ã ÁÖÀÇ ¿äÇÔ. -¸ñ·Ï 1 ´©¼ö µî ¸ñÃøÀ¸·Î ¹ß°ßµÇÁö ¾Ê´Â °áÇÔ °¡´É¼º ÀÖÀ½. -¸ñ·Ï 2 À»±¸ ¼øÀ§¹øÈ£ 6¹ø Áö»ó±Ç¼³Á¤µî±â(2016.8.26. Á¦39609È£)´Â ¸»¼ÒµÇÁö ¾Ê°í ¸Å¼öÀο¡°Ô ÀμöµÊ -¸ñ·Ï 2 ÀÎÁ¢Áö¿Í °æ°è°¡ ºÒºÐ¸íÇϹǷΠ°æ°èÃø·® ÇÊ¿ä -¸ñ·Ï 2 ºÏµ¿Ãø ÀϺΠ¸éÀû¿¡ ŸÀμÒÀ¯·Î ÃßÁ¤µÇ´Â °Ç¹°ÀÌ ¼ÒÀç(¹ýÁ¤Áö»ó±Ç¼º¸³¿©ºÎºÒºÐ¸í) -¸ñ·Ï 2 ÁøÃâÀÔÇϱâ À§ÇÏ¿©´Â »çÀ¯µµ·Î¸¦ Áö³ª°¡¾ßÇϱ⠶§¹®¿¡ »ç¿ë·áµîÀÌ ¹ß»ýÇÒ ¼ö ÀÖÀ¸´Ï ÀÀÂû½Ã Âü°í¿ä
¡Ø¹Ì³³°ü¸®ºñ(°ø¿ë) Àμö¿©ºÎ¸¦ ÀÔÂû Àü¿¡ È®ÀÎÇϽñ⠹ٶø´Ï´Ù

 

Áö¿ªºÐ¼®

ÁöÇÏö¸í Á÷¼±°Å¸®

Çб³¸í ÀüÈ­¹øÈ£ ÁÖ¼Ò Á÷¼±°Å¸®

¹ý¿ø

ûÁÖÁö¹æ¹ý¿ø ÃæÁÖÁö¿ø (273-57)ÃæÃ»ºÏµµ ÃæÁֽà °è¸í´ë·Î 103 (±³Çö2µ¿ 720-2)
´ëÇ¥ : 043)841-9119
°üÇÒÁö¿ª : À½¼º±º, ÃæÁÖ½Ã

µî±â¼Ò ûÁÖÁö¹æ¹ý¿ø ÃæÁÖÁö¿ø µî±â°è (´ëÇ¥:1544-0773, ÆÑ½º:(043)848-6461~2, ÃæºÏ ÃæÁֽà °è¸í´ë·Î 103 (±³Çöµ¿ 720-2))
¼¼¹«¼­ ÃæÁÖ¼¼¹«¼­ (´ëÇ¥:043-841-62, ÆÑ½º:043-845-3320, ÃæÃ»ºÏµµ ÃæÁÖ½Ã Ãæ¿ø´ë·Î 724 (±Ý¸ªµ¿))

Àαٳ«ÂûÅë°è

±â°£ ¸Å°¢°Ç¼ö Æò±Õ°¨Á¤°¡
Æò±Õ¸Å°¢°¡
¸Å°¢°¡À²
Æò±ÕÀ¯Âû¼ö


º» °æ¸ÅÁ¤º¸´Â ¹ý¿øÀÚ·á¿Í ÀÏÄ¡Çϵµ·Ï ÇÏ¿´À¸³ª ±Ç¸®»çÇ׺¯µ¿, ÀÔ·ÂÂø¿À µîÀÇ ¿øÀÎÀ¸·Î »ç½Ç°ú ´Ù¸¦ ¼ö ÀÖ½À´Ï´Ù. ÀÌ¿ë¾à°ü¿¡ ÀǰЏéÃ¥Á¶°ÇÀ¸·Î Á¦°øµÊÀ» ¾Ë¸®¸ç, °æ¸ÅÀÔÂû½Ã ¹Ýµå½Ã °ü·Ã °øºÎ¸¦ ÀçÈ®ÀÎÇϽñ⠹ٶø´Ï´Ù. º¸´Ù Æí¸®ÇÑ °æ¸ÅÁ¤º¸ Á¦°øÀ» À§ÇØ Áö¼ÓÀûÀ¸·Î °³¼±ÇϰڽÀ´Ï´Ù. ÀÌ¿ëÇØ Áּż­ °¨»çÇÕ´Ï´Ù.
°ü½É¹°°ÇÀ¸·Î µî·ÏÇÕ´Ï´Ù