276
´Ù¼¼´ë(ºô¶ó)
ÀÎõÁö¹æ¹ý¿ø
 °¨Á¤°¡253,000,000 ¿ø
 ÃÖÀú°¡(49%) 123,970,000 ¿ø
 º¸Áõ±Ý(10%) 12,397,000 ¿ø
 Ã»±¸¾×229,000,000 ¿ø
ÀÎõ±¤¿ª½Ã ³²µ¿±¸ Àå¼öµ¿ 780-8 Àå¼öµå¸²ºô 5Ãþ502È£
»ç°Ç¹øÈ£ 2025Ÿ°æ511326
°æ¸ÅÁ¾·ùºÎµ¿»ê°­Á¦°æ¸Å
¸Å°¢´ë»óÅäÁö ¹× °Ç¹°Àϰý ¸Å°¢
¸Å°¢±âÀÏ    2026.05.18(¿ù) 10:00 ÀÔÂû 2ÀÏÀü    
ÅäÁö¸éÀû35.17§³(10.64 Æò)
°Ç¹°¸éÀû57.25§³(17.32 Æò)
乫/¼ÒÀ¯ÀÚÈ«OO / È«OO
ä±ÇÀÚÁÖOOOOOOO
±è¼ºÈÆ ´ëÇ¥ÀÌ»ç
°øÀÎÁß°³»ç, ºÎµ¿»ê°ø°æ¸Å»ç, ÇѾç´ëÇб³ Á¹¾÷
Àü) ÅÂÀÎÄÁ¼³ÆÃ(ÁÖ) ´ëÇ¥ÀÌ»ç
Àü) ¿©ÀÇÁֺε¿»êÁß°³¹ýÀÎ(ÁÖ) ´ëÇ¥ÀÌ»ç
Çö) ¿©ÀÇÁÖ°æ¸Å¹ýÀÎ ´ëÇ¥ÀÌ»ç
010-2371-3237
ÆäÀ̽ººÏ Æ®À§ÅÍ ±¸±Û+
īī¿À½ºÅ丮
īī¿ÀÅå sms¹®ÀÚº¸³»±â
 

±âÀϳ»¿ª

°æ°ú ³¯Â¥ Àú°¨ ÃÖÀú°¡ °á°ú
Á¢¼öÀÏ 2025-08-04 °æ¸ÅÁ¢¼ö
~1ÀÏ 
2025-08-05 °æ¸Å°³½Ã°áÁ¤
~84ÀÏ 
2025-10-27 ¹è´ç¿ä±¸Á¾±âÀÏ
~221ÀÏ 
2026-03-13 100%
253,000,000
À¯Âû
~254ÀÏ 
2026-04-15 70%
177,100,000
À¯Âû
~287ÀÏ 
2026-05-18 49%
123,970,000
ÁøÇà
¹°°Ç¸í¼¼¼­ ÇöȲÁ¶»ç¼­ ¹®°ÇÁ¢¼ö ¼Û´Þ³»¿ª

°¨Á¤Æò°¡ÇöȲ

¸ñ·Ï ÁÖ¼Ò ±¸Á¶/¿ëµµ/´ëÁö±Ç ¸éÀû ºñ°í
´ëÁö±Ç
Àå¼öµ¿ 780-8 279.7ºÐÀÇ 35.17 35.17 §³
(10.64Æò)
°Ç¹°
Àå¼öµ¿ 780-8 5Ãþ502È£ ö±ÙÄÜÅ©¸®Æ®±¸Á¶ 57.25 §³
(17.32Æò)
1) À§Ä¡/Á¦2Á¾ÀϹÝÁÖ°ÅÁö¿ª/Á¦1Á¾Áö±¸´ÜÀ§°èȹ±¸¿ª/³ë¼±¹ö½ºÁ¤·ùÀå/ö±ÙÄÜÅ©¸®Æ®±¸Á¶/°æ»çÁöºØ ´õº¸±â
°¨Á¤Æò°¡ ¿äÇ×Ç¥
1)À§Ä¡ ¹× ÁÖÀ§È¯°æ
º»°ÇÀº ÀÎõ±¤¿ª½Ã ³²µ¿±¸ Àå¼öµ¿ ¼ÒÀç 'ÀÎõ±¤¿ª½Ã û¼Ò³â¼ö·Ã°ü' ³²µ¿Ãø Àαٿ¡ À§Ä¡Çϰí ÀÖÀ¸¸ç, Àαٿ¡ ´Ù¼¼´ëÁÖÅÃ, ´Üµ¶ÁÖÅà ¹× ±Ù¸°»ýȰ½Ã¼³ÀÌ È¥ÀçÇϰí ÀÖ´Â Áö¿ªÀ¸·Î Á¦¹Ý ÁÖÀ§È¯°æÀº º¸ÅëÀÓ.
2)±³Åë»óȲ
º»°Ç °Ç¹°±îÁö Â÷·® Á¢±Ù °¡´ÉÇϸç, Àαٿ¡ ÀÎõ2È£¼± ÀÎõ´ë°ø¿ø¿ª ¹× ³ë¼±¹ö½ºÁ¤·ùÀå µîÀÌ ¼ÒÀçÇÏ´Â µî Á¦¹Ý ±³Åë»óȲÀº º¸ÅëÀÓ.
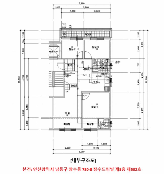
3)°Ç¹°ÀÇ ±¸Á¶
ö±ÙÄÜÅ©¸®Æ®±¸Á¶ °æ»çÁöºØ 5Ãþ °Ç¹°
(»ç¿ë½ÂÀÎÀÏÀÚ : 2017.05.01) Á¦5Ãþ Á¦502È£·Î¼­,

¿Üº® : µå¶óÀ̺ñÆ® ¸¶°¨ µî
âȣ : ¼¦½Ãâȣ µîÀÓ.
4)ÀÌ¿ë»óÅÂ
±âÁؽÃÁ¡ ÇöÀç ´Ù¼¼´ëÁÖÅÃÀ¸·Î ÀÌ¿ëÁßÀÓ.
5)¼³ºñ³»¿ª
±âº»ÀûÀÎ ±Þ¹è¼ö ¹× À§»ý¼³ºñ, ³­¹æ¼³ºñ, ½Â°­±â¼³ºñ µîÀÌ ±¸ºñµÇ¾î ÀÖÀ½.
6)ÅäÁöÀÇ Çü»ó ¹× ÀÌ¿ë»óÅÂ
Á¤¹æÇü¿¡ °¡±î¿î ÆòÁö·Î¼­ °øµ¿ÁÖÅÃ(´Ù¼¼´ëÁÖÅÃ) µîÀÇ °ÇºÎÁö·Î ÀÌ¿ëÁßÀÓ.
7)ÀÎÁ¢ µµ·Î»óŵî
º»°Ç ºÏÃø ¹× ¼­ÃøÀ¸·Î ³ëÆø ¾à 8m ³»¿ÜÀÇ µµ·Î¿Í Á¢ÇÔ.
8)ÅäÁöÀÌ¿ë°èȹ ¹× Á¦ÇÑ»óÅÂ
Á¦2Á¾ÀϹÝÁÖ°ÅÁö¿ª, Á¦1Á¾Áö±¸´ÜÀ§°èȹ±¸¿ª(Àå¼ö±¸È¹) °¡Ãà»çÀ°Á¦Çѱ¸¿ª(2013-03-08)((¹®ÀÇ:³²µ¿±¸È¯°æº¸Àü°ú 032-453-2343))<°¡ÃàºÐ´¢ÀÇ °ü¸® ¹× À̿뿡 °üÇÑ ¹ý·ü>, °ú¹Ð¾ïÁ¦±Ç¿ª<¼öµµ±ÇÁ¤ºñ°èȹ¹ý>
9)°øºÎ¿ÍÀÇ Â÷ÀÌ
º»°ÇÀÇ ÀÌ¿ë»óÅ ¹× ³»ºÎ±¸Á¶µµ´Â Æó¹®ºÎÀç µîÀ¸·Î ÀÎÇØ Á¤È®ÇÑ ³»ºÎ È®ÀÎÀÌ ºÒ°¡´ÉÇÏ¿© ¿ÜºÎ °üÂû ¹× °ÇÃ๰´ëÀå»ó °ÇÃ๰ÇöȲµµ µî¿¡ ÀÇÇØ ÀÛ¼ºµÇ¾î ½ÇÁ¦ ÀÌ¿ë»óÅ ¹× ³»ºÎ ±¸Á¶µµ¿Í »óÀÌÇÒ ¼ö ÀÖÀ¸¸ç, º»°ÇÀÇ °æ¿ì ¿ÜºÎ°üÂû ¹× ޹®Á¶»ç °á°ú ´Ù¶ôÀÌ ÀÖ´Â °ÍÀ¸·Î ÃßÁ¤µÇ¾î À̸¦ °¨¾ÈÇÏ¿© Æò°¡ÇÏ¿´À¸´Ï °æ¸Å ÁøÇà½Ã Âü°í ¹Ù¶÷.
10)±âŸÂü°í»çÇ×(ÀÓ´ë°ü·Ê ¹× ±âŸ)
ÀÓ´ë°ü°è´Â ¹Ì»óÀÓ.
Âü°í
»çÇ×
°øºÎ ¹Ì±âÀç ´Ù¶ô Æ÷ÇÔ
º»°ÇÀº ºô

°ÇÃ๰ÇöȲ

¼ÒÀçÁö ÀÎõ±¤¿ª½Ã ³²µ¿±¸ Àå¼öµ¿ 780-8¹øÁö
´ëÁö¸éÀû 279.7§³
(84.76Æò)
¿¬¸éÀû 559.38§³
(169.51Æò)
°ÇÃà¸éÀû 162.85§³
(49.35Æò)
¿ëÀû·ü»êÁ¤
¿¬¸éÀû
559.38§³
(169.51Æò)
°ÇÆóÀ² 58.2231% ¿ëÀû·ü 199.9928%
Áö»óÃþ¼ö 5Ãþ ÁöÇÏÃþ¼ö  
ÁÖ¿ëµµ °øµ¿ÁÖÅà ±¸Á¶ ö±ÙÄÜÅ©¸®Æ®±¸Á¶
Âø°øÀÏÀÚ 2016.09.07 »ç¿ë½ÂÀÎÀÏÀÚ 2017.05.01
°ÇÃ๰Ãþº°ÇöȲ [º¸±â]


±¹ÅäºÎ½Ç°Å·¡°¡ ÀÎõ±¤¿ª½Ã ³²µ¿±¸ Àå¼öµ¿

¡Ü ¸Å¸Å

¸éÀû(§³), ±Ý¾×(¸¸¿ø)

¡Ü Àü¼¼

¸éÀû(§³), ±Ý¾×(¸¸¿ø)

°è¾àÀϰǹ°¸íĪÃþ¿¬¸éÀûº¸Áõ±Ý¿ù¼¼°ÇÃà
26.04.22±¤¹éµå¸²ºôAµ¿(778-5)349.5913,0002010
26.04.18(790-4)251.65500402015
26.04.18¸¶ÀÎij½½1µ¿(781-5)336.0610,0002011
26.04.14Áß¾ÓÈúŸ¿î(783-14)268.0712,00002008
26.04.12ÇѼָ®Ä¡ºô201µ¿248.191,000602010
¢Ñ ´õº¸±â

µî±âºÎµîº» ¿ä¾à(°Ç¹°)

  Á¢¼öÀÏÀÚ µî±â¸ñÀû/±Ç¸®ÀÚ ±Ç¸®±Ý¾× ±âÁØ
1 2021³â2¿ù10ÀÏ
¼ÒÀ¯±Ç
ȫOO
¼Ò¸ê
2 2024³â3¿ù12ÀÏ
ÀÓÂ÷±Ç¼³Á¤
ÃÖOO
229,000,000 Àμö
3 2025³â8¿ù5ÀÏ
°­Á¦°æ¸Å
ÁÖOOOO
¼Ò¸ê±âÁØ

ÀÓÂ÷ÀÎÇöȲ (¹è´ç¿ä±¸Á¾±âÀÏ: 2025-10-27)

ÀÓÂ÷ÀÎ ¿ëµµ/Á¡À¯ º¸Áõ±Ý/¿ù¼¼ ´ëÇ×·Â
ÀüÀÔÀÏ/È®Á¤ÀÏ ¹è´ç¿ä±¸ ºñ°í
ÁÖOOOOOOOOOOOOOOOO ÀüºÎ 229,000,000
O
2022.1.28.
2021.12.14.
2025.10.27. 2022.1.28.~2024.1.28.
ÃÖOO ÀüºÎ 229,000,000
O
2022.1.28.
2021.12.14.
2022.1.28.~
ºñ°í
(¸Å°¢¹°°Ç
¸í¼¼¼­)
ÁÖÅõµ½Ãº¸Áõ°ø»ç (ÀÓÂ÷ÀÎ:ÃÖ¿µÇØ):ÁÖÅÃÀÓÂ÷±ÇÀÚÀÎ ÃÖ¿µÇØÀÇ ÀÓÂ÷º¸Áõ±Ý¹Ýȯä±ÇÀ» ¾ç¼öÇÑ ½Â°èÀÎÀ¸·Î¼­ ½Åûä±ÇÀÚÀÓ. ÀÌ »ç °Ç¿¡¼­ ÀÓÂ÷º¸Áõ±Ý Àü¾×À» ¹è´ç¹ÞÁö ¸øÇÏ´õ¶óµµ ¸Å¼öÀο¡ ´ëÇÑ ÀÜÁ¸ ÀÓÂ÷º¸Áõ±Ý¹Ýȯä±ÇÀ» Æ÷±âÇϰí ÁÖÅÃÀÓÂ÷±Çµî±âÀÇ ¸»¼Ò¿¡ µ¿ÀÇÇÑ´Ù´Â ÃëÁöÀÇ È®¾à¼­¸¦ Á¦ÃâÇÔ

¿©ÀÇÁÖ°æ¸Å Á¶¾ð ÇÑ ¸¶µð

¸Å°¢¹°°Ç¸í¼¼ ºñ°í³­¿¡ ±âÀçµÈ ³»¿ëÀÔ´Ï´Ù.
ÁÖÅõµ½Ãº¸Áõ°ø»ç (ÀÓÂ÷ÀÎ:ÃÖ¿µÇØ):ÁÖÅÃÀÓÂ÷±ÇÀÚÀÎ ÃÖ¿µÇØÀÇ ÀÓÂ÷º¸Áõ±Ý¹Ýȯä±ÇÀ» ¾ç¼öÇÑ ½Â°èÀÎÀ¸·Î¼­ ½Åûä±ÇÀÚÀÓ. ÀÌ »ç °Ç¿¡¼­ ÀÓÂ÷º¸Áõ±Ý Àü¾×À» ¹è´ç¹ÞÁö ¸øÇÏ´õ¶óµµ ¸Å¼öÀο¡ ´ëÇÑ ÀÜÁ¸ ÀÓÂ÷º¸Áõ±Ý¹Ýȯä±ÇÀ» Æ÷±âÇϰí ÁÖÅÃÀÓÂ÷±Çµî±âÀÇ ¸»¼Ò¿¡ µ¿ÀÇÇÑ´Ù´Â ÃëÁöÀÇ È®¾à¼­¸¦ Á¦ÃâÇÔ
³«Âû ÈÄ¿¡ µî±âºÎ»ó ¼Ò¸êµÇÁö ¾Ê´Â ±Ç¸®ÀÔ´Ï´Ù.
À»±¸ ¼øÀ§ 1¹ø ÁÖÅÃÀÓÂ÷±Çµî±â(´Ù¸¸ ÁÖÅõµ½Ãº¸Áõ°ø»çÀÇ ¸»¼Òµ¿ÀÇ È®¾à¼­°¡ Á¦ÃâµÊ)
¼±¼øÀ§ ÀÓÂ÷±Çµî±â°¡ µÇ¾î ÀÖ½À´Ï´Ù.
¡Ø ¹°°Ç Ű¿öµå : ÁÖ°ÅÁö¿ª/Á¦2Á¾ÀϹÝÁÖ°ÅÁö¿ª/Áö±¸´ÜÀ§°èȹ±¸¿ª/Á¦1Á¾Áö±¸´ÜÀ§°èȹ±¸¿ª/¹ö½ºÁ¤·ùÀå/³ë¼±¹ö½ºÁ¤·ùÀå/ö±ÙÄÜÅ©¸®Æ®±¸Á¶/°æ»çÁöºØ
Àüü ÄÁ¼³ÆÃÀÌ ºÎ´ã½º·¯¿ì½Å°¡¿ä? ±Ç¸®ºÐ¼®¸¸ ÀÇ·ÚÇϼŵµ ±¦Âú½À´Ï´Ù!
½Ç¼Ó ÀÖ°Ô Çٽɸ¸ ´ãÀº ±Ç¸®ºÐ¼® ¼­ºñ½º!! (±Ç¸®ºÐ¼® + ½Ã¼¼Á¶»ç + ³«Âû°¡ »êÁ¤ + ÀÔÂûÇ¥ ÀÛ¼º¹æ¹ý ±îÁö)
ÃÖ´ë Àüü ÄÁ¼³ÆÃ ºñ¿ëÀÇ 10% ¼öÁØ !!

ÁÖÀÇ»çÇ× (ÃÖ¼±¼øÀ§ ¼³Á¤ÀÏ: 2025.8.5. °­Á¦°æ¸Å °³½Ã ¼³Á¤ °áÁ¤)

¸Å°¢À¸·Î ¼Ò¸êµÇÁö ¾Ê´Â µî±âºÎ±Ç¸®: À»±¸ ¼øÀ§ 1¹ø ÁÖÅÃÀÓÂ÷±Çµî±â(´Ù¸¸ ÁÖÅõµ½Ãº¸Áõ°ø»çÀÇ ¸»¼Òµ¿ÀÇ È®¾à¼­°¡ Á¦ÃâµÊ)
¸Å°¢À¸·Î ¼³Á¤µÈ °ÍÀ¸·Î º¸´Â Áö»ó±Ç:
¿Ü°ü ¹× ޹® °á°ú ¼ÒÀçÇÏ´Â °ÍÀ¸·Î ÃßÁ¤µÇ´Â °øºÎ ¹Ì±âÀç ´Ù¶ô Æ÷ÇÔ
¡Ø¹Ì³³°ü¸®ºñ(°ø¿ë) Àμö¿©ºÎ¸¦ ÀÔÂû Àü¿¡ È®ÀÎÇϽñ⠹ٶø´Ï´Ù

 

Áö¿ªºÐ¼®

ÁöÇÏö¸í Á÷¼±°Å¸®

Çб³¸í ÀüÈ­¹øÈ£ ÁÖ¼Ò Á÷¼±°Å¸®

¹ý¿ø

ÀÎõÁö¹æ¹ý¿ø (222-20)ÀÎõ±¤¿ª½Ã ¹ÌÃßȦ±¸ ¼Ò¼º·Î 163¹ø±æ 17(ÇÐÀ͵¿)
´ëÇ¥ : 032)860-1113~4
°üÇÒÁö¿ª : Áß±¸, µ¿±¸, ³²±¸, ¿¬¼ö±¸, ³²µ¿±¸, ºÎÆò±¸, °è¾ç±¸, ¼­±¸, ¿ËÁø±º, °­È­±º

µî±â¼Ò ÀÎõÁö¹æ¹ý¿ø º»¿ø µî±â±¹ (´ëÇ¥:1544-0773, ÆÑ½º:(032)620-9099, ÀÎõ±¤¿ª½Ã ¹ÌÃßȦ±¸ °æ¿ø´ë·Î 881(Á־ȵ¿ 983))
¼¼¹«¼­ ³²ÀÎõ¼¼¹«¼­ (´ëÇ¥:032-460-52, ÆÑ½º:032-463-5778, ÀÎõ±¤¿ª½Ã ³²µ¿±¸ ÀÎÇÏ·Î 548 (±¸¿ùµ¿))

Àαٳ«ÂûÅë°è

±â°£ ¸Å°¢°Ç¼ö Æò±Õ°¨Á¤°¡
Æò±Õ¸Å°¢°¡
¸Å°¢°¡À²
Æò±ÕÀ¯Âû¼ö
3°³¿ù 83°Ç 130,301,205¿ø
75,989,100¿ø
57%
2.6ȸ
6°³¿ù 164°Ç 125,970,732¿ø
73,776,358¿ø
57%
2.5ȸ
12°³¿ù 297°Ç 129,446,532¿ø
78,385,614¿ø
59%
2.3ȸ


º» °æ¸ÅÁ¤º¸´Â ¹ý¿øÀÚ·á¿Í ÀÏÄ¡Çϵµ·Ï ÇÏ¿´À¸³ª ±Ç¸®»çÇ׺¯µ¿, ÀÔ·ÂÂø¿À µîÀÇ ¿øÀÎÀ¸·Î »ç½Ç°ú ´Ù¸¦ ¼ö ÀÖ½À´Ï´Ù. ÀÌ¿ë¾à°ü¿¡ ÀǰЏéÃ¥Á¶°ÇÀ¸·Î Á¦°øµÊÀ» ¾Ë¸®¸ç, °æ¸ÅÀÔÂû½Ã ¹Ýµå½Ã °ü·Ã °øºÎ¸¦ ÀçÈ®ÀÎÇϽñ⠹ٶø´Ï´Ù. º¸´Ù Æí¸®ÇÑ °æ¸ÅÁ¤º¸ Á¦°øÀ» À§ÇØ Áö¼ÓÀûÀ¸·Î °³¼±ÇϰڽÀ´Ï´Ù. ÀÌ¿ëÇØ Áּż­ °¨»çÇÕ´Ï´Ù.
°ü½É¹°°ÇÀ¸·Î µî·ÏÇÕ´Ï´Ù