109
¿ÀÇǽºÅÚ
ÀÎõÁö¹æ¹ý¿ø
 °¨Á¤°¡206,000,000 ¿ø
 ÃÖÀú°¡(70%) 144,200,000 ¿ø
 º¸Áõ±Ý(10%) 14,420,000 ¿ø
 Ã»±¸¾×235,000,000 ¿ø
ÀÎõ±¤¿ª½Ã ³²µ¿±¸ °£¼®µ¿ 114-4 ÈÞÇÏÀÓÁÖ°ÇÃ๰ 1µ¿ 2Ãþ203È£
»ç°Ç¹øÈ£ 2025Ÿ°æ507395
°æ¸ÅÁ¾·ùºÎµ¿»ê°­Á¦°æ¸Å
¸Å°¢´ë»óÅäÁö ¹× °Ç¹°Àϰý ¸Å°¢
¸Å°¢±âÀÏ    2026.04.15(¼ö) 10:00 ÀÔÂû 11ÀÏÀü    
ÅäÁö¸éÀû11.04§³(3.34 Æò)
°Ç¹°¸éÀû67.97§³(20.56 Æò)
乫/¼ÒÀ¯ÀÚÀ¯OO / À¯OO
ä±ÇÀÚÁÖOOOOOOO
±è¼ºÈÆ ´ëÇ¥ÀÌ»ç
°øÀÎÁß°³»ç, ºÎµ¿»ê°ø°æ¸Å»ç, ÇѾç´ëÇб³ Á¹¾÷
Àü) ÅÂÀÎÄÁ¼³ÆÃ(ÁÖ) ´ëÇ¥ÀÌ»ç
Àü) ¿©ÀÇÁֺε¿»êÁß°³¹ýÀÎ(ÁÖ) ´ëÇ¥ÀÌ»ç
Çö) ¿©ÀÇÁÖ°æ¸Å¹ýÀÎ ´ëÇ¥ÀÌ»ç
010-2371-3237
ÆäÀ̽ººÏ Æ®À§ÅÍ ±¸±Û+
īī¿À½ºÅ丮
īī¿ÀÅå sms¹®ÀÚº¸³»±â
 

±âÀϳ»¿ª

°æ°ú ³¯Â¥ Àú°¨ ÃÖÀú°¡ °á°ú
Á¢¼öÀÏ 2025-02-12 °æ¸ÅÁ¢¼ö
~1ÀÏ 
2025-02-13 °æ¸Å°³½Ã°áÁ¤
~84ÀÏ 
2025-05-07 ¹è´ç¿ä±¸Á¾±âÀÏ
~394ÀÏ 
2026-03-13 100%
206,000,000
À¯Âû
~427ÀÏ 
2026-04-15 70%
144,200,000
ÁøÇà
¹°°Ç¸í¼¼¼­ ÇöȲÁ¶»ç¼­ ¹®°ÇÁ¢¼ö ¼Û´Þ³»¿ª

°¨Á¤Æò°¡ÇöȲ

¸ñ·Ï ÁÖ¼Ò ±¸Á¶/¿ëµµ/´ëÁö±Ç ¸éÀû ºñ°í
´ëÁö±Ç
°£¼®µ¿ 114-4 374.9ºÐÀÇ 11.036 11.036 §³
(3.34Æò)
°Ç¹°
°£¼®µ¿ 114-4 1µ¿ 2Ãþ203È£ ö±ÙÄÜÅ©¸®Æ®±¸Á¶ 67.968 §³
(20.56Æò)
1) À§Ä¡/ÀϹݻó¾÷Áö¿ª/¹ö½ºÁ¤·ùÀå/ö±ÙÄÜÅ©¸®Æ®±¸Á¶/½º¶óºêÁöºØ ´õº¸±â
°¨Á¤Æò°¡ ¿äÇ×Ç¥
1)À§Ä¡ ¹× ÁÖÀ§È¯°æ
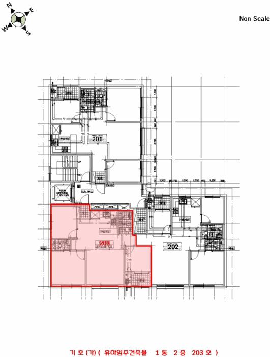
º»°ÇÀº ÀÎõ±¤¿ª½Ã ³²µ¿±¸ °£¼®µ¿ ¼ÒÀç '°£¼®¿À°Å¸®¿ª' ³²µ¿Ãø Àαٿ¡ À§Ä¡ÇÑ ÈÞÇÏÀÓÁÖ°ÇÃà

¹° Á¦1µ¿ Á¦2Ãþ Á¦203È£·Î¼­ ºÎ±ÙÀº ±Ù¸°»ýȰ½Ã¼³, ¿ÀÇǽºÅÚ ¹× °øµ¿ÁÖÅà µîÀ¸·Î Çü¼ºµÇ¾î

ÀÖÀ½.
2)±³Åë»óȲ
º»°Ç±îÁö Â÷·® ÃâÀÔÀÌ °¡´ÉÇϸç, Àαٿ¡ ¹ö½ºÁ¤·ùÀå ¹× '°£¼®¿À°Å¸®¿ª'ÀÌ ¼ÒÀçÇÏ¿© ´ëÁß±³Åë

»óȲÀº ¹«³­½ÃµÊ.
3)°Ç¹°ÀÇ ±¸Á¶
ö±ÙÄÜÅ©¸®Æ®±¸Á¶ ½º¶óºêÁöºØ 14Ãþ°Ç ³» 2Ãþ 203È£·Î,

(ÁýÇÕ°ÇÃ๰´ëÀå»ó »ç¿ë½ÂÀÎÀÏ : 2015.12.03)

¿Ü º® : ¸ð¸£Å¸¸£À§ÆäÀÎÆÃ µî

â È£ : »õ½ÃâÀÓ.
4)ÀÌ¿ë»óÅÂ
¿ÀÇǽºÅÚÀÓ.
5)¼³ºñ³»¿ª
À§»ý¼³ºñ, ±Þ¹è¼ö¼³ºñ, ³­¹æ¼³ºñ, ¿¤·¹º£ÀÌÅÍ µîÀÌ µÇ¾î ÀÖÀ½.
6)ÅäÁöÀÇ Çü»ó ¹× ÀÌ¿ë»óÅÂ
ºÎÁ¤Çü ÅäÁö·Î¼­ ¿ÀÇǽºÅÚ ¹× °øµ¿ÁÖÅà °ÇºÎÁö·Î ÀÌ¿ëÁßÀÓ.
7)ÀÎÁ¢ µµ·Î»óŵî
º»°Ç ÇÊÁö ³²¼­Ãø ¾à 35 m µµ·Î¿Í Á¢ÇÔ.
8)ÅäÁöÀÌ¿ë°èȹ ¹× Á¦ÇÑ»óÅÂ
ÀϹݻó¾÷Áö¿ª, ¹æÈ­Áö±¸, ½Ã°¡Áö°æ°üÁö±¸(2023-12-18), °¡Ãà»çÀ°Á¦Çѱ¸¿ª(2013-03-08)((¹®ÀÇ

:³²µ¿±¸È¯°æº¸Àü°ú 032-453-2343))<°¡ÃàºÐ´¢ÀÇ °ü¸® ¹× À̿뿡 °üÇÑ ¹ý·ü>, °ÇÃà¿ëµµÁö¿ª±â

Ÿ(2019-01-18)(°ÇÃà¹ý Á¦46Á¶(°ÇÃ༱ÀÇ ÁöÁ¤)[°ÇÃà°ú ¹®ÀÇ:032-453-2770])<°ÇÃà¹ý>, »ó´ëº¸

È£±¸¿ª(2020-08-11)(¹®ÀÇ: ÀÎõµ¿ºÎ±³À°Áö¿øÃ» Æò»ý±³À°°Ç°­°ú 460-6087)<±³À°È¯°æ º¸È£¿¡

°üÇÑ ¹ý·ü>, »ó´ëº¸È£±¸¿ª(¹®ÀÇ: ÀÎõµ¿ºÎ±³À°Áö¿øÃ» Æò»ý±³À°°Ç°­°ú 460-6086)<±³À°È¯°æ º¸

È£¿¡ °üÇÑ ¹ý·ü>, °ú¹Ð¾ïÁ¦±Ç¿ª<¼öµµ±ÇÁ¤ºñ°èȹ¹ý>ÀÓ.
9)°øºÎ¿ÍÀÇ Â÷ÀÌ
-
10)±âŸÂü°í»çÇ×(ÀÓ´ë°ü·Ê ¹× ±âŸ)
º»°Ç ÀÌÇØ°ü°èÀÎÀÇ ºÎÀç ¹× Æó¹® µîÀ¸·Î ÇöÀåÁ¶»ç ¹× °øºÎ µîÀ» ±Ù°Å·Î ÀÛ¼ºÇÏ¿´À¸¸ç ÀÚ¼¼

ÇÑ ÀÓ´ë°ü°è´Â ¹Ì»óÀÓ.

°ÇÃ๰ÇöȲ

¼ÒÀçÁö ÀÎõ±¤¿ª½Ã ³²µ¿±¸ °£¼®µ¿ 114-4¹øÁö
´ëÁö¸éÀû 374.9§³
(113.61Æò)
¿¬¸éÀû 3176.32§³
(962.52Æò)
°ÇÃà¸éÀû 264.3§³
(80.09Æò)
¿ëÀû·ü»êÁ¤
¿¬¸éÀû
2971.045§³
(900.32Æò)
°ÇÆóÀ² 70.5% ¿ëÀû·ü 792.49%
Áö»óÃþ¼ö 14Ãþ ÁöÇÏÃþ¼ö 1Ãþ
ÁÖ¿ëµµ ¾÷¹«½Ã¼³ ±¸Á¶ ö±ÙÄÜÅ©¸®Æ®±¸Á¶
Âø°øÀÏÀÚ 2015.03.23 »ç¿ë½ÂÀÎÀÏÀÚ 2015.12.03
°ÇÃ๰Ãþº°ÇöȲ [º¸±â]


±¹ÅäºÎ½Ç°Å·¡°¡ ÀÎõ±¤¿ª½Ã ³²µ¿±¸ °£¼®µ¿

¡Ü ¸Å¸Å

¸éÀû(§³), ±Ý¾×(¸¸¿ø)

¡Ü Àü¼¼

¸éÀû(§³), ±Ý¾×(¸¸¿ø)

°è¾àÀϰǹ°¸íĪÃþÀü¿ëº¸Áõ±Ý¿ù¼¼°ÇÃà
25.08.11ÈÞÇÏÀÓ770.5213,05002015
25.07.15ÈÞÇÏÀÓ567.951,500752015

µî±âºÎµîº» ¿ä¾à(°Ç¹°)

  Á¢¼öÀÏÀÚ µî±â¸ñÀû/±Ç¸®ÀÚ ±Ç¸®±Ý¾× ±âÁØ
1 2020³â11¿ù2ÀÏ
¼ÒÀ¯±Ç
À¯OO
¼Ò¸ê
2 2022³â6¿ù7ÀÏ
¾Ð·ù
±¹
¼Ò¸ê±âÁØ
3 2022³â12¿ù22ÀÏ
ÀÓÂ÷±Ç¼³Á¤
¼­O
235,000,000 ¼Ò¸ê
4 2023³â3¿ù29ÀÏ
¾Ð·ù
³²OO
¼Ò¸ê
5 2023³â7¿ù13ÀÏ
°¡¾Ð·ù
ÁÖOOOO
1,999,000,000 ¼Ò¸ê
6 2025³â2¿ù13ÀÏ
°­Á¦°æ¸Å
ÁÖOOOO
¼Ò¸ê
7 2025³â2¿ù24ÀÏ
¾Ð·ù
±¹
¼Ò¸ê

ÀÓÂ÷ÀÎÇöȲ (¹è´ç¿ä±¸Á¾±âÀÏ: 2025-05-07)

ÀÓÂ÷ÀÎ ¿ëµµ/Á¡À¯ º¸Áõ±Ý/¿ù¼¼ ´ëÇ×·Â
ÀüÀÔÀÏ/È®Á¤ÀÏ ¹è´ç¿ä±¸ ºñ°í
¼­O ÀüºÎ 235,000,000
O
2020.11.02.
2020.10.12.
2020.11.02.~
ÁÖOOOOOOOOOOOOOOO ÀüºÎ 235,000,000
O
2020.11.02.
2020.10.12.
2025.4.10. 2020.11.02.~2022.11.01.
ºñ°í
(¸Å°¢¹°°Ç
¸í¼¼¼­)
ÁÖÅõµ½Ãº¸Áõ°ø»ç(ÀÓÂ÷ÀÎ:¼­À±):ÁÖÅÃÀÓÂ÷±ÇÀÚÀÎ ¼­À±ÀÇ ÀÓÂ÷º¸Áõ±Ý¹Ýȯä±ÇÀ» ¾ç¼öÇÑ ½Â°èÀÎÀ¸·Î¼­ ½Åûä±ÇÀÚÀÓ. ÀÌ »ç°Ç¿¡¼­ ÀÓÂ÷º¸Áõ±Ý Àü¾×À» ¹è´ç¹ÞÁö ¸øÇÏ´õ¶óµµ ¸Å¼öÀο¡ ´ëÇÑ ÀÜÁ¸ ÀÓÂ÷º¸Áõ±Ý¹Ýȯä±ÇÀ» Æ÷±âÇϰí ÁÖÅÃÀÓÂ÷±Çµî±âÀÇ ¸»¼Ò¿¡ µ¿ÀÇÇÑ ´Ù´Â ÃëÁöÀÇ È®¾à¼­¸¦ Á¦ÃâÇÔ

¿©ÀÇÁÖ°æ¸Å Á¶¾ð ÇÑ ¸¶µð

¸Å°¢¹°°Ç¸í¼¼ ºñ°í³­¿¡ ±âÀçµÈ ³»¿ëÀÔ´Ï´Ù.
ÁÖÅõµ½Ãº¸Áõ°ø»ç(ÀÓÂ÷ÀÎ:¼­À±):ÁÖÅÃÀÓÂ÷±ÇÀÚÀÎ ¼­À±ÀÇ ÀÓÂ÷º¸Áõ±Ý¹Ýȯä±ÇÀ» ¾ç¼öÇÑ ½Â°èÀÎÀ¸·Î¼­ ½Åûä±ÇÀÚÀÓ. ÀÌ »ç°Ç¿¡¼­ ÀÓÂ÷º¸Áõ±Ý Àü¾×À» ¹è´ç¹ÞÁö ¸øÇÏ´õ¶óµµ ¸Å¼öÀο¡ ´ëÇÑ ÀÜÁ¸ ÀÓÂ÷º¸Áõ±Ý¹Ýȯä±ÇÀ» Æ÷±âÇϰí ÁÖÅÃÀÓÂ÷±Çµî±âÀÇ ¸»¼Ò¿¡ µ¿ÀÇÇÑ ´Ù´Â ÃëÁöÀÇ È®¾à¼­¸¦ Á¦ÃâÇÔ
³«Âû ÈÄ¿¡ µî±âºÎ»ó ¼Ò¸êµÇÁö ¾Ê´Â ±Ç¸®ÀÔ´Ï´Ù.
À»±¸ ¼øÀ§ 3¹ø ÁÖÅÃÀÓÂ÷±Çµî±â(´Ù¸¸ ÁÖÅõµ½Ãº¸Áõ°ø»çÀÇ ¸»¼Òµ¿ÀÇ È®¾à¼­°¡ Á¦ÃâµÊ)
¼±¼øÀ§ ÀÓÂ÷±Çµî±â°¡ µÇ¾î ÀÖ½À´Ï´Ù.
°¨Á¤ ½ÃÁ¡ÀÌ ¿À·¡µÇ¾î °¡°Ýº¯µ¿ÀÌ ÀÖÀ» ¼ö ÀÖ½À´Ï´Ù.
ÀÌ ¹°°ÇÀº 2025³â 2¿ù 13ÀÏ¿¡ °æ¸Å°¡ °³½ÃµÇ¾ú´Âµ¥ Áö±Ý ½ÃÁ¡À¸·Î ¾à 415ÀÏÀÌ ÀÌ °æ°úµÇ¾ú½À´Ï´Ù. °¨Á¤°¡°ÝÀº 415ÀÏ Àü ½ÃÁ¡¿¡¼­ Æò°¡ÇÑ °¡°ÝÀ̹ǷΠ±× »çÀÌ °¡°Ýº¯µ¿ÀÌ ÀÖÀ» ¼ö ÀÖ½À´Ï´Ù. ƯÈ÷ °¡°Ý º¯µ¿ÀÌ ½ÉÇÑ ¾ÆÆÄÆ®´Â À¯ÀÇÇÏ¼Å¾ß ÇÕ´Ï´Ù. °¨Á¤°¡°ÝÀ» ³Ê¹« ¹ÏÁö ¸¶½Ã°í ÇöÀç ½Ç¸Å¹° °¡°Ý°ú ½Ç°Å·¡°¡¸¦ È®ÀÎÇϽñ⠹ٶø´Ï´Ù.
°£È¤ °¨Á¤°¡°Ýº¸´Ù ³ô°Ô ³«ÂûµÇ´Â °æ¿ì°¡ Àִµ¥ ´ëºÎºÐ ÀÌ·± ÀÌÀ¯ÀÔ´Ï´Ù.
¡Ø ¹°°Ç Ű¿öµå : »ó¾÷Áö¿ª/ÀϹݻó¾÷Áö¿ª/¹ö½ºÁ¤·ùÀå/ö±ÙÄÜÅ©¸®Æ®±¸Á¶/½º¶óºêÁöºØ
Àüü ÄÁ¼³ÆÃÀÌ ºÎ´ã½º·¯¿ì½Å°¡¿ä? ±Ç¸®ºÐ¼®¸¸ ÀÇ·ÚÇϼŵµ ±¦Âú½À´Ï´Ù!
½Ç¼Ó ÀÖ°Ô Çٽɸ¸ ´ãÀº ±Ç¸®ºÐ¼® ¼­ºñ½º!! (±Ç¸®ºÐ¼® + ½Ã¼¼Á¶»ç + ³«Âû°¡ »êÁ¤ + ÀÔÂûÇ¥ ÀÛ¼º¹æ¹ý ±îÁö)
ÃÖ´ë Àüü ÄÁ¼³ÆÃ ºñ¿ëÀÇ 10% ¼öÁØ !!

ÁÖÀÇ»çÇ× (ÃÖ¼±¼øÀ§ ¼³Á¤ÀÏ: 2022.6.7. ¾Ð·ù ¼³Á¤)

¸Å°¢À¸·Î ¼Ò¸êµÇÁö ¾Ê´Â µî±âºÎ±Ç¸®: À»±¸ ¼øÀ§ 3¹ø ÁÖÅÃÀÓÂ÷±Çµî±â(´Ù¸¸ ÁÖÅõµ½Ãº¸Áõ°ø»çÀÇ ¸»¼Òµ¿ÀÇ È®¾à¼­°¡ Á¦ÃâµÊ)
¸Å°¢À¸·Î ¼³Á¤µÈ °ÍÀ¸·Î º¸´Â Áö»ó±Ç:
¡Ø¹Ì³³°ü¸®ºñ(°ø¿ë) Àμö¿©ºÎ¸¦ ÀÔÂû Àü¿¡ È®ÀÎÇϽñ⠹ٶø´Ï´Ù

 

Áö¿ªºÐ¼®

ÁöÇÏö¸í Á÷¼±°Å¸®

Çб³¸í ÀüÈ­¹øÈ£ ÁÖ¼Ò Á÷¼±°Å¸®

¹ý¿ø

ÀÎõÁö¹æ¹ý¿ø (222-20)ÀÎõ±¤¿ª½Ã ¹ÌÃßȦ±¸ ¼Ò¼º·Î 163¹ø±æ 17(ÇÐÀ͵¿)
´ëÇ¥ : 032)860-1113~4
°üÇÒÁö¿ª : Áß±¸, µ¿±¸, ³²±¸, ¿¬¼ö±¸, ³²µ¿±¸, ºÎÆò±¸, °è¾ç±¸, ¼­±¸, ¿ËÁø±º, °­È­±º

µî±â¼Ò ÀÎõÁö¹æ¹ý¿ø º»¿ø µî±â±¹ (´ëÇ¥:1544-0773, ÆÑ½º:(032)620-9099, ÀÎõ±¤¿ª½Ã ¹ÌÃßȦ±¸ °æ¿ø´ë·Î 881(Á־ȵ¿ 983))
¼¼¹«¼­ ³²ÀÎõ¼¼¹«¼­ (´ëÇ¥:032-460-52, ÆÑ½º:032-463-5778, ÀÎõ±¤¿ª½Ã ³²µ¿±¸ ÀÎÇÏ·Î 548 (±¸¿ùµ¿))

Àαٳ«ÂûÅë°è

±â°£ ¸Å°¢°Ç¼ö Æò±Õ°¨Á¤°¡
Æò±Õ¸Å°¢°¡
¸Å°¢°¡À²
Æò±ÕÀ¯Âû¼ö
3°³¿ù 87°Ç 172,197,701¿ø
109,422,021¿ø
64%
1.8ȸ
6°³¿ù 199°Ç 180,465,829¿ø
124,947,477¿ø
70%
1.6ȸ
12°³¿ù 352°Ç 187,490,625¿ø
132,533,635¿ø
71%
1.6ȸ


º» °æ¸ÅÁ¤º¸´Â ¹ý¿øÀÚ·á¿Í ÀÏÄ¡Çϵµ·Ï ÇÏ¿´À¸³ª ±Ç¸®»çÇ׺¯µ¿, ÀÔ·ÂÂø¿À µîÀÇ ¿øÀÎÀ¸·Î »ç½Ç°ú ´Ù¸¦ ¼ö ÀÖ½À´Ï´Ù. ÀÌ¿ë¾à°ü¿¡ ÀǰЏéÃ¥Á¶°ÇÀ¸·Î Á¦°øµÊÀ» ¾Ë¸®¸ç, °æ¸ÅÀÔÂû½Ã ¹Ýµå½Ã °ü·Ã °øºÎ¸¦ ÀçÈ®ÀÎÇϽñ⠹ٶø´Ï´Ù. º¸´Ù Æí¸®ÇÑ °æ¸ÅÁ¤º¸ Á¦°øÀ» À§ÇØ Áö¼ÓÀûÀ¸·Î °³¼±ÇϰڽÀ´Ï´Ù. ÀÌ¿ëÇØ Áּż­ °¨»çÇÕ´Ï´Ù.
°ü½É¹°°ÇÀ¸·Î µî·ÏÇÕ´Ï´Ù