95
ÁÖÅÃ
ÀÇÁ¤ºÎÁö¹æ¹ý¿ø
 °¨Á¤°¡221,368,000 ¿ø
 ÃÖÀú°¡(100%) 221,368,000 ¿ø
 º¸Áõ±Ý(10%) 22,136,800 ¿ø
 Ã»±¸¾×145,198,381 ¿ø
°æ±âµµ µ¿µÎõ½Ã »ý¿¬µ¿ 582-12
»ç°Ç¹øÈ£ 2025Ÿ°æ72627
°æ¸ÅÁ¾·ùºÎµ¿»êÀÓÀǰæ¸Å
¸Å°¢´ë»óÅäÁö ¹× °Ç¹°Àϰý¸Å°¢
¸Å°¢±âÀÏ    2026.04.07(È­) 10:30 ÀÔÂû 3ÀÏÀü    
ÅäÁö¸éÀû218.00§³(65.95 Æò)
°Ç¹°¸éÀû168.33§³(50.92 Æò)
乫/¼ÒÀ¯ÀÚ¾ÈOO / ¾ÈOO
ä±ÇÀÚ¾çOOOOOOOO
±è¼ºÈÆ ´ëÇ¥ÀÌ»ç
°øÀÎÁß°³»ç, ºÎµ¿»ê°ø°æ¸Å»ç, ÇѾç´ëÇб³ Á¹¾÷
Àü) ÅÂÀÎÄÁ¼³ÆÃ(ÁÖ) ´ëÇ¥ÀÌ»ç
Àü) ¿©ÀÇÁֺε¿»êÁß°³¹ýÀÎ(ÁÖ) ´ëÇ¥ÀÌ»ç
Çö) ¿©ÀÇÁÖ°æ¸Å¹ýÀÎ ´ëÇ¥ÀÌ»ç
010-2371-3237
ÆäÀ̽ººÏ Æ®À§ÅÍ ±¸±Û+
īī¿À½ºÅ丮
īī¿ÀÅå sms¹®ÀÚº¸³»±â
 

±âÀϳ»¿ª

°æ°ú ³¯Â¥ Àú°¨ ÃÖÀú°¡ °á°ú
Á¢¼öÀÏ 2025-06-26 °æ¸ÅÁ¢¼ö
~0ÀÏ 
2025-06-26 °æ¸Å°³½Ã°áÁ¤
~81ÀÏ 
2025-09-15 ¹è´ç¿ä±¸Á¾±âÀÏ
~250ÀÏ 
2026-03-03 100%
221,368,000
º¯°æ
~285ÀÏ 
2026-04-07 100%
221,368,000
ÁøÇà
¹°°Ç¸í¼¼¼­ ÇöȲÁ¶»ç¼­ ¹®°ÇÁ¢¼ö ¼Û´Þ³»¿ª

°¨Á¤Æò°¡ÇöȲ

¸ñ·Ï ÁÖ¼Ò ±¸Á¶/¿ëµµ/´ëÁö±Ç ¸éÀû ºñ°í
ÅäÁö
»ý¿¬µ¿ 582-12 ´ë 218 §³
(65.95Æò)
°Ç¹°
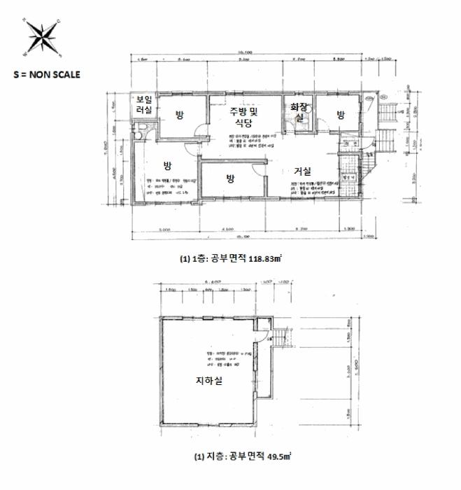
»ý¿¬µ¿ 582-12 ´ÜÃþ ´Üµ¶ÁÖÅà ö±ÙÄÜÅ©¸®Æ®Á¶ 118.83 §³
(35.95Æò)
»ý¿¬µ¿ 582-12 ÁöÃþ º¸ÀÏ·¯½Ç ö±ÙÄÜÅ©¸®Æ®Á¶ 49.50 §³
(14.97Æò)
1) À§Ä¡/µµ½ÃÁö¿ª/Á¦2Á¾ÀϹÝÁÖ°ÅÁö¿ª/³ë¼±¹ö½ºÁ¤·ùÀå/ö±ÙÄÜÅ©¸®Æ®Á¶/½½·¡ºêÁöºØ ´õº¸±â
°¨Á¤Æò°¡ ¿äÇ×Ç¥
1)À§Ä¡ ¹× ÁÖÀ§È¯°æ
º»°ÇÀº °æ±âµµ µ¿µÎõ½Ã »ý¿¬µ¿ ¼ÒÀç ""Áß¾Óµ¿ ÇàÁ¤º¹Áö¼¾ÅÍ"" ºÏ¼­Ãø Àαٿ¡ À§Ä¡Çϸç, ÁÖÀ§´Â ´Üµ¶ÁÖÅÃ, ´Ù°¡±¸ÁÖÅà ¹× ´Ù¼¼´ëÁÖÅÃ, ¿¬¸³ÁÖÅà µîÀÌ ¹ÐÁýÇÏ´Â ±âÁ¸ ÁÖÅÃÁö´ë·Î¼­, Á¦¹Ý ÁÖÀ§È¯°æÀº º¸ÅëÀÓ.
2)±³Åë»óȲ
º»°Ç±îÁö Â÷·®Á¢±Ù °¡´ÉÇϸç, Àαٿ¡ ³ë¼±¹ö½ºÁ¤·ùÀåÀÌ ¼ÒÀçÇÏ´Â µî Á¦¹Ý ±³Åë»óȲÀº º¸ÅëÀÓ.
3)ÇüÅ ¹× ÀÌ¿ë»óÅÂ
ÀÎÁ¢Áö¿Í ´ëü·Î µî°íÆòźÇÑ ¼¼ÀåÇüÀÇ ÅäÁö·Î¼­, ÁÖ°Å¿ë °ÇºÎÁö·Î ÀÌ¿ëÁßÀÓ.
4)ÀÎÁ¢ µµ·Î»óÅÂ
º»°Ç ³²µ¿ÃøÀ¸·Î ³ëÆø ¾à 6¹ÌÅÍ ³»¿ÜÀÇ Æ÷Àåµµ·Î¿Í Á¢ÇÔ.
5)ÅäÁöÀÌ¿ë°èȹ ¹× Á¦ÇÑ»óÅÂ
µµ½ÃÁö¿ª, Á¦2Á¾ÀϹÝÁÖ°ÅÁö¿ª, ¼Ò·Î3·ù(Æø 8m ¹Ì¸¸)(Á¢ÇÕ), °¡Ãà»çÀ°Á¦Çѱ¸¿ª(2016-12-01)(ÀüºÎÁ¦Çѱ¸¿ª)<°¡ÃàºÐ´¢ÀÇ °ü¸® ¹× À̿뿡 °üÇÑ ¹ý·ü>, ÁÖ°Åȯ°æ°³¼±Áö±¸<µµ½ÃÀú¼ÒµæÁÖ¹ÎÀÇÁÖ°Åȯ°æ°³¼±À»À§ÇÑÀÓ½ÃÁ¶Ä¡¹ý>, ¹èÃâ½Ã¼³¼³Ä¡Á¦ÇÑÁö¿ª<¹°È¯°æº¸Àü¹ý>, ¼ºÀå°ü¸®±Ç¿ª<¼öµµ±ÇÁ¤ºñ°èȹ¹ý>ÀÓ.
6)Á¦½Ã¸ñ·Ï ¿ÜÀÇ ¹°°Ç
¾øÀ½.
7)°øºÎ¿ÍÀÇ Â÷ÀÌ
¾øÀ½.
8)±âŸÂü°í»çÇ×(ÀÓ´ë°ü·Ê ¹× ±âŸ)
-ÀÓ´ë°ü°è: ¹Ì»óÀÓ.
-±â Ÿ: --.
1)°Ç¹°ÀÇ ±¸Á¶
±âÈ£(1): ö±ÙÄÜÅ©¸®Æ®Á¶ ¹× ¿¬¿ÍÁ¶ ½½·¡ºêÁöºØ ´ÜÃþ °ÇÀ¸·Î¼­,
(»ç¿ë½ÂÀÎÀÏ: 1994.09.29.)

¿Üº®: Ä¡Àå º®µ¹½×±â ¸¶°¨ µî,
âȣ: »õ½Ãâȣ µîÀÓ.
2)ÀÌ¿ë»óÅÂ
ÁÖÅà µîÀ¸·Î ÀÌ¿ëÁßÀÓ.
3)¼³ºñ³»¿ª
±âº»ÀûÀÎ À§»ý ¹× ±Þ¹è¼ö¼³ºñ µîÀÌ ±¸ºñµÇ¾î ÀÖÀ½.
4)ºÎÇÕ¹° ¹× Á¾¹°
¾øÀ½.
5)°øºÎ¿ÍÀÇ Â÷ÀÌ
¾øÀ½.
6)±âŸÂü°í»çÇ×(ÀÓ´ë°ü·Ê ¹× ±âŸ)
-ÀÓ´ë°ü°è: ¹Ì»óÀÓ.
-±â Ÿ: --.
Âü°í
»çÇ×
Àϰý¸Å°¢
- ÀÌ°Ç ºÎµ¿»êÀº ÁÖÅð¡¿¡ À§Ä¡Çϰí ÀÖÀ½. - ¸ñ·Ï1.Àº ¸ñ·Ï2. Áö»ó¿¡ ¼ÒÀçÇÏ´Â ´ÜÃþ ´Üµ¶ÁÖÅÃÀ¸·Î

°ÇÃ๰ÇöȲ

¼ÒÀçÁö °æ±âµµ µ¿µÎõ½Ã »ý¿¬µ¿ 582-12¹øÁö
´ëÁö¸éÀû 218§³
(66.06Æò)
¿¬¸éÀû 168.33§³
(51.01Æò)
°ÇÃà¸éÀû 129.46§³
(39.23Æò)
¿ëÀû·ü»êÁ¤
¿¬¸éÀû
118.83§³
(36.01Æò)
°ÇÆóÀ² 59.38% ¿ëÀû·ü 54.5%
Áö»óÃþ¼ö 1Ãþ ÁöÇÏÃþ¼ö 1Ãþ
ÁÖ¿ëµµ ´Üµ¶ÁÖÅà ±¸Á¶ º®µ¹±¸Á¶
Âø°øÀÏÀÚ 1994.04.21 »ç¿ë½ÂÀÎÀÏÀÚ 1994.09.29
°ÇÃ๰Ãþº°ÇöȲ [º¸±â]


±¹ÅäºÎ½Ç°Å·¡°¡ °æ±âµµ µ¿µÎõ½Ã »ý¿¬µ¿

¡Ü ¸Å¸Å

¸éÀû(§³), ±Ý¾×(¸¸¿ø)

¡Ü Àü¼¼

¸éÀû(§³), ±Ý¾×(¸¸¿ø)

°è¾àÀÏ¿¬¸éÀûº¸Áõ±Ý¿ù¼¼°ÇÃà
26.03.30126.1215,0001988
26.03.20210.48200301991
26.03.1924.236,0001953
26.03.13169.682,500102015
26.03.0625.521,0001955
¢Ñ ´õº¸±â

µî±âºÎµîº» ¿ä¾à(ÅäÁö)

  Á¢¼öÀÏÀÚ µî±â¸ñÀû/±Ç¸®ÀÚ ±Ç¸®±Ý¾× ±âÁØ
1 2021³â5¿ù10ÀÏ
¼ÒÀ¯±Ç
¾ÈOO
¼Ò¸ê
2 2021³â5¿ù10ÀÏ
±ÙÀú´ç±Ç
¾çOOOO
176,400,000 ¼Ò¸ê±âÁØ
3 2024³â12¿ù4ÀÏ
±ÙÀú´ç±Ç
±èOO
24,000,000 ¼Ò¸ê
4 2025³â1¿ù20ÀÏ
°¡¾Ð·ù
¼¼OOOO
155,262,858 ¼Ò¸ê
5 2025³â6¿ù26ÀÏ
ÀÓÀǰæ¸Å
¾çOOOO
¼Ò¸ê

µî±âºÎµîº» ¿ä¾à(°Ç¹°)

  Á¢¼öÀÏÀÚ µî±â¸ñÀû/±Ç¸®ÀÚ ±Ç¸®±Ý¾× ±âÁØ
1 2021³â5¿ù10ÀÏ
¼ÒÀ¯±Ç
¾ÈOO
¼Ò¸ê
2 2021³â5¿ù10ÀÏ
±ÙÀú´ç±Ç
¾çOOOO
176,400,000 ¼Ò¸ê±âÁØ
3 2024³â12¿ù4ÀÏ
±ÙÀú´ç±Ç
±èOO
24,000,000 ¼Ò¸ê
4 2025³â1¿ù20ÀÏ
°¡¾Ð·ù
¼¼OOOO
155,262,858 ¼Ò¸ê
5 2025³â6¿ù26ÀÏ
ÀÓÀǰæ¸Å
¾çOOOO
¼Ò¸ê

ÀÓÂ÷ÀÎÇöȲ (¹è´ç¿ä±¸Á¾±âÀÏ: 2025-09-15)


Á¶»çµÈ ÀÓÂ÷³»¿ªÀÌ ¾ø½À´Ï´Ù


¿©ÀÇÁÖ°æ¸Å Á¶¾ð ÇÑ ¸¶µð

³«Âû ÈÄ¿¡ µî±âºÎ»ó ¼Ò¸êµÇÁö ¾Ê´Â ±Ç¸®´Â ¾ø½À´Ï´Ù.
´ë·«ÀûÀÎ °ËÅäÀǰßÀ̹ǷΠÀÔÂûÀü¿¡ Àü¹®°¡ÀÇ Á¶¾ðÀ» Âü°íÇØ º¸½Ã±æ ±ÇÇØµå¸³´Ï´Ù.
¡Ø ¹°°Ç Ű¿öµå : µµ½ÃÁö¿ª/ÁÖ°ÅÁö¿ª/Á¦2Á¾ÀϹÝÁÖ°ÅÁö¿ª/¹ö½ºÁ¤·ùÀå/³ë¼±¹ö½ºÁ¤·ùÀå/ö±ÙÄÜÅ©¸®Æ®Á¶/½½·¡ºêÁöºØ
Àüü ÄÁ¼³ÆÃÀÌ ºÎ´ã½º·¯¿ì½Å°¡¿ä? ±Ç¸®ºÐ¼®¸¸ ÀÇ·ÚÇϼŵµ ±¦Âú½À´Ï´Ù!
½Ç¼Ó ÀÖ°Ô Çٽɸ¸ ´ãÀº ±Ç¸®ºÐ¼® ¼­ºñ½º!! (±Ç¸®ºÐ¼® + ½Ã¼¼Á¶»ç + ³«Âû°¡ »êÁ¤ + ÀÔÂûÇ¥ ÀÛ¼º¹æ¹ý ±îÁö)
ÃÖ´ë Àüü ÄÁ¼³ÆÃ ºñ¿ëÀÇ 10% ¼öÁØ !!

ÁÖÀÇ»çÇ× (ÃÖ¼±¼øÀ§ ¼³Á¤ÀÏ: 2021.5.10. ±ÙÀú´ç±Ç ¼³Á¤)

¸Å°¢À¸·Î ¼Ò¸êµÇÁö ¾Ê´Â µî±âºÎ±Ç¸®:
¸Å°¢À¸·Î ¼³Á¤µÈ °ÍÀ¸·Î º¸´Â Áö»ó±Ç:
Àϰý¸Å°¢
¡Ø¹Ì³³°ü¸®ºñ(°ø¿ë) Àμö¿©ºÎ¸¦ ÀÔÂû Àü¿¡ È®ÀÎÇϽñ⠹ٶø´Ï´Ù

 

Áö¿ªºÐ¼®

ÁöÇÏö¸í Á÷¼±°Å¸®

Çб³¸í ÀüÈ­¹øÈ£ ÁÖ¼Ò Á÷¼±°Å¸®

¹ý¿ø

ÀÇÁ¤ºÎÁö¹æ¹ý¿ø (116-16)°æ±âµµ ÀÇÁ¤ºÎ½Ã ³ì¾ç·Î34¹ø±æ 23 (°¡´Éµ¿)
´ëÇ¥ : 031)828-0114
°üÇÒÁö¿ª : ÀÇÁ¤ºÎ½Ã, ¾çÁÖ½Ã, ³²¾çÁÖ½Ã, ±¸¸®½Ã, ¿¬Ãµ±º, Æ÷õ½Ã, °¡Æò±º, µ¿µÎõ½Ã, ö¿ø±º

µî±â¼Ò ÀÇÁ¤ºÎÁö¹æ¹ý¿ø º»¿ø µ¿µÎõµî±â¼Ò (´ëÇ¥:1544-0773, ÆÑ½º:(031)862-2887, °æ±âµµ µ¿µÎõ½Ã ÁöÇà·Î 97 (ÁöÇൿ 284-20))
¼¼¹«¼­ Æ÷õ¼¼¹«¼­ (´ëÇ¥:031-538-72, ÆÑ½º:031-544-6090, °æ±âµµ Æ÷õ½Ã ¼ÒÈêÀ¾ ¼Û¿ì·Î 75)

Àαٳ«ÂûÅë°è

±â°£ ¸Å°¢°Ç¼ö Æò±Õ°¨Á¤°¡
Æò±Õ¸Å°¢°¡
¸Å°¢°¡À²
Æò±ÕÀ¯Âû¼ö
3°³¿ù 2°Ç 565,087,360¿ø
208,005,000¿ø
35%
3.5ȸ
6°³¿ù 3°Ç 555,323,927¿ø
226,203,333¿ø
40%
3ȸ
12°³¿ù 4°Ç 509,290,725¿ø
244,665,000¿ø
50%
2.5ȸ


º» °æ¸ÅÁ¤º¸´Â ¹ý¿øÀÚ·á¿Í ÀÏÄ¡Çϵµ·Ï ÇÏ¿´À¸³ª ±Ç¸®»çÇ׺¯µ¿, ÀÔ·ÂÂø¿À µîÀÇ ¿øÀÎÀ¸·Î »ç½Ç°ú ´Ù¸¦ ¼ö ÀÖ½À´Ï´Ù. ÀÌ¿ë¾à°ü¿¡ ÀǰЏéÃ¥Á¶°ÇÀ¸·Î Á¦°øµÊÀ» ¾Ë¸®¸ç, °æ¸ÅÀÔÂû½Ã ¹Ýµå½Ã °ü·Ã °øºÎ¸¦ ÀçÈ®ÀÎÇϽñ⠹ٶø´Ï´Ù. º¸´Ù Æí¸®ÇÑ °æ¸ÅÁ¤º¸ Á¦°øÀ» À§ÇØ Áö¼ÓÀûÀ¸·Î °³¼±ÇϰڽÀ´Ï´Ù. ÀÌ¿ëÇØ Áּż­ °¨»çÇÕ´Ï´Ù.
°ü½É¹°°ÇÀ¸·Î µî·ÏÇÕ´Ï´Ù