92
´Ù¼¼´ë(ºô¶ó)
ÀÎõÁö¹æ¹ý¿ø ºÎõÁö¿ø
 °¨Á¤°¡228,000,000 ¿ø
 ÃÖÀú°¡(100%) 228,000,000 ¿ø
 º¸Áõ±Ý(10%) 22,800,000 ¿ø
 Ã»±¸¾×101,873,251 ¿ø
°æ±âµµ ºÎõ½Ã ¿ø¹Ì±¸ ¿ø¹Ìµ¿ 174-63 ±Ý°­ÆÓ¸®½º 5Ãþ 501È£
»ç°Ç¹øÈ£ 2025Ÿ°æ33340
°æ¸ÅÁ¾·ùºÎµ¿»êÀÓÀǰæ¸Å
¸Å°¢´ë»óÅäÁö ¹× °Ç¹°Àϰý ¸Å°¢
¸Å°¢±âÀÏ    2026.02.26(¸ñ) 10:00 ÀÔÂû 3ÀÏÀü    
ÅäÁö¸éÀû29.29§³(8.86 Æò)
°Ç¹°¸éÀû49.27§³(14.90 Æò)
乫/¼ÒÀ¯ÀÚ¼ÛOO / ¼ÛOO
ä±ÇÀÚÇÑOOOOOOO
±è¼ºÈÆ ´ëÇ¥ÀÌ»ç
°øÀÎÁß°³»ç, ºÎµ¿»ê°ø°æ¸Å»ç, ÇѾç´ëÇб³ Á¹¾÷
Àü) ÅÂÀÎÄÁ¼³ÆÃ(ÁÖ) ´ëÇ¥ÀÌ»ç
Àü) ¿©ÀÇÁֺε¿»êÁß°³¹ýÀÎ(ÁÖ) ´ëÇ¥ÀÌ»ç
Çö) ¿©ÀÇÁÖ°æ¸Å¹ýÀÎ ´ëÇ¥ÀÌ»ç
010-2371-3237
ÆäÀ̽ººÏ Æ®À§ÅÍ ±¸±Û+
īī¿À½ºÅ丮
īī¿ÀÅå sms¹®ÀÚº¸³»±â
 

±âÀϳ»¿ª

°æ°ú ³¯Â¥ Àú°¨ ÃÖÀú°¡ °á°ú
Á¢¼öÀÏ 2025-04-21 °æ¸ÅÁ¢¼ö
~1ÀÏ 
2025-04-22 °æ¸Å°³½Ã°áÁ¤
~85ÀÏ 
2025-07-15 ¹è´ç¿ä±¸Á¾±âÀÏ
~311ÀÏ 
2026-02-26 100%
228,000,000
ÁøÇà
¹°°Ç¸í¼¼¼­ ÇöȲÁ¶»ç¼­ ¹®°ÇÁ¢¼ö ¼Û´Þ³»¿ª

°¨Á¤Æò°¡ÇöȲ

¸ñ·Ï ÁÖ¼Ò ±¸Á¶/¿ëµµ/´ëÁö±Ç ¸éÀû ºñ°í
´ëÁö±Ç
¿ø¹Ìµ¿ 174-63 247.6ºÐÀÇ 29.291 29.291 §³
(8.86Æò)
°Ç¹°
¿ø¹Ìµ¿ 174-63 5Ãþ 501È£ ö±ÙÄÜÅ©¸®Æ®±¸Á¶ 49.27 §³
(14.90Æò)
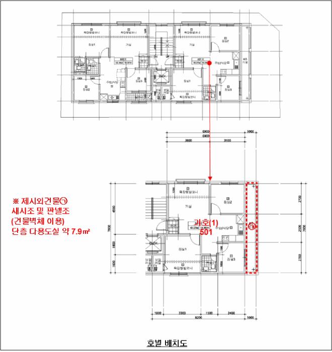
1) À§Ä¡/Á¦2Á¾ÀϹÝÁÖ°ÅÁö¿ª/¹ö½ºÁ¤·ùÀå/Â÷·®Á¢±ÙÀÌ °¡´É/ö±ÙÄÜÅ©¸®Æ®±¸Á¶ ´õº¸±â
°¨Á¤Æò°¡ ¿äÇ×Ç¥
1)À§Ä¡ ¹× ÁÖÀ§È¯°æ
º»°ÇÀº °æ±âµµ ºÎõ½Ã ¿ø¹Ì±¸ ¿ø¹Ìµ¿ ¼ÒÀç 'ºÎõºÏÃʵîÇб³' ³²Ãø Àαٿ¡ À§Ä¡Çϰí ÀÖÀ¸¸ç, ÁÖÀ§´Â °øµ¿ÁÖÅÃ, ´Üµ¶ÁÖÅÃ, ÁÖ»ó¿ë°Ç¹° µîÀÌ È¥ÀçÇϰí ÀÖ´Â Áö¿ªÀÓ.
2)±³Åë»óȲ
º»°Ç±îÁö Â÷·®Á¢±ÙÀÌ °¡´ÉÇϰí, Àαٿ¡ ¹ö½ºÁ¤·ùÀåÀÌ ¼ÒÀçÇÏ´Â µî Àü¹ÝÀûÀÎ ±³Åë¿©°ÇÀº ¹«³­ÇÑ ÆíÀÓ.
3)°Ç¹°ÀÇ ±¸Á¶
ö±ÙÄÜÅ©¸®Æ®±¸Á¶ ÆòÁöºØ Áö»ó5Ãþ °Ç¹° ³» Á¦5Ãþ Á¦501È£·Î¼­
- ¿Üº® : ¿ÜÀ庮µ¹ ºÙÀÓ, µå¶óÀ̺ñÆ® µî
- âȣ : »õ½ÃÁ¶ µî ¸¶°¨ÀÓ.

4)ÀÌ¿ë»óÅÂ
´Ù¼¼´ëÁÖÅÃÀ¸·Î ÀÌ¿ë ÁßÀÓ.
5)¼³ºñ³»¿ª
À§»ý ¹× ±Þ¹è¼ö¼³ºñ, ³­¹æ¼³ºñ, ½Â°­±â¼³ºñ µîÀ» °®Ãß¾úÀ½.
6)ÅäÁöÀÇ Çü»ó ¹× ÀÌ¿ë»óÅÂ
ÀÚüÁö¹Ý ´ëü·Î ÆòźÇÏ°Ô Á¶¼º(ÀϺΠ¿Ï°æ»ç)ÇÑ 2ÇÊÁö ÀÏ´ÜÀÇ À广Çü ÅäÁö·Î¼­ ÇöȲ ´Ù¼¼´ëÁÖÅà °ÇºÎÁö µîÀ¸·Î ÀÌ¿ë ÁßÀÓ.
7)ÀÎÁ¢ µµ·Î»óŵî
º»°Ç ºÏÃøÀ¸·Î ³ëÆø ¾à 6m, ¼­ÃøÀ¸·Î ³ëÆø ¾à 4m ³»¿ÜÀÇ µµ·Î¿¡ °¢°¢ Á¢Çϰí ÀÖÀ½.
8)ÅäÁöÀÌ¿ë°èȹ ¹× Á¦ÇÑ»óÅÂ
- ¿ø¹Ìµ¿ 174-63 : Á¦2Á¾ÀϹÝÁÖ°ÅÁö¿ª, °¡Ãà»çÀ°Á¦Çѱ¸¿ª(ÀüºÎÁ¦Çѱ¸¿ª), °ú¹Ð¾ïÁ¦±Ç¿ª ÀÓ.
- ¿ø¹Ìµ¿ 174-64 : Á¦2Á¾ÀϹÝÁÖ°ÅÁö¿ª, ¼Ò·Î3·ù(Æø 8m ¹Ì¸¸)(Á¢ÇÕ), °¡Ãà»çÀ°Á¦Çѱ¸¿ª(ÀüºÎÁ¦Çѱ¸¿ª), °ú¹Ð¾ïÁ¦±Ç¿ª ÀÓ.
9)°øºÎ¿ÍÀÇ Â÷ÀÌ
°Ç¹° ¿Üº® ¹ßÄÚ´Ï ºÎºÐ¿¡ ÈÄ÷ ³»ºÎ±¸Á¶µµ ¹× »çÁø¿ëÁö¿Í °°ÀÌ »õ½ÃÁ¶ ¹× ÆÇ³ÚÁ¶ Á¦½Ã¿Ü°Ç¹°(ÁÖÅà ºÎ¼Ó ´Ù¿ëµµ½Ç)ÀÌ ¼ÒÀçÇϰí ÀÖ¾î ±¸ºÐ°Ç¹°¿¡ Æ÷ÇÔÇÏ¿© Æò°¡ÇÏ¿´À½.
10)±âŸÂü°í»çÇ×(ÀÓ´ë°ü·Ê ¹× ±âŸ)
- ÀÓ´ë°ü°è ¹Ì»óÀÓ.
- Á¦½Ã¿Ü°Ç¹°¿¡ ´ëÇÑ °ÇÃà¹ý À§¹Ý¿©ºÎ µî¿¡ ´ëÇÏ¿© ÀÔÂû ½Ã º°µµ È®ÀÎÇϽñ⠹ٶ÷.(°ÇÃà¹ý À§¹Ý ½Ã ¿ø»óȸº¹ ¶Ç´Â ÀÌÇà°­Á¦±Ý µîÀÇ Á¶Ä¡°¡ ÀÖÀ» ¼ö ÀÖÀ¸´Ï À¯ÀÇÇϽñ⠹ٶ÷)
- º»°ÇÀº ÇöÀåÁ¶»ç ½Ã ÀÌÇØ°ü°èÀÎ ÇùÁ¶ ºÎÀç µîÀ¸·Î ÀÎÇÏ¿© ³»ºÎ±¸Á¶¸¦ È®ÀÎÇÏÁö ¸øÇÏ¿´À¸¸ç, °ÇÃ๰´ëÀå »ó µîÀçµÈ ÇöȲµµ¸é, ¿Ü°ü¸ñÃø, ÁÖº¯Å½¹®, µ¿ À¯Çü ´Ù¼¼´ëÁÖÅà ÀϹÝÇöȲ µîÀ» ÂüÀÛÇÏ¿© Æò°¡ÇÏ¿´´Â ¹Ù, ÀÔÂû ½Ã ³»ºÎ±¸Á¶ µîÀº º°µµ È®ÀÎÇϽñ⠹ٶ÷.
Âü°í
»çÇ×
°Ç¹° ¿Üº® ¹ßÄÚ´Ï ºÎºÐ »õ½ÃÁ¶ ¹× ÆÇ³ÚÁ¶ Á¦½Ã¿Ü °Ç¹° Æ÷ÇÔ. ÀÌ¿¡ ´ëÇÑ °ÇÃà¹ý À§¹Ý¿©ºÎ µîÀº º°µµ È®ÀÎ ¿äÇÔ.

°ÇÃ๰ÇöȲ

¼ÒÀçÁö °æ±âµµ ºÎõ½Ã ¿ø¹Ì±¸ ¿ø¹Ìµ¿ 174-63¹øÁö
´ëÁö¸éÀû 247.6§³
(75.03Æò)
¿¬¸éÀû 492.99§³
(149.39Æò)
°ÇÃà¸éÀû 145.36§³
(44.05Æò)
¿ëÀû·ü»êÁ¤
¿¬¸éÀû
492.99§³
(149.39Æò)
°ÇÆóÀ² 58.71% ¿ëÀû·ü 199.11%
Áö»óÃþ¼ö 5Ãþ ÁöÇÏÃþ¼ö  
ÁÖ¿ëµµ °øµ¿ÁÖÅà ±¸Á¶ ö±ÙÄÜÅ©¸®Æ®±¸Á¶
Âø°øÀÏÀÚ 2014.10.29 »ç¿ë½ÂÀÎÀÏÀÚ 2015.02.27
°ÇÃ๰Ãþº°ÇöȲ [º¸±â]


µî±âºÎµîº» ¿ä¾à(°Ç¹°)

  Á¢¼öÀÏÀÚ µî±â¸ñÀû/±Ç¸®ÀÚ ±Ç¸®±Ý¾× ±âÁØ
1 2020³â9¿ù22ÀÏ
¼ÒÀ¯±Ç
¼ÛOO
¼Ò¸ê
2 2020³â9¿ù22ÀÏ
±ÙÀú´ç±Ç
ÇÑOOOO
121,000,000 ¼Ò¸ê±âÁØ
3 2024³â9¿ù20ÀÏ
°¡¾Ð·ù
ȕOOOO
22,693,762 ¼Ò¸ê
4 2024³â9¿ù27ÀÏ
°¡¾Ð·ù
·ÔOOOO
6,270,302 ¼Ò¸ê
5 2024³â11¿ù25ÀÏ
°¡¾Ð·ù
(OOOO
6,565,339 ¼Ò¸ê
6 2025³â4¿ù22ÀÏ
ÀÓÀǰæ¸Å
ÇÑOOOO
¼Ò¸ê
7 2025³â8¿ù7ÀÏ
¾Ð·ù
±¹OOOO
¼Ò¸ê

ÀÓÂ÷ÀÎÇöȲ (¹è´ç¿ä±¸Á¾±âÀÏ: 2025-07-15)

ÀÓÂ÷ÀÎ ¿ëµµ/Á¡À¯ º¸Áõ±Ý/¿ù¼¼ ´ëÇ×·Â
ÀüÀÔÀÏ/È®Á¤ÀÏ ¹è´ç¿ä±¸ ºñ°í
°íOO 5Ãþ Áß49.27§³(501È£Àüü) 90,000,000
X
2022.12.19.
2022.11.11.
2025.7.15. 2022.11.25.~2024.11.24.
¾ÈOO
X
2023.10.05

¿©ÀÇÁÖ°æ¸Å Á¶¾ð ÇÑ ¸¶µð

³«Âû ÈÄ¿¡ µî±âºÎ»ó ¼Ò¸êµÇÁö ¾Ê´Â ±Ç¸®´Â ¾ø½À´Ï´Ù.
´ë·«ÀûÀÎ °ËÅäÀǰßÀ̹ǷΠÀÔÂûÀü¿¡ Àü¹®°¡ÀÇ Á¶¾ðÀ» Âü°íÇØ º¸½Ã±æ ±ÇÇØµå¸³´Ï´Ù.
Á¦½Ã¿Ü ¹°°ÇÀÌ Æ÷ÇԵǾî ÀÖ½À´Ï´Ù.
°¨Á¤ ½ÃÁ¡ÀÌ ¿À·¡µÇ¾î °¡°Ýº¯µ¿ÀÌ ÀÖÀ» ¼ö ÀÖ½À´Ï´Ù.
ÀÌ ¹°°ÇÀº 2025³â 4¿ù 22ÀÏ¿¡ °æ¸Å°¡ °³½ÃµÇ¾ú´Âµ¥ Áö±Ý ½ÃÁ¡À¸·Î ¾à 307ÀÏÀÌ ÀÌ °æ°úµÇ¾ú½À´Ï´Ù. °¨Á¤°¡°ÝÀº 307ÀÏ Àü ½ÃÁ¡¿¡¼­ Æò°¡ÇÑ °¡°ÝÀ̹ǷΠ±× »çÀÌ °¡°Ýº¯µ¿ÀÌ ÀÖÀ» ¼ö ÀÖ½À´Ï´Ù. ƯÈ÷ °¡°Ý º¯µ¿ÀÌ ½ÉÇÑ ¾ÆÆÄÆ®´Â À¯ÀÇÇÏ¼Å¾ß ÇÕ´Ï´Ù. °¨Á¤°¡°ÝÀ» ³Ê¹« ¹ÏÁö ¸¶½Ã°í ÇöÀç ½Ç¸Å¹° °¡°Ý°ú ½Ç°Å·¡°¡¸¦ È®ÀÎÇϽñ⠹ٶø´Ï´Ù.
°£È¤ °¨Á¤°¡°Ýº¸´Ù ³ô°Ô ³«ÂûµÇ´Â °æ¿ì°¡ Àִµ¥ ´ëºÎºÐ ÀÌ·± ÀÌÀ¯ÀÔ´Ï´Ù.
¡Ø ¹°°Ç Ű¿öµå : ÁÖ°ÅÁö¿ª/Á¦2Á¾ÀϹÝÁÖ°ÅÁö¿ª/¹ö½ºÁ¤·ùÀå/Â÷·®Á¢±ÙÀÌ °¡´É/ö±ÙÄÜÅ©¸®Æ®±¸Á¶
Àüü ÄÁ¼³ÆÃÀÌ ºÎ´ã½º·¯¿ì½Å°¡¿ä? ±Ç¸®ºÐ¼®¸¸ ÀÇ·ÚÇϼŵµ ±¦Âú½À´Ï´Ù!
½Ç¼Ó ÀÖ°Ô Çٽɸ¸ ´ãÀº ±Ç¸®ºÐ¼® ¼­ºñ½º!! (±Ç¸®ºÐ¼® + ½Ã¼¼Á¶»ç + ³«Âû°¡ »êÁ¤ + ÀÔÂûÇ¥ ÀÛ¼º¹æ¹ý ±îÁö)
ÃÖ´ë Àüü ÄÁ¼³ÆÃ ºñ¿ëÀÇ 10% ¼öÁØ !!

ÁÖÀÇ»çÇ× (ÃÖ¼±¼øÀ§ ¼³Á¤ÀÏ: 2020.09.22. ±ÙÀú´ç±Ç ¼³Á¤)

¸Å°¢À¸·Î ¼Ò¸êµÇÁö ¾Ê´Â µî±âºÎ±Ç¸®:
¸Å°¢À¸·Î ¼³Á¤µÈ °ÍÀ¸·Î º¸´Â Áö»ó±Ç:
°Ç¹° ¿Üº® ¹ßÄÚ´Ï ºÎºÐ »õ½ÃÁ¶ ¹× ÆÇ³ÚÁ¶ Á¦½Ã¿Ü °Ç¹° Æ÷ÇÔ. ÀÌ¿¡ ´ëÇÑ °ÇÃà¹ý À§¹Ý¿©ºÎ µîÀº º°µµ È®ÀÎ ¿äÇÔ.
¡Ø¹Ì³³°ü¸®ºñ(°ø¿ë) Àμö¿©ºÎ¸¦ ÀÔÂû Àü¿¡ È®ÀÎÇϽñ⠹ٶø´Ï´Ù

 

Áö¿ªºÐ¼®

ÁöÇÏö¸í Á÷¼±°Å¸®

Çб³¸í ÀüÈ­¹øÈ£ ÁÖ¼Ò Á÷¼±°Å¸®

¹ý¿ø

ÀÎõÁö¹æ¹ý¿ø ºÎõÁö¿ø (146-02)°æ±âµµ ºÎõ½Ã ¿ø¹Ì±¸ »óÀÏ·Î 129(»óµ¿)
´ëÇ¥ : 032)320-1114, ¹Î¿ø : 032)320-1234
°üÇÒÁö¿ª : ºÎõ½Ã, ±èÆ÷½Ã

µî±â¼Ò ÀÎõÁö¹æ¹ý¿ø ºÎõÁö¿ø µî±â°ú (´ëÇ¥:1544-0773, ÆÑ½º:(032)320-1484, 320-1485, °æ±âµµ ºÎõ½Ã »óÀÏ·Î 129 (»óµ¿ 445-1))
¼¼¹«¼­ ¼¼¹«¼­ (´ëÇ¥:, ÆÑ½º:, )

Àαٳ«ÂûÅë°è

±â°£ ¸Å°¢°Ç¼ö Æò±Õ°¨Á¤°¡
Æò±Õ¸Å°¢°¡
¸Å°¢°¡À²
Æò±ÕÀ¯Âû¼ö


º» °æ¸ÅÁ¤º¸´Â ¹ý¿øÀÚ·á¿Í ÀÏÄ¡Çϵµ·Ï ÇÏ¿´À¸³ª ±Ç¸®»çÇ׺¯µ¿, ÀÔ·ÂÂø¿À µîÀÇ ¿øÀÎÀ¸·Î »ç½Ç°ú ´Ù¸¦ ¼ö ÀÖ½À´Ï´Ù. ÀÌ¿ë¾à°ü¿¡ ÀǰЏéÃ¥Á¶°ÇÀ¸·Î Á¦°øµÊÀ» ¾Ë¸®¸ç, °æ¸ÅÀÔÂû½Ã ¹Ýµå½Ã °ü·Ã °øºÎ¸¦ ÀçÈ®ÀÎÇϽñ⠹ٶø´Ï´Ù. º¸´Ù Æí¸®ÇÑ °æ¸ÅÁ¤º¸ Á¦°øÀ» À§ÇØ Áö¼ÓÀûÀ¸·Î °³¼±ÇϰڽÀ´Ï´Ù. ÀÌ¿ëÇØ Áּż­ °¨»çÇÕ´Ï´Ù.
°ü½É¹°°ÇÀ¸·Î µî·ÏÇÕ´Ï´Ù