1052
´ä
±¤ÁÖÁö¹æ¹ý¿ø
 °¨Á¤°¡13,324,800 ¿ø
 ÃÖÀú°¡(70%) 9,328,000 ¿ø
 º¸Áõ±Ý(10%) 932,800 ¿ø
 Ã»±¸¾×188,341,369 ¿ø
Àü¶ó³²µµ ³ªÁֽà µ¿°­¸é °îõ¸® 1239-1
»ç°Ç¹øÈ£ 2025Ÿ°æ33090 ¹°°Ç¹øÈ£
°æ¸ÅÁ¾·ùºÎµ¿»êÀÓÀǰæ¸Å
¸Å°¢´ë»óÅäÁö¸Å°¢
¸Å°¢±âÀÏ    2026.03.24(È­) 10:00 ÀÔÂû 30ÀÏÀü    
ÅäÁö¸éÀû416.40§³(125.96 Æò)
°Ç¹°¸éÀû
乫/¼ÒÀ¯ÀÚÃÖOO / ȲOO
ä±ÇÀÚÁÖOOO OOOOOOOO
±è¼ºÈÆ ´ëÇ¥ÀÌ»ç
°øÀÎÁß°³»ç, ºÎµ¿»ê°ø°æ¸Å»ç, ÇѾç´ëÇб³ Á¹¾÷
Àü) ÅÂÀÎÄÁ¼³ÆÃ(ÁÖ) ´ëÇ¥ÀÌ»ç
Àü) ¿©ÀÇÁֺε¿»êÁß°³¹ýÀÎ(ÁÖ) ´ëÇ¥ÀÌ»ç
Çö) ¿©ÀÇÁÖ°æ¸Å¹ýÀÎ ´ëÇ¥ÀÌ»ç
010-2371-3237
ÆäÀ̽ººÏ Æ®À§ÅÍ ±¸±Û+
īī¿À½ºÅ丮
īī¿ÀÅå sms¹®ÀÚº¸³»±â
 

±âÀϳ»¿ª

°æ°ú ³¯Â¥ Àú°¨ ÃÖÀú°¡ °á°ú
Á¢¼öÀÏ 2025-06-18 °æ¸ÅÁ¢¼ö
~2ÀÏ 
2025-06-20 °æ¸Å°³½Ã°áÁ¤
~249ÀÏ 
¹è´ç¿ä±¸Á¾±âÀÏ
~240ÀÏ 
2026-02-13 100%
13,324,800
À¯Âû
~279ÀÏ 
2026-03-24 70%
9,328,000
ÁøÇà
¹°°Ç¸í¼¼¼­ ÇöȲÁ¶»ç¼­ ¹®°ÇÁ¢¼ö ¼Û´Þ³»¿ª

°¨Á¤Æò°¡ÇöȲ

¸ñ·Ï ÁÖ¼Ò ±¸Á¶/¿ëµµ/´ëÁö±Ç ¸éÀû ºñ°í
ÅäÁö
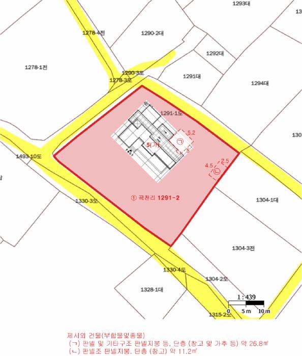
°îõ¸® 1239-1 ´ä 416.4 §³
(125.96Æò)
1) À§Ä¡/³ó¸²Áö¿ª/º¸Àü°ü¸®Áö¿ª/»ý»ê°ü¸®Áö¿ª/°èȹ°ü¸®Áö¿ª/³ë¼±¹ö½ºÁ¤·ùÀå/ö±ÙÄÜÅ©¸®Æ®±¸Á¶/½º¶óºêÁöºØ ´õº¸±â
°¨Á¤Æò°¡ ¿äÇ×Ç¥
1)À§Ä¡ ¹× ÁÖÀ§È¯°æ
¢¹±âÈ£ 1) ÅäÁö´Â Àü¶ó³²µµ ³ªÁֽà µ¿°­¸é ¼ÒÀç ¡®¿µµ¿¸¶À»' ³»¡¯¿¡ À§Ä¡Çϸç, ÁÖÀ§´Â ¼ø¼ö ³óÃÌÁö´ë·Î¼­ ÀϹÝÀûÀÎ ÁÖÀ§È¯°æÀº º¸ÅëÀÓ.
¢¹±âÈ£ 2) ÅäÁö´Â Àü¶ó³²µµ ³ªÁֽà µ¿°­¸é ¼ÒÀç ¡®¸¶À»È¸°ü' ºÏ¼­Ãø Àαٿ¡ À§Ä¡Çϸç, ÁÖÀ§´Â ¸¶À»ÁÖº¯ ³ó°æÁö´ëÀÓ.
¢¹±âÈ£ 3, 4) ÅäÁö´Â Àü¶ó³²µµ ³ªÁֽà µ¿°­¸é ¼ÒÀç ¡®¸¶À»È¸°ü' ºÏÃø Àαٿ¡ À§Ä¡Çϸç, ÁÖÀ§´Â ¸¶À»ÁÖº¯ ³ó°æÁö´ëÀÓ.
2)±³Åë»óȲ
º»°Ç ¶Ç´Â º»°Ç ÀαٱîÁö Â÷·® ÃâÀÔÀÌ °¡´ÉÇϸç, Àαٿ¡ ³ë¼±¹ö½ºÁ¤·ùÀåÀÌ ¼ÒÀçÇÏ´Â µî Àü¹ÝÀûÀÎ ±³Åë »çÁ¤Àº º¸ÅëÀÎ ÆíÀÓ
3)ÇüÅ ¹× ÀÌ¿ë»óÅÂ
¢¹±âÈ£ 1- º»°ÇÀº »ç´Ù¸®Çü ÆòÁö·Î¼­, ´Üµ¶ÁÖÅÃÀ¸·Î ÀÌ¿ë ÁßÀÓ.
¢¹±âÈ£ 2- º»°ÇÀº ¹«³­ÇÑ ºÎÁ¤Çü ÆòÁö·Î¼­, ÀüÀ¸·Î ÀÌ¿ë ÁßÀÓ.
¢¹±âÈ£ 3, 4- ÅäÁö´Â ¿Ï°æ»çÁö´ë ³» ´ëü·Î ÆòźÇÑ ºÎÁ¤Çü ÅäÁö·Î¼­, ÀüÀ¸·Î ÀÌ¿ë ÁßÀÓ.
4)ÀÎÁ¢ µµ·Î»óÅÂ
¢¹±âÈ£ 1- º»°ÇÀº 3¸éÀÌ Æ÷Àåµµ·Î¿¡ Á¢ÇÑ ¼¼°¢(°¡)ÀÓ.
¢¹±âÈ£ 2- º»°ÇÀº 2¸éÀÌ ³ëÆø ¾à3¹ÌÅÍ ³»¿ÜÀÇ Æ÷Àåµµ·Î¿¡ Á¢ÇÔ.
¢¹±âÈ£ 3- º»°ÇÀº ºÏ¼­ÃøÀ¸·Î ¼ÒÆøÀÇ ³ó·Î°¡ ÀÖÀ½.
¢¹±âÈ£ 4- º»°ÇÀº ÁöÀû»ó ¸ÍÁöÀ̳ª ÀÎÁ¢ÅäÁö¸¦ ÅëÇØ ÃâÀÔÇϰí ÀÖÀ½.
5)ÅäÁöÀÌ¿ë°èȹ ¹× Á¦ÇÑ»óÅÂ
¢¹±âÈ£ 1- °èȹ°ü¸®Áö¿ª(2023-04-20)(°èȹ°ü¸®Áö¿ª), ÀÚ¿¬Ãë¶ôÁö±¸, °¡Ãà»çÀ°Á¦Çѱ¸¿ª(200mÁ¦Çѱ¸¿ª_±×¹ÛÀÇ °¡Ãà)<°¡ÃàºÐ´¢ÀÇ °ü¸® ¹× À̿뿡 °üÇÑ ¹ý·ü>ÀÓ.
¢¹±âÈ£ 2- °èȹ°ü¸®Áö¿ª(2023-04-20)(°èȹ°ü¸®Áö¿ª) , »ý»ê°ü¸®Áö¿ª , ÀÚ¿¬Ãë¶ôÁö±¸, °¡Ãà»çÀ°Á¦Çѱ¸¿ª(200mÁ¦Çѱ¸¿ª_±×¹ÛÀÇ °¡Ãà)<°¡ÃàºÐ´¢ÀÇ °ü¸® ¹× À̿뿡 °üÇÑ ¹ý·ü>
¢¹±âÈ£ 3- ³ó¸²Áö¿ª(2023-04-20)(³ó¸²Áö¿ª) , º¸Àü°ü¸®Áö¿ª, °¡Ãà»çÀ°Á¦Çѱ¸¿ª(300mÁ¦Çѱ¸¿ª_¿°¼Ò, °³(À°°ßÁ¦¿Ü))<°¡ÃàºÐ´¢ÀÇ °ü¸® ¹× À̿뿡 °üÇÑ ¹ý·ü>, ³ó¾÷ÁøÈﱸ¿ª<³óÁö¹ý>, ¿µ³ó¿©°ÇºÒ¸®³óÁöÀÓ.
¢¹±âÈ£ 4- º¸Àü°ü¸®Áö¿ª, °¡Ãà»çÀ°Á¦Çѱ¸¿ª(300mÁ¦Çѱ¸¿ª_¿°¼Ò, °³(À°°ßÁ¦¿Ü))<°¡ÃàºÐ´¢ÀÇ °ü¸® ¹× À̿뿡 °üÇÑ ¹ý·ü>, ¿µ³ó¿©°ÇºÒ¸®³óÁöÀÓ.
6)Á¦½Ã¸ñ·Ï ¿ÜÀÇ ¹°°Ç
º°Ã· ¡¸ÁöÀû ¹× °Ç¹°°³È²µµ¡¹ ¹× ¡¸»çÁø¿ëÁö¡¹¿Í °°ÀÌ Á¦½Ã¿Ü°Ç¹° ¤¡,¤¤ÀÌ ¼ÒÀçÇÔ.
7)°øºÎ¿ÍÀÇ Â÷ÀÌ
-.
8)±âŸÂü°í»çÇ×(ÀÓ´ë°ü·Ê ¹× ±âŸ)
ÀÓ´ë°ü°è´Â ¹Ì»óÀÓ
1)°Ç¹°ÀÇ ±¸Á¶
ö±ÙÄÜÅ©¸®Æ®±¸Á¶ ½º¶óºêÁöºØ 2Ãþ °Ç¹°·Î¼­,
¿Üº® - µ¹ºÙÀÓ, ÆäÀÎÆ® µî ¸¶°¨
³»º® - º®Áö, ŸÀÏ µî ¸¶°¨
âȣ - ¼¦½ÃâȣÀÓ.
2)ÀÌ¿ë»óÅÂ
1, 2Ãþ µ¿ÀÏÇÏ°Ô ÁÖÅÃÀ¸·Î ÀÌ¿ë ÁßÀÓ.
3)¼³ºñ³»¿ª
±âº»ÀûÀÎ Àü±â½Ã¼³, À§»ý¼³ºñ, ±Þ¹è¼ö¼³ºñ, ³­¹æ¼³ºñ µî°ú ±âŸ ºÎ´ë¼³ºñ(°üÁ¤, ž籤¼³ºñ µî)°¡ ±¸ºñµÇ¾î ÀÖÀ½.
4)ºÎÇÕ¹° ¹× Á¾¹°
º°Ã· ¡¸ÁöÀû ¹× °Ç¹°°³È²µµ¡¹ ¹× ¡¸»çÁø¿ëÁö¡¹¿Í °°ÀÌ Á¦½Ã¿Ü°Ç¹° ¤¡,¤¤ÀÌ ¼ÒÀçÇÔ.
5)°øºÎ¿ÍÀÇ Â÷ÀÌ
-.
6)±âŸÂü°í»çÇ×(ÀÓ´ë°ü·Ê ¹× ±âŸ)
ÀÓ´ë°ü°è´Â ¹Ì»óÀÓ.
Âü°í
»çÇ×
- ³óÁöÃëµæÀÚ°ÝÁõ¸í ÇÊ¿ä(¹ÌÁ¦Ãâ½Ã º¸Áõ±Ý ¹Ì¹Ýȯ) - ÇöȲ '¹¬´ä'ÀÓ


±¹ÅäºÎ½Ç°Å·¡°¡ Àü¶ó³²µµ ³ªÁֽà µ¿°­¸é

°è¾àÀÏÁö¸ñ¿ëµµÁö¿ªµµ·Î°è¾à¸éÀû±Ý¾×±¸ºÐ
26.02.11´ä³ó¸²8m¹Ì¸¸26097,890ÁöºÐ
26.02.06Àüº¸Àü°ü¸®8m¹Ì¸¸1739.22,600
26.02.06´ëº¸Àü°ü¸®8m¹Ì¸¸114345
26.02.06´ëº¸Àü°ü¸®8m¹Ì¸¸262791
26.02.06´ëº¸Àü°ü¸®8m¹Ì¸¸306924
¢Ñ ´õº¸±â

µî±âºÎµîº» ¿ä¾à(ÅäÁö)

  Á¢¼öÀÏÀÚ µî±â¸ñÀû/±Ç¸®ÀÚ ±Ç¸®±Ý¾× ±âÁØ
1 2013³â2¿ù27ÀÏ
¼ÒÀ¯±Ç
ȲOO
¼Ò¸ê
2 2024³â7¿ù25ÀÏ
±ÙÀú´ç±Ç
(OOOO
255,000,000 ¼Ò¸ê±âÁØ
3 2025³â6¿ù20ÀÏ
ÀÓÀǰæ¸Å
(OOOO
¼Ò¸ê

ÀÓÂ÷ÀÎÇöȲ (¹è´ç¿ä±¸Á¾±âÀÏ: )


Á¶»çµÈ ÀÓÂ÷³»¿ªÀÌ ¾ø½À´Ï´Ù


¿©ÀÇÁÖ°æ¸Å Á¶¾ð ÇÑ ¸¶µð

³«Âû ÈÄ¿¡ µî±âºÎ»ó ¼Ò¸êµÇÁö ¾Ê´Â ±Ç¸®´Â ¾ø½À´Ï´Ù.
´ë·«ÀûÀÎ °ËÅäÀǰßÀ̹ǷΠÀÔÂûÀü¿¡ Àü¹®°¡ÀÇ Á¶¾ðÀ» Âü°íÇØ º¸½Ã±æ ±ÇÇØµå¸³´Ï´Ù.
³óÁöÃëµæÀÚ°ÝÁõ¸í¿ø Á¦ÃâÀ» Á¶°ÇÀ¸·Î ÇÏ´Â ¹°°ÇÀÔ´Ï´Ù.
ÀÌ »ç°Ç¹øÈ£·Î 2°³ÀÇ ¹°°ÇÀÌ °æ¸ÅµÇ¸ç ÀÌ ¹°°Ç¹øÈ£´Â 2¹ø ÀÔ´Ï´Ù.
¡Ø ¹°°Ç Ű¿öµå : °ü¸®Áö¿ª/³ó¸²Áö¿ª/º¸Àü°ü¸®Áö¿ª/»ý»ê°ü¸®Áö¿ª/°èȹ°ü¸®Áö¿ª/¹ö½ºÁ¤·ùÀå/³ë¼±¹ö½ºÁ¤·ùÀå/ö±ÙÄÜÅ©¸®Æ®±¸Á¶/½º¶óºêÁöºØ
Àüü ÄÁ¼³ÆÃÀÌ ºÎ´ã½º·¯¿ì½Å°¡¿ä? ±Ç¸®ºÐ¼®¸¸ ÀÇ·ÚÇϼŵµ ±¦Âú½À´Ï´Ù!
½Ç¼Ó ÀÖ°Ô Çٽɸ¸ ´ãÀº ±Ç¸®ºÐ¼® ¼­ºñ½º!! (±Ç¸®ºÐ¼® + ½Ã¼¼Á¶»ç + ³«Âû°¡ »êÁ¤ + ÀÔÂûÇ¥ ÀÛ¼º¹æ¹ý ±îÁö)
ÃÖ´ë Àüü ÄÁ¼³ÆÃ ºñ¿ëÀÇ 10% ¼öÁØ !!

ÁÖÀÇ»çÇ× (ÃÖ¼±¼øÀ§ ¼³Á¤ÀÏ: 2024. 7. 25. ±ÙÀú´ç±Ç ¼³Á¤)

¸Å°¢À¸·Î ¼Ò¸êµÇÁö ¾Ê´Â µî±âºÎ±Ç¸®:
¸Å°¢À¸·Î ¼³Á¤µÈ °ÍÀ¸·Î º¸´Â Áö»ó±Ç:
- ³óÁöÃëµæÀÚ°ÝÁõ¸í ÇÊ¿ä(¹ÌÁ¦Ãâ½Ã º¸Áõ±Ý ¹Ì¹Ýȯ) - ÇöȲ '¹¬´ä'ÀÓ
¡Ø¹Ì³³°ü¸®ºñ(°ø¿ë) Àμö¿©ºÎ¸¦ ÀÔÂû Àü¿¡ È®ÀÎÇϽñ⠹ٶø´Ï´Ù

 

Áö¿ªºÐ¼®

ÁöÇÏö¸í Á÷¼±°Å¸®

Çб³¸í ÀüÈ­¹øÈ£ ÁÖ¼Ò Á÷¼±°Å¸®

¹ý¿ø

±¤ÁÖÁö¹æ¹ý¿ø (614-41)±¤ÁÖ±¤¿ª½Ã µ¿±¸ Áعý·Î 7-12(Áö»ê2µ¿)
´ëÇ¥ : 062)239-1114
°üÇÒÁö¿ª : ±¤ÁÖ±¤¿ª½Ã, ³ªÁÖ½Ã, È­¼ø±º, À强±º, ´ã¾ç±º, °î¼º±º, ¿µ±¤±º

µî±â¼Ò ±¤ÁÖÁö¹æ¹ý¿ø º»¿ø ³ªÁÖµî±â¼Ò (´ëÇ¥:1544-0773, ÆÑ½º:(061)332-6701, Àü³² ³ªÁֽà Àç½Å±æ 41 (¼Û¿ùµ¿ 1126))
¼¼¹«¼­ ³ªÁÖ¼¼¹«¼­ (´ëÇ¥:061-330-02, ÆÑ½º:061-332-8570, Àü¶ó³²µµ ³ªÁֽà Àç½Å±æ 33 (¼Û¿ùµ¿))

Àαٳ«ÂûÅë°è

±â°£ ¸Å°¢°Ç¼ö Æò±Õ°¨Á¤°¡
Æò±Õ¸Å°¢°¡
¸Å°¢°¡À²
Æò±ÕÀ¯Âû¼ö


º» °æ¸ÅÁ¤º¸´Â ¹ý¿øÀÚ·á¿Í ÀÏÄ¡Çϵµ·Ï ÇÏ¿´À¸³ª ±Ç¸®»çÇ׺¯µ¿, ÀÔ·ÂÂø¿À µîÀÇ ¿øÀÎÀ¸·Î »ç½Ç°ú ´Ù¸¦ ¼ö ÀÖ½À´Ï´Ù. ÀÌ¿ë¾à°ü¿¡ ÀǰЏéÃ¥Á¶°ÇÀ¸·Î Á¦°øµÊÀ» ¾Ë¸®¸ç, °æ¸ÅÀÔÂû½Ã ¹Ýµå½Ã °ü·Ã °øºÎ¸¦ ÀçÈ®ÀÎÇϽñ⠹ٶø´Ï´Ù. º¸´Ù Æí¸®ÇÑ °æ¸ÅÁ¤º¸ Á¦°øÀ» À§ÇØ Áö¼ÓÀûÀ¸·Î °³¼±ÇϰڽÀ´Ï´Ù. ÀÌ¿ëÇØ Áּż­ °¨»çÇÕ´Ï´Ù.
°ü½É¹°°ÇÀ¸·Î µî·ÏÇÕ´Ï´Ù