1035
´Ù¼¼´ë(ºô¶ó)
¼ö¿øÁö¹æ¹ý¿ø ¼º³²Áö¿ø
 °¨Á¤°¡161,000,000 ¿ø
 ÃÖÀú°¡(70%) 112,700,000 ¿ø
 º¸Áõ±Ý(10%) 11,270,000 ¿ø
 Ã»±¸¾×99,235,899 ¿ø
°æ±âµµ ±¤Áֽà Çã»ê±æ 31, 1Ãþ102È£ (°í»êµ¿,¿ÀÆä¶óÇϿ콺)
°æ±âµµ ±¤Áֽà °í»êµ¿ 33-3
»ç°Ç¹øÈ£ 2024Ÿ°æ52088
°æ¸ÅÁ¾·ùºÎµ¿»êÀÓÀǰæ¸Å
¸Å°¢´ë»óÅäÁö ¹× °Ç¹°Àϰý ¸Å°¢
¸Å°¢±âÀÏ    2026.03.23(¿ù) 10:00 ÀÔÂû 28ÀÏÀü    
ÅäÁö¸éÀû89.82§³(27.17 Æò)
°Ç¹°¸éÀû74.58§³(22.56 Æò)
乫/¼ÒÀ¯ÀÚ¸Á OOOO OOO OOO / ¸Á OOOO OOO OOO
ä±ÇÀÚÇÑOOOOOOO
±è¼ºÈÆ ´ëÇ¥ÀÌ»ç
°øÀÎÁß°³»ç, ºÎµ¿»ê°ø°æ¸Å»ç, ÇѾç´ëÇб³ Á¹¾÷
Àü) ÅÂÀÎÄÁ¼³ÆÃ(ÁÖ) ´ëÇ¥ÀÌ»ç
Àü) ¿©ÀÇÁֺε¿»êÁß°³¹ýÀÎ(ÁÖ) ´ëÇ¥ÀÌ»ç
Çö) ¿©ÀÇÁÖ°æ¸Å¹ýÀÎ ´ëÇ¥ÀÌ»ç
010-2371-3237
ÆäÀ̽ººÏ Æ®À§ÅÍ ±¸±Û+
īī¿À½ºÅ丮
īī¿ÀÅå sms¹®ÀÚº¸³»±â
 

±âÀϳ»¿ª

°æ°ú ³¯Â¥ Àú°¨ ÃÖÀú°¡ °á°ú
Á¢¼öÀÏ 2024-02-06 °æ¸ÅÁ¢¼ö
~2ÀÏ 
2024-02-08 °æ¸Å°³½Ã°áÁ¤
~721ÀÏ 
2026-01-27 ¹è´ç¿ä±¸Á¾±âÀÏ
~738ÀÏ 
2026-02-13 100%
161,000,000
À¯Âû
~776ÀÏ 
2026-03-23 70%
112,700,000
ÁøÇà
¹°°Ç¸í¼¼¼­ ÇöȲÁ¶»ç¼­ ¹®°ÇÁ¢¼ö ¼Û´Þ³»¿ª

°¨Á¤Æò°¡ÇöȲ

¸ñ·Ï ÁÖ¼Ò ±¸Á¶/¿ëµµ/´ëÁö±Ç ¸éÀû ºñ°í
´ëÁö±Ç
°í»êµ¿ 33-1 747ºÐÀÇ 89.82 89.82 §³
(27.17Æò)
°Ç¹°
°í»êµ¿ 33-1 1Ãþ102È£ ö±ÙÄÜÅ©¸®Æ®Á¶ 74.58 §³
(22.56Æò)
1) À§Ä¡/µµ½ÃÁö¿ª/°ü¸®Áö¿ª/ÀÚ¿¬³ìÁöÁö¿ª/³ë¼±¹ö½ºÁ¤·ùÀå/ö±ÙÄÜÅ©¸®Æ®±¸Á¶/°æ»çÁöºØ/µµ½Ã°¡½º/°³º°³­¹æ/¹æ3/¿å½Ç2 ´õº¸±â
°¨Á¤Æò°¡ ¿äÇ×Ç¥
1)À§Ä¡ ¹× ÁÖÀ§È¯°æ
º»°ÇÀº °æ±âµµ ±¤Áֽà °í»êµ¿ ¼ÒÀç "°í»ê1¸®º¹Áöȸ°ü"ºÏ¼­Ãø Àαٿ¡ À§Ä¡Çϸç, ÁÖÀ§´Â ´Ù¼¼´ëÁÖÅà ´Üµ¶ÁÖÅà ¹× ³ó°æÁö µîÀÌ È¥ÀçÇÏ´Â Áö¿ªÀÓ.
2)±³Åë»óȲ
ÀÎÁ¢µµ·Î¸¦ ÀÌ¿ëÇÏ¿© Â÷·®Á¢±ÙÀÌ ¿ëÀÌÇϰí Àαٿ¡ ³ë¼±¹ö½ºÁ¤·ùÀåÀÌ À§Ä¡ÇÏ¿© Á¦¹Ý±³Åë»óȲÀº º¸ÅëÀÓ.
3)°Ç¹°ÀÇ ±¸Á¶
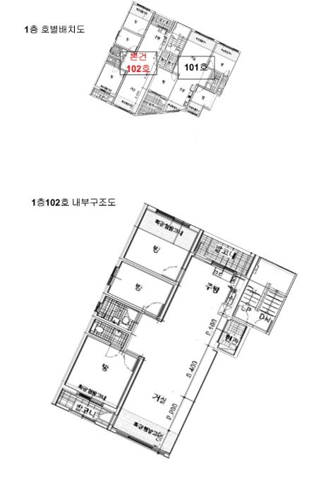
ö±ÙÄÜÅ©¸®Æ®±¸Á¶ (ö±Ù)ÄÜÅ©¸®Æ®(°æ»çÁöºØ) 4Ãþ Áß 1Ãþ 102È£
(ÀüÀ¯¸éÀû : 74.58§³)·Î¼­
¿Üº® : º®µ¹½×±â µî ¸¶°¨.
³»º® : º®Áö ¹× ŸÀÏ µî ¸¶°¨.
âȣ : ÇÏÀÌ»þ½ÃâȣÀÓ
4)ÀÌ¿ë»óÅÂ
´Ù¼¼´ëÁÖÅÃ(¹æ3, ÁÖ¹æ, °Å½Ç, ¿å½Ç2, ¹ßÄÚ´Ï µî)À¸·Î ÀÌ¿ëÁßÀÓ.

5)¼³ºñ³»¿ª
À§»ý¼³ºñ ¹× ±Þ¡¤¹è¼ö½Ã¼³, µµ½Ã°¡½º¿¡ ÀÇÇÑ °³º°³­¹æ¼³ºñ µî ±¸ºñµÇ¾î
ÀÖÀ½.

6)ÅäÁöÀÇ Çü»ó ¹× ÀÌ¿ë»óÅÂ
´ëü·Î ¿Ï°æ»çÀÇ ÀÚ·çÇü ÅäÁö·Î¼­ ´Ù¼¼´ëÁÖÅÃÀÇ °ÇºÎÁö·Î ÀÌ¿ëÁßÀÓ.

7)ÀÎÁ¢ µµ·Î»óŵî
ºÏµ¿ÃøÀ¸·Î ³ëÆø ¾à 5M ³»¿ÜÀÇ Æ÷Àåµµ·Î¿¡ Á¢ÇÔ.

8)ÅäÁöÀÌ¿ë°èȹ ¹× Á¦ÇÑ»óÅÂ
µµ½ÃÁö¿ª, ÀÚ¿¬³ìÁöÁö¿ª, ÀÚ¿¬Ãë¶ôÁö±¸, ¼ºÀå°ü¸®°èȹ±¸¿ª(¼ºÀå°ü¸®Áö¿ª(ÁÖ°ÅÇü)) °¡Ãà»çÀ°Á¦Çѱ¸¿ª<°¡ÃàºÐ´¢ÀÇ °ü¸® ¹× À̿뿡 °üÇÑ ¹ý·ü>, »ó´ëº¸È£±¸¿ª(Çб³È¯°æÀ§»ýÁ¤È­±¸¿ª ¼¼ºÎ³»¿ëÀº ±³À°Ã»¿¡ º°µµ È®Àοä[±¤ÁÖ±¤³²Áß])<±³À°È¯°æ º¸È£¿¡ °üÇÑ ¹ý·ü>, ¹èÃâ½Ã¼³¼³Ä¡Á¦ÇÑÁö¿ª<¹°È¯°æº¸Àü¹ý>, ÀÚ¿¬º¸Àü±Ç¿ª<¼öµµ±ÇÁ¤ºñ°èȹ¹ý>, °øÀå¼³¸³½ÂÀÎÁö¿ª<¼öµµ¹ý>, Ưº°´ëÃ¥Áö¿ª<ȯ°æÁ¤Ã¥±âº»¹ý>
9)°øºÎ¿ÍÀÇ Â÷ÀÌ
¾øÀ½.
10)±âŸÂü°í»çÇ×(ÀÓ´ë°ü·Ê ¹× ±âŸ)
ÀÓ´ë°ü°è´Â ¹Ì»óÀÓ.
Âü°í
»çÇ×

- Æó¹®ºÎÀç, ÃÊÀÎÁ¾À» ´­·¯µµ ÀÀ´äÀÌ ¾øÀ½. - ÀÌ °Ç ºÎµ¿»êÀÇ µµ·Î¸í ÁÖ¼Ò(Çã»ê±æ 31)¿¡´Â `101µ¿`ºÎÅÍ `104µ¿`

°ÇÃ๰ÇöȲ

¼ÒÀçÁö °æ±âµµ ±¤Áֽà °í»êµ¿ 33-1¹øÁö
´ëÁö¸éÀû 747§³
(226.36Æò)
¿¬¸éÀû 658.66§³
(199.59Æò)
°ÇÃà¸éÀû 216.97§³
(65.75Æò)
¿ëÀû·ü»êÁ¤
¿¬¸éÀû
658.66§³
(199.59Æò)
°ÇÆóÀ² 29.05% ¿ëÀû·ü 88.17%
Áö»óÃþ¼ö 4Ãþ ÁöÇÏÃþ¼ö  
ÁÖ¿ëµµ °øµ¿ÁÖÅà ±¸Á¶ ö±ÙÄÜÅ©¸®Æ®±¸Á¶
Âø°øÀÏÀÚ 2008.06.20 »ç¿ë½ÂÀÎÀÏÀÚ 2009.03.31
°ÇÃ๰Ãþº°ÇöȲ [º¸±â]


±¹ÅäºÎ½Ç°Å·¡°¡ °æ±âµµ ±¤Áֽà °í»êµ¿

¡Ü ¸Å¸Å

¸éÀû(§³), ±Ý¾×(¸¸¿ø)

¡Ü Àü¼¼

¸éÀû(§³), ±Ý¾×(¸¸¿ø)

°è¾àÀϰǹ°¸íĪÃþ¿¬¸éÀûº¸Áõ±Ý¿ù¼¼°ÇÃà
26.02.02´õÆ÷·¹½ºÅ¸(801µ¿)365.1126,0002020
26.01.28¸ð´øÇÏÀÓ(Aµ¿)574.553,000802019
26.01.22´õÆ÷·¹½ºÅ¸(801µ¿)263.645,500402020
26.01.17¿ÀÆä¶óÇϿ콺(104µ¿)35612,0002009
25.12.31¿ÀÆä¶óÇϿ콺(101µ¿102µ¿)250.961,500752008
¢Ñ ´õº¸±â

µî±âºÎµîº» ¿ä¾à(°Ç¹°)

  Á¢¼öÀÏÀÚ µî±â¸ñÀû/±Ç¸®ÀÚ ±Ç¸®±Ý¾× ±âÁØ
1 2025³â2¿ù19ÀÏ
¼ÒÀ¯±Ç
ÀÓOO
¼Ò¸ê
2 2021³â7¿ù20ÀÏ
±ÙÀú´ç±Ç
ÇÑOOOO
107,800,000 ¼Ò¸ê±âÁØ
3 2023³â7¿ù19ÀÏ
°¡¾Ð·ù
(OOOO
32,446,877 ¼Ò¸ê
4 2024³â2¿ù8ÀÏ
ÀÓÀǰæ¸Å
ÇÑOOOO
¼Ò¸ê

ÀÓÂ÷ÀÎÇöȲ (¹è´ç¿ä±¸Á¾±âÀÏ: 2026-01-27)


Á¶»çµÈ ÀÓÂ÷³»¿ªÀÌ ¾ø½À´Ï´Ù


¿©ÀÇÁÖ°æ¸Å Á¶¾ð ÇÑ ¸¶µð

³«Âû ÈÄ¿¡ µî±âºÎ»ó ¼Ò¸êµÇÁö ¾Ê´Â ±Ç¸®´Â ¾ø½À´Ï´Ù.
´ë·«ÀûÀÎ °ËÅäÀǰßÀ̹ǷΠÀÔÂûÀü¿¡ Àü¹®°¡ÀÇ Á¶¾ðÀ» Âü°íÇØ º¸½Ã±æ ±ÇÇØµå¸³´Ï´Ù.
°¨Á¤ ½ÃÁ¡ÀÌ ¿À·¡µÇ¾î °¡°Ýº¯µ¿ÀÌ ÀÖÀ» ¼ö ÀÖ½À´Ï´Ù.
ÀÌ ¹°°ÇÀº 2024³â 2¿ù 8ÀÏ¿¡ °æ¸Å°¡ °³½ÃµÇ¾ú´Âµ¥ Áö±Ý ½ÃÁ¡À¸·Î ¾à 746ÀÏÀÌ ÀÌ °æ°úµÇ¾ú½À´Ï´Ù. °¨Á¤°¡°ÝÀº 746ÀÏ Àü ½ÃÁ¡¿¡¼­ Æò°¡ÇÑ °¡°ÝÀ̹ǷΠ±× »çÀÌ °¡°Ýº¯µ¿ÀÌ ÀÖÀ» ¼ö ÀÖ½À´Ï´Ù. ƯÈ÷ °¡°Ý º¯µ¿ÀÌ ½ÉÇÑ ¾ÆÆÄÆ®´Â À¯ÀÇÇÏ¼Å¾ß ÇÕ´Ï´Ù. °¨Á¤°¡°ÝÀ» ³Ê¹« ¹ÏÁö ¸¶½Ã°í ÇöÀç ½Ç¸Å¹° °¡°Ý°ú ½Ç°Å·¡°¡¸¦ È®ÀÎÇϽñ⠹ٶø´Ï´Ù.
°£È¤ °¨Á¤°¡°Ýº¸´Ù ³ô°Ô ³«ÂûµÇ´Â °æ¿ì°¡ Àִµ¥ ´ëºÎºÐ ÀÌ·± ÀÌÀ¯ÀÔ´Ï´Ù.
¡Ø ¹°°Ç Ű¿öµå : µµ½ÃÁö¿ª/°ü¸®Áö¿ª/³ìÁöÁö¿ª/ÀÚ¿¬³ìÁöÁö¿ª/¹ö½ºÁ¤·ùÀå/³ë¼±¹ö½ºÁ¤·ùÀå/ö±ÙÄÜÅ©¸®Æ®±¸Á¶/°æ»çÁöºØ/µµ½Ã°¡½º/°³º°³­¹æ/¹æ3/¿å½Ç2
Àüü ÄÁ¼³ÆÃÀÌ ºÎ´ã½º·¯¿ì½Å°¡¿ä? ±Ç¸®ºÐ¼®¸¸ ÀÇ·ÚÇϼŵµ ±¦Âú½À´Ï´Ù!
½Ç¼Ó ÀÖ°Ô Çٽɸ¸ ´ãÀº ±Ç¸®ºÐ¼® ¼­ºñ½º!! (±Ç¸®ºÐ¼® + ½Ã¼¼Á¶»ç + ³«Âû°¡ »êÁ¤ + ÀÔÂûÇ¥ ÀÛ¼º¹æ¹ý ±îÁö)
ÃÖ´ë Àüü ÄÁ¼³ÆÃ ºñ¿ëÀÇ 10% ¼öÁØ !!

ÁÖÀÇ»çÇ× (ÃÖ¼±¼øÀ§ ¼³Á¤ÀÏ: 2021.07.20. ±ÙÀú´ç±Ç ¼³Á¤)

¸Å°¢À¸·Î ¼Ò¸êµÇÁö ¾Ê´Â µî±âºÎ±Ç¸®:
¸Å°¢À¸·Î ¼³Á¤µÈ °ÍÀ¸·Î º¸´Â Áö»ó±Ç:
¡Ø¹Ì³³°ü¸®ºñ(°ø¿ë) Àμö¿©ºÎ¸¦ ÀÔÂû Àü¿¡ È®ÀÎÇϽñ⠹ٶø´Ï´Ù

 

Áö¿ªºÐ¼®

ÁöÇÏö¸í Á÷¼±°Å¸®

Çб³¸í ÀüÈ­¹øÈ£ ÁÖ¼Ò Á÷¼±°Å¸®

¹ý¿ø

¼ö¿øÁö¹æ¹ý¿ø ¼º³²Áö¿ø (131-43)°æ±âµµ ¼º³²½Ã ¼öÁ¤±¸ »ê¼º´ë·Î 451 (´Ü´ëµ¿)
´ëÇ¥ : 031)737-1558, ¾ß°£ : 031)737-1120
°üÇÒÁö¿ª : ¼º³²½Ã, ±¤ÁÖ½Ã, Çϳ²½Ã

µî±â¼Ò ¼ö¿øÁö¹æ¹ý¿ø ¼º³²Áö¿ø ±¤ÁÖµî±â¼Ò (´ëÇ¥:1544-0773, ÆÑ½º:(031)765-2388, °æ±âµµ ±¤Áֽà ÇàÁ¤Å¸¿î·Î 49-15 (¼ÛÁ¤µ¿ 346-4))
¼¼¹«¼­ °æ±â±¤ÁÖ¼¼¹«¼­ (´ëÇ¥:031-880-92, ÆÑ½º:031-769-0417, °æ±âµµ ±¤Áֽà ¹®È­·Î 127)

Àαٳ«ÂûÅë°è

±â°£ ¸Å°¢°Ç¼ö Æò±Õ°¨Á¤°¡
Æò±Õ¸Å°¢°¡
¸Å°¢°¡À²
Æò±ÕÀ¯Âû¼ö


º» °æ¸ÅÁ¤º¸´Â ¹ý¿øÀÚ·á¿Í ÀÏÄ¡Çϵµ·Ï ÇÏ¿´À¸³ª ±Ç¸®»çÇ׺¯µ¿, ÀÔ·ÂÂø¿À µîÀÇ ¿øÀÎÀ¸·Î »ç½Ç°ú ´Ù¸¦ ¼ö ÀÖ½À´Ï´Ù. ÀÌ¿ë¾à°ü¿¡ ÀǰЏéÃ¥Á¶°ÇÀ¸·Î Á¦°øµÊÀ» ¾Ë¸®¸ç, °æ¸ÅÀÔÂû½Ã ¹Ýµå½Ã °ü·Ã °øºÎ¸¦ ÀçÈ®ÀÎÇϽñ⠹ٶø´Ï´Ù. º¸´Ù Æí¸®ÇÑ °æ¸ÅÁ¤º¸ Á¦°øÀ» À§ÇØ Áö¼ÓÀûÀ¸·Î °³¼±ÇϰڽÀ´Ï´Ù. ÀÌ¿ëÇØ Áּż­ °¨»çÇÕ´Ï´Ù.
°ü½É¹°°ÇÀ¸·Î µî·ÏÇÕ´Ï´Ù