1084
±Ù¸°»ó°¡
¼ö¿øÁö¹æ¹ý¿ø ¼º³²Áö¿ø
 °¨Á¤°¡783,000,000 ¿ø
 ÃÖÀú°¡(70%) 548,100,000 ¿ø
 º¸Áõ±Ý(10%) 54,810,000 ¿ø
 Ã»±¸¾×461,495,221 ¿ø
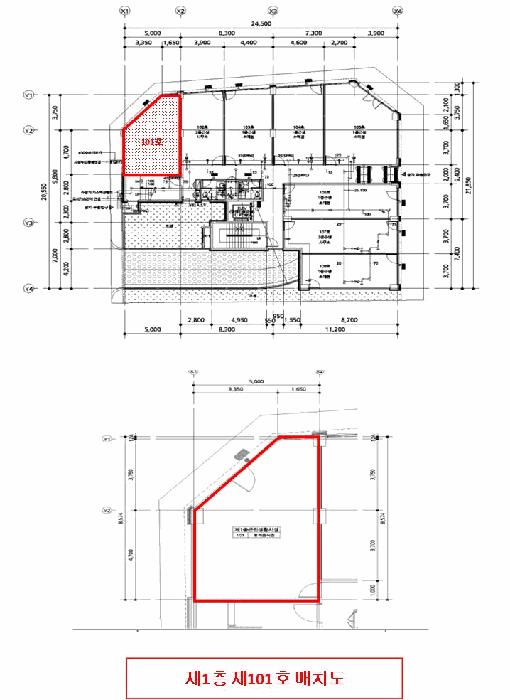
°æ±âµµ ¼º³²½Ã ¼öÁ¤±¸ °íµîµ¿ 616 ´ë¿ÕºôµùÁÖ°ÇÃ๰ 1µ¿ 1Ãþ101È£
»ç°Ç¹øÈ£ 2025Ÿ°æ51795
°æ¸ÅÁ¾·ùºÎµ¿»êÀÓÀǰæ¸Å
¸Å°¢´ë»óÅäÁö ¹× °Ç¹°Àϰý ¸Å°¢
¸Å°¢±âÀÏ    2026.03.16(¿ù) 10:00 ÀÔÂû 13ÀÏÀü    
ÅäÁö¸éÀû15.44§³(4.67 Æò)
°Ç¹°¸éÀû36.07§³(10.91 Æò)
乫/¼ÒÀ¯ÀÚÁÖOOOOO / ÁÖOOOOO
ä±ÇÀÚ¼­OOOOOOOOO
±è¼ºÈÆ ´ëÇ¥ÀÌ»ç
°øÀÎÁß°³»ç, ºÎµ¿»ê°ø°æ¸Å»ç, ÇѾç´ëÇб³ Á¹¾÷
Àü) ÅÂÀÎÄÁ¼³ÆÃ(ÁÖ) ´ëÇ¥ÀÌ»ç
Àü) ¿©ÀÇÁֺε¿»êÁß°³¹ýÀÎ(ÁÖ) ´ëÇ¥ÀÌ»ç
Çö) ¿©ÀÇÁÖ°æ¸Å¹ýÀÎ ´ëÇ¥ÀÌ»ç
010-2371-3237
ÆäÀ̽ººÏ Æ®À§ÅÍ ±¸±Û+
īī¿À½ºÅ丮
īī¿ÀÅå sms¹®ÀÚº¸³»±â
 

±âÀϳ»¿ª

°æ°ú ³¯Â¥ Àú°¨ ÃÖÀú°¡ °á°ú
Á¢¼öÀÏ 2025-03-14 °æ¸ÅÁ¢¼ö
~1ÀÏ 
2025-03-15 °æ¸Å°³½Ã°áÁ¤
~66ÀÏ 
2025-05-19 ¹è´ç¿ä±¸Á¾±âÀÏ
~332ÀÏ 
2026-02-09 100%
783,000,000
À¯Âû
~367ÀÏ 
2026-03-16 70%
548,100,000
ÁøÇà
¹°°Ç¸í¼¼¼­ ÇöȲÁ¶»ç¼­ ¹®°ÇÁ¢¼ö ¼Û´Þ³»¿ª

°¨Á¤Æò°¡ÇöȲ

¸ñ·Ï ÁÖ¼Ò ±¸Á¶/¿ëµµ/´ëÁö±Ç ¸éÀû ºñ°í
´ëÁö±Ç
°íµîµ¿ 616 658ºÐÀÇ 15.44 15.44 §³
(4.67Æò)
°Ç¹°
°íµîµ¿ 616 1µ¿ 1Ãþ101È£ ö±ÙÄÜÅ©¸®Æ®±¸Á¶ 36.07 §³
(10.91Æò)
1) À§Ä¡/µµ½ÃÁö¿ª/ÁØÁÖ°ÅÁö¿ª/Áö±¸´ÜÀ§°èȹ±¸¿ª/¹ö½ºÁ¤·ùÀå/ÁÖÂ÷Àå/Â÷·®ÃâÀÔ ¿øÈ°/°£¼±µµ·Î ´õº¸±â
°¨Á¤Æò°¡ ¿äÇ×Ç¥
1)À§Ä¡ ¹× ÁÖÀ§È¯°æ
°æ±âµµ ¼º³²½Ã ¼öÁ¤±¸ °íµîµ¿ ¼ÒÀç ""°íµîµ¿ÇàÁ¤º¹Áö¼¾Å¸"" ³²Ãø Àαٿ¡ À§Ä¡ÇÑ ºÎµ¿»êÀ¸·Î¼­
ÁÖÀ§´Â ´Üµ¶(´Ù°¡±¸)ÁÖÅÃ, ÁÖ»ó¿ë, ¾ÆÆÄÆ®, ¿ÀÇǽºÅÚ µîÀÌ ¼ÒÀçÇϰí ÀÖÀ¸¸ç, ÁÖÀ§È¯°æÀº
º¸Åë½ÃµÊ.
2)±³Åë»óȲ
º»°Ç±îÁö Â÷·®ÃâÀÔ ¿øÈ°Çϸç, µ¿ÃøÀ¸·Î °£¼±µµ·Î(´ë¿ÕÆÇ±³·Î)°¡ Åë°úÇϰí, Àαٿ¡
¹ö½ºÁ¤·ùÀåÀÌ ¼ÒÀçÇÏ´Â µî Á¦¹Ý±³Åë¿©°ÇÀº º¸Åë½ÃµÊ.
3)°Ç¹°ÀÇ ±¸Á¶
º»°ÇÀº ö±ÙÄÜÅ©¸®Æ® ±¸Á¶ (ö±Ù)ÄÜÅ©¸®Æ®ÁöºØ ÁöÇÏ2Ãþ/Áö»ó5Ãþ Áß Á¦1Ãþ Á¦101È£·Î¼­
¿Üº® : È­°­¼®ºÙÀÓ ¸¶°¨ µî
³»º® : ÆäÀÎÆ® ¹× ÀÎÅ׸®¾î ¸¶°¨ µî.
âȣ : »õ½Ãâȣ µîÀÓ.
4)ÀÌ¿ë»óÅÂ
º»°ÇÀº ±Ù¸°»ýȰ½Ã¼³(Ä¿ÇÇ¿¡¹ÝÇÏ´Ù)·Î ÀÌ¿ëÁßÀÓ.
(Èĸé '³»ºÎ±¸Á¶µµ' ÂüÁ¶)
5)¼³ºñ³»¿ª
À§»ý¼³ºñ, ±Þ¹è¼ö¼³ºñ, ¿Á³»¼ÒÈ­Àü¼³ºñ, ½Â°­±â¼³ºñ, ÁÖÂ÷Àå µî ¼³ºñµÇ¾î ÀÖÀ½.
6)ÅäÁöÀÇ Çü»ó ¹× ÀÌ¿ë»óÅÂ
ÀÎÁ¢ µµ·Î ¹× ÀÎÁ¢ ´ëÁö ´ëºñ µî°í ÆòźÇÑ »ç´Ù¸®Çü ÅäÁö·Î¼­, »ó¾÷¿ë °ÇºÎÁö·Î ÀÌ¿ëÁßÀÓ.
7)ÀÎÁ¢ µµ·Î»óŵî
º»°Ç µ¿ÃøÀ¸·Î ´ë¿ÕÆÇ±³·Î(¾à 40m), ¼­ÃøÀ¸·Î ¾à 10m, ºÏÃøÀ¸·Î ¾à 12m Á¤µµÀÇ µµ·Î¿Í
Á¢Çϰí ÀÖÀ½.
8)ÅäÁöÀÌ¿ë°èȹ ¹× Á¦ÇÑ»óÅÂ
µµ½ÃÁö¿ª , ÁØÁÖ°ÅÁö¿ª , Áö±¸´ÜÀ§°èȹ±¸¿ª(°íµî) , ´ë·Î1·ù(Æø 35m~40m)(2019-12-31)(Á¢ÇÕ)
, ¼Ò·Î1·ù(Æø 10m~12m)(Á¢ÇÕ) , Áß·Î3·ù(Æø 12m~15m)(Á¢ÇÕ), °¡Ãà»çÀ°Á¦Çѱ¸¿ª<°¡ÃàºÐ´¢ÀÇ
°ü¸® ¹× À̿뿡 °üÇÑ ¹ý·ü>, °ø°øÁÖÅÃÁö±¸<°ø°øÁÖÅà Ưº°¹ý>, ºñÇà¾ÈÀüÁ¦5±¸¿ª(Àü¼ú)
(ºñÇà¾ÈÀüÁ¦5±¸¿ª)<±º»ç±âÁö ¹× ±º»ç½Ã¼³ º¸È£¹ý>, ´ë±âȯ°æ±ÔÁ¦Áö¿ª<´ë±âȯ°æº¸Àü¹ý>,
µµ½Ã±³ÅëÁ¤ºñÁö¿ª<µµ½Ã±³ÅëÁ¤ºñÃËÁø¹ý>, °ú¹Ð¾ïÁ¦±Ç¿ª<¼öµµ±ÇÁ¤ºñ°èȹ¹ý>
9)°øºÎ¿ÍÀÇ Â÷ÀÌ
ÇØ´ç»çÇ× ¾øÀ½.
10)±âŸÂü°í»çÇ×(ÀÓ´ë°ü·Ê ¹× ±âŸ)
ÀÓ´ë°ü°è ¹Ì»óÀÓ.
Âü°í
»çÇ×

- ÀÌ°Ç ºÎµ¿»êÀº ¹«ÀÎ Sma

°ÇÃ๰ÇöȲ

¼ÒÀçÁö °æ±âµµ ¼º³²½Ã ¼öÁ¤±¸ °íµîµ¿ 616¹øÁö
´ëÁö¸éÀû 658§³
(199.39Æò)
¿¬¸éÀû 2927.89§³
(887.24Æò)
°ÇÃà¸éÀû 393.64§³
(119.28Æò)
¿ëÀû·ü»êÁ¤
¿¬¸éÀû
1945.86§³
(589.65Æò)
°ÇÆóÀ² 59.82% ¿ëÀû·ü 295.72%
Áö»óÃþ¼ö 5Ãþ ÁöÇÏÃþ¼ö 2Ãþ
ÁÖ¿ëµµ Á¦2Á¾±Ù¸°»ýȰ½Ã¼³ ±¸Á¶ ö±ÙÄÜÅ©¸®Æ®±¸Á¶
Âø°øÀÏÀÚ 2019.12.16 »ç¿ë½ÂÀÎÀÏÀÚ 2020.11.17
°ÇÃ๰Ãþº°ÇöȲ [º¸±â]


µî±âºÎµîº» ¿ä¾à(°Ç¹°)

  Á¢¼öÀÏÀÚ µî±â¸ñÀû/±Ç¸®ÀÚ ±Ç¸®±Ý¾× ±âÁØ
1 2021³â1¿ù22ÀÏ
¼ÒÀ¯±Ç
(OOOO
¼Ò¸ê
2 2024³â7¿ù5ÀÏ
±ÙÀú´ç±Ç
¼­OOOO
540,000,000 ¼Ò¸ê±âÁØ
3 2024³â12¿ù30ÀÏ
°¡¾Ð·ù
(OOOO
17,028,607 ¼Ò¸ê
4 2025³â2¿ù26ÀÏ
¾Ð·ù
¼ºOO
¼Ò¸ê
5 2025³â3¿ù17ÀÏ
ÀÓÀǰæ¸Å
¼­OOOO
¼Ò¸ê
6 2025³â4¿ù28ÀÏ
¾Ð·ù
¼ºOO
¼Ò¸ê

ÀÓÂ÷ÀÎÇöȲ (¹è´ç¿ä±¸Á¾±âÀÏ: 2025-05-19)

ÀÓÂ÷ÀÎ ¿ëµµ/Á¡À¯ º¸Áõ±Ý/¿ù¼¼ ´ëÇ×·Â
ÀüÀÔÀÏ/È®Á¤ÀÏ ¹è´ç¿ä±¸ ºñ°í
ÀÌOO 1Ãþ Áß101È£ 40,000,000
[¿ù]2,000,000
O
2023.05.03.
2024.11.20.
2025.4.9. 2023.05.02.ºÎÅÍ2025.05.02.±îÁö
ºñ°í
(¸Å°¢¹°°Ç
¸í¼¼¼­)
À̺ÎÁø:¼¼¹«¼­ ¹ßÇà »ó°¡°Ç¹°ÀÓ´ëÂ÷ÇöȲ¼­»ó »ç¾÷ÀÚ µî·Ï½ÅûÀÏÀº "2024. 11. 20."À̳ª 2026. 1. 2. ÀÓÂ÷ÀÎÀ¸·ÎºÎÅÍ ¼º³²¼¼¹« ¼­ ¹ßÇàÀÇ »ç¾÷ÀÚµî·Ï½ÅûÀÏÀÌ "2023. 5. 3."À̶ó´Â »ç½ÇÁõ¸í¼­°¡ Á¦ÃâµÊ

¿©ÀÇÁÖ°æ¸Å Á¶¾ð ÇÑ ¸¶µð

¸Å°¢¹°°Ç¸í¼¼ ºñ°í³­¿¡ ±âÀçµÈ ³»¿ëÀÔ´Ï´Ù.
À̺ÎÁø:¼¼¹«¼­ ¹ßÇà »ó°¡°Ç¹°ÀÓ´ëÂ÷ÇöȲ¼­»ó »ç¾÷ÀÚ µî·Ï½ÅûÀÏÀº "2024. 11. 20."À̳ª 2026. 1. 2. ÀÓÂ÷ÀÎÀ¸·ÎºÎÅÍ ¼º³²¼¼¹« ¼­ ¹ßÇàÀÇ »ç¾÷ÀÚµî·Ï½ÅûÀÏÀÌ "2023. 5. 3."À̶ó´Â »ç½ÇÁõ¸í¼­°¡ Á¦ÃâµÊ
³«Âû ÈÄ¿¡ µî±âºÎ»ó ¼Ò¸êµÇÁö ¾Ê´Â ±Ç¸®´Â ¾ø½À´Ï´Ù.
´ë·«ÀûÀÎ °ËÅäÀǰßÀ̹ǷΠÀÔÂûÀü¿¡ Àü¹®°¡ÀÇ Á¶¾ðÀ» Âü°íÇØ º¸½Ã±æ ±ÇÇØµå¸³´Ï´Ù.
°¨Á¤ ½ÃÁ¡ÀÌ ¿À·¡µÇ¾î °¡°Ýº¯µ¿ÀÌ ÀÖÀ» ¼ö ÀÖ½À´Ï´Ù.
ÀÌ ¹°°ÇÀº 2025³â 3¿ù 15ÀÏ¿¡ °æ¸Å°¡ °³½ÃµÇ¾ú´Âµ¥ Áö±Ý ½ÃÁ¡À¸·Î ¾à 353ÀÏÀÌ ÀÌ °æ°úµÇ¾ú½À´Ï´Ù. °¨Á¤°¡°ÝÀº 353ÀÏ Àü ½ÃÁ¡¿¡¼­ Æò°¡ÇÑ °¡°ÝÀ̹ǷΠ±× »çÀÌ °¡°Ýº¯µ¿ÀÌ ÀÖÀ» ¼ö ÀÖ½À´Ï´Ù. ƯÈ÷ °¡°Ý º¯µ¿ÀÌ ½ÉÇÑ ¾ÆÆÄÆ®´Â À¯ÀÇÇÏ¼Å¾ß ÇÕ´Ï´Ù. °¨Á¤°¡°ÝÀ» ³Ê¹« ¹ÏÁö ¸¶½Ã°í ÇöÀç ½Ç¸Å¹° °¡°Ý°ú ½Ç°Å·¡°¡¸¦ È®ÀÎÇϽñ⠹ٶø´Ï´Ù.
°£È¤ °¨Á¤°¡°Ýº¸´Ù ³ô°Ô ³«ÂûµÇ´Â °æ¿ì°¡ Àִµ¥ ´ëºÎºÐ ÀÌ·± ÀÌÀ¯ÀÔ´Ï´Ù.
¡Ø ¹°°Ç Ű¿öµå : µµ½ÃÁö¿ª/ÁÖ°ÅÁö¿ª/ÁØÁÖ°ÅÁö¿ª/Áö±¸´ÜÀ§°èȹ±¸¿ª/¹ö½ºÁ¤·ùÀå/ÁÖÂ÷Àå/Â÷·®ÃâÀÔ ¿øÈ°/°£¼±µµ·Î
Àüü ÄÁ¼³ÆÃÀÌ ºÎ´ã½º·¯¿ì½Å°¡¿ä? ±Ç¸®ºÐ¼®¸¸ ÀÇ·ÚÇϼŵµ ±¦Âú½À´Ï´Ù!
½Ç¼Ó ÀÖ°Ô Çٽɸ¸ ´ãÀº ±Ç¸®ºÐ¼® ¼­ºñ½º!! (±Ç¸®ºÐ¼® + ½Ã¼¼Á¶»ç + ³«Âû°¡ »êÁ¤ + ÀÔÂûÇ¥ ÀÛ¼º¹æ¹ý ±îÁö)
ÃÖ´ë Àüü ÄÁ¼³ÆÃ ºñ¿ëÀÇ 10% ¼öÁØ !!

ÁÖÀÇ»çÇ× (ÃÖ¼±¼øÀ§ ¼³Á¤ÀÏ: 2024. 7. 5. ±ÙÀú´ç±Ç ¼³Á¤)

¸Å°¢À¸·Î ¼Ò¸êµÇÁö ¾Ê´Â µî±âºÎ±Ç¸®:
¸Å°¢À¸·Î ¼³Á¤µÈ °ÍÀ¸·Î º¸´Â Áö»ó±Ç:
¡Ø¹Ì³³°ü¸®ºñ(°ø¿ë) Àμö¿©ºÎ¸¦ ÀÔÂû Àü¿¡ È®ÀÎÇϽñ⠹ٶø´Ï´Ù

 

Áö¿ªºÐ¼®

ÁöÇÏö¸í Á÷¼±°Å¸®

Çб³¸í ÀüÈ­¹øÈ£ ÁÖ¼Ò Á÷¼±°Å¸®

¹ý¿ø

¼ö¿øÁö¹æ¹ý¿ø ¼º³²Áö¿ø (131-43)°æ±âµµ ¼º³²½Ã ¼öÁ¤±¸ »ê¼º´ë·Î 451 (´Ü´ëµ¿)
´ëÇ¥ : 031)737-1558, ¾ß°£ : 031)737-1120
°üÇÒÁö¿ª : ¼º³²½Ã, ±¤ÁÖ½Ã, Çϳ²½Ã

µî±â¼Ò ¼ö¿øÁö¹æ¹ý¿ø ¼º³²Áö¿ø µî±â°ú (´ëÇ¥:1544-0773, ÆÑ½º:(031)741-2913, °æ±âµµ ¼º³²½Ã ¼öÁ¤±¸ »ê¼º´ë·Î 451 (´Ü´ëµ¿ 75))
¼¼¹«¼­ ¼º³²¼¼¹«¼­ (´ëÇ¥:031-730-62, ÆÑ½º:031-736-1904, °æ±âµµ ¼º³²½Ã ¼öÁ¤±¸ Èñ¸Á·Î 480 (´Ü´ëµ¿))

Àαٳ«ÂûÅë°è

±â°£ ¸Å°¢°Ç¼ö Æò±Õ°¨Á¤°¡
Æò±Õ¸Å°¢°¡
¸Å°¢°¡À²
Æò±ÕÀ¯Âû¼ö


º» °æ¸ÅÁ¤º¸´Â ¹ý¿øÀÚ·á¿Í ÀÏÄ¡Çϵµ·Ï ÇÏ¿´À¸³ª ±Ç¸®»çÇ׺¯µ¿, ÀÔ·ÂÂø¿À µîÀÇ ¿øÀÎÀ¸·Î »ç½Ç°ú ´Ù¸¦ ¼ö ÀÖ½À´Ï´Ù. ÀÌ¿ë¾à°ü¿¡ ÀǰЏéÃ¥Á¶°ÇÀ¸·Î Á¦°øµÊÀ» ¾Ë¸®¸ç, °æ¸ÅÀÔÂû½Ã ¹Ýµå½Ã °ü·Ã °øºÎ¸¦ ÀçÈ®ÀÎÇϽñ⠹ٶø´Ï´Ù. º¸´Ù Æí¸®ÇÑ °æ¸ÅÁ¤º¸ Á¦°øÀ» À§ÇØ Áö¼ÓÀûÀ¸·Î °³¼±ÇϰڽÀ´Ï´Ù. ÀÌ¿ëÇØ Áּż­ °¨»çÇÕ´Ï´Ù.
°ü½É¹°°ÇÀ¸·Î µî·ÏÇÕ´Ï´Ù