1151
´Ù¼¼´ë(ºô¶ó)
ÀÇÁ¤ºÎÁö¹æ¹ý¿ø °í¾çÁö¿ø
 °¨Á¤°¡281,913,000 ¿ø
 ÃÖÀú°¡(70%) 197,339,000 ¿ø
 º¸Áõ±Ý(10%) 19,733,900 ¿ø
 Ã»±¸¾×265,982,506 ¿ø
°æ±âµµ ÆÄÁֽà ¾ß´çµ¿ 45-78 1Ãþ101È£
»ç°Ç¹øÈ£ 2025Ÿ°æ62456
°æ¸ÅÁ¾·ùºÎµ¿»ê°­Á¦°æ¸Å
¸Å°¢´ë»óÅäÁö ¹× °Ç¹°Àϰý ¸Å°¢
¸Å°¢±âÀÏ    2026.03.12(¸ñ) 10:00 ÀÔÂû 9ÀÏÀü    
ÅäÁö¸éÀû83.59§³(25.29 Æò)
°Ç¹°¸éÀû91.39§³(27.65 Æò)
乫/¼ÒÀ¯ÀÚ¹ÚOO / ¹ÚOO
ä±ÇÀÚÁÖOOOOOOO
±è¼ºÈÆ ´ëÇ¥ÀÌ»ç
°øÀÎÁß°³»ç, ºÎµ¿»ê°ø°æ¸Å»ç, ÇѾç´ëÇб³ Á¹¾÷
Àü) ÅÂÀÎÄÁ¼³ÆÃ(ÁÖ) ´ëÇ¥ÀÌ»ç
Àü) ¿©ÀÇÁֺε¿»êÁß°³¹ýÀÎ(ÁÖ) ´ëÇ¥ÀÌ»ç
Çö) ¿©ÀÇÁÖ°æ¸Å¹ýÀÎ ´ëÇ¥ÀÌ»ç
010-2371-3237
ÆäÀ̽ººÏ Æ®À§ÅÍ ±¸±Û+
īī¿À½ºÅ丮
īī¿ÀÅå sms¹®ÀÚº¸³»±â
 

±âÀϳ»¿ª

°æ°ú ³¯Â¥ Àú°¨ ÃÖÀú°¡ °á°ú
Á¢¼öÀÏ 2025-02-27 °æ¸ÅÁ¢¼ö
~1ÀÏ 
2025-02-28 °æ¸Å°³½Ã°áÁ¤
~85ÀÏ 
2025-05-23 ¹è´ç¿ä±¸Á¾±âÀÏ
~336ÀÏ 
2026-01-29 100%
281,913,000
À¯Âû
~378ÀÏ 
2026-03-12 70%
197,339,000
ÁøÇà
¹°°Ç¸í¼¼¼­ ÇöȲÁ¶»ç¼­ ¹®°ÇÁ¢¼ö ¼Û´Þ³»¿ª

°¨Á¤Æò°¡ÇöȲ

¸ñ·Ï ÁÖ¼Ò ±¸Á¶/¿ëµµ/´ëÁö±Ç ¸éÀû ºñ°í
´ëÁö±Ç
¾ß´çµ¿ 45-78 491ºÐÀÇ 83.59 83.59 §³
(25.29Æò)
°Ç¹°
¾ß´çµ¿ 45-78 1Ãþ101È£ ö±ÙÄÜÅ©¸®Æ®±¸Á¶ 69.49 §³
(21.02Æò)
Á¦½Ã¿Ü
°Ç¹°
¾ß´çµ¿ 45-78 â°í1Ãþ 6 §³
(1.82Æò)
Æ÷ÇÔ
¾ß´çµ¿ 45-78 Å×¶ó½º1Ãþ 15.9 §³
(4.81Æò)
Æ÷ÇÔ
1) À§Ä¡/°èȹ°ü¸®Áö¿ª/ÁÖÁ¤Â÷ °¡´É/³ë¼±¹ö½ºÁ¤·ùÀå/ö±ÙÄÜÅ©¸®Æ®±¸Á¶ ´õº¸±â
°¨Á¤Æò°¡ ¿äÇ×Ç¥
1)À§Ä¡ ¹× ÁÖÀ§È¯°æ
°æ±âµµ ÆÄÁֽà ¾ß´çµ¿ ¼ÒÀç ""¿îÁ¤4µ¿ ÇàÁ¤º¹Áö¼¾ÅÍ"" ºÏ¼­Ãø Àαٿ¡ À§Ä¡Çϸç, ÁÖÀ§´Â ´Ù¼¼´ëÁÖÅÃ, ¼Ò±Ô¸ð °øÀå ¹× Ã¢°í, Àü±âŸ, ÀÓ¾ß, ±Ù¸°»ýȰ½Ã¼³ µîÀÌ ¼ÒÀçÇÔ.
2)±³Åë»óȲ
º»°Ç±îÁö Â÷·® Á¢±Ù ¹× ÁÖÁ¤Â÷ °¡´ÉÇϰí, Àαٿ¡ ³ë¼±¹ö½ºÁ¤·ùÀå ¹× '¿îÁ¤¿ª(°æÀÇÁß¾Ó¼±)'ÀÌ
¼ÒÀçÇÏ´Â µî Á¦¹Ý ´ëÁß±³Åë¿©°ÇÀº º¸ÅëÀÓ.
3)°Ç¹°ÀÇ ±¸Á¶
ö±ÙÄÜÅ©¸®Æ®±¸Á¶ (ö±Ù)ÄÜÅ©¸®Æ®ÁöºØ 4Ãþ Áß Á¦1Ãþ Á¦101È£·Î¼­,
¿Üº® : º®µ¹½×±â ¹× ½ºÅæÄÚÆ® µî ¸¶°¨,
âȣ : ÇÏÀÌ»õ½ÃÀÓ.
4)ÀÌ¿ë»óÅÂ
´Ù¼¼´ëÁÖÅÃÀ¸·Î ÀÌ¿ëÁßÀÓ(ÈÄ÷ '³»ºÎ±¸Á¶µµ' ÂüÁ¶).
5)¼³ºñ³»¿ª
À§»ý¼³ºñ ¹× ±Þ¹è¼ö¼³ºñ, ³­¹æ¼³ºñ µîÀ» °®Ãß°í ÀÖÀ½.
6)ÅäÁöÀÇ Çü»ó ¹× ÀÌ¿ë»óÅÂ
µî°íÆòźÇÑ ´ëü·Î ºÎÁ¤Çü ÅäÁö·Î¼­ ´Ù¼¼´ëÁÖÅà °ÇºÎÁö·Î ÀÌ¿ëÁßÀÓ.
7)ÀÎÁ¢ µµ·Î»óŵî
µ¿Ãø ¹× ¼­ÃøÀ¸·Î ³ëÆø ¾à 6¹ÌÅÍ ³»¿ÜÀÇ Æ÷Àåµµ·Î¿¡ °¢°¢ Á¢ÇÔ.
8)ÅäÁöÀÌ¿ë°èȹ ¹× Á¦ÇÑ»óÅÂ
°èȹ°ü¸®Áö¿ª, ¼ºÀå°ü¸®°èȹ±¸¿ª(2024-01-26)(ÁØÁÖ°Å Zone), °¡Ãà»çÀ°Á¦Çѱ¸¿ª(ÀüºÎÁ¦ÇÑ)<°¡ÃàºÐ´¢ÀÇ °ü¸® ¹× À̿뿡 °üÇÑ ¹ý·ü>
9)°øºÎ¿ÍÀÇ Â÷ÀÌ
¾ø À½.
10)±âŸÂü°í»çÇ×(ÀÓ´ë°ü·Ê ¹× ±âŸ)
µî±â»çÇ×ÀüºÎÁõ¸í¼­, °ÇÃ๰´ëÀå»ó 1ÃþÀ¸·Î Ç¥±âµÇ¾î ÀÖÀ¸³ª °ÇÃ๰ÇöȲµµ, ½ÇÁöÁ¶»ç»ó 1Ãþ, 2ÃþÀÓ.
Âü°í
»çÇ×
Á¦½Ã¿Ü °Ç¹° Æ÷ÇÔ. ÀÓÂ÷±ÇÀÚÀÇ ±Ç¸®½Â°èÀÎÀÎ ÁÖÅõµ½Ãº¸Áõ°ø»ç´Â 2025.03.13.ÀÚ ÀμöÁ¶°Çº¯°æÈ®¾à¼­¿¡¼­ ¹è´ç±ÝÀ» Àü¾× ¹ÞÁö ¸øÇÏ´õ¶óµµ ¸Å¼öÀο¡ ´ëÇÑ ÀÜÁ¸ ÀÓ´ëÂ÷º¸Áõ±Ý ¹Ýȯû±¸±ÇÀ» Æ÷±âÇϰí ÀÓÂ÷±Çµî±âÀÇ ¸»¼Ò¿¡ µ¿ÀÇÇÑ´Ù´Â ¼­·ù¸¦ Á¦ÃâÇÔ
-ö±ÙÄÜÅ©¸®Æ®±¸Á¶

°ÇÃ๰ÇöȲ

¼ÒÀçÁö °æ±âµµ ÆÄÁֽà ¾ß´çµ¿ 45-78¹øÁö
´ëÁö¸éÀû 491§³
(148.79Æò)
¿¬¸éÀû 490.92§³
(148.76Æò)
°ÇÃà¸éÀû 195.46§³
(59.23Æò)
¿ëÀû·ü»êÁ¤
¿¬¸éÀû
490.92§³
(148.76Æò)
°ÇÆóÀ² 39.81% ¿ëÀû·ü 99.98%
Áö»óÃþ¼ö 4Ãþ ÁöÇÏÃþ¼ö  
ÁÖ¿ëµµ °øµ¿ÁÖÅà ±¸Á¶ ö±ÙÄÜÅ©¸®Æ®±¸Á¶
Âø°øÀÏÀÚ 2016.03.23 »ç¿ë½ÂÀÎÀÏÀÚ 2016.09.22
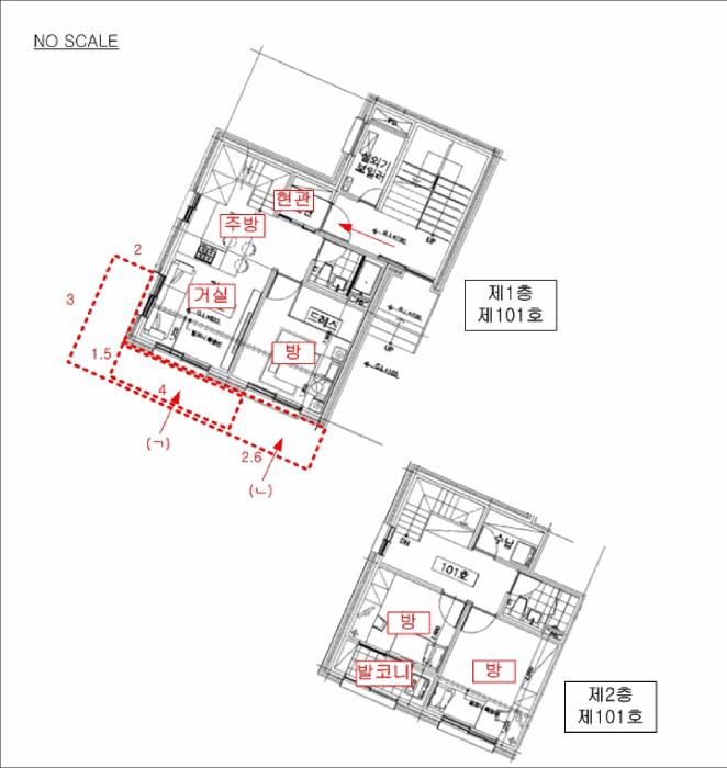
°ÇÃ๰Ãþº°ÇöȲ [º¸±â]


±¹ÅäºÎ½Ç°Å·¡°¡ °æ±âµµ ÆÄÁֽà ¾ß´çµ¿

¡Ü ¸Å¸Å

¸éÀû(§³), ±Ý¾×(¸¸¿ø)

¡Ü Àü¼¼

¸éÀû(§³), ±Ý¾×(¸¸¿ø)

°è¾àÀϰǹ°¸íĪÃþ¿¬¸éÀûº¸Áõ±Ý¿ù¼¼°ÇÃà
26.02.11ÀÚ¿¬¿¡°¡1Â÷6µ¿372.2126,0002014
26.02.10¾ß´çÀ§´õ½º103µ¿465.961,0001002020
26.02.09¿¹ÀÏ¾ÆÆ®ºô6µ¿258.8216,0002017
26.02.08°¡¿ÂÇϿ콺Cµ¿148.612,58002018
26.02.05¸ð¸®¾È101µ¿153.9712,00002015
¢Ñ ´õº¸±â

µî±âºÎµîº» ¿ä¾à(°Ç¹°)

  Á¢¼öÀÏÀÚ µî±â¸ñÀû/±Ç¸®ÀÚ ±Ç¸®±Ý¾× ±âÁØ
1 2021³â6¿ù16ÀÏ
¼ÒÀ¯±Ç
¹ÚOO
¼Ò¸ê
2 2022³â7¿ù22ÀÏ
¾Ð·ù
±¹OOOO
¼Ò¸ê±âÁØ
3 2023³â7¿ù27ÀÏ
ÀÓÂ÷±Ç¼³Á¤
±èOO
244,500,000 ¼Ò¸ê
4 2025³â2¿ù28ÀÏ
°­Á¦°æ¸Å
ÁÖOOOO
¼Ò¸ê

ÀÓÂ÷ÀÎÇöȲ (¹è´ç¿ä±¸Á¾±âÀÏ: 2025-05-23)

ÀÓÂ÷ÀÎ ¿ëµµ/Á¡À¯ º¸Áõ±Ý/¿ù¼¼ ´ëÇ×·Â
ÀüÀÔÀÏ/È®Á¤ÀÏ ¹è´ç¿ä±¸ ºñ°í
±èOO ÀüºÎ 244,500,000
O
2021.06.03
2021.05.17
2025.5.14. 2021.06.02~
ºñ°í
(¸Å°¢¹°°Ç
¸í¼¼¼­)
±èâȯ:½Åûä±ÇÀÚÀÎ 2023.07.27.ÀÓ

¿©ÀÇÁÖ°æ¸Å Á¶¾ð ÇÑ ¸¶µð

¸Å°¢¹°°Ç¸í¼¼ ºñ°í³­¿¡ ±âÀçµÈ ³»¿ëÀÔ´Ï´Ù.
±èâȯ:½Åûä±ÇÀÚÀÎ 2023.07.27.ÀÓ
³«Âû ÈÄ¿¡ µî±âºÎ»ó ¼Ò¸êµÇÁö ¾Ê´Â ±Ç¸®´Â ¾ø½À´Ï´Ù.
´ë·«ÀûÀÎ °ËÅäÀǰßÀ̹ǷΠÀÔÂûÀü¿¡ Àü¹®°¡ÀÇ Á¶¾ðÀ» Âü°íÇØ º¸½Ã±æ ±ÇÇØµå¸³´Ï´Ù.
¼±¼øÀ§ ÀÓÂ÷±Çµî±â°¡ µÇ¾î ÀÖ½À´Ï´Ù.
Á¦½Ã¿Ü ¹°°ÇÀÌ Æ÷ÇԵǾî ÀÖ½À´Ï´Ù.
°¨Á¤ ½ÃÁ¡ÀÌ ¿À·¡µÇ¾î °¡°Ýº¯µ¿ÀÌ ÀÖÀ» ¼ö ÀÖ½À´Ï´Ù.
ÀÌ ¹°°ÇÀº 2025³â 2¿ù 28ÀÏ¿¡ °æ¸Å°¡ °³½ÃµÇ¾ú´Âµ¥ Áö±Ý ½ÃÁ¡À¸·Î ¾à 368ÀÏÀÌ ÀÌ °æ°úµÇ¾ú½À´Ï´Ù. °¨Á¤°¡°ÝÀº 368ÀÏ Àü ½ÃÁ¡¿¡¼­ Æò°¡ÇÑ °¡°ÝÀ̹ǷΠ±× »çÀÌ °¡°Ýº¯µ¿ÀÌ ÀÖÀ» ¼ö ÀÖ½À´Ï´Ù. ƯÈ÷ °¡°Ý º¯µ¿ÀÌ ½ÉÇÑ ¾ÆÆÄÆ®´Â À¯ÀÇÇÏ¼Å¾ß ÇÕ´Ï´Ù. °¨Á¤°¡°ÝÀ» ³Ê¹« ¹ÏÁö ¸¶½Ã°í ÇöÀç ½Ç¸Å¹° °¡°Ý°ú ½Ç°Å·¡°¡¸¦ È®ÀÎÇϽñ⠹ٶø´Ï´Ù.
°£È¤ °¨Á¤°¡°Ýº¸´Ù ³ô°Ô ³«ÂûµÇ´Â °æ¿ì°¡ Àִµ¥ ´ëºÎºÐ ÀÌ·± ÀÌÀ¯ÀÔ´Ï´Ù.
¡Ø ¹°°Ç Ű¿öµå : °ü¸®Áö¿ª/°èȹ°ü¸®Áö¿ª/¹ö½ºÁ¤·ùÀå/ÁÖÁ¤Â÷ °¡´É/³ë¼±¹ö½ºÁ¤·ùÀå/ö±ÙÄÜÅ©¸®Æ®±¸Á¶
Àüü ÄÁ¼³ÆÃÀÌ ºÎ´ã½º·¯¿ì½Å°¡¿ä? ±Ç¸®ºÐ¼®¸¸ ÀÇ·ÚÇϼŵµ ±¦Âú½À´Ï´Ù!
½Ç¼Ó ÀÖ°Ô Çٽɸ¸ ´ãÀº ±Ç¸®ºÐ¼® ¼­ºñ½º!! (±Ç¸®ºÐ¼® + ½Ã¼¼Á¶»ç + ³«Âû°¡ »êÁ¤ + ÀÔÂûÇ¥ ÀÛ¼º¹æ¹ý ±îÁö)
ÃÖ´ë Àüü ÄÁ¼³ÆÃ ºñ¿ëÀÇ 10% ¼öÁØ !!

ÁÖÀÇ»çÇ× (ÃÖ¼±¼øÀ§ ¼³Á¤ÀÏ: 2022.07.22 ¾Ð·ù ¼³Á¤)

¸Å°¢À¸·Î ¼Ò¸êµÇÁö ¾Ê´Â µî±âºÎ±Ç¸®:
¸Å°¢À¸·Î ¼³Á¤µÈ °ÍÀ¸·Î º¸´Â Áö»ó±Ç:
Á¦½Ã¿Ü °Ç¹° Æ÷ÇÔ. ÀÓÂ÷±ÇÀÚÀÇ ±Ç¸®½Â°èÀÎÀÎ ÁÖÅõµ½Ãº¸Áõ°ø»ç´Â 2025.03.13.ÀÚ ÀμöÁ¶°Çº¯°æÈ®¾à¼­¿¡¼­ ¹è´ç±ÝÀ» Àü¾× ¹ÞÁö ¸øÇÏ´õ¶óµµ ¸Å¼öÀο¡ ´ëÇÑ ÀÜÁ¸ ÀÓ´ëÂ÷º¸Áõ±Ý ¹Ýȯû±¸±ÇÀ» Æ÷±âÇϰí ÀÓÂ÷±Çµî±âÀÇ ¸»¼Ò¿¡ µ¿ÀÇÇÑ´Ù´Â ¼­·ù¸¦ Á¦ÃâÇÔ
¡Ø¹Ì³³°ü¸®ºñ(°ø¿ë) Àμö¿©ºÎ¸¦ ÀÔÂû Àü¿¡ È®ÀÎÇϽñ⠹ٶø´Ï´Ù

 

Áö¿ªºÐ¼®

ÁöÇÏö¸í Á÷¼±°Å¸®

Çб³¸í ÀüÈ­¹øÈ£ ÁÖ¼Ò Á÷¼±°Å¸®

¹ý¿ø

ÀÇÁ¤ºÎÁö¹æ¹ý¿ø °í¾çÁö¿ø (104-13)°æ±âµµ °í¾ç½Ã Àϻ굿±¸ Àå¹é·Î 209
´ëÇ¥ : 031)920-6114, ¾ß°£ : 031)920-6550, ÆÑ½º : 031)920-6119
°üÇÒÁö¿ª : °í¾ç½Ã, ÆÄÁÖ½Ã

µî±â¼Ò ÀÇÁ¤ºÎÁö¹æ¹ý¿ø °í¾çÁö¿ø ÆÄÁÖµî±â¼Ò (´ëÇ¥:1544-0773, ÆÑ½º:(031)945-4764, 3628, °æ±âµµ ÆÄÁֽà ±ÝÁ¤·Î 45 (±ÝÃ̵¿ 947-28))
¼¼¹«¼­ ÆÄÁÖ¼¼¹«¼­ (´ëÇ¥:031-956-02, ÆÑ½º:031-957-0315, °æ±âµµ ÆÄÁֽà ±Ý¸ª¿ª·Î 62 (±ÝÃ̵¿))

Àαٳ«ÂûÅë°è

±â°£ ¸Å°¢°Ç¼ö Æò±Õ°¨Á¤°¡
Æò±Õ¸Å°¢°¡
¸Å°¢°¡À²
Æò±ÕÀ¯Âû¼ö


º» °æ¸ÅÁ¤º¸´Â ¹ý¿øÀÚ·á¿Í ÀÏÄ¡Çϵµ·Ï ÇÏ¿´À¸³ª ±Ç¸®»çÇ׺¯µ¿, ÀÔ·ÂÂø¿À µîÀÇ ¿øÀÎÀ¸·Î »ç½Ç°ú ´Ù¸¦ ¼ö ÀÖ½À´Ï´Ù. ÀÌ¿ë¾à°ü¿¡ ÀǰЏéÃ¥Á¶°ÇÀ¸·Î Á¦°øµÊÀ» ¾Ë¸®¸ç, °æ¸ÅÀÔÂû½Ã ¹Ýµå½Ã °ü·Ã °øºÎ¸¦ ÀçÈ®ÀÎÇϽñ⠹ٶø´Ï´Ù. º¸´Ù Æí¸®ÇÑ °æ¸ÅÁ¤º¸ Á¦°øÀ» À§ÇØ Áö¼ÓÀûÀ¸·Î °³¼±ÇϰڽÀ´Ï´Ù. ÀÌ¿ëÇØ Áּż­ °¨»çÇÕ´Ï´Ù.
°ü½É¹°°ÇÀ¸·Î µî·ÏÇÕ´Ï´Ù