1252
´Ù¼¼´ë(ºô¶ó)
¼­¿ï³²ºÎÁö¹æ¹ý¿ø
 °¨Á¤°¡190,000,000 ¿ø
 ÃÖÀú°¡(64%) 121,600,000 ¿ø
 º¸Áõ±Ý(10%) 12,160,000 ¿ø
 Ã»±¸¾×51,787,178 ¿ø
¼­¿ïƯº°½Ã °­¼­±¸ È­°îµ¿ 56-277 Á¦3Ãþ Á¦302È£
»ç°Ç¹øÈ£ 2025Ÿ°æ10127
°æ¸ÅÁ¾·ùºÎµ¿»êÀÓÀǰæ¸Å
¸Å°¢´ë»óÅäÁö ¹× °Ç¹°Àϰý ¸Å°¢
¸Å°¢±âÀÏ    2026.04.23(¸ñ) 10:00 ÀÔÂû 13ÀÏÀü    
ÅäÁö¸éÀû24.62§³(7.45 Æò)
°Ç¹°¸éÀû49.80§³(15.06 Æò)
乫/¼ÒÀ¯ÀÚ±èOO / ±èOO
ä±ÇÀÚ¿µOOOOOOOO
±è¼ºÈÆ ´ëÇ¥ÀÌ»ç
°øÀÎÁß°³»ç, ºÎµ¿»ê°ø°æ¸Å»ç, ÇѾç´ëÇб³ Á¹¾÷
Àü) ÅÂÀÎÄÁ¼³ÆÃ(ÁÖ) ´ëÇ¥ÀÌ»ç
Àü) ¿©ÀÇÁֺε¿»êÁß°³¹ýÀÎ(ÁÖ) ´ëÇ¥ÀÌ»ç
Çö) ¿©ÀÇÁÖ°æ¸Å¹ýÀÎ ´ëÇ¥ÀÌ»ç
010-2371-3237
ÆäÀ̽ººÏ Æ®À§ÅÍ ±¸±Û+
īī¿À½ºÅ丮
īī¿ÀÅå sms¹®ÀÚº¸³»±â
 

±âÀϳ»¿ª

°æ°ú ³¯Â¥ Àú°¨ ÃÖÀú°¡ °á°ú
Á¢¼öÀÏ 2025-05-27 °æ¸ÅÁ¢¼ö
~2ÀÏ 
2025-05-29 °æ¸Å°³½Ã°áÁ¤
~93ÀÏ 
2025-08-28 ¹è´ç¿ä±¸Á¾±âÀÏ
~246ÀÏ 
2026-01-28 100%
190,000,000
À¯Âû
~295ÀÏ 
2026-03-18 80%
152,000,000
À¯Âû
~331ÀÏ 
2026-04-23 64%
121,600,000
ÁøÇà
¹°°Ç¸í¼¼¼­ ÇöȲÁ¶»ç¼­ ¹®°ÇÁ¢¼ö ¼Û´Þ³»¿ª

°¨Á¤Æò°¡ÇöȲ

¸ñ·Ï ÁÖ¼Ò ±¸Á¶/¿ëµµ/´ëÁö±Ç ¸éÀû ºñ°í
´ëÁö±Ç
È­°îµ¿ 56-277 192ºÐÀÇ 24.623 24.623 §³
(7.45Æò)
°Ç¹°
È­°îµ¿ 56-277 Á¦3Ãþ Á¦302È£ ö±ÙÄÜÅ©¸®Æ®Á¶ 49.80 §³
(15.06Æò)
1) À§Ä¡/µµ½ÃÁö¿ª/Á¦2Á¾ÀϹÝÁÖ°ÅÁö¿ª/³ë¼±¹ö½ºÁ¤·ùÀå/ö±ÙÄÜÅ©¸®Æ®Á¶/Æò½º¶óºêÁöºØ ´õº¸±â
°¨Á¤Æò°¡ ¿äÇ×Ç¥
1)À§Ä¡ ¹× ÁÖÀ§È¯°æ
º»°ÇÀº ¼­¿ïƯº°½Ã °­¼­±¸ È­°îµ¿ ¼ÒÀç ""¼­¿ïÈ­ÀÏÃʵîÇб³"" µ¿Ãø Àαٿ¡ À§Ä¡Çϸç, ÁÖÀ§´Â ´Ù¼¼´ëÁÖÅÃ, ±Ù¸°»ýȰ½Ã¼³ µîÀÌ È¥ÀçÇÏ´Â Áö´ë·Î¼­ Á¦¹Ý ÁÖÀ§È¯°æÀº º¸ÅëÀÓ.
2)±³Åë»óȲ
º»°Ç±îÁö Á¦¹Ý Â÷·®ÀÇ ÁøÃâÀÔÀÌ °¡´ÉÇϸç, Àαٿ¡ ³ë¼±¹ö½ºÁ¤·ùÀåÀÌ ¼ÒÀçÇÏ´Â µî ´ëÁß±³ÅëÀÇ
ÀÌ¿ëÆíÀǼºÀº º¸ÅëÀÓ.

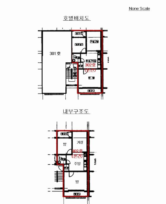
3)°Ç¹°ÀÇ ±¸Á¶
ö±ÙÄÜÅ©¸®Æ®Á¶ Æò½º¶óºêÁöºØ Áö»ó5Ãþ °Ç ³» Á¦3Ãþ Á¦302È£·Î¼­,
¿Üº® : µå¶óÀ̺ñÆ® ¸¶°¨ µî
âȣ : ¼¦½Ã âȣ

4)ÀÌ¿ë»óÅÂ
´Ù¼¼´ëÁÖÅÃÀ¸·Î¼­ ÈÄ÷ '³»ºÎ±¸Á¶µµ' Âü°í ¹Ù¶÷.
5)¼³ºñ³»¿ª
À§»ý ¹× ±Þ¹è¼ö¼³ºñ, ¼ÒÈ­Àü¼³ºñ, ³­¹æ¼³ºñ µîÀÌ ÀÖÀ½.

6)ÅäÁöÀÇ Çü»ó ¹× ÀÌ¿ë»óÅÂ
ÀÎÁ¢ ÅäÁö ´ëºñ ¿Ï°æ»çÀÎ ¼¼ÀåÇü ÅäÁö·Î¼­, ´Ù¼¼´ëÁÖÅà °ÇºÎÁö·Î ÀÌ¿ëÁßÀÓ.
7)ÀÎÁ¢ µµ·Î»óŵî
º»°Ç ºÏ¼­ÃøÀ¸·Î ¿Ü°û°øµµ¿Í Á¢ÇÔ.

8)ÅäÁöÀÌ¿ë°èȹ ¹× Á¦ÇÑ»óÅÂ
µµ½ÃÁö¿ª , Á¦2Á¾ÀϹÝÁÖ°ÅÁö¿ª(7ÃþÀÌÇÏ) , Áß¿ä½Ã¼³¹°º¸È£Áö±¸(°øÇ×),°¡Ãà»çÀ°Á¦Çѱ¸¿ª(Áö¿ª°æÁ¦°ú È®ÀÎ ¿ä¸Á)<°¡ÃàºÐ´¢ÀÇ °ü¸® ¹× À̿뿡 °üÇÑ ¹ý·ü>, ¿øÃßÇ¥¸é±¸¿ª(¿øÃßÇ¥¸é)<°øÇ׽ü³¹ý>, ´ë°ø¹æ¾îÇùÁ¶±¸¿ª(À§Å¹°íµµ:77-257m)<±º»ç±âÁö ¹× ±º»ç½Ã¼³ º¸È£¹ý>, °ú¹Ð¾ïÁ¦±Ç¿ª<¼öµµ±ÇÁ¤ºñ°èȹ¹ý>ÀÓ.
9)°øºÎ¿ÍÀÇ Â÷ÀÌ
¾øÀ½.
10)±âŸÂü°í»çÇ×(ÀÓ´ë°ü·Ê ¹× ±âŸ)
ÀÓ´ë°ü°è ¹Ì»óÀÓ.
Âü°í
»çÇ×

°Ç¹° ¿Üº®¿¡ `µ¿µµÇÏÀÌÃ÷ºô¶ó`·Î Ç¥½ÃµÊ

°ÇÃ๰ÇöȲ

¼ÒÀçÁö ¼­¿ïƯº°½Ã °­¼­±¸ È­°îµ¿ 56-277¹øÁö
´ëÁö¸éÀû 192§³
(58.18Æò)
¿¬¸éÀû 456.64§³
(138.38Æò)
°ÇÃà¸éÀû 111.36§³
(33.75Æò)
¿ëÀû·ü»êÁ¤
¿¬¸éÀû
456.64§³
(138.38Æò)
°ÇÆóÀ² 58% ¿ëÀû·ü 237.83%
Áö»óÃþ¼ö 5Ãþ ÁöÇÏÃþ¼ö  
ÁÖ¿ëµµ °øµ¿ÁÖÅà ±¸Á¶ ö±ÙÄÜÅ©¸®Æ®±¸Á¶
Âø°øÀÏÀÚ 2000.11.09 »ç¿ë½ÂÀÎÀÏÀÚ 2001.03.30
°ÇÃ๰Ãþº°ÇöȲ [º¸±â]


±¹ÅäºÎ½Ç°Å·¡°¡ ¼­¿ïƯº°½Ã °­¼­±¸ È­°îµ¿

¡Ü ¸Å¸Å

¸éÀû(§³), ±Ý¾×(¸¸¿ø)

¡Ü Àü¼¼

¸éÀû(§³), ±Ý¾×(¸¸¿ø)

°è¾àÀϰǹ°¸íĪÃþ¿¬¸éÀûº¸Áõ±Ý¿ù¼¼°ÇÃà
26.03.31(772-22)439.1623,52002021
26.03.31û¼ÛÆòÈ­ÇコÇϿ콺339.8422,68062016
26.03.31û¼ÛÆòÈ­ÇコÇϿ콺339.8422,68002016
26.03.30¹Ì·¡ÇϿ콺224.2420,00022018
26.03.30³ª»ê¸Ç¼Ç2Â÷428.89,100252002
¢Ñ ´õº¸±â

µî±âºÎµîº» ¿ä¾à(°Ç¹°)

  Á¢¼öÀÏÀÚ µî±â¸ñÀû/±Ç¸®ÀÚ ±Ç¸®±Ý¾× ±âÁØ
1 2018³â8¿ù31ÀÏ
¼ÒÀ¯±Ç
±èOO
¼Ò¸ê
2 2018³â8¿ù31ÀÏ
±ÙÀú´ç±Ç
¿µOOOO
60,000,000 ¼Ò¸ê±âÁØ
3 2025³â2¿ù18ÀÏ
ÀÓÂ÷±Ç¼³Á¤
ÇÑOOOO
128,000,000 ¼Ò¸ê
4 2025³â5¿ù29ÀÏ
ÀÓÀǰæ¸Å
¿µOOOO
¼Ò¸ê
5 2025³â6¿ù2ÀÏ
°¡¾Ð·ù
¼­OOOO
30,000,000 ¼Ò¸ê

ÀÓÂ÷ÀÎÇöȲ (¹è´ç¿ä±¸Á¾±âÀÏ: 2025-08-28)

ÀÓÂ÷ÀÎ ¿ëµµ/Á¡À¯ º¸Áõ±Ý/¿ù¼¼ ´ëÇ×·Â
ÀüÀÔÀÏ/È®Á¤ÀÏ ¹è´ç¿ä±¸ ºñ°í
ÇÑOOOOOOOOOOOOOOOO 302È£ 128,000,000
[¿ù]300,000
X
2023.01.27.
2022.12.29
2025.07.02. 2023.01.26.~2025.04.09
ºñ°í
(¸Å°¢¹°°Ç
¸í¼¼¼­)
Çѱ¹ÅäÁöÁÖÅðø»ç: ÁÖÅÃÀÓÂ÷±Ç µî±âÀÏÀº 2025.02.18.ÀÓ °è¾àÀÚ Çѱ¹ÁÖÅõµ½Ã°ø»ç, ÀÔÁÖÀÚ ³²ÁÖ¿µ.

¿©ÀÇÁÖ°æ¸Å Á¶¾ð ÇÑ ¸¶µð

¸Å°¢¹°°Ç¸í¼¼ ºñ°í³­¿¡ ±âÀçµÈ ³»¿ëÀÔ´Ï´Ù.
Çѱ¹ÅäÁöÁÖÅðø»ç: ÁÖÅÃÀÓÂ÷±Ç µî±âÀÏÀº 2025.02.18.ÀÓ °è¾àÀÚ Çѱ¹ÁÖÅõµ½Ã°ø»ç, ÀÔÁÖÀÚ ³²ÁÖ¿µ.
³«Âû ÈÄ¿¡ µî±âºÎ»ó ¼Ò¸êµÇÁö ¾Ê´Â ±Ç¸®´Â ¾ø½À´Ï´Ù.
´ë·«ÀûÀÎ °ËÅäÀǰßÀ̹ǷΠÀÔÂûÀü¿¡ Àü¹®°¡ÀÇ Á¶¾ðÀ» Âü°íÇØ º¸½Ã±æ ±ÇÇØµå¸³´Ï´Ù.
ÃëÇÏ ¶Ç´Â Ãë¼ÒµÉ °¡´É¼º ÀÖ½À´Ï´Ù.
ÀÌ ¹°°ÇÀÇ °¨Á¤°¡°ÝÀº 190,000,000¿øÀÔ´Ï´Ù. °æ¸Å¸¦ ½ÅûÇÑ Ã¤±ÇÀÚ°¡ ¹è´ç ¹Þ¾Æ¾ß ÇÒ ±Ý¾×Àº 51,787,178¿øÀ¸·Î °¨Á¤°¡°Ý ´ëºñ »ó´çÈ÷ ÀûÀº ±Ý¾×ÀÔ´Ï´Ù. ÀÌ·± °æ¿ì, 乫°¡°¡ º¯Á¦ÇÏ¿© °æ¸Å¸¦ ÃëÇϽÃŰ°Å³ª °æ¸Å½Åûä±ÇÀÚ°¡ ¹è´ç¹ÞÀ» ±Ý¿øÀÌ ¾ø°ÔµÇ¾î À̸¥ ¹Ù "¹«À׿©¿¡ ÀÇÇÑ Ãë¼Ò"°¡ µÉ °¡´É¼ºÀÌ ÀÖ½À´Ï´Ù.
°¨Á¤ ½ÃÁ¡ÀÌ ¿À·¡µÇ¾î °¡°Ýº¯µ¿ÀÌ ÀÖÀ» ¼ö ÀÖ½À´Ï´Ù.
ÀÌ ¹°°ÇÀº 2025³â 5¿ù 29ÀÏ¿¡ °æ¸Å°¡ °³½ÃµÇ¾ú´Âµ¥ Áö±Ý ½ÃÁ¡À¸·Î ¾à 316ÀÏÀÌ ÀÌ °æ°úµÇ¾ú½À´Ï´Ù. °¨Á¤°¡°ÝÀº 316ÀÏ Àü ½ÃÁ¡¿¡¼­ Æò°¡ÇÑ °¡°ÝÀ̹ǷΠ±× »çÀÌ °¡°Ýº¯µ¿ÀÌ ÀÖÀ» ¼ö ÀÖ½À´Ï´Ù. ƯÈ÷ °¡°Ý º¯µ¿ÀÌ ½ÉÇÑ ¾ÆÆÄÆ®´Â À¯ÀÇÇÏ¼Å¾ß ÇÕ´Ï´Ù. °¨Á¤°¡°ÝÀ» ³Ê¹« ¹ÏÁö ¸¶½Ã°í ÇöÀç ½Ç¸Å¹° °¡°Ý°ú ½Ç°Å·¡°¡¸¦ È®ÀÎÇϽñ⠹ٶø´Ï´Ù.
°£È¤ °¨Á¤°¡°Ýº¸´Ù ³ô°Ô ³«ÂûµÇ´Â °æ¿ì°¡ Àִµ¥ ´ëºÎºÐ ÀÌ·± ÀÌÀ¯ÀÔ´Ï´Ù.
¡Ø ¹°°Ç Ű¿öµå : µµ½ÃÁö¿ª/ÁÖ°ÅÁö¿ª/Á¦2Á¾ÀϹÝÁÖ°ÅÁö¿ª/¹ö½ºÁ¤·ùÀå/³ë¼±¹ö½ºÁ¤·ùÀå/ö±ÙÄÜÅ©¸®Æ®Á¶/Æò½º¶óºêÁöºØ/½º¶óºêÁöºØ
Àüü ÄÁ¼³ÆÃÀÌ ºÎ´ã½º·¯¿ì½Å°¡¿ä? ±Ç¸®ºÐ¼®¸¸ ÀÇ·ÚÇϼŵµ ±¦Âú½À´Ï´Ù!
½Ç¼Ó ÀÖ°Ô Çٽɸ¸ ´ãÀº ±Ç¸®ºÐ¼® ¼­ºñ½º!! (±Ç¸®ºÐ¼® + ½Ã¼¼Á¶»ç + ³«Âû°¡ »êÁ¤ + ÀÔÂûÇ¥ ÀÛ¼º¹æ¹ý ±îÁö)
ÃÖ´ë Àüü ÄÁ¼³ÆÃ ºñ¿ëÀÇ 10% ¼öÁØ !!

ÁÖÀÇ»çÇ× (ÃÖ¼±¼øÀ§ ¼³Á¤ÀÏ: 2018.08.31. ±ÙÀú´ç±Ç ¼³Á¤)

¸Å°¢À¸·Î ¼Ò¸êµÇÁö ¾Ê´Â µî±âºÎ±Ç¸®:
¸Å°¢À¸·Î ¼³Á¤µÈ °ÍÀ¸·Î º¸´Â Áö»ó±Ç:
¡Ø¹Ì³³°ü¸®ºñ(°ø¿ë) Àμö¿©ºÎ¸¦ ÀÔÂû Àü¿¡ È®ÀÎÇϽñ⠹ٶø´Ï´Ù

 

Áö¿ªºÐ¼®

ÁöÇÏö¸í Á÷¼±°Å¸®

Çб³¸í ÀüÈ­¹øÈ£ ÁÖ¼Ò Á÷¼±°Å¸®

¹ý¿ø

¼­¿ï³²ºÎÁö¹æ¹ý¿ø (080-88)¼­¿ïƯº°½Ã ¾çõ±¸ ½Å¿ù·Î 386(½ÅÁ¤µ¿)
´ëÇ¥ : 02)2192-1114
°üÇÒÁö¿ª : ¿µµîÆ÷±¸, °­¼­±¸, ¾çõ±¸, ±¸·Î±¸, ±Ýõ±¸

µî±â¼Ò ¼­¿ï³²ºÎÁö¹æ¹ý¿ø º»¿ø µî±â±¹ (´ëÇ¥:1544-0773, ÆÑ½º:(02)2629-7307, ¼­¿ïƯº°½Ã ¿µµîÆ÷±¸ °æÀηΠ772 (¹®·¡µ¿ 1°¡))
¼¼¹«¼­ °­¼­¼¼¹«¼­ (´ëÇ¥:02-2630-42, ÆÑ½º:02-2679-8777, ¼­¿ïƯº°½Ã °­¼­±¸ ¸¶°î¼­1·Î 60 (¸¶°îµ¿))

Àαٳ«ÂûÅë°è

±â°£ ¸Å°¢°Ç¼ö Æò±Õ°¨Á¤°¡
Æò±Õ¸Å°¢°¡
¸Å°¢°¡À²
Æò±ÕÀ¯Âû¼ö
3°³¿ù 91°Ç 282,015,577¿ø
183,311,013¿ø
66%
2.5ȸ
6°³¿ù 162°Ç 277,270,144¿ø
195,614,266¿ø
72%
2.1ȸ
12°³¿ù 230°Ç 273,253,207¿ø
197,780,436¿ø
73%
2ȸ


º» °æ¸ÅÁ¤º¸´Â ¹ý¿øÀÚ·á¿Í ÀÏÄ¡Çϵµ·Ï ÇÏ¿´À¸³ª ±Ç¸®»çÇ׺¯µ¿, ÀÔ·ÂÂø¿À µîÀÇ ¿øÀÎÀ¸·Î »ç½Ç°ú ´Ù¸¦ ¼ö ÀÖ½À´Ï´Ù. ÀÌ¿ë¾à°ü¿¡ ÀǰЏéÃ¥Á¶°ÇÀ¸·Î Á¦°øµÊÀ» ¾Ë¸®¸ç, °æ¸ÅÀÔÂû½Ã ¹Ýµå½Ã °ü·Ã °øºÎ¸¦ ÀçÈ®ÀÎÇϽñ⠹ٶø´Ï´Ù. º¸´Ù Æí¸®ÇÑ °æ¸ÅÁ¤º¸ Á¦°øÀ» À§ÇØ Áö¼ÓÀûÀ¸·Î °³¼±ÇϰڽÀ´Ï´Ù. ÀÌ¿ëÇØ Áּż­ °¨»çÇÕ´Ï´Ù.
°ü½É¹°°ÇÀ¸·Î µî·ÏÇÕ´Ï´Ù