76
´Ù¼¼´ë(ºô¶ó)
¼­¿ïºÏºÎÁö¹æ¹ý¿ø
 °¨Á¤°¡230,000,000 ¿ø
 ÃÖÀú°¡(100%) 230,000,000 ¿ø
 º¸Áõ±Ý(10%) 23,000,000 ¿ø
 Ã»±¸¾×230,000,000 ¿ø
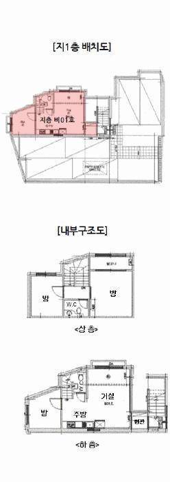
¼­¿ïƯº°½Ã ¼ººÏ±¸ Á¤¸ªµ¿ 822-21 Àϼº¾ÆÅ©·Îºô ÁöÃþºñ01È£
»ç°Ç¹øÈ£ 2025Ÿ°æ12405
°æ¸ÅÁ¾·ùºÎµ¿»ê°­Á¦°æ¸Å
¸Å°¢´ë»óÅäÁö ¹× °Ç¹°Àϰý ¸Å°¢
¸Å°¢±âÀÏ    2026.01.27(È­) 10:00 ÀÔÂû 8ÀÏÀü    
ÅäÁö¸éÀû31.08§³(9.40 Æò)
°Ç¹°¸éÀû57.88§³(17.51 Æò)
乫/¼ÒÀ¯ÀÚÀ±OO / À±OO
ä±ÇÀÚ¹ÎOO
±è¼ºÈÆ ´ëÇ¥ÀÌ»ç
°øÀÎÁß°³»ç, ºÎµ¿»ê°ø°æ¸Å»ç, ÇѾç´ëÇб³ Á¹¾÷
Àü) ÅÂÀÎÄÁ¼³ÆÃ(ÁÖ) ´ëÇ¥ÀÌ»ç
Àü) ¿©ÀÇÁֺε¿»êÁß°³¹ýÀÎ(ÁÖ) ´ëÇ¥ÀÌ»ç
Çö) ¿©ÀÇÁÖ°æ¸Å¹ýÀÎ ´ëÇ¥ÀÌ»ç
010-2371-3237
ÆäÀ̽ººÏ Æ®À§ÅÍ ±¸±Û+
īī¿À½ºÅ丮
īī¿ÀÅå sms¹®ÀÚº¸³»±â
 

±âÀϳ»¿ª

°æ°ú ³¯Â¥ Àú°¨ ÃÖÀú°¡ °á°ú
Á¢¼öÀÏ 2025-04-22 °æ¸ÅÁ¢¼ö
~1ÀÏ 
2025-04-23 °æ¸Å°³½Ã°áÁ¤
~98ÀÏ 
2025-07-29 ¹è´ç¿ä±¸Á¾±âÀÏ
~280ÀÏ 
2026-01-27 100%
230,000,000
ÁøÇà
¹°°Ç¸í¼¼¼­ ÇöȲÁ¶»ç¼­ ¹®°ÇÁ¢¼ö ¼Û´Þ³»¿ª

°¨Á¤Æò°¡ÇöȲ

¸ñ·Ï ÁÖ¼Ò ±¸Á¶/¿ëµµ/´ëÁö±Ç ¸éÀû ºñ°í
´ëÁö±Ç
Á¤¸ªµ¿ 822-21 271ºÐÀÇ 31.0842 31.0842 §³
(9.40Æò)
°Ç¹°
Á¤¸ªµ¿ 822-21 ÁöÃþºñ01È£ ö±ÙÄÜÅ©¸®Æ®±¸Á¶ 57.88 §³
(17.51Æò)
1) À§Ä¡/Á¦2Á¾ÀϹÝÁÖ°ÅÁö¿ª/¹ö½ºÁ¤·ùÀå/ö±ÙÄÜÅ©¸®Æ®±¸Á¶ ´õº¸±â
°¨Á¤Æò°¡ ¿äÇ×Ç¥
1)À§Ä¡ ¹× ÁÖÀ§È¯°æ
º»°ÇÀº ¼­¿ïƯº°½Ã ¼ººÏ±¸ Á¤¸ªµ¿ ¼ÒÀç ""Á¤¸ªÃʵîÇб³"" ³²¼­Ãø ±Ù°Å¸®¿¡ À§Ä¡Çϸç, ºÎ±ÙÀº ´Ù¼¼´ëÁÖÅÃ, ´Üµ¶ÁÖÅà ¹× ´Ù°¡±¸ÁÖÅà µîÀ¸·Î ÀÌ·ç¾îÁø Áö´ë·Î¼­, Á¦¹Ý ÁÖÀ§È¯°æÀº º¸Åë½ÃµÊ.
2)±³Åë»óȲ
º»°Ç±îÁö Â÷·® Á¢±Ù °¡´ÉÇϸç, Àαٿ¡ ¹ö½ºÁ¤·ùÀå µîÀÌ ¹èÄ¡µÇ¾î, Á¦¹Ý ´ëÁß±³Åë»óȲÀº ¹«³­½ÃµÊ.
3)°Ç¹°ÀÇ ±¸Á¶
ö±ÙÄÜÅ©¸®Æ®±¸Á¶ Æò½½¶óºêÁöºØ 4Ãþ °Ç¹° Áß ÁöÃþ ºñ01È£·Î¼­,
¿Ü º® : µå¶óÀ̺ñÆ® µî ¸¶°¨,
³» º® : º®Áö µî ¸¶°¨,
â È£ : »õ½ÃÁ¶ µî âȣÀÓ.
4)ÀÌ¿ë»óÅÂ
´Ù¼¼´ëÁÖÅÃÀ¸·Î ÀÌ¿ëÁßÀÓ.
5)¼³ºñ³»¿ª
À§»ý¼³ºñ, ±Þ¹è¼ö¼³ºñ ¹× ³­¹æ¼³ºñ µîÀÌ µÇ¾î ÀÖÀ½.
6)ÅäÁöÀÇ Çü»ó ¹× ÀÌ¿ë»óÅÂ
»ç´Ù¸®ÇüÀ¸·Î¼­ ´Ù¼¼´ëÁÖÅà µîÀÇ ÅÍ·Î ÀÌ¿ëÁßÀÓ.
7)ÀÎÁ¢ µµ·Î»óŵî
º»°Ç µ¿ÃøÀ¸·Î ÀÚµ¿Â÷ ÅëÇàÀÌ °¡´ÉÇÑ Æ÷Àåµµ·Î¿¡ Á¢ÇÔ.
8)ÅäÁöÀÌ¿ë°èȹ ¹× Á¦ÇÑ»óÅÂ
Á¦2Á¾ÀϹÝÁÖ°ÅÁö¿ª(7ÃþÀÌÇÏ), °¡Ãà»çÀ°Á¦Çѱ¸¿ª<°¡ÃàºÐ´¢ÀÇ °ü¸® ¹× À̿뿡 °üÇÑ ¹ý·ü>, ´ë°ø¹æ¾îÇùÁ¶±¸¿ª(À§Å¹°íµµ:77-257m)<±º»ç±âÁö ¹× ±º»ç½Ã¼³ º¸È£¹ý>, °ú¹Ð¾ïÁ¦±Ç¿ª<¼öµµ±ÇÁ¤ºñ°èȹ¹ý>, ÁßÁ¡°æ°ü°ü¸®±¸¿ª(2016-11-24)(ÁÖ¿ä»êÁÖº¯).
9)°øºÎ¿ÍÀÇ Â÷ÀÌ
-.
10)±âŸÂü°í»çÇ×(ÀÓ´ë°ü·Ê ¹× ±âŸ)
ÀÓ´ë°ü°è ¹Ì»óÀÓ.
Âü°í
»çÇ×

1) °Ç¹°¿Üº®¿¡´Â ¡®Cµ¿¡¯À¸·Î Ç¥±âµÇ¾î ÀÖÀ½. 2

°ÇÃ๰ÇöȲ

¼ÒÀçÁö ¼­¿ïƯº°½Ã ¼ººÏ±¸ Á¤¸ªµ¿ 822-21¹øÁö
´ëÁö¸éÀû 271§³
(82.12Æò)
¿¬¸éÀû 690.43§³
(209.22Æò)
°ÇÃà¸éÀû 156.9§³
(47.55Æò)
¿ëÀû·ü»êÁ¤
¿¬¸éÀû
537.86§³
(162.99Æò)
°ÇÆóÀ² 57.9% ¿ëÀû·ü 198.47%
Áö»óÃþ¼ö 4Ãþ ÁöÇÏÃþ¼ö 1Ãþ
ÁÖ¿ëµµ °øµ¿ÁÖÅà ±¸Á¶ ö±ÙÄÜÅ©¸®Æ®±¸Á¶
Âø°øÀÏÀÚ 2014.02.24 »ç¿ë½ÂÀÎÀÏÀÚ 2014.06.27
°ÇÃ๰Ãþº°ÇöȲ [º¸±â]


±¹ÅäºÎ½Ç°Å·¡°¡ ¼­¿ïƯº°½Ã ¼ººÏ±¸ Á¤¸ªµ¿

¡Ü ¸Å¸Å

¸éÀû(§³), ±Ý¾×(¸¸¿ø)

¡Ü Àü¼¼

¸éÀû(§³), ±Ý¾×(¸¸¿ø)

°è¾àÀϰǹ°¸íĪÃþ¿¬¸éÀûº¸Áõ±Ý¿ù¼¼°ÇÃà
25.12.22±×¸°ºô¶ó(607-25)-149.591,000401994
25.12.20¼º¿øÇÏÀÌÃ÷629.980352019
25.12.20(227-187)136.742,000602005
25.12.20Æò¿ÏÇÏÀÌÃ÷¸Ç¼Ç471.9219,40001997
25.12.19(266-60)560.820,00002008
¢Ñ ´õº¸±â

µî±âºÎµîº» ¿ä¾à(°Ç¹°)

  Á¢¼öÀÏÀÚ µî±â¸ñÀû/±Ç¸®ÀÚ ±Ç¸®±Ý¾× ±âÁØ
1 2021³â3¿ù10ÀÏ
¼ÒÀ¯±Ç
˱OO
¼Ò¸ê
2 2021³â9¿ù15ÀÏ
¾Ð·ù
ÆÄOO
¼Ò¸ê±âÁØ
3 2022³â4¿ù15ÀÏ
°¡¾Ð·ù
(OOOO
6,118,609 ¼Ò¸ê
4 2022³â12¿ù23ÀÏ
¾Ð·ù
ÆÄOO
¼Ò¸ê
5 2024³â10¿ù14ÀÏ
¾Ð·ù
¼ºOO
¼Ò¸ê
6 2024³â10¿ù21ÀÏ
¾Ð·ù
±¹OOOO
¼Ò¸ê
7 2025³â4¿ù23ÀÏ
°­Á¦°æ¸Å
¹ÎOO
¼Ò¸ê

ÀÓÂ÷ÀÎÇöȲ (¹è´ç¿ä±¸Á¾±âÀÏ: 2025-07-29)



¸Å°¢±âÀÏ 7ÀÏÀü¿¡ ¸Å°¢¹°°Ç¸í¼¼¼­°¡ °ø°íµÇ¿À´Ï È®ÀÎÇϽñ⠹ٶø´Ï´Ù.

ÀÓÂ÷ÀÎ ¿ëµµ/Á¡À¯ º¸Áõ±Ý/¿ù¼¼ ´ëÇ×·Â
ÀüÀÔÀÏ/È®Á¤ÀÏ ¹è´ç¿ä±¸ ºñ°í
¹ÎOO B01È£ 230,000,000
O
2021.02.19
2020.12.24.
2021.02.19.~2023.02.19.
ºñ°í
(¸Å°¢¹°°Ç
¸í¼¼¼­)
¹Îº´È£:ÀÌ »ç°Ç °æ¸Å½Åûä±ÇÀÚÀÌ°í ¹è´ç¿ä±¸ÇÏÁö ¾Ê¾ÒÀ¸³ª °æ¸Å½ÅûÀÏÀ» ¹è´ç¿ä±¸ÀÏÀÚ·Î º½.

¿©ÀÇÁÖ°æ¸Å Á¶¾ð ÇÑ ¸¶µð

¸Å°¢¹°°Ç¸í¼¼ ºñ°í³­¿¡ ±âÀçµÈ ³»¿ëÀÔ´Ï´Ù.
¹Îº´È£:ÀÌ »ç°Ç °æ¸Å½Åûä±ÇÀÚÀÌ°í ¹è´ç¿ä±¸ÇÏÁö ¾Ê¾ÒÀ¸³ª °æ¸Å½ÅûÀÏÀ» ¹è´ç¿ä±¸ÀÏÀÚ·Î º½.
³«Âû ÈÄ¿¡ µî±âºÎ»ó ¼Ò¸êµÇÁö ¾Ê´Â ±Ç¸®´Â ¾ø½À´Ï´Ù.
´ë·«ÀûÀÎ °ËÅäÀǰßÀ̹ǷΠÀÔÂûÀü¿¡ Àü¹®°¡ÀÇ Á¶¾ðÀ» Âü°íÇØ º¸½Ã±æ ±ÇÇØµå¸³´Ï´Ù.
¡Ø ¹°°Ç Ű¿öµå : ÁÖ°ÅÁö¿ª/Á¦2Á¾ÀϹÝÁÖ°ÅÁö¿ª/¹ö½ºÁ¤·ùÀå/ö±ÙÄÜÅ©¸®Æ®±¸Á¶
Àüü ÄÁ¼³ÆÃÀÌ ºÎ´ã½º·¯¿ì½Å°¡¿ä? ±Ç¸®ºÐ¼®¸¸ ÀÇ·ÚÇϼŵµ ±¦Âú½À´Ï´Ù!
½Ç¼Ó ÀÖ°Ô Çٽɸ¸ ´ãÀº ±Ç¸®ºÐ¼® ¼­ºñ½º!! (±Ç¸®ºÐ¼® + ½Ã¼¼Á¶»ç + ³«Âû°¡ »êÁ¤ + ÀÔÂûÇ¥ ÀÛ¼º¹æ¹ý ±îÁö)
ÃÖ´ë Àüü ÄÁ¼³ÆÃ ºñ¿ëÀÇ 10% ¼öÁØ !!

ÁÖÀÇ»çÇ× (ÃÖ¼±¼øÀ§ ¼³Á¤ÀÏ: 2021.9.15. ¾Ð·ù ¼³Á¤)

¸Å°¢À¸·Î ¼Ò¸êµÇÁö ¾Ê´Â µî±âºÎ±Ç¸®: ÇØ´ç»çÇ×¾øÀ½
¸Å°¢À¸·Î ¼³Á¤µÈ °ÍÀ¸·Î º¸´Â Áö»ó±Ç: ÇØ´ç»çÇ×¾øÀ½
´ëÇ×·Â ÀÖ´Â ÀÓÂ÷ÀÎ ÀÖÀ½(¹è´ç¿¡¼­ º¸Áõ±ÝÀÌ Àü¾× º¯Á¦µÇÁö ¾Æ´ÏÇϸé Àܾ×À» ¸Å¼öÀÎÀÌ ÀμöÇÔ)
¡Ø¹Ì³³°ü¸®ºñ(°ø¿ë) Àμö¿©ºÎ¸¦ ÀÔÂû Àü¿¡ È®ÀÎÇϽñ⠹ٶø´Ï´Ù

 

Áö¿ªºÐ¼®

ÁöÇÏö¸í Á÷¼±°Å¸®

Çб³¸í ÀüÈ­¹øÈ£ ÁÖ¼Ò Á÷¼±°Å¸®

¹ý¿ø

¼­¿ïºÏºÎÁö¹æ¹ý¿ø (013-22)¼­¿ïƯº°½Ã µµºÀ±¸ ¸¶µé·Î749 (µµºÀ2µ¿ 626)
´ëÇ¥ : 02)910-3114
°üÇÒÁö¿ª : °­ºÏ±¸, ³ë¿ø±¸, µµºÀ±¸, µ¿´ë¹®±¸, ¼ººÏ±¸, Áß¶û±¸

µî±â¼Ò ¼­¿ïºÏºÎÁö¹æ¹ý¿ø º»¿ø µî±â±¹ (´ëÇ¥:1544-0773, ÆÑ½º:(02)2030-2330, ¼­¿ïƯº°½Ã µµºÀ±¸ ³ëÇØ·Î 325 (⵿ 337¹øÁö))
¼¼¹«¼­ ¼ººÏ¼¼¹«¼­ (´ëÇ¥:02-760-820, ÆÑ½º:02-744-6160, ¼­¿ïƯº°½Ã ¼ººÏ±¸ »ï¼±±³·Î 16±æ 13)

Àαٳ«ÂûÅë°è

±â°£ ¸Å°¢°Ç¼ö Æò±Õ°¨Á¤°¡
Æò±Õ¸Å°¢°¡
¸Å°¢°¡À²
Æò±ÕÀ¯Âû¼ö
3°³¿ù 30°Ç 301,914,000¿ø
222,300,637¿ø
74%
4.7ȸ
6°³¿ù 50°Ç 314,518,400¿ø
217,759,990¿ø
70%
4.3ȸ
12°³¿ù 111°Ç 298,823,964¿ø
222,923,129¿ø
76%
3.3ȸ


º» °æ¸ÅÁ¤º¸´Â ¹ý¿øÀÚ·á¿Í ÀÏÄ¡Çϵµ·Ï ÇÏ¿´À¸³ª ±Ç¸®»çÇ׺¯µ¿, ÀÔ·ÂÂø¿À µîÀÇ ¿øÀÎÀ¸·Î »ç½Ç°ú ´Ù¸¦ ¼ö ÀÖ½À´Ï´Ù. ÀÌ¿ë¾à°ü¿¡ ÀǰЏéÃ¥Á¶°ÇÀ¸·Î Á¦°øµÊÀ» ¾Ë¸®¸ç, °æ¸ÅÀÔÂû½Ã ¹Ýµå½Ã °ü·Ã °øºÎ¸¦ ÀçÈ®ÀÎÇϽñ⠹ٶø´Ï´Ù. º¸´Ù Æí¸®ÇÑ °æ¸ÅÁ¤º¸ Á¦°øÀ» À§ÇØ Áö¼ÓÀûÀ¸·Î °³¼±ÇϰڽÀ´Ï´Ù. ÀÌ¿ëÇØ Áּż­ °¨»çÇÕ´Ï´Ù.
°ü½É¹°°ÇÀ¸·Î µî·ÏÇÕ´Ï´Ù