16
´Ù¼¼´ë(ºô¶ó)
¼­¿ï³²ºÎÁö¹æ¹ý¿ø
 °¨Á¤°¡271,000,000 ¿ø
 ÃÖÀú°¡(100%) 271,000,000 ¿ø
 º¸Áõ±Ý(10%) 27,100,000 ¿ø
 Ã»±¸¾×285,000,000 ¿ø
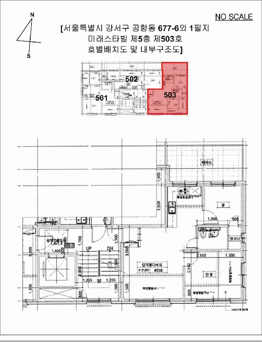
¼­¿ïƯº°½Ã °­¼­±¸ °øÇ×µ¿ 677-6 ¹Ì·¡½ºÅ¸ºô Á¦5Ãþ Á¦503È£
»ç°Ç¹øÈ£ 2025Ÿ°æ10234
°æ¸ÅÁ¾·ùºÎµ¿»ê°­Á¦°æ¸Å
¸Å°¢´ë»óÅäÁö ¹× °Ç¹°Àϰý ¸Å°¢
¸Å°¢±âÀÏ    2026.01.21(¼ö) 10:00 ÀÔÂû 12ÀÏÀü    
ÅäÁö¸éÀû18.82§³(5.69 Æò)
°Ç¹°¸éÀû29.97§³(9.07 Æò)
乫/¼ÒÀ¯ÀÚ°íOO / °íOO
ä±ÇÀÚÁÖOOOOOOO
±è¼ºÈÆ ´ëÇ¥ÀÌ»ç
°øÀÎÁß°³»ç, ºÎµ¿»ê°ø°æ¸Å»ç, ÇѾç´ëÇб³ Á¹¾÷
Àü) ÅÂÀÎÄÁ¼³ÆÃ(ÁÖ) ´ëÇ¥ÀÌ»ç
Àü) ¿©ÀÇÁֺε¿»êÁß°³¹ýÀÎ(ÁÖ) ´ëÇ¥ÀÌ»ç
Çö) ¿©ÀÇÁÖ°æ¸Å¹ýÀÎ ´ëÇ¥ÀÌ»ç
010-2371-3237
ÆäÀ̽ººÏ Æ®À§ÅÍ ±¸±Û+
īī¿À½ºÅ丮
īī¿ÀÅå sms¹®ÀÚº¸³»±â
 

±âÀϳ»¿ª

°æ°ú ³¯Â¥ Àú°¨ ÃÖÀú°¡ °á°ú
Á¢¼öÀÏ 2025-06-04 °æ¸ÅÁ¢¼ö
~1ÀÏ 
2025-06-05 °æ¸Å°³½Ã°áÁ¤
~97ÀÏ 
2025-09-09 ¹è´ç¿ä±¸Á¾±âÀÏ
~231ÀÏ 
2026-01-21 100%
271,000,000
ÁøÇà
¹°°Ç¸í¼¼¼­ ÇöȲÁ¶»ç¼­ ¹®°ÇÁ¢¼ö ¼Û´Þ³»¿ª

°¨Á¤Æò°¡ÇöȲ

¸ñ·Ï ÁÖ¼Ò ±¸Á¶/¿ëµµ/´ëÁö±Ç ¸éÀû ºñ°í
´ëÁö±Ç
°øÇ×µ¿ 677-6 324.7ºÐÀÇ 18.82 18.82 §³
(5.69Æò)
°Ç¹°
°øÇ×µ¿ 677-6 Á¦5Ãþ Á¦503È£ ö±ÙÄÜÅ©¸®Æ®±¸Á¶ 29.97 §³
(9.07Æò)
1) À§Ä¡/µµ½ÃÁö¿ª/Á¦2Á¾ÀϹÝÁÖ°ÅÁö¿ª/ÁÖÂ÷Àå/³ë¼±¹ö½ºÁ¤·ùÀå/ö±ÙÄÜÅ©¸®Æ®±¸Á¶/µµ½Ã°¡½º/°³º°³­¹æ ´õº¸±â
°¨Á¤Æò°¡ ¿äÇ×Ç¥
1)À§Ä¡ ¹× ÁÖÀ§È¯°æ
º»°ÇÀº ¼­¿ïƯº°½Ã °­¼­±¸ °øÇ×µ¿ ¼ÒÀç ""¼­¿ï¼ÛÁ¤ÁßÇб³"" ºÏ¼­Ãø Àαٿ¡ À§Ä¡Çϸç ÁÖÀ§´Â ´Üµ¶ÁÖÅÃ, ´Ù¼¼´ëÁÖÅÃ, ¾ÆÆÄÆ®, ÁÖ»ó¿ë°Ç¹°, °ø°ø½Ã¼³, ±³À°½Ã¼³, ±Ù¸°»ýȰ½Ã¼³ µîÀÌ È¥ÀçÇÏ´Â ÁÖ°ÅÁö¿ªÀ¸·Î¼­ Á¦¹ÝÁÖÀ§È¯°æÀº º¸ÅëÀÓ.
2)±³Åë»óȲ
º»°Ç±îÁö Â÷·®ÁøÃâÀÔÀÌ °¡´ÉÇϸç ÁÖÀ§¿¡ ³ë¼±¹ö½ºÁ¤·ùÀå µî ÀÌ ¼ÒÀçÇÏ¿© ´ëÁß±³Åë»óȲÀº º¸ÅëÀÓ.
3)°Ç¹°ÀÇ ±¸Á¶
ö±ÙÄÜÅ©¸®Æ®±¸Á¶ (ö±Ù)ÄÜÅ©¸®Æ®ÁöºØ 6Ãþ µµ½ÃÇü»ýȰÁÖÅÃ(´ÜÁöÇü´Ù¼¼´ë) °Ç¹° ³» Á¦5Ãþ Á¦503È£·Î¼­,
¿Üº® : Ä¡À庮µ¹½×±â ¹× ¿ÜÀå¼®À縶°¨ µî
³»º® : º®Áöµµ¹è ¹× ÀϺΠŸÀÏ ¸¶°¨ µî
âȣ : ¼¦½Ã âȣ µî ÀÓ.
4)ÀÌ¿ë»óÅÂ
µµ½ÃÇü»ýȰÁÖÅÃ(´ÜÁöÇü´Ù¼¼´ë)À¸·Î ÀÌ¿ëÁßÀÓ.
(ÈÄ÷ ' ³»ºÎ±¸Á¶µµ' ÂüÁ¶)
5)¼³ºñ³»¿ª
°³º°³­¹æ½Ã¼³·Î¼­ µµ½Ã°¡½º¼³ºñ, ½Â°­±â¼³ºñ, ÁÖÂ÷Àå¼³ºñ, ¼ÒÈ­Àü¼³ºñ, ±Þ¹è¼ö¼³ºñ ¹× ±âº»ÀûÀÎ À§»ý¼³ºñ µî °®Ãß¾úÀ½.
6)ÅäÁöÀÇ Çü»ó ¹× ÀÌ¿ë»óÅÂ
ÀÎÁ¢ÅäÁö ¹× ÀÎÁ¢µµ·Î ´ëºñ ´ëü·Î µî°íÆòźÇÑ 2ÇÊÁö ÀÏ´ÜÀÇ °¡ÀåÇüÀÇ ÅäÁö·Î¼­, µµ½ÃÇü»ýȰÁÖÅÃ(´ÜÁöÇü´Ù¼¼´ë) °ÇºÎÁö µîÀ¸·Î ÀÌ¿ëÁßÀÓ.
7)ÀÎÁ¢ µµ·Î»óŵî
º»°Ç ºÏÃøÀ¸·Î ¹æÈ­´ë·Î5´Ù±æ°ú Á¢ÇÔ.
8)ÅäÁöÀÌ¿ë°èȹ ¹× Á¦ÇÑ»óÅÂ
2ÇÊÁö °øÈ÷
µµ½ÃÁö¿ª, Á¦2Á¾ÀϹÝÁÖ°ÅÁö¿ª(7ÃþÀÌÇÏ), Áß¿ä½Ã¼³¹°º¸È£Áö±¸(°øÇ×), °¡Ãà»çÀ°Á¦Çѱ¸¿ª(Áö¿ª°æÁ¦°ú È®ÀÎ ¿ä¸Á)<°¡ÃàºÐ´¢ÀÇ °ü¸® ¹× À̿뿡 °üÇÑ ¹ý·ü>, ¼öÆòÇ¥¸é±¸¿ª(¼öÆòÇ¥¸é)<°øÇ׽ü³¹ý>, »ó´ëº¸È£±¸¿ª(2013-11-26)(°­¼­±³À°Áö¿øÃ»¿¡ ¹Ýµå½Ã È®ÀÎ ¿ä¸Á)<±³À°È¯°æ º¸È£¿¡ °üÇÑ ¹ý·ü>, »ó´ëº¸È£±¸¿ª(2016-07-21)(°­¼­±³À°Ã»¿¡ ¹Ýµå½Ã È®Àοä¸Á)<±³À°È¯°æ º¸È£¿¡ °üÇÑ ¹ý·ü>, ´ë°ø¹æ¾îÇùÁ¶±¸¿ª(À§Å¹°íµµ:77-257m)<±º»ç±âÁö ¹× ±º»ç½Ã¼³ º¸È£¹ý>, °ú¹Ð¾ïÁ¦±Ç¿ª<¼öµµ±ÇÁ¤ºñ°èȹ¹ý>, µµ½Ã°ü¸®°èȹ ÀÔ¾ÈÁßÀÓ.
9)°øºÎ¿ÍÀÇ Â÷ÀÌ
-
10)±âŸÂü°í»çÇ×(ÀÓ´ë°ü·Ê ¹× ±âŸ)
ÀÓ´ë°ü°è´Â ¹Ì»óÀÓ.
Âü°í
»çÇ×
- ÀÓÂ÷ÀÎ ¹× ÁÖÅÃÀÓÂ÷±Ç ½Â°èÀÎ ÁÖÅõµ½Ãº¸Áõ°ø»çÀÇ ¹è´ç¹ÞÁö ¸øÇÏ´Â Àܾ׿¡ ´ëÇÑ ÀÓÂ÷º¸Áõ±Ý¹Ýȯû±¸±Ç Æ÷±â Á¶°Ç ¸Å°¢

°ÇÃ๰ÇöȲ

¼ÒÀçÁö ¼­¿ïƯº°½Ã °­¼­±¸ °øÇ×µ¿ 677-6¹øÁö
´ëÁö¸éÀû 324.7§³
(98.39Æò)
¿¬¸éÀû 633.4§³
(191.94Æò)
°ÇÃà¸éÀû 179.44§³
(54.38Æò)
¿ëÀû·ü»êÁ¤
¿¬¸éÀû
618.805§³
(187.52Æò)
°ÇÆóÀ² 55.26% ¿ëÀû·ü 190.58%
Áö»óÃþ¼ö 6Ãþ ÁöÇÏÃþ¼ö 1Ãþ
ÁÖ¿ëµµ °øµ¿ÁÖÅà ±¸Á¶ ö±ÙÄÜÅ©¸®Æ®±¸Á¶
Âø°øÀÏÀÚ 2020.04.14 »ç¿ë½ÂÀÎÀÏÀÚ 2020.11.04
°ÇÃ๰Ãþº°ÇöȲ [º¸±â]


±¹ÅäºÎ½Ç°Å·¡°¡ ¼­¿ïƯº°½Ã °­¼­±¸ °øÇ×µ¿

¡Ü ¸Å¸Å

¸éÀû(§³), ±Ý¾×(¸¸¿ø)

¡Ü Àü¼¼

¸éÀû(§³), ±Ý¾×(¸¸¿ø)

°è¾àÀϰǹ°¸íĪÃþ¿¬¸éÀûº¸Áõ±Ý¿ù¼¼°ÇÃà
25.12.17¾ÆÀ̵ðÁÖÅÃ426.851,0001202023
25.12.17¿ì³ëºô¸®Áö643.4724,00002018
25.12.16½ºÄ«À̺ô¶ó³ªµ¿236.0913,00002002
25.12.14´ë¸²½ºÀ§Æ®ºô357.3410,000402002
25.12.13À§ÇϿ콺525.3417,50002020
¢Ñ ´õº¸±â

µî±âºÎµîº» ¿ä¾à(°Ç¹°)

  Á¢¼öÀÏÀÚ µî±â¸ñÀû/±Ç¸®ÀÚ ±Ç¸®±Ý¾× ±âÁØ
1 2021³â2¿ù19ÀÏ
¼ÒÀ¯±Ç
°íOO
¼Ò¸ê
2 2021³â3¿ù2ÀÏ
¾àÁ¤/±ÝÁö»çÇ×/ȯ¸ÅƯ¾à
Àμö
3 2022³â9¿ù14ÀÏ
¾Ð·ù
±¹
¼Ò¸ê±âÁØ
4 2023³â1¿ù11ÀÏ
°¡¾Ð·ù
ÁÖOOOO
788,000,000 ¼Ò¸ê
5 2023³â3¿ù30ÀÏ
ÀÓÂ÷±Ç¼³Á¤
ÇÔOO
285,000,000 ¼Ò¸ê
6 2025³â6¿ù5ÀÏ
°­Á¦°æ¸Å
ÁÖOOOO
¼Ò¸ê

ÀÓÂ÷ÀÎÇöȲ (¹è´ç¿ä±¸Á¾±âÀÏ: 2025-09-09)



¸Å°¢±âÀÏ 7ÀÏÀü¿¡ ¸Å°¢¹°°Ç¸í¼¼¼­°¡ °ø°íµÇ¿À´Ï È®ÀÎÇϽñ⠹ٶø´Ï´Ù.

ÀÓÂ÷ÀÎ ¿ëµµ/Á¡À¯ º¸Áõ±Ý/¿ù¼¼ ´ëÇ×·Â
ÀüÀÔÀÏ/È®Á¤ÀÏ ¹è´ç¿ä±¸ ºñ°í
±èOO ¹Ì»ó ¹Ì»ó
[¿ù]¹Ì»ó
X
2024.11.01
¹Ì»ó
¹Ì»ó
ÁÖOOOOOOO 503È£ÀüºÎ 285,000,000
2021.02.22(ÇÔ¿µ»ó)
2021.01.20
2025.9.9. 2021.02.19 ~2023.02.19
ÇÔOO °Ç¹°ÀüºÎ 285,000,000
O
2021.02.22
2021.01.20
2021.02.19 ~
ºñ°í
(¸Å°¢¹°°Ç
¸í¼¼¼­)
ÁÖÅõµ½Ãº¸Áõ°ø»ç : ÀÌ »ç°Ç ½Åûä±ÇÀÚ·Î ÁÖÅÃÀÓÂ÷±ÇÀÚ ÇÔ¿µ»óÀÇ ÁöÀ§¸¦ ½Â°èÇÏ¿© ±Ç¸®½Å°í ¹× ¹è´ç¿ä±¸ÇÔ ÇÔ¿µ»ó : ÁÖÅÃÀÓÂ÷±Ç µî±âÀÏÀº 2023.03.30.ÀÓ

¿©ÀÇÁÖ°æ¸Å Á¶¾ð ÇÑ ¸¶µð

¸Å°¢¹°°Ç¸í¼¼ ºñ°í³­¿¡ ±âÀçµÈ ³»¿ëÀÔ´Ï´Ù.
ÁÖÅõµ½Ãº¸Áõ°ø»ç : ÀÌ »ç°Ç ½Åûä±ÇÀÚ·Î ÁÖÅÃÀÓÂ÷±ÇÀÚ ÇÔ¿µ»óÀÇ ÁöÀ§¸¦ ½Â°èÇÏ¿© ±Ç¸®½Å°í ¹× ¹è´ç¿ä±¸ÇÔ ÇÔ¿µ»ó : ÁÖÅÃÀÓÂ÷±Ç µî±âÀÏÀº 2023.03.30.ÀÓ
³«Âû ÈÄ¿¡ µî±âºÎ»ó ¼Ò¸êµÇÁö ¾Ê´Â ±Ç¸®´Â ¾ø½À´Ï´Ù.
´ë·«ÀûÀÎ °ËÅäÀǰßÀ̹ǷΠÀÔÂûÀü¿¡ Àü¹®°¡ÀÇ Á¶¾ðÀ» Âü°íÇØ º¸½Ã±æ ±ÇÇØµå¸³´Ï´Ù.
¼±¼øÀ§ ÀÓÂ÷±Çµî±â°¡ µÇ¾î ÀÖ½À´Ï´Ù.
´Ù¼öÀÇ ÀÓÂ÷ÀÎÀÌ Á¶»ç, ½Å°íµÇ¾î ÀÖ½À´Ï´Ù.
¸Å°¢¹°°Ç¸í¼¼¼­ ¹× ÇöȲÁ¶»ç¼­¿¡ 3¸íÀÇ ÀÓÂ÷ÀÎÀÌ ³ªÅ¸³ª ÀÖ½À´Ï´Ù. ÀÓÂ÷ÀÎÀÌ ¸¹Àº °æ¿ì ¸íµµ¿¡ ¾î·Á¿òÀÌ ÀÖÀ¸´Ï Àü¹®°¡¿Í ÇùÀÇÇÏ¿© ÁøÇàÇÏ½Ã±æ ±ÇÇØ µå¸³´Ï´Ù.
¡Ø ¹°°Ç Ű¿öµå : µµ½ÃÁö¿ª/ÁÖ°ÅÁö¿ª/Á¦2Á¾ÀϹÝÁÖ°ÅÁö¿ª/¹ö½ºÁ¤·ùÀå/ÁÖÂ÷Àå/³ë¼±¹ö½ºÁ¤·ùÀå/ö±ÙÄÜÅ©¸®Æ®±¸Á¶/µµ½Ã°¡½º/°³º°³­¹æ
Àüü ÄÁ¼³ÆÃÀÌ ºÎ´ã½º·¯¿ì½Å°¡¿ä? ±Ç¸®ºÐ¼®¸¸ ÀÇ·ÚÇϼŵµ ±¦Âú½À´Ï´Ù!
½Ç¼Ó ÀÖ°Ô Çٽɸ¸ ´ãÀº ±Ç¸®ºÐ¼® ¼­ºñ½º!! (±Ç¸®ºÐ¼® + ½Ã¼¼Á¶»ç + ³«Âû°¡ »êÁ¤ + ÀÔÂûÇ¥ ÀÛ¼º¹æ¹ý ±îÁö)
ÃÖ´ë Àüü ÄÁ¼³ÆÃ ºñ¿ëÀÇ 10% ¼öÁØ !!

ÁÖÀÇ»çÇ× (ÃÖ¼±¼øÀ§ ¼³Á¤ÀÏ: 2022.09.14. ¾Ð·ù ¼³Á¤)

¸Å°¢À¸·Î ¼Ò¸êµÇÁö ¾Ê´Â µî±âºÎ±Ç¸®:
¸Å°¢À¸·Î ¼³Á¤µÈ °ÍÀ¸·Î º¸´Â Áö»ó±Ç:
- ÀÓÂ÷ÀÎ ÇÔ¿µ»ó ¹× ÁÖÅÃÀÓÂ÷±Ç ½Â°èÀÎ ÁÖÅõµ½Ãº¸Áõ°ø»ç´Â ¸Å¼öÀο¡ ´ëÇÏ¿© ¹è´ç¹ÞÁö ¸øÇÏ´Â Àܾ׿¡ ´ëÇÑ ÀÓÂ÷º¸Áõ±Ý¹Ýȯû ±¸±ÇÀ» Æ÷±âÇϰí, ÁÖÅÃÀÓÂ÷±Çµî±â¸¦ ¸»¼ÒÇÏ´Â °ÍÀ» Á¶°ÇÀ¸·Î ¸Å°¢
¡Ø¹Ì³³°ü¸®ºñ(°ø¿ë) Àμö¿©ºÎ¸¦ ÀÔÂû Àü¿¡ È®ÀÎÇϽñ⠹ٶø´Ï´Ù

 

Áö¿ªºÐ¼®

ÁöÇÏö¸í Á÷¼±°Å¸®

Çб³¸í ÀüÈ­¹øÈ£ ÁÖ¼Ò Á÷¼±°Å¸®

¹ý¿ø

¼­¿ï³²ºÎÁö¹æ¹ý¿ø (080-88)¼­¿ïƯº°½Ã ¾çõ±¸ ½Å¿ù·Î 386(½ÅÁ¤µ¿)
´ëÇ¥ : 02)2192-1114
°üÇÒÁö¿ª : ¿µµîÆ÷±¸, °­¼­±¸, ¾çõ±¸, ±¸·Î±¸, ±Ýõ±¸

µî±â¼Ò ¼­¿ï³²ºÎÁö¹æ¹ý¿ø º»¿ø µî±â±¹ (´ëÇ¥:1544-0773, ÆÑ½º:(02)2629-7307, ¼­¿ïƯº°½Ã ¿µµîÆ÷±¸ °æÀηΠ772 (¹®·¡µ¿ 1°¡))
¼¼¹«¼­ °­¼­¼¼¹«¼­ (´ëÇ¥:02-2630-42, ÆÑ½º:02-2679-8777, ¼­¿ïƯº°½Ã °­¼­±¸ ¸¶°î¼­1·Î 60 (¸¶°îµ¿))

Àαٳ«ÂûÅë°è

±â°£ ¸Å°¢°Ç¼ö Æò±Õ°¨Á¤°¡
Æò±Õ¸Å°¢°¡
¸Å°¢°¡À²
Æò±ÕÀ¯Âû¼ö
3°³¿ù 261°Ç 260,630,192¿ø
188,236,375¿ø
72%
2.6ȸ
6°³¿ù 542°Ç 260,118,052¿ø
197,254,575¿ø
76%
2.3ȸ
12°³¿ù 999°Ç 259,103,642¿ø
198,851,340¿ø
77%
2.4ȸ


º» °æ¸ÅÁ¤º¸´Â ¹ý¿øÀÚ·á¿Í ÀÏÄ¡Çϵµ·Ï ÇÏ¿´À¸³ª ±Ç¸®»çÇ׺¯µ¿, ÀÔ·ÂÂø¿À µîÀÇ ¿øÀÎÀ¸·Î »ç½Ç°ú ´Ù¸¦ ¼ö ÀÖ½À´Ï´Ù. ÀÌ¿ë¾à°ü¿¡ ÀǰЏéÃ¥Á¶°ÇÀ¸·Î Á¦°øµÊÀ» ¾Ë¸®¸ç, °æ¸ÅÀÔÂû½Ã ¹Ýµå½Ã °ü·Ã °øºÎ¸¦ ÀçÈ®ÀÎÇϽñ⠹ٶø´Ï´Ù. º¸´Ù Æí¸®ÇÑ °æ¸ÅÁ¤º¸ Á¦°øÀ» À§ÇØ Áö¼ÓÀûÀ¸·Î °³¼±ÇϰڽÀ´Ï´Ù. ÀÌ¿ëÇØ Áּż­ °¨»çÇÕ´Ï´Ù.
°ü½É¹°°ÇÀ¸·Î µî·ÏÇÕ´Ï´Ù