18
¿ÀÇǽºÅÚ
¿ï»êÁö¹æ¹ý¿ø
 °¨Á¤°¡519,000,000 ¿ø
 ÃÖÀú°¡(100%) 519,000,000 ¿ø
 º¸Áõ±Ý(10%) 51,900,000 ¿ø
 Ã»±¸¾×256,479,293 ¿ø
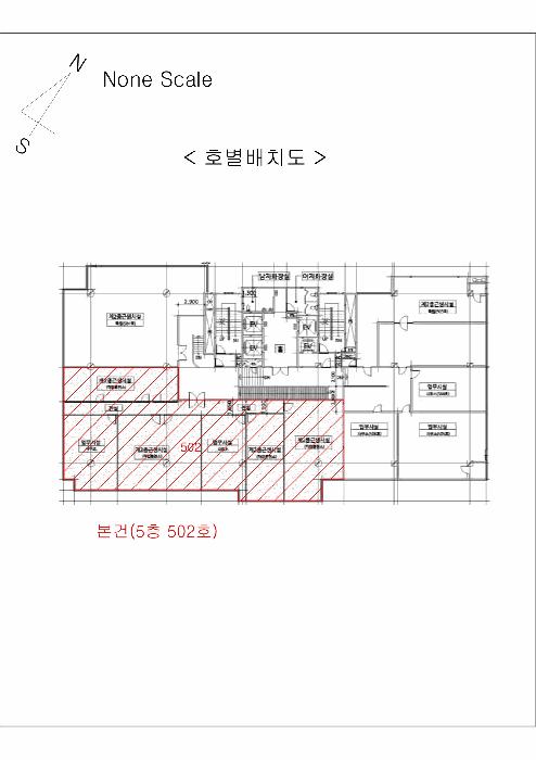
¿ï»ê±¤¿ª½Ã ³²±¸ ºÏºÎ¼øÈ¯µµ·Î 17, 5Ãþ502È£ (¹«°Åµ¿,³²¿îÇÁ¶óÀÚ¿ÀÇǽºÅÚ)
¿ï»ê±¤¿ª½Ã ³²±¸ ¹«°Åµ¿ 299-10
»ç°Ç¹øÈ£ 2025Ÿ°æ466
°æ¸ÅÁ¾·ùºÎµ¿»êÀÓÀǰæ¸Å
¸Å°¢´ë»óÅäÁö ¹× °Ç¹°Àϰý ¸Å°¢
¸Å°¢±âÀÏ    2026.01.21(¼ö) 10:00 ÀÔÂû 12ÀÏÀü    
ÅäÁö¸éÀû76.45§³(23.13 Æò)
°Ç¹°¸éÀû417.66§³(126.34 Æò)
乫/¼ÒÀ¯ÀÚ¼ÕOO / ¼ÕOO
ä±ÇÀÚ¼­OO OOOOOO
±è¼ºÈÆ ´ëÇ¥ÀÌ»ç
°øÀÎÁß°³»ç, ºÎµ¿»ê°ø°æ¸Å»ç, ÇѾç´ëÇб³ Á¹¾÷
Àü) ÅÂÀÎÄÁ¼³ÆÃ(ÁÖ) ´ëÇ¥ÀÌ»ç
Àü) ¿©ÀÇÁֺε¿»êÁß°³¹ýÀÎ(ÁÖ) ´ëÇ¥ÀÌ»ç
Çö) ¿©ÀÇÁÖ°æ¸Å¹ýÀÎ ´ëÇ¥ÀÌ»ç
010-2371-3237
ÆäÀ̽ººÏ Æ®À§ÅÍ ±¸±Û+
īī¿À½ºÅ丮
īī¿ÀÅå sms¹®ÀÚº¸³»±â
 

±âÀϳ»¿ª

°æ°ú ³¯Â¥ Àú°¨ ÃÖÀú°¡ °á°ú
Á¢¼öÀÏ 2025-01-16 °æ¸ÅÁ¢¼ö
~1ÀÏ 
2025-01-17 °æ¸Å°³½Ã°áÁ¤
~98ÀÏ 
2025-04-24 ¹è´ç¿ä±¸Á¾±âÀÏ
~370ÀÏ 
2026-01-21 100%
519,000,000
ÁøÇà
¹°°Ç¸í¼¼¼­ ÇöȲÁ¶»ç¼­ ¹®°ÇÁ¢¼ö ¼Û´Þ³»¿ª

°¨Á¤Æò°¡ÇöȲ

¸ñ·Ï ÁÖ¼Ò ±¸Á¶/¿ëµµ/´ëÁö±Ç ¸éÀû ºñ°í
´ëÁö±Ç
¹«°Åµ¿ 299-10 2231.8 ºÐÀÇ 76.452 76.452 §³
(23.13Æò)
°Ç¹°
¹«°Åµ¿ 299-10 5Ãþ502È£ ö°ñ,ö±ÙÄÜÅ©¸®Æ®Á¶ 417.66 §³
(126.34Æò)
1) À§Ä¡/µµ½ÃÁö¿ª/Á¦2Á¾ÀϹÝÁÖ°ÅÁö¿ª/ÀϹݻó¾÷Áö¿ª/ÁÖÂ÷Àå/ö±ÙÄÜÅ©¸®Æ®Á¶/½½·¡ºêÁöºØ ´õº¸±â
°¨Á¤Æò°¡ ¿äÇ×Ç¥
1)À§Ä¡ ¹× ÁÖÀ§È¯°æ
º»°ÇÀº ¿ï»ê±¤¿ª½Ã ³²±¸ ¹«°Åµ¿ ¼ÒÀç '»ïÈ£ÃʵîÇб³' ³²Ãø Àαٿ¡ À§Ä¡ÇÏ´Â ³²¿îÇÁ¶óÀÚ
¿ÀÇǽºÅÚ 5Ãþ 502È£·Î¼­, ÁÖÀ§´Â °¢Á¾ ±Ù¸°»ýȰ½Ã¼³, ¾÷¹«½Ã¼³ ¹× ÈÄ¸é ´Üµ¶ÁÖÅà µîÀ¸·Î
Çü¼ºµÇ¾î ÀÖÀ½.
2)±³Åë»óȲ
º»°Ç±îÁö Â÷·® ÃâÀÔÀÌ °¡´ÉÇϸç, ÀϹÝÀûÀÎ ±³Åë»çÁ¤ º¸Åë½ÃµÊ.
3)°Ç¹°ÀÇ ±¸Á¶
ö°ñ, ö±ÙÄÜÅ©¸®Æ®Á¶ ½½·¡ºêÁöºØ ÁöÇÏ4Ãþ, Áö»ó18Ãþ°Ç ³» 5Ãþ 502È£·Î¼­,
¿Üº®: °­È­À¯¸® ¸¶°¨, Ä¡Àå¼® ºÙÀÓ µî,
³»º®: ÆäÀÎÆ®Ä¥¸¶°¨, ÀÎÅ׸®¾î¸¶°¨, ³»Àå ŸÀÏ ºÙÀÓ µî
âȣ: ¼¦½ÃâȣÀÓ.
4)ÀÌ¿ë»óÅÂ
±Ù¸°»ýȰ½Ã¼³ ¹× ¾÷¹«½Ã¼³·Î ÀÌ¿ëÁß(Á÷¾÷Àü¹®Çб³)ÀÓ.
5)¼³ºñ³»¿ª
À§»ý ¹× ±Þ,¹è¼ö ¼³ºñ, ¼Ò¹æ¼³ºñ, ½Â°­±â½Ã¼³, Àü±â¼³ºñ µîÀÌ µÇ¾îÀÖÀ½.
6)ÅäÁöÀÇ Çü»ó ¹× ÀÌ¿ë»óÅÂ
»ç´Ù¸®Çü°ú À¯»çÇÑ ÅäÁö·Î¼­, ¾÷¹«½Ã¼³(»ç¹«¼Ò, ¿ÀÇǽºÅÚ), ±Ù¸°»ýȰ½Ã¼³, ¿îµ¿½Ã¼³
ºÎÁö·Î ÀÌ¿ëÁßÀÓ.
7)ÀÎÁ¢ µµ·Î»óŵî
ÁÖº¯ °¡·Î¸Á »óÅ ¹× ÁÖÂ÷Àå½Ã¼³ º¸Åë½ÃµÊ.
8)ÅäÁöÀÌ¿ë°èȹ ¹× Á¦ÇÑ»óÅÂ
µµ½ÃÁö¿ª, ÀϹݻó¾÷Áö¿ª, Á¦2Á¾ÀϹÝÁÖ°ÅÁö¿ª, ´ë·Î1·ù(Æø 35m~40m)(Á¢ÇÕ) °¡Ãà»çÀ°Á¦Çѱ¸¿ª<°¡ÃàºÐ´¢ÀÇ °ü¸® ¹× À̿뿡 °üÇÑ ¹ý·ü>, »ó´ëº¸È£±¸¿ª(2017-03-30)(»ïÈ£ÃʵîÇб³)<±³À°È¯°æ º¸È£¿¡ °üÇÑ ¹ý·ü>, Àý´ëº¸È£±¸¿ª(2017-03-30)(»ïÈ£ÃʵîÇб³)<±³À°È¯°æ º¸È£¿¡ °üÇÑ ¹ý·ü> ÀÓ.
9)°øºÎ¿ÍÀÇ Â÷ÀÌ
¾ø À½.
10)±âŸÂü°í»çÇ×(ÀÓ´ë°ü·Ê ¹× ±âŸ)
°¡. ÀÓ´ë°ü°è
¹Ì»óÀÓ.

³ª. ±âŸ
¾ø À½.
Âü°í
»çÇ×
1.±Ù¸°»ýȰ½Ã¼³ ¹× ¾÷¹«½Ã¼³·Î ÀÌ¿ëÁß(Á÷¾÷Àü¹®Çб³)ÀÓ 2.º»°ÇÀº ÁÖ½Äȸ»ç ÁöÇàÀçÁ÷¾÷Àü¹®Çб³¿¡¼­ ÀÓÀÇÀÇ È£½ÇÀ» ºÎ¿©ÇÑ ÈÄ Ä­¸·ÀÌ µîÀ¸·Î ºÐ¸®ÇÏ¿© ÇàÁ¤½Ç, »ó´ã½Ç, °­ÀǽÇ, °ø±¸Àç·á½Ç µîÀ¸·Î »ç¿ëÁßÀÓ
º»°Ç ºÎµ¿»ê 502È£´Â ÁÖ½Äȸ»ç ÁöÇàÀçÁ÷¾÷Àü¹®Çб³¿¡¼­ ÀÓÀÇÀÇ

°ÇÃ๰ÇöȲ

¼ÒÀçÁö ¿ï»ê±¤¿ª½Ã ³²±¸ ¹«°Åµ¿ 299-10¹øÁö
´ëÁö¸éÀû 2231.8§³
(676.3Æò)
¿¬¸éÀû 22952.66§³
(6955.35Æò)
°ÇÃà¸éÀû 1334.94§³
(404.53Æò)
¿ëÀû·ü»êÁ¤
¿¬¸éÀû
16054.41§³
(4864.97Æò)
°ÇÆóÀ² 59.814499% ¿ëÀû·ü 719.34805%
Áö»óÃþ¼ö 18Ãþ ÁöÇÏÃþ¼ö 4Ãþ
ÁÖ¿ëµµ ¾÷¹«½Ã¼³ ±¸Á¶ ÀϹÝö°ñ±¸Á¶
Âø°øÀÏÀÚ »ç¿ë½ÂÀÎÀÏÀÚ 1992.04.20
°ÇÃ๰Ãþº°ÇöȲ [º¸±â]


±¹ÅäºÎ½Ç°Å·¡°¡ ¿ï»ê±¤¿ª½Ã ³²±¸ ¹«°Åµ¿

¡Ü ¸Å¸Å

¸éÀû(§³), ±Ý¾×(¸¸¿ø)

¡Ü Àü¼¼

¸éÀû(§³), ±Ý¾×(¸¸¿ø)

°è¾àÀϰǹ°¸íĪÃþÀü¿ëº¸Áõ±Ý¿ù¼¼°ÇÃà
25.11.17³²¿îÇÁ¶óÀÚ¿ÀÇǽºÅÚ9116.0813,0001992
25.10.21³²¿îÇÁ¶óÀÚ¿ÀÇǽºÅÚ10116.0815,0001992
25.10.21³²¿îÇÁ¶óÀÚ¿ÀÇǽºÅÚ10110.8817,0001992
25.04.14³²¿îÇÁ¶óÀÚ¿ÀÇǽºÅÚ1679.129,4001992

µî±âºÎµîº» ¿ä¾à(°Ç¹°)

  Á¢¼öÀÏÀÚ µî±â¸ñÀû/±Ç¸®ÀÚ ±Ç¸®±Ý¾× ±âÁØ
1 2021³â11¿ù22ÀÏ
¼ÒÀ¯±Ç
¼ÕOO
¼Ò¸ê
2 2021³â11¿ù22ÀÏ
±ÙÀú´ç±Ç
¼­OOOO
427,200,000 ¼Ò¸ê±âÁØ
3 2022³â3¿ù17ÀÏ
±ÙÀú´ç±Ç
Á¶OO
300,000,000 ¼Ò¸ê
4 2025³â1¿ù20ÀÏ
ÀÓÀǰæ¸Å
¼­OOOO
¼Ò¸ê
5 2025³â10¿ù27ÀÏ
¾Ð·ù
³²O
¼Ò¸ê

ÀÓÂ÷ÀÎÇöȲ (¹è´ç¿ä±¸Á¾±âÀÏ: 2025-04-24)



¸Å°¢±âÀÏ 7ÀÏÀü¿¡ ¸Å°¢¹°°Ç¸í¼¼¼­°¡ °ø°íµÇ¿À´Ï È®ÀÎÇϽñ⠹ٶø´Ï´Ù.

ÀÓÂ÷ÀÎ ¿ëµµ/Á¡À¯ º¸Áõ±Ý/¿ù¼¼ ´ëÇ×·Â
ÀüÀÔÀÏ/È®Á¤ÀÏ ¹è´ç¿ä±¸ ºñ°í
ÁÖOOOOOOOOOOOO 363.6380§³ 15,000,000
[¿ù]1,200,000
O
2015.09.01.
2015.09.01.~2018.08.31.
ºñ°í
(¸Å°¢¹°°Ç
¸í¼¼¼­)
ÁÖ½Äȸ»ç ÁöÇüÀçÁ÷¾÷Àü¹®Çб³:±Ç¸®½Å°í¸¦ ÇÏÁö ¾Ê¾Æ ÀÓ´ëÂ÷°ü°è ºÒºÐ¸íÇÔ

¿©ÀÇÁÖ°æ¸Å Á¶¾ð ÇÑ ¸¶µð

¸Å°¢¹°°Ç¸í¼¼ ºñ°í³­¿¡ ±âÀçµÈ ³»¿ëÀÔ´Ï´Ù.
ÁÖ½Äȸ»ç ÁöÇüÀçÁ÷¾÷Àü¹®Çб³:±Ç¸®½Å°í¸¦ ÇÏÁö ¾Ê¾Æ ÀÓ´ëÂ÷°ü°è ºÒºÐ¸íÇÔ
³«Âû ÈÄ¿¡ µî±âºÎ»ó ¼Ò¸êµÇÁö ¾Ê´Â ±Ç¸®´Â ¾ø½À´Ï´Ù.
´ë·«ÀûÀÎ °ËÅäÀǰßÀ̹ǷΠÀÔÂûÀü¿¡ Àü¹®°¡ÀÇ Á¶¾ðÀ» Âü°íÇØ º¸½Ã±æ ±ÇÇØµå¸³´Ï´Ù.
°¨Á¤ ½ÃÁ¡ÀÌ ¿À·¡µÇ¾î °¡°Ýº¯µ¿ÀÌ ÀÖÀ» ¼ö ÀÖ½À´Ï´Ù.
ÀÌ ¹°°ÇÀº 2025³â 1¿ù 17ÀÏ¿¡ °æ¸Å°¡ °³½ÃµÇ¾ú´Âµ¥ Áö±Ý ½ÃÁ¡À¸·Î ¾à 357ÀÏÀÌ ÀÌ °æ°úµÇ¾ú½À´Ï´Ù. °¨Á¤°¡°ÝÀº 357ÀÏ Àü ½ÃÁ¡¿¡¼­ Æò°¡ÇÑ °¡°ÝÀ̹ǷΠ±× »çÀÌ °¡°Ýº¯µ¿ÀÌ ÀÖÀ» ¼ö ÀÖ½À´Ï´Ù. ƯÈ÷ °¡°Ý º¯µ¿ÀÌ ½ÉÇÑ ¾ÆÆÄÆ®´Â À¯ÀÇÇÏ¼Å¾ß ÇÕ´Ï´Ù. °¨Á¤°¡°ÝÀ» ³Ê¹« ¹ÏÁö ¸¶½Ã°í ÇöÀç ½Ç¸Å¹° °¡°Ý°ú ½Ç°Å·¡°¡¸¦ È®ÀÎÇϽñ⠹ٶø´Ï´Ù.
°£È¤ °¨Á¤°¡°Ýº¸´Ù ³ô°Ô ³«ÂûµÇ´Â °æ¿ì°¡ Àִµ¥ ´ëºÎºÐ ÀÌ·± ÀÌÀ¯ÀÔ´Ï´Ù.
¡Ø ¹°°Ç Ű¿öµå : µµ½ÃÁö¿ª/ÁÖ°ÅÁö¿ª/»ó¾÷Áö¿ª/Á¦2Á¾ÀϹÝÁÖ°ÅÁö¿ª/ÀϹݻó¾÷Áö¿ª/ÁÖÂ÷Àå/ö±ÙÄÜÅ©¸®Æ®Á¶/½½·¡ºêÁöºØ
Àüü ÄÁ¼³ÆÃÀÌ ºÎ´ã½º·¯¿ì½Å°¡¿ä? ±Ç¸®ºÐ¼®¸¸ ÀÇ·ÚÇϼŵµ ±¦Âú½À´Ï´Ù!
½Ç¼Ó ÀÖ°Ô Çٽɸ¸ ´ãÀº ±Ç¸®ºÐ¼® ¼­ºñ½º!! (±Ç¸®ºÐ¼® + ½Ã¼¼Á¶»ç + ³«Âû°¡ »êÁ¤ + ÀÔÂûÇ¥ ÀÛ¼º¹æ¹ý ±îÁö)
ÃÖ´ë Àüü ÄÁ¼³ÆÃ ºñ¿ëÀÇ 10% ¼öÁØ !!

ÁÖÀÇ»çÇ× (ÃÖ¼±¼øÀ§ ¼³Á¤ÀÏ: 2021.11.22.±ÙÀú´ç±Ç ¼³Á¤)

¸Å°¢À¸·Î ¼Ò¸êµÇÁö ¾Ê´Â µî±âºÎ±Ç¸®:
¸Å°¢À¸·Î ¼³Á¤µÈ °ÍÀ¸·Î º¸´Â Áö»ó±Ç:
1.±Ù¸°»ýȰ½Ã¼³ ¹× ¾÷¹«½Ã¼³·Î ÀÌ¿ëÁß(Á÷¾÷Àü¹®Çб³)ÀÓ 2.º»°ÇÀº ÁÖ½Äȸ»ç ÁöÇàÀçÁ÷¾÷Àü¹®Çб³¿¡¼­ ÀÓÀÇÀÇ È£½ÇÀ» ºÎ¿©ÇÑ ÈÄ Ä­¸·ÀÌ µîÀ¸·Î ºÐ¸®ÇÏ¿© ÇàÁ¤½Ç, »ó´ã½Ç, °­ÀǽÇ, °ø±¸Àç ·á½Ç µîÀ¸·Î »ç¿ëÁßÀÓ
¡Ø¹Ì³³°ü¸®ºñ(°ø¿ë) Àμö¿©ºÎ¸¦ ÀÔÂû Àü¿¡ È®ÀÎÇϽñ⠹ٶø´Ï´Ù

 

Áö¿ªºÐ¼®

ÁöÇÏö¸í Á÷¼±°Å¸®

Çб³¸í ÀüÈ­¹øÈ£ ÁÖ¼Ò Á÷¼±°Å¸®

¹ý¿ø

¿ï»êÁö¹æ¹ý¿ø (446-43)¿ï»ê±¤¿ª½Ã ³²±¸ ¹ý´ë·Î 55(¿Áµ¿ 1415)
´ëÇ¥ : 052)216-8000, ¹Î¿ø : 052)216-8021~3
°üÇÒÁö¿ª : ¿ï»ê±¤¿ª½Ã, ¾ç»ê½Ã

µî±â¼Ò ¿ï»êÁö¹æ¹ý¿ø º»¿ø µî±â°ú (´ëÇ¥:1544-0773, ÆÑ½º:(052)260-6293, ¿ï»ê±¤¿ª½Ã ³²±¸ ¹ý´ë·Î 55 (¿Áµ¿ 1415))
¼¼¹«¼­ ¿ï»ê¼¼¹«¼­ (´ëÇ¥:052-259-02, ÆÑ½º:052-266-2135, ¿ï»ê±¤¿ª½Ã ³²±¸ °¥¹ç·Î 49 (»ï»êµ¿))

Àαٳ«ÂûÅë°è

±â°£ ¸Å°¢°Ç¼ö Æò±Õ°¨Á¤°¡
Æò±Õ¸Å°¢°¡
¸Å°¢°¡À²
Æò±ÕÀ¯Âû¼ö
3°³¿ù 10°Ç 288,100,000¿ø
181,046,880¿ø
75%
1.8ȸ
6°³¿ù 14°Ç 355,223,891¿ø
194,182,771¿ø
72%
1.8ȸ
12°³¿ù 16°Ç 380,945,905¿ø
208,425,488¿ø
71%
1.8ȸ


º» °æ¸ÅÁ¤º¸´Â ¹ý¿øÀÚ·á¿Í ÀÏÄ¡Çϵµ·Ï ÇÏ¿´À¸³ª ±Ç¸®»çÇ׺¯µ¿, ÀÔ·ÂÂø¿À µîÀÇ ¿øÀÎÀ¸·Î »ç½Ç°ú ´Ù¸¦ ¼ö ÀÖ½À´Ï´Ù. ÀÌ¿ë¾à°ü¿¡ ÀǰЏéÃ¥Á¶°ÇÀ¸·Î Á¦°øµÊÀ» ¾Ë¸®¸ç, °æ¸ÅÀÔÂû½Ã ¹Ýµå½Ã °ü·Ã °øºÎ¸¦ ÀçÈ®ÀÎÇϽñ⠹ٶø´Ï´Ù. º¸´Ù Æí¸®ÇÑ °æ¸ÅÁ¤º¸ Á¦°øÀ» À§ÇØ Áö¼ÓÀûÀ¸·Î °³¼±ÇϰڽÀ´Ï´Ù. ÀÌ¿ëÇØ Áּż­ °¨»çÇÕ´Ï´Ù.
°ü½É¹°°ÇÀ¸·Î µî·ÏÇÕ´Ï´Ù