32
¾ÆÆÄÆ®
¼ö¿øÁö¹æ¹ý¿ø ¾È»êÁö¿ø
 °¨Á¤°¡209,000,000 ¿ø
 ÃÖÀú°¡(100%) 209,000,000 ¿ø
 º¸Áõ±Ý(10%) 20,900,000 ¿ø
 Ã»±¸¾×48,257,877 ¿ø
°æ±âµµ ½ÃÈï½Ã ÀºÇൿ 538-1 ½Å¸í¾ÆÆÄÆ® 101µ¿ 1Ãþ102È£
»ç°Ç¹øÈ£ 2025Ÿ°æ51744
°æ¸ÅÁ¾·ùºÎµ¿»êÀÓÀǰæ¸Å
¸Å°¢´ë»óÅäÁö ¹× °Ç¹°Àϰý ¸Å°¢
¸Å°¢±âÀÏ    2026.01.21(¼ö) 10:30 ÀÔÂû 12ÀÏÀü    
ÅäÁö¸éÀû23.25§³(7.03 Æò)
°Ç¹°¸éÀû48.84§³(14.77 Æò)
乫/¼ÒÀ¯ÀÚ¹ÚOO / ¹ÚOO
ä±ÇÀÚÁÖOOO OOOOOO
±è¼ºÈÆ ´ëÇ¥ÀÌ»ç
°øÀÎÁß°³»ç, ºÎµ¿»ê°ø°æ¸Å»ç, ÇѾç´ëÇб³ Á¹¾÷
Àü) ÅÂÀÎÄÁ¼³ÆÃ(ÁÖ) ´ëÇ¥ÀÌ»ç
Àü) ¿©ÀÇÁֺε¿»êÁß°³¹ýÀÎ(ÁÖ) ´ëÇ¥ÀÌ»ç
Çö) ¿©ÀÇÁÖ°æ¸Å¹ýÀÎ ´ëÇ¥ÀÌ»ç
010-2371-3237
ÆäÀ̽ººÏ Æ®À§ÅÍ ±¸±Û+
īī¿À½ºÅ丮
īī¿ÀÅå sms¹®ÀÚº¸³»±â
 

±âÀϳ»¿ª

°æ°ú ³¯Â¥ Àú°¨ ÃÖÀú°¡ °á°ú
Á¢¼öÀÏ 2025-02-19 °æ¸ÅÁ¢¼ö
~1ÀÏ 
2025-02-20 °æ¸Å°³½Ã°áÁ¤
~82ÀÏ 
2025-05-12 ¹è´ç¿ä±¸Á¾±âÀÏ
~336ÀÏ 
2026-01-21 100%
209,000,000
ÁøÇà
¹°°Ç¸í¼¼¼­ ÇöȲÁ¶»ç¼­ ¹®°ÇÁ¢¼ö ¼Û´Þ³»¿ª

°¨Á¤Æò°¡ÇöȲ

¸ñ·Ï ÁÖ¼Ò ±¸Á¶/¿ëµµ/´ëÁö±Ç ¸éÀû ºñ°í
´ëÁö±Ç
ÀºÇൿ 538-1 12564.2ºÐÀÇ 23.252 23.252 §³
(7.03Æò)
°Ç¹°
ÀºÇൿ 538-1 101µ¿ 1Ãþ102È£ ö±ÙÄÜÅ©¸®Æ®Á¶ 48.84 §³
(14.77Æò)
1) À§Ä¡/µµ½ÃÁö¿ª/Á¦3Á¾ÀϹÝÁÖ°ÅÁö¿ª/Áö±¸´ÜÀ§°èȹ±¸¿ª/Â÷·®Á¢±ÙÀÌ °¡´É/³ë¼±¹ö½ºÁ¤·ùÀå/ö±ÙÄÜÅ©¸®Æ®Á¶/½º¶óºêÁöºØ/µµ½Ã°¡½º ´õº¸±â
°¨Á¤Æò°¡ ¿äÇ×Ç¥
1)À§Ä¡ ¹× ÁÖÀ§È¯°æ
º»°ÇÀº °æ±âµµ ½ÃÈï½Ã ÀºÇൿ ¼ÒÀç""ÀºÇàÃʵîÇб³""ºÏ¼­Ãø Àαٿ¡ À§Ä¡Çϸç, ÁÖÀ§´Â ¾ÆÆÄÆ®
´ÜÁö, ±Ù¸°»ýȰ½Ã¼³, °¢±ÞÇб³ µîÀÌ ¼ÒÀçÇÏ´Â Áö¿ªÀ¸·Î Á¦¹Ý ÁÖÀ§È¯°æÀº ¹«³­ÇÔ.
2)±³Åë»óȲ
º»°Ç´ÜÁö±îÁö Â÷·®Á¢±ÙÀÌ °¡´ÉÇϸç, Àαٿ¡ ³ë¼±¹ö½ºÁ¤·ùÀåÀÌ ¼ÒÀçÇÏ´Â µî ÀÏ¹Ý ±³Åë»ç¼ºÀº
º¸Åë½ÃµÊ.
3)°Ç¹°ÀÇ ±¸Á¶
ö±ÙÄÜÅ©¸®Æ®Á¶ °æ»ç½º¶óºêÁöºØ 20Ãþ °Ç¹°³» 1Ãþ 102È£·Î¼­
¿Üº® : ¸ôÅ»À§ ÆäÀÎÆÃ ¸¶°¨ µî.
³»º® : º®Áöµµ¹è ¹× ÀϺΠŸÀϺÙÀÓ ¸¶°¨ µî.
âȣ : ÇÏÀÌ»õ½Ã ÀÌÁßâȣÀÓ.
4)ÀÌ¿ë»óÅÂ
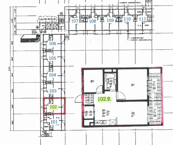
¾ÆÆÄÆ®(ÈÄ÷ ""³»ºÎ±¸Á¶µµ"" ÂüÁ¶)·Î ÀÌ¿ë ÁßÀÓ.
5)¼³ºñ³»¿ª
³­¹æ¼³ºñ, ½Â°­±â¼³ºñ, À§»ý¼³ºñ, ±Þ.¹è¼ö¼³ºñ, µµ½Ã°¡½º¼³ºñ µî µÇ¾î ÀÖÀ½.
6)ÅäÁöÀÇ Çü»ó ¹× ÀÌ¿ë»óÅÂ
ºÎÁ¤ÇüÀÇ ±¤Æò¼ö ÆòÁö·Î ¾ÆÆÄÆ® °ÇºÎÁö·Î ÀÌ¿ë ÁßÀÓ.
7)ÀÎÁ¢ µµ·Î»óŵî
´ÜÁö³» Æ÷Àåµµ·Î Á¤ºñµÇ¾î ÀÖ°í, ¿Ü°û °øµµ¿Í ¿¬°èµÇ¾î ÀÖÀ½.
8)ÅäÁöÀÌ¿ë°èȹ ¹× Á¦ÇÑ»óÅÂ
µµ½ÃÁö¿ª, Á¦3Á¾ÀϹÝÁÖ°ÅÁö¿ª, Áö±¸´ÜÀ§°èȹ±¸¿ª, ¼Ò·Î1·ù(Æø10m~12m)(±¹Áöµµ·Î)(Á¢ÇÕ), ¼Ò
·Î1·ù(Æø10m~12m)(Ư¼öµµ·Î)(Á¢ÇÕ), Áß·Î1·ù(Æø20m~25m)(º¸Á¶°£¼­µµ·Î)(Á¢ÇÕ), °¡Ãà»çÀ°Á¦
Çѱ¸¿ª, »ó´ëº¸È£±¸¿ª, »ó´ëº¸È£±¸¿ª(2013-07-18), Àý´ëº¸È£±¸¿ª(2013-07-18), °ú¹Ð¾ïÁ¦±Ç
¿ªÀÓ.
9)°øºÎ¿ÍÀÇ Â÷ÀÌ
¾øÀ½.
10)±âŸÂü°í»çÇ×(ÀÓ´ë°ü·Ê ¹× ±âŸ)
ÀÓ´ë°ü°è ¹Ì»óÀÓ.

°ÇÃ๰ÇöȲ

¼ÒÀçÁö °æ±âµµ ½ÃÈï½Ã ÀºÇൿ 538-1¹øÁö
´ëÁö¸éÀû 12584§³
(3813.33Æò)
¿¬¸éÀû 1779.75§³
(539.32Æò)
°ÇÃà¸éÀû 2340.52§³
(709.25Æò)
¿ëÀû·ü»êÁ¤
¿¬¸éÀû
946.8§³
(286.91Æò)
°ÇÆóÀ² 18.599173% ¿ëÀû·ü 7.5238397%
Áö»óÃþ¼ö 2Ãþ ÁöÇÏÃþ¼ö 1Ãþ
ÁÖ¿ëµµ °øµ¿ÁÖÅà ±¸Á¶ ö±ÙÄÜÅ©¸®Æ®±¸Á¶
Âø°øÀÏÀÚ 1993.09.02 »ç¿ë½ÂÀÎÀÏÀÚ 1995.10.06
°ÇÃ๰Ãþº°ÇöȲ [º¸±â]


±¹ÅäºÎ½Ç°Å·¡°¡ °æ±âµµ ½ÃÈï½Ã ÀºÇൿ

¡Ü ¸Å¸Å

¸éÀû(§³), ±Ý¾×(¸¸¿ø)

¡Ü Àü¼¼

¸éÀû(§³), ±Ý¾×(¸¸¿ø)

°è¾àÀÏARTÃþÀü¿ëº¸Áõ±Ý¿ù¼¼°ÇÃà
25.12.15½Å¸í1859.8823,0001995
25.12.03½Å¸í1048.8417,00001995
25.11.28½Å¸í348.8414,00001995
25.11.24½Å¸í1848.8420,0001995
25.11.08½Å¸í1748.8417,00001995
¢Ñ ´õº¸±â

µî±âºÎµîº» ¿ä¾à(°Ç¹°)

  Á¢¼öÀÏÀÚ µî±â¸ñÀû/±Ç¸®ÀÚ ±Ç¸®±Ý¾× ±âÁØ
1 2019³â10¿ù14ÀÏ
¼ÒÀ¯±Ç
¹ÚOO
¼Ò¸ê
2 2019³â11¿ù1ÀÏ
±ÙÀú´ç±Ç
ÈïOOOO
36,000,000 ¼Ò¸ê±âÁØ
3 2021³â4¿ù30ÀÏ
±ÙÀú´ç±Ç
ÈïOOOO
69,600,000 ¼Ò¸ê
4 2022³â9¿ù22ÀÏ
±ÙÀú´ç±Ç
(OOOO
58,500,000 ¼Ò¸ê
5 2023³â6¿ù27ÀÏ
°¡¾Ð·ù
(OOOO
5,249,292 ¼Ò¸ê
6 2024³â8¿ù16ÀÏ
¾Ð·ù
½ÃOO
¼Ò¸ê
7 2025³â2¿ù20ÀÏ
ÀÓÀǰæ¸Å
(OOOO
¼Ò¸ê

ÀÓÂ÷ÀÎÇöȲ (¹è´ç¿ä±¸Á¾±âÀÏ: 2025-05-12)



¸Å°¢±âÀÏ 7ÀÏÀü¿¡ °ø°íµÇ¿À´Ï È®ÀÎÇϽñ⠹ٶø´Ï´Ù.


¾ÆÆÄÆ® Á¤º¸ ½Å¸í

ÁÖ¼Ò °æ±â ½ÃÈï½Ã ÀºÇൿ 538-1
½Ã°ø»ç ½Å¸í°Ç¼³ ´ÜÁö±Ô¸ð 6°³µ¿ 460°¡±¸(2°³µ¿)¼¼´ë
³­¹æ °³º°/µµ½Ã°¡½º »ç¿ë½ÂÀÎ 1995-10
°ü¸®¼Ò 031)313-9985
Àü¿ë¸éÀû 48~59 ¼¼´ë¼ö 460°¡±¸(2°³µ¿)
´ëÁö±Ç
Çö°ü/±¸Á¶ Æíº¹µµ½Ä / ¹æ, ¿å½Ç
  • Çб³ ÀºÇà Ãʵ,ÀºÇàÁß±³,ÀºÇà°í±³,
  • ÁÖº¯½Ã¼³ ³²¼­¿ï Á¤Çü¿Ü°ú, ½ÃÈï¼¼¹«¼Ò, Æ®À©ÇÁ¶óÀÚ, ºñµÑ±â °ø¿ø, ½ÃÈïÁ¾ÇÕº¹Áöȸ°ü
  • ´ëÁß±³Åë ¹ö½º³ë¼±/111-1,31-2,Á¼®612,¸¶À»¹ö½º105,108

¿©ÀÇÁÖ°æ¸Å Á¶¾ð ÇÑ ¸¶µð

³«Âû ÈÄ¿¡ µî±âºÎ»ó ¼Ò¸êµÇÁö ¾Ê´Â ±Ç¸®´Â ¾ø½À´Ï´Ù.
´ë·«ÀûÀÎ °ËÅäÀǰßÀ̹ǷΠÀÔÂûÀü¿¡ Àü¹®°¡ÀÇ Á¶¾ðÀ» Âü°íÇØ º¸½Ã±æ ±ÇÇØµå¸³´Ï´Ù.
ü³³°ü¸®ºñ¸¦ ºÎ´ãÇÒ ¼ö ÀÖ½À´Ï´Ù.
ÃëÇÏ ¶Ç´Â Ãë¼ÒµÉ °¡´É¼º ÀÖ½À´Ï´Ù.
ÀÌ ¹°°ÇÀÇ °¨Á¤°¡°ÝÀº 209,000,000¿øÀÔ´Ï´Ù. °æ¸Å¸¦ ½ÅûÇÑ Ã¤±ÇÀÚ°¡ ¹è´ç ¹Þ¾Æ¾ß ÇÒ ±Ý¾×Àº 48,257,877¿øÀ¸·Î °¨Á¤°¡°Ý ´ëºñ »ó´çÈ÷ ÀûÀº ±Ý¾×ÀÔ´Ï´Ù. ÀÌ·± °æ¿ì, 乫°¡°¡ º¯Á¦ÇÏ¿© °æ¸Å¸¦ ÃëÇϽÃŰ°Å³ª °æ¸Å½Åûä±ÇÀÚ°¡ ¹è´ç¹ÞÀ» ±Ý¿øÀÌ ¾ø°ÔµÇ¾î À̸¥ ¹Ù "¹«À׿©¿¡ ÀÇÇÑ Ãë¼Ò"°¡ µÉ °¡´É¼ºÀÌ ÀÖ½À´Ï´Ù.
°¨Á¤ ½ÃÁ¡ÀÌ ¿À·¡µÇ¾î °¡°Ýº¯µ¿ÀÌ ÀÖÀ» ¼ö ÀÖ½À´Ï´Ù.
ÀÌ ¹°°ÇÀº 2025³â 2¿ù 20ÀÏ¿¡ °æ¸Å°¡ °³½ÃµÇ¾ú´Âµ¥ Áö±Ý ½ÃÁ¡À¸·Î ¾à 323ÀÏÀÌ ÀÌ °æ°úµÇ¾ú½À´Ï´Ù. °¨Á¤°¡°ÝÀº 323ÀÏ Àü ½ÃÁ¡¿¡¼­ Æò°¡ÇÑ °¡°ÝÀ̹ǷΠ±× »çÀÌ °¡°Ýº¯µ¿ÀÌ ÀÖÀ» ¼ö ÀÖ½À´Ï´Ù. ƯÈ÷ °¡°Ý º¯µ¿ÀÌ ½ÉÇÑ ¾ÆÆÄÆ®´Â À¯ÀÇÇÏ¼Å¾ß ÇÕ´Ï´Ù. °¨Á¤°¡°ÝÀ» ³Ê¹« ¹ÏÁö ¸¶½Ã°í ÇöÀç ½Ç¸Å¹° °¡°Ý°ú ½Ç°Å·¡°¡¸¦ È®ÀÎÇϽñ⠹ٶø´Ï´Ù.
°£È¤ °¨Á¤°¡°Ýº¸´Ù ³ô°Ô ³«ÂûµÇ´Â °æ¿ì°¡ Àִµ¥ ´ëºÎºÐ ÀÌ·± ÀÌÀ¯ÀÔ´Ï´Ù.
¡Ø ¹°°Ç Ű¿öµå : µµ½ÃÁö¿ª/ÁÖ°ÅÁö¿ª/Á¦3Á¾ÀϹÝÁÖ°ÅÁö¿ª/Áö±¸´ÜÀ§°èȹ±¸¿ª/¹ö½ºÁ¤·ùÀå/Â÷·®Á¢±ÙÀÌ °¡´É/³ë¼±¹ö½ºÁ¤·ùÀå/ö±ÙÄÜÅ©¸®Æ®Á¶/½º¶óºêÁöºØ/µµ½Ã°¡½º
Àüü ÄÁ¼³ÆÃÀÌ ºÎ´ã½º·¯¿ì½Å°¡¿ä? ±Ç¸®ºÐ¼®¸¸ ÀÇ·ÚÇϼŵµ ±¦Âú½À´Ï´Ù!
½Ç¼Ó ÀÖ°Ô Çٽɸ¸ ´ãÀº ±Ç¸®ºÐ¼® ¼­ºñ½º!! (±Ç¸®ºÐ¼® + ½Ã¼¼Á¶»ç + ³«Âû°¡ »êÁ¤ + ÀÔÂûÇ¥ ÀÛ¼º¹æ¹ý ±îÁö)
ÃÖ´ë Àüü ÄÁ¼³ÆÃ ºñ¿ëÀÇ 10% ¼öÁØ !!

ÁÖÀÇ»çÇ× (ÃÖ¼±¼øÀ§ ¼³Á¤ÀÏ: 2019.11.1. ±ÙÀú´ç±Ç ¼³Á¤)

¸Å°¢À¸·Î ¼Ò¸êµÇÁö ¾Ê´Â µî±âºÎ±Ç¸®:
¸Å°¢À¸·Î ¼³Á¤µÈ °ÍÀ¸·Î º¸´Â Áö»ó±Ç:
¡Ø¹Ì³³°ü¸®ºñ(°ø¿ë) Àμö¿©ºÎ¸¦ ÀÔÂû Àü¿¡ È®ÀÎÇϽñ⠹ٶø´Ï´Ù

 

Áö¿ªºÐ¼®

ÁöÇÏö¸í Á÷¼±°Å¸®

Çб³¸í ÀüÈ­¹øÈ£ ÁÖ¼Ò Á÷¼±°Å¸®

¹ý¿ø

¼ö¿øÁö¹æ¹ý¿ø ¾È»êÁö¿ø (140-54)°æ±âµµ ¾È»ê½Ã ´Ü¿ø±¸ ±¤´ö¼­·Î 75 (°íÀܵ¿)
´ëÇ¥ : 031)481-1114, ¹Î¿ø : 031)481-1238, ¾ß°£ : 031)481-1112
°üÇÒÁö¿ª : ¾È»ê½Ã, ±¤¸í½Ã, ½ÃÈï½Ã

µî±â¼Ò ¼ö¿øÁö¹æ¹ý¿ø ¾È»êÁö¿ø ½ÃÈïµî±â¼Ò (´ëÇ¥:1544-0773, ÆÑ½º:(031)317-8903, 8904, °æ±âµµ ½ÃÈï½Ã ¿¬¼º·Î 31 (ÇÏÁßµ¿ 872-1))
¼¼¹«¼­ ½ÃÈï¼¼¹«¼­ (´ëÇ¥:031-310-72, ÆÑ½º:02-314-3973, °æ±âµµ ½ÃÈï½Ã ¸¶À¯·Î 368 (Á¤¿Õµ¿))

Àαٳ«ÂûÅë°è

±â°£ ¸Å°¢°Ç¼ö Æò±Õ°¨Á¤°¡
Æò±Õ¸Å°¢°¡
¸Å°¢°¡À²
Æò±ÕÀ¯Âû¼ö
3°³¿ù 34°Ç 417,088,235¿ø
360,325,821¿ø
87%
1.1ȸ
6°³¿ù 67°Ç 426,417,910¿ø
367,663,656¿ø
87%
1.1ȸ
12°³¿ù 194°Ç 410,973,196¿ø
357,303,199¿ø
87%
1ȸ


º» °æ¸ÅÁ¤º¸´Â ¹ý¿øÀÚ·á¿Í ÀÏÄ¡Çϵµ·Ï ÇÏ¿´À¸³ª ±Ç¸®»çÇ׺¯µ¿, ÀÔ·ÂÂø¿À µîÀÇ ¿øÀÎÀ¸·Î »ç½Ç°ú ´Ù¸¦ ¼ö ÀÖ½À´Ï´Ù. ÀÌ¿ë¾à°ü¿¡ ÀǰЏéÃ¥Á¶°ÇÀ¸·Î Á¦°øµÊÀ» ¾Ë¸®¸ç, °æ¸ÅÀÔÂû½Ã ¹Ýµå½Ã °ü·Ã °øºÎ¸¦ ÀçÈ®ÀÎÇϽñ⠹ٶø´Ï´Ù. º¸´Ù Æí¸®ÇÑ °æ¸ÅÁ¤º¸ Á¦°øÀ» À§ÇØ Áö¼ÓÀûÀ¸·Î °³¼±ÇϰڽÀ´Ï´Ù. ÀÌ¿ëÇØ Áּż­ °¨»çÇÕ´Ï´Ù.
°ü½É¹°°ÇÀ¸·Î µî·ÏÇÕ´Ï´Ù