23
¿ÀÇǽºÅÚ
¼­¿ï³²ºÎÁö¹æ¹ý¿ø
 °¨Á¤°¡257,000,000 ¿ø
 ÃÖÀú°¡(100%) 257,000,000 ¿ø
 º¸Áõ±Ý(10%) 25,700,000 ¿ø
 Ã»±¸¾×230,000,000 ¿ø
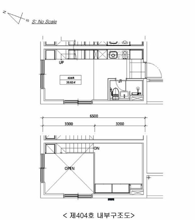
¼­¿ïƯº°½Ã ¿µµîÆ÷±¸ ¿µµîÆ÷µ¿1°¡ 107 ¿©ÀǵµÆ÷·¹µð¿ò Á¦4Ãþ Á¦404È£
»ç°Ç¹øÈ£ 2025Ÿ°æ10974
°æ¸ÅÁ¾·ùºÎµ¿»ê°­Á¦°æ¸Å
¸Å°¢´ë»óÅäÁö ¹× °Ç¹°Àϰý ¸Å°¢
¸Å°¢±âÀÏ    2026.01.07(¼ö) 10:00 ÀÔÂû 11ÀÏÀü    
ÅäÁö¸éÀû4.10§³(1.24 Æò)
°Ç¹°¸éÀû20.62§³(6.24 Æò)
乫/¼ÒÀ¯ÀÚÀÌOO / ÀÌOO
ä±ÇÀÚÁÖOOOOOOO
±è¼ºÈÆ ´ëÇ¥ÀÌ»ç
°øÀÎÁß°³»ç, ºÎµ¿»ê°ø°æ¸Å»ç, ÇѾç´ëÇб³ Á¹¾÷
Àü) ÅÂÀÎÄÁ¼³ÆÃ(ÁÖ) ´ëÇ¥ÀÌ»ç
Àü) ¿©ÀÇÁֺε¿»êÁß°³¹ýÀÎ(ÁÖ) ´ëÇ¥ÀÌ»ç
Çö) ¿©ÀÇÁÖ°æ¸Å¹ýÀÎ ´ëÇ¥ÀÌ»ç
010-2371-3237
ÆäÀ̽ººÏ Æ®À§ÅÍ ±¸±Û+
īī¿À½ºÅ丮
īī¿ÀÅå sms¹®ÀÚº¸³»±â
 

±âÀϳ»¿ª

°æ°ú ³¯Â¥ Àú°¨ ÃÖÀú°¡ °á°ú
Á¢¼öÀÏ 2025-07-14 °æ¸ÅÁ¢¼ö
~1ÀÏ 
2025-07-15 °æ¸Å°³½Ã°áÁ¤
~92ÀÏ 
2025-10-14 ¹è´ç¿ä±¸Á¾±âÀÏ
~177ÀÏ 
2026-01-07 100%
257,000,000
ÁøÇà
¹°°Ç¸í¼¼¼­ ÇöȲÁ¶»ç¼­ ¹®°ÇÁ¢¼ö ¼Û´Þ³»¿ª

°¨Á¤Æò°¡ÇöȲ

¸ñ·Ï ÁÖ¼Ò ±¸Á¶/¿ëµµ/´ëÁö±Ç ¸éÀû ºñ°í
´ëÁö±Ç
¿µµîÆ÷µ¿1°¡ 107 642.1ºÐÀÇ 4.1 4.1 §³
(1.24Æò)
°Ç¹°
¿µµîÆ÷µ¿1°¡ 107 Á¦4Ãþ Á¦404È£ ö±ÙÄÜÅ©¸®Æ®±¸Á¶ 20.62 §³
(6.24Æò)
1) À§Ä¡/µµ½ÃÁö¿ª/ÀϹݻó¾÷Áö¿ª/Áö±¸´ÜÀ§°èȹ±¸¿ª/ÁöÇÏö/³ë¼±¹ö½ºÁ¤·ùÀå/ö±ÙÄÜÅ©¸®Æ®±¸Á¶/µµ½Ã°¡½º/°¡½ºº¸ÀÏ·¯ ´õº¸±â
°¨Á¤Æò°¡ ¿äÇ×Ç¥
1)À§Ä¡ ¹× ÁÖÀ§È¯°æ
º»°ÇÀº ¼­¿ïƯº°½Ã ¿µµîÆ÷±¸ ¿µµîÆ÷µ¿1°¡ ¼ÒÀç ÁöÇÏö 1¡¤5È£¼± ȯ½Â¿ªÀÎ '½Å±æ¿ª' ¼­Ãø ÀÎ
±Ù¿¡ À§Ä¡Çϰí ÀÖÀ¸¸ç, ÁÖÀ§´Â ¾÷¹«½Ã¼³, ¿ÀÇǽºÅÚ ¹× °¢Á¾ ±Ù¸°»ýȰ½Ã¼³ µîÀÌ È¥ÀçÇÏ´Â Áö
¿ªÀ¸·Î¼­, Á¦¹Ý ÁÖÀ§È¯°æÀº º¸ÅëÀÓ.
2)±³Åë»óȲ
º»°Ç±îÁö Â÷·® Áø¡¤ÃâÀÔÀÌ °¡´ÉÇϸç, Àαٿ¡ ³ë¼±¹ö½ºÁ¤·ùÀå ¹× ÁöÇÏö 1¡¤5È£¼± ȯ½Â¿ªÀÎ
'½Å±æ¿ª', ÁöÇÏö 1È£¼± '¿µµîÆ÷¿ª' µîÀÌ ¼ÒÀçÇÏ´Â ¹Ù, ´ëÁß±³ÅëÀÇ ÀÌ¿ëÆíÀǼºÀº º¸ÅëÀÓ.
3)°Ç¹°ÀÇ ±¸Á¶
ö±ÙÄÜÅ©¸®Æ®±¸Á¶ (ö±Ù)ÄÜÅ©¸®Æ®ÁöºØ ÁöÇÏ1Ãþ Áö»ó18Ãþ °Ç¹° ³» Á¦4Ãþ Á¦404È£·Î¼­,
¿Üº® : µ¹ºÙÀÓ ¸¶°¨ µî,
âȣ : »õ½Ã âȣ µîÀÓ.
4)ÀÌ¿ë»óÅÂ
ÁýÇÕ°ÇÃ๰´ëÀå»ó '¿ÀÇǽºÅÚ'ÀÓ.
5)¼³ºñ³»¿ª
À§»ý ¹× ±Þ¡¤¹è¼ö¼³ºñ, µµ½Ã°¡½ºº¸ÀÏ·¯¿¡ ÀÇÇÑ ³­¹æ¼³ºñ, È­ÀçŽÁö¼³ºñ, ½ºÇÁ¸µÅ¬·¯¼³ºñ, ¿Á
³»¼ÒÈ­Àü¼³ºñ, CCTV¼³ºñ, ÁÖÂ÷Ÿ¿ö, ½Â°­±â¼³ºñ µîÀÌ ±¸ºñµÇ¾î ÀÖÀ½.


6)ÅäÁöÀÇ Çü»ó ¹× ÀÌ¿ë»óÅÂ
ÀÎÁ¢ ÇÊÁö ¹× µµ·Î ´ëºñ 5ÇÊÁö ÀÏ´ÜÀÇ ´ëü·Î µî°í ÆòźÇÑ ºÎÁ¤Çü ÅäÁö·Î¼­, ¿ÀÇǽºÅÚ °ÇºÎ
Áö·Î ÀÌ¿ëÁßÀÓ.
7)ÀÎÁ¢ µµ·Î»óŵî
ºÏ¼­ÃøÀ¸·Î Æø ¾à 30¹ÌÅÍ ³»¿ÜÀÇ Æ÷Àåµµ·Î¿Í Á¢ÇÔ.
8)ÅäÁöÀÌ¿ë°èȹ ¹× Á¦ÇÑ»óÅÂ
±âÈ£(1), ±âÈ£(2) °øÈ÷
µµ½ÃÁö¿ª, ÀϹݻó¾÷Áö¿ª, Áö±¸´ÜÀ§°èȹ±¸¿ª(¿µµîÆ÷Áö¿ªºÎµµ½É±Ç-µµ½Ã°èȹ°ú¹®ÀÇ), °¡Ãà»çÀ°
Á¦Çѱ¸¿ª((¿¹¿Ü : ¾Ö¿Ï ¹× ¹æ¹ü¿ë °¡Ãà)Áö¿ª°æÁ¦°ú ¹®ÀÇ)<°¡ÃàºÐ´¢ÀÇ °ü¸® ¹× À̿뿡 °üÇÑ
¹ý·ü>, ´ë°ø¹æ¾îÇùÁ¶±¸¿ª(À§Å¹°íµµ:ÇØ¹ß165m(Áö¹Ý+°ÇÃà+¿Áž µî), À°±º ¼öµµ¹æÀ§»ç·ÉºÎ(02-5
24-3146)°üÇÒ)<±º»ç±âÁö ¹× ±º»ç½Ã¼³ º¸È£¹ý>, °ú¹Ð¾ïÁ¦±Ç¿ª(¼¼ºÎ»çÇ× : ¼­¿ï½Ãû µµ½Ã°èȹ
°ú ¹®ÀÇ)<¼öµµ±ÇÁ¤ºñ°èȹ¹ý>ÀÓ.

±âÈ£(3)
µµ½ÃÁö¿ª, ÀϹݻó¾÷Áö¿ª, Áö±¸´ÜÀ§°èȹ±¸¿ª(¿µµîÆ÷Áö¿ªºÎµµ½É±Ç-µµ½Ã°èȹ°ú¹®ÀÇ), °¡Ãà»çÀ°
Á¦Çѱ¸¿ª((¿¹¿Ü : ¾Ö¿Ï ¹× ¹æ¹ü¿ë °¡Ãà)Áö¿ª°æÁ¦°ú ¹®ÀÇ)<°¡ÃàºÐ´¢ÀÇ °ü¸® ¹× À̿뿡 °üÇÑ
¹ý·ü>, ´ë°ø¹æ¾îÇùÁ¶±¸¿ª(À§Å¹°íµµ:ÇØ¹ß165m(Áö¹Ý+°ÇÃà+¿Áž µî), À°±º ¼öµµ¹æÀ§»ç·ÉºÎ(02-5
24-3146)°üÇÒ)<±º»ç±âÁö ¹× ±º»ç½Ã¼³ º¸È£¹ý>, °ú¹Ð¾ïÁ¦±Ç¿ª(¼¼ºÎ»çÇ× : ¼­¿ï½Ãû µµ½Ã°èȹ
°ú ¹®ÀÇ)<¼öµµ±ÇÁ¤ºñ°èȹ¹ý>, °ÇÃà¹ý Á¦2Á¶Á¦1Ç×Á¦11È£³ª¸ñ¿¡ µû¸¥ µµ·Î(µµ·ÎÀÏºÎÆ÷ÇÔ)ÀÓ.

±âÈ£(4), ±âÈ£(5) °øÈ÷
µµ½ÃÁö¿ª, ÀϹݻó¾÷Áö¿ª, Áö±¸´ÜÀ§°èȹ±¸¿ª(¿µµîÆ÷Áö¿ªºÎµµ½É±Ç-µµ½Ã°èȹ°ú¹®ÀÇ), µµ·Î(Á¢ÇÕ
), °¡Ãà»çÀ°Á¦Çѱ¸¿ª((¿¹¿Ü : ¾Ö¿Ï ¹× ¹æ¹ü¿ë °¡Ãà)Áö¿ª°æÁ¦°ú ¹®ÀÇ)<°¡ÃàºÐ´¢ÀÇ °ü¸® ¹× ÀÌ
¿ë¿¡ °üÇÑ ¹ý·ü>, ´ë°ø¹æ¾îÇùÁ¶±¸¿ª(À§Å¹°íµµ:ÇØ¹ß165m(Áö¹Ý+°ÇÃà+¿Áž µî), À°±º ¼öµµ¹æÀ§
»ç·ÉºÎ(02-524-3146)°üÇÒ)<±º»ç±âÁö ¹× ±º»ç½Ã¼³ º¸È£¹ý>, °ú¹Ð¾ïÁ¦±Ç¿ª(¼¼ºÎ»çÇ× : ¼­¿ï½Ã
û µµ½Ã°èȹ°ú ¹®ÀÇ)<¼öµµ±ÇÁ¤ºñ°èȹ¹ý>, °ÇÃ༱(°ÇÃà°ú ¹®ÀÇ)ÀÓ.
9)°øºÎ¿ÍÀÇ Â÷ÀÌ
-.
10)±âŸÂü°í»çÇ×(ÀÓ´ë°ü·Ê ¹× ±âŸ)
-.
Âü°í
»çÇ×
ÀÓÂ÷ÀÎ ¹× ÁÖÅÃÀÓÂ÷±Ç ½Â°èÀÎ ÁÖÅõµ½Ãº¸Áõ°ø»çÀÇ ¸Å¼öÀο¡ ´ëÇÑ ´ëÇ×·Â Æ÷±â Á¶°Ç ¸Å°¢

°ÇÃ๰ÇöȲ

¼ÒÀçÁö ¼­¿ïƯº°½Ã ¿µµîÆ÷±¸ ¿µµîÆ÷µ¿1°¡ 107¹øÁö
´ëÁö¸éÀû 642.1§³
(194.58Æò)
¿¬¸éÀû 4994.01§³
(1513.34Æò)
°ÇÃà¸éÀû 360.07§³
(109.11Æò)
¿ëÀû·ü»êÁ¤
¿¬¸éÀû
4773.16§³
(1446.41Æò)
°ÇÆóÀ² 56.08% ¿ëÀû·ü 743.37%
Áö»óÃþ¼ö 18Ãþ ÁöÇÏÃþ¼ö 1Ãþ
ÁÖ¿ëµµ ¾÷¹«½Ã¼³ ±¸Á¶ ö±ÙÄÜÅ©¸®Æ®±¸Á¶
Âø°øÀÏÀÚ 2020.01.10 »ç¿ë½ÂÀÎÀÏÀÚ 2021.06.25
°ÇÃ๰Ãþº°ÇöȲ [º¸±â]


µî±âºÎµîº» ¿ä¾à(°Ç¹°)

  Á¢¼öÀÏÀÚ µî±â¸ñÀû/±Ç¸®ÀÚ ±Ç¸®±Ý¾× ±âÁØ
1 2021³â8¿ù20ÀÏ
¼ÒÀ¯±Ç
ÀÌOO
¼Ò¸ê
2 2021³â8¿ù20ÀÏ
¾àÁ¤/±ÝÁö»çÇ×/ȯ¸ÅƯ¾à
Àμö
3 2023³â3¿ù6ÀÏ
¾Ð·ù
±¹
¼Ò¸ê±âÁØ
4 2023³â5¿ù12ÀÏ
¾Ð·ù
±¹
¼Ò¸ê
5 2023³â9¿ù8ÀÏ
ÀÓÂ÷±Ç¼³Á¤
±èOO
230,000,000 ¼Ò¸ê
6 2025³â7¿ù15ÀÏ
°­Á¦°æ¸Å
ÁÖOOOO
¼Ò¸ê

ÀÓÂ÷ÀÎÇöȲ (¹è´ç¿ä±¸Á¾±âÀÏ: 2025-10-14)



¸Å°¢±âÀÏ 7ÀÏÀü¿¡ ¸Å°¢¹°°Ç¸í¼¼¼­°¡ °ø°íµÇ¿À´Ï È®ÀÎÇϽñ⠹ٶø´Ï´Ù.

ÀÓÂ÷ÀÎ ¿ëµµ/Á¡À¯ º¸Áõ±Ý/¿ù¼¼ ´ëÇ×·Â
ÀüÀÔÀÏ/È®Á¤ÀÏ ¹è´ç¿ä±¸ ºñ°í
±èOO ÀüºÎ 230,000,000
O
2021.08.20
2021.08.04
2021.08.20
ÁÖOOOOOOO ÀüºÎ 230,000,000
O
2021.08.20.
2021.08.04.
2025.10.10. 2021.08.20.~2023.08.19.
ºñ°í
(¸Å°¢¹°°Ç
¸í¼¼¼­)
±èÅÂÇü:ÁÖÅÃÀÓÂ÷±Çµî±âÀÏÀÚ 2023. 9. 8. ÁÖÅõµ½Ãº¸Áõ°ø»ç:ÀÌ »ç°Ç ½Åûä±ÇÀÚ·Î ÁÖÅÃÀÓÂ÷±ÇÀÚ ±èÅÂÇüÀÇ ÁöÀ§¸¦ ½Â°èÇÏ¿© ±Ç¸®½Å°í ¹× ¹è´ç¿ä±¸

¿©ÀÇÁÖ°æ¸Å Á¶¾ð ÇÑ ¸¶µð

¸Å°¢¹°°Ç¸í¼¼ ºñ°í³­¿¡ ±âÀçµÈ ³»¿ëÀÔ´Ï´Ù.
±èÅÂÇü:ÁÖÅÃÀÓÂ÷±Çµî±âÀÏÀÚ 2023. 9. 8. ÁÖÅõµ½Ãº¸Áõ°ø»ç:ÀÌ »ç°Ç ½Åûä±ÇÀÚ·Î ÁÖÅÃÀÓÂ÷±ÇÀÚ ±èÅÂÇüÀÇ ÁöÀ§¸¦ ½Â°èÇÏ¿© ±Ç¸®½Å°í ¹× ¹è´ç¿ä±¸
³«Âû ÈÄ¿¡ µî±âºÎ»ó ¼Ò¸êµÇÁö ¾Ê´Â ±Ç¸®´Â ¾ø½À´Ï´Ù.
´ë·«ÀûÀÎ °ËÅäÀǰßÀ̹ǷΠÀÔÂûÀü¿¡ Àü¹®°¡ÀÇ Á¶¾ðÀ» Âü°íÇØ º¸½Ã±æ ±ÇÇØµå¸³´Ï´Ù.
¼±¼øÀ§ ÀÓÂ÷±Çµî±â°¡ µÇ¾î ÀÖ½À´Ï´Ù.
¡Ø ¹°°Ç Ű¿öµå : µµ½ÃÁö¿ª/»ó¾÷Áö¿ª/ÀϹݻó¾÷Áö¿ª/Áö±¸´ÜÀ§°èȹ±¸¿ª/¹ö½ºÁ¤·ùÀå/ÁöÇÏö/³ë¼±¹ö½ºÁ¤·ùÀå/ö±ÙÄÜÅ©¸®Æ®±¸Á¶/µµ½Ã°¡½º/°¡½ºº¸ÀÏ·¯
Àüü ÄÁ¼³ÆÃÀÌ ºÎ´ã½º·¯¿ì½Å°¡¿ä? ±Ç¸®ºÐ¼®¸¸ ÀÇ·ÚÇϼŵµ ±¦Âú½À´Ï´Ù!
½Ç¼Ó ÀÖ°Ô Çٽɸ¸ ´ãÀº ±Ç¸®ºÐ¼® ¼­ºñ½º!! (±Ç¸®ºÐ¼® + ½Ã¼¼Á¶»ç + ³«Âû°¡ »êÁ¤ + ÀÔÂûÇ¥ ÀÛ¼º¹æ¹ý ±îÁö)
ÃÖ´ë Àüü ÄÁ¼³ÆÃ ºñ¿ëÀÇ 10% ¼öÁØ !!

ÁÖÀÇ»çÇ× (ÃÖ¼±¼øÀ§ ¼³Á¤ÀÏ: 2023. 3. 6. ¾Ð·ù ¼³Á¤)

¸Å°¢À¸·Î ¼Ò¸êµÇÁö ¾Ê´Â µî±âºÎ±Ç¸®:
¸Å°¢À¸·Î ¼³Á¤µÈ °ÍÀ¸·Î º¸´Â Áö»ó±Ç:
Ưº°¸Å°¢Á¶°Ç : ä±ÇÀÚ´Â ¸Å¼öÀο¡ ´ëÇØ ¹è´ç¹ÞÁö ¸øÇÏ´Â Àܾ׿¡ ´ëÇÑ ÀÓ´ëÂ÷º¸Áõ±Ý ¹Ýȯû±¸±ÇÀ» Æ÷±âÇϰí, ÀÓÂ÷±Çµî±â¸¦ ¸» ¼ÒÇÏ´Â °ÍÀ» Á¶°ÇÀ¸·Î ¸Å°¢
¡Ø¹Ì³³°ü¸®ºñ(°ø¿ë) Àμö¿©ºÎ¸¦ ÀÔÂû Àü¿¡ È®ÀÎÇϽñ⠹ٶø´Ï´Ù

 

Áö¿ªºÐ¼®

ÁöÇÏö¸í Á÷¼±°Å¸®

Çб³¸í ÀüÈ­¹øÈ£ ÁÖ¼Ò Á÷¼±°Å¸®

¹ý¿ø

¼­¿ï³²ºÎÁö¹æ¹ý¿ø (080-88)¼­¿ïƯº°½Ã ¾çõ±¸ ½Å¿ù·Î 386(½ÅÁ¤µ¿)
´ëÇ¥ : 02)2192-1114
°üÇÒÁö¿ª : ¿µµîÆ÷±¸, °­¼­±¸, ¾çõ±¸, ±¸·Î±¸, ±Ýõ±¸

µî±â¼Ò ¼­¿ï³²ºÎÁö¹æ¹ý¿ø º»¿ø µî±â±¹ (´ëÇ¥:1544-0773, ÆÑ½º:(02)2629-7307, ¼­¿ïƯº°½Ã ¿µµîÆ÷±¸ °æÀηΠ772 (¹®·¡µ¿ 1°¡))
¼¼¹«¼­ ¿µµîÆ÷¼¼¹«¼­ (´ëÇ¥:02-2630-92, ÆÑ½º:02-2678-4909, ¼­¿ïƯº°½Ã ¿µµîÆ÷±¸ ¼±À¯µ¿1·Î 38 (´ç»êµ¿3°¡))

Àαٳ«ÂûÅë°è

±â°£ ¸Å°¢°Ç¼ö Æò±Õ°¨Á¤°¡
Æò±Õ¸Å°¢°¡
¸Å°¢°¡À²
Æò±ÕÀ¯Âû¼ö
3°³¿ù 51°Ç 283,819,412¿ø
232,242,220¿ø
82%
2.2ȸ
6°³¿ù 99°Ç 298,013,030¿ø
248,182,834¿ø
84%
1.9ȸ
12°³¿ù 156°Ç 287,825,577¿ø
242,178,476¿ø
85%
2ȸ


º» °æ¸ÅÁ¤º¸´Â ¹ý¿øÀÚ·á¿Í ÀÏÄ¡Çϵµ·Ï ÇÏ¿´À¸³ª ±Ç¸®»çÇ׺¯µ¿, ÀÔ·ÂÂø¿À µîÀÇ ¿øÀÎÀ¸·Î »ç½Ç°ú ´Ù¸¦ ¼ö ÀÖ½À´Ï´Ù. ÀÌ¿ë¾à°ü¿¡ ÀǰЏéÃ¥Á¶°ÇÀ¸·Î Á¦°øµÊÀ» ¾Ë¸®¸ç, °æ¸ÅÀÔÂû½Ã ¹Ýµå½Ã °ü·Ã °øºÎ¸¦ ÀçÈ®ÀÎÇϽñ⠹ٶø´Ï´Ù. º¸´Ù Æí¸®ÇÑ °æ¸ÅÁ¤º¸ Á¦°øÀ» À§ÇØ Áö¼ÓÀûÀ¸·Î °³¼±ÇϰڽÀ´Ï´Ù. ÀÌ¿ëÇØ Áּż­ °¨»çÇÕ´Ï´Ù.
°ü½É¹°°ÇÀ¸·Î µî·ÏÇÕ´Ï´Ù