100
¾ÆÆÄÆ®
ºÎ»êÁö¹æ¹ý¿ø ºÎ»ê¼­ºÎÁö¿ø
 °¨Á¤°¡276,000,000 ¿ø
 ÃÖÀú°¡(70%) 193,200,000 ¿ø
 º¸Áõ±Ý(10%) 19,320,000 ¿ø
 Ã»±¸¾×12,551,927 ¿ø
ºÎ»ê±¤¿ª½Ã »çÇϱ¸ ÇϽŹø¿µ·Î 400, 115µ¿ 20Ãþ2003È£ (Çϴܵ¿,Çϴܵ¿¿¡½ºÄÉÀÌºä¾ÆÆÄÆ®)
ºÎ»ê±¤¿ª½Ã »çÇϱ¸ Çϴܵ¿ 1217-1
»ç°Ç¹øÈ£ 2024Ÿ°æ111078
Áߺ¹»ç°Çº´ÇÕ 2025Ÿ°æ2225,
°æ¸ÅÁ¾·ùºÎµ¿»ê°­Á¦°æ¸Å
¸Å°¢´ë»óÅäÁö ¹× °Ç¹°Àϰý ¸Å°¢
¸Å°¢±âÀÏ    2026.02.24(È­) 10:00 ÀÔÂû 35ÀÏÀü    
ÅäÁö¸éÀû25.31§³(7.66 Æò)
°Ç¹°¸éÀû59.67§³(18.05 Æò)
乫/¼ÒÀ¯ÀÚ¹éOO / ¼ÕOO¿Ü 1¸í
ä±ÇÀÚºñOOOOOO OOOO¿Ü 1¸í
±è¼ºÈÆ ´ëÇ¥ÀÌ»ç
°øÀÎÁß°³»ç, ºÎµ¿»ê°ø°æ¸Å»ç, ÇѾç´ëÇб³ Á¹¾÷
Àü) ÅÂÀÎÄÁ¼³ÆÃ(ÁÖ) ´ëÇ¥ÀÌ»ç
Àü) ¿©ÀÇÁֺε¿»êÁß°³¹ýÀÎ(ÁÖ) ´ëÇ¥ÀÌ»ç
Çö) ¿©ÀÇÁÖ°æ¸Å¹ýÀÎ ´ëÇ¥ÀÌ»ç
010-2371-3237
ÆäÀ̽ººÏ Æ®À§ÅÍ ±¸±Û+
īī¿À½ºÅ丮
īī¿ÀÅå sms¹®ÀÚº¸³»±â
 

±âÀϳ»¿ª

°æ°ú ³¯Â¥ Àú°¨ ÃÖÀú°¡ °á°ú
Á¢¼öÀÏ 2024-10-14 °æ¸ÅÁ¢¼ö
~3ÀÏ 
2024-10-17 °æ¸Å°³½Ã°áÁ¤
~87ÀÏ 
2025-01-09 ¹è´ç¿ä±¸Á¾±âÀÏ
~449ÀÏ 
2026-01-06 100%
276,000,000
À¯Âû
~498ÀÏ 
2026-02-24 70%
193,200,000
ÁøÇà
¹°°Ç¸í¼¼¼­ ÇöȲÁ¶»ç¼­ ¹®°ÇÁ¢¼ö ¼Û´Þ³»¿ª

°¨Á¤Æò°¡ÇöȲ

¸ñ·Ï ÁÖ¼Ò ±¸Á¶/¿ëµµ/´ëÁö±Ç ¸éÀû ºñ°í
´ëÁö±Ç
Çϴܵ¿ 1217-1 61113.8ºÐÀÇ 25.31 25.31 §³
(7.66Æò)
°Ç¹°
Çϴܵ¿ 1217-1 115µ¿ 20Ãþ2003È£ ö±ÙÄÜÅ©¸®Æ®Á¶ 59.6715 §³
(18.05Æò)
1) À§Ä¡/Á¦2Á¾ÀϹÝÁÖ°ÅÁö¿ª/½Ã³»¹ö½ºÁ¤·ùÀå/ö±ÙÄÜÅ©¸®Æ®±¸Á¶/°æ»ç½½·¡ºêÁöºØ/µµ½Ã°¡½º/°³º°³­¹æ ´õº¸±â
°¨Á¤Æò°¡ ¿äÇ×Ç¥
1)À§Ä¡ ¹× ÁÖÀ§È¯°æ
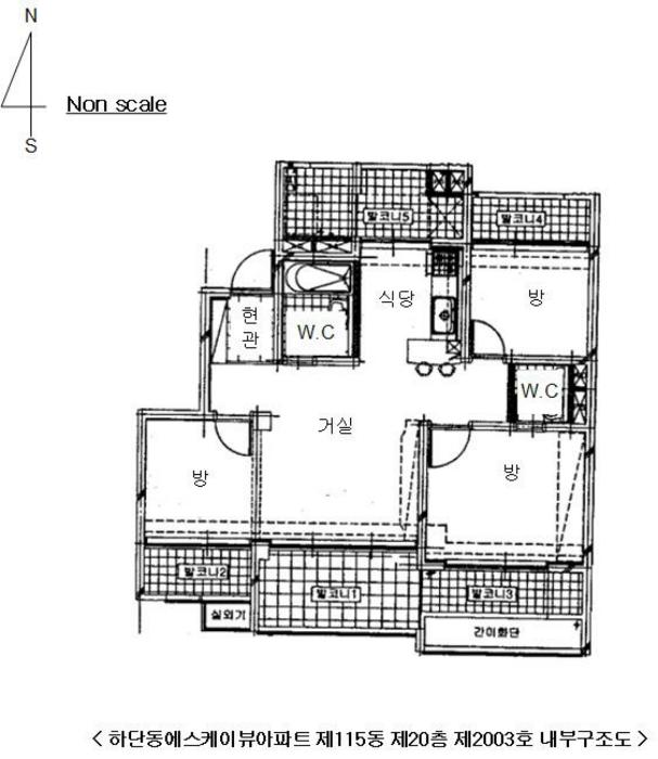
º»°ÇÀº ºÎ»ê±¤¿ª½Ã »çÇϱ¸ Çϴܵ¿ ¼ÒÀç "À»¼÷µµÃʵîÇб³" ºÏÃø Àαٿ¡ À§Ä¡ÇÏ´Â Çϴܵ¿¿¡½ºÄÉÀÌºä¾ÆÆÄÆ® 115µ¿ 20Ãþ 2003È£·Î¼­, ¼­ÃøÀ¸·Î´Â ³«µ¿°­ÀÌ, µ¿ÃøÀ¸·Î´Â ÀÓ¾ß µîÀÌ ¼ÒÀçÇϸç, ÁÖÀ§´Â °øµ¿ÁÖÅÃ, Çб³, ±Ù¸°»ýȰ½Ã¼³ µîÀ¸·Î Çü¼ºµÈ Áö¿ªÀ¸·Î¼­ Á¦¹Ý ÁÖÀ§È¯°æÀº º¸ÅëÀÔ´Ï´Ù.
2)±³Åë»óȲ
º»°Ç±îÁö Á¦¹Ý Â÷·® Á¢±Ù °¡´ÉÇϸç, Àαٿ¡ ½Ã³»¹ö½ºÁ¤·ùÀåÀÌ ¼ÒÀçÇÏ´Â µî Á¦¹Ý ±³Åë»çÁ¤Àº º¸ÅëÀÔ´Ï´Ù.
3)°Ç¹°ÀÇ ±¸Á¶
ö±ÙÄÜÅ©¸®Æ®±¸Á¶ °æ»ç½½·¡ºêÁöºØ 115µ¿ 25Ãþ °Ç¹°³» 20Ãþ 2003È£·Î¼­,
- ¿Ü º®: Ä¡À庮µ¹ ¹× ¸ôÅ»À§ ÆäÀÎÆÃ ¸¶°¨,
- ³» º®: º®Áö¸¶°¨ µî,
- â È£: ¼¦½ÃâÀÔ´Ï´Ù.
4)ÀÌ¿ë»óÅÂ
¾ÆÆÄÆ®·Î ÀÌ¿ëÁßÀÔ´Ï´Ù.
5)¼³ºñ³»¿ª
À§»ý¼³ºñ, ±Þ¡¤¹è¼ö¼³ºñ, ½Â°­±â¼³ºñ ¹× µµ½Ã°¡½º¿¡ ÀÇÇÑ °³º°³­¹æ¼³ºñ µîÀÌ µÇ¾î ÀÖ½À´Ï´Ù.

6)ÅäÁöÀÇ Çü»ó ¹× ÀÌ¿ë»óÅÂ
ÀÎÁ¢Áö ´ëºñ ´ëü·Î µî°íÆòźÇÑ ºÎÁ¤ÇüÀÇ ÅäÁö·Î¼­ ¾ÆÆÄÆ®ºÎÁö·Î ÀÌ¿ëÁßÀÔ´Ï´Ù.
7)ÀÎÁ¢ µµ·Î»óŵî
µ¿ÃøÀ¸·Î ³ëÆø ¾à35¹ÌÅÍ, ¼­ÃøÀ¸·Î ³ëÆø ¾à15¹ÌÅÍÀÇ µµ·Î¿¡ °¢°¢ Á¢Çϸç, ´ÜÁö³» °¡·Î¸Á Á¤ºñ µÇ¾î ÀÖ½À´Ï´Ù.
8)ÅäÁöÀÌ¿ë°èȹ ¹× Á¦ÇÑ»óÅÂ
Á¦2Á¾ÀϹÝÁÖ°ÅÁö¿ª, ´ë·Î1·ù(Æø 35m-40m)(Á¢ÇÕ), Áß·Î2·ù(Æø 15m-20m)(Áß·Î2-346)(Á¢ÇÕ), »ó´ëº¸È£±¸¿ª<±³À°È¯°æ º¸È£¿¡ °üÇÑ ¹ý·ü>, »ó´ëº¸È£±¸¿ª(2013-08-28)<±³À°È¯°æ º¸È£¿¡ °üÇÑ ¹ý·ü>, Àý´ëº¸È£±¸¿ª<±³À°È¯°æ º¸È£¿¡ °üÇÑ ¹ý·ü>, ¿ª»ç¹®È­È¯°æº¸Á¸Áö¿ª(2020-02-05)<¹®È­À¯»êÀÇ º¸Á¸ ¹× Ȱ¿ë¿¡ °üÇÑ ¹ý·ü>ÀÔ´Ï´Ù.
9)°øºÎ¿ÍÀÇ Â÷ÀÌ
¾ø½À´Ï´Ù.
10)±âŸÂü°í»çÇ×(ÀÓ´ë°ü·Ê ¹× ±âŸ)
ÀÓ´ë°ü°è ¹Ì»óÀ̸ç, ±âŸ»çÇ× ¾ø½À´Ï´Ù.
Âü°í
»çÇ×

º»°Ç ¸Å°¢ÁöºÐ ƯÁ¤µÇ

°ÇÃ๰ÇöȲ

¼ÒÀçÁö ºÎ»ê±¤¿ª½Ã »çÇϱ¸ Çϴܵ¿ 1217-1¹øÁö
´ëÁö¸éÀû   ¿¬¸éÀû 8051.33§³
(2439.8Æò)
°ÇÃà¸éÀû 418.476§³
(126.81Æò)
¿ëÀû·ü»êÁ¤
¿¬¸éÀû
8051.33§³
(2439.8Æò)
°ÇÆóÀ²   ¿ëÀû·ü  
Áö»óÃþ¼ö 25Ãþ ÁöÇÏÃþ¼ö  
ÁÖ¿ëµµ °øµ¿ÁÖÅà ±¸Á¶ ö±ÙÄÜÅ©¸®Æ®±¸Á¶
Âø°øÀÏÀÚ 2001.11.01 »ç¿ë½ÂÀÎÀÏÀÚ 2004.05.31
°ÇÃ๰Ãþº°ÇöȲ [º¸±â]


±¹ÅäºÎ½Ç°Å·¡°¡ ºÎ»ê±¤¿ª½Ã »çÇϱ¸ Çϴܵ¿

¡Ü ¸Å¸Å

¸éÀû(§³), ±Ý¾×(¸¸¿ø)

¡Ü Àü¼¼

¸éÀû(§³), ±Ý¾×(¸¸¿ø)

°è¾àÀÏARTÃþÀü¿ëº¸Áõ±Ý¿ù¼¼°ÇÃà
26.01.09Çϴܵ¿¿¡½ºÄÉÀ̺ä2174.20563,000802004
26.01.08Çϴܵ¿¿¡½ºÄÉÀ̺ä2384.773734,8002004
26.01.08Çϴܵ¿¿¡½ºÄÉÀ̺ä1884.773738,5002004
26.01.04Çϴܵ¿¿¡½ºÄÉÀ̺ä959.671526,0002004
26.01.03Çϴܵ¿¿¡½ºÄÉÀ̺ä10124.231252,8002004
¢Ñ ´õº¸±â

µî±âºÎµîº» ¿ä¾à(°Ç¹°)

  Á¢¼öÀÏÀÚ µî±â¸ñÀû/±Ç¸®ÀÚ ±Ç¸®±Ý¾× ±âÁØ
1 2015³â1¿ù15ÀÏ
¼ÒÀ¯±Ç
¼ÕOO
¼Ò¸ê
2 2015³â1¿ù15ÀÏ
¼ÒÀ¯±Ç
¹éOO
¼Ò¸ê
3 2019³â7¿ù30ÀÏ
±ÙÀú´ç±Ç
(OOOO
135,850,000 ¼Ò¸ê±âÁØ
4 2024³â6¿ù21ÀÏ
°¡¾Ð·ù
ºñOOOO
12,042,989 ¼Ò¸ê
5 2024³â7¿ù22ÀÏ
°¡¾Ð·ù
(OOOO
7,314,690 ¼Ò¸ê
6 2024³â8¿ù16ÀÏ
°¡¾Ð·ù
(OOOO
13,258,892 ¼Ò¸ê
7 2024³â10¿ù17ÀÏ
°­Á¦°æ¸Å
ºñOOOO
¼Ò¸ê
8 2025³â6¿ù20ÀÏ
ÀÓÀǰæ¸Å
ÇÑOOOO
¼Ò¸ê

ÀÓÂ÷ÀÎÇöȲ (¹è´ç¿ä±¸Á¾±âÀÏ: 2025-01-09)


Á¶»çµÈ ÀÓÂ÷³»¿ªÀÌ ¾ø½À´Ï´Ù


¿©ÀÇÁÖ°æ¸Å Á¶¾ð ÇÑ ¸¶µð

³«Âû ÈÄ¿¡ µî±âºÎ»ó ¼Ò¸êµÇÁö ¾Ê´Â ±Ç¸®´Â ¾ø½À´Ï´Ù.
´ë·«ÀûÀÎ °ËÅäÀǰßÀ̹ǷΠÀÔÂûÀü¿¡ Àü¹®°¡ÀÇ Á¶¾ðÀ» Âü°íÇØ º¸½Ã±æ ±ÇÇØµå¸³´Ï´Ù.
ü³³°ü¸®ºñ¸¦ ºÎ´ãÇÒ ¼ö ÀÖ½À´Ï´Ù.
Áߺ¹°æ¸Å »ç°ÇÀÔ´Ï´Ù.
°æ¸Å ½ÅûÀÚÀÇ Ã»±¸±Ý¾×, Áï ±× °æ¸Å½Åû ä±ÇÀÚ°¡ ¹è´ç ¹Þ¾Æ¾ß ÇÒ ±Ý¾×(12,551,927¿ø)ÀÌ °¨Á¤°¡°Ý ´ëºñ ÀûÀº ±Ý¾×ÀÎ °æ¿ì¿¡´Â, ÀϹÝÀûÀ¸·Î °æ¸Å°¡ ÃëÇϵǰųª Ãë¼Ò µÉ °¡´É¼ºÀÌ ÀÖ½À´Ï´Ù. ±×·±µ¥ ÀÌ °æ¸Å´Â ´Ù¸¥ °æ¸Å½Åû(º´ÇÕ 2025Ÿ°æ2225,)ÀÌ µé¾î ¿Í¼­ °æ¸Å°¡ Áߺ¹µÇ¾î ÁøÇàµÇ¹Ç·Î ÃëÇÏ, Ãë¼Ò¾øÀÌ ÁøÇàµÉ ¿©Áö°¡ ¸¹½À´Ï´Ù.
°¨Á¤ ½ÃÁ¡ÀÌ ¿À·¡µÇ¾î °¡°Ýº¯µ¿ÀÌ ÀÖÀ» ¼ö ÀÖ½À´Ï´Ù.
ÀÌ ¹°°ÇÀº 2024³â 10¿ù 17ÀÏ¿¡ °æ¸Å°¡ °³½ÃµÇ¾ú´Âµ¥ Áö±Ý ½ÃÁ¡À¸·Î ¾à 460ÀÏÀÌ ÀÌ °æ°úµÇ¾ú½À´Ï´Ù. °¨Á¤°¡°ÝÀº 460ÀÏ Àü ½ÃÁ¡¿¡¼­ Æò°¡ÇÑ °¡°ÝÀ̹ǷΠ±× »çÀÌ °¡°Ýº¯µ¿ÀÌ ÀÖÀ» ¼ö ÀÖ½À´Ï´Ù. ƯÈ÷ °¡°Ý º¯µ¿ÀÌ ½ÉÇÑ ¾ÆÆÄÆ®´Â À¯ÀÇÇÏ¼Å¾ß ÇÕ´Ï´Ù. °¨Á¤°¡°ÝÀ» ³Ê¹« ¹ÏÁö ¸¶½Ã°í ÇöÀç ½Ç¸Å¹° °¡°Ý°ú ½Ç°Å·¡°¡¸¦ È®ÀÎÇϽñ⠹ٶø´Ï´Ù.
°£È¤ °¨Á¤°¡°Ýº¸´Ù ³ô°Ô ³«ÂûµÇ´Â °æ¿ì°¡ Àִµ¥ ´ëºÎºÐ ÀÌ·± ÀÌÀ¯ÀÔ´Ï´Ù.
¡Ø ¹°°Ç Ű¿öµå : ÁÖ°ÅÁö¿ª/Á¦2Á¾ÀϹÝÁÖ°ÅÁö¿ª/¹ö½ºÁ¤·ùÀå/½Ã³»¹ö½ºÁ¤·ùÀå/ö±ÙÄÜÅ©¸®Æ®±¸Á¶/½½·¡ºêÁöºØ/°æ»ç½½·¡ºêÁöºØ/µµ½Ã°¡½º/°³º°³­¹æ
Àüü ÄÁ¼³ÆÃÀÌ ºÎ´ã½º·¯¿ì½Å°¡¿ä? ±Ç¸®ºÐ¼®¸¸ ÀÇ·ÚÇϼŵµ ±¦Âú½À´Ï´Ù!
½Ç¼Ó ÀÖ°Ô Çٽɸ¸ ´ãÀº ±Ç¸®ºÐ¼® ¼­ºñ½º!! (±Ç¸®ºÐ¼® + ½Ã¼¼Á¶»ç + ³«Âû°¡ »êÁ¤ + ÀÔÂûÇ¥ ÀÛ¼º¹æ¹ý ±îÁö)
ÃÖ´ë Àüü ÄÁ¼³ÆÃ ºñ¿ëÀÇ 10% ¼öÁØ !!

ÁÖÀÇ»çÇ× (ÃÖ¼±¼øÀ§ ¼³Á¤ÀÏ: 2019. 7. 30. ±ÙÀú´ç±Ç ¼³Á¤)

¸Å°¢À¸·Î ¼Ò¸êµÇÁö ¾Ê´Â µî±âºÎ±Ç¸®:
¸Å°¢À¸·Î ¼³Á¤µÈ °ÍÀ¸·Î º¸´Â Áö»ó±Ç:
¡Ø¹Ì³³°ü¸®ºñ(°ø¿ë) Àμö¿©ºÎ¸¦ ÀÔÂû Àü¿¡ È®ÀÎÇϽñ⠹ٶø´Ï´Ù

 

Áö¿ªºÐ¼®

ÁöÇÏö¸í Á÷¼±°Å¸®

Çб³¸í ÀüÈ­¹øÈ£ ÁÖ¼Ò Á÷¼±°Å¸®

¹ý¿ø

ºÎ»êÁö¹æ¹ý¿ø ¼­ºÎÁö¿ø (467-26)ºÎ»ê±¤¿ª½Ã °­¼­±¸ ¸íÁö±¹Á¦7·Î 77 (¸íÁöµ¿)
´ëÇ¥ : 051)812-1114~5
°üÇÒÁö¿ª : ¼­±¸, ºÏ±¸, »ç»ó±¸, »çÇϱ¸, °­¼­±¸

µî±â¼Ò ºÎ»êÁö¹æ¹ý¿ø ¼­ºÎÁö¿ø µî±â°ú (´ëÇ¥:1544-0773, ÆÑ½º:(051)812-1350, ºÎ»ê °­¼­±¸ ¸íÁö±¹Á¦ 7·Î 77 (¸íÁöµ¿ 2261))
¼¼¹«¼­ ¼­ºÎ»ê¼¼¹«¼­ (´ëÇ¥:051-250-62, ÆÑ½º:051-241-7004, ºÎ»ê±¤¿ª½Ã ¼­±¸ ´ë¿µ·Î 10(¼­´ë½Åµ¿2°¡ 288-2))

Àαٳ«ÂûÅë°è

±â°£ ¸Å°¢°Ç¼ö Æò±Õ°¨Á¤°¡
Æò±Õ¸Å°¢°¡
¸Å°¢°¡À²
Æò±ÕÀ¯Âû¼ö
3°³¿ù 29°Ç 192,831,034¿ø
146,396,134¿ø
75%
1.8ȸ
6°³¿ù 58°Ç 210,984,483¿ø
161,870,198¿ø
75%
1.6ȸ
12°³¿ù 111°Ç 200,937,838¿ø
151,863,568¿ø
75%
1.7ȸ


º» °æ¸ÅÁ¤º¸´Â ¹ý¿øÀÚ·á¿Í ÀÏÄ¡Çϵµ·Ï ÇÏ¿´À¸³ª ±Ç¸®»çÇ׺¯µ¿, ÀÔ·ÂÂø¿À µîÀÇ ¿øÀÎÀ¸·Î »ç½Ç°ú ´Ù¸¦ ¼ö ÀÖ½À´Ï´Ù. ÀÌ¿ë¾à°ü¿¡ ÀǰЏéÃ¥Á¶°ÇÀ¸·Î Á¦°øµÊÀ» ¾Ë¸®¸ç, °æ¸ÅÀÔÂû½Ã ¹Ýµå½Ã °ü·Ã °øºÎ¸¦ ÀçÈ®ÀÎÇϽñ⠹ٶø´Ï´Ù. º¸´Ù Æí¸®ÇÑ °æ¸ÅÁ¤º¸ Á¦°øÀ» À§ÇØ Áö¼ÓÀûÀ¸·Î °³¼±ÇϰڽÀ´Ï´Ù. ÀÌ¿ëÇØ Áּż­ °¨»çÇÕ´Ï´Ù.
°ü½É¹°°ÇÀ¸·Î µî·ÏÇÕ´Ï´Ù