1248
´Ù¼¼´ë(ºô¶ó)
¼­¿ïºÏºÎÁö¹æ¹ý¿ø
 °¨Á¤°¡259,000,000 ¿ø
 ÃÖÀú°¡(51%) 132,608,000 ¿ø
 º¸Áõ±Ý(10%) 13,260,800 ¿ø
 Ã»±¸¾×250,000,000 ¿ø
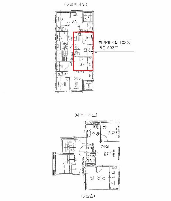
¼­¿ïƯº°½Ã Áß¶û±¸ ¸é¸ñµ¿ 1343-3 û¸í¿¡¹öºô 103µ¿ 5Ãþ 502È£
»ç°Ç¹øÈ£ 2025Ÿ°æ12463
°æ¸ÅÁ¾·ùºÎµ¿»ê°­Á¦°æ¸Å
¸Å°¢´ë»óÅäÁö ¹× °Ç¹°Àϰý ¸Å°¢
¸Å°¢±âÀÏ    2026.04.28(È­) 10:00 ÀÔÂû 22ÀÏÀü    
ÅäÁö¸éÀû25.62§³(7.75 Æò)
°Ç¹°¸éÀû32.01§³(9.68 Æò)
乫/¼ÒÀ¯ÀÚÀ±OO / À±OO
ä±ÇÀÚÁÖOOOOOOO
±è¼ºÈÆ ´ëÇ¥ÀÌ»ç
°øÀÎÁß°³»ç, ºÎµ¿»ê°ø°æ¸Å»ç, ÇѾç´ëÇб³ Á¹¾÷
Àü) ÅÂÀÎÄÁ¼³ÆÃ(ÁÖ) ´ëÇ¥ÀÌ»ç
Àü) ¿©ÀÇÁֺε¿»êÁß°³¹ýÀÎ(ÁÖ) ´ëÇ¥ÀÌ»ç
Çö) ¿©ÀÇÁÖ°æ¸Å¹ýÀÎ ´ëÇ¥ÀÌ»ç
010-2371-3237
ÆäÀ̽ººÏ Æ®À§ÅÍ ±¸±Û+
īī¿À½ºÅ丮
īī¿ÀÅå sms¹®ÀÚº¸³»±â
 

±âÀϳ»¿ª

°æ°ú ³¯Â¥ Àú°¨ ÃÖÀú°¡ °á°ú
Á¢¼öÀÏ 2025-04-29 °æ¸ÅÁ¢¼ö
~1ÀÏ 
2025-04-30 °æ¸Å°³½Ã°áÁ¤
~73ÀÏ 
2025-07-11 ¹è´ç¿ä±¸Á¾±âÀÏ
~252ÀÏ 
2026-01-06 100%
259,000,000
À¯Âû
~301ÀÏ 
2026-02-24 80%
207,200,000
À¯Âû
~329ÀÏ 
2026-03-24 64%
165,760,000
À¯Âû
~364ÀÏ 
2026-04-28 51%
132,608,000
ÁøÇà
¹°°Ç¸í¼¼¼­ ÇöȲÁ¶»ç¼­ ¹®°ÇÁ¢¼ö ¼Û´Þ³»¿ª

°¨Á¤Æò°¡ÇöȲ

¸ñ·Ï ÁÖ¼Ò ±¸Á¶/¿ëµµ/´ëÁö±Ç ¸éÀû ºñ°í
´ëÁö±Ç
¸é¸ñµ¿ 1343-3 1103.1ºÐÀÇ 25.62 25.62 §³
(7.75Æò)
°Ç¹°
¸é¸ñµ¿ 1343-3 103µ¿ 5Ãþ 502È£ ö°ñÄÜÅ©¸®Æ®±¸Á¶ 32.01 §³
(9.68Æò)
1) À§Ä¡/µµ½ÃÁö¿ª/Á¦1Á¾ÀϹÝÁÖ°ÅÁö¿ª/ÁÖÂ÷Àå/³ë¼±¹ö½º Á¤·ùÀå/Æò½½·¡ºêÁöºØ/µµ½Ã°¡½º/°¡½ºº¸ÀÏ·¯/¹æ2/È­Àå½Ç1/ÁÖ¹æ1 ´õº¸±â
°¨Á¤Æò°¡ ¿äÇ×Ç¥
1)À§Ä¡ ¹× ÁÖÀ§È¯°æ
º»°ÇÀº ¼­¿ïƯº°½Ã Áß¶û±¸ ¸é¸ñµ¿ ¼ÒÀç ""¿ë¸¶ÁßÇб³"" ³²µ¿Ãø Àαٿ¡ À§Ä¡Çϴ û¸í¿¡¹öºô 103µ¿ 5Ãþ 501È£(ÀüÀ¯¸éÀû 32.01.§³)·Î¼­ µ¿ÃøÀ¸·Î »ê¸²Áö°¡ ÀÚ¸®Çϰí ÀÖÀ¸¸ç ÁÖÀ§´Â ÀϺΠÁß.¼Ò±Ô¸ðÁ¡Æ÷ ¹× ±Ù¸°»ýȰ½Ã¼³, °¢±ÞÇб³, °ü°ø¼­ ¹× °ø°ø½Ã¼³, ¾ÆÆÄÆ® µî ±âÁ¸ÁÖÅà ¹× °øµ¿ÁÖÅà µîÀÌ È¥ÀçÇÏ´Â Áö¿ªÀ¸·Î¼­ Á¦¹ÝÁÖ°Åȯ°æÀº º¸Åë½ÃµÊ.
2)±³Åë»óȲ
º»°Ç±îÁö Â÷·® ÃâÀÔ °¡´ÉÇϸç, Àαٿ¡ ³ë¼±¹ö½º Á¤·ùÀå ¹× ¿ë¸¶»ê¿ª(7È£¼±)ÀÌ À§Ä¡ÇÏ¸ç °Å¸® ¹× ¿îÇàºóµµ µîÀ¸·Î º¸¾Æ ´ëÁß±³Åë»çÁ¤Àº ¹«³­ÇÔ.
3)°Ç¹°ÀÇ ±¸Á¶
ö°ñÄÜÅ©¸®Æ®±¸Á¶ Æò½½·¡ºêÁöºØ 5Ãþ °Ç¹°³» 5Ãþ 502È£·Î¼­
¿Üº® : Ä¡À庮µ¹½×±â¸¶°¨
³»º® : º®Áöµµ¹è ¹× ÁÖ¹æÀϺΠŸÀϸ¶°¨
¹Ù´Ú : Ç÷θµº¸µå¸¶°¨
âȣ : ÇÏÀ̼¦½Ã ÀÌÁßâȣÀÓ.
4)ÀÌ¿ë»óÅÂ
µµ½ÃÇü»ýȰÁÖÅÃ:(¹æ2, °Å½Ç1, ÁÖ¹æ1, ¿å½Ç°âÈ­Àå½Ç1, ¹ßÄÚ´Ï1)ÀÓ.
5)¼³ºñ³»¿ª
µµ½Ã°¡½ºº¸ÀÏ·¯¿¡ ÀÇÇÑ ³­¹æ½Ã¼³À̰í, À§»ý.±Þ¹è¼ö ¹× ±ÞÅÁ¼³ºñ, È­ÀçŽÁö±â¼³ºñ, ½Â°­±â¼³ºñ, 1Ãþ ÇÊ·ÎÆ¼ ÁÖÂ÷Àå½Ã¼³ ±¸ºñµÊ.
6)ÅäÁöÀÇ Çü»ó ¹× ÀÌ¿ë»óÅÂ
µ¿Ãø ¿Ï°æ»çÁö¿¡ Á¶¼ºµÈ »ç´Ù¸®ÇüÀÇ ÅäÁö·Î °ÇºÎÁö(µµ½ÃÇü»ýȰÁÖÅÃ(´ÜÁöÇü´Ù¼¼´ëÁÖÅÃ))·Î ÀÌ¿ëÁßÀÓ.
7)ÀÎÁ¢ µµ·Î»óŵî
º»°Ç µ¿ÃøÀ¸·Î ³ëÆø ¾à 5¹ÌÅÍ ³»¿ÜÀÇ ¾Æ½ºÆÈÆ® Æ÷Àåµµ·Î¿Í Á¢ÇÔ.
8)ÅäÁöÀÌ¿ë°èȹ ¹× Á¦ÇÑ»óÅÂ
µµ½ÃÁö¿ª, Á¦1Á¾ÀϹÝÁÖ°ÅÁö¿ª °¡Ãà»çÀ°Á¦Çѱ¸¿ª(¹®ÀÇ:º¸°ÇÇàÁ¤°ú)<°¡ÃàºÐ´¢ÀÇ °ü¸® ¹× À̿뿡 °üÇÑ ¹ý·ü>, ´ë°ø¹æ¾îÇùÁ¶±¸¿ª(À§Å¹°íµµ:ÇØ¹ß107m(Áö¹Ý+°ÇÃà+¿Ážµî),À°±º¼öµµ¹æÀ§»ç·ÉºÎ(02-524-3146)°üÇÒ)<±º»ç±âÁö ¹× ±º»ç½Ã¼³ º¸È£¹ý>, °ú¹Ð¾ïÁ¦±Ç¿ª<¼öµµ±ÇÁ¤ºñ°èȹ¹ý>
9)°øºÎ¿ÍÀÇ Â÷ÀÌ
ÇØ´ç»çÇ× ¾øÀ½.
10)±âŸÂü°í»çÇ×(ÀÓ´ë°ü·Ê ¹× ±âŸ)
ÀÓ´ë°ü°è´Â ¹Ì»óÀÓ.
Âü°í
»çÇ×

* °øµ¿ÃâÀÔ¹®ÀÌ Àá°Ü ÀÖ°í, È£ÃâÇÏ¿´À¸³ª ÀÀ´äÀÌ ¾øÀ½. * ¿ìÆíÇÔ¿¡ ¾È³»¹®À» ³Ö¾îµÎ¾úÀ¸³ª ¾Æ¹« ¿¬¶ôÀÌ ¾ø¾î Á¡À¯ÀÚ È®ÀÎ ºÒ´ÉÀÓ.

°ÇÃ๰ÇöȲ

¼ÒÀçÁö ¼­¿ïƯº°½Ã Áß¶û±¸ ¸é¸ñµ¿ 1343-3¹øÁö
´ëÁö¸éÀû   ¿¬¸éÀû 539.8§³
(163.58Æò)
°ÇÃà¸éÀû 194.45§³
(58.92Æò)
¿ëÀû·ü»êÁ¤
¿¬¸éÀû
539.8§³
(163.58Æò)
°ÇÆóÀ²   ¿ëÀû·ü  
Áö»óÃþ¼ö 5Ãþ ÁöÇÏÃþ¼ö  
ÁÖ¿ëµµ °øµ¿ÁÖÅà ±¸Á¶ ö°ñÄÜÅ©¸®Æ®±¸Á¶
Âø°øÀÏÀÚ 2015.06.04 »ç¿ë½ÂÀÎÀÏÀÚ 2015.11.10
°ÇÃ๰Ãþº°ÇöȲ [º¸±â]


±¹ÅäºÎ½Ç°Å·¡°¡ ¼­¿ïƯº°½Ã Áß¶û±¸ ¸é¸ñµ¿

¡Ü ¸Å¸Å

¸éÀû(§³), ±Ý¾×(¸¸¿ø)

¡Ü Àü¼¼

¸éÀû(§³), ±Ý¾×(¸¸¿ø)

°è¾àÀϰǹ°¸íĪÃþ¿¬¸éÀûº¸Áõ±Ý¿ù¼¼°ÇÃà
26.03.31ºê¸®Æ°ºô¸®Áö343.7718,10002008
26.03.31ºê¸®Æ°ºô¸®Áö343.7718,10002008
26.03.31ºê¸®Æ°ºô¸®Áö343.7718,10002008
26.03.31Á¦ÀÌ·º½ººô529.9823,70002021
26.03.31Çϳª¸Ç¼Ç274.4624,90002002
¢Ñ ´õº¸±â

µî±âºÎµîº» ¿ä¾à(°Ç¹°)

  Á¢¼öÀÏÀÚ µî±â¸ñÀû/±Ç¸®ÀÚ ±Ç¸®±Ý¾× ±âÁØ
1 2020³â9¿ù18ÀÏ
¼ÒÀ¯±Ç
˱OO
¼Ò¸ê
2 2022³â12¿ù7ÀÏ
ÀÓÂ÷±Ç¼³Á¤
ȫOO
250,000,000 Àμö
3 2025³â4¿ù30ÀÏ
°­Á¦°æ¸Å
ÁÖOOOO
¼Ò¸ê±âÁØ

ÀÓÂ÷ÀÎÇöȲ (¹è´ç¿ä±¸Á¾±âÀÏ: 2025-07-11)

ÀÓÂ÷ÀÎ ¿ëµµ/Á¡À¯ º¸Áõ±Ý/¿ù¼¼ ´ëÇ×·Â
ÀüÀÔÀÏ/È®Á¤ÀÏ ¹è´ç¿ä±¸ ºñ°í
¹ÚOO 103µ¿502È£ ¹Ì»ó
[¿ù]¹Ì»ó
O
2024.12.23
¹Ì»ó
¹Ì»ó
ÁÖOOOOOOO 5Ãþ502È£ÀüºÎ 250,000,000
[¿ù]¾øÀ½
O
2020.09.04
2020.08.18
2025.7.10. 2020.09.05 ~2024.04.09
È«OO 5Ãþ502È£ÀüºÎ 250,000,000
[¿ù]¹Ì»ó
O
2020.09.04
2020.08.18
¹Ì»ó
ºñ°í
(¸Å°¢¹°°Ç
¸í¼¼¼­)
ÁÖÅõµ½Ãº¸Áõ°ø»ç:°æ¸Å½Åûä±ÇÀڷμ­ ÀÓÂ÷±ÇÀÚ È«¼ºÈ£ÀÇ ÀÓ´ëÂ÷º¸Áõ±Ý¹Ýȯä±Ç ´ëÀ§º¯Á¦ ¾ç¼öÀÎÀÓ(±Ç¸®½Â°è½Å°í ¹× ¹è´ç¿ä±¸ ÇÔ)

¿©ÀÇÁÖ°æ¸Å Á¶¾ð ÇÑ ¸¶µð

¸Å°¢¹°°Ç¸í¼¼ ºñ°í³­¿¡ ±âÀçµÈ ³»¿ëÀÔ´Ï´Ù.
ÁÖÅõµ½Ãº¸Áõ°ø»ç:°æ¸Å½Åûä±ÇÀڷμ­ ÀÓÂ÷±ÇÀÚ È«¼ºÈ£ÀÇ ÀÓ´ëÂ÷º¸Áõ±Ý¹Ýȯä±Ç ´ëÀ§º¯Á¦ ¾ç¼öÀÎÀÓ(±Ç¸®½Â°è½Å°í ¹× ¹è´ç¿ä±¸ ÇÔ)
³«Âû ÈÄ¿¡ µî±âºÎ»ó ¼Ò¸êµÇÁö ¾Ê´Â ±Ç¸®´Â ¾ø½À´Ï´Ù.
´ë·«ÀûÀÎ °ËÅäÀǰßÀ̹ǷΠÀÔÂûÀü¿¡ Àü¹®°¡ÀÇ Á¶¾ðÀ» Âü°íÇØ º¸½Ã±æ ±ÇÇØµå¸³´Ï´Ù.
¼±¼øÀ§ ÀÓÂ÷±Çµî±â°¡ µÇ¾î ÀÖ½À´Ï´Ù.
´Ù¼öÀÇ ÀÓÂ÷ÀÎÀÌ Á¶»ç, ½Å°íµÇ¾î ÀÖ½À´Ï´Ù.
¸Å°¢¹°°Ç¸í¼¼¼­ ¹× ÇöȲÁ¶»ç¼­¿¡ 3¸íÀÇ ÀÓÂ÷ÀÎÀÌ ³ªÅ¸³ª ÀÖ½À´Ï´Ù. ÀÓÂ÷ÀÎÀÌ ¸¹Àº °æ¿ì ¸íµµ¿¡ ¾î·Á¿òÀÌ ÀÖÀ¸´Ï Àü¹®°¡¿Í ÇùÀÇÇÏ¿© ÁøÇàÇÏ½Ã±æ ±ÇÇØ µå¸³´Ï´Ù.
°¨Á¤ ½ÃÁ¡ÀÌ ¿À·¡µÇ¾î °¡°Ýº¯µ¿ÀÌ ÀÖÀ» ¼ö ÀÖ½À´Ï´Ù.
ÀÌ ¹°°ÇÀº 2025³â 4¿ù 30ÀÏ¿¡ °æ¸Å°¡ °³½ÃµÇ¾ú´Âµ¥ Áö±Ý ½ÃÁ¡À¸·Î ¾à 341ÀÏÀÌ ÀÌ °æ°úµÇ¾ú½À´Ï´Ù. °¨Á¤°¡°ÝÀº 341ÀÏ Àü ½ÃÁ¡¿¡¼­ Æò°¡ÇÑ °¡°ÝÀ̹ǷΠ±× »çÀÌ °¡°Ýº¯µ¿ÀÌ ÀÖÀ» ¼ö ÀÖ½À´Ï´Ù. ƯÈ÷ °¡°Ý º¯µ¿ÀÌ ½ÉÇÑ ¾ÆÆÄÆ®´Â À¯ÀÇÇÏ¼Å¾ß ÇÕ´Ï´Ù. °¨Á¤°¡°ÝÀ» ³Ê¹« ¹ÏÁö ¸¶½Ã°í ÇöÀç ½Ç¸Å¹° °¡°Ý°ú ½Ç°Å·¡°¡¸¦ È®ÀÎÇϽñ⠹ٶø´Ï´Ù.
°£È¤ °¨Á¤°¡°Ýº¸´Ù ³ô°Ô ³«ÂûµÇ´Â °æ¿ì°¡ Àִµ¥ ´ëºÎºÐ ÀÌ·± ÀÌÀ¯ÀÔ´Ï´Ù.
¡Ø ¹°°Ç Ű¿öµå : µµ½ÃÁö¿ª/ÁÖ°ÅÁö¿ª/Á¦1Á¾ÀϹÝÁÖ°ÅÁö¿ª/ÁÖÂ÷Àå/³ë¼±¹ö½º Á¤·ùÀå/Æò½½·¡ºêÁöºØ/½½·¡ºêÁöºØ/µµ½Ã°¡½º/°¡½ºº¸ÀÏ·¯/¹æ1/¹æ2/È­Àå½Ç1/ÁÖ¹æ1
Àüü ÄÁ¼³ÆÃÀÌ ºÎ´ã½º·¯¿ì½Å°¡¿ä? ±Ç¸®ºÐ¼®¸¸ ÀÇ·ÚÇϼŵµ ±¦Âú½À´Ï´Ù!
½Ç¼Ó ÀÖ°Ô Çٽɸ¸ ´ãÀº ±Ç¸®ºÐ¼® ¼­ºñ½º!! (±Ç¸®ºÐ¼® + ½Ã¼¼Á¶»ç + ³«Âû°¡ »êÁ¤ + ÀÔÂûÇ¥ ÀÛ¼º¹æ¹ý ±îÁö)
ÃÖ´ë Àüü ÄÁ¼³ÆÃ ºñ¿ëÀÇ 10% ¼öÁØ !!

ÁÖÀÇ»çÇ× (ÃÖ¼±¼øÀ§ ¼³Á¤ÀÏ: 2025.04.30. °æ¸Å°³½Ã°áÁ¤ ¼³Á¤)

¸Å°¢À¸·Î ¼Ò¸êµÇÁö ¾Ê´Â µî±âºÎ±Ç¸®:
¸Å°¢À¸·Î ¼³Á¤µÈ °ÍÀ¸·Î º¸´Â Áö»ó±Ç:
- ÁÖÅõµ½Ãº¸Áõ°ø»ç(¾çµµÀü:ÀÓÂ÷±ÇÀÚ È«¼ºÈ£)·ÎºÎÅÍ ¡®ÀÓÂ÷º¸Áõ±Ý¿¡ ´ëÇÏ¿© ¿ì¼±º¯Á¦±Ç¸¸ ÁÖÀåÇÏ°í ´ëÇ×·ÂÀº Æ÷±âÇϸç, Àü¾×À» º¯Á¦¹ÞÁö ¸øÇÏ´õ¶óµµ ¸Å¼öÀο¡ ´ëÇÑ ÀÜÁ¸ ÀÓ´ëÂ÷º¸Áõ±Ý ¹Ýȯû±¸±ÇÀ» Æ÷±âÇϰí ÀÓÂ÷±Çµî±â¸¦ ¸»¼ÒÇÏ´Â °Í¿¡ µ¿ÀÇÇϰڴ١¯´Â ³» ¿ëÀÇ È®¾à¼­°¡ Á¦ÃâµÊ(2025.07.29.ÀÚ)
¡Ø¹Ì³³°ü¸®ºñ(°ø¿ë) Àμö¿©ºÎ¸¦ ÀÔÂû Àü¿¡ È®ÀÎÇϽñ⠹ٶø´Ï´Ù

 

Áö¿ªºÐ¼®

ÁöÇÏö¸í Á÷¼±°Å¸®

Çб³¸í ÀüÈ­¹øÈ£ ÁÖ¼Ò Á÷¼±°Å¸®

¹ý¿ø

¼­¿ïºÏºÎÁö¹æ¹ý¿ø (013-22)¼­¿ïƯº°½Ã µµºÀ±¸ ¸¶µé·Î749 (µµºÀ2µ¿ 626)
´ëÇ¥ : 02)910-3114
°üÇÒÁö¿ª : °­ºÏ±¸, ³ë¿ø±¸, µµºÀ±¸, µ¿´ë¹®±¸, ¼ººÏ±¸, Áß¶û±¸

µî±â¼Ò ¼­¿ïºÏºÎÁö¹æ¹ý¿ø º»¿ø µî±â±¹ (´ëÇ¥:1544-0773, ÆÑ½º:(02)2030-2330, ¼­¿ïƯº°½Ã µµºÀ±¸ ³ëÇØ·Î 325 (⵿ 337¹øÁö))
¼¼¹«¼­ Áß¶û ¼¼¹«¼­ (´ëÇ¥:02-2170-02, ÆÑ½º:02-493-7315, ¼­¿ïƯº°½Ã Áß¶û±¸ ¸Á¿ì·Î 176(»óºÀµ¿ 137-1))

Àαٳ«ÂûÅë°è

±â°£ ¸Å°¢°Ç¼ö Æò±Õ°¨Á¤°¡
Æò±Õ¸Å°¢°¡
¸Å°¢°¡À²
Æò±ÕÀ¯Âû¼ö


º» °æ¸ÅÁ¤º¸´Â ¹ý¿øÀÚ·á¿Í ÀÏÄ¡Çϵµ·Ï ÇÏ¿´À¸³ª ±Ç¸®»çÇ׺¯µ¿, ÀÔ·ÂÂø¿À µîÀÇ ¿øÀÎÀ¸·Î »ç½Ç°ú ´Ù¸¦ ¼ö ÀÖ½À´Ï´Ù. ÀÌ¿ë¾à°ü¿¡ ÀǰЏéÃ¥Á¶°ÇÀ¸·Î Á¦°øµÊÀ» ¾Ë¸®¸ç, °æ¸ÅÀÔÂû½Ã ¹Ýµå½Ã °ü·Ã °øºÎ¸¦ ÀçÈ®ÀÎÇϽñ⠹ٶø´Ï´Ù. º¸´Ù Æí¸®ÇÑ °æ¸ÅÁ¤º¸ Á¦°øÀ» À§ÇØ Áö¼ÓÀûÀ¸·Î °³¼±ÇϰڽÀ´Ï´Ù. ÀÌ¿ëÇØ Áּż­ °¨»çÇÕ´Ï´Ù.
°ü½É¹°°ÇÀ¸·Î µî·ÏÇÕ´Ï´Ù