12
ÁÖÅÃ
ûÁÖÁö¹æ¹ý¿ø ÃæÁÖÁö¿ø
 °¨Á¤°¡252,339,200 ¿ø
 ÃÖÀú°¡(100%) 252,339,200 ¿ø
 º¸Áõ±Ý(10%) 25,233,920 ¿ø
 Ã»±¸¾×41,788,000 ¿ø
ÃæÃ»ºÏµµ ÃæÁֽà µ¿·®¸é ¿ë±³¸® 210-11
»ç°Ç¹øÈ£ 2025Ÿ°æ30384
°æ¸ÅÁ¾·ùºÎµ¿»êÀÓÀǰæ¸Å
¸Å°¢´ë»óÅäÁö ¹× °Ç¹°Àϰý¸Å°¢
¸Å°¢±âÀÏ    2026.01.05(¿ù) 10:00 ÀÔÂû 13ÀÏÀü    
ÅäÁö¸éÀû412.00§³(124.63 Æò)
°Ç¹°¸éÀû92.10§³(27.86 Æò)
乫/¼ÒÀ¯ÀÚ¼­OO / ¼­OO
ä±ÇÀÚÁÖOOO OOOOO
±è¼ºÈÆ ´ëÇ¥ÀÌ»ç
°øÀÎÁß°³»ç, ºÎµ¿»ê°ø°æ¸Å»ç, ÇѾç´ëÇб³ Á¹¾÷
Àü) ÅÂÀÎÄÁ¼³ÆÃ(ÁÖ) ´ëÇ¥ÀÌ»ç
Àü) ¿©ÀÇÁֺε¿»êÁß°³¹ýÀÎ(ÁÖ) ´ëÇ¥ÀÌ»ç
Çö) ¿©ÀÇÁÖ°æ¸Å¹ýÀÎ ´ëÇ¥ÀÌ»ç
010-2371-3237
ÆäÀ̽ººÏ Æ®À§ÅÍ ±¸±Û+
īī¿À½ºÅ丮
īī¿ÀÅå sms¹®ÀÚº¸³»±â
 

±âÀϳ»¿ª

°æ°ú ³¯Â¥ Àú°¨ ÃÖÀú°¡ °á°ú
Á¢¼öÀÏ 2025-02-21 °æ¸ÅÁ¢¼ö
~3ÀÏ 
2025-02-24 °æ¸Å°³½Ã°áÁ¤
~95ÀÏ 
2025-05-27 ¹è´ç¿ä±¸Á¾±âÀÏ
~318ÀÏ 
2026-01-05 100%
252,339,200
ÁøÇà
¹°°Ç¸í¼¼¼­ ÇöȲÁ¶»ç¼­ ¹®°ÇÁ¢¼ö ¼Û´Þ³»¿ª

°¨Á¤Æò°¡ÇöȲ

¸ñ·Ï ÁÖ¼Ò ±¸Á¶/¿ëµµ/´ëÁö±Ç ¸éÀû ºñ°í
ÅäÁö
¿ë±³¸® 210-11 ´ë 412 §³
(124.63Æò)
°Ç¹°
¿ë±³¸® 210-11 Áö1Ãþ â°í ö±ÙÄÜÅ©¸®Æ®±¸Á¶ 15 §³
(4.54Æò)
¿ë±³¸® 210-11 1Ãþ ´Üµ¶ÁÖÅà ö±ÙÄÜÅ©¸®Æ®±¸Á¶ 77.1 §³
(23.32Æò)
1) À§Ä¡/µµ½ÃÁö¿ª/ÀÚ¿¬³ìÁöÁö¿ª/ö±ÙÄÜÅ©¸®Æ®±¸Á¶/¹æ2/È­Àå½Ç2 ´õº¸±â
°¨Á¤Æò°¡ ¿äÇ×Ç¥
1)À§Ä¡ ¹× ÁÖÀ§È¯°æ
º»°ÇÀº ÃæÃ»ºÏµµ ÃæÁֽà µ¿·®¸é ¿ë±³¸® ¼ÒÀç ""µ¿·®¹®È­¸¶À»"" ³»¿¡ À§Ä¡Çϰí ÀÖ´Â ºÎµ¿»ê
(ÁÖÅÃ)À̸ç, ÁÖÀ§´Â ÁÖÅôÜÁö,³ó°æÁö,³ªÁö,³ó°æÁö,ÀÓ¾ß µîÀ¸·Î Çü¼ºµÈ Áö¿ªÀ¸·Î¼­ ÁÖ°Å¿ëÀ¸
·Î¼­ÀÇ ÁÖÀ§È¯°æÀº º¸ÅëÀÓ.
2)±³Åë»óȲ
º»°Ç ÅäÁö±îÁö Â÷·® Á¢±Ù ¿ëÀÌÇϸç,ÀαÙÀ¸·Î ´ëÁß±³ÅëÀÌ ¿îÇàµÇ°í ÀÖ¾î ±³Åë»óȲÀº º¸ÅëÀÓ.
3)ÇüÅ ¹× ÀÌ¿ë»óÅÂ
º»°Ç ÅäÁö ÇüÅ´ ¼¼ÀåÇüÀ¸·Î¼­ ÀαÙÁö¼¼´Â ´ëü·Î ÆòźÇϸç,´Üµ¶ÁÖÅà ºÎÁö·Î ÀÌ¿ëÇϰí ÀÖÀ½
4)ÀÎÁ¢ µµ·Î»óÅÂ
º»°Ç ÅäÁö(±âÈ£1) µ¿Ãø¿¡ ¼Ò·Î¿Í Á¢Çϰí ÀÖÀ½(º»°Ç ÅäÁö µ¿Ãø¿¡ Á¢Çϰí ÀÖ´Â ÅäÁöÀÇ Áö¸ñÀº
""±¸°Å""·Î¼­ º¸ÇàÀÚ Àεµ·Î ÀÌ¿ëÇϰí ÀÖÀ½)
5)ÅäÁöÀÌ¿ë°èȹ ¹× Á¦ÇÑ»óÅÂ
µµ½ÃÁö¿ª,ÀÚ¿¬³ìÁöÁö¿ª,°¡Ãà»çÀ°Á¦Çѱ¸¿ª(¸ðµç°¡Ãà»çÀ°Á¦ÇÑÁö¿ª)(°¡ÃàºÐ´¢ÀÇ °ü¸® ¹× À̿뿡
°üÇÑ ¹ý·ü),ºñÇà¾ÈÀüÁ¦6±¸¿ª(Àü¼ú)(±º»ç±âÁö ¹× ±º»ç½Ã¼³ º¸È£¹ý),±º¿ëºñÇàÀå ¼ÒÀ½´ëÃ¥±¸¿ª
Á¦3Á¾±¸¿ª(2021-12-29)(±º¿ëºñÇàÀå.±º»ç°ÝÀå ¼ÒÀ½ ¹æÁö ¹× ÇÇÇØº¸»ó¿¡ °üÇÑ ¹ý·ü),ÇѰ­Æó±â
¹°¸Å¸³½Ã¼³¼³Ä¡Á¦ÇÑÁö¿ª(ÇѰ­¼ö°è »ó¼ö¿ø ¼öÁú°³¼± ¹× ÁÖ¹ÎÁö¿ø µî¿¡ °üÇÑ ¹ý·ü)
6)Á¦½Ã¸ñ·Ï ¿ÜÀÇ ¹°°Ç
¾ø À½
7)°øºÎ¿ÍÀÇ Â÷ÀÌ
¾ø À½
8)±âŸÂü°í»çÇ×(ÀÓ´ë°ü·Ê ¹× ±âŸ)
""°Ç¹°°¨Á¤Æò°¡¿äÇ×Ç¥"" ÂüÁ¶
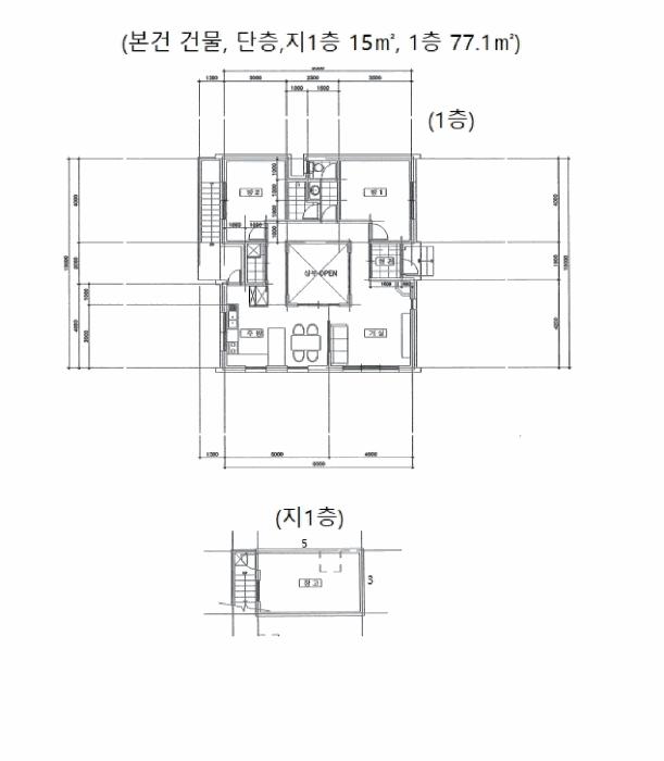
1)°Ç¹°ÀÇ ±¸Á¶
¡Øº»°Ç °Ç¹°(±âÈ£2)Àº 2016.08.31ÀÚ·Î »ç¿ë½ÂÀεǾúÀ¸¸ç, ö±ÙÄÜÅ©¸®Æ®±¸Á¶ ö±ÙÄÜÅ©¸®Æ®Áö
ºØ ´ÜÃþ°Ç ´Üµ¶ÁÖÅÃÀ¸·Î¼­


¿Üº®: º®µ¹Çü °­ÆÇ ºÙÀÓ µî ¸¶°¨.
³»º®: º®Áöµµ¹è µî ¸¶°¨.
âȣ: ¼¦½Ãâ



2)ÀÌ¿ë»óÅÂ
º»°Ç °Ç¹°(±âÈ£2)Àº ´Üµ¶ÁÖÅÃÀ¸·Î ÀÌ¿ëÇϰí ÀÖÀ½
Áö1Ãþ: â°í
1Ãþ: ¹æ2,°Å½Ç,ÁÖ¹æ/½Ä´ç,È­Àå½Ç2,Çö°ü
3)¼³ºñ³»¿ª
º»°Ç °Ç¹°Àº ³­¹æ¼³ºñ,À§»ý¼³ºñ,±Þ¹è¼ö¼³ºñ,ž籤¹ßÀü¼³ºñ µîÀÌ µÇ¾î ÀÖÀ½.
4)ºÎÇÕ¹° ¹× Á¾¹°
¾ø À½
5)°øºÎ¿ÍÀÇ Â÷ÀÌ
¾ø À½
6)±âŸÂü°í»çÇ×(ÀÓ´ë°ü·Ê ¹× ±âŸ)
Àüü ÀÓ´ë°ü°è ¹Ì»óÀÓ.
Âü°í
»çÇ×
- Àϰý¸Å°¢ - Áö1Ãþ ³»·Á°¡´Â °è´Ü½Ç Áö»ó ¿Üº®(¾à7.2§³), Çö°ü ¾Õ ¸ñÀ絥ũ(¾à18.8§³), ž籤¼³ºñ(¸ðµâ8°³), Áö»óÀÇ Á¶°æ¼ö(¼Ò³ª¹« 5ÁÖ, ´Üdz³ª¹« µî) ¸Å°¢¿¡ Æ÷ÇÔ
¸ñÀû¹° 1 ³» Á¦½Ã¿Ü žç

°ÇÃ๰ÇöȲ

¼ÒÀçÁö ÃæÃ»ºÏµµ ÃæÁֽà µ¿·®¸é ¿ë±³¸® 210-11¹øÁö
´ëÁö¸éÀû 412§³
(124.85Æò)
¿¬¸éÀû 92.1§³
(27.91Æò)
°ÇÃà¸éÀû 79.08§³
(23.96Æò)
¿ëÀû·ü»êÁ¤
¿¬¸éÀû
77.1§³
(23.36Æò)
°ÇÆóÀ² 19.19% ¿ëÀû·ü 18.71%
Áö»óÃþ¼ö 1Ãþ ÁöÇÏÃþ¼ö 1Ãþ
ÁÖ¿ëµµ ´Üµ¶ÁÖÅà ±¸Á¶ ö±ÙÄÜÅ©¸®Æ®±¸Á¶
Âø°øÀÏÀÚ 2016.04.04 »ç¿ë½ÂÀÎÀÏÀÚ 2016.08.31
°ÇÃ๰Ãþº°ÇöȲ [º¸±â]


±¹ÅäºÎ½Ç°Å·¡°¡ ÃæÃ»ºÏµµ ÃæÁֽà µ¿·®¸é

¡Ü ¸Å¸Å

¸éÀû(§³), ±Ý¾×(¸¸¿ø)

¡Ü Àü¼¼

¸éÀû(§³), ±Ý¾×(¸¸¿ø)

°è¾àÀÏÀ¯Çü¿¬¸éÀû´ëÁö±Ý¾×°ÇÃà
24.03.19´Üµ¶58.83509,3001949
24.03.04´Üµ¶75.924915,5001972
24.01.25´Üµ¶61.58728,5001956
24.01.02´Üµ¶106.6752111,0001994

µî±âºÎµîº» ¿ä¾à(ÅäÁö)

  Á¢¼öÀÏÀÚ µî±â¸ñÀû/±Ç¸®ÀÚ ±Ç¸®±Ý¾× ±âÁØ
1 2013³â5¿ù20ÀÏ
¼ÒÀ¯±Ç
¼­OO
¼Ò¸ê
2 2016³â9¿ù8ÀÏ
±ÙÀú´ç±Ç
³óOOOO
159,900,000 ¼Ò¸ê±âÁØ
3 2016³â9¿ù8ÀÏ
Áö»ó±Ç
ÁßOOOO
¼Ò¸ê
4 2024³â11¿ù27ÀÏ
±ÙÀú´ç±Ç
(OOOO
60,000,000 ¼Ò¸ê
5 2025³â2¿ù24ÀÏ
ÀÓÀǰæ¸Å
(OOOO
¼Ò¸ê
6 2025³â3¿ù28ÀÏ
°¡¾Ð·ù
ÃæOOOO
12,000,000 ¼Ò¸ê
7 2025³â4¿ù8ÀÏ
°¡¾Ð·ù
½ÅOOOO
185,900,000 ¼Ò¸ê
8 2025³â4¿ù29ÀÏ
°¡¾Ð·ù
³óOOOO
40,156,106 ¼Ò¸ê
9 2025³â5¿ù12ÀÏ
°¡¾Ð·ù
³óOOOO
227,551,276 ¼Ò¸ê
10 2025³â10¿ù14ÀÏ
°¡¾Ð·ù
ûOOOO
280,000,000 ¼Ò¸ê

µî±âºÎµîº» ¿ä¾à(°Ç¹°)

  Á¢¼öÀÏÀÚ µî±â¸ñÀû/±Ç¸®ÀÚ ±Ç¸®±Ý¾× ±âÁØ
1 2016³â9¿ù8ÀÏ
¼ÒÀ¯±Ç
¼­OO
¼Ò¸ê
2 2016³â9¿ù8ÀÏ
±ÙÀú´ç±Ç
³óOOOO
159,900,000 ¼Ò¸ê±âÁØ
3 2024³â11¿ù27ÀÏ
±ÙÀú´ç±Ç
(OOOO
60,000,000 ¼Ò¸ê
4 2025³â2¿ù24ÀÏ
ÀÓÀǰæ¸Å
(OOOO
¼Ò¸ê
5 2025³â3¿ù28ÀÏ
°¡¾Ð·ù
ÃæOOOO
12,000,000 ¼Ò¸ê
6 2025³â4¿ù8ÀÏ
°¡¾Ð·ù
½ÅOOOO
185,900,000 ¼Ò¸ê
7 2025³â4¿ù29ÀÏ
°¡¾Ð·ù
³óOOOO
40,156,106 ¼Ò¸ê
8 2025³â5¿ù12ÀÏ
°¡¾Ð·ù
³óOOOO
227,551,276 ¼Ò¸ê
9 2025³â10¿ù14ÀÏ
°¡¾Ð·ù
ûOOOO
280,000,000 ¼Ò¸ê

ÀÓÂ÷ÀÎÇöȲ (¹è´ç¿ä±¸Á¾±âÀÏ: 2025-05-27)



¸Å°¢±âÀÏ 7ÀÏÀü¿¡ °ø°íµÇ¿À´Ï È®ÀÎÇϽñ⠹ٶø´Ï´Ù.


¿©ÀÇÁÖ°æ¸Å Á¶¾ð ÇÑ ¸¶µð

³«Âû ÈÄ¿¡ µî±âºÎ»ó ¼Ò¸êµÇÁö ¾Ê´Â ±Ç¸®´Â ¾ø½À´Ï´Ù.
´ë·«ÀûÀÎ °ËÅäÀǰßÀ̹ǷΠÀÔÂûÀü¿¡ Àü¹®°¡ÀÇ Á¶¾ðÀ» Âü°íÇØ º¸½Ã±æ ±ÇÇØµå¸³´Ï´Ù.
ÃëÇÏ ¶Ç´Â Ãë¼ÒµÉ °¡´É¼º ÀÖ½À´Ï´Ù.
ÀÌ ¹°°ÇÀÇ °¨Á¤°¡°ÝÀº 252,339,200¿øÀÔ´Ï´Ù. °æ¸Å¸¦ ½ÅûÇÑ Ã¤±ÇÀÚ°¡ ¹è´ç ¹Þ¾Æ¾ß ÇÒ ±Ý¾×Àº 41,788,000¿øÀ¸·Î °¨Á¤°¡°Ý ´ëºñ »ó´çÈ÷ ÀûÀº ±Ý¾×ÀÔ´Ï´Ù. ÀÌ·± °æ¿ì, 乫°¡°¡ º¯Á¦ÇÏ¿© °æ¸Å¸¦ ÃëÇϽÃŰ°Å³ª °æ¸Å½Åûä±ÇÀÚ°¡ ¹è´ç¹ÞÀ» ±Ý¿øÀÌ ¾ø°ÔµÇ¾î À̸¥ ¹Ù "¹«À׿©¿¡ ÀÇÇÑ Ãë¼Ò"°¡ µÉ °¡´É¼ºÀÌ ÀÖ½À´Ï´Ù.
°¨Á¤ ½ÃÁ¡ÀÌ ¿À·¡µÇ¾î °¡°Ýº¯µ¿ÀÌ ÀÖÀ» ¼ö ÀÖ½À´Ï´Ù.
ÀÌ ¹°°ÇÀº 2025³â 2¿ù 24ÀÏ¿¡ °æ¸Å°¡ °³½ÃµÇ¾ú´Âµ¥ Áö±Ý ½ÃÁ¡À¸·Î ¾à 302ÀÏÀÌ ÀÌ °æ°úµÇ¾ú½À´Ï´Ù. °¨Á¤°¡°ÝÀº 302ÀÏ Àü ½ÃÁ¡¿¡¼­ Æò°¡ÇÑ °¡°ÝÀ̹ǷΠ±× »çÀÌ °¡°Ýº¯µ¿ÀÌ ÀÖÀ» ¼ö ÀÖ½À´Ï´Ù. ƯÈ÷ °¡°Ý º¯µ¿ÀÌ ½ÉÇÑ ¾ÆÆÄÆ®´Â À¯ÀÇÇÏ¼Å¾ß ÇÕ´Ï´Ù. °¨Á¤°¡°ÝÀ» ³Ê¹« ¹ÏÁö ¸¶½Ã°í ÇöÀç ½Ç¸Å¹° °¡°Ý°ú ½Ç°Å·¡°¡¸¦ È®ÀÎÇϽñ⠹ٶø´Ï´Ù.
°£È¤ °¨Á¤°¡°Ýº¸´Ù ³ô°Ô ³«ÂûµÇ´Â °æ¿ì°¡ Àִµ¥ ´ëºÎºÐ ÀÌ·± ÀÌÀ¯ÀÔ´Ï´Ù.
¡Ø ¹°°Ç Ű¿öµå : µµ½ÃÁö¿ª/³ìÁöÁö¿ª/ÀÚ¿¬³ìÁöÁö¿ª/ö±ÙÄÜÅ©¸®Æ®±¸Á¶/¹æ2/È­Àå½Ç2
Àüü ÄÁ¼³ÆÃÀÌ ºÎ´ã½º·¯¿ì½Å°¡¿ä? ±Ç¸®ºÐ¼®¸¸ ÀÇ·ÚÇϼŵµ ±¦Âú½À´Ï´Ù!
½Ç¼Ó ÀÖ°Ô Çٽɸ¸ ´ãÀº ±Ç¸®ºÐ¼® ¼­ºñ½º!! (±Ç¸®ºÐ¼® + ½Ã¼¼Á¶»ç + ³«Âû°¡ »êÁ¤ + ÀÔÂûÇ¥ ÀÛ¼º¹æ¹ý ±îÁö)
ÃÖ´ë Àüü ÄÁ¼³ÆÃ ºñ¿ëÀÇ 10% ¼öÁØ !!

ÁÖÀÇ»çÇ× (ÃÖ¼±¼øÀ§ ¼³Á¤ÀÏ: 2016.9.8. ±ÙÀú´ç±Ç ¼³Á¤)

¸Å°¢À¸·Î ¼Ò¸êµÇÁö ¾Ê´Â µî±âºÎ±Ç¸®:
¸Å°¢À¸·Î ¼³Á¤µÈ °ÍÀ¸·Î º¸´Â Áö»ó±Ç:
- Àϰý¸Å°¢ - Áö1Ãþ ³»·Á°¡´Â °è´Ü½Ç Áö»ó ¿Üº®(¾à7.2§³), Çö°ü ¾Õ ¸ñÀ絥ũ(¾à18.8§³), ž籤¼³ºñ(¸ðµâ8°³), Áö»óÀÇ Á¶°æ¼ö(¼Ò³ª¹« 5ÁÖ, ´Ü dz³ª¹« µî) ¸Å°¢¿¡ Æ÷ÇÔ
¡Ø¹Ì³³°ü¸®ºñ(°ø¿ë) Àμö¿©ºÎ¸¦ ÀÔÂû Àü¿¡ È®ÀÎÇϽñ⠹ٶø´Ï´Ù

 

Áö¿ªºÐ¼®

ÁöÇÏö¸í Á÷¼±°Å¸®

Çб³¸í ÀüÈ­¹øÈ£ ÁÖ¼Ò Á÷¼±°Å¸®

¹ý¿ø

ûÁÖÁö¹æ¹ý¿ø ÃæÁÖÁö¿ø (273-57)ÃæÃ»ºÏµµ ÃæÁֽà °è¸í´ë·Î 103 (±³Çö2µ¿ 720-2)
´ëÇ¥ : 043)841-9119
°üÇÒÁö¿ª : À½¼º±º, ÃæÁÖ½Ã

µî±â¼Ò ûÁÖÁö¹æ¹ý¿ø ÃæÁÖÁö¿ø µî±â°è (´ëÇ¥:1544-0773, ÆÑ½º:(043)848-6461~2, ÃæºÏ ÃæÁֽà °è¸í´ë·Î 103 (±³Çöµ¿ 720-2))
¼¼¹«¼­ ÃæÁÖ¼¼¹«¼­ (´ëÇ¥:043-841-62, ÆÑ½º:043-845-3320, ÃæÃ»ºÏµµ ÃæÁÖ½Ã Ãæ¿ø´ë·Î 724 (±Ý¸ªµ¿))

Àαٳ«ÂûÅë°è

±â°£ ¸Å°¢°Ç¼ö Æò±Õ°¨Á¤°¡
Æò±Õ¸Å°¢°¡
¸Å°¢°¡À²
Æò±ÕÀ¯Âû¼ö
3°³¿ù 4°Ç 213,510,495¿ø
86,203,250¿ø
37%
5.5ȸ
6°³¿ù 8°Ç 354,726,443¿ø
152,873,125¿ø
43%
4.6ȸ
12°³¿ù 12°Ç 282,521,972¿ø
128,715,492¿ø
44%
4.4ȸ


º» °æ¸ÅÁ¤º¸´Â ¹ý¿øÀÚ·á¿Í ÀÏÄ¡Çϵµ·Ï ÇÏ¿´À¸³ª ±Ç¸®»çÇ׺¯µ¿, ÀÔ·ÂÂø¿À µîÀÇ ¿øÀÎÀ¸·Î »ç½Ç°ú ´Ù¸¦ ¼ö ÀÖ½À´Ï´Ù. ÀÌ¿ë¾à°ü¿¡ ÀǰЏéÃ¥Á¶°ÇÀ¸·Î Á¦°øµÊÀ» ¾Ë¸®¸ç, °æ¸ÅÀÔÂû½Ã ¹Ýµå½Ã °ü·Ã °øºÎ¸¦ ÀçÈ®ÀÎÇϽñ⠹ٶø´Ï´Ù. º¸´Ù Æí¸®ÇÑ °æ¸ÅÁ¤º¸ Á¦°øÀ» À§ÇØ Áö¼ÓÀûÀ¸·Î °³¼±ÇϰڽÀ´Ï´Ù. ÀÌ¿ëÇØ Áּż­ °¨»çÇÕ´Ï´Ù.
°ü½É¹°°ÇÀ¸·Î µî·ÏÇÕ´Ï´Ù