61
¾ÆÆÄÆ®
ÀÎõÁö¹æ¹ý¿ø
 °¨Á¤°¡136,000,000 ¿ø
 ÃÖÀú°¡(70%) 95,200,000 ¿ø
 º¸Áõ±Ý(10%) 9,520,000 ¿ø
 Ã»±¸¾×153,000,000 ¿ø
ÀÎõ±¤¿ª½Ã ¹ÌÃßȦ±¸ Á¦ÀÏ·Î27¹ø±æ 21-8, 9Ãþ901È£ (µµÈ­µ¿,±×·£Æ®¾ÆÆÄÆ®)
ÀÎõ±¤¿ª½Ã ¹ÌÃßȦ±¸ µµÈ­µ¿ 427-2
»ç°Ç¹øÈ£ 2024Ÿ°æ573134
°æ¸ÅÁ¾·ùºÎµ¿»ê°­Á¦°æ¸Å
¸Å°¢´ë»óÅäÁö ¹× °Ç¹°Àϰý ¸Å°¢
¸Å°¢±âÀÏ    2026.02.02(¿ù) 10:00 ÀÔÂû 44ÀÏÀü    
ÅäÁö¸éÀû12.34§³(3.73 Æò)
°Ç¹°¸éÀû49.82§³(15.07 Æò)
乫/¼ÒÀ¯ÀÚ±èOO / ±èOO
ä±ÇÀÚ¹ÚOO
±è¼ºÈÆ ´ëÇ¥ÀÌ»ç
°øÀÎÁß°³»ç, ºÎµ¿»ê°ø°æ¸Å»ç, ÇѾç´ëÇб³ Á¹¾÷
Àü) ÅÂÀÎÄÁ¼³ÆÃ(ÁÖ) ´ëÇ¥ÀÌ»ç
Àü) ¿©ÀÇÁֺε¿»êÁß°³¹ýÀÎ(ÁÖ) ´ëÇ¥ÀÌ»ç
Çö) ¿©ÀÇÁÖ°æ¸Å¹ýÀÎ ´ëÇ¥ÀÌ»ç
010-2371-3237
ÆäÀ̽ººÏ Æ®À§ÅÍ ±¸±Û+
īī¿À½ºÅ丮
īī¿ÀÅå sms¹®ÀÚº¸³»±â
 

±âÀϳ»¿ª

°æ°ú ³¯Â¥ Àú°¨ ÃÖÀú°¡ °á°ú
Á¢¼öÀÏ 2024-11-15 °æ¸ÅÁ¢¼ö
~3ÀÏ 
2024-11-18 °æ¸Å°³½Ã°áÁ¤
~84ÀÏ 
2025-02-07 ¹è´ç¿ä±¸Á¾±âÀÏ
~398ÀÏ 
2025-12-18 100%
136,000,000
À¯Âû
~444ÀÏ 
2026-02-02 70%
95,200,000
ÁøÇà
¹°°Ç¸í¼¼¼­ ÇöȲÁ¶»ç¼­ ¹®°ÇÁ¢¼ö ¼Û´Þ³»¿ª

°¨Á¤Æò°¡ÇöȲ

¸ñ·Ï ÁÖ¼Ò ±¸Á¶/¿ëµµ/´ëÁö±Ç ¸éÀû ºñ°í
´ëÁö±Ç
µµÈ­µ¿ 427-2 302.6ºÐÀÇ 12.34 12.34 §³
(3.73Æò)
°Ç¹°
µµÈ­µ¿ 427-2 9Ãþ901È£ ö±ÙÄÜÅ©¸®Æ®±¸Á¶ 49.82 §³
(15.07Æò)
1) À§Ä¡/ÀϹݻó¾÷Áö¿ª/¹ö½ºÁ¤·ùÀå/Â÷·®Á¢±ÙÀÌ °¡´É/ö±ÙÄÜÅ©¸®Æ®±¸Á¶/Æò½º¶óºêÁöºØ ´õº¸±â
°¨Á¤Æò°¡ ¿äÇ×Ç¥
1)À§Ä¡ ¹× ÁÖÀ§È¯°æ
º»°ÇÀº ÀÎõ±¤¿ª½Ã ¹ÌÃßȦ±¸ µµÈ­µ¿ ¼ÒÀç "ÁÖ¾È119¾ÈÀü¼¾ÅÍ" µ¿Ãø Àαٿ¡ À§Ä¡Çϰí ÀÖÀ¸¸ç, ÁÖÀ§´Â ÁÖ»óº¹ÇÕ(¿ÀÇǽºÅÚ Æ÷ÇÔ), »ó°¡Á¡Æ÷ µîÀÌ È¥ÀçÇϰí ÀÖ´Â Áö¿ªÀÓ.
2)±³Åë»óȲ
º»°Ç ÁÖº¯±îÁö Â÷·®Á¢±ÙÀÌ °¡´ÉÇϸç, Àαٿ¡ ¹ö½ºÁ¤·ùÀåÀÌ ¼ÒÀçÇÏ´Â µî Àü¹ÝÀûÀÎ ±³Åë¿©°ÇÀº ¹«³­ÇÑ ÆíÀÓ.
3)°Ç¹°ÀÇ ±¸Á¶
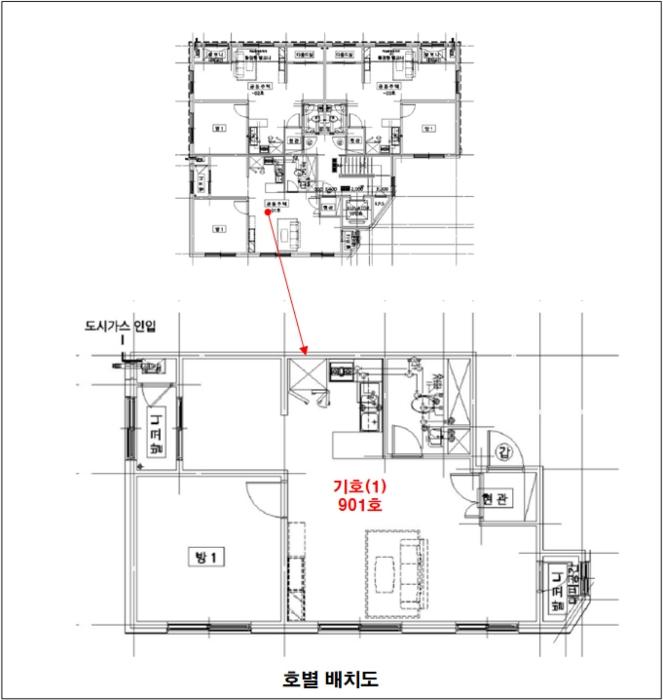
ö±ÙÄÜÅ©¸®Æ®±¸Á¶ Æò½º¶óºêÁöºØ ÁöÇÏ1Ãþ-Áö»ó9Ãþ ³» Á¦9Ãþ Á¦901È£·Î¼­
- ¿Üº® : ¿ÜÀåŸÀÏ ºÙÀÓ, ¸ôÅ» À§ ÆäÀÎÆÃ µî
- âȣ : »õ½ÃÁ¶ µî ¸¶°¨ÀÓ.
4)ÀÌ¿ë»óÅÂ
°øµ¿ÁÖÅÃ(¾ÆÆÄÆ®)À¸·Î ÀÌ¿ë ÁßÀÓ.
5)¼³ºñ³»¿ª
À§»ý ¹× ±Þ¹è¼ö¼³ºñ, ³­¹æ¼³ºñ, ½Â°­±â¼³ºñ, ±â°è½ÄÁÖÂ÷¼³ºñ µîÀ» °®Ãß¾úÀ½.
6)ÅäÁöÀÇ Çü»ó ¹× ÀÌ¿ë»óÅÂ
ÀÚüÁö¹Ý ´ëü·Î ÆòźÇÏ°Ô Á¶¼ºµÈ ÀÚ·çÇüÀÇ ÅäÁö·Î¼­ ÇöȲ ¾ÆÆÄÆ®, ¿ÀÇǽºÅÚ µî °ÇºÎÁö·Î ÀÌ¿ë ÁßÀÓ.
7)ÀÎÁ¢ µµ·Î»óŵî
º»°Ç ³²ÃøÀ¸·Î ³ëÆø ¾à 6m ³»¿ÜÀÇ µµ·Î¿¡ Á¢Çϰí ÀÖÀ½.(ÀÚ·çÇü ÅäÁö·Î ³»ºÎ ÁøÀÔ·Î ÆøÀº ¾à 3m ³»¿ÜÀÓ.)
8)ÅäÁöÀÌ¿ë°èȹ ¹× Á¦ÇÑ»óÅÂ
ÀϹݻó¾÷Áö¿ª(2022-06-13), ¹æÈ­Áö±¸(2022-06-13), °¡Ãà»çÀ°Á¦Çѱ¸¿ª(ÀÎõ±¤¿ª½Ã ¹ÌÃßȦ±¸ °¡Ãà»çÀ°Á¦ÇÑ¿¡ °üÇÑ Á¶·Ê[2018.7.1.]), °ú¹Ð¾ïÁ¦±Ç¿ª ÀÓ.
9)°øºÎ¿ÍÀÇ Â÷ÀÌ
ƯÀÌ»çÇ× ¾øÀ½.
10)±âŸÂü°í»çÇ×(ÀÓ´ë°ü·Ê ¹× ±âŸ)
- ÀÓ´ë°ü°è ¹Ì»óÀÓ.
- º»°ÇÀº ÇöÀåÁ¶»ç ½Ã ÀÌÇØ°ü°èÀÎ ÇùÁ¶ºÎÀç µîÀ¸·Î ÀÎÇÏ¿© ³»ºÎ±¸Á¶¸¦ È®ÀÎÇÏÁö ¸øÇÏ¿´À¸¸ç, °ÇÃ๰´ëÀå »ó µîÀçµÈ ÇöȲµµ¸é, ¿Ü°ü¸ñÃø, ÁÖº¯Å½¹®, µ¿ À¯Çü °øµ¿ÁÖÅà ÀϹÝÇöȲ µîÀ» ÂüÀÛÇÏ¿© Æò°¡ÇÏ¿´´Â ¹Ù, ÀÔÂû ½Ã ³»ºÎ±¸Á¶ µîÀº º°µµ È®ÀÎÇϽñ⠹ٶ÷.
Âü°í
»çÇ×

ö±ÙÄÜÅ©¸®Æ®±¸Á¶ Æò½º¶óºêÁöºØ 9Ãþ °øµ¿ÁÖÅà ¹× ¾÷¹«½Ã¼³


±¹ÅäºÎ½Ç°Å·¡°¡ ÀÎõ±¤¿ª½Ã ¹ÌÃßȦ±¸ µµÈ­µ¿

¡Ü ¸Å¸Å

¸éÀû(§³), ±Ý¾×(¸¸¿ø)

¡Ü Àü¼¼

¸éÀû(§³), ±Ý¾×(¸¸¿ø)

°è¾àÀÏARTÃþÀü¿ëº¸Áõ±Ý¿ù¼¼°ÇÃà
25.02.22±×·£Æ®849.8212,7002014
25.02.07±×·£Æ®549.6512,60002014
24.12.05±×·£Æ®749.6512,60002014
24.10.27±×·£Æ®449.6512,6002014
24.10.15±×·£Æ®449.6512,50002014

µî±âºÎµîº» ¿ä¾à(°Ç¹°)

  Á¢¼öÀÏÀÚ µî±â¸ñÀû/±Ç¸®ÀÚ ±Ç¸®±Ý¾× ±âÁØ
1 2014³â12¿ù31ÀÏ
¼ÒÀ¯±Ç
±èOO
¼Ò¸ê
2 2014³â12¿ù29ÀÏ
¼ÒÀ¯±Ç
±èOO
¼Ò¸ê
3 2023³â4¿ù21ÀÏ
±ÙÀú´ç±Ç
(OOOO
108,000,000 ¼Ò¸ê±âÁØ
4 2023³â9¿ù13ÀÏ
¾Ð·ù
±¹
¼Ò¸ê
5 2024³â10¿ù31ÀÏ
ÀÓÂ÷±Ç¼³Á¤
¹ÚOO
153,000,000 ¼Ò¸ê
6 2024³â11¿ù18ÀÏ
°­Á¦°æ¸Å
¹ÚOO
¼Ò¸ê

ÀÓÂ÷ÀÎÇöȲ (¹è´ç¿ä±¸Á¾±âÀÏ: 2025-02-07)

ÀÓÂ÷ÀÎ ¿ëµµ/Á¡À¯ º¸Áõ±Ý/¿ù¼¼ ´ëÇ×·Â
ÀüÀÔÀÏ/È®Á¤ÀÏ ¹è´ç¿ä±¸ ºñ°í
¹ÚOO ÀüºÎ 153,000,000
O
2022.03.30.
2022.03.14.
2025.01.02. 2022.03.31.~ÇöÀç±îÁö
ºñ°í
(¸Å°¢¹°°Ç
¸í¼¼¼­)
¹Ú±ÔÅÂ: ÁÖÅÃÀÓÂ÷±Çµî±â±ÇÀڷμ­ ÁÖÅÃÀÓÂ÷±Çµî±âÀÏÀº 2024.10.31.ÀÓ

¿©ÀÇÁÖ°æ¸Å Á¶¾ð ÇÑ ¸¶µð

¸Å°¢¹°°Ç¸í¼¼ ºñ°í³­¿¡ ±âÀçµÈ ³»¿ëÀÔ´Ï´Ù.
¹Ú±ÔÅÂ: ÁÖÅÃÀÓÂ÷±Çµî±â±ÇÀڷμ­ ÁÖÅÃÀÓÂ÷±Çµî±âÀÏÀº 2024.10.31.ÀÓ
³«Âû ÈÄ¿¡ µî±âºÎ»ó ¼Ò¸êµÇÁö ¾Ê´Â ±Ç¸®ÀÔ´Ï´Ù.
À»±¸ ¼øÀ§ 4¹ø ÁÖÅÃÀÓÂ÷±Çµî±â(ÀÓ´ëÂ÷º¸Áõ±Ý 153,000,000¿ø, ÀüÀÔÀÏÀÚ 2022.3.30. È®Á¤ÀÏÀÚ 2022.3.14.)°¡ ÀÖÀ¸¹Ç·Î ¹è´ç¿¡¼­ Àü ¾× º¯Á¦µÇÁö ¾Æ´ÏÇϸé Àܾ×À» ¸Å¼öÀÎÀÌ ÀμöÇÔ
¼±¼øÀ§ ÀÓÂ÷±Çµî±â°¡ µÇ¾î ÀÖ½À´Ï´Ù.
ü³³°ü¸®ºñ¸¦ ºÎ´ãÇÒ ¼ö ÀÖ½À´Ï´Ù.
°¨Á¤ ½ÃÁ¡ÀÌ ¿À·¡µÇ¾î °¡°Ýº¯µ¿ÀÌ ÀÖÀ» ¼ö ÀÖ½À´Ï´Ù.
ÀÌ ¹°°ÇÀº 2024³â 11¿ù 18ÀÏ¿¡ °æ¸Å°¡ °³½ÃµÇ¾ú´Âµ¥ Áö±Ý ½ÃÁ¡À¸·Î ¾à 397ÀÏÀÌ ÀÌ °æ°úµÇ¾ú½À´Ï´Ù. °¨Á¤°¡°ÝÀº 397ÀÏ Àü ½ÃÁ¡¿¡¼­ Æò°¡ÇÑ °¡°ÝÀ̹ǷΠ±× »çÀÌ °¡°Ýº¯µ¿ÀÌ ÀÖÀ» ¼ö ÀÖ½À´Ï´Ù. ƯÈ÷ °¡°Ý º¯µ¿ÀÌ ½ÉÇÑ ¾ÆÆÄÆ®´Â À¯ÀÇÇÏ¼Å¾ß ÇÕ´Ï´Ù. °¨Á¤°¡°ÝÀ» ³Ê¹« ¹ÏÁö ¸¶½Ã°í ÇöÀç ½Ç¸Å¹° °¡°Ý°ú ½Ç°Å·¡°¡¸¦ È®ÀÎÇϽñ⠹ٶø´Ï´Ù.
°£È¤ °¨Á¤°¡°Ýº¸´Ù ³ô°Ô ³«ÂûµÇ´Â °æ¿ì°¡ Àִµ¥ ´ëºÎºÐ ÀÌ·± ÀÌÀ¯ÀÔ´Ï´Ù.
¡Ø ¹°°Ç Ű¿öµå : »ó¾÷Áö¿ª/ÀϹݻó¾÷Áö¿ª/¹ö½ºÁ¤·ùÀå/Â÷·®Á¢±ÙÀÌ °¡´É/ö±ÙÄÜÅ©¸®Æ®±¸Á¶/Æò½º¶óºêÁöºØ/½º¶óºêÁöºØ
Àüü ÄÁ¼³ÆÃÀÌ ºÎ´ã½º·¯¿ì½Å°¡¿ä? ±Ç¸®ºÐ¼®¸¸ ÀÇ·ÚÇϼŵµ ±¦Âú½À´Ï´Ù!
½Ç¼Ó ÀÖ°Ô Çٽɸ¸ ´ãÀº ±Ç¸®ºÐ¼® ¼­ºñ½º!! (±Ç¸®ºÐ¼® + ½Ã¼¼Á¶»ç + ³«Âû°¡ »êÁ¤ + ÀÔÂûÇ¥ ÀÛ¼º¹æ¹ý ±îÁö)
ÃÖ´ë Àüü ÄÁ¼³ÆÃ ºñ¿ëÀÇ 10% ¼öÁØ !!

ÁÖÀÇ»çÇ× (ÃÖ¼±¼øÀ§ ¼³Á¤ÀÏ: 2023.04.21. ±ÙÀú´ç±Ç ¼³Á¤)

¸Å°¢À¸·Î ¼Ò¸êµÇÁö ¾Ê´Â µî±âºÎ±Ç¸®: À»±¸ ¼øÀ§ 4¹ø ÁÖÅÃÀÓÂ÷±Çµî±â(ÀÓ´ëÂ÷º¸Áõ±Ý 153,000,000¿ø, ÀüÀÔÀÏÀÚ 2022.3.30. È®Á¤ÀÏÀÚ 2022.3.14.)°¡ ÀÖÀ¸¹Ç·Î ¹è´ç¿¡¼­ Àü ¾× º¯Á¦µÇÁö ¾Æ´ÏÇϸé Àܾ×À» ¸Å¼öÀÎÀÌ ÀμöÇÔ
¸Å°¢À¸·Î ¼³Á¤µÈ °ÍÀ¸·Î º¸´Â Áö»ó±Ç:
2025.10.23 ±âŸ ÇÑOOOOOOO Àü¼¼»ç±âÇÇÇØÁÖÅðü·Ã °æ¸Å¼ÓÇà½Åû¼­ Á¦Ãâ
¡Ø¹Ì³³°ü¸®ºñ(°ø¿ë) Àμö¿©ºÎ¸¦ ÀÔÂû Àü¿¡ È®ÀÎÇϽñ⠹ٶø´Ï´Ù

 

Áö¿ªºÐ¼®

ÁöÇÏö¸í Á÷¼±°Å¸®

Çб³¸í ÀüÈ­¹øÈ£ ÁÖ¼Ò Á÷¼±°Å¸®

¹ý¿ø

ÀÎõÁö¹æ¹ý¿ø (222-20)ÀÎõ±¤¿ª½Ã ¹ÌÃßȦ±¸ ¼Ò¼º·Î 163¹ø±æ 17(ÇÐÀ͵¿)
´ëÇ¥ : 032)860-1113~4
°üÇÒÁö¿ª : Áß±¸, µ¿±¸, ³²±¸, ¿¬¼ö±¸, ³²µ¿±¸, ºÎÆò±¸, °è¾ç±¸, ¼­±¸, ¿ËÁø±º, °­È­±º

µî±â¼Ò ÀÎõÁö¹æ¹ý¿ø º»¿ø µî±â±¹ (´ëÇ¥:1544-0773, ÆÑ½º:(032)620-9099, ÀÎõ±¤¿ª½Ã ¹ÌÃßȦ±¸ °æ¿ø´ë·Î 881(Á־ȵ¿ 983))
¼¼¹«¼­ ÀÎõ¼¼¹«¼­ (´ëÇ¥:032-770-02, ÆÑ½º:032-777-8104, ÀÎõ±¤¿ª½Ã µ¿±¸ ¿ì°¢·Î 75 (⿵µ¿))

Àαٳ«ÂûÅë°è

±â°£ ¸Å°¢°Ç¼ö Æò±Õ°¨Á¤°¡
Æò±Õ¸Å°¢°¡
¸Å°¢°¡À²
Æò±ÕÀ¯Âû¼ö
3°³¿ù 148°Ç 245,709,459¿ø
155,881,902¿ø
62%
2.3ȸ
6°³¿ù 321°Ç 241,532,710¿ø
149,304,019¿ø
61%
2.3ȸ
12°³¿ù 529°Ç 240,961,153¿ø
151,859,685¿ø
62%
2.2ȸ


º» °æ¸ÅÁ¤º¸´Â ¹ý¿øÀÚ·á¿Í ÀÏÄ¡Çϵµ·Ï ÇÏ¿´À¸³ª ±Ç¸®»çÇ׺¯µ¿, ÀÔ·ÂÂø¿À µîÀÇ ¿øÀÎÀ¸·Î »ç½Ç°ú ´Ù¸¦ ¼ö ÀÖ½À´Ï´Ù. ÀÌ¿ë¾à°ü¿¡ ÀǰЏéÃ¥Á¶°ÇÀ¸·Î Á¦°øµÊÀ» ¾Ë¸®¸ç, °æ¸ÅÀÔÂû½Ã ¹Ýµå½Ã °ü·Ã °øºÎ¸¦ ÀçÈ®ÀÎÇϽñ⠹ٶø´Ï´Ù. º¸´Ù Æí¸®ÇÑ °æ¸ÅÁ¤º¸ Á¦°øÀ» À§ÇØ Áö¼ÓÀûÀ¸·Î °³¼±ÇϰڽÀ´Ï´Ù. ÀÌ¿ëÇØ Áּż­ °¨»çÇÕ´Ï´Ù.
°ü½É¹°°ÇÀ¸·Î µî·ÏÇÕ´Ï´Ù