75
¿ÀÇǽºÅÚ
ÀÎõÁö¹æ¹ý¿ø
 °¨Á¤°¡222,000,000 ¿ø
 ÃÖÀú°¡(70%) 155,400,000 ¿ø
 º¸Áõ±Ý(10%) 15,540,000 ¿ø
 Ã»±¸¾×208,900,000 ¿ø
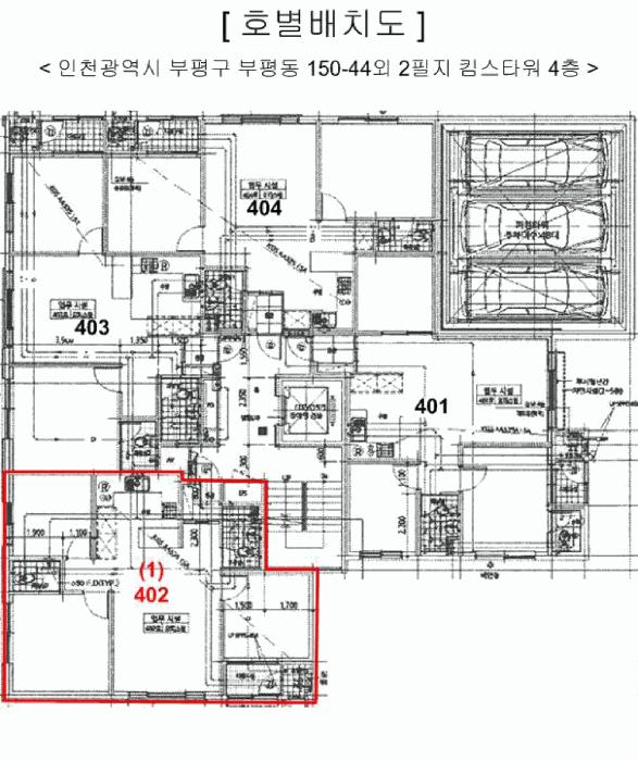
ÀÎõ±¤¿ª½Ã ºÎÆò±¸ ºÎÆòµ¿ 150-44 Å´½ºÅ¸¿ö 4Ãþ 402È£
»ç°Ç¹øÈ£ 2025Ÿ°æ509668
°æ¸ÅÁ¾·ùºÎµ¿»ê°­Á¦°æ¸Å
¸Å°¢´ë»óÅäÁö ¹× °Ç¹°Àϰý ¸Å°¢
¸Å°¢±âÀÏ    2026.01.30(±Ý) 10:00 ÀÔÂû 40ÀÏÀü    
ÅäÁö¸éÀû10.33§³(3.13 Æò)
°Ç¹°¸éÀû70.82§³(21.42 Æò)
乫/¼ÒÀ¯ÀÚ¹éOO / ¹éOO
ä±ÇÀÚÁÖOOOOOOO
±è¼ºÈÆ ´ëÇ¥ÀÌ»ç
°øÀÎÁß°³»ç, ºÎµ¿»ê°ø°æ¸Å»ç, ÇѾç´ëÇб³ Á¹¾÷
Àü) ÅÂÀÎÄÁ¼³ÆÃ(ÁÖ) ´ëÇ¥ÀÌ»ç
Àü) ¿©ÀÇÁֺε¿»êÁß°³¹ýÀÎ(ÁÖ) ´ëÇ¥ÀÌ»ç
Çö) ¿©ÀÇÁÖ°æ¸Å¹ýÀÎ ´ëÇ¥ÀÌ»ç
010-2371-3237
ÆäÀ̽ººÏ Æ®À§ÅÍ ±¸±Û+
īī¿À½ºÅ丮
īī¿ÀÅå sms¹®ÀÚº¸³»±â
 

±âÀϳ»¿ª

°æ°ú ³¯Â¥ Àú°¨ ÃÖÀú°¡ °á°ú
Á¢¼öÀÏ 2025-05-29 °æ¸ÅÁ¢¼ö
~4ÀÏ 
2025-06-02 °æ¸Å°³½Ã°áÁ¤
~88ÀÏ 
2025-08-25 ¹è´ç¿ä±¸Á¾±âÀÏ
~202ÀÏ 
2025-12-17 100%
222,000,000
À¯Âû
~246ÀÏ 
2026-01-30 70%
155,400,000
ÁøÇà
¹°°Ç¸í¼¼¼­ ÇöȲÁ¶»ç¼­ ¹®°ÇÁ¢¼ö ¼Û´Þ³»¿ª

°¨Á¤Æò°¡ÇöȲ

¸ñ·Ï ÁÖ¼Ò ±¸Á¶/¿ëµµ/´ëÁö±Ç ¸éÀû ºñ°í
´ëÁö±Ç
ºÎÆòµ¿ 150-44 515.8ºÐÀÇ 10.3344 10.3344 §³
(3.13Æò)
°Ç¹°
ºÎÆòµ¿ 150-44 4Ãþ 402È£ ö±ÙÄÜÅ©¸®Æ®±¸Á¶ 70.82 §³
(21.42Æò)
1) À§Ä¡/ÀϹݻó¾÷Áö¿ª/¹ö½ºÁ¤·ùÀå/ÁöÇÏö/Á¦¹ÝÂ÷·® ÃâÀÔ/ö±ÙÄÜÅ©¸®Æ®±¸Á¶/Æò½º¶óºêÁöºØ/µµ½Ã°¡½º ´õº¸±â
°¨Á¤Æò°¡ ¿äÇ×Ç¥
1)À§Ä¡ ¹× ÁÖÀ§È¯°æ
º»°ÇÀº ÀÎõ±¤¿ª½Ã ºÎÆò±¸ ºÎÆòµ¿ ¼ÒÀç 'ÀÎõºÎÈïÃʵîÇб³' ³²¼­Ãø Àαٿ¡ À§Ä¡Çϸç, ÁÖ
À§´Â ´ë·Îº¯À» Áß½ÉÀ¸·Î º»°Ç°ú µ¿À¯ÇüÀÇ ¿ÀÇǽºÅÚ(ÁÖ°Å¿ë) ¹× ¾ÆÆÄÆ®, ¾÷¹«½Ã¼³, »ó¾÷¿ë
ºôµù, ±Ù¸°»ýȰ½Ã¼³ µîÀÌ ¼ÒÀçÇÏ´Â »ó¾÷Áö¿ªÀ¸·Î Á¦¹ÝÁÖÀ§È¯°æÀº º¸Åë½Ã µÊ.
2)±³Åë»óȲ
º»°Ç±îÁö Á¦¹ÝÂ÷·® ÃâÀÔÀÌ °¡´ÉÇϰí, Àαٿ¡ ¹ö½ºÁ¤·ùÀå ¹× ÀÎõÁöÇÏö1È£¼± 'ºÎÆò½ÃÀ忪
'ÀÌ ¼ÒÀçÇÏ´Â µî ´ëÁß±³ÅëÀÌ¿ëÆíÀǵµ´Â º¸Åë½Ã µÊ.
3)°Ç¹°ÀÇ ±¸Á¶
ö±ÙÄÜÅ©¸®Æ®±¸Á¶ Æò½º¶óºêÁöºØ 14Ãþ °Ç¹° ³» 4Ãþ 402È£·Î¼­,
(»ç¿ë½ÂÀÎÀÏÀÚ: 2016.08.12)
¿Üº®: ¸ôÅ»À§ ÆäÀÎÆÃ ¹× µ¹ºÙÀÓ ¸¶°¨ µî,
³»º®: º®Áö ¸¶°¨ µî,
¹Ù´Ú: ÀåÆÇ±ò±â ¸¶°¨ µî,
âȣ: ¼¦½Ã âȣ µîÀÓ.
4)ÀÌ¿ë»óÅÂ
¿ÀÇǽºÅÚ(ÁÖ°Å¿ë)·Î ÀÌ¿ëÁßÀÓ.
5)¼³ºñ³»¿ª
À§»ý¼³ºñ, ±Þ¹è¼ö¼³ºñ, ½Â°­±â¼³ºñ, È­ÀçŽÁö¼³ºñ, È­Àç°æº¸¼³ºñ, ¿Á³»¼ÒÈ­Àü¼³ºñ, ½ºÇÁ
¸µÅ¬·¯¼³ºñ, ³­¹æ¼³ºñ, µµ½Ã°¡½º¼³ºñ µîÀÌ µÇ¾î ÀÖÀ½.
6)ÅäÁöÀÇ Çü»ó ¹× ÀÌ¿ë»óÅÂ
º»°ÇÀº ÀÎÁ¢µµ·Î ´ëºñ µî°íÆòźÇÑ 3ÇÊ ÀÏ´ÜÀÇ ´ëü·Î »ç´Ù¸®Çü ÅäÁö·Î¼­, ÁÖ»ó¿ë °ÇºÎÁö
·Î ÀÌ¿ëÁßÀÓ.
7)ÀÎÁ¢ µµ·Î»óŵî
º»°Ç ºÏ¼­ÃøÀ¸·Î ³ëÆø ¾à 25m ³»¿Ü ³²µ¿ÃøÀ¸·Î ³ëÆø ¾à 4m ³»¿ÜÀÇ Æ÷Àåµµ·Î¿Í °¢°¢ Á¢
ÇÏ¸ç µµ·Î »óÅ ¾çÈ£ÇÔ.
8)ÅäÁöÀÌ¿ë°èȹ ¹× Á¦ÇÑ»óÅÂ
ÅäÁö±âÈ£1~3 °øÈ÷
ÀϹݻó¾÷Áö¿ª, ¹æÈ­Áö±¸, ½Ã°¡Áö°æ°üÁö±¸(Áß½É), °¡·Î±¸¿ªº° ÃÖ°í³ôÀÌ Á¦ÇÑÁö¿ª, °ú¹Ð¾ï
Á¦±Ç¿ª, ÁßÁ¡°æ°ü°ü¸®±¸¿ª(2025-05-19)ÀÓ.
9)°øºÎ¿ÍÀÇ Â÷ÀÌ
¾øÀ½.
10)±âŸÂü°í»çÇ×(ÀÓ´ë°ü·Ê ¹× ±âŸ)
ÀÓ´ë¹Ì»óÀÓ.
Âü°í
»çÇ×

º» °ÇÀº 14Ãþ ÁÖ°Å¿ë

°ÇÃ๰ÇöȲ

¼ÒÀçÁö ÀÎõ±¤¿ª½Ã ºÎÆò±¸ ºÎÆòµ¿ 150-44¹øÁö
´ëÁö¸éÀû 515.8§³
(156.3Æò)
¿¬¸éÀû 4376.31§³
(1326.15Æò)
°ÇÃà¸éÀû 370.89§³
(112.39Æò)
¿ëÀû·ü»êÁ¤
¿¬¸éÀû
4237.9§³
(1284.21Æò)
°ÇÆóÀ² 71.91% ¿ëÀû·ü 821.62%
Áö»óÃþ¼ö 14Ãþ ÁöÇÏÃþ¼ö 1Ãþ
ÁÖ¿ëµµ ¾÷¹«½Ã¼³ ±¸Á¶ ö±ÙÄÜÅ©¸®Æ®±¸Á¶
Âø°øÀÏÀÚ 2015.09.08 »ç¿ë½ÂÀÎÀÏÀÚ 2016.08.12
°ÇÃ๰Ãþº°ÇöȲ [º¸±â]


±¹ÅäºÎ½Ç°Å·¡°¡ ÀÎõ±¤¿ª½Ã ºÎÆò±¸ ºÎÆòµ¿

¡Ü ¸Å¸Å

¸éÀû(§³), ±Ý¾×(¸¸¿ø)

¡Ü Àü¼¼

¸éÀû(§³), ±Ý¾×(¸¸¿ø)

°è¾àÀϰǹ°¸íĪÃþÀü¿ë±Ý¾×°ÇÃà
24.02.29Å´½ºÅ¸¿ö1363.4918,2002016

µî±âºÎµîº» ¿ä¾à(°Ç¹°)

  Á¢¼öÀÏÀÚ µî±â¸ñÀû/±Ç¸®ÀÚ ±Ç¸®±Ý¾× ±âÁØ
1 2020³â8¿ù12ÀÏ
¼ÒÀ¯±Ç
¹éOO
¼Ò¸ê
2 2023³â4¿ù18ÀÏ
¾Ð·ù
±¹
¼Ò¸ê±âÁØ
3 2023³â12¿ù28ÀÏ
¾Ð·ù
ºÎOO
¼Ò¸ê
4 2024³â5¿ù24ÀÏ
ÀÓÂ÷±Ç¼³Á¤
ȫOO
199,000,000 ¼Ò¸ê
5 2024³â6¿ù26ÀÏ
¾Ð·ù
ºÎOO
¼Ò¸ê
6 2025³â6¿ù2ÀÏ
°­Á¦°æ¸Å
ÁÖOOOO
¼Ò¸ê

ÀÓÂ÷ÀÎÇöȲ (¹è´ç¿ä±¸Á¾±âÀÏ: 2025-08-25)

ÀÓÂ÷ÀÎ ¿ëµµ/Á¡À¯ º¸Áõ±Ý/¿ù¼¼ ´ëÇ×·Â
ÀüÀÔÀÏ/È®Á¤ÀÏ ¹è´ç¿ä±¸ ºñ°í
ÁÖOOOOOOOOOOOOOOOO ÀüºÎ 208,900,000
O
2020.8.12.
(1)2020.7.27.(2)2022.4.4.(Áõ¾×ºÐ9,900,000¿ø)
2025.8.14. 2020.8.12.~2024.4.25.
È«OO ÀüºÎ (1)199,000,000¿ø(2)208,900,000¿ø
O
2020.8.12.
(1)2020.7.27.(2)2022.4.4.(Áõ¾×ºÐ9,900,000¿ø)
2020.8.12.~
ºñ°í
(¸Å°¢¹°°Ç
¸í¼¼¼­)
ÁÖÅõµ½Ãº¸Áõ°ø»ç(ÀÓÂ÷ÀÎ:È«µ¿ÀÇ):ÁÖÅÃÀÓÂ÷±ÇÀÚÀÎ È«µ¿ÀÇÀÇ ÀÓÂ÷º¸Áõ±Ý¹Ýȯä±ÇÀ» ¾ç¼öÇÑ ½Â°èÀÎÀ¸·Î¼­ ½Åûä±ÇÀÚÀÓ. ÀÌ »ç°Ç ¿¡¼­ ÀÓÂ÷º¸Áõ±Ý Àü¾×À» ¹è´ç¹ÞÁö ¸øÇÏ´õ¶óµµ ¸Å¼öÀο¡ ´ëÇÑ ÀÜÁ¸ ÀÓÂ÷º¸Áõ±Ý¹Ýȯä±ÇÀ» Æ÷±âÇϰí ÁÖÅÃÀÓÂ÷±Çµî±âÀÇ ¸»¼Ò¿¡ µ¿ÀÇÇÑ´Ù´Â ÃëÁöÀÇ È®¾à¼­¸¦ Á¦ÃâÇÔ È«µ¿ÀÇ:ÀÓÂ÷º¸Áõ±Ý Áß ±Ý9,900,000¿øÀº 2022.4.2.ÀÚ·Î Áõ¾×µÇ¾úÀ¸¸ç, Áõ¾×ºÐ¿¡ ´ëÇÑ È®Á¤ÀÏÀÚ´Â 2022.4.4.ÀÓ

¿©ÀÇÁÖ°æ¸Å Á¶¾ð ÇÑ ¸¶µð

¸Å°¢¹°°Ç¸í¼¼ ºñ°í³­¿¡ ±âÀçµÈ ³»¿ëÀÔ´Ï´Ù.
ÁÖÅõµ½Ãº¸Áõ°ø»ç(ÀÓÂ÷ÀÎ:È«µ¿ÀÇ):ÁÖÅÃÀÓÂ÷±ÇÀÚÀÎ È«µ¿ÀÇÀÇ ÀÓÂ÷º¸Áõ±Ý¹Ýȯä±ÇÀ» ¾ç¼öÇÑ ½Â°èÀÎÀ¸·Î¼­ ½Åûä±ÇÀÚÀÓ. ÀÌ »ç°Ç ¿¡¼­ ÀÓÂ÷º¸Áõ±Ý Àü¾×À» ¹è´ç¹ÞÁö ¸øÇÏ´õ¶óµµ ¸Å¼öÀο¡ ´ëÇÑ ÀÜÁ¸ ÀÓÂ÷º¸Áõ±Ý¹Ýȯä±ÇÀ» Æ÷±âÇϰí ÁÖÅÃÀÓÂ÷±Çµî±âÀÇ ¸»¼Ò¿¡ µ¿ÀÇÇÑ´Ù´Â ÃëÁöÀÇ È®¾à¼­¸¦ Á¦ÃâÇÔ È«µ¿ÀÇ:ÀÓÂ÷º¸Áõ±Ý Áß ±Ý9,900,000¿øÀº 2022.4.2.ÀÚ·Î Áõ¾×µÇ¾úÀ¸¸ç, Áõ¾×ºÐ¿¡ ´ëÇÑ È®Á¤ÀÏÀÚ´Â 2022.4.4.ÀÓ
³«Âû ÈÄ¿¡ µî±âºÎ»ó ¼Ò¸êµÇÁö ¾Ê´Â ±Ç¸®ÀÔ´Ï´Ù.
À»±¸ ¼øÀ§ 3¹ø ÁÖÅÃÀÓÂ÷±Çµî±â(´Ù¸¸ ÁÖÅõµ½Ãº¸Áõ°ø»çÀÇ ¸»¼Òµ¿ÀÇ È®¾à¼­°¡ Á¦ÃâµÊ)
¼±¼øÀ§ ÀÓÂ÷±Çµî±â°¡ µÇ¾î ÀÖ½À´Ï´Ù.
¡Ø ¹°°Ç Ű¿öµå : »ó¾÷Áö¿ª/ÀϹݻó¾÷Áö¿ª/¹ö½ºÁ¤·ùÀå/ÁöÇÏö/Á¦¹ÝÂ÷·® ÃâÀÔ/ö±ÙÄÜÅ©¸®Æ®±¸Á¶/Æò½º¶óºêÁöºØ/½º¶óºêÁöºØ/µµ½Ã°¡½º
Àüü ÄÁ¼³ÆÃÀÌ ºÎ´ã½º·¯¿ì½Å°¡¿ä? ±Ç¸®ºÐ¼®¸¸ ÀÇ·ÚÇϼŵµ ±¦Âú½À´Ï´Ù!
½Ç¼Ó ÀÖ°Ô Çٽɸ¸ ´ãÀº ±Ç¸®ºÐ¼® ¼­ºñ½º!! (±Ç¸®ºÐ¼® + ½Ã¼¼Á¶»ç + ³«Âû°¡ »êÁ¤ + ÀÔÂûÇ¥ ÀÛ¼º¹æ¹ý ±îÁö)
ÃÖ´ë Àüü ÄÁ¼³ÆÃ ºñ¿ëÀÇ 10% ¼öÁØ !!

ÁÖÀÇ»çÇ× (ÃÖ¼±¼øÀ§ ¼³Á¤ÀÏ: ÃÖ¼±¼ø À§ 2023.4.18. ¾Ð·ù ¼³Á¤)

¸Å°¢À¸·Î ¼Ò¸êµÇÁö ¾Ê´Â µî±âºÎ±Ç¸®: À»±¸ ¼øÀ§ 3¹ø ÁÖÅÃÀÓÂ÷±Çµî±â(´Ù¸¸ ÁÖÅõµ½Ãº¸Áõ°ø»çÀÇ ¸»¼Òµ¿ÀÇ È®¾à¼­°¡ Á¦ÃâµÊ)
¸Å°¢À¸·Î ¼³Á¤µÈ °ÍÀ¸·Î º¸´Â Áö»ó±Ç:
¡Ø¹Ì³³°ü¸®ºñ(°ø¿ë) Àμö¿©ºÎ¸¦ ÀÔÂû Àü¿¡ È®ÀÎÇϽñ⠹ٶø´Ï´Ù

 

Áö¿ªºÐ¼®

ÁöÇÏö¸í Á÷¼±°Å¸®

Çб³¸í ÀüÈ­¹øÈ£ ÁÖ¼Ò Á÷¼±°Å¸®

¹ý¿ø

ÀÎõÁö¹æ¹ý¿ø (222-20)ÀÎõ±¤¿ª½Ã ¹ÌÃßȦ±¸ ¼Ò¼º·Î 163¹ø±æ 17(ÇÐÀ͵¿)
´ëÇ¥ : 032)860-1113~4
°üÇÒÁö¿ª : Áß±¸, µ¿±¸, ³²±¸, ¿¬¼ö±¸, ³²µ¿±¸, ºÎÆò±¸, °è¾ç±¸, ¼­±¸, ¿ËÁø±º, °­È­±º

µî±â¼Ò ÀÎõÁö¹æ¹ý¿ø º»¿ø µî±â±¹ (´ëÇ¥:1544-0773, ÆÑ½º:(032)620-9099, ÀÎõ±¤¿ª½Ã ¹ÌÃßȦ±¸ °æ¿ø´ë·Î 881(Á־ȵ¿ 983))
¼¼¹«¼­ ºÏÀÎõ¼¼¹«¼­ (´ëÇ¥:032-540-62, ÆÑ½º:032-545-0411, ÀÎõ±¤¿ª½Ã °è¾ç±¸ È¿¼­·Î244(ÀÛÀüµ¿ 422-1) )

Àαٳ«ÂûÅë°è

±â°£ ¸Å°¢°Ç¼ö Æò±Õ°¨Á¤°¡
Æò±Õ¸Å°¢°¡
¸Å°¢°¡À²
Æò±ÕÀ¯Âû¼ö
3°³¿ù 166°Ç 218,421,687¿ø
161,807,995¿ø
74%
1.5ȸ
6°³¿ù 290°Ç 219,164,138¿ø
159,897,566¿ø
73%
1.5ȸ
12°³¿ù 478°Ç 221,526,360¿ø
168,075,360¿ø
76%
1.5ȸ


º» °æ¸ÅÁ¤º¸´Â ¹ý¿øÀÚ·á¿Í ÀÏÄ¡Çϵµ·Ï ÇÏ¿´À¸³ª ±Ç¸®»çÇ׺¯µ¿, ÀÔ·ÂÂø¿À µîÀÇ ¿øÀÎÀ¸·Î »ç½Ç°ú ´Ù¸¦ ¼ö ÀÖ½À´Ï´Ù. ÀÌ¿ë¾à°ü¿¡ ÀǰЏéÃ¥Á¶°ÇÀ¸·Î Á¦°øµÊÀ» ¾Ë¸®¸ç, °æ¸ÅÀÔÂû½Ã ¹Ýµå½Ã °ü·Ã °øºÎ¸¦ ÀçÈ®ÀÎÇϽñ⠹ٶø´Ï´Ù. º¸´Ù Æí¸®ÇÑ °æ¸ÅÁ¤º¸ Á¦°øÀ» À§ÇØ Áö¼ÓÀûÀ¸·Î °³¼±ÇϰڽÀ´Ï´Ù. ÀÌ¿ëÇØ Áּż­ °¨»çÇÕ´Ï´Ù.
°ü½É¹°°ÇÀ¸·Î µî·ÏÇÕ´Ï´Ù