47
¿ÀÇǽºÅÚ
ÀÇÁ¤ºÎÁö¹æ¹ý¿ø °í¾çÁö¿ø
 °¨Á¤°¡115,000,000 ¿ø
 ÃÖÀú°¡(100%) 115,000,000 ¿ø
 º¸Áõ±Ý(10%) 11,500,000 ¿ø
 Ã»±¸¾×126,000,000 ¿ø
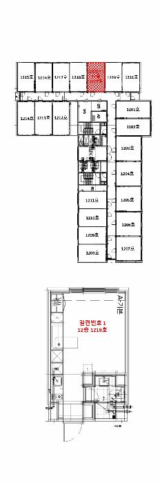
°æ±âµµ ÆÄÁֽà ¾ß´çµ¿ 1050 ¿îÁ¤¾ß´ç¿ªÇ츮¿ò 12Ãþ1219È£
»ç°Ç¹øÈ£ 2025Ÿ°æ63367
°æ¸ÅÁ¾·ùºÎµ¿»ê°­Á¦°æ¸Å
¸Å°¢´ë»óÅäÁö ¹× °Ç¹°Àϰý ¸Å°¢
¸Å°¢±âÀÏ    2025.12.17(¼ö) 10:00 ÀÔÂû 7ÀÏÀü    
ÅäÁö¸éÀû6.29§³(1.90 Æò)
°Ç¹°¸éÀû22.05§³(6.67 Æò)
乫/¼ÒÀ¯ÀÚ±ÇOO / ±ÇOO
ä±ÇÀÚÁÖOOOOOOO
±è¼ºÈÆ ´ëÇ¥ÀÌ»ç
°øÀÎÁß°³»ç, ºÎµ¿»ê°ø°æ¸Å»ç, ÇѾç´ëÇб³ Á¹¾÷
Àü) ÅÂÀÎÄÁ¼³ÆÃ(ÁÖ) ´ëÇ¥ÀÌ»ç
Àü) ¿©ÀÇÁֺε¿»êÁß°³¹ýÀÎ(ÁÖ) ´ëÇ¥ÀÌ»ç
Çö) ¿©ÀÇÁÖ°æ¸Å¹ýÀÎ ´ëÇ¥ÀÌ»ç
010-2371-3237
ÆäÀ̽ººÏ Æ®À§ÅÍ ±¸±Û+
īī¿À½ºÅ丮
īī¿ÀÅå sms¹®ÀÚº¸³»±â
 

±âÀϳ»¿ª

°æ°ú ³¯Â¥ Àú°¨ ÃÖÀú°¡ °á°ú
Á¢¼öÀÏ 2025-06-10 °æ¸ÅÁ¢¼ö
~1ÀÏ 
2025-06-11 °æ¸Å°³½Ã°áÁ¤
~86ÀÏ 
2025-09-04 ¹è´ç¿ä±¸Á¾±âÀÏ
~190ÀÏ 
2025-12-17 100%
115,000,000
ÁøÇà
¹°°Ç¸í¼¼¼­ ÇöȲÁ¶»ç¼­ ¹®°ÇÁ¢¼ö ¼Û´Þ³»¿ª

°¨Á¤Æò°¡ÇöȲ

¸ñ·Ï ÁÖ¼Ò ±¸Á¶/¿ëµµ/´ëÁö±Ç ¸éÀû ºñ°í
´ëÁö±Ç
¾ß´çµ¿ 1050 2633.9ºÐÀÇ 6.292 6.292 §³
(1.90Æò)
°Ç¹°
¾ß´çµ¿ 1050 12Ãþ1219È£ ö±ÙÄÜÅ©¸®Æ®Á¶ 22.0477 §³
(6.67Æò)
1) À§Ä¡/µµ½ÃÁö¿ª/ÀϹݻó¾÷Áö¿ª/Á¦1Á¾Áö±¸´ÜÀ§°èȹ±¸¿ª/³ë¼±¹ö½ºÁ¤·ùÀå/ö±ÙÄÜÅ©¸®Æ®Á¶ ´õº¸±â
°¨Á¤Æò°¡ ¿äÇ×Ç¥
1)À§Ä¡ ¹× ÁÖÀ§È¯°æ
º»°ÇÀº °æ±âµµ ÆÄÁֽà ¾ß´çµ¿ ¼ÒÀç ""¿îÁ¤ÁßÇб³"" ºÏµ¿Ãø Àαٿ¡ À§Ä¡Çϸç, ÀαÙÀº ¾ÆÆÄÆ®, ¿ÀÇǽºÅÚ, ±Ù¸°»ýȰ½Ã¼³ ¹× Çб³ µîÀÌ È¥ÀçÇÏ´Â Áö¿ªÀÓ.
2)±³Åë»óȲ
º»°Ç±îÁö Â÷·®ÀÇ ÁøÃâÀÔÀÌ °¡´ÉÇϸç, Àαٿ¡ ³ë¼±¹ö½ºÁ¤·ùÀå ¹× °æÀÇÁß¾Ó¼± ""¾ß´ç¿ª""ÀÌ ¼ÒÀçÇÏ´Â µî ±³Åë»óȲÀº ¾çÈ£ÇÔ.
3)°Ç¹°ÀÇ ±¸Á¶
ö±ÙÄÜÅ©¸®Æ®Á¶ (ö±Ù)ÄÜÅ©¸®Æ®ÁöºØ 17Ãþ Áß 12Ãþ 1219È£·Î¼­ (»ç¿ë½ÂÀÎÀÏ : 2019.08.23.)

¿Üº® : ¸ôÅ» À§ ÆäÀÎÆ® ¹× ¼®ÀçºÙÀÓ ¸¶°¨ µî,
âȣ : »õ½Ãâȣ µîÀÓ.
4)ÀÌ¿ë»óÅÂ
¿ÀÇǽºÅÚÀÓ.
5)¼³ºñ³»¿ª
À§»ý ¹× ±Þ¹è¼ö¼³ºñ, ¼ÒÈ­Àü¼³ºñ, È­ÀçŽÁö¼³ºñ, ½ºÇÁ¸µÅ¬·¯¼³ºñ ¹× E/V¼³ºñ µî µÇ¾î ÀÖÀ½.



6)ÅäÁöÀÇ Çü»ó ¹× ÀÌ¿ë»óÅÂ
ÀÎÁ¢µµ·Î ¹× ÀÎÁ¢ÅäÁö¿Í µî°íÆòźÇÑ »ç´Ù¸®ÇüÀÇ ÅäÁö·Î¼­ ¾÷¹«½Ã¼³ ºÎÁö·Î ÀÌ¿ëÁßÀÓ.
7)ÀÎÁ¢ µµ·Î»óŵî
º»°Ç ¼­ÃøÀ¸·Î Æø ¾à 32m, µ¿ÃøÀ¸·Î Æø ¾à 13mÀÇ Æ÷Àåµµ·Î ¹× º»°Ç ºÏµ¿ÃøÀ¸·Î º¸ÇàÀÚÀü¿ëµµ·Î¿Í °¢°¢ Á¢ÇÔ.
8)ÅäÁöÀÌ¿ë°èȹ ¹× Á¦ÇÑ»óÅÂ
µµ½ÃÁö¿ª, ÀϹݻó¾÷Áö¿ª, Á¦1Á¾Áö±¸´ÜÀ§°èȹ±¸¿ª, ´ë·Î2·ù(Æø 30m~35m)(ÆÄÁÖ¿îÁ¤Áö±¸)
(Á¢ÇÕ), ¼Ò·Î3·ù(Æø 8m ¹Ì¸¸)(ÆÄÁÖ¿îÁ¤Áö±¸)(Á¢ÇÕ), Áß·Î3·ù(Æø 12m~15m)
(ÆÄÁÖ¿îÁ¤Áö±¸)(Á¢ÇÕ), °¡Ãà»çÀ°Á¦Çѱ¸¿ª(ÀüºÎÁ¦ÇÑ)<°¡ÃàºÐ´¢ÀÇ °ü¸® ¹× À̿뿡 °üÇÑ ¹ý·ü>
9)°øºÎ¿ÍÀÇ Â÷ÀÌ
-
10)±âŸÂü°í»çÇ×(ÀÓ´ë°ü·Ê ¹× ±âŸ)
ÀÓ´ë°ü°è µî ¹Ì»óÀ̳ª µî±â»çÇ×ÀüºÎÁõ¸í¼­¿¡ ÁÖÅÃÀÓÂ÷±Ç µî±âµÇ¾î ÀÖÀ½.
Âü°í
»çÇ×

-ö±ÙÄÜÅ©¸®Æ®Á¶

°ÇÃ๰ÇöȲ

¼ÒÀçÁö °æ±âµµ ÆÄÁֽà ¾ß´çµ¿ 1050¹øÁö
´ëÁö¸éÀû 2633.9§³
(798.15Æò)
¿¬¸éÀû 23177.672§³
(7023.54Æò)
°ÇÃà¸éÀû 1532.4463§³
(464.38Æò)
¿ëÀû·ü»êÁ¤
¿¬¸éÀû
13168.522§³
(3990.46Æò)
°ÇÆóÀ² 58.18% ¿ëÀû·ü 499.96%
Áö»óÃþ¼ö 17Ãþ ÁöÇÏÃþ¼ö 5Ãþ
ÁÖ¿ëµµ ¾÷¹«½Ã¼³ ±¸Á¶ ö±ÙÄÜÅ©¸®Æ®±¸Á¶
Âø°øÀÏÀÚ 2017.08.01 »ç¿ë½ÂÀÎÀÏÀÚ 2019.08.23
°ÇÃ๰Ãþº°ÇöȲ [º¸±â]


µî±âºÎµîº» ¿ä¾à(°Ç¹°)

  Á¢¼öÀÏÀÚ µî±â¸ñÀû/±Ç¸®ÀÚ ±Ç¸®±Ý¾× ±âÁØ
1 2019³â12¿ù13ÀÏ
¼ÒÀ¯±Ç
±ÇOO
¼Ò¸ê
2 2022³â11¿ù25ÀÏ
¾àÁ¤/±ÝÁö»çÇ×/ȯ¸ÅƯ¾à
Àμö
3 2024³â3¿ù28ÀÏ
ÀÓÂ÷±Ç¼³Á¤
±èOO
126,000,000 Àμö
4 2025³â6¿ù11ÀÏ
°­Á¦°æ¸Å
ÁÖOOOO
¼Ò¸ê±âÁØ

ÀÓÂ÷ÀÎÇöȲ (¹è´ç¿ä±¸Á¾±âÀÏ: 2025-09-04)



¸Å°¢±âÀÏ 7ÀÏÀü¿¡ ¸Å°¢¹°°Ç¸í¼¼¼­°¡ °ø°íµÇ¿À´Ï È®ÀÎÇϽñ⠹ٶø´Ï´Ù.

ÀÓÂ÷ÀÎ ¿ëµµ/Á¡À¯ º¸Áõ±Ý/¿ù¼¼ ´ëÇ×·Â
ÀüÀÔÀÏ/È®Á¤ÀÏ ¹è´ç¿ä±¸ ºñ°í
±èOO 1219È£ÀüºÎ 126,000,000
O
2022.03.07.
2022.02.21.
2022.03.14.~
ÁÖOOOOOOO 1219È£ÀüºÎ 126,000,000
O
2022.03.07.
2022.02.21.
2025.9.4. 2022.03.14.~2024.07.30.
ÃÖOO 1219È£ 2,000,000
[¿ù]500,000
O
2025.03.19.
2025.7.1. 2025.03.19.~2026.03.16±îÁö
ºñ°í
(¸Å°¢¹°°Ç
¸í¼¼¼­)
ÁÖÅõµ½Ãº¸Áõ°ø»ç:½Åûä±ÇÀڷμ­ ÀÓÂ÷±ÇÀÚ ±èÂùÁÖÀÇ ÀÓ´ëÂ÷º¸Áõ±Ý ¹Ýȯä±ÇÀ» ½Â°èÇÔ

¿©ÀÇÁÖ°æ¸Å Á¶¾ð ÇÑ ¸¶µð

¸Å°¢¹°°Ç¸í¼¼ ºñ°í³­¿¡ ±âÀçµÈ ³»¿ëÀÔ´Ï´Ù.
ÁÖÅõµ½Ãº¸Áõ°ø»ç:½Åûä±ÇÀڷμ­ ÀÓÂ÷±ÇÀÚ ±èÂùÁÖÀÇ ÀÓ´ëÂ÷º¸Áõ±Ý ¹Ýȯä±ÇÀ» ½Â°èÇÔ
³«Âû ÈÄ¿¡ µî±âºÎ»ó ¼Ò¸êµÇÁö ¾Ê´Â ±Ç¸®ÀÔ´Ï´Ù.
¸Å¼öÀο¡°Ô ´ëÇ×ÇÒ ¼ö ÀÖ´Â ÀÓÂ÷ÀÎ ÀÖÀ½(ÀÓ´ëÂ÷º¸Áõ±Ý 126,000,000¿ø, ÀüÀÔÀÏ 2022.3.7. È®Á¤ÀÏÀÚ 2022.2.21.) ¹è´ç¿¡¼­ º¸Áõ±Ý ÀÌ Àü¾× º¯Á¦µÇÁö ¾Æ´ÏÇϸé Àܾ×À» ¸Å¼öÀÎÀÌ ÀμöÇÔ.
´Ù¼öÀÇ ÀÓÂ÷ÀÎÀÌ Á¶»ç, ½Å°íµÇ¾î ÀÖ½À´Ï´Ù.
¸Å°¢¹°°Ç¸í¼¼¼­ ¹× ÇöȲÁ¶»ç¼­¿¡ 3¸íÀÇ ÀÓÂ÷ÀÎÀÌ ³ªÅ¸³ª ÀÖ½À´Ï´Ù. ÀÓÂ÷ÀÎÀÌ ¸¹Àº °æ¿ì ¸íµµ¿¡ ¾î·Á¿òÀÌ ÀÖÀ¸´Ï Àü¹®°¡¿Í ÇùÀÇÇÏ¿© ÁøÇàÇÏ½Ã±æ ±ÇÇØ µå¸³´Ï´Ù.
¡Ø ¹°°Ç Ű¿öµå : µµ½ÃÁö¿ª/»ó¾÷Áö¿ª/ÀϹݻó¾÷Áö¿ª/Áö±¸´ÜÀ§°èȹ±¸¿ª/Á¦1Á¾Áö±¸´ÜÀ§°èȹ±¸¿ª/¹ö½ºÁ¤·ùÀå/³ë¼±¹ö½ºÁ¤·ùÀå/ö±ÙÄÜÅ©¸®Æ®Á¶
Àüü ÄÁ¼³ÆÃÀÌ ºÎ´ã½º·¯¿ì½Å°¡¿ä? ±Ç¸®ºÐ¼®¸¸ ÀÇ·ÚÇϼŵµ ±¦Âú½À´Ï´Ù!
½Ç¼Ó ÀÖ°Ô Çٽɸ¸ ´ãÀº ±Ç¸®ºÐ¼® ¼­ºñ½º!! (±Ç¸®ºÐ¼® + ½Ã¼¼Á¶»ç + ³«Âû°¡ »êÁ¤ + ÀÔÂûÇ¥ ÀÛ¼º¹æ¹ý ±îÁö)
ÃÖ´ë Àüü ÄÁ¼³ÆÃ ºñ¿ëÀÇ 10% ¼öÁØ !!

ÁÖÀÇ»çÇ× (ÃÖ¼±¼øÀ§ ¼³Á¤ÀÏ: 2025.06.11. °æ¸Å°³½Ã°áÁ¤ ¼³Á¤)

¸Å°¢À¸·Î ¼Ò¸êµÇÁö ¾Ê´Â µî±âºÎ±Ç¸®: ¸Å¼öÀο¡°Ô ´ëÇ×ÇÒ ¼ö ÀÖ´Â ÀÓÂ÷ÀÎ ÀÖÀ½(ÀÓ´ëÂ÷º¸Áõ±Ý 126,000,000¿ø, ÀüÀÔÀÏ 2022.3.7. È®Á¤ÀÏÀÚ 2022.2.21.) ¹è´ç¿¡¼­ º¸Áõ±Ý ÀÌ Àü¾× º¯Á¦µÇÁö ¾Æ´ÏÇϸé Àܾ×À» ¸Å¼öÀÎÀÌ ÀμöÇÔ.
¸Å°¢À¸·Î ¼³Á¤µÈ °ÍÀ¸·Î º¸´Â Áö»ó±Ç:
¡Ø¹Ì³³°ü¸®ºñ(°ø¿ë) Àμö¿©ºÎ¸¦ ÀÔÂû Àü¿¡ È®ÀÎÇϽñ⠹ٶø´Ï´Ù

 

Áö¿ªºÐ¼®

ÁöÇÏö¸í Á÷¼±°Å¸®

Çб³¸í ÀüÈ­¹øÈ£ ÁÖ¼Ò Á÷¼±°Å¸®

¹ý¿ø

ÀÇÁ¤ºÎÁö¹æ¹ý¿ø °í¾çÁö¿ø (104-13)°æ±âµµ °í¾ç½Ã Àϻ굿±¸ Àå¹é·Î 209
´ëÇ¥ : 031)920-6114, ¾ß°£ : 031)920-6550, ÆÑ½º : 031)920-6119
°üÇÒÁö¿ª : °í¾ç½Ã, ÆÄÁÖ½Ã

µî±â¼Ò ÀÇÁ¤ºÎÁö¹æ¹ý¿ø °í¾çÁö¿ø ÆÄÁÖµî±â¼Ò (´ëÇ¥:1544-0773, ÆÑ½º:(031)945-4764, 3628, °æ±âµµ ÆÄÁֽà ±ÝÁ¤·Î 45 (±ÝÃ̵¿ 947-28))
¼¼¹«¼­ ÆÄÁÖ¼¼¹«¼­ (´ëÇ¥:031-956-02, ÆÑ½º:031-957-0315, °æ±âµµ ÆÄÁֽà ±Ý¸ª¿ª·Î 62 (±ÝÃ̵¿))

Àαٳ«ÂûÅë°è

±â°£ ¸Å°¢°Ç¼ö Æò±Õ°¨Á¤°¡
Æò±Õ¸Å°¢°¡
¸Å°¢°¡À²
Æò±ÕÀ¯Âû¼ö
3°³¿ù 9°Ç 846,666,667¿ø
540,730,556¿ø
56%
2.2ȸ
6°³¿ù 9°Ç 846,666,667¿ø
540,730,556¿ø
56%
2.2ȸ
12°³¿ù 11°Ç 757,363,636¿ø
489,249,545¿ø
59%
2.1ȸ


º» °æ¸ÅÁ¤º¸´Â ¹ý¿øÀÚ·á¿Í ÀÏÄ¡Çϵµ·Ï ÇÏ¿´À¸³ª ±Ç¸®»çÇ׺¯µ¿, ÀÔ·ÂÂø¿À µîÀÇ ¿øÀÎÀ¸·Î »ç½Ç°ú ´Ù¸¦ ¼ö ÀÖ½À´Ï´Ù. ÀÌ¿ë¾à°ü¿¡ ÀǰЏéÃ¥Á¶°ÇÀ¸·Î Á¦°øµÊÀ» ¾Ë¸®¸ç, °æ¸ÅÀÔÂû½Ã ¹Ýµå½Ã °ü·Ã °øºÎ¸¦ ÀçÈ®ÀÎÇϽñ⠹ٶø´Ï´Ù. º¸´Ù Æí¸®ÇÑ °æ¸ÅÁ¤º¸ Á¦°øÀ» À§ÇØ Áö¼ÓÀûÀ¸·Î °³¼±ÇϰڽÀ´Ï´Ù. ÀÌ¿ëÇØ Áּż­ °¨»çÇÕ´Ï´Ù.
°ü½É¹°°ÇÀ¸·Î µî·ÏÇÕ´Ï´Ù