44
¿ÀÇǽºÅÚ
ÀÎõÁö¹æ¹ý¿ø
 °¨Á¤°¡115,000,000 ¿ø
 ÃÖÀú°¡(100%) 115,000,000 ¿ø
 º¸Áõ±Ý(10%) 11,500,000 ¿ø
 Ã»±¸¾×130,000,000 ¿ø
ÀÎõ±¤¿ª½Ã ¿¬¼ö±¸ ÄÁº¥½Ã¾Æ´ë·Î42¹ø±æ 20, 303µ¿ 4Ãþ412È£ (¼Ûµµµ¿,¼Ûµµ ´õ ÇÁ¶ó¿ì 2)
ÀÎõ±¤¿ª½Ã ¿¬¼ö±¸ ¼Ûµµµ¿ 15-10
»ç°Ç¹øÈ£ 2024Ÿ°æ585038
°æ¸ÅÁ¾·ùºÎµ¿»ê°­Á¦°æ¸Å
¸Å°¢´ë»óÅäÁö ¹× °Ç¹°Àϰý ¸Å°¢
¸Å°¢±âÀÏ    2025.12.10(¼ö) 10:00 ÀÔÂû 2ÀÏÀü    
ÅäÁö¸éÀû11.49§³(3.47 Æò)
°Ç¹°¸éÀû26.96§³(8.16 Æò)
乫/¼ÒÀ¯ÀÚ¹ÚOO / ¹ÚOO
ä±ÇÀÚ°­OO
±è¼ºÈÆ ´ëÇ¥ÀÌ»ç
°øÀÎÁß°³»ç, ºÎµ¿»ê°ø°æ¸Å»ç, ÇѾç´ëÇб³ Á¹¾÷
Àü) ÅÂÀÎÄÁ¼³ÆÃ(ÁÖ) ´ëÇ¥ÀÌ»ç
Àü) ¿©ÀÇÁֺε¿»êÁß°³¹ýÀÎ(ÁÖ) ´ëÇ¥ÀÌ»ç
Çö) ¿©ÀÇÁÖ°æ¸Å¹ýÀÎ ´ëÇ¥ÀÌ»ç
010-2371-3237
ÆäÀ̽ººÏ Æ®À§ÅÍ ±¸±Û+
īī¿À½ºÅ丮
īī¿ÀÅå sms¹®ÀÚº¸³»±â
 

±âÀϳ»¿ª

°æ°ú ³¯Â¥ Àú°¨ ÃÖÀú°¡ °á°ú
Á¢¼öÀÏ 2024-12-27 °æ¸ÅÁ¢¼ö
~10ÀÏ 
2025-01-06 °æ¸Å°³½Ã°áÁ¤
~94ÀÏ 
2025-03-31 ¹è´ç¿ä±¸Á¾±âÀÏ
~348ÀÏ 
2025-12-10 100%
115,000,000
ÁøÇà
¹°°Ç¸í¼¼¼­ ÇöȲÁ¶»ç¼­ ¹®°ÇÁ¢¼ö ¼Û´Þ³»¿ª

°¨Á¤Æò°¡ÇöȲ

¸ñ·Ï ÁÖ¼Ò ±¸Á¶/¿ëµµ/´ëÁö±Ç ¸éÀû ºñ°í
´ëÁö±Ç
¼Ûµµµ¿ 15-10 13124.6ºÐÀÇ 11.485 11.485 §³
(3.47Æò)
°Ç¹°
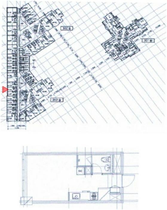
¼Ûµµµ¿ 15-10 303µ¿ 4Ãþ412È£ ö±ÙÄÜÅ©¸®Æ®±¸Á¶ 26.959 §³
(8.16Æò)
1) À§Ä¡/ÁØÁÖ°ÅÁö¿ª/Á¦1Á¾Áö±¸´ÜÀ§°èȹ±¸¿ª/½Ã³»¹ö½ºÁ¤·ùÀå/ÁöÇÏö/ö±ÙÄÜÅ©¸®Æ®±¸Á¶/Áö¿ª³­¹æ/¿­º´ÇÕ ´õº¸±â
°¨Á¤Æò°¡ ¿äÇ×Ç¥
1)À§Ä¡ ¹× ÁÖÀ§È¯°æ
º» °ÇÀº ÀÎõ±¤¿ª½Ã ¿¬¼ö±¸ ¼Ûµµµ¿ ¼ÒÀç "ÀÎõÆ÷½ºÄÚ°íµîÇб³" ³²µ¿Ãø Àαٿ¡ ¼ÒÀçÇϸç,
ÁÖº¯À¸·Î ¾ÆÆÄÆ®, ¿ÀÇǽºÅÚ ¹× ±Ù¸°»ýȰ½Ã¼³ µîÀÌ È¥ÀçÇÏ´Â Áö¿ªÀ¸·Î¼­ Á¦¹Ý ÁÖÀ§È¯°æÀº
¾çÈ£ÇÔ.
2)±³Åë»óȲ
º» °Ç ´ÜÁö±îÁö Â÷·® ÃâÀÔÀÌ °¡´ÉÇϰí, Àαٿ¡ ½Ã³»¹ö½ºÁ¤·ùÀåÀÌ ¼ÒÀçÇÏ°í ³²¼­Ãø ±Ù°Å¸®
(Á÷¼±°Å¸® ¾à1.6km)¿¡ ÀÎõÁöÇÏö 1È£¼± "¼¾Æ®·²ÆÄÅ©¿ª"ÀÌ ¼ÒÀçÇÏ´Â µî ´ëÁß±³ÅëÀÇ ÀÌ¿ë
ÆíÀǵµ´Â ¾çÈ£ÇÔ.
3)°Ç¹°ÀÇ ±¸Á¶
ö±ÙÄÜÅ©¸®Æ®±¸Á¶ (ö±Ù)ÄÜÅ©¸®Æ®ÁöºØ 20Ãþ °Ç¹° ³» Á¦303µ¿ Á¦4Ãþ Á¦412È£·Î¼­
(»ç¿ë½ÂÀÎÀÏ:2012.07.27),

¿Üº®: ¼®ÀçºÙÀÓ ¸¶°¨ µî,
âȣ: ÇÏÀ̼¨½Ã âȣ µîÀÓ.
4)ÀÌ¿ë»óÅÂ
°øºÎ»ó ¾÷¹«½Ã¼³(¿ÀÇǽºÅÚ)ÀÓ.
5)¼³ºñ³»¿ª
±âº»ÀûÀÎ À§»ý ¹× ±Þ¹è¼ö¼³ºñ, ½Â°­±â¼³ºñ, ¹æ¹ü¿ëCCTV, ½ºÇÁ¸µÅ¬·¯ ¼³ºñ, ¼ÒÈ­Àü ¼³ºñ, Áö¿ª³­¹æ(¿­º´ÇÕ) µîÀÌ µÇ¾î ÀÖÀ½.
6)ÅäÁöÀÇ Çü»ó ¹× ÀÌ¿ë»óÅÂ
°¡ÀåÇü ÆòÁö·Î¼­, 4°³ µ¿(¿ëÀû·ü 327.63%, ¾ÆÆÄÆ® 180È£, ¿ÀÇǽºÅÚ 197È£, ÁÖÂ÷ 597´ë, ±âŸ »ó°¡ µî) °ÇºÎÁöÀÓ.
7)ÀÎÁ¢ µµ·Î»óŵî
³²¼­ÃøÀ¸·Î ³ëÆø ¾à 20¹ÌÅÍÀÇ Æ÷Àåµµ·Î¿Í ºÏ¼­ÃøÀ¸·Î ³ëÆø ¾à17¹ÌÅÍÀÇ Æ÷ÀåµÈ ¸·´Ù¸¥ µµ·Î¿Í Á¢Çϰí ÀÖÀ½.
8)ÅäÁöÀÌ¿ë°èȹ ¹× Á¦ÇÑ»óÅÂ
ÁØÁÖ°ÅÁö¿ª, Á¦1Á¾Áö±¸´ÜÀ§°èȹ±¸¿ª(2008-12-08)(¾î¹Î»ýȰ´ëÃ¥´ÜÁö), Áß·Î2·ù(Æø 15m-20m)
(Á¢ÇÕ), Áß·Î2·ù(Æø 15m-20m)(Áß2-352È£¼±)(Á¢ÇÕ), Áß·Î2·ù(Æø 15m-20m)(Áß2-359È£¼±)(Á¢
ÇÕ), °æÁ¦ÀÚÀ¯±¸¿ª<°æÁ¦ÀÚÀ¯±¸¿ªÀÇ ÁöÁ¤ ¹× ¿î¿µ¿¡ °üÇÑ Æ¯º°¹ý>, »ó´ëº¸È£±¸¿ª(2015-02-17)
(ÀÎõÆ÷½ºÄÚ°íµîÇб³)<±³À°È¯°æ º¸È£¿¡ °üÇÑ ¹ý·ü>, »ó´ëº¸È£±¸¿ª(ÀÎõµ¿ºÎ±³À°Áö¿øÃ» °í½Ã
Á¦2010-345È£¿¡ ÀÇÇØ °æ°è¼öÁ¤)<±³À°È¯°æ º¸È£¿¡ °üÇÑ ¹ý·ü>, ¼ºÀå°ü¸®±Ç¿ª<¼öµµ±ÇÁ¤ºñ°èȹ
¹ý>ÀÓ.
9)°øºÎ¿ÍÀÇ Â÷ÀÌ
ÇØ´ç »çÇ× ¾øÀ½.
10)±âŸÂü°í»çÇ×(ÀÓ´ë°ü·Ê ¹× ±âŸ)
ÀÓ´ë°ü°è ¹Ì»óÀÓ.
Âü°í
»çÇ×

- º»°ÇÀº ÀÎõ Æ÷½ºÄÚ°íµîÇб³

°ÇÃ๰ÇöȲ

¼ÒÀçÁö ÀÎõ±¤¿ª½Ã ¿¬¼ö±¸ ¼Ûµµµ¿ 15-10¹øÁö
´ëÁö¸éÀû   ¿¬¸éÀû 22438.981§³
(6799.69Æò)
°ÇÃà¸éÀû   ¿ëÀû·ü»êÁ¤
¿¬¸éÀû
 
°ÇÆóÀ²   ¿ëÀû·ü  
Áö»óÃþ¼ö   ÁöÇÏÃþ¼ö 2Ãþ
ÁÖ¿ëµµ °øµ¿ÁÖÅà ±¸Á¶ ö±ÙÄÜÅ©¸®Æ®±¸Á¶
Âø°øÀÏÀÚ 2010.01.02 »ç¿ë½ÂÀÎÀÏÀÚ 2012.07.27


±¹ÅäºÎ½Ç°Å·¡°¡ ÀÎõ±¤¿ª½Ã ¿¬¼ö±¸ ¼Ûµµµ¿

¡Ü ¸Å¸Å

¸éÀû(§³), ±Ý¾×(¸¸¿ø)

¡Ü Àü¼¼

¸éÀû(§³), ±Ý¾×(¸¸¿ø)

°è¾àÀϰǹ°¸íĪÃþÀü¿ë±Ý¾×°ÇÃà
24.03.25¼Ûµµ ´õ ÇÁ¶ó¿ì 2521.14811,0002012

µî±âºÎµîº» ¿ä¾à(°Ç¹°)

  Á¢¼öÀÏÀÚ µî±â¸ñÀû/±Ç¸®ÀÚ ±Ç¸®±Ý¾× ±âÁØ
1 2023³â2¿ù16ÀÏ
¼ÒÀ¯±Ç
¹ÚOO
¼Ò¸ê
2 2024³â1¿ù8ÀÏ
°¡¾Ð·ù
¾ÈOO
20,000,000 ¼Ò¸ê±âÁØ
3 2025³â1¿ù6ÀÏ
°­Á¦°æ¸Å
°­OO
¼Ò¸ê

ÀÓÂ÷ÀÎÇöȲ (¹è´ç¿ä±¸Á¾±âÀÏ: 2025-03-31)

ÀÓÂ÷ÀÎ ¿ëµµ/Á¡À¯ º¸Áõ±Ý/¿ù¼¼ ´ëÇ×·Â
ÀüÀÔÀÏ/È®Á¤ÀÏ ¹è´ç¿ä±¸ ºñ°í
°­OO 412È£ÀüºÎ 130,000,000
O
2022.02.10.
2022.01.25.
2025.3.25. 2022.02.10. ~ÇöÀç±îÁö
ºñ°í
(¸Å°¢¹°°Ç
¸í¼¼¼­)
°­Á¤¼÷:°æ¸Å½Åûä±ÇÀÚÀÓ

¿©ÀÇÁÖ°æ¸Å Á¶¾ð ÇÑ ¸¶µð

¸Å°¢¹°°Ç¸í¼¼ ºñ°í³­¿¡ ±âÀçµÈ ³»¿ëÀÔ´Ï´Ù.
°­Á¤¼÷:°æ¸Å½Åûä±ÇÀÚÀÓ
³«Âû ÈÄ¿¡ µî±âºÎ»ó ¼Ò¸êµÇÁö ¾Ê´Â ±Ç¸®´Â ¾ø½À´Ï´Ù.
´ë·«ÀûÀÎ °ËÅäÀǰßÀ̹ǷΠÀÔÂûÀü¿¡ Àü¹®°¡ÀÇ Á¶¾ðÀ» Âü°íÇØ º¸½Ã±æ ±ÇÇØµå¸³´Ï´Ù.
°¨Á¤ ½ÃÁ¡ÀÌ ¿À·¡µÇ¾î °¡°Ýº¯µ¿ÀÌ ÀÖÀ» ¼ö ÀÖ½À´Ï´Ù.
ÀÌ ¹°°ÇÀº 2025³â 1¿ù 6ÀÏ¿¡ °æ¸Å°¡ °³½ÃµÇ¾ú´Âµ¥ Áö±Ý ½ÃÁ¡À¸·Î ¾à 336ÀÏÀÌ ÀÌ °æ°úµÇ¾ú½À´Ï´Ù. °¨Á¤°¡°ÝÀº 336ÀÏ Àü ½ÃÁ¡¿¡¼­ Æò°¡ÇÑ °¡°ÝÀ̹ǷΠ±× »çÀÌ °¡°Ýº¯µ¿ÀÌ ÀÖÀ» ¼ö ÀÖ½À´Ï´Ù. ƯÈ÷ °¡°Ý º¯µ¿ÀÌ ½ÉÇÑ ¾ÆÆÄÆ®´Â À¯ÀÇÇÏ¼Å¾ß ÇÕ´Ï´Ù. °¨Á¤°¡°ÝÀ» ³Ê¹« ¹ÏÁö ¸¶½Ã°í ÇöÀç ½Ç¸Å¹° °¡°Ý°ú ½Ç°Å·¡°¡¸¦ È®ÀÎÇϽñ⠹ٶø´Ï´Ù.
°£È¤ °¨Á¤°¡°Ýº¸´Ù ³ô°Ô ³«ÂûµÇ´Â °æ¿ì°¡ Àִµ¥ ´ëºÎºÐ ÀÌ·± ÀÌÀ¯ÀÔ´Ï´Ù.
¡Ø ¹°°Ç Ű¿öµå : ÁÖ°ÅÁö¿ª/ÁØÁÖ°ÅÁö¿ª/Áö±¸´ÜÀ§°èȹ±¸¿ª/Á¦1Á¾Áö±¸´ÜÀ§°èȹ±¸¿ª/¹ö½ºÁ¤·ùÀå/½Ã³»¹ö½ºÁ¤·ùÀå/ÁöÇÏö/ö±ÙÄÜÅ©¸®Æ®±¸Á¶/Áö¿ª³­¹æ/¿­º´ÇÕ
Àüü ÄÁ¼³ÆÃÀÌ ºÎ´ã½º·¯¿ì½Å°¡¿ä? ±Ç¸®ºÐ¼®¸¸ ÀÇ·ÚÇϼŵµ ±¦Âú½À´Ï´Ù!
½Ç¼Ó ÀÖ°Ô Çٽɸ¸ ´ãÀº ±Ç¸®ºÐ¼® ¼­ºñ½º!! (±Ç¸®ºÐ¼® + ½Ã¼¼Á¶»ç + ³«Âû°¡ »êÁ¤ + ÀÔÂûÇ¥ ÀÛ¼º¹æ¹ý ±îÁö)
ÃÖ´ë Àüü ÄÁ¼³ÆÃ ºñ¿ëÀÇ 10% ¼öÁØ !!

ÁÖÀÇ»çÇ× (ÃÖ¼±¼øÀ§ ¼³Á¤ÀÏ: 2024.1.8. °¡¾Ð·ù ¼³Á¤)

¸Å°¢À¸·Î ¼Ò¸êµÇÁö ¾Ê´Â µî±âºÎ±Ç¸®:
¸Å°¢À¸·Î ¼³Á¤µÈ °ÍÀ¸·Î º¸´Â Áö»ó±Ç:
¡Ø¹Ì³³°ü¸®ºñ(°ø¿ë) Àμö¿©ºÎ¸¦ ÀÔÂû Àü¿¡ È®ÀÎÇϽñ⠹ٶø´Ï´Ù

 

Áö¿ªºÐ¼®

ÁöÇÏö¸í Á÷¼±°Å¸®

Çб³¸í ÀüÈ­¹øÈ£ ÁÖ¼Ò Á÷¼±°Å¸®

¹ý¿ø

ÀÎõÁö¹æ¹ý¿ø (222-20)ÀÎõ±¤¿ª½Ã ¹ÌÃßȦ±¸ ¼Ò¼º·Î 163¹ø±æ 17(ÇÐÀ͵¿)
´ëÇ¥ : 032)860-1113~4
°üÇÒÁö¿ª : Áß±¸, µ¿±¸, ³²±¸, ¿¬¼ö±¸, ³²µ¿±¸, ºÎÆò±¸, °è¾ç±¸, ¼­±¸, ¿ËÁø±º, °­È­±º

µî±â¼Ò ÀÎõÁö¹æ¹ý¿ø º»¿ø µî±â±¹ (´ëÇ¥:1544-0773, ÆÑ½º:(032)620-9099, ÀÎõ±¤¿ª½Ã ¹ÌÃßȦ±¸ °æ¿ø´ë·Î 881(Á־ȵ¿ 983))
¼¼¹«¼­ ³²ÀÎõ¼¼¹«¼­ (´ëÇ¥:032-460-52, ÆÑ½º:032-463-5778, ÀÎõ±¤¿ª½Ã ³²µ¿±¸ ÀÎÇÏ·Î 548 (±¸¿ùµ¿))

Àαٳ«ÂûÅë°è

±â°£ ¸Å°¢°Ç¼ö Æò±Õ°¨Á¤°¡
Æò±Õ¸Å°¢°¡
¸Å°¢°¡À²
Æò±ÕÀ¯Âû¼ö
3°³¿ù 13°Ç 383,538,462¿ø
291,394,082¿ø
76%
1.1ȸ
6°³¿ù 26°Ç 343,884,615¿ø
253,159,996¿ø
75%
1.3ȸ
12°³¿ù 43°Ç 334,790,698¿ø
253,008,577¿ø
76%
1.2ȸ


º» °æ¸ÅÁ¤º¸´Â ¹ý¿øÀÚ·á¿Í ÀÏÄ¡Çϵµ·Ï ÇÏ¿´À¸³ª ±Ç¸®»çÇ׺¯µ¿, ÀÔ·ÂÂø¿À µîÀÇ ¿øÀÎÀ¸·Î »ç½Ç°ú ´Ù¸¦ ¼ö ÀÖ½À´Ï´Ù. ÀÌ¿ë¾à°ü¿¡ ÀǰЏéÃ¥Á¶°ÇÀ¸·Î Á¦°øµÊÀ» ¾Ë¸®¸ç, °æ¸ÅÀÔÂû½Ã ¹Ýµå½Ã °ü·Ã °øºÎ¸¦ ÀçÈ®ÀÎÇϽñ⠹ٶø´Ï´Ù. º¸´Ù Æí¸®ÇÑ °æ¸ÅÁ¤º¸ Á¦°øÀ» À§ÇØ Áö¼ÓÀûÀ¸·Î °³¼±ÇϰڽÀ´Ï´Ù. ÀÌ¿ëÇØ Áּż­ °¨»çÇÕ´Ï´Ù.
°ü½É¹°°ÇÀ¸·Î µî·ÏÇÕ´Ï´Ù