1175
´Ù¼¼´ë(ºô¶ó)
¼­¿ï³²ºÎÁö¹æ¹ý¿ø
 °¨Á¤°¡357,000,000 ¿ø
 ÃÖÀú°¡(64%) 228,480,000 ¿ø
 º¸Áõ±Ý(10%) 22,848,000 ¿ø
 Ã»±¸¾×339,150,000 ¿ø
¼­¿ïƯº°½Ã ±Ýõ±¸ µ¶»êµ¿ 1009-60 ÈľÏŸ¿î Á¦101µ¿ Á¦5Ãþ Á¦502È£
»ç°Ç¹øÈ£ 2025Ÿ°æ11270
°æ¸ÅÁ¾·ùºÎµ¿»ê°­Á¦°æ¸Å
¸Å°¢´ë»óÅäÁö ¹× °Ç¹°Àϰý ¸Å°¢
¸Å°¢±âÀÏ    2026.03.25(¼ö) 10:00 ÀÔÂû 18ÀÏÀü    
ÅäÁö¸éÀû21.42§³(6.48 Æò)
°Ç¹°¸éÀû43.05§³(13.02 Æò)
乫/¼ÒÀ¯ÀÚ±èOO / ±èOO
ä±ÇÀÚÁøOO
±è¼ºÈÆ ´ëÇ¥ÀÌ»ç
°øÀÎÁß°³»ç, ºÎµ¿»ê°ø°æ¸Å»ç, ÇѾç´ëÇб³ Á¹¾÷
Àü) ÅÂÀÎÄÁ¼³ÆÃ(ÁÖ) ´ëÇ¥ÀÌ»ç
Àü) ¿©ÀÇÁֺε¿»êÁß°³¹ýÀÎ(ÁÖ) ´ëÇ¥ÀÌ»ç
Çö) ¿©ÀÇÁÖ°æ¸Å¹ýÀÎ ´ëÇ¥ÀÌ»ç
010-2371-3237
ÆäÀ̽ººÏ Æ®À§ÅÍ ±¸±Û+
īī¿À½ºÅ丮
īī¿ÀÅå sms¹®ÀÚº¸³»±â
 

±âÀϳ»¿ª

°æ°ú ³¯Â¥ Àú°¨ ÃÖÀú°¡ °á°ú
Á¢¼öÀÏ 2025-07-28 °æ¸ÅÁ¢¼ö
~1ÀÏ 
2025-07-29 °æ¸Å°³½Ã°áÁ¤
~94ÀÏ 
2025-10-30 ¹è´ç¿ä±¸Á¾±âÀÏ
~135ÀÏ 
2025-12-10 100%
357,000,000
À¯Âû
~191ÀÏ 
2026-02-04 80%
285,600,000
À¯Âû
~240ÀÏ 
2026-03-25 64%
228,480,000
ÁøÇà
¹°°Ç¸í¼¼¼­ ÇöȲÁ¶»ç¼­ ¹®°ÇÁ¢¼ö ¼Û´Þ³»¿ª

°¨Á¤Æò°¡ÇöȲ

¸ñ·Ï ÁÖ¼Ò ±¸Á¶/¿ëµµ/´ëÁö±Ç ¸éÀû ºñ°í
´ëÁö±Ç
µ¶»êµ¿ 1009-60 435.5ºÐÀÇ 21.42 21.42 §³
(6.48Æò)
°Ç¹°
µ¶»êµ¿ 1009-60 Á¦101µ¿ Á¦5Ãþ Á¦502È£ ö±ÙÄÜÅ©¸®Æ®±¸Á¶ 43.05 §³
(13.02Æò)
1) À§Ä¡/µµ½ÃÁö¿ª/ÁÖ°ÅÁö¿ª/Áذø¾÷Áö¿ª/¹ö½ºÁ¤·ùÀå/ö±ÙÄÜÅ©¸®Æ®±¸Á¶ ´õº¸±â
°¨Á¤Æò°¡ ¿äÇ×Ç¥
1)À§Ä¡ ¹× ÁÖÀ§È¯°æ
º»°ÇÀº ¼­¿ïƯº°½Ã ±Ýõ±¸ µ¶»êµ¿ ¼ÒÀç ""µ¶»ê¿ª(1È£¼±)"" ³²µ¿Ãø ±Ù°Å¸®¿¡ À§Ä¡Çϸç, º»°Ç
ÁÖÀ§´Â °øµ¿ÁÖÅÃ, ¿ÀÇǽºÅÚ, °¢Á¾ ±Ù¸°»ýȰ½Ã¼³ ¹× Çб³ µîÀÌ ¼ÒÀçÇÏ´Â ÁÖ°ÅÁö¿ªÀÓ.


2)±³Åë»óȲ
º»°Ç±îÁö Â÷·®ÀÇ ÃâÀÔÀÌ °¡´ÉÇϸç, Àαٿ¡ ¹ö½ºÁ¤·ùÀå, ±Ù°Å¸®¿¡ µ¶»ê¿ª(1È£¼±)ÀÌ ¼ÒÀçÇÏ´Â
µî ´ëÁß±³Åë ¿©°ÇÀº º¸ÅëÀÓ.


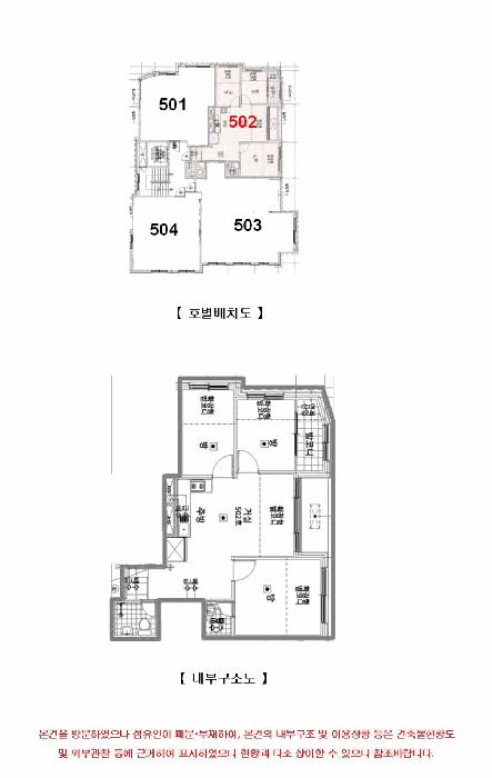
3)°Ç¹°ÀÇ ±¸Á¶
ö±ÙÄÜÅ©¸®Æ®±¸Á¶ (ö±Ù)ÄÜÅ©¸®Æ®ÁöºØ Á¦101µ¿ Á¦5Ãþ Á¦502È£·Î¼­(»ç¿ë½ÂÀÎÀÏ:2019.03.07),

¿Üº® : ¿ÜÀå¼®Àç ºÙÀÓ µî,
³»º® : -,
âȣ : ¼¦½Ãâ µîÀÓ.


4)ÀÌ¿ë»óÅÂ
µµ½ÃÇü»ýȰÁÖÅÃ(´ÜÁöÇü´Ù¼¼´ë)À¸·Î ÀÌ¿ëÁßÀÓ.<ÈÄ÷, ""³»ºÎ±¸Á¶µµ""ÂüÁ¶>

5)¼³ºñ³»¿ª
À§»ý¼³ºñ, ±Þ¹è¼ö¼³ºñ, ½Â°­±â ¹× ³­¹æ¼³ºñ µîÀÌ ±¸ºñµÇ¾î ÀÖÀ½.

6)ÅäÁöÀÇ Çü»ó ¹× ÀÌ¿ë»óÅÂ
¿Ï°æ»çÁö¸¦ Á¶¼ºÇÑ ´ëü·Î »ç´Ù¸®Çü ÅäÁö·Î¼­, °ÇºÎÁö(°øµ¿ÁÖÅà ¹× ¿ÀÇǽºÅÚ)·Î ÀÌ¿ëÁßÀÓ.


7)ÀÎÁ¢ µµ·Î»óŵî
ºÏÃø ¹× µ¿ÃøÀ¸·Î ¼¼·Î(°¡)¿Í °¢°¢ Á¢ÇÔ.

8)ÅäÁöÀÌ¿ë°èȹ ¹× Á¦ÇÑ»óÅÂ
µµ½ÃÁö¿ª, Áذø¾÷Áö¿ª, °¡Ãà»çÀ°Á¦Çѱ¸¿ª, °¡·Î±¸¿ªº° ÃÖ°í³ôÀÌ Á¦ÇÑÁö¿ª(2015-08-27)(¼­¿ï
Ưº°½Ã°í½Ã Á¦2015-255È£), Àå¾Ö¹°Á¦ÇÑÇ¥¸é±¸¿ª(ÁøÀÔÇ¥¸é±¸¿ª), ´ë°ø¹æ¾îÇùÁ¶±¸¿ª(À§Å¹°íµµ:
ÇØ¹ß194m(Áö¹Ý+°ÇÃà+¿Áž µî), À°±º¼öµµ¹æÀ§»ç·ÉºÎ(02-524-3313)°üÇÒ), °ú¹Ð¾ïÁ¦±Ç¿ªÀÓ.


9)°øºÎ¿ÍÀÇ Â÷ÀÌ
-.
10)±âŸÂü°í»çÇ×(ÀÓ´ë°ü·Ê ¹× ±âŸ)
- ÀÓ´ë°ü°è ¹Ì»óÀÓ.


°ÇÃ๰ÇöȲ

¼ÒÀçÁö ¼­¿ïƯº°½Ã ±Ýõ±¸ µ¶»êµ¿ 1009-60¹øÁö
´ëÁö¸éÀû 400.06§³
(121.23Æò)
¿¬¸éÀû 1278.67§³
(387.48Æò)
°ÇÃà¸éÀû 228.55§³
(69.26Æò)
¿ëÀû·ü»êÁ¤
¿¬¸éÀû
997.56§³
(302.29Æò)
°ÇÆóÀ² 57.13% ¿ëÀû·ü 249.35%
Áö»óÃþ¼ö 7Ãþ ÁöÇÏÃþ¼ö 1Ãþ
ÁÖ¿ëµµ °øµ¿ÁÖÅà ±¸Á¶ ö±ÙÄÜÅ©¸®Æ®±¸Á¶
Âø°øÀÏÀÚ 2018.05.09 »ç¿ë½ÂÀÎÀÏÀÚ 2019.03.07
°ÇÃ๰Ãþº°ÇöȲ [º¸±â]


±¹ÅäºÎ½Ç°Å·¡°¡ ¼­¿ïƯº°½Ã ±Ýõ±¸ µ¶»êµ¿

¡Ü ¸Å¸Å

¸éÀû(§³), ±Ý¾×(¸¸¿ø)

¡Ü Àü¼¼

¸éÀû(§³), ±Ý¾×(¸¸¿ø)

°è¾àÀϰǹ°¸íĪÃþ¿¬¸éÀûº¸Áõ±Ý¿ù¼¼°ÇÃà
26.02.28THEVIEW1527.520,50002020
26.02.28(1072-10)259.0419,20002008
26.02.28±Ýõ±×¸°¸Ç¼Ç456.5814,00001995
26.02.27µ¶»êÿ½Ã2Aµ¿352.9531,000252024
26.02.27JJÆÓ¸®½º3Â÷351.8530,000152023
¢Ñ ´õº¸±â

µî±âºÎµîº» ¿ä¾à(°Ç¹°)

  Á¢¼öÀÏÀÚ µî±â¸ñÀû/±Ç¸®ÀÚ ±Ç¸®±Ý¾× ±âÁØ
1 2019³â8¿ù27ÀÏ
¼ÒÀ¯±Ç
±èOO
¼Ò¸ê
2 2022³â11¿ù7ÀÏ
¾àÁ¤/±ÝÁö»çÇ×/ȯ¸ÅƯ¾à
Àμö
3 2025³â7¿ù23ÀÏ
ÀÓÂ÷±Ç¼³Á¤
ÁøOO
339,150,000 Àμö
4 2025³â7¿ù30ÀÏ
°­Á¦°æ¸Å
ÁøOO
¼Ò¸ê±âÁØ

ÀÓÂ÷ÀÎÇöȲ (¹è´ç¿ä±¸Á¾±âÀÏ: 2025-10-30)

ÀÓÂ÷ÀÎ ¿ëµµ/Á¡À¯ º¸Áõ±Ý/¿ù¼¼ ´ëÇ×·Â
ÀüÀÔÀÏ/È®Á¤ÀÏ ¹è´ç¿ä±¸ ºñ°í
ÀÌOO ¹Ì»ó ¹Ì»ó
[¿ù]¹Ì»ó
O
2021.09.28.
¹Ì»ó
ÁøOO 502È£ 339,150,000
O
2021.09.28.
2021.07.16.
2025.8.11. 2021.09.28.~2024.09.27.
ºñ°í
(¸Å°¢¹°°Ç
¸í¼¼¼­)
À̼ö°æ : ½Åûä±ÇÀÚÀÇ ¹è¿ìÀÚÀÓ ÁøÄ¡Çå : ÀÌ »ç°Ç ½Åûä±ÇÀÚÀ̸ç ÁÖÅÃÀÓÂ÷±Çµî±âÀÏÀº 2025.07.23.ÀÓ

¿©ÀÇÁÖ°æ¸Å Á¶¾ð ÇÑ ¸¶µð

¸Å°¢¹°°Ç¸í¼¼ ºñ°í³­¿¡ ±âÀçµÈ ³»¿ëÀÔ´Ï´Ù.
À̼ö°æ : ½Åûä±ÇÀÚÀÇ ¹è¿ìÀÚÀÓ ÁøÄ¡Çå : ÀÌ »ç°Ç ½Åûä±ÇÀÚÀ̸ç ÁÖÅÃÀÓÂ÷±Çµî±âÀÏÀº 2025.07.23.ÀÓ
³«Âû ÈÄ¿¡ µî±âºÎ»ó ¼Ò¸êµÇÁö ¾Ê´Â ±Ç¸®ÀÔ´Ï´Ù.
- ¸Å¼öÀο¡°Ô ´ëÇ×ÇÒ ¼ö ÀÖ´Â ÀÓÂ÷ÀÎÀÌ ÀÖÀ½(ÀÓ´ëÂ÷º¸Áõ±Ý 339,150,000¿ø, ÀüÀÔÀÏÀÚ 2021.09.28., È®Á¤ÀÏÀÚ 2021.07.16.) - ¹è´ç¿¡¼­ º¸Áõ±ÝÀÌ Àü¾× º¯Á¦µÇÁö ¾Æ´ÏÇÏ¸é ¸Å¼öÀÎÀÌ ÀμöÇÔ
¡Ø ¹°°Ç Ű¿öµå : µµ½ÃÁö¿ª/ÁÖ°ÅÁö¿ª/°ø¾÷Áö¿ª/Áذø¾÷Áö¿ª/¹ö½ºÁ¤·ùÀå/ö±ÙÄÜÅ©¸®Æ®±¸Á¶
Àüü ÄÁ¼³ÆÃÀÌ ºÎ´ã½º·¯¿ì½Å°¡¿ä? ±Ç¸®ºÐ¼®¸¸ ÀÇ·ÚÇϼŵµ ±¦Âú½À´Ï´Ù!
½Ç¼Ó ÀÖ°Ô Çٽɸ¸ ´ãÀº ±Ç¸®ºÐ¼® ¼­ºñ½º!! (±Ç¸®ºÐ¼® + ½Ã¼¼Á¶»ç + ³«Âû°¡ »êÁ¤ + ÀÔÂûÇ¥ ÀÛ¼º¹æ¹ý ±îÁö)
ÃÖ´ë Àüü ÄÁ¼³ÆÃ ºñ¿ëÀÇ 10% ¼öÁØ !!

ÁÖÀÇ»çÇ× (ÃÖ¼±¼øÀ§ ¼³Á¤ÀÏ: 2025.07.30. ¼³Á¤ °­Á¦°æ¸Å°³½Ã°áÁ¤)

¸Å°¢À¸·Î ¼Ò¸êµÇÁö ¾Ê´Â µî±âºÎ±Ç¸®: - ¸Å¼öÀο¡°Ô ´ëÇ×ÇÒ ¼ö ÀÖ´Â ÀÓÂ÷ÀÎÀÌ ÀÖÀ½(ÀÓ´ëÂ÷º¸Áõ±Ý 339,150,000¿ø, ÀüÀÔÀÏÀÚ 2021.09.28., È®Á¤ÀÏÀÚ 2021.07.16.) - ¹è´ç¿¡¼­ º¸Áõ±ÝÀÌ Àü¾× º¯Á¦µÇÁö ¾Æ´ÏÇÏ¸é ¸Å¼öÀÎÀÌ ÀμöÇÔ
¸Å°¢À¸·Î ¼³Á¤µÈ °ÍÀ¸·Î º¸´Â Áö»ó±Ç:
ÁýÇÕ°ÇÃ๰´ëÀå»ó 'µµ½ÃÇü»ýȰÁÖÅÃ(´ÜÁöÇü´Ù¼¼´ë)'À¸·Î µîÀçµÇ¾î ÀÖÀ½
¡Ø¹Ì³³°ü¸®ºñ(°ø¿ë) Àμö¿©ºÎ¸¦ ÀÔÂû Àü¿¡ È®ÀÎÇϽñ⠹ٶø´Ï´Ù

 

Áö¿ªºÐ¼®

ÁöÇÏö¸í Á÷¼±°Å¸®

Çб³¸í ÀüÈ­¹øÈ£ ÁÖ¼Ò Á÷¼±°Å¸®

¹ý¿ø

¼­¿ï³²ºÎÁö¹æ¹ý¿ø (080-88)¼­¿ïƯº°½Ã ¾çõ±¸ ½Å¿ù·Î 386(½ÅÁ¤µ¿)
´ëÇ¥ : 02)2192-1114
°üÇÒÁö¿ª : ¿µµîÆ÷±¸, °­¼­±¸, ¾çõ±¸, ±¸·Î±¸, ±Ýõ±¸

µî±â¼Ò ¼­¿ï³²ºÎÁö¹æ¹ý¿ø º»¿ø µî±â±¹ (´ëÇ¥:1544-0773, ÆÑ½º:(02)2629-7307, ¼­¿ïƯº°½Ã ¿µµîÆ÷±¸ °æÀηΠ772 (¹®·¡µ¿ 1°¡))
¼¼¹«¼­ ±Ýõ¼¼¹«¼­ (´ëÇ¥:02-850-420, ÆÑ½º:02-861-1475, ¼­¿ïƯº°½Ã ±Ýõ±¸ ½ÃÈï´ë·Î152±æ 11-21 (µ¶»êµ¿))

Àαٳ«ÂûÅë°è

±â°£ ¸Å°¢°Ç¼ö Æò±Õ°¨Á¤°¡
Æò±Õ¸Å°¢°¡
¸Å°¢°¡À²
Æò±ÕÀ¯Âû¼ö
3°³¿ù 23°Ç 572,238,584¿ø
286,224,487¿ø
54%
3.5ȸ
6°³¿ù 37°Ç 564,229,390¿ø
290,274,441¿ø
55%
3.3ȸ
12°³¿ù 52°Ç 524,238,197¿ø
287,575,712¿ø
59%
3.1ȸ


º» °æ¸ÅÁ¤º¸´Â ¹ý¿øÀÚ·á¿Í ÀÏÄ¡Çϵµ·Ï ÇÏ¿´À¸³ª ±Ç¸®»çÇ׺¯µ¿, ÀÔ·ÂÂø¿À µîÀÇ ¿øÀÎÀ¸·Î »ç½Ç°ú ´Ù¸¦ ¼ö ÀÖ½À´Ï´Ù. ÀÌ¿ë¾à°ü¿¡ ÀǰЏéÃ¥Á¶°ÇÀ¸·Î Á¦°øµÊÀ» ¾Ë¸®¸ç, °æ¸ÅÀÔÂû½Ã ¹Ýµå½Ã °ü·Ã °øºÎ¸¦ ÀçÈ®ÀÎÇϽñ⠹ٶø´Ï´Ù. º¸´Ù Æí¸®ÇÑ °æ¸ÅÁ¤º¸ Á¦°øÀ» À§ÇØ Áö¼ÓÀûÀ¸·Î °³¼±ÇϰڽÀ´Ï´Ù. ÀÌ¿ëÇØ Áּż­ °¨»çÇÕ´Ï´Ù.
°ü½É¹°°ÇÀ¸·Î µî·ÏÇÕ´Ï´Ù