1328
´Ù¼¼´ë(ºô¶ó)
ÀÇÁ¤ºÎÁö¹æ¹ý¿ø °í¾çÁö¿ø
 °¨Á¤°¡248,000,000 ¿ø
 ÃÖÀú°¡(70%) 173,600,000 ¿ø
 º¸Áõ±Ý(10%) 17,360,000 ¿ø
 Ã»±¸¾×297,078,790 ¿ø
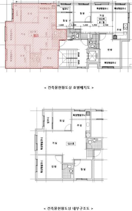
°æ±âµµ ÆÄÁֽà ÆÄÁÖÀ¾ ºÀ¼­»ê·Î 349, 1µ¿ 501È£
°æ±âµµ ÆÄÁֽà ÆÄÁÖÀ¾ ÆÄÁÖ¸® 520-6
»ç°Ç¹øÈ£ 2024Ÿ°æ84744
°æ¸ÅÁ¾·ùºÎµ¿»ê°­Á¦°æ¸Å
¸Å°¢´ë»óÅäÁö ¹× °Ç¹°Àϰý ¸Å°¢
¸Å°¢±âÀÏ    2026.06.17(¼ö) 10:00 ÀÔÂû 34ÀÏÀü    
ÅäÁö¸éÀû48.52§³(14.68 Æò)
°Ç¹°¸éÀû58.84§³(17.80 Æò)
乫/¼ÒÀ¯ÀÚ±ÇOO / ±ÇOO
ä±ÇÀÚÁÖOOOOOOO
±è¼ºÈÆ ´ëÇ¥ÀÌ»ç
°øÀÎÁß°³»ç, ºÎµ¿»ê°ø°æ¸Å»ç, ÇѾç´ëÇб³ Á¹¾÷
Àü) ÅÂÀÎÄÁ¼³ÆÃ(ÁÖ) ´ëÇ¥ÀÌ»ç
Àü) ¿©ÀÇÁֺε¿»êÁß°³¹ýÀÎ(ÁÖ) ´ëÇ¥ÀÌ»ç
Çö) ¿©ÀÇÁÖ°æ¸Å¹ýÀÎ ´ëÇ¥ÀÌ»ç
010-2371-3237
ÆäÀ̽ººÏ Æ®À§ÅÍ ±¸±Û+
īī¿À½ºÅ丮
īī¿ÀÅå sms¹®ÀÚº¸³»±â
 

±âÀϳ»¿ª

°æ°ú ³¯Â¥ Àú°¨ ÃÖÀú°¡ °á°ú
Á¢¼öÀÏ 2024-11-06 °æ¸ÅÁ¢¼ö
~1ÀÏ 
2024-11-07 °æ¸Å°³½Ã°áÁ¤
~376ÀÏ 
2025-11-17 ¹è´ç¿ä±¸Á¾±âÀÏ
~399ÀÏ 
2025-12-10 100%
248,000,000
À¯Âû
~441ÀÏ 
2026-01-21 70%
173,600,000
À¯Âû
~483ÀÏ 
2026-03-04 49%
121,520,000
À¯Âû
~518ÀÏ 
2026-04-08 34%
85,064,000
À¯Âû
~553ÀÏ 
2026-05-13 100%
248,000,000
À¯Âû
~588ÀÏ 
2026-06-17 70%
173,600,000
ÁøÇà
¹°°Ç¸í¼¼¼­ ÇöȲÁ¶»ç¼­ ¹®°ÇÁ¢¼ö ¼Û´Þ³»¿ª

°¨Á¤Æò°¡ÇöȲ

¸ñ·Ï ÁÖ¼Ò ±¸Á¶/¿ëµµ/´ëÁö±Ç ¸éÀû ºñ°í
´ëÁö±Ç
ÆÄÁÖ¸® 520-6 834ºÐÀÇ 48.52 48.52 §³
(14.68Æò)
°Ç¹°
ÆÄÁÖ¸® 520-6 1µ¿ 501È£ ö±ÙÄÜÅ©¸®Æ®±¸Á¶ 58.84 §³
(17.80Æò)
1) À§Ä¡/µµ½ÃÁö¿ª/Á¦1Á¾ÀϹÝÁÖ°ÅÁö¿ª/³ë¼±¹ö½º Á¤·ùÀå/ö±ÙÄÜÅ©¸®Æ®±¸Á¶ ´õº¸±â
°¨Á¤Æò°¡ ¿äÇ×Ç¥
1)À§Ä¡ ¹× ÁÖÀ§È¯°æ
º»°ÇÀº °æ±âµµ ÆÄÁֽà ÆÄÁÖÀ¾ ÆÄÁÖ¸® ¼ÒÀç"ÆÄÁÖÃʵîÇб³" ³²¼­Ãø Àαٿ¡ À§Ä¡Çϸç, ÁÖÀ§´Â ´Ù¼¼´ëÁÖÅÃ, ³ó°æÁö, ÀÓ¾ß µîÀÌ È¥ÀçÇÏ´Â Áö¿ªÀ¸·Î Á¦¹Ý ÁÖÀ§È¯°æÀº º¸ÅëÀÔ´Ï´Ù.
2)±³Åë»óȲ
º»°Ç±îÁö Â÷·® Áø,ÃâÀÔÀÌ °¡´ÉÇϸç, Àαٿ¡ ³ë¼±¹ö½º Á¤·ùÀåÀÌ ¼ÒÀçÇÏ´Â µî Á¦¹Ý±³Åë»óȲÀº º¸ÅëÇÕ´Ï´Ù.
3)°Ç¹°ÀÇ ±¸Á¶
ö±ÙÄÜÅ©¸®Æ®±¸Á¶ (ö±Ù)ÄÜÅ©¸®Æ®ÁöºØ 5Ãþ Áß 5Ãþ 501È£·Î¼­,

¿Üº®: µ¹ºÙÀÓ ¸¶°¨ µî
âȣ: ¼¦½Ã âȣÀÓ.
4)ÀÌ¿ë»óÅÂ
´Ù¼¼´ë ÁÖÅÃ(ÈÄ÷ "³»ºÎ±¸Á¶µµ" ÂüÁ¶)·Î ÀÌ¿ë Áß ÀÔ´Ï´Ù.
5)¼³ºñ³»¿ª
À§»ý ¹× ±Þ,¹è¼ö¼³ºñ, ³­¹æ¼³ºñ, ½Â°­±â¼³ºñ µîÀÌ µÇ¾î ÀÖ½À´Ï´Ù.




6)ÅäÁöÀÇ Çü»ó ¹× ÀÌ¿ë»óÅÂ
ÀÚüÁö¹Ý ÆòźÇÏ°Ô Á¶¼ºµÈ »ç´Ù¸®ÇüÀÇ ÅäÁö·Î¼­, ´Ù¼¼´ëÁÖÅà °ÇºÎÁö·Î ÀÌ¿ë Áß ÀÔ´Ï´Ù.
7)ÀÎÁ¢ µµ·Î»óŵî
º»°Ç ³²ÃøÀ¸·Î ³ëÆø 8¹ÌÅÍ ³»¿ÜÀÇ ¿Õº¹ 2Â÷¼± µµ·Î¿Í Á¢ÇÕ´Ï´Ù.
8)ÅäÁöÀÌ¿ë°èȹ ¹× Á¦ÇÑ»óÅÂ
µµ½ÃÁö¿ª, Á¦1Á¾ÀϹÝÁÖ°ÅÁö¿ª °¡Ãà»çÀ°Á¦Çѱ¸¿ª(ÀüºÎÁ¦ÇÑ)<°¡ÃàºÐ´¢ÀÇ °ü¸® ¹× À̿뿡 °üÇÑ ¹ý·ü>, »ó´ëº¸È£±¸¿ª(ÆÄÁÖÃʵîÇб³, ¹Ýµå½Ã ÆÄÁÖ±³À°Áö¿øÃ»¿¡ ÀçÈ®ÀÎ ¹Ù¶÷,TEL 031-940-7245)<±³À°È¯°æ º¸È£¿¡ °üÇÑ ¹ý·ü>
9)°øºÎ¿ÍÀÇ Â÷ÀÌ
¾ø½À´Ï´Ù.
10)±âŸÂü°í»çÇ×(ÀÓ´ë°ü·Ê ¹× ±âŸ)
ÀÓ´ë°ü°è ¹Ì»óÀÔ´Ï´Ù.
Âü°í
»çÇ×
½Åûä±ÇÀÚÀÎ ÁÖÅõµ½Ãº¸Áõ°ø»ç°¡ ¡®ÀÓÂ÷º¸Áõ±Ý¿¡ ´ëÇÏ¿© ¿ì¼±º¯Á¦±Ç¸¸ ÁÖÀåÇÏ°í ´ëÇ×·ÂÀº Æ÷±âÇϸç, Àü¾×À» º¯Á¦¹ÞÁö ¸øÇÏ´õ¶óµµ ÀÓÂ÷±Çµî±â¸¦ ¸»¼ÒÇÔ¿¡ µ¿ÀÇÇÑ´Ù.¡¯´Â ³»¿ëÀÇ 2026.04.24.ÀÚ ÀμöÁ¶°Çº¯°æÈ®¾à¼­(´ëÇ×·ÂÆ÷±âÈ®¾à¼­)¸¦ Á¦ÃâÇÔ.
1. º»°Ç °Ç¹°Àº ö±ÙÄÜÅ©¸®Æ®±¸Á¶ (ö±Ù)ÄÜÅ©¸®Æ®ÁöºØ 5Ãþ °øµ¿ÁÖÅÃÀÓ. 2. ½Â°­±â¸¦ ÅëÇØ ÀüÀ¯ºÎºÐÀ» ÃâÀÔÇÒ ¼ö ÀÖÀ½.

°ÇÃ๰ÇöȲ

¼ÒÀçÁö °æ±âµµ ÆÄÁֽà ÆÄÁÖÀ¾ ÆÄÁÖ¸® 520-6¹øÁö
´ëÁö¸éÀû   ¿¬¸éÀû 659.73§³
(199.92Æò)
°ÇÃà¸éÀû 223.99§³
(67.88Æò)
¿ëÀû·ü»êÁ¤
¿¬¸éÀû
659.73§³
(199.92Æò)
°ÇÆóÀ²   ¿ëÀû·ü  
Áö»óÃþ¼ö 5Ãþ ÁöÇÏÃþ¼ö  
ÁÖ¿ëµµ °øµ¿ÁÖÅà ±¸Á¶ ö±ÙÄÜÅ©¸®Æ®±¸Á¶
Âø°øÀÏÀÚ 2016.04.19 »ç¿ë½ÂÀÎÀÏÀÚ 2017.06.30
°ÇÃ๰Ãþº°ÇöȲ [º¸±â]


±¹ÅäºÎ½Ç°Å·¡°¡ °æ±âµµ ÆÄÁֽà ÆÄÁÖÀ¾

¡Ü ¸Å¸Å

¸éÀû(§³), ±Ý¾×(¸¸¿ø)

¡Ü Àü¼¼

¸éÀû(§³), ±Ý¾×(¸¸¿ø)

°è¾àÀϰǹ°¸íĪÃþ¿¬¸éÀûº¸Áõ±Ý¿ù¼¼°ÇÃà
26.04.27¿¹Àººô¶óAµ¿471.15,00002002
26.04.25ÇÇ¿£ÁöÄ«¿îƼ2Â÷°¡,³ªµ¿268.644,6812010
26.04.24¹Ì¼ººô¶ó°¡,³ªµ¿247.57500401997
26.04.24±¸¿ùÀǶã259.8317,5002022
26.04.24±¸¿ùÀǶã259.8317,5002022
¢Ñ ´õº¸±â

µî±âºÎµîº» ¿ä¾à(°Ç¹°)

  Á¢¼öÀÏÀÚ µî±â¸ñÀû/±Ç¸®ÀÚ ±Ç¸®±Ý¾× ±âÁØ
1 2022³â12¿ù1ÀÏ
¼ÒÀ¯±Ç
±ÇOO
¼Ò¸ê
2 2023³â10¿ù4ÀÏ
ÀÓÂ÷±Ç¼³Á¤
¹ÚOO
280,000,000 Àμö
3 2024³â11¿ù7ÀÏ
°­Á¦°æ¸Å
ÁÖOOOO
¼Ò¸ê±âÁØ

ÀÓÂ÷ÀÎÇöȲ (¹è´ç¿ä±¸Á¾±âÀÏ: 2025-11-17)

ÀÓÂ÷ÀÎ ¿ëµµ/Á¡À¯ º¸Áõ±Ý/¿ù¼¼ ´ëÇ×·Â
ÀüÀÔÀÏ/È®Á¤ÀÏ ¹è´ç¿ä±¸ ºñ°í
¹ÚOO ÀüºÎ 280,000,000
O
2022.12.21.
2022.12.07.
2022.12.21.~
¼­OO
O
2024.03.19
ºñ°í
(¸Å°¢¹°°Ç
¸í¼¼¼­)
¹Úżº:ÀÓÂ÷±ÇÀÚ ¹ÚżºÀÇ ½Â°èÀÎ ½Åûä±ÇÀÚ ÁÖÅõµ½Ãº¸Áõ°ø»ç°¡ º¸Áõ±ÝÀü¾×¿¡ ´ëÇÏ¿© 2024.11.06.ÀÚ·Î °æ¸Å½ÅûÇÔ

¿©ÀÇÁÖ°æ¸Å Á¶¾ð ÇÑ ¸¶µð

¸Å°¢¹°°Ç¸í¼¼ ºñ°í³­¿¡ ±âÀçµÈ ³»¿ëÀÔ´Ï´Ù.
¹Úżº:ÀÓÂ÷±ÇÀÚ ¹ÚżºÀÇ ½Â°èÀÎ ½Åûä±ÇÀÚ ÁÖÅõµ½Ãº¸Áõ°ø»ç°¡ º¸Áõ±ÝÀü¾×¿¡ ´ëÇÏ¿© 2024.11.06.ÀÚ·Î °æ¸Å½ÅûÇÔ
³«Âû ÈÄ¿¡ µî±âºÎ»ó ¼Ò¸êµÇÁö ¾Ê´Â ±Ç¸®´Â ¾ø½À´Ï´Ù.
´ë·«ÀûÀÎ °ËÅäÀǰßÀ̹ǷΠÀÔÂûÀü¿¡ Àü¹®°¡ÀÇ Á¶¾ðÀ» Âü°íÇØ º¸½Ã±æ ±ÇÇØµå¸³´Ï´Ù.
¼±¼øÀ§ ÀÓÂ÷±Çµî±â°¡ µÇ¾î ÀÖ½À´Ï´Ù.
°¨Á¤ ½ÃÁ¡ÀÌ ¿À·¡µÇ¾î °¡°Ýº¯µ¿ÀÌ ÀÖÀ» ¼ö ÀÖ½À´Ï´Ù.
ÀÌ ¹°°ÇÀº 2024³â 11¿ù 7ÀÏ¿¡ °æ¸Å°¡ °³½ÃµÇ¾ú´Âµ¥ Áö±Ý ½ÃÁ¡À¸·Î ¾à 553ÀÏÀÌ ÀÌ °æ°úµÇ¾ú½À´Ï´Ù. °¨Á¤°¡°ÝÀº 553ÀÏ Àü ½ÃÁ¡¿¡¼­ Æò°¡ÇÑ °¡°ÝÀ̹ǷΠ±× »çÀÌ °¡°Ýº¯µ¿ÀÌ ÀÖÀ» ¼ö ÀÖ½À´Ï´Ù. ƯÈ÷ °¡°Ý º¯µ¿ÀÌ ½ÉÇÑ ¾ÆÆÄÆ®´Â À¯ÀÇÇÏ¼Å¾ß ÇÕ´Ï´Ù. °¨Á¤°¡°ÝÀ» ³Ê¹« ¹ÏÁö ¸¶½Ã°í ÇöÀç ½Ç¸Å¹° °¡°Ý°ú ½Ç°Å·¡°¡¸¦ È®ÀÎÇϽñ⠹ٶø´Ï´Ù.
°£È¤ °¨Á¤°¡°Ýº¸´Ù ³ô°Ô ³«ÂûµÇ´Â °æ¿ì°¡ Àִµ¥ ´ëºÎºÐ ÀÌ·± ÀÌÀ¯ÀÔ´Ï´Ù.
¡Ø ¹°°Ç Ű¿öµå : µµ½ÃÁö¿ª/ÁÖ°ÅÁö¿ª/Á¦1Á¾ÀϹÝÁÖ°ÅÁö¿ª/³ë¼±¹ö½º Á¤·ùÀå/ö±ÙÄÜÅ©¸®Æ®±¸Á¶
Àüü ÄÁ¼³ÆÃÀÌ ºÎ´ã½º·¯¿ì½Å°¡¿ä? ±Ç¸®ºÐ¼®¸¸ ÀÇ·ÚÇϼŵµ ±¦Âú½À´Ï´Ù!
½Ç¼Ó ÀÖ°Ô Çٽɸ¸ ´ãÀº ±Ç¸®ºÐ¼® ¼­ºñ½º!! (±Ç¸®ºÐ¼® + ½Ã¼¼Á¶»ç + ³«Âû°¡ »êÁ¤ + ÀÔÂûÇ¥ ÀÛ¼º¹æ¹ý ±îÁö)
ÃÖ´ë Àüü ÄÁ¼³ÆÃ ºñ¿ëÀÇ 10% ¼öÁØ !!

ÁÖÀÇ»çÇ× (ÃÖ¼±¼øÀ§ ¼³Á¤ÀÏ: 2024. 11. 7.°³½Ã°áÁ¤ ¼³Á¤)

¸Å°¢À¸·Î ¼Ò¸êµÇÁö ¾Ê´Â µî±âºÎ±Ç¸®:
¸Å°¢À¸·Î ¼³Á¤µÈ °ÍÀ¸·Î º¸´Â Áö»ó±Ç:
½Åûä±ÇÀÚÀÎ ÁÖÅõµ½Ãº¸Áõ°ø»ç°¡ ¡®ÀÓÂ÷º¸Áõ±Ý¿¡ ´ëÇÏ¿© ¿ì¼±º¯Á¦±Ç¸¸ ÁÖÀåÇÏ°í ´ëÇ×·ÂÀº Æ÷±âÇϸç, Àü¾×À» º¯Á¦¹ÞÁö ¸øÇÏ´õ¶ó µµ ÀÓÂ÷±Çµî±â¸¦ ¸»¼ÒÇÔ¿¡ µ¿ÀÇÇÑ´Ù.¡¯´Â ³»¿ëÀÇ 2026.04.24.ÀÚ ÀμöÁ¶°Çº¯°æÈ®¾à¼­(´ëÇ×·ÂÆ÷±âÈ®¾à¼­)¸¦ Á¦ÃâÇÔ.
¡Ø¹Ì³³°ü¸®ºñ(°ø¿ë) Àμö¿©ºÎ¸¦ ÀÔÂû Àü¿¡ È®ÀÎÇϽñ⠹ٶø´Ï´Ù

 

Áö¿ªºÐ¼®

ÁöÇÏö¸í Á÷¼±°Å¸®

Çб³¸í ÀüÈ­¹øÈ£ ÁÖ¼Ò Á÷¼±°Å¸®

¹ý¿ø

ÀÇÁ¤ºÎÁö¹æ¹ý¿ø °í¾çÁö¿ø (104-13)°æ±âµµ °í¾ç½Ã Àϻ굿±¸ Àå¹é·Î 209
´ëÇ¥ : 031)920-6114, ¾ß°£ : 031)920-6550, ÆÑ½º : 031)920-6119
°üÇÒÁö¿ª : °í¾ç½Ã, ÆÄÁÖ½Ã

µî±â¼Ò ÀÇÁ¤ºÎÁö¹æ¹ý¿ø °í¾çÁö¿ø ÆÄÁÖµî±â¼Ò (´ëÇ¥:1544-0773, ÆÑ½º:(031)945-4764, 3628, °æ±âµµ ÆÄÁֽà ±ÝÁ¤·Î 45 (±ÝÃ̵¿ 947-28))
¼¼¹«¼­ ÆÄÁÖ¼¼¹«¼­ (´ëÇ¥:031-956-02, ÆÑ½º:031-957-0315, °æ±âµµ ÆÄÁֽà ±Ý¸ª¿ª·Î 62 (±ÝÃ̵¿))

Àαٳ«ÂûÅë°è

±â°£ ¸Å°¢°Ç¼ö Æò±Õ°¨Á¤°¡
Æò±Õ¸Å°¢°¡
¸Å°¢°¡À²
Æò±ÕÀ¯Âû¼ö
3°³¿ù 28°Ç 187,653,571¿ø
92,479,484¿ø
50%
2.4ȸ
6°³¿ù 38°Ç 199,218,421¿ø
98,777,093¿ø
51%
2.5ȸ
12°³¿ù 51°Ç 203,339,216¿ø
107,133,196¿ø
54%
2.3ȸ


º» °æ¸ÅÁ¤º¸´Â ¹ý¿øÀÚ·á¿Í ÀÏÄ¡Çϵµ·Ï ÇÏ¿´À¸³ª ±Ç¸®»çÇ׺¯µ¿, ÀÔ·ÂÂø¿À µîÀÇ ¿øÀÎÀ¸·Î »ç½Ç°ú ´Ù¸¦ ¼ö ÀÖ½À´Ï´Ù. ÀÌ¿ë¾à°ü¿¡ ÀǰЏéÃ¥Á¶°ÇÀ¸·Î Á¦°øµÊÀ» ¾Ë¸®¸ç, °æ¸ÅÀÔÂû½Ã ¹Ýµå½Ã °ü·Ã °øºÎ¸¦ ÀçÈ®ÀÎÇϽñ⠹ٶø´Ï´Ù. º¸´Ù Æí¸®ÇÑ °æ¸ÅÁ¤º¸ Á¦°øÀ» À§ÇØ Áö¼ÓÀûÀ¸·Î °³¼±ÇϰڽÀ´Ï´Ù. ÀÌ¿ëÇØ Áּż­ °¨»çÇÕ´Ï´Ù.
°ü½É¹°°ÇÀ¸·Î µî·ÏÇÕ´Ï´Ù