55
¾ÆÆÄÆ®
ÀÇÁ¤ºÎÁö¹æ¹ý¿ø °í¾çÁö¿ø
 °¨Á¤°¡742,000,000 ¿ø
 ÃÖÀú°¡(100%) 742,000,000 ¿ø
 º¸Áõ±Ý(10%) 74,200,000 ¿ø
 Ã»±¸¾×700,000,000 ¿ø
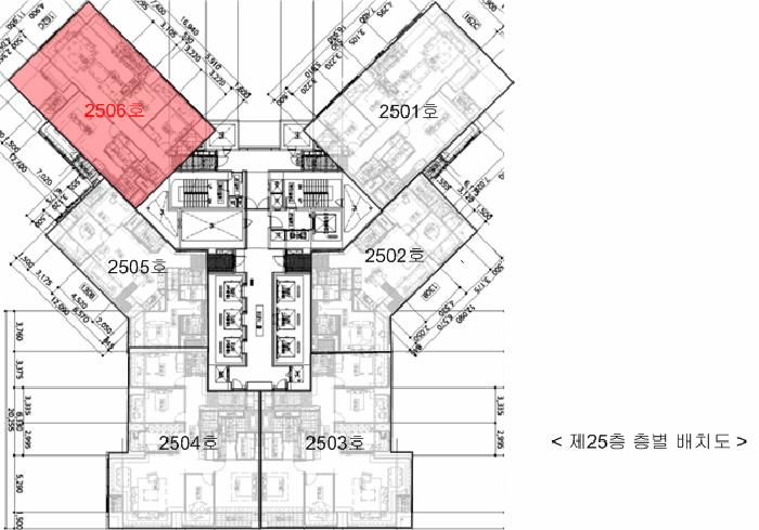
°æ±âµµ °í¾ç½Ã Àϻ꼭±¸ źÇöµ¿ 1640 ÀÏ»êµÎ»êÀ§ºê´õÁ¦´Ï½º 105µ¿ 25Ãþ2506È£
»ç°Ç¹øÈ£ 2025Ÿ°æ63102
°æ¸ÅÁ¾·ùºÎµ¿»ê°­Á¦°æ¸Å
¸Å°¢´ë»óÅäÁö ¹× °Ç¹°Àϰý ¸Å°¢
¸Å°¢±âÀÏ    2025.12.09(È­) 10:00 ÀÔÂû 1ÀÏÀü    
ÅäÁö¸éÀû21.81§³(6.60 Æò)
°Ç¹°¸éÀû120.78§³(36.54 Æò)
乫/¼ÒÀ¯ÀÚ¼ºOO / ¼ºOO
ä±ÇÀÚÁÖOOOOOOO
±è¼ºÈÆ ´ëÇ¥ÀÌ»ç
°øÀÎÁß°³»ç, ºÎµ¿»ê°ø°æ¸Å»ç, ÇѾç´ëÇб³ Á¹¾÷
Àü) ÅÂÀÎÄÁ¼³ÆÃ(ÁÖ) ´ëÇ¥ÀÌ»ç
Àü) ¿©ÀÇÁֺε¿»êÁß°³¹ýÀÎ(ÁÖ) ´ëÇ¥ÀÌ»ç
Çö) ¿©ÀÇÁÖ°æ¸Å¹ýÀÎ ´ëÇ¥ÀÌ»ç
010-2371-3237
ÆäÀ̽ººÏ Æ®À§ÅÍ ±¸±Û+
īī¿À½ºÅ丮
īī¿ÀÅå sms¹®ÀÚº¸³»±â
 

±âÀϳ»¿ª

°æ°ú ³¯Â¥ Àú°¨ ÃÖÀú°¡ °á°ú
Á¢¼öÀÏ 2025-05-12 °æ¸ÅÁ¢¼ö
~1ÀÏ 
2025-05-13 °æ¸Å°³½Ã°áÁ¤
~98ÀÏ 
2025-08-18 ¹è´ç¿ä±¸Á¾±âÀÏ
~211ÀÏ 
2025-12-09 100%
742,000,000
ÁøÇà
¹°°Ç¸í¼¼¼­ ÇöȲÁ¶»ç¼­ ¹®°ÇÁ¢¼ö ¼Û´Þ³»¿ª

°¨Á¤Æò°¡ÇöȲ

¸ñ·Ï ÁÖ¼Ò ±¸Á¶/¿ëµµ/´ëÁö±Ç ¸éÀû ºñ°í
´ëÁö±Ç
źÇöµ¿ 1640 59023.9ºÐÀÇ 21.8053 21.8053 §³
(6.60Æò)
°Ç¹°
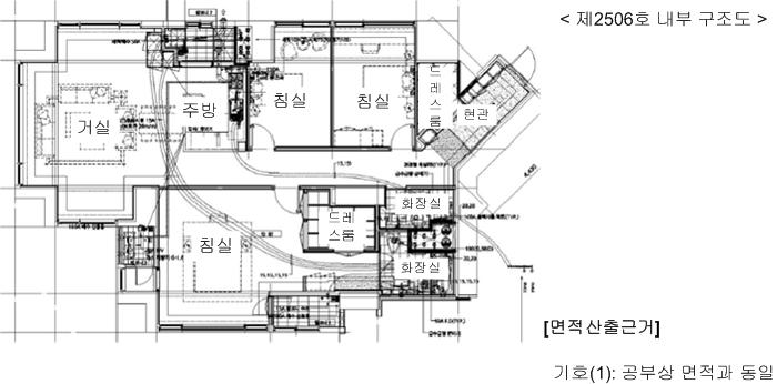
źÇöµ¿ 1640 105µ¿ 25Ãþ2506È£ ö±ÙÄÜÅ©¸®Æ®±¸Á¶ 120.7818 §³
(36.54Æò)
1) À§Ä¡/µµ½ÃÁö¿ª/ÀϹݻó¾÷Áö¿ª/Áö±¸´ÜÀ§°èȹ±¸¿ª/ÁÖÂ÷Àå/Â÷·® Á¢±ÙÀÌ °¡´É/³ë¼±¹ö½ºÁ¤·ùÀå/ö±ÙÄÜÅ©¸®Æ®±¸Á¶ ´õº¸±â
°¨Á¤Æò°¡ ¿äÇ×Ç¥
1)À§Ä¡ ¹× ÁÖÀ§È¯°æ

´ë»ó¹°°ÇÀº °æ±âµµ °í¾ç½Ã Àϻ꼭±¸ źÇöµ¿ ¼ÒÀç ""°æÀÇÁß¾Ó¼± źÇö¿ª"" µ¿Ãø Àαٿ¡ À§Ä¡Çϸç, ÁÖÀ§´Â ´ë±Ô¸ð °øµ¿ÁÖÅà ´ÜÁö, °¢Á¾ ±Ù¸°»ýȰ½Ã¼³ ¹× °¢±Þ Çб³ µîÀÌ È¥ÀçÇÏ´Â Áö¿ªÀ¸·Î¼­ Á¦¹Ý ÁÖÀ§È¯°æÀº º¸ÅëµÊ.

2)±³Åë»óȲ
´ë»ó¹°°Ç±îÁö Â÷·® Á¢±ÙÀÌ °¡´ÉÇϸç, Àαٿ¡ °æÀÇ Áß¾Ó¼± ""źÇö¿ª""°ú ³ë¼±¹ö½ºÁ¤·ùÀå µîÀÌ ¼ÒÀçÇÏ´Â µî Á¦¹Ý ´ëÁß±³Åë»óȲÀº º¸Åë½Ã µÊ.
3)°Ç¹°ÀÇ ±¸Á¶
´ë»ó¹°°ÇÀº ö±ÙÄÜÅ©¸®Æ®±¸Á¶ ö±ÙÄÜÅ©¸®Æ®ÁöºØ 59Ãþ °Ç¹° ³» Á¦25Ãþ Á¦2506È£·Î¼­,

¿Ü º®: ¸ôÅ»À§ÆäÀÎÆÃ ¸¶°¨ µî
³» º®: º®Áöµµ¹è ¹× ÀϺΠŸÀϺÙÀÓ ¸¶°¨ µî
â È£: ÇÏÀ̼¦½Ãâȣ µîÀ¸·Î ޹®Á¶»çµÊ.

4)ÀÌ¿ë»óÅÂ
´ë»ó¹°°ÇÀº ¡®°øµ¿ÁÖÅÃ(¾ÆÆÄÆ®)¡¯·Î ÀÌ¿ë ÁßÀÎ °ÍÀ¸·Î Á¶»çµÊ.
5)¼³ºñ³»¿ª
´ë»ó¹°°ÇÀº ±âº»ÀûÀÎ À§»ý¼³ºñ ¹× ±Þ¡¤¹è¼ö¼³ºñ, ½Â°­±â¼³ºñ, ¼ÒÈ­Àü¼³ºñ, È­ÀçŽÁö¼³ºñ, È­Àç°æº¸¼³ºñ, ÁÖÂ÷Àå¼³ºñ µîÀ» °®Ãá °ÍÀ¸·Î Á¶»çµÊ.

6)ÅäÁöÀÇ Çü»ó ¹× ÀÌ¿ë»óÅÂ
´ë»ó¹°°ÇÀº ÀÎÁ¢ÇÊÁö ¹× µµ·Î´ëºñ µî°íÆòźÇÑ ºÎÁ¤Çü ÅäÁö·Î¼­, ¡®°øµ¿ÁÖÅÃ(¾ÆÆÄÆ®)¡¯ °ÇºÎÁö·Î ÀÌ¿ëÁßÀÓ.
7)ÀÎÁ¢ µµ·Î»óŵî
´ë»ó¹°°ÇÀº ´ÜÁö³» Æ÷Àåµµ·Î °³¼³µÇ¾î ÀÖÀ¸¸ç, ´ÜÁö³» Æ÷Àåµµ·Î¸¦ ÅëÇÏ¿© ÀÏÇö·Î¿Í ¿¬°èµÇ¾î ÀÖÀ½.
8)ÅäÁöÀÌ¿ë°èȹ ¹× Á¦ÇÑ»óÅÂ
ÀϹݻó¾÷Áö¿ª, Áö±¸´ÜÀ§°èȹ±¸¿ª(źÇöÁÖ»ó), ´ë·Î2·ù(Æø 30m~35m)(2023-01-19)(ÀúÃË), ´ë·Î3·ù(Æø 25m~30m)(Á¢ÇÕ), »çȸº¹Áö½Ã¼³(ÀúÃË), Áß·Î2·ù(Æø 15m~20m)(Á¢ÇÕ), û¼Ò³â¼ö·Ã½Ã¼³(ÀúÃË), °¡Ãà»çÀ°Á¦Çѱ¸¿ª(2024-11-12)(ÀüºÎÁ¦Çѱ¸¿ª [µµ½ÃÁö¿ª{ÁÖ°Å,»ó¾÷,°ø¾÷,³ìÁö(ÀÚ¿¬Ãë¶ôÁö±¸)}¹×ÁְŹÐÁýÁö¿ª])<°¡ÃàºÐ´¢ÀÇ °ü¸® ¹× À̿뿡 °üÇÑ ¹ý·ü>, »ó´ëº¸È£±¸¿ª<±³À°È¯°æ º¸È£¿¡ °üÇÑ ¹ý·ü>, »ó´ëº¸È£±¸¿ª(»óźÃʵîÇб³)<±³À°È¯°æ º¸È£¿¡ °üÇÑ ¹ý·ü>, »ó´ëº¸È£±¸¿ª(ÀÚ¿¬À¯Ä¡¿ø)<±³À°È¯°æ º¸È£¿¡ °üÇÑ ¹ý·ü>, Àý´ëº¸È£±¸¿ª<±³À°È¯°æ º¸È£¿¡ °üÇÑ ¹ý·ü>, °ú¹Ð¾ïÁ¦±Ç¿ª<¼öµµ±ÇÁ¤ºñ°èȹ¹ý>ÀÓ.

9)°øºÎ¿ÍÀÇ Â÷ÀÌ
-
10)±âŸÂü°í»çÇ×(ÀÓ´ë°ü·Ê ¹× ±âŸ)
´ë»ó¹°°ÇÀÇ ÀÓ´ë°ü°è´Â ¹Ì»óÀÓ.
Âü°í
»çÇ×

ö±ÙÄÜÅ©¸®Æ®±¸Á¶

°ÇÃ๰ÇöȲ

¼ÒÀçÁö °æ±âµµ °í¾ç½Ã Àϻ꼭±¸ źÇöµ¿ 1640¹øÁö
´ëÁö¸éÀû   ¿¬¸éÀû 4809.52§³
(1457.43Æò)
°ÇÃà¸éÀû   ¿ëÀû·ü»êÁ¤
¿¬¸éÀû
163.83§³
(49.65Æò)
°ÇÆóÀ²   ¿ëÀû·ü  
Áö»óÃþ¼ö 1Ãþ ÁöÇÏÃþ¼ö 5Ãþ
ÁÖ¿ëµµ ¹®È­¹×Áýȸ½Ã¼³ ±¸Á¶ ö±ÙÄÜÅ©¸®Æ®±¸Á¶
Âø°øÀÏÀÚ 2009.10.07 »ç¿ë½ÂÀÎÀÏÀÚ 2013.04.26
°ÇÃ๰Ãþº°ÇöȲ [º¸±â]


µî±âºÎµîº» ¿ä¾à(°Ç¹°)

  Á¢¼öÀÏÀÚ µî±â¸ñÀû/±Ç¸®ÀÚ ±Ç¸®±Ý¾× ±âÁØ
1 2018³â9¿ù28ÀÏ
¼ÒÀ¯±Ç
¼ºOO
¼Ò¸ê
2 2018³â9¿ù28ÀÏ
±ÙÀú´ç±Ç
³óOOOO
121,200,000 ¼Ò¸ê±âÁØ
3 2023³â10¿ù26ÀÏ
ÀÓÂ÷±Ç¼³Á¤
Á¤OO
700,000,000 ¼Ò¸ê
4 2024³â5¿ù13ÀÏ
°¡¾Ð·ù
°æOOOO
13,320,000 ¼Ò¸ê
5 2025³â4¿ù18ÀÏ
¾Ð·ù
°íOO
¼Ò¸ê
6 2025³â5¿ù13ÀÏ
°­Á¦°æ¸Å
ÁÖOOOO
¼Ò¸ê
7 2025³â7¿ù10ÀÏ
¾Ð·ù
±¹OOOO
¼Ò¸ê

ÀÓÂ÷ÀÎÇöȲ (¹è´ç¿ä±¸Á¾±âÀÏ: 2025-08-18)

ÀÓÂ÷ÀÎ ¿ëµµ/Á¡À¯ º¸Áõ±Ý/¿ù¼¼ ´ëÇ×·Â
ÀüÀÔÀÏ/È®Á¤ÀÏ ¹è´ç¿ä±¸ ºñ°í
Á¤OO ÀüºÎ 700,000,000
X
2021.10.5.
2021.10.5.
2025.8.5. 2021.10.22.~
ºñ°í
(¸Å°¢¹°°Ç
¸í¼¼¼­)
ÁÖÅõµ½Ãº¸Áõ°ø»ç´Â ÀÓÂ÷º¸Áõ±Ý Àü¾×¿¡ ´ëÇÏ¿© ÀÓÂ÷±ÇÀÚ Á¤°ü½ÄÀÇ ±Ç¸®¸¦ ½Â°èÇÑ °æ¸Å½Åûä±ÇÀÚÀÓ.

¿©ÀÇÁÖ°æ¸Å Á¶¾ð ÇÑ ¸¶µð

¸Å°¢¹°°Ç¸í¼¼ ºñ°í³­¿¡ ±âÀçµÈ ³»¿ëÀÔ´Ï´Ù.
ÁÖÅõµ½Ãº¸Áõ°ø»ç´Â ÀÓÂ÷º¸Áõ±Ý Àü¾×¿¡ ´ëÇÏ¿© ÀÓÂ÷±ÇÀÚ Á¤°ü½ÄÀÇ ±Ç¸®¸¦ ½Â°èÇÑ °æ¸Å½Åûä±ÇÀÚÀÓ.
³«Âû ÈÄ¿¡ µî±âºÎ»ó ¼Ò¸êµÇÁö ¾Ê´Â ±Ç¸®´Â ¾ø½À´Ï´Ù.
´ë·«ÀûÀÎ °ËÅäÀǰßÀ̹ǷΠÀÔÂûÀü¿¡ Àü¹®°¡ÀÇ Á¶¾ðÀ» Âü°íÇØ º¸½Ã±æ ±ÇÇØµå¸³´Ï´Ù.
ü³³°ü¸®ºñ¸¦ ºÎ´ãÇÒ ¼ö ÀÖ½À´Ï´Ù.
¡Ø ¹°°Ç Ű¿öµå : µµ½ÃÁö¿ª/»ó¾÷Áö¿ª/ÀϹݻó¾÷Áö¿ª/Áö±¸´ÜÀ§°èȹ±¸¿ª/¹ö½ºÁ¤·ùÀå/ÁÖÂ÷Àå/Â÷·® Á¢±ÙÀÌ °¡´É/³ë¼±¹ö½ºÁ¤·ùÀå/ö±ÙÄÜÅ©¸®Æ®±¸Á¶
Àüü ÄÁ¼³ÆÃÀÌ ºÎ´ã½º·¯¿ì½Å°¡¿ä? ±Ç¸®ºÐ¼®¸¸ ÀÇ·ÚÇϼŵµ ±¦Âú½À´Ï´Ù!
½Ç¼Ó ÀÖ°Ô Çٽɸ¸ ´ãÀº ±Ç¸®ºÐ¼® ¼­ºñ½º!! (±Ç¸®ºÐ¼® + ½Ã¼¼Á¶»ç + ³«Âû°¡ »êÁ¤ + ÀÔÂûÇ¥ ÀÛ¼º¹æ¹ý ±îÁö)
ÃÖ´ë Àüü ÄÁ¼³ÆÃ ºñ¿ëÀÇ 10% ¼öÁØ !!

ÁÖÀÇ»çÇ× (ÃÖ¼±¼øÀ§ ¼³Á¤ÀÏ: 2018.9.28.±ÙÀú´ç±Ç ¼³Á¤)

¸Å°¢À¸·Î ¼Ò¸êµÇÁö ¾Ê´Â µî±âºÎ±Ç¸®:
¸Å°¢À¸·Î ¼³Á¤µÈ °ÍÀ¸·Î º¸´Â Áö»ó±Ç:
¡Ø¹Ì³³°ü¸®ºñ(°ø¿ë) Àμö¿©ºÎ¸¦ ÀÔÂû Àü¿¡ È®ÀÎÇϽñ⠹ٶø´Ï´Ù

 

Áö¿ªºÐ¼®

ÁöÇÏö¸í Á÷¼±°Å¸®

Çб³¸í ÀüÈ­¹øÈ£ ÁÖ¼Ò Á÷¼±°Å¸®

¹ý¿ø

ÀÇÁ¤ºÎÁö¹æ¹ý¿ø °í¾çÁö¿ø (104-13)°æ±âµµ °í¾ç½Ã Àϻ굿±¸ Àå¹é·Î 209
´ëÇ¥ : 031)920-6114, ¾ß°£ : 031)920-6550, ÆÑ½º : 031)920-6119
°üÇÒÁö¿ª : °í¾ç½Ã, ÆÄÁÖ½Ã

µî±â¼Ò ÀÇÁ¤ºÎÁö¹æ¹ý¿ø °í¾çÁö¿ø °í¾çµî±â¼Ò (´ëÇ¥:1544-0773, ÆÑ½º:(031)920-5959, °æ±âµµ °í¾ç½Ã Àϻ굿±¸ Áß¾Ó·Î1275¹ø±æ 38-30 (ÀåÇ×µ¿ 773))
¼¼¹«¼­ °í¾ç¼¼¹«¼­ (´ëÇ¥:031-900-92, ÆÑ½º:031-907-9177, °æ±âµµ °í¾ç½Ã Àϻ굿±¸ Áß¾Ó·Î1275¹ø±æ 14-43 (ÀåÇ×µ¿) )

Àαٳ«ÂûÅë°è

±â°£ ¸Å°¢°Ç¼ö Æò±Õ°¨Á¤°¡
Æò±Õ¸Å°¢°¡
¸Å°¢°¡À²
Æò±ÕÀ¯Âû¼ö
3°³¿ù 47°Ç 507,170,213¿ø
404,285,519¿ø
80%
1.1ȸ
6°³¿ù 85°Ç 516,764,706¿ø
418,178,189¿ø
81%
1.1ȸ
12°³¿ù 186°Ç 535,118,280¿ø
436,242,220¿ø
82%
1.1ȸ


º» °æ¸ÅÁ¤º¸´Â ¹ý¿øÀÚ·á¿Í ÀÏÄ¡Çϵµ·Ï ÇÏ¿´À¸³ª ±Ç¸®»çÇ׺¯µ¿, ÀÔ·ÂÂø¿À µîÀÇ ¿øÀÎÀ¸·Î »ç½Ç°ú ´Ù¸¦ ¼ö ÀÖ½À´Ï´Ù. ÀÌ¿ë¾à°ü¿¡ ÀǰЏéÃ¥Á¶°ÇÀ¸·Î Á¦°øµÊÀ» ¾Ë¸®¸ç, °æ¸ÅÀÔÂû½Ã ¹Ýµå½Ã °ü·Ã °øºÎ¸¦ ÀçÈ®ÀÎÇϽñ⠹ٶø´Ï´Ù. º¸´Ù Æí¸®ÇÑ °æ¸ÅÁ¤º¸ Á¦°øÀ» À§ÇØ Áö¼ÓÀûÀ¸·Î °³¼±ÇϰڽÀ´Ï´Ù. ÀÌ¿ëÇØ Áּż­ °¨»çÇÕ´Ï´Ù.
°ü½É¹°°ÇÀ¸·Î µî·ÏÇÕ´Ï´Ù