85
´Ù¼¼´ë(ºô¶ó)
ÀÇÁ¤ºÎÁö¹æ¹ý¿ø ³²¾çÁÖÁö¿ø
 °¨Á¤°¡132,000,000 ¿ø
 ÃÖÀú°¡(70%) 92,400,000 ¿ø
 º¸Áõ±Ý(10%) 9,240,000 ¿ø
 Ã»±¸¾×13,148,440 ¿ø
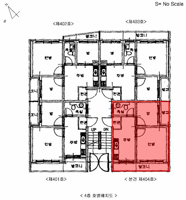
°æ±âµµ ³²¾çÁֽà ´Ù»êµ¿ 4071-2 4Ãþ404È£
»ç°Ç¹øÈ£ 2025Ÿ°æ71076
°æ¸ÅÁ¾·ùºÎµ¿»êÀÓÀǰæ¸Å
¸Å°¢´ë»óÅäÁö ¹× °Ç¹°Àϰý ¸Å°¢
¸Å°¢±âÀÏ    2026.01.08(¸ñ) 10:30 ÀÔÂû 21ÀÏÀü    
ÅäÁö¸éÀû14.51§³(4.39 Æò)
°Ç¹°¸éÀû32.45§³(9.82 Æò)
乫/¼ÒÀ¯ÀÚÇöO / ÇöO
ä±ÇÀÚÇÑOOOOOOO
±è¼ºÈÆ ´ëÇ¥ÀÌ»ç
°øÀÎÁß°³»ç, ºÎµ¿»ê°ø°æ¸Å»ç, ÇѾç´ëÇб³ Á¹¾÷
Àü) ÅÂÀÎÄÁ¼³ÆÃ(ÁÖ) ´ëÇ¥ÀÌ»ç
Àü) ¿©ÀÇÁֺε¿»êÁß°³¹ýÀÎ(ÁÖ) ´ëÇ¥ÀÌ»ç
Çö) ¿©ÀÇÁÖ°æ¸Å¹ýÀÎ ´ëÇ¥ÀÌ»ç
010-2371-3237
ÆäÀ̽ººÏ Æ®À§ÅÍ ±¸±Û+
īī¿À½ºÅ丮
īī¿ÀÅå sms¹®ÀÚº¸³»±â
 

±âÀϳ»¿ª

°æ°ú ³¯Â¥ Àú°¨ ÃÖÀú°¡ °á°ú
Á¢¼öÀÏ 2025-02-03 °æ¸ÅÁ¢¼ö
~8ÀÏ 
2025-02-11 °æ¸Å°³½Ã°áÁ¤
~86ÀÏ 
2025-04-30 ¹è´ç¿ä±¸Á¾±âÀÏ
~304ÀÏ 
2025-12-04 100%
132,000,000
À¯Âû
~339ÀÏ 
2026-01-08 70%
92,400,000
ÁøÇà
¹°°Ç¸í¼¼¼­ ÇöȲÁ¶»ç¼­ ¹®°ÇÁ¢¼ö ¼Û´Þ³»¿ª

°¨Á¤Æò°¡ÇöȲ

¸ñ·Ï ÁÖ¼Ò ±¸Á¶/¿ëµµ/´ëÁö±Ç ¸éÀû ºñ°í
´ëÁö±Ç
´Ù»êµ¿ 4071-2 290ºÐÀÇ 14.51 14.51 §³
(4.39Æò)
°Ç¹°
´Ù»êµ¿ 4071-2 4Ãþ404È£ ¿¬¿ÍÁ¶ 32.45 §³
(9.82Æò)
1) À§Ä¡/µµ½ÃÁö¿ª/Á¦1Á¾ÀϹÝÁÖ°ÅÁö¿ª/ÀçÁ¤ºñÃËÁøÁö±¸/¹ö½ºÁ¤·ùÀå/µµ½Ã°¡½º/°¡½ºº¸ÀÏ·¯ ´õº¸±â
°¨Á¤Æò°¡ ¿äÇ×Ç¥
1)À§Ä¡ ¹× ÁÖÀ§È¯°æ
°æ±âµµ ³²¾çÁֽà ´Ù»êµ¿ ¼ÒÀç ""¹Ì±ÝÃʵîÇб³"" µ¿Ãø Àαٿ¡ À§Ä¡Çϸç, ÁÖÀ§´Â °øµ¿ÁÖÅÃ,
´Üµ¶ÁÖÅà ¹× °¢Á¾ ±Ù¸°»ýȰ½Ã¼³ µîÀÌ ¼ÒÀçÇÏ´Â Áö¿ªÀ¸·Î ÁÖÀ§ ȯ°æÀº º¸Åë½Ã µÊ.
2)±³Åë»óȲ
º»°Ç±îÁö Â÷·® Áø¡¤ÃâÀÔÀÌ °¡´ÉÇϸç, Àαٿ¡ °æÀÇÁß¾Ó¼± ¡®µµ³ó¿ª¡¯ ¹× ³ë¼± ¹ö½ºÁ¤·ùÀåÀÌ
¼ÒÀçÇÏ´Â µî Á¦¹Ý ±³Åë»çÁ¤Àº º¸ÅëÀÓ.
3)°Ç¹°ÀÇ ±¸Á¶
±¸Á¶ : R.CÁ¶ ¹× ¿¬¿ÍÁ¶ 4Ãþ °Ç¹°³» Á¦4Ãþ Á¦404È£ ¿Ü 15°³È£
(»ç¿ë½ÂÀÎÀÏ : 1994.12.26)
¿Üº® : ÄÜÅ©¸®Æ® ¸¶°¨.
âȣ : ¼¦½Ã âȣÀÓ.
4)ÀÌ¿ë»óÅÂ
ÀÌ¿ë»óÅ : ´Ù¼¼´ëÁÖÅÃÀ¸·Î ÀÌ¿ëÁßÀÓ.
5)¼³ºñ³»¿ª
À§»ý¼³ºñ ¹× ±Þ¹è¼ö½Ã¼³, µµ½Ã°¡½ºº¸ÀÏ·¯¿¡ ÀÇÇÑ ³­¹æ¼³ºñ µîÀÌ µÇ¾î ÀÖÀ½.
6)ÅäÁöÀÇ Çü»ó ¹× ÀÌ¿ë»óÅÂ
ÀÎÁ¢ÇÊÁö ¹× ÀÎÁ¢µµ·Î ´ëºñ ¿Ï°æ»çÁö, ºÎÁ¤ÇüÀÇ ÅäÁö·Î¼­ °ÇºÎÁö(´Ù¼¼´ëÁÖÅÃ)·Î ÀÌ¿ëÁßÀÓ.
7)ÀÎÁ¢ µµ·Î»óŵî
ºÏµ¿ÃøÀ¸·Î ³ëÆø ¾à 8¹ÌÅÍ ³»¿ÜÀÇ Æ÷Àåµµ·Î¿¡ Á¢ÇÔ.
8)ÅäÁöÀÌ¿ë°èȹ ¹× Á¦ÇÑ»óÅÂ
µµ½ÃÁö¿ª, Á¦1Á¾ÀϹÝÁÖ°ÅÁö¿ª °¡Ãà»çÀ°Á¦Çѱ¸¿ª<°¡ÃàºÐ´¢ÀÇ °ü¸® ¹× À̿뿡 °üÇÑ ¹ý·ü>,
»ó´ëº¸È£±¸¿ª(¹Ì±ÝÃʵîÇб³(±¸¸®³²¾çÁÖ±³À°Áö¿øÃ»¿¡ ¹®Àǹٶ÷))<±³À°È¯°æ º¸È£¿¡ °üÇÑ ¹ý·ü>
, Àý´ëº¸È£±¸¿ª(¾Æ¿¬À¯Ä¡¿ø(±¸¸®³²¾çÁÖ±³À°Áö¿øÃ»¿¡ ¹®Àǹٶ÷))<±³À°È¯°æ º¸È£¿¡ °üÇÑ ¹ý·ü>
, ÀçÁ¤ºñÃËÁøÁö±¸(³²¾çÁÖ Áö±Ýµµ³ó ÀçÁ¤ºñ ÃËÁøÁö±¸)<µµ½ÃÀçÁ¤ºñ ÃËÁøÀ» À§ÇÑ Æ¯º°¹ý>,
ÀçÁ¤ºñÃËÁøÁö±¸±âŸ(Á¸Ä¡°ü¸®10±¸¿ª)<µµ½ÃÀçÁ¤ºñÃËÁøÀ»À§ÇÑÆ¯º°¹ý>, ¹èÃâ½Ã¼³¼³Ä¡Á¦ÇÑÁö¿ª
<¹°È¯°æº¸Àü¹ý>, °ú¹Ð¾ïÁ¦±Ç¿ª<¼öµµ±ÇÁ¤ºñ°èȹ¹ý>, °øÀå¼³¸³½ÂÀÎÁö¿ª(¼öµµ¹ý½ÃÇà·É Á¦14Á¶ÀÇ
3 2È£)<¼öµµ¹ý> ÀÓ.
9)°øºÎ¿ÍÀÇ Â÷ÀÌ
º»°Ç °ÇÃ๰´ëÀå ¹× µî±â»çÇ×Áõ¸í¼­»ó Á¦404È£À̳ª, ÇöȲ Çö°ü¹®¿¡´Â Á¦405È£·Î Ç¥±âµÇ¾î
ÀÖÀ½.
10)±âŸÂü°í»çÇ×(ÀÓ´ë°ü·Ê ¹× ±âŸ)
ÀÓ´ë°ü°è ¹Ì»óÀÓ.
Âü°í
»çÇ×

´Ù¼¼´ëÁÖÅÃÀ¸·Î ÁÖ°Å¿¡ ÀÌ¿ë

°ÇÃ๰ÇöȲ

¼ÒÀçÁö °æ±âµµ ³²¾çÁֽà ´Ù»êµ¿ 4071-2¹øÁö
´ëÁö¸éÀû 186§³
(56.36Æò)
¿¬¸éÀû 658§³
(199.39Æò)
°ÇÃà¸éÀû 192.15§³
(58.23Æò)
¿ëÀû·ü»êÁ¤
¿¬¸éÀû
 
°ÇÆóÀ² 66.3% ¿ëÀû·ü 227.05%
Áö»óÃþ¼ö 4Ãþ ÁöÇÏÃþ¼ö  
ÁÖ¿ëµµ °øµ¿ÁÖÅà ±¸Á¶ º®µ¹±¸Á¶
Âø°øÀÏÀÚ »ç¿ë½ÂÀÎÀÏÀÚ 1994.12.26
°ÇÃ๰Ãþº°ÇöȲ [º¸±â]


±¹ÅäºÎ½Ç°Å·¡°¡ °æ±âµµ ³²¾çÁֽà ´Ù»êµ¿

¡Ü ¸Å¸Å

¸éÀû(§³), ±Ý¾×(¸¸¿ø)

¡Ü Àü¼¼

¸éÀû(§³), ±Ý¾×(¸¸¿ø)

°è¾àÀϰǹ°¸íĪÃþ¿¬¸éÀû´ëÁö±Ý¾×°ÇÃà
24.03.23Àº¼±¸Ç¼Ç101µ¿236.4513.9714,8002003
24.03.20°¡¿î¾à¼öºô¶ó449.1430.1529,8001994
24.03.15¼Ò¸Áºô¶ó150.5316.578912,3001997
24.03.01È¿¼ººô¶ó3Â÷259.5128.4916,0001994
24.02.28¼±Áøºô¶óAµ¿440.3213.270419,5001994
¢Ñ ´õº¸±â

µî±âºÎµîº» ¿ä¾à(°Ç¹°)

  Á¢¼öÀÏÀÚ µî±â¸ñÀû/±Ç¸®ÀÚ ±Ç¸®±Ý¾× ±âÁØ
1 2013³â2¿ù25ÀÏ
¼ÒÀ¯±Ç
ÇöO
¼Ò¸ê
2 2013³â2¿ù25ÀÏ
±ÙÀú´ç±Ç
(OOOO
50,400,000 ¼Ò¸ê±âÁØ
3 2021³â2¿ù3ÀÏ
°¡¾Ð·ù
±âOOOO
450,000,000 ¼Ò¸ê
4 2021³â2¿ù4ÀÏ
±ÙÀú´ç±Ç
(OOOO
90,000,000 ¼Ò¸ê
5 2021³â2¿ù22ÀÏ
°¡¾Ð·ù
ÁßOOOO
30,000,000 ¼Ò¸ê
6 2021³â4¿ù14ÀÏ
°¡¾Ð·ù
ÁßOOOO
167,889,337 ¼Ò¸ê
7 2021³â4¿ù28ÀÏ
°¡¾Ð·ù
Á¦OOOO
17,837,943 ¼Ò¸ê
8 2023³â8¿ù10ÀÏ
°¡¾Ð·ù
¼±OO
290,000,000 ¼Ò¸ê
9 2024³â3¿ù18ÀÏ
°¡¾Ð·ù
(OOOO
33,025,243 ¼Ò¸ê
10 2025³â2¿ù11ÀÏ
ÀÓÀǰæ¸Å
ÇÑOOOO
¼Ò¸ê

ÀÓÂ÷ÀÎÇöȲ (¹è´ç¿ä±¸Á¾±âÀÏ: 2025-04-30)


Á¶»çµÈ ÀÓÂ÷³»¿ªÀÌ ¾ø½À´Ï´Ù


¿©ÀÇÁÖ°æ¸Å Á¶¾ð ÇÑ ¸¶µð

³«Âû ÈÄ¿¡ µî±âºÎ»ó ¼Ò¸êµÇÁö ¾Ê´Â ±Ç¸®´Â ¾ø½À´Ï´Ù.
´ë·«ÀûÀÎ °ËÅäÀǰßÀ̹ǷΠÀÔÂûÀü¿¡ Àü¹®°¡ÀÇ Á¶¾ðÀ» Âü°íÇØ º¸½Ã±æ ±ÇÇØµå¸³´Ï´Ù.
ÃëÇÏ ¶Ç´Â Ãë¼ÒµÉ °¡´É¼º ÀÖ½À´Ï´Ù.
ÀÌ ¹°°ÇÀÇ °¨Á¤°¡°ÝÀº 132,000,000¿øÀÔ´Ï´Ù. °æ¸Å¸¦ ½ÅûÇÑ Ã¤±ÇÀÚ°¡ ¹è´ç ¹Þ¾Æ¾ß ÇÒ ±Ý¾×Àº 13,148,440¿øÀ¸·Î °¨Á¤°¡°Ý ´ëºñ »ó´çÈ÷ ÀûÀº ±Ý¾×ÀÔ´Ï´Ù. ÀÌ·± °æ¿ì, 乫°¡°¡ º¯Á¦ÇÏ¿© °æ¸Å¸¦ ÃëÇϽÃŰ°Å³ª °æ¸Å½Åûä±ÇÀÚ°¡ ¹è´ç¹ÞÀ» ±Ý¿øÀÌ ¾ø°ÔµÇ¾î À̸¥ ¹Ù "¹«À׿©¿¡ ÀÇÇÑ Ãë¼Ò"°¡ µÉ °¡´É¼ºÀÌ ÀÖ½À´Ï´Ù.
°¨Á¤ ½ÃÁ¡ÀÌ ¿À·¡µÇ¾î °¡°Ýº¯µ¿ÀÌ ÀÖÀ» ¼ö ÀÖ½À´Ï´Ù.
ÀÌ ¹°°ÇÀº 2025³â 2¿ù 11ÀÏ¿¡ °æ¸Å°¡ °³½ÃµÇ¾ú´Âµ¥ Áö±Ý ½ÃÁ¡À¸·Î ¾à 310ÀÏÀÌ ÀÌ °æ°úµÇ¾ú½À´Ï´Ù. °¨Á¤°¡°ÝÀº 310ÀÏ Àü ½ÃÁ¡¿¡¼­ Æò°¡ÇÑ °¡°ÝÀ̹ǷΠ±× »çÀÌ °¡°Ýº¯µ¿ÀÌ ÀÖÀ» ¼ö ÀÖ½À´Ï´Ù. ƯÈ÷ °¡°Ý º¯µ¿ÀÌ ½ÉÇÑ ¾ÆÆÄÆ®´Â À¯ÀÇÇÏ¼Å¾ß ÇÕ´Ï´Ù. °¨Á¤°¡°ÝÀ» ³Ê¹« ¹ÏÁö ¸¶½Ã°í ÇöÀç ½Ç¸Å¹° °¡°Ý°ú ½Ç°Å·¡°¡¸¦ È®ÀÎÇϽñ⠹ٶø´Ï´Ù.
°£È¤ °¨Á¤°¡°Ýº¸´Ù ³ô°Ô ³«ÂûµÇ´Â °æ¿ì°¡ Àִµ¥ ´ëºÎºÐ ÀÌ·± ÀÌÀ¯ÀÔ´Ï´Ù.
¡Ø ¹°°Ç Ű¿öµå : µµ½ÃÁö¿ª/ÁÖ°ÅÁö¿ª/Á¦1Á¾ÀϹÝÁÖ°ÅÁö¿ª/ÀçÁ¤ºñÃËÁøÁö±¸/¹ö½ºÁ¤·ùÀå/µµ½Ã°¡½º/°¡½ºº¸ÀÏ·¯
Àüü ÄÁ¼³ÆÃÀÌ ºÎ´ã½º·¯¿ì½Å°¡¿ä? ±Ç¸®ºÐ¼®¸¸ ÀÇ·ÚÇϼŵµ ±¦Âú½À´Ï´Ù!
½Ç¼Ó ÀÖ°Ô Çٽɸ¸ ´ãÀº ±Ç¸®ºÐ¼® ¼­ºñ½º!! (±Ç¸®ºÐ¼® + ½Ã¼¼Á¶»ç + ³«Âû°¡ »êÁ¤ + ÀÔÂûÇ¥ ÀÛ¼º¹æ¹ý ±îÁö)
ÃÖ´ë Àüü ÄÁ¼³ÆÃ ºñ¿ëÀÇ 10% ¼öÁØ !!

ÁÖÀÇ»çÇ× (ÃÖ¼±¼øÀ§ ¼³Á¤ÀÏ: 2013.02.25.±ÙÀú´ç±Ç ¼³Á¤)

¸Å°¢À¸·Î ¼Ò¸êµÇÁö ¾Ê´Â µî±âºÎ±Ç¸®:
¸Å°¢À¸·Î ¼³Á¤µÈ °ÍÀ¸·Î º¸´Â Áö»ó±Ç:
1. ´Ù¼¼´ëÁÖÅÃÀ¸·Î ÁÖ°Å¿¡ ÀÌ¿ë ÁßÀ̸ç, Çö°ü¹®ÀÇ È£¼ö Ç¥Áö´Â 405È£·Î µÇ¾î ÀÖÀ½(ÇöȲÁ¶»çº¸°í¼­ ÂüÁ¶) 2. °ÇÃ๰´ëÀå ¹× µî±â»çÇ×Áõ¸í¼­»ó Á¦404È£À̳ª, ÇöȲ Çö°ü¹®¿¡´Â Á¦405È£·Î Ç¥±âµÇ¾î ÀÖÀ½(°¨Á¤Æò°¡¼­ ÂüÁ¶)
¡Ø¹Ì³³°ü¸®ºñ(°ø¿ë) Àμö¿©ºÎ¸¦ ÀÔÂû Àü¿¡ È®ÀÎÇϽñ⠹ٶø´Ï´Ù

 

Áö¿ªºÐ¼®

ÁöÇÏö¸í Á÷¼±°Å¸®

Çб³¸í ÀüÈ­¹øÈ£ ÁÖ¼Ò Á÷¼±°Å¸®

¹ý¿ø

ÀÇÁ¤ºÎÁö¹æ¹ý¿ø ³²¾çÁÖÁö¿ø (122-49)°æ±âµµ ³²¾çÁֽà ´Ù»êÁß¾Ó·Î82¹ø¾È±æ 161(´Ù»êµ¿)
´ëÇ¥ : 031)869-4114
°üÇÒÁö¿ª : °¡Æò±º, ±¸¸®½Ã, ³²¾çÁÖ½Ã

µî±â¼Ò ÀÇÁ¤ºÎÁö¹æ¹ý¿ø º»¿ø ³²¾çÁÖµî±â¼Ò (´ëÇ¥:1544-0773, ÆÑ½º:(031)551-2010, °æ±âµµ ³²¾çÁֽà °æÃá·Î 514 (Áö±Ýµ¿ 158-4))
¼¼¹«¼­ ³²¾çÁÖ¼¼¹«¼­ (´ëÇ¥:031-550-32, ÆÑ½º:031-566-1808, °æ±âµµ ±¸¸®½Ã ¾È°ñ·Î 36 (±³¹®µ¿))

Àαٳ«ÂûÅë°è

±â°£ ¸Å°¢°Ç¼ö Æò±Õ°¨Á¤°¡
Æò±Õ¸Å°¢°¡
¸Å°¢°¡À²
Æò±ÕÀ¯Âû¼ö
3°³¿ù 11°Ç 269,752,727¿ø
196,486,073¿ø
72%
1.4ȸ
6°³¿ù 20°Ç 217,714,000¿ø
159,321,090¿ø
73%
1.3ȸ
12°³¿ù 20°Ç 217,714,000¿ø
159,321,090¿ø
73%
1.3ȸ


º» °æ¸ÅÁ¤º¸´Â ¹ý¿øÀÚ·á¿Í ÀÏÄ¡Çϵµ·Ï ÇÏ¿´À¸³ª ±Ç¸®»çÇ׺¯µ¿, ÀÔ·ÂÂø¿À µîÀÇ ¿øÀÎÀ¸·Î »ç½Ç°ú ´Ù¸¦ ¼ö ÀÖ½À´Ï´Ù. ÀÌ¿ë¾à°ü¿¡ ÀǰЏéÃ¥Á¶°ÇÀ¸·Î Á¦°øµÊÀ» ¾Ë¸®¸ç, °æ¸ÅÀÔÂû½Ã ¹Ýµå½Ã °ü·Ã °øºÎ¸¦ ÀçÈ®ÀÎÇϽñ⠹ٶø´Ï´Ù. º¸´Ù Æí¸®ÇÑ °æ¸ÅÁ¤º¸ Á¦°øÀ» À§ÇØ Áö¼ÓÀûÀ¸·Î °³¼±ÇϰڽÀ´Ï´Ù. ÀÌ¿ëÇØ Áּż­ °¨»çÇÕ´Ï´Ù.
°ü½É¹°°ÇÀ¸·Î µî·ÏÇÕ´Ï´Ù