147
±Ù¸°»ó°¡
¿ï»êÁö¹æ¹ý¿ø
 °¨Á¤°¡1,054,000,000 ¿ø
 ÃÖÀú°¡(70%) 737,800,000 ¿ø
 º¸Áõ±Ý(10%) 73,780,000 ¿ø
 Ã»±¸¾×787,194,140 ¿ø
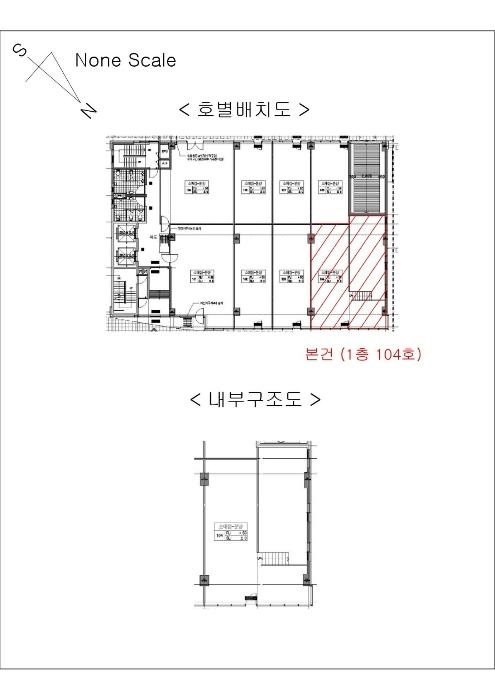
°æ»ó³²µµ ¾ç»ê½Ã ¹°±ÝÀ¾ ºÎ»ê´ëÇзΠ126, 1Ãþ104È£
°æ»ó³²µµ ¾ç»ê½Ã ¹°±ÝÀ¾ ¹ü¾î¸® 2775-4
»ç°Ç¹øÈ£ 2025Ÿ°æ10142
°æ¸ÅÁ¾·ùºÎµ¿»êÀÓÀǰæ¸Å
¸Å°¢´ë»óÅäÁö ¹× °Ç¹°Àϰý ¸Å°¢
¸Å°¢±âÀÏ    2026.01.08(¸ñ) 10:00 (¿À´Ã ÀÔÂû)    
ÅäÁö¸éÀû18.14§³(5.49 Æò)
°Ç¹°¸éÀû96.66§³(29.24 Æò)
乫/¼ÒÀ¯ÀÚÁÖOOO OOOOO / ÁÖOOO OOOOO
ä±ÇÀÚºÏOOOOOOO
±è¼ºÈÆ ´ëÇ¥ÀÌ»ç
°øÀÎÁß°³»ç, ºÎµ¿»ê°ø°æ¸Å»ç, ÇѾç´ëÇб³ Á¹¾÷
Àü) ÅÂÀÎÄÁ¼³ÆÃ(ÁÖ) ´ëÇ¥ÀÌ»ç
Àü) ¿©ÀÇÁֺε¿»êÁß°³¹ýÀÎ(ÁÖ) ´ëÇ¥ÀÌ»ç
Çö) ¿©ÀÇÁÖ°æ¸Å¹ýÀÎ ´ëÇ¥ÀÌ»ç
010-2371-3237
ÆäÀ̽ººÏ Æ®À§ÅÍ ±¸±Û+
īī¿À½ºÅ丮
īī¿ÀÅå sms¹®ÀÚº¸³»±â
 

±âÀϳ»¿ª

°æ°ú ³¯Â¥ Àú°¨ ÃÖÀú°¡ °á°ú
Á¢¼öÀÏ 2025-01-07 °æ¸ÅÁ¢¼ö
~1ÀÏ 
2025-01-08 °æ¸Å°³½Ã°áÁ¤
~83ÀÏ 
2025-03-31 ¹è´ç¿ä±¸Á¾±âÀÏ
~331ÀÏ 
2025-12-04 100%
1,054,000,000
À¯Âû
~366ÀÏ 
2026-01-08 70%
737,800,000
ÁøÇà
¹°°Ç¸í¼¼¼­ ÇöȲÁ¶»ç¼­ ¹®°ÇÁ¢¼ö ¼Û´Þ³»¿ª

°¨Á¤Æò°¡ÇöȲ

¸ñ·Ï ÁÖ¼Ò ±¸Á¶/¿ëµµ/´ëÁö±Ç ¸éÀû ºñ°í
´ëÁö±Ç
¹ü¾î¸® 2775-4 816.6ºÐÀÇ 18.1418 18.1418 §³
(5.49Æò)
°Ç¹°
¹ü¾î¸® 2775-4 1Ãþ104È£ ö±ÙÄÜÅ©¸®Æ®±¸Á¶ 96.66 §³
(29.24Æò)
1) À§Ä¡/ÀϹݻó¾÷Áö¿ª/Á¦1Á¾Áö±¸´ÜÀ§°èȹ±¸¿ª/ÁÖÂ÷Àå/ö±ÙÄÜÅ©¸®Æ®±¸Á¶ ´õº¸±â
°¨Á¤Æò°¡ ¿äÇ×Ç¥
1)À§Ä¡ ¹× ÁÖÀ§È¯°æ
º»°ÇÀº °æ»ó³²µµ ¾ç»ê½Ã ¹°±ÝÀ¾ ¹ü¾î¸® ¼ÒÀç "Áõ»êÃʵîÇб³" ºÏµ¿Ãø Àαٿ¡ À§Ä¡ÇÏ´Â
ÇöĪ "ÀÏ·ç¾ÆÅ¸¿ö" 1Ãþ 104È£·Î¼­, ÁÖÀ§´Â °¢Á¾ ±Ù¸°»ýȰ½Ã¼³, ¾÷¹«½Ã¼³, °øµ¿ÁÖÅà ¹×
´Üµ¶ÁÖÅà µîÀ¸·Î Çü¼ºµÇ¾î ÀÖÀ½.
2)±³Åë»óȲ
º»°Ç±îÁö Â÷·® ÁøÃâÀÔÀÌ °¡´ÉÇϸç, ÀϹÝÀûÀÎ ±³Åë»çÁ¤ ¾çÈ£ÇÔ.
3)°Ç¹°ÀÇ ±¸Á¶
ö±ÙÄÜÅ©¸®Æ®±¸Á¶ (ö±Ù)ÄÜÅ©¸®Æ®ÁöºØ 11Ãþ°Ç ³» 1Ãþ 104È£·Î¼­,
¿Üº®: Ä¡Àå¼® ºÙÀÓ, °­È­À¯¸® ¸¶°¨ µî,
³»º®: ³»Àå ŸÀϺÙÀÓ, ³»ºÎ ÀÎÅ׸®¾î ¸¶°¨ µî,
âȣ: ¼¦½ÃâȣÀÓ.
4)ÀÌ¿ë»óÅÂ
Á¦1Á¾ ±Ù¸°»ýȰ½Ã¼³ÀÓ.

5)¼³ºñ³»¿ª
°ø¿ë À§»ý ¹× ±Þ,¹è¼ö ¼³ºñ, ½Â°­±â¼³ºñ, ¼ÒÈ­Àü ¹× È­Àç°æº¸¼³ºñ µîÀÌ µÇ¾îÀÖÀ½.
6)ÅäÁöÀÇ Çü»ó ¹× ÀÌ¿ë»óÅÂ
°¡ÀåÇü ÅäÁö·Î¼­, ±Ù¸°»ýȰ½Ã¼³ ¹× ¹®È­Áýȸ½Ã¼³ ºÎÁö·Î ÀÌ¿ëÁßÀÓ.
7)ÀÎÁ¢ µµ·Î»óŵî
ÁÖº¯ °¡·Î¸Á »óÅ ¹× ÁÖÂ÷Àå½Ã¼³ º¸Åë½ÃµÊ.
8)ÅäÁöÀÌ¿ë°èȹ ¹× Á¦ÇÑ»óÅÂ
ÀϹݻó¾÷Áö¿ª, Á¦1Á¾Áö±¸´ÜÀ§°èȹ±¸¿ª, ´ë·Î2·ù(Æø 30m-35m)(Á¢ÇÕ), Áß·Î3·ù(Æø 12m-15m)(Á¢ÇÕ) °¡Ãà»çÀ°Á¦Çѱ¸¿ª(¸ðµçÃàÁ¾ Á¦ÇÑÁö¿ª)<°¡ÃàºÐ´¢ÀÇ °ü¸® ¹× À̿뿡 °üÇÑ ¹ý·ü>, »ó´ëº¸È£±¸¿ª<±³À°È¯°æ º¸È£¿¡ °üÇÑ ¹ý·ü> ÀÓ.
9)°øºÎ¿ÍÀÇ Â÷ÀÌ
¾ø À½.
10)±âŸÂü°í»çÇ×(ÀÓ´ë°ü·Ê ¹× ±âŸ)
°¡. ÀÓ´ë°ü°è
¹Ì»óÀÓ.

³ª. ±âŸ
º»°ÇÀº °¡°Ý½ÃÁ¡ ÇöÀç º°Ã· »çÁø¿ëÁö¿Í °°ÀÌ ÀÎÁ¢È£(103È£)¿Í °æ°èº® ÀϺθ¦ ư
»óÅÂÀ̳ª, ±¸ºÐ°Ç¹°ÀÇ À§Ä¡¿Í ¸éÀû µîÀ» ƯÁ¤ÇÒ ¼ö ÀÖ°í »çȸÅë³ä»ó º¹¿øÀ» ÀüÁ¦
·Î ÇÑ ÀϽÃÀûÀÎ »óȲÀ¸·Î º¹¿øÀÌ ¿ëÀÌÇÏ´Ù°í ÆÇ´ÜµÇ¾î À̸¦ °¨¾ÈÇÏ¿© Æò°¡ÇÏ¿´À¸
´Ï °æ¸ÅÁøÇà½Ã ¾÷¹«¿¡ ÂüÁ¶ÇϽñ⠹ٶø´Ï´Ù.
Âü°í
»çÇ×
1. ÇöĪ ÀÏ·ç¾ÆÅ¸¿ö 1Ãþ 104È£ÀÓ. 2. °¨Á¤Àο¡ ÀÇÇϸé, °¨Á¤Æò°¡ ´ç½Ã ÀÎÁ¢È£(103È£)¿Í °æ°èº® ÀϺθ¦ ư »óÅÂÀ̳ª, ±¸ºÐ°Ç¹°ÀÇ À§Ä¡¿Í ¸éÀû µîÀ» ƯÁ¤ÇÒ ¼ö ÀÖ°í »çȸÅë³ä»ó º¹¿øÀ» ÀüÁ¦·Î ÇÑ ÀϽÃÀûÀÎ »óȲÀ¸·Î º¹¿øÀÌ ¿ëÀÌÇÒ °ÍÀ¸·Î º¸À̳ª ¿ø»óº¹±¸ ºñ¿ëÀº ºÒ¸íÇϹǷΠÀÀÂû½Ã È®ÀÎ ¿äÇÔ.
º»°Ç ºÎµ¿»êÀº ÇöÀç ¿µ¾÷ÇÏÁö ¾Ê´Â »óÅ·Î

°ÇÃ๰ÇöȲ

¼ÒÀçÁö °æ»ó³²µµ ¾ç»ê½Ã ¹°±ÝÀ¾ ¹ü¾î¸® 2775-4¹øÁö
´ëÁö¸éÀû 816.62§³
(247.46Æò)
¿¬¸éÀû 7609.53§³
(2305.92Æò)
°ÇÃà¸éÀû 586.57§³
(177.75Æò)
¿ëÀû·ü»êÁ¤
¿¬¸éÀû
5588.58§³
(1693.51Æò)
°ÇÆóÀ² 71.83% ¿ëÀû·ü 684.36%
Áö»óÃþ¼ö 11Ãþ ÁöÇÏÃþ¼ö 3Ãþ
ÁÖ¿ëµµ Á¦2Á¾±Ù¸°»ýȰ½Ã¼³ ±¸Á¶ ö±ÙÄÜÅ©¸®Æ®±¸Á¶
Âø°øÀÏÀÚ 2015.07.06 »ç¿ë½ÂÀÎÀÏÀÚ 2016.06.20
°ÇÃ๰Ãþº°ÇöȲ [º¸±â]



ÀÓÂ÷ÀÎÇöȲ (¹è´ç¿ä±¸Á¾±âÀÏ: 2025-03-31)


Á¶»çµÈ ÀÓÂ÷³»¿ªÀÌ ¾ø½À´Ï´Ù


¿©ÀÇÁÖ°æ¸Å Á¶¾ð ÇÑ ¸¶µð

³«Âû ÈÄ¿¡ µî±âºÎ»ó ¼Ò¸êµÇÁö ¾Ê´Â ±Ç¸®´Â ¾ø½À´Ï´Ù.
´ë·«ÀûÀÎ °ËÅäÀǰßÀ̹ǷΠÀÔÂûÀü¿¡ Àü¹®°¡ÀÇ Á¶¾ðÀ» Âü°íÇØ º¸½Ã±æ ±ÇÇØµå¸³´Ï´Ù.
°¨Á¤ ½ÃÁ¡ÀÌ ¿À·¡µÇ¾î °¡°Ýº¯µ¿ÀÌ ÀÖÀ» ¼ö ÀÖ½À´Ï´Ù.
ÀÌ ¹°°ÇÀº 2025³â 1¿ù 8ÀÏ¿¡ °æ¸Å°¡ °³½ÃµÇ¾ú´Âµ¥ Áö±Ý ½ÃÁ¡À¸·Î ¾à 365ÀÏÀÌ ÀÌ °æ°úµÇ¾ú½À´Ï´Ù. °¨Á¤°¡°ÝÀº 365ÀÏ Àü ½ÃÁ¡¿¡¼­ Æò°¡ÇÑ °¡°ÝÀ̹ǷΠ±× »çÀÌ °¡°Ýº¯µ¿ÀÌ ÀÖÀ» ¼ö ÀÖ½À´Ï´Ù. ƯÈ÷ °¡°Ý º¯µ¿ÀÌ ½ÉÇÑ ¾ÆÆÄÆ®´Â À¯ÀÇÇÏ¼Å¾ß ÇÕ´Ï´Ù. °¨Á¤°¡°ÝÀ» ³Ê¹« ¹ÏÁö ¸¶½Ã°í ÇöÀç ½Ç¸Å¹° °¡°Ý°ú ½Ç°Å·¡°¡¸¦ È®ÀÎÇϽñ⠹ٶø´Ï´Ù.
°£È¤ °¨Á¤°¡°Ýº¸´Ù ³ô°Ô ³«ÂûµÇ´Â °æ¿ì°¡ Àִµ¥ ´ëºÎºÐ ÀÌ·± ÀÌÀ¯ÀÔ´Ï´Ù.
¡Ø ¹°°Ç Ű¿öµå : »ó¾÷Áö¿ª/ÀϹݻó¾÷Áö¿ª/Áö±¸´ÜÀ§°èȹ±¸¿ª/Á¦1Á¾Áö±¸´ÜÀ§°èȹ±¸¿ª/ÁÖÂ÷Àå/ö±ÙÄÜÅ©¸®Æ®±¸Á¶
Àüü ÄÁ¼³ÆÃÀÌ ºÎ´ã½º·¯¿ì½Å°¡¿ä? ±Ç¸®ºÐ¼®¸¸ ÀÇ·ÚÇϼŵµ ±¦Âú½À´Ï´Ù!
½Ç¼Ó ÀÖ°Ô Çٽɸ¸ ´ãÀº ±Ç¸®ºÐ¼® ¼­ºñ½º!! (±Ç¸®ºÐ¼® + ½Ã¼¼Á¶»ç + ³«Âû°¡ »êÁ¤ + ÀÔÂûÇ¥ ÀÛ¼º¹æ¹ý ±îÁö)
ÃÖ´ë Àüü ÄÁ¼³ÆÃ ºñ¿ëÀÇ 10% ¼öÁØ !!

ÁÖÀÇ»çÇ× (ÃÖ¼±¼øÀ§ ¼³Á¤ÀÏ: 2022. 6. 30. ±ÙÀú´ç±Ç ¼³Á¤)

¸Å°¢À¸·Î ¼Ò¸êµÇÁö ¾Ê´Â µî±âºÎ±Ç¸®:
¸Å°¢À¸·Î ¼³Á¤µÈ °ÍÀ¸·Î º¸´Â Áö»ó±Ç:
1. ÇöĪ ÀÏ·ç¾ÆÅ¸¿ö 1Ãþ 104È£ÀÓ. 2. °¨Á¤Àο¡ ÀÇÇϸé, °¨Á¤Æò°¡ ´ç½Ã ÀÎÁ¢È£(103È£)¿Í °æ°èº® ÀϺθ¦ ư »óÅÂÀ̳ª, ±¸ºÐ°Ç¹°ÀÇ À§Ä¡¿Í ¸éÀû µîÀ» ƯÁ¤ÇÒ ¼ö ÀÖ°í »çȸÅë³ä»ó º¹¿øÀ» ÀüÁ¦·Î ÇÑ ÀϽÃÀûÀÎ »óȲÀ¸·Î º¹¿øÀÌ ¿ëÀÌÇÒ °ÍÀ¸·Î º¸À̳ª ¿ø»óº¹±¸ ºñ¿ëÀº ºÒ¸íÇϹǷΠÀÀÂû½Ã È®ÀÎ ¿ä ÇÔ.
¡Ø¹Ì³³°ü¸®ºñ(°ø¿ë) Àμö¿©ºÎ¸¦ ÀÔÂû Àü¿¡ È®ÀÎÇϽñ⠹ٶø´Ï´Ù

 

Áö¿ªºÐ¼®

ÁöÇÏö¸í Á÷¼±°Å¸®

Çб³¸í ÀüÈ­¹øÈ£ ÁÖ¼Ò Á÷¼±°Å¸®

¹ý¿ø

¿ï»êÁö¹æ¹ý¿ø (446-43)¿ï»ê±¤¿ª½Ã ³²±¸ ¹ý´ë·Î 55(¿Áµ¿ 1415)
´ëÇ¥ : 052)216-8000, ¹Î¿ø : 052)216-8021~3
°üÇÒÁö¿ª : ¿ï»ê±¤¿ª½Ã, ¾ç»ê½Ã

µî±â¼Ò ¿ï»êÁö¹æ¹ý¿ø º»¿ø ¾ç»êµî±â¼Ò (´ëÇ¥:1544-0773, ÆÑ½º:(055)384-4180, °æ³² ¾ç»ê½Ã ºÏ¾È³²5±æ 12 (ºÏºÎµ¿ 373))
¼¼¹«¼­ ¾ç»ê¼¼¹«¼­ (´ëÇ¥:055-389-62, ÆÑ½º:055-389-6602, °æ»ó³²µµ ¾ç»ê½Ã ¹°±ÝÀ¾ Áõ»ê¿ª·Î135, 9Ãþ, 10Ãþ(°¡Ã̸® 1296-1))

Àαٳ«ÂûÅë°è

±â°£ ¸Å°¢°Ç¼ö Æò±Õ°¨Á¤°¡
Æò±Õ¸Å°¢°¡
¸Å°¢°¡À²
Æò±ÕÀ¯Âû¼ö
3°³¿ù 9°Ç 285,222,222¿ø
108,729,578¿ø
39%
3.3ȸ
6°³¿ù 13°Ç 312,633,317¿ø
143,202,862¿ø
47%
2.9ȸ
12°³¿ù 14°Ç 306,802,366¿ø
144,545,514¿ø
48%
2.8ȸ


º» °æ¸ÅÁ¤º¸´Â ¹ý¿øÀÚ·á¿Í ÀÏÄ¡Çϵµ·Ï ÇÏ¿´À¸³ª ±Ç¸®»çÇ׺¯µ¿, ÀÔ·ÂÂø¿À µîÀÇ ¿øÀÎÀ¸·Î »ç½Ç°ú ´Ù¸¦ ¼ö ÀÖ½À´Ï´Ù. ÀÌ¿ë¾à°ü¿¡ ÀǰЏéÃ¥Á¶°ÇÀ¸·Î Á¦°øµÊÀ» ¾Ë¸®¸ç, °æ¸ÅÀÔÂû½Ã ¹Ýµå½Ã °ü·Ã °øºÎ¸¦ ÀçÈ®ÀÎÇϽñ⠹ٶø´Ï´Ù. º¸´Ù Æí¸®ÇÑ °æ¸ÅÁ¤º¸ Á¦°øÀ» À§ÇØ Áö¼ÓÀûÀ¸·Î °³¼±ÇϰڽÀ´Ï´Ù. ÀÌ¿ëÇØ Áּż­ °¨»çÇÕ´Ï´Ù.
°ü½É¹°°ÇÀ¸·Î µî·ÏÇÕ´Ï´Ù