169
¾ÆÆÄÆ®
ûÁÖÁö¹æ¹ý¿ø
 °¨Á¤°¡479,000,000 ¿ø
 ÃÖÀú°¡(70%) 335,300,000 ¿ø
 º¸Áõ±Ý(10%) 33,530,000 ¿ø
 Ã»±¸¾×55,134,226 ¿ø
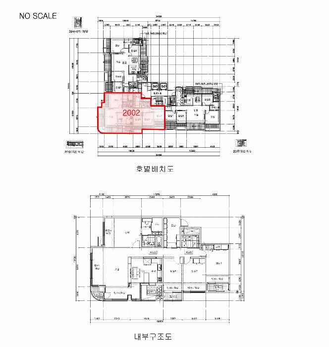
ÃæÃ»ºÏµµ ûÁֽà ¼­¿ø±¸ ¼ºÈ­µ¿ 436 ³²¾çÈÞÆ°¾ÆÆÄÆ® 102µ¿ 20Ãþ 2002È£
»ç°Ç¹øÈ£ 2025Ÿ°æ51252
Áߺ¹»ç°ÇÁߺ¹ 2025Ÿ°æ5837,
°æ¸ÅÁ¾·ùºÎµ¿»ê°­Á¦°æ¸Å
¸Å°¢´ë»óÅäÁö ¹× °Ç¹°Àϰý ¸Å°¢
¸Å°¢±âÀÏ    2026.01.06(È­) 10:00 ÀÔÂû 9ÀÏÀü    
ÅäÁö¸éÀû66.96§³(20.25 Æò)
°Ç¹°¸éÀû119.77§³(36.23 Æò)
乫/¼ÒÀ¯ÀÚÁÖOOO OOOOO¿Ü 1¸í / ½ÅOO
ä±ÇÀÚ±èOO
±è¼ºÈÆ ´ëÇ¥ÀÌ»ç
°øÀÎÁß°³»ç, ºÎµ¿»ê°ø°æ¸Å»ç, ÇѾç´ëÇб³ Á¹¾÷
Àü) ÅÂÀÎÄÁ¼³ÆÃ(ÁÖ) ´ëÇ¥ÀÌ»ç
Àü) ¿©ÀÇÁֺε¿»êÁß°³¹ýÀÎ(ÁÖ) ´ëÇ¥ÀÌ»ç
Çö) ¿©ÀÇÁÖ°æ¸Å¹ýÀÎ ´ëÇ¥ÀÌ»ç
010-2371-3237
ÆäÀ̽ººÏ Æ®À§ÅÍ ±¸±Û+
īī¿À½ºÅ丮
īī¿ÀÅå sms¹®ÀÚº¸³»±â
 

±âÀϳ»¿ª

°æ°ú ³¯Â¥ Àú°¨ ÃÖÀú°¡ °á°ú
Á¢¼öÀÏ 2025-05-12 °æ¸ÅÁ¢¼ö
~3ÀÏ 
2025-05-15 °æ¸Å°³½Ã°áÁ¤
~98ÀÏ 
2025-08-18 ¹è´ç¿ä±¸Á¾±âÀÏ
~204ÀÏ 
2025-12-02 100%
479,000,000
À¯Âû
~239ÀÏ 
2026-01-06 70%
335,300,000
ÁøÇà
¹°°Ç¸í¼¼¼­ ÇöȲÁ¶»ç¼­ ¹®°ÇÁ¢¼ö ¼Û´Þ³»¿ª

°¨Á¤Æò°¡ÇöȲ

¸ñ·Ï ÁÖ¼Ò ±¸Á¶/¿ëµµ/´ëÁö±Ç ¸éÀû ºñ°í
´ëÁö±Ç
¼ºÈ­µ¿ 436 40288.7ºÐÀÇ 66.9583 66.9583 §³
(20.25Æò)
°Ç¹°
¼ºÈ­µ¿ 436 102µ¿ 20Ãþ 2002È£ ö±ÙÄÜÅ©¸®Æ®±¸Á¶ 119.77 §³
(36.23Æò)
1) À§Ä¡/µµ½ÃÁö¿ª/Á¦3Á¾ÀϹÝÁÖ°ÅÁö¿ª/Áö±¸´ÜÀ§°èȹ±¸¿ª/Â÷·®ÃâÀÔ °¡´É/°£¼±µµ·Î/ö±ÙÄÜÅ©¸®Æ®±¸Á¶/°æ»çÁöºØ ´õº¸±â
°¨Á¤Æò°¡ ¿äÇ×Ç¥
1)À§Ä¡ ¹× ÁÖÀ§È¯°æ
º»°ÇÀº ÃæÃ»ºÏµµ ûÁֽà ¼­¿ø±¸ ¼ºÈ­µ¿ ¼ÒÀç ""KBSûÁÖ¹æ¼ÛÃѱ¹"" ¼­Ãø Àαٿ¡ À§Ä¡Çϸç, ÁÖÀ§
´Â ¾ÆÆÄÆ®´ÜÁö ¹× ±Ù¸°»ýȰ½Ã¼³ µîÀÌ ¼ÒÀçÇÏ´Â Áö¿ªÀ¸·Î¼­ Á¦¹Ý ÁÖÀ§È¯°æÀº ´ëüÀûÀ¸·Î º¸Åë
½Ã µÊ.
2)±³Åë»óȲ
º»°Ç±îÁö Â÷·®ÃâÀÔ °¡´ÉÇϸç, Àαٿ¡ °£¼±µµ·Î¿Í ¿¬°èµÇ¾î ÀϹÝÂ÷·®À» ÀÌ¿ëÇÑ Á¢±Ù¼ºÀº
º¸ÅëÀÌ¸ç ´ëÁß±³Åë À̿뿩°ÇÀº ³ë¼± ¹× ¹èÂ÷°£°Ý µîÀ» °í·Á½Ã º¸Åë½Ã µÊ.
3)°Ç¹°ÀÇ ±¸Á¶
ö±ÙÄÜÅ©¸®Æ®±¸Á¶ °æ»çÁöºØ 20Ãþ °Ç¹° ³» Á¦102µ¿ Á¦20Ãþ Á¦2002È£·Î¼­
¿Ü º® : ¸ôÅ»À§ ÆäÀÎÆÃ ¸¶°¨ µîÀÓ.
³» º® : º®Áö ¹× ÀϺΠŸÀϸ¶°¨ µîÀÓ.
â È£ : ¼¦½Ãâȣ µîÀÓ.
4)ÀÌ¿ë»óÅÂ
¾ÆÆÄÆ®·Î ÀÌ¿ëÁßÀÓ.
5)¼³ºñ³»¿ª
Àü±â¼³ºñ, ³­¹æ¼³ºñ, À§»ý ¹× ±Þ¹è¼ö¼³ºñ, ½Â°­±â¼³ºñ µîÀÌ ±¸ºñµÇ¾î ÀÖÀ½.


6)ÅäÁöÀÇ Çü»ó ¹× ÀÌ¿ë»óÅÂ
»ç´Ù¸®ÇüÀÇ ÆòÁö·Î¼­, ¾ÆÆÄÆ® °ÇºÎÁö·Î ÀÌ¿ëÁßÀÓ.
7)ÀÎÁ¢ µµ·Î»óŵî
º»°Ç ´ÜÁö³» µµ·Î°¡ ¿Ü°û °øµµ¿Í ¿¬°èµÇ¾î ÀÖÀ½.
8)ÅäÁöÀÌ¿ë°èȹ ¹× Á¦ÇÑ»óÅÂ
µµ½ÃÁö¿ª, Á¦3Á¾ÀϹÝÁÖ°ÅÁö¿ª, ÁÖ°Å¿ëÁö(°øµ¿ÁÖÅÿëÁöC, °ÇÆóÀ²30%ÀÌÇÏ, ¿ëÀû·ü220%ÀÌÇÏ, ³ô
ÀÌ20ÃþÀÌÇÏ, °ÇÃ༱6M~10M, ÇüÅ °æ»çÁöºØ¼³Ä¡), Áö±¸´ÜÀ§°èȹ±¸¿ª(¼ºÈ­(1)Áö±¸), º¸ÇàÀÚÀü
¿ëµµ·Î(Á¢ÇÕ), ¼Ò·Î2·ù(Æø 8m~10m)(Á¢ÇÕ), Áß·Î1·ù(Æø 20m~25m)(Á¢ÇÕ), °¡Ãà»çÀ°Á¦Çѱ¸¿ª(°¡
Ãà»çÀ°ÀüºÎÁ¦Çѱ¸¿ª)<°¡ÃàºÐ´¢ÀÇ °ü¸® ¹× À̿뿡 °üÇÑ ¹ý·ü>, »ó´ëº¸È£±¸¿ª(¼ºÈ­ÃʵîÇб³,û
ÁÖ±³À°Áö¿øÃ»Ã¼À°°Ç°­°ú(043-299-3191~3196))<±³À°È¯°æ º¸È£¿¡ °üÇÑ ¹ý·ü>ÀÓ.
9)°øºÎ¿ÍÀÇ Â÷ÀÌ
--.
10)±âŸÂü°í»çÇ×(ÀÓ´ë°ü·Ê ¹× ±âŸ)
- ÀÓ´ë°ü°è ¹Ì»óÀÓ.

°ÇÃ๰ÇöȲ

¼ÒÀçÁö ÃæÃ»ºÏµµ ûÁֽà ¼­¿ø±¸ ¼ºÈ­µ¿ 436¹øÁö
´ëÁö¸éÀû   ¿¬¸éÀû 5070.24§³
(1536.44Æò)
°ÇÃà¸éÀû 366.88§³
(111.18Æò)
¿ëÀû·ü»êÁ¤
¿¬¸éÀû
5070.24§³
(1536.44Æò)
°ÇÆóÀ²   ¿ëÀû·ü  
Áö»óÃþ¼ö 16Ãþ ÁöÇÏÃþ¼ö  
ÁÖ¿ëµµ °øµ¿ÁÖÅà ±¸Á¶ ö±ÙÄÜÅ©¸®Æ®±¸Á¶
Âø°øÀÏÀÚ 2006.03.17 »ç¿ë½ÂÀÎÀÏÀÚ 2008.08.01
°ÇÃ๰Ãþº°ÇöȲ [º¸±â]


µî±âºÎµîº» ¿ä¾à(°Ç¹°)

  Á¢¼öÀÏÀÚ µî±â¸ñÀû/±Ç¸®ÀÚ ±Ç¸®±Ý¾× ±âÁØ
1 2008³â11¿ù18ÀÏ
¼ÒÀ¯±Ç
½ÅOO
¼Ò¸ê
2 2008³â11¿ù18ÀÏ
±ÙÀú´ç±Ç
³óOOOO
121,000,000 ¼Ò¸ê±âÁØ
3 2018³â3¿ù30ÀÏ
±ÙÀú´ç±Ç
(OOOO
108,000,000 ¼Ò¸ê
4 2023³â5¿ù25ÀÏ
±ÙÀú´ç±Ç
(OOOO
120,000,000 ¼Ò¸ê
5 2025³â3¿ù4ÀÏ
°¡¾Ð·ù
±èOO
53,013,669 ¼Ò¸ê
6 2025³â5¿ù16ÀÏ
°­Á¦°æ¸Å
±èOO
¼Ò¸ê
7 2025³â5¿ù30ÀÏ
°¡¾Ð·ù
ÁßOOOO
175,082,428 ¼Ò¸ê

ÀÓÂ÷ÀÎÇöȲ (¹è´ç¿ä±¸Á¾±âÀÏ: 2025-08-18)


Á¶»çµÈ ÀÓÂ÷³»¿ªÀÌ ¾ø½À´Ï´Ù


¿©ÀÇÁÖ°æ¸Å Á¶¾ð ÇÑ ¸¶µð

³«Âû ÈÄ¿¡ µî±âºÎ»ó ¼Ò¸êµÇÁö ¾Ê´Â ±Ç¸®´Â ¾ø½À´Ï´Ù.
´ë·«ÀûÀÎ °ËÅäÀǰßÀ̹ǷΠÀÔÂûÀü¿¡ Àü¹®°¡ÀÇ Á¶¾ðÀ» Âü°íÇØ º¸½Ã±æ ±ÇÇØµå¸³´Ï´Ù.
ü³³°ü¸®ºñ¸¦ ºÎ´ãÇÒ ¼ö ÀÖ½À´Ï´Ù.
Áߺ¹°æ¸Å »ç°ÇÀÔ´Ï´Ù.
°æ¸Å ½ÅûÀÚÀÇ Ã»±¸±Ý¾×, Áï ±× °æ¸Å½Åû ä±ÇÀÚ°¡ ¹è´ç ¹Þ¾Æ¾ß ÇÒ ±Ý¾×(55,134,226¿ø)ÀÌ °¨Á¤°¡°Ý ´ëºñ ÀûÀº ±Ý¾×ÀÎ °æ¿ì¿¡´Â, ÀϹÝÀûÀ¸·Î °æ¸Å°¡ ÃëÇϵǰųª Ãë¼Ò µÉ °¡´É¼ºÀÌ ÀÖ½À´Ï´Ù. ±×·±µ¥ ÀÌ °æ¸Å´Â ´Ù¸¥ °æ¸Å½Åû(Áߺ¹ 2025Ÿ°æ5837,)ÀÌ µé¾î ¿Í¼­ °æ¸Å°¡ Áߺ¹µÇ¾î ÁøÇàµÇ¹Ç·Î ÃëÇÏ, Ãë¼Ò¾øÀÌ ÁøÇàµÉ ¿©Áö°¡ ¸¹½À´Ï´Ù.
¡Ø ¹°°Ç Ű¿öµå : µµ½ÃÁö¿ª/ÁÖ°ÅÁö¿ª/Á¦3Á¾ÀϹÝÁÖ°ÅÁö¿ª/Áö±¸´ÜÀ§°èȹ±¸¿ª/Â÷·®ÃâÀÔ °¡´É/°£¼±µµ·Î/ö±ÙÄÜÅ©¸®Æ®±¸Á¶/°æ»çÁöºØ
Àüü ÄÁ¼³ÆÃÀÌ ºÎ´ã½º·¯¿ì½Å°¡¿ä? ±Ç¸®ºÐ¼®¸¸ ÀÇ·ÚÇϼŵµ ±¦Âú½À´Ï´Ù!
½Ç¼Ó ÀÖ°Ô Çٽɸ¸ ´ãÀº ±Ç¸®ºÐ¼® ¼­ºñ½º!! (±Ç¸®ºÐ¼® + ½Ã¼¼Á¶»ç + ³«Âû°¡ »êÁ¤ + ÀÔÂûÇ¥ ÀÛ¼º¹æ¹ý ±îÁö)
ÃÖ´ë Àüü ÄÁ¼³ÆÃ ºñ¿ëÀÇ 10% ¼öÁØ !!

ÁÖÀÇ»çÇ× (ÃÖ¼±¼øÀ§ ¼³Á¤ÀÏ: 2008.11.18. ±ÙÀú´ç±Ç ¼³Á¤)

¸Å°¢À¸·Î ¼Ò¸êµÇÁö ¾Ê´Â µî±âºÎ±Ç¸®:
¸Å°¢À¸·Î ¼³Á¤µÈ °ÍÀ¸·Î º¸´Â Áö»ó±Ç:
¡Ø¹Ì³³°ü¸®ºñ(°ø¿ë) Àμö¿©ºÎ¸¦ ÀÔÂû Àü¿¡ È®ÀÎÇϽñ⠹ٶø´Ï´Ù

 

Áö¿ªºÐ¼®

ÁöÇÏö¸í Á÷¼±°Å¸®

Çб³¸í ÀüÈ­¹øÈ£ ÁÖ¼Ò Á÷¼±°Å¸®

¹ý¿ø

ûÁÖÁö¹æ¹ý¿ø (286-24)ÃæÃ»ºÏµµ ûÁֽà ¼­¿ø±¸ »ê³²·Î 62¹ø±æ 51 (»ê³²µ¿)
´ëÇ¥ : 043)249-7114~5, ¹Î¿ø : 043)249-7465, ¾ß°£ : 043)249-7400
°üÇÒÁö¿ª : ûÁÖ½Ã, º¸Àº±º, ±«»ê±º, ÁõÆò±º, ÁøÃµ±º

µî±â¼Ò    (´ëÇ¥:, ÆÑ½º:, )
¼¼¹«¼­ ûÁÖ¼¼¹«¼­ (´ëÇ¥:043-230-92, ÆÑ½º:043-235-5417, ÃæÃ»ºÏµµ ûÁֽà Èï´ö±¸ Á×õ·Î 151 (º¹´ëµ¿))

Àαٳ«ÂûÅë°è

±â°£ ¸Å°¢°Ç¼ö Æò±Õ°¨Á¤°¡
Æò±Õ¸Å°¢°¡
¸Å°¢°¡À²
Æò±ÕÀ¯Âû¼ö
3°³¿ù 16°Ç 169,625,000¿ø
138,276,404¿ø
72%
2.7ȸ
6°³¿ù 36°Ç 123,902,778¿ø
98,358,899¿ø
70%
2.1ȸ
12°³¿ù 66°Ç 203,586,364¿ø
130,484,020¿ø
69%
2.3ȸ


º» °æ¸ÅÁ¤º¸´Â ¹ý¿øÀÚ·á¿Í ÀÏÄ¡Çϵµ·Ï ÇÏ¿´À¸³ª ±Ç¸®»çÇ׺¯µ¿, ÀÔ·ÂÂø¿À µîÀÇ ¿øÀÎÀ¸·Î »ç½Ç°ú ´Ù¸¦ ¼ö ÀÖ½À´Ï´Ù. ÀÌ¿ë¾à°ü¿¡ ÀǰЏéÃ¥Á¶°ÇÀ¸·Î Á¦°øµÊÀ» ¾Ë¸®¸ç, °æ¸ÅÀÔÂû½Ã ¹Ýµå½Ã °ü·Ã °øºÎ¸¦ ÀçÈ®ÀÎÇϽñ⠹ٶø´Ï´Ù. º¸´Ù Æí¸®ÇÑ °æ¸ÅÁ¤º¸ Á¦°øÀ» À§ÇØ Áö¼ÓÀûÀ¸·Î °³¼±ÇϰڽÀ´Ï´Ù. ÀÌ¿ëÇØ Áּż­ °¨»çÇÕ´Ï´Ù.
°ü½É¹°°ÇÀ¸·Î µî·ÏÇÕ´Ï´Ù