1166
¿ÀÇǽºÅÚ
ÀÇÁ¤ºÎÁö¹æ¹ý¿ø
 °¨Á¤°¡140,000,000 ¿ø
 ÃÖÀú°¡(34%) 48,020,000 ¿ø
 º¸Áõ±Ý(10%) 4,802,000 ¿ø
 Ã»±¸¾×146,000,000 ¿ø
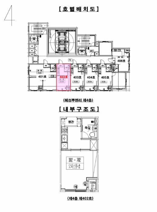
°æ±âµµ ÀÇÁ¤ºÎ½Ã ÀÇÁ¤ºÎµ¿ 214-76 Çý¼º·çþ¸® 4Ãþ 402È£
»ç°Ç¹øÈ£ 2025Ÿ°æ72011
°æ¸ÅÁ¾·ùºÎµ¿»ê°­Á¦°æ¸Å
¸Å°¢´ë»óÅäÁö ¹× °Ç¹°Àϰý ¸Å°¢
¸Å°¢±âÀÏ    2026.03.17(È­) 10:30 ÀÔÂû 34ÀÏÀü    
ÅäÁö¸éÀû4.29§³(1.30 Æò)
°Ç¹°¸éÀû22.08§³(6.68 Æò)
乫/¼ÒÀ¯ÀÚȲOO / ȲOO
ä±ÇÀÚÁÖOOOOOOO
±è¼ºÈÆ ´ëÇ¥ÀÌ»ç
°øÀÎÁß°³»ç, ºÎµ¿»ê°ø°æ¸Å»ç, ÇѾç´ëÇб³ Á¹¾÷
Àü) ÅÂÀÎÄÁ¼³ÆÃ(ÁÖ) ´ëÇ¥ÀÌ»ç
Àü) ¿©ÀÇÁֺε¿»êÁß°³¹ýÀÎ(ÁÖ) ´ëÇ¥ÀÌ»ç
Çö) ¿©ÀÇÁÖ°æ¸Å¹ýÀÎ ´ëÇ¥ÀÌ»ç
010-2371-3237
ÆäÀ̽ººÏ Æ®À§ÅÍ ±¸±Û+
īī¿À½ºÅ丮
īī¿ÀÅå sms¹®ÀÚº¸³»±â
 

±âÀϳ»¿ª

°æ°ú ³¯Â¥ Àú°¨ ÃÖÀú°¡ °á°ú
Á¢¼öÀÏ 2025-04-03 °æ¸ÅÁ¢¼ö
~0ÀÏ 
2025-04-03 °æ¸Å°³½Ã°áÁ¤
~81ÀÏ 
2025-06-23 ¹è´ç¿ä±¸Á¾±âÀÏ
~243ÀÏ 
2025-12-02 100%
140,000,000
À¯Âû
~278ÀÏ 
2026-01-06 70%
98,000,000
À¯Âû
~313ÀÏ 
2026-02-10 49%
68,600,000
À¯Âû
~348ÀÏ 
2026-03-17 34%
48,020,000
ÁøÇà
¹°°Ç¸í¼¼¼­ ÇöȲÁ¶»ç¼­ ¹®°ÇÁ¢¼ö ¼Û´Þ³»¿ª

°¨Á¤Æò°¡ÇöȲ

¸ñ·Ï ÁÖ¼Ò ±¸Á¶/¿ëµµ/´ëÁö±Ç ¸éÀû ºñ°í
´ëÁö±Ç
ÀÇÁ¤ºÎµ¿ 214-76 523.9ºÐÀÇ 4.294 4.294 §³
(1.30Æò)
°Ç¹°
ÀÇÁ¤ºÎµ¿ 214-76 4Ãþ 402È£ ö±ÙÄÜÅ©¸®Æ®±¸Á¶ 22.079 §³
(6.68Æò)
1) À§Ä¡/ÀϹݻó¾÷Áö¿ª/¹ö½ºÁ¤·ùÀå/ÁöÇÏö/Â÷·® Á¢±ÙÀÌ °¡´É/ö±ÙÄÜÅ©¸®Æ®±¸Á¶ ´õº¸±â
°¨Á¤Æò°¡ ¿äÇ×Ç¥
1)À§Ä¡ ¹× ÁÖÀ§È¯°æ
º»°ÇÀº °æ±âµµ ÀÇÁ¤ºÎ½Ã ÀÇÁ¤ºÎµ¿ ¼ÒÀç ""ÀÇÁ¤ºÎÁß¾Ó¿ª"" Àαٿ¡ À§Ä¡Çϸç, ÁÖÀ§´Â ´Üµ¶ÁÖÅÃ, ´Ù¼¼´ëÁÖÅÃ, Çб³, ¾ÆÆÄÆ®, ¿ÀÇǽºÅÚ, ±Ù¸°»ýȰ½Ã¼³ µîÀÌ È¥ÀçÇÏ´Â Áö¿ªÀÓ.
2)±³Åë»óȲ
º»°Ç±îÁö Â÷·® Á¢±ÙÀÌ °¡´ÉÇϰí, Àαٿ¡ ¹ö½ºÁ¤·ùÀå ¹× ÁöÇÏö¿ªÀÌ ¼ÒÀçÇÏ´Â µî Á¦¹Ý ´ëÁß±³Åë ¿©°ÇÀº ¾çÈ£ÇÔ.
3)°Ç¹°ÀÇ ±¸Á¶
ö±ÙÄÜÅ©¸®Æ®±¸Á¶ ÆòÁöºØ 16Ãþ °Ç¹°³» 4Ãþ 402È£·Î¼­,

¿Üº® : ½Ã¸àÆ®¸ôÅ»À§ ÆäÀÎÆÃ ¹× ¼®Àç µî ¸¶°¨,
âȣ : ¼¦½Ã âȣÀÓ.
4)ÀÌ¿ë»óÅÂ
¿ÀÇǽºÅÚ·Î ÀÌ¿ëÁßÀÓ.
5)¼³ºñ³»¿ª
À§»ý ¹× ±Þ¹è¼ö¼³ºñ, È­ÀçŽÁö¼³ºñ, ¿¤¸®º£ÀÌÅͼ³ºñ µîÀÌ µÇ¾î ÀÖÀ½.


6)ÅäÁöÀÇ Çü»ó ¹× ÀÌ¿ë»óÅÂ
3ÇÊÁö ÀÏ´ÜÀÇ À¯»ç »ç´Ù¸®Çü ÅäÁö·Î¼­, ¾ÆÆÄÆ®-¿ø·ëÇüÁÖÅÃ, ¾÷¹«½Ã¼³(¿ÀÇǽºÅÚ) °ÇºÎÁö·Î ÀÌ¿ëÁßÀÓ.
7)ÀÎÁ¢ µµ·Î»óŵî
º»°ÇÀº ³²ÃøÀ¸·Î ³ëÆø ¾à 30¹ÌÅÍ ³»¿ÜÀÇ µµ·Î°¡ ÀÖÀ½.
8)ÅäÁöÀÌ¿ë°èȹ ¹× Á¦ÇÑ»óÅÂ
±âÈ£(1)ÅäÁö: ÀϹݻó¾÷Áö¿ª(ÀϹݻó¾÷Áö¿ª), ´ë·Î2·ù(Æø 30m~35m)(Á¢ÇÕ), °ú¹Ð¾ïÁ¦±Ç¿ª<¼öµµ ±ÇÁ¤ºñ°èȹ¹ý>, öµµº¸È£Áö±¸<öµµ¾ÈÀü¹ý>, (ÇѰ­)Æó±â¹°¸Å¸³½Ã¼³ ¼³Ä¡Á¦ÇÑÁö¿ª<ÇѰ­¼ö°è»ó ¼ö¿ø¼öÁú°³¼± ¹× ÁÖ¹ÎÁö¿ø µî¿¡ °üÇÑ ¹ý·ü>, ÁßÁ¡°æ°ü°ü¸®±¸¿ª(2017-12-22)(ÁßÁ¡°æ°ü°ü¸®±¸¿ª (°æÀüö)), ÁßÁ¡°æ°ü°ü¸®±¸¿ª(ÁßÁ¡°æ°ü°ü¸®±¸¿ª(È£±¹·Î))ÀÓ.

±âÈ£(2),(3)ÅäÁö °øÈ÷: ÀϹݻó¾÷Áö¿ª(ÀϹݻó¾÷Áö¿ª), ´ë·Î2·ù(Æø 30m~35m)(Á¢ÇÕ), »ó´ëº¸È£ ±¸¿ª(ÀÇÁ¤ºÎÁß¾ÓÃÊ)<±³À°È¯°æ º¸È£¿¡ °üÇÑ ¹ý·ü>, °ú¹Ð¾ïÁ¦±Ç¿ª<¼öµµ±ÇÁ¤ºñ°èȹ¹ý>, öµµº¸ È£Áö±¸<öµµ¾ÈÀü¹ý>, (ÇѰ­)Æó±â¹°¸Å¸³½Ã¼³ ¼³Ä¡Á¦ÇÑÁö¿ª<ÇѰ­¼ö°è »ó¼ö¿ø¼öÁú°³¼± ¹× ÁֹΠÁö¿ø µî¿¡ °üÇÑ ¹ý·ü>, ÁßÁ¡°æ°ü°ü¸®±¸¿ª(2017-12-22)(ÁßÁ¡°æ°ü°ü¸®±¸¿ª(°æÀüö)), ÁßÁ¡°æ°ü °ü¸®±¸¿ª(ÁßÁ¡°æ°ü°ü¸®±¸¿ª(È£±¹·Î))ÀÓ.
9)°øºÎ¿ÍÀÇ Â÷ÀÌ
--.
10)±âŸÂü°í»çÇ×(ÀÓ´ë°ü·Ê ¹× ±âŸ)
ÀÓ´ë°ü°è´Â ¹Ì»óÀÓ.
Âü°í
»çÇ×

¸ñ·Ï1

°ÇÃ๰ÇöȲ

¼ÒÀçÁö °æ±âµµ ÀÇÁ¤ºÎ½Ã ÀÇÁ¤ºÎµ¿ 214-76¹øÁö
´ëÁö¸éÀû 523.9§³
(158.76Æò)
¿¬¸éÀû 4483.999§³
(1358.79Æò)
°ÇÃà¸éÀû 366.54§³
(111.07Æò)
¿ëÀû·ü»êÁ¤
¿¬¸éÀû
4205.059§³
(1274.26Æò)
°ÇÆóÀ² 69.96% ¿ëÀû·ü 802.65%
Áö»óÃþ¼ö 16Ãþ ÁöÇÏÃþ¼ö 1Ãþ
ÁÖ¿ëµµ °øµ¿ÁÖÅà ±¸Á¶ ö±ÙÄÜÅ©¸®Æ®±¸Á¶
Âø°øÀÏÀÚ 2019.12.03 »ç¿ë½ÂÀÎÀÏÀÚ 2022.01.05
°ÇÃ๰Ãþº°ÇöȲ [º¸±â]


±¹ÅäºÎ½Ç°Å·¡°¡ °æ±âµµ ÀÇÁ¤ºÎ½Ã ÀÇÁ¤ºÎµ¿

¡Ü ¸Å¸Å

¸éÀû(§³), ±Ý¾×(¸¸¿ø)

¡Ü Àü¼¼

¸éÀû(§³), ±Ý¾×(¸¸¿ø)

°è¾àÀϰǹ°¸íĪÃþÀü¿ëº¸Áõ±Ý¿ù¼¼°ÇÃà
26.01.15Çý¼º·çþ¸®744.721,000992022
25.12.18Çý¼º·çþ¸®544.721,000992022
25.11.28Çý¼º·çþ¸®422.08100552022
25.11.09Çý¼º·çþ¸®336.071,000882022
25.06.18Çý¼º·çþ¸®522.08500602022
¢Ñ ´õº¸±â

µî±âºÎµîº» ¿ä¾à(°Ç¹°)

  Á¢¼öÀÏÀÚ µî±â¸ñÀû/±Ç¸®ÀÚ ±Ç¸®±Ý¾× ±âÁØ
1 2022³â7¿ù25ÀÏ
¼ÒÀ¯±Ç
ȲOO
¼Ò¸ê
2 2022³â8¿ù1ÀÏ
¾àÁ¤/±ÝÁö»çÇ×/ȯ¸ÅƯ¾à
Àμö
3 2023³â8¿ù3ÀÏ
ÀÓÂ÷±Ç¼³Á¤
ÀÌOO
146,000,000 Àμö
4 2025³â4¿ù3ÀÏ
°­Á¦°æ¸Å
ÁÖOOOO
¼Ò¸ê±âÁØ

ÀÓÂ÷ÀÎÇöȲ (¹è´ç¿ä±¸Á¾±âÀÏ: 2025-06-23)

ÀÓÂ÷ÀÎ ¿ëµµ/Á¡À¯ º¸Áõ±Ý/¿ù¼¼ ´ëÇ×·Â
ÀüÀÔÀÏ/È®Á¤ÀÏ ¹è´ç¿ä±¸ ºñ°í
ÀÌOO 402È£ÀüºÎ 146,000,000
O
2022.07.25.
2023.05.01.
2025.6.13. 2022.07.25.~2024.07.25.
ºñ°í
(¸Å°¢¹°°Ç
¸í¼¼¼­)
<ºñ°í> ½Åûä±ÇÀÚÀÎ ÁÖÅõµ½Ãº¸Áõ°ø»ç°¡ À̽ÂÀçÀÇ ÀÓÂ÷º¸Áõ±ÝÀ» ´ëÀ§º¯Á¦ÇÔ(½Åûä±ÇÀÚ ÁÖÅõµ½Ãº¸Áõ°ø»ç´Â ÁÖÅÃÀÓ´ëÂ÷º¸È£ ¹ý Á¦3Á¶ÀÇ2 Á¦7Ç× Á¦9È£¿¡ ÀÇÇÏ¿© ÀÓÂ÷ÀÎÀÇ ¿ì¼±º¯Á¦±ÇÀ» ½Â°èÇÏ¿´À½).

¿©ÀÇÁÖ°æ¸Å Á¶¾ð ÇÑ ¸¶µð

¸Å°¢¹°°Ç¸í¼¼ ºñ°í³­¿¡ ±âÀçµÈ ³»¿ëÀÔ´Ï´Ù.
<ºñ°í> ½Åûä±ÇÀÚÀÎ ÁÖÅõµ½Ãº¸Áõ°ø»ç°¡ À̽ÂÀçÀÇ ÀÓÂ÷º¸Áõ±ÝÀ» ´ëÀ§º¯Á¦ÇÔ(½Åûä±ÇÀÚ ÁÖÅõµ½Ãº¸Áõ°ø»ç´Â ÁÖÅÃÀÓ´ëÂ÷º¸È£ ¹ý Á¦3Á¶ÀÇ2 Á¦7Ç× Á¦9È£¿¡ ÀÇÇÏ¿© ÀÓÂ÷ÀÎÀÇ ¿ì¼±º¯Á¦±ÇÀ» ½Â°èÇÏ¿´À½).
³«Âû ÈÄ¿¡ µî±âºÎ»ó ¼Ò¸êµÇÁö ¾Ê´Â ±Ç¸®ÀÔ´Ï´Ù.
À»±¸ 1¹ø ÁÖÅÃÀÓÂ÷±Ç ¼³Á¤µî±â(ÀÓ´ëÂ÷º¸Áõ±Ý: 146,000,000¿ø, ÀüÀÔÀÏ: 2022.07.25. È®Á¤ÀÏÀÚ: 2023.05.01.)´Â ¹è´ç¿¡¼­ º¸Áõ±ÝÀÌ Àü¾× º¯Á¦µÇÁö ¾Æ´ÏÇϸé Àܾ×À» ¸Å¼öÀÎÀÌ ÀμöÇÔ
°¨Á¤ ½ÃÁ¡ÀÌ ¿À·¡µÇ¾î °¡°Ýº¯µ¿ÀÌ ÀÖÀ» ¼ö ÀÖ½À´Ï´Ù.
ÀÌ ¹°°ÇÀº 2025³â 4¿ù 3ÀÏ¿¡ °æ¸Å°¡ °³½ÃµÇ¾ú´Âµ¥ Áö±Ý ½ÃÁ¡À¸·Î ¾à 314ÀÏÀÌ ÀÌ °æ°úµÇ¾ú½À´Ï´Ù. °¨Á¤°¡°ÝÀº 314ÀÏ Àü ½ÃÁ¡¿¡¼­ Æò°¡ÇÑ °¡°ÝÀ̹ǷΠ±× »çÀÌ °¡°Ýº¯µ¿ÀÌ ÀÖÀ» ¼ö ÀÖ½À´Ï´Ù. ƯÈ÷ °¡°Ý º¯µ¿ÀÌ ½ÉÇÑ ¾ÆÆÄÆ®´Â À¯ÀÇÇÏ¼Å¾ß ÇÕ´Ï´Ù. °¨Á¤°¡°ÝÀ» ³Ê¹« ¹ÏÁö ¸¶½Ã°í ÇöÀç ½Ç¸Å¹° °¡°Ý°ú ½Ç°Å·¡°¡¸¦ È®ÀÎÇϽñ⠹ٶø´Ï´Ù.
°£È¤ °¨Á¤°¡°Ýº¸´Ù ³ô°Ô ³«ÂûµÇ´Â °æ¿ì°¡ Àִµ¥ ´ëºÎºÐ ÀÌ·± ÀÌÀ¯ÀÔ´Ï´Ù.
¡Ø ¹°°Ç Ű¿öµå : »ó¾÷Áö¿ª/ÀϹݻó¾÷Áö¿ª/¹ö½ºÁ¤·ùÀå/ÁöÇÏö/Â÷·® Á¢±ÙÀÌ °¡´É/ö±ÙÄÜÅ©¸®Æ®±¸Á¶
Àüü ÄÁ¼³ÆÃÀÌ ºÎ´ã½º·¯¿ì½Å°¡¿ä? ±Ç¸®ºÐ¼®¸¸ ÀÇ·ÚÇϼŵµ ±¦Âú½À´Ï´Ù!
½Ç¼Ó ÀÖ°Ô Çٽɸ¸ ´ãÀº ±Ç¸®ºÐ¼® ¼­ºñ½º!! (±Ç¸®ºÐ¼® + ½Ã¼¼Á¶»ç + ³«Âû°¡ »êÁ¤ + ÀÔÂûÇ¥ ÀÛ¼º¹æ¹ý ±îÁö)
ÃÖ´ë Àüü ÄÁ¼³ÆÃ ºñ¿ëÀÇ 10% ¼öÁØ !!

ÁÖÀÇ»çÇ× (ÃÖ¼±¼øÀ§ ¼³Á¤ÀÏ: 2025.04.03. °æ¸Å°³½Ã°áÁ¤ ¼³Á¤)

¸Å°¢À¸·Î ¼Ò¸êµÇÁö ¾Ê´Â µî±âºÎ±Ç¸®: À»±¸ 1¹ø ÁÖÅÃÀÓÂ÷±Ç ¼³Á¤µî±â(ÀÓ´ëÂ÷º¸Áõ±Ý: 146,000,000¿ø, ÀüÀÔÀÏ: 2022.07.25. È®Á¤ÀÏÀÚ: 2023.05.01.)´Â ¹è´ç¿¡¼­ º¸Áõ±ÝÀÌ Àü¾× º¯Á¦µÇÁö ¾Æ´ÏÇϸé Àܾ×À» ¸Å¼öÀÎÀÌ ÀμöÇÔ
¸Å°¢À¸·Î ¼³Á¤µÈ °ÍÀ¸·Î º¸´Â Áö»ó±Ç:
¡Ø¹Ì³³°ü¸®ºñ(°ø¿ë) Àμö¿©ºÎ¸¦ ÀÔÂû Àü¿¡ È®ÀÎÇϽñ⠹ٶø´Ï´Ù

 

Áö¿ªºÐ¼®

ÁöÇÏö¸í Á÷¼±°Å¸®

Çб³¸í ÀüÈ­¹øÈ£ ÁÖ¼Ò Á÷¼±°Å¸®

¹ý¿ø

ÀÇÁ¤ºÎÁö¹æ¹ý¿ø (116-16)°æ±âµµ ÀÇÁ¤ºÎ½Ã ³ì¾ç·Î34¹ø±æ 23 (°¡´Éµ¿)
´ëÇ¥ : 031)828-0114
°üÇÒÁö¿ª : ÀÇÁ¤ºÎ½Ã, ¾çÁÖ½Ã, ³²¾çÁÖ½Ã, ±¸¸®½Ã, ¿¬Ãµ±º, Æ÷õ½Ã, °¡Æò±º, µ¿µÎõ½Ã, ö¿ø±º

µî±â¼Ò ÀÇÁ¤ºÎÁö¹æ¹ý¿ø º»¿ø ÀÇÁ¤ºÎµî±â¼Ò (´ëÇ¥:1544-0773, ÆÑ½º:(031)873-6303, °æ±âµµ ÀÇÁ¤ºÎ½Ã ¹ü°ñ·Î146¹ø±æ 13 (ÀÇÁ¤ºÎµ¿ 558))
¼¼¹«¼­ ÀÇÁ¤ºÎ¼¼¹«¼­ (´ëÇ¥:031-870-42, ÆÑ½º:031)875-2736, °æ±âµµ ÀÇÁ¤ºÎ½Ã ÀÇÁ¤·Î 77 (ÀÇÁ¤ºÎµ¿))

Àαٳ«ÂûÅë°è

±â°£ ¸Å°¢°Ç¼ö Æò±Õ°¨Á¤°¡
Æò±Õ¸Å°¢°¡
¸Å°¢°¡À²
Æò±ÕÀ¯Âû¼ö
3°³¿ù 12°Ç 458,970,633¿ø
261,555,750¿ø
55%
2.9ȸ
6°³¿ù 29°Ç 447,665,771¿ø
267,798,157¿ø
59%
2.4ȸ
12°³¿ù 35°Ç 454,208,782¿ø
279,415,044¿ø
60%
2.3ȸ


º» °æ¸ÅÁ¤º¸´Â ¹ý¿øÀÚ·á¿Í ÀÏÄ¡Çϵµ·Ï ÇÏ¿´À¸³ª ±Ç¸®»çÇ׺¯µ¿, ÀÔ·ÂÂø¿À µîÀÇ ¿øÀÎÀ¸·Î »ç½Ç°ú ´Ù¸¦ ¼ö ÀÖ½À´Ï´Ù. ÀÌ¿ë¾à°ü¿¡ ÀǰЏéÃ¥Á¶°ÇÀ¸·Î Á¦°øµÊÀ» ¾Ë¸®¸ç, °æ¸ÅÀÔÂû½Ã ¹Ýµå½Ã °ü·Ã °øºÎ¸¦ ÀçÈ®ÀÎÇϽñ⠹ٶø´Ï´Ù. º¸´Ù Æí¸®ÇÑ °æ¸ÅÁ¤º¸ Á¦°øÀ» À§ÇØ Áö¼ÓÀûÀ¸·Î °³¼±ÇϰڽÀ´Ï´Ù. ÀÌ¿ëÇØ Áּż­ °¨»çÇÕ´Ï´Ù.
°ü½É¹°°ÇÀ¸·Î µî·ÏÇÕ´Ï´Ù