128
±Ù¸°»ó°¡
¼ö¿øÁö¹æ¹ý¿ø ¾È»êÁö¿ø
 °¨Á¤°¡965,000,000 ¿ø
 ÃÖÀú°¡(70%) 675,500,000 ¿ø
 º¸Áõ±Ý(10%) 67,550,000 ¿ø
 Ã»±¸¾×615,981,404 ¿ø
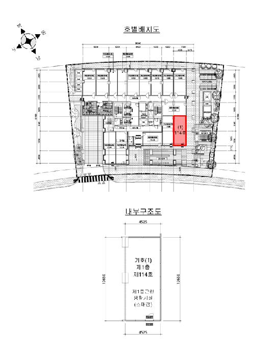
°æ±âµµ ¾È»ê½Ã ´Ü¿ø±¸ ¼º°îµ¿ 845-5 ¸¶¸®³ª¾ÆÀÏ·£µå 1Ãþ114È£
»ç°Ç¹øÈ£ 2025Ÿ°æ51803
°æ¸ÅÁ¾·ùºÎµ¿»êÀÓÀǰæ¸Å
¸Å°¢´ë»óÅäÁö ¹× °Ç¹°Àϰý ¸Å°¢
¸Å°¢±âÀÏ    2026.01.06(È­) 10:30 ÀÔÂû 8ÀÏÀü    
ÅäÁö¸éÀû10.23§³(3.09 Æò)
°Ç¹°¸éÀû48.19§³(14.58 Æò)
乫/¼ÒÀ¯ÀÚ¹ÚOO / ¹ÚOO
ä±ÇÀÚ¿¡OOOOOOOOO OOOOOOOOO(OOOOOOO OOO)
±è¼ºÈÆ ´ëÇ¥ÀÌ»ç
°øÀÎÁß°³»ç, ºÎµ¿»ê°ø°æ¸Å»ç, ÇѾç´ëÇб³ Á¹¾÷
Àü) ÅÂÀÎÄÁ¼³ÆÃ(ÁÖ) ´ëÇ¥ÀÌ»ç
Àü) ¿©ÀÇÁֺε¿»êÁß°³¹ýÀÎ(ÁÖ) ´ëÇ¥ÀÌ»ç
Çö) ¿©ÀÇÁÖ°æ¸Å¹ýÀÎ ´ëÇ¥ÀÌ»ç
010-2371-3237
ÆäÀ̽ººÏ Æ®À§ÅÍ ±¸±Û+
īī¿À½ºÅ丮
īī¿ÀÅå sms¹®ÀÚº¸³»±â
 

±âÀϳ»¿ª

°æ°ú ³¯Â¥ Àú°¨ ÃÖÀú°¡ °á°ú
Á¢¼öÀÏ 2025-02-26 °æ¸ÅÁ¢¼ö
~1ÀÏ 
2025-02-27 °æ¸Å°³½Ã°áÁ¤
~82ÀÏ 
2025-05-19 ¹è´ç¿ä±¸Á¾±âÀÏ
~272ÀÏ 
2025-11-25 100%
965,000,000
À¯Âû
~314ÀÏ 
2026-01-06 70%
675,500,000
ÁøÇà
¹°°Ç¸í¼¼¼­ ÇöȲÁ¶»ç¼­ ¹®°ÇÁ¢¼ö ¼Û´Þ³»¿ª

°¨Á¤Æò°¡ÇöȲ

¸ñ·Ï ÁÖ¼Ò ±¸Á¶/¿ëµµ/´ëÁö±Ç ¸éÀû ºñ°í
´ëÁö±Ç
¼º°îµ¿ 845-5 2082.8ºÐÀÇ 10.2262 10.2262 §³
(3.09Æò)
°Ç¹°
¼º°îµ¿ 845-5 1Ãþ114È£ ö±ÙÄÜÅ©¸®Æ®±¸Á¶ 48.19 §³
(14.58Æò)
1) À§Ä¡/µµ½ÃÁö¿ª/ÀϹݻó¾÷Áö¿ª/Áö±¸´ÜÀ§°èȹ±¸¿ª/Â÷·®ÀÇ Á¢±ÙÀÌ °¡´É/³ë¼±¹ö½ºÁ¤·ùÀå/ö±ÙÄÜÅ©¸®Æ®±¸Á¶ ´õº¸±â
°¨Á¤Æò°¡ ¿äÇ×Ç¥
1)À§Ä¡ ¹× ÁÖÀ§È¯°æ
º»°ÇÀº °æ±âµµ ¾È»ê½Ã ´Ü¿ø±¸ ¼º°îµ¿ ¼ÒÀç ""¾È»êº°¸Á¾îÃ̹®È­°ü"" µ¿³²Ãø ±Ù°Å¸®¿¡ À§Ä¡Çϸç, ÁÖÀ§´Â ±Ù¸°»ýȰ½Ã¼³, ¼÷¹Ú½Ã¼³, ¿ÀÇǽºÅÚ ¹× °ø¿ø µîÀÌ ¼ÒÀçÇÏ´Â Áö¿ªÀ¸·Î¼­ Á¦¹Ý ÁÖÀ§È¯°æÀº º¸ÅëÀÓ.
2)±³Åë»óȲ
º»°Ç±îÁö Á¦¹Ý Â÷·®ÀÇ Á¢±ÙÀÌ °¡´ÉÇϰí Àαٿ¡ ³ë¼±¹ö½ºÁ¤·ùÀåÀÌ ¼ÒÀçÇÏ´Â µî Á¦¹Ý ±³Åë»óȲÀº º¸ÅëÀÓ.
3)°Ç¹°ÀÇ ±¸Á¶
ö±ÙÄÜÅ©¸®Æ®±¸Á¶ (ö±Ù)ÄÜÅ©¸®Æ®ÁöºØ ÁöÇÏ1Ãþ/Áö»ó28Ãþ °Ç¹° ³» Á¦1Ãþ Á¦114È£·Î¼­,
»ç¿ë½ÂÀÎÀÏ(2023.06.05)

¿Üº® : ¸ôÅ»À§ ÆäÀÎÆÃ ¹× µ¹ºÙÀÓ ¸¶°¨ µî,
³»º® : ¸ôÅ»À§ ÆäÀÎÆÃ ¸¶°¨ µî,
âȣ : ¼¨½Ãâȣ ¸¶°¨ µî.
4)ÀÌ¿ë»óÅÂ
°øºÎ»ó 'Á¦1Á¾±Ù¸°»ýȰ½Ã¼³(¼Ò¸ÅÁ¡)' ÀÓ.
5)¼³ºñ³»¿ª
À§»ý ¹× ±Þ¡¤¹è¼ö¼³ºñ, ½Â°­±â¼³ºñ, ¼ÒÈ­¡¤È­ÀçŽÁö¼³ºñ, ÁÖÂ÷½Ã¼³ µî µÇ¾î ÀÖÀ½.
6)ÅäÁöÀÇ Çü»ó ¹× ÀÌ¿ë»óÅÂ
º»°ÇÀº µî°íÆòźÇÑ ´ëü·Î °¡ÀåÇü ÅäÁö·Î¼­""¼÷¹Ú½Ã¼³(»ýȰÇü¼÷¹Ú½Ã¼³), Á¦1Á¾±Ù¸°»ýȰ ½Ã¼³""°ÇºÎÁö·Î ÀÌ¿ëÁßÀÓ.
7)ÀÎÁ¢ µµ·Î»óŵî
º»°Ç ³²ÃøÀ¸·Î ³ëÆø ¾à 20¹ÌÅÍ ³»¿ÜÀÇ Æ÷Àåµµ·Î¿¡ Á¢ÇÔ.
8)ÅäÁöÀÌ¿ë°èȹ ¹× Á¦ÇÑ»óÅÂ
µµ½ÃÁö¿ª, ÀϹݻó¾÷Áö¿ª, Áö±¸´ÜÀ§°èȹ±¸¿ª, Áß·Î1·ù(Æø 20m~25m)(Á¢ÇÕ), ±¹°¡»ê¾÷´ÜÁö (½ÃÈ­±¹°¡»ê¾÷´ÜÁö)<»ê¾÷ÀÔÁö ¹× °³¹ß¿¡ °üÇÑ ¹ý·ü>, »ê¾÷´ÜÁö±âŸ(¹Ý¿ùƯ¼öÁö¿ª)<»ê¾÷ÀÔÁö ¹× °³¹ß¿¡ °üÇÑ ¹ý·ü>, ¼ºÀå°ü¸®±Ç¿ª<¼öµµ±ÇÁ¤ºñ°èȹ¹ý> ÁßÁ¡°æ°ü°ü¸®±¸¿ª.
9)°øºÎ¿ÍÀÇ Â÷ÀÌ
¾øÀ½.
10)±âŸÂü°í»çÇ×(ÀÓ´ë°ü·Ê ¹× ±âŸ)
ÇöȲ '°ø½Ç'ÀÓ.
Âü°í
»çÇ×
´ëÁö±Ç¸ñÀû ÅäÁö¿¡ º°µµµî±â(±ÝÁö»çÇ×µî±â)ÀÖÀ½.
°ø½Ç

°ÇÃ๰ÇöȲ

¼ÒÀçÁö °æ±âµµ ¾È»ê½Ã ´Ü¿ø±¸ ¼º°îµ¿ 845-5¹øÁö
´ëÁö¸éÀû 2082.8§³
(631.15Æò)
¿¬¸éÀû 26309.67§³
(7972.63Æò)
°ÇÃà¸éÀû 1356§³
(410.91Æò)
¿ëÀû·ü»êÁ¤
¿¬¸éÀû
16655.34§³
(5047.07Æò)
°ÇÆóÀ² 65.1% ¿ëÀû·ü 799.66%
Áö»óÃþ¼ö 28Ãþ ÁöÇÏÃþ¼ö 1Ãþ
ÁÖ¿ëµµ ¼÷¹Ú½Ã¼³ ±¸Á¶ ö±ÙÄÜÅ©¸®Æ®±¸Á¶
Âø°øÀÏÀÚ 2020.11.18 »ç¿ë½ÂÀÎÀÏÀÚ 2023.06.05
°ÇÃ๰Ãþº°ÇöȲ [º¸±â]


µî±âºÎµîº» ¿ä¾à(°Ç¹°)

  Á¢¼öÀÏÀÚ µî±â¸ñÀû/±Ç¸®ÀÚ ±Ç¸®±Ý¾× ±âÁØ
1 2023³â12¿ù26ÀÏ
¼ÒÀ¯±Ç
¹ÚOO
¼Ò¸ê
2 2023³â12¿ù26ÀÏ
±ÙÀú´ç±Ç
ÁßOOOO
720,000,000 ¼Ò¸ê±âÁØ
3 2024³â12¿ù19ÀÏ
°¡¾Ð·ù
ȕOOOO
16,044,577 ¼Ò¸ê
4 2025³â2¿ù21ÀÏ
°¡¾Ð·ù
(OOOO
22,010,412 ¼Ò¸ê
5 2025³â2¿ù27ÀÏ
ÀÓÀǰæ¸Å
ÁßOOOO
¼Ò¸ê
6 2025³â4¿ù3ÀÏ
¾Ð·ù
±¹OOOO
¼Ò¸ê
7 2025³â4¿ù21ÀÏ
°¡¾Ð·ù
°æOOOO
30,701,685 ¼Ò¸ê
8 2025³â5¿ù15ÀÏ
°¡¾Ð·ù
¼­OOOO
36,284,132 ¼Ò¸ê

ÀÓÂ÷ÀÎÇöȲ (¹è´ç¿ä±¸Á¾±âÀÏ: 2025-05-19)


Á¶»çµÈ ÀÓÂ÷³»¿ªÀÌ ¾ø½À´Ï´Ù


¿©ÀÇÁÖ°æ¸Å Á¶¾ð ÇÑ ¸¶µð

³«Âû ÈÄ¿¡ µî±âºÎ»ó ¼Ò¸êµÇÁö ¾Ê´Â ±Ç¸®´Â ¾ø½À´Ï´Ù.
´ë·«ÀûÀÎ °ËÅäÀǰßÀ̹ǷΠÀÔÂûÀü¿¡ Àü¹®°¡ÀÇ Á¶¾ðÀ» Âü°íÇØ º¸½Ã±æ ±ÇÇØµå¸³´Ï´Ù.
ÅäÁöº°µµµî±â°¡ ÀÖ´Â ¹°°ÇÀÔ´Ï´Ù.
°¨Á¤ ½ÃÁ¡ÀÌ ¿À·¡µÇ¾î °¡°Ýº¯µ¿ÀÌ ÀÖÀ» ¼ö ÀÖ½À´Ï´Ù.
ÀÌ ¹°°ÇÀº 2025³â 2¿ù 27ÀÏ¿¡ °æ¸Å°¡ °³½ÃµÇ¾ú´Âµ¥ Áö±Ý ½ÃÁ¡À¸·Î ¾à 305ÀÏÀÌ ÀÌ °æ°úµÇ¾ú½À´Ï´Ù. °¨Á¤°¡°ÝÀº 305ÀÏ Àü ½ÃÁ¡¿¡¼­ Æò°¡ÇÑ °¡°ÝÀ̹ǷΠ±× »çÀÌ °¡°Ýº¯µ¿ÀÌ ÀÖÀ» ¼ö ÀÖ½À´Ï´Ù. ƯÈ÷ °¡°Ý º¯µ¿ÀÌ ½ÉÇÑ ¾ÆÆÄÆ®´Â À¯ÀÇÇÏ¼Å¾ß ÇÕ´Ï´Ù. °¨Á¤°¡°ÝÀ» ³Ê¹« ¹ÏÁö ¸¶½Ã°í ÇöÀç ½Ç¸Å¹° °¡°Ý°ú ½Ç°Å·¡°¡¸¦ È®ÀÎÇϽñ⠹ٶø´Ï´Ù.
°£È¤ °¨Á¤°¡°Ýº¸´Ù ³ô°Ô ³«ÂûµÇ´Â °æ¿ì°¡ Àִµ¥ ´ëºÎºÐ ÀÌ·± ÀÌÀ¯ÀÔ´Ï´Ù.
¡Ø ¹°°Ç Ű¿öµå : µµ½ÃÁö¿ª/»ó¾÷Áö¿ª/ÀϹݻó¾÷Áö¿ª/Áö±¸´ÜÀ§°èȹ±¸¿ª/¹ö½ºÁ¤·ùÀå/Â÷·®ÀÇ Á¢±ÙÀÌ °¡´É/³ë¼±¹ö½ºÁ¤·ùÀå/ö±ÙÄÜÅ©¸®Æ®±¸Á¶
Àüü ÄÁ¼³ÆÃÀÌ ºÎ´ã½º·¯¿ì½Å°¡¿ä? ±Ç¸®ºÐ¼®¸¸ ÀÇ·ÚÇϼŵµ ±¦Âú½À´Ï´Ù!
½Ç¼Ó ÀÖ°Ô Çٽɸ¸ ´ãÀº ±Ç¸®ºÐ¼® ¼­ºñ½º!! (±Ç¸®ºÐ¼® + ½Ã¼¼Á¶»ç + ³«Âû°¡ »êÁ¤ + ÀÔÂûÇ¥ ÀÛ¼º¹æ¹ý ±îÁö)
ÃÖ´ë Àüü ÄÁ¼³ÆÃ ºñ¿ëÀÇ 10% ¼öÁØ !!

ÁÖÀÇ»çÇ× (ÃÖ¼±¼øÀ§ ¼³Á¤ÀÏ: 2023.12.26.±ÙÀú´ç±Ç ¼³Á¤)

¸Å°¢À¸·Î ¼Ò¸êµÇÁö ¾Ê´Â µî±âºÎ±Ç¸®:
¸Å°¢À¸·Î ¼³Á¤µÈ °ÍÀ¸·Î º¸´Â Áö»ó±Ç:
´ëÁö±Ç¸ñÀû ÅäÁö¿¡ º°µµµî±â(±ÝÁö»çÇ×µî±â)ÀÖÀ½.
¡Ø¹Ì³³°ü¸®ºñ(°ø¿ë) Àμö¿©ºÎ¸¦ ÀÔÂû Àü¿¡ È®ÀÎÇϽñ⠹ٶø´Ï´Ù

 

Áö¿ªºÐ¼®

ÁöÇÏö¸í Á÷¼±°Å¸®

Çб³¸í ÀüÈ­¹øÈ£ ÁÖ¼Ò Á÷¼±°Å¸®

¹ý¿ø

¼ö¿øÁö¹æ¹ý¿ø ¾È»êÁö¿ø (140-54)°æ±âµµ ¾È»ê½Ã ´Ü¿ø±¸ ±¤´ö¼­·Î 75 (°íÀܵ¿)
´ëÇ¥ : 031)481-1114, ¹Î¿ø : 031)481-1238, ¾ß°£ : 031)481-1112
°üÇÒÁö¿ª : ¾È»ê½Ã, ±¤¸í½Ã, ½ÃÈï½Ã

µî±â¼Ò ¼ö¿øÁö¹æ¹ý¿ø ¾È»êÁö¿ø µî±â°ú (´ëÇ¥:1544-0773, ÆÑ½º:(031)481-1290~1292, °æ±âµµ ¾È»ê½Ã ´Ü¿ø±¸ ±¤´ö¼­·Î 75 (°íÀܵ¿ 711))
¼¼¹«¼­ ¾È»ê¼¼¹«¼­ (´ëÇ¥:031-412-32, ÆÑ½º:031-412-3268, °æ±âµµ ¾È»ê½Ã ´Ü¿ø±¸ È­¶û·Î 350 (°íÀܵ¿ 517))

Àαٳ«ÂûÅë°è

±â°£ ¸Å°¢°Ç¼ö Æò±Õ°¨Á¤°¡
Æò±Õ¸Å°¢°¡
¸Å°¢°¡À²
Æò±ÕÀ¯Âû¼ö
3°³¿ù 15°Ç 166,733,333¿ø
94,226,489¿ø
60%
2.2ȸ
6°³¿ù 22°Ç 226,590,909¿ø
117,352,829¿ø
56%
2.3ȸ
12°³¿ù 27°Ç 218,333,333¿ø
119,835,823¿ø
59%
2.1ȸ


º» °æ¸ÅÁ¤º¸´Â ¹ý¿øÀÚ·á¿Í ÀÏÄ¡Çϵµ·Ï ÇÏ¿´À¸³ª ±Ç¸®»çÇ׺¯µ¿, ÀÔ·ÂÂø¿À µîÀÇ ¿øÀÎÀ¸·Î »ç½Ç°ú ´Ù¸¦ ¼ö ÀÖ½À´Ï´Ù. ÀÌ¿ë¾à°ü¿¡ ÀǰЏéÃ¥Á¶°ÇÀ¸·Î Á¦°øµÊÀ» ¾Ë¸®¸ç, °æ¸ÅÀÔÂû½Ã ¹Ýµå½Ã °ü·Ã °øºÎ¸¦ ÀçÈ®ÀÎÇϽñ⠹ٶø´Ï´Ù. º¸´Ù Æí¸®ÇÑ °æ¸ÅÁ¤º¸ Á¦°øÀ» À§ÇØ Áö¼ÓÀûÀ¸·Î °³¼±ÇϰڽÀ´Ï´Ù. ÀÌ¿ëÇØ Áּż­ °¨»çÇÕ´Ï´Ù.
°ü½É¹°°ÇÀ¸·Î µî·ÏÇÕ´Ï´Ù