109
¿ÀÇǽºÅÚ
¼ö¿øÁö¹æ¹ý¿ø ¼º³²Áö¿ø
 °¨Á¤°¡73,000,000 ¿ø
 ÃÖÀú°¡(70%) 51,100,000 ¿ø
 º¸Áõ±Ý(10%) 5,110,000 ¿ø
 Ã»±¸¾×44,784,521 ¿ø
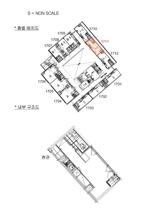
°æ±âµµ Çϳ²½Ã Çϳ²´ë·Î801¹ø±æ 74, 17Ãþ1711È£ (½ÅÀ嵿,ÇÏÀÌ·º½º¿ÀÇǽºÅÚ)
°æ±âµµ Çϳ²½Ã ½ÅÀ嵿 427-372
»ç°Ç¹øÈ£ 2024Ÿ°æ71317
°æ¸ÅÁ¾·ùºÎµ¿»ê°­Á¦°æ¸Å
¸Å°¢´ë»óÅäÁö ¹× °Ç¹°Àϰý ¸Å°¢
¸Å°¢±âÀÏ    2026.01.05(¿ù) 10:00 ÀÔÂû 23ÀÏÀü    
ÅäÁö¸éÀû4.97§³(1.50 Æò)
°Ç¹°¸éÀû18.92§³(5.72 Æò)
乫/¼ÒÀ¯ÀÚ±èOO / ±èOO
ä±ÇÀÚ±èOO
±è¼ºÈÆ ´ëÇ¥ÀÌ»ç
°øÀÎÁß°³»ç, ºÎµ¿»ê°ø°æ¸Å»ç, ÇѾç´ëÇб³ Á¹¾÷
Àü) ÅÂÀÎÄÁ¼³ÆÃ(ÁÖ) ´ëÇ¥ÀÌ»ç
Àü) ¿©ÀÇÁֺε¿»êÁß°³¹ýÀÎ(ÁÖ) ´ëÇ¥ÀÌ»ç
Çö) ¿©ÀÇÁÖ°æ¸Å¹ýÀÎ ´ëÇ¥ÀÌ»ç
010-2371-3237
ÆäÀ̽ººÏ Æ®À§ÅÍ ±¸±Û+
īī¿À½ºÅ丮
īī¿ÀÅå sms¹®ÀÚº¸³»±â
 

±âÀϳ»¿ª

°æ°ú ³¯Â¥ Àú°¨ ÃÖÀú°¡ °á°ú
Á¢¼öÀÏ 2024-12-11 °æ¸ÅÁ¢¼ö
~5ÀÏ 
2024-12-16 °æ¸Å°³½Ã°áÁ¤
~68ÀÏ 
2025-02-17 ¹è´ç¿ä±¸Á¾±âÀÏ
~348ÀÏ 
2025-11-24 100%
73,000,000
À¯Âû
~390ÀÏ 
2026-01-05 70%
51,100,000
ÁøÇà
¹°°Ç¸í¼¼¼­ ÇöȲÁ¶»ç¼­ ¹®°ÇÁ¢¼ö ¼Û´Þ³»¿ª

°¨Á¤Æò°¡ÇöȲ

¸ñ·Ï ÁÖ¼Ò ±¸Á¶/¿ëµµ/´ëÁö±Ç ¸éÀû ºñ°í
´ëÁö±Ç
½ÅÀ嵿 427-373 1960ºÐÀÇ 4.966 4.966 §³
(1.50Æò)
°Ç¹°
½ÅÀ嵿 427-373 17Ãþ1711È£ ö±ÙÄÜÅ©¸®Æ®±¸Á¶ 18.92 §³
(5.72Æò)
1) À§Ä¡/µµ½ÃÁö¿ª/ÀϹݻó¾÷Áö¿ª/Â÷·®ÃâÀÔ °¡´É/¹ö½ºÁ¤·ùÀå/ÁöÇÏö/ÁöÇÏÁÖÂ÷Àå/ö±ÙÄÜÅ©¸®Æ®±¸Á¶/µµ½Ã°¡½º ´õº¸±â
°¨Á¤Æò°¡ ¿äÇ×Ç¥
1)À§Ä¡ ¹× ÁÖÀ§È¯°æ
º»°ÇÀº °æ±âµµ Çϳ²½Ã ½ÅÀ嵿 ¼ÒÀç "½ÅÀå»ç°Å¸®" µ¿Ãø Àαٿ¡ À§Ä¡Çϸç,
ÁÖÀ§´Â ¿ÀÇǽºÅÚ, ¾ÆÆÄÆ®, ±Ù¸°»ýȰ½Ã¼³, Àç·¡½ÃÀå µîÀÌ È¥ÀçÇÏ´Â Áö¿ªÀÓ
2)±³Åë»óȲ
º»°Ç±îÁö Â÷·®ÃâÀÔ °¡´ÉÇϰí, Àαٿ¡ ÁöÇÏö 5È£¼± "Çϳ²½Ãû¿ª" °ú ¹ö½ºÁ¤·ùÀåÀÌ
¼ÒÀçÇÏ´Â µî Á¦¹Ý ±³Åë»óȲÀº ¾çÈ£ÇÔ.
3)°Ç¹°ÀÇ ±¸Á¶
ö±ÙÄÜÅ©¸®Æ®±¸Á¶ ö±ÙÄÜÅ©¸®Æ®ÁöºØ 20Ãþ °Ç¹° ³» 17Ãþ 1711È£·Î¼­,
»ç¿ë½ÂÀÎÀÏÀº 2015.05.28ÀÓ
- ¿Ü º® : ¸ôÅ»À§ ÆäÀÎÆ® ¹× ¼®ÀçºÙÀÓ ¸¶°¨ µî.
- ³» º® : º®Áöµµ¹è ¹× ÀϺΠŸÀϺÙÀÓ ¸¶°¨ µî.
- â È£ : ½Ã½ºÅÛ Ã¢È£ ¸¶°¨ µî
4)ÀÌ¿ë»óÅÂ
¿ÀÇǽºÅÚ·Î ( ¹æ, ¿å½Ç, ÁÖ¹æ, Çö°ü, µî ) ÀÌ¿ëÁßÀÓ
5)¼³ºñ³»¿ª
À§»ý ¹× ±Þ¹è¼ö¼³ºñ, µµ½Ã°¡½º¼³ºñ, È­Àç°æº¸, ¼ÒÈ­Àü¼³ºñ, ½Â°­±â¼³ºñ,
ÁöÇÏÁÖÂ÷Àå µîÀÌ µÇ¾îÀÖÀ½


6)ÅäÁöÀÇ Çü»ó ¹× ÀÌ¿ë»óÅÂ
4ÇÊÁö ÀÏ´ÜÀÇ µî°íÆòźÇÑ ºÎÁ¤ÇüÀÇ ÅäÁö·Î¼­, ¿ÀÇǽºÅÚ °ÇºÎÁö·Î ÀÌ¿ëÁßÀÓ.

7)ÀÎÁ¢ µµ·Î»óŵî
º»°Ç µ¿ÃøÀ¸·Î ¼Ò·Î¿¡, ºÏÃøÀ¸·Î ¼¼·Î¿¡ °¢°¢ Á¢ÇÔ
8)ÅäÁöÀÌ¿ë°èȹ ¹× Á¦ÇÑ»óÅÂ
±âÈ£1 : µµ½ÃÁö¿ª, ÀϹݻó¾÷Áö¿ª, ¹æÈ­Áö±¸, ¼Ò·Î2·ù(Æø8m-10m)(Á¢ÇÕ), ¼Ò·Î3·ù(Æø8m¹Ì¸¸)(Á¢ÇÕ), °¡Ãà»çÀ°Á¦Çѱ¸¿ª, ¹èÃâ½Ã¼³¼³Ä¡Á¦ÇÑÁö¿ª, °ú¹Ð¾ïÁ¦±Ç¿ª, °øÀå¼³¸³Á¦ÇÑÁö¿ª, (ÇѰ­)Æó±â¹°¸Å¸³½Ã¼³¼³Ä¡Á¦ÇÑÁö¿ª

±âÈ£2 : µµ½ÃÁö¿ª, ÀϹݻó¾÷Áö¿ª, ¹æÈ­Áö±¸, ¼Ò·Î2·ù( Æø8m-10m)(Á¢ÇÕ), °¡Ãà»çÀ°Á¦Çѱ¸¿ª,
¹èÃâ½Ã¼³¼³Ä¡Á¦ÇÑÁö¿ª, °ú¹Ð¾ïÁ¦±Ç¿ª, °øÀå¼³¸³Á¦ÇÑÁö¿ª, (ÇѰ­)Æó±â¹°¸Å¸³½Ã¼³¼³Ä¡Á¦ÇÑÁö¿ª

±âÈ£3 : µµ½ÃÁö¿ª, ÀϹݻó¾÷Áö¿ª, ¹æÈ­Áö±¸, ¼Ò·Î2·ù(Æø8m-10m)(Á¢ÇÕ), °¡Ãà»çÀ°Á¦Çѱ¸¿ª, ¹èÃâ½Ã¼³¼³Ä¡Á¦ÇÑÁö¿ª, °ú¹Ð¾ïÁ¦±Ç¿ª, °øÀå¼³¸³Á¦ÇÑÁö¿ª,
(ÇѰ­)Æó±â¹°¸Å¸³½Ã¼³¼³Ä¡Á¦ÇÑÁö¿ª

±âÈ£4 : µµ½ÃÁö¿ª, ÀϹݻó¾÷Áö¿ª, ¹æÈ­Áö±¸, ¼Ò·Î2·ù(Æø8m-10m)(Á¢ÇÕ), °¡Ãà»çÀ°Á¦Çѱ¸¿ª,
»ó´ëº¸È£±¸¿ª, ¹èÃâ½Ã¼³¼³Ä¡Á¦ÇÑÁö¿ª, °ú¹Ð¾ïÁ¦±Ç¿ª, °øÀå¼³¸³Á¦ÇÑÁö¿ª, (ÇѰ­)Æó±â¹°¸Å¸³½Ã¼³¼³Ä¡Á¦ÇÑÁö¿ª



9)°øºÎ¿ÍÀÇ Â÷ÀÌ
-
10)±âŸÂü°í»çÇ×(ÀÓ´ë°ü·Ê ¹× ±âŸ)
ÀÓ´ë°ü°è´Â ¹Ì»óÀÓ


µî±âºÎµîº» ¿ä¾à(°Ç¹°)

  Á¢¼öÀÏÀÚ µî±â¸ñÀû/±Ç¸®ÀÚ ±Ç¸®±Ý¾× ±âÁØ
1 2020³â10¿ù22ÀÏ
¼ÒÀ¯±Ç
±èOO
¼Ò¸ê
2 2022³â12¿ù15ÀÏ
ÀÓÂ÷±Ç¼³Á¤
±èOO
78,000,000 Àμö
3 2024³â12¿ù16ÀÏ
°­Á¦°æ¸Å
±èOO
¼Ò¸ê±âÁØ

ÀÓÂ÷ÀÎÇöȲ (¹è´ç¿ä±¸Á¾±âÀÏ: 2025-02-17)

ÀÓÂ÷ÀÎ ¿ëµµ/Á¡À¯ º¸Áõ±Ý/¿ù¼¼ ´ëÇ×·Â
ÀüÀÔÀÏ/È®Á¤ÀÏ ¹è´ç¿ä±¸ ºñ°í
±èOO 1711È£ÀüºÎ 78,000,000
O
2020. 10. 28.
2020.10. 28.
ºñ°í
(¸Å°¢¹°°Ç
¸í¼¼¼­)
±è¼ºÅÂ:½Åûä±ÇÀÚ·Î ¹è´ç¿ä±¸ÀÏÀÚ´Â °æ¸Å½ÅûÀÏ(2024. 12. 11.)À̰í, ÁÖÅÃÀÓÂ÷±Çµî±â±ÇÀڷμ­ ÁÖÅÃÀÓÂ÷±Çµî±âÀÏÀº 2022. 12. 15.ÀÓ

¿©ÀÇÁÖ°æ¸Å Á¶¾ð ÇÑ ¸¶µð

¸Å°¢¹°°Ç¸í¼¼ ºñ°í³­¿¡ ±âÀçµÈ ³»¿ëÀÔ´Ï´Ù.
±è¼ºÅÂ:½Åûä±ÇÀÚ·Î ¹è´ç¿ä±¸ÀÏÀÚ´Â °æ¸Å½ÅûÀÏ(2024. 12. 11.)À̰í, ÁÖÅÃÀÓÂ÷±Çµî±â±ÇÀڷμ­ ÁÖÅÃÀÓÂ÷±Çµî±âÀÏÀº 2022. 12. 15.ÀÓ
³«Âû ÈÄ¿¡ µî±âºÎ»ó ¼Ò¸êµÇÁö ¾Ê´Â ±Ç¸®ÀÔ´Ï´Ù.
¸Å¼öÀο¡°Ô ´ëÇ×ÇÒ ¼ö ÀÖ´Â À»±¸ 1¹ø ÀÓÂ÷±Çµî±â(ÀÓ´ëÂ÷º¸Áõ±Ý 78,000,000¿ø, ÀüÀÔÀÏÀÚ 2020. 10. 28. È®Á¤ÀÏÀÚ 2020. 10. 28.) °¡ ÀÖÀ¸¹Ç·Î ¹è´ç¿¡¼­ Àü¾× º¯Á¦µÇÁö ¾Æ´ÏÇϸé Àܾ×Àº ¸Å¼öÀο¡°Ô ÀμöµÉ ¼ö ÀÖÀ½
¼±¼øÀ§ ÀÓÂ÷±Çµî±â°¡ µÇ¾î ÀÖ½À´Ï´Ù.
°¨Á¤ ½ÃÁ¡ÀÌ ¿À·¡µÇ¾î °¡°Ýº¯µ¿ÀÌ ÀÖÀ» ¼ö ÀÖ½À´Ï´Ù.
ÀÌ ¹°°ÇÀº 2024³â 12¿ù 16ÀÏ¿¡ °æ¸Å°¡ °³½ÃµÇ¾ú´Âµ¥ Áö±Ý ½ÃÁ¡À¸·Î ¾à 362ÀÏÀÌ ÀÌ °æ°úµÇ¾ú½À´Ï´Ù. °¨Á¤°¡°ÝÀº 362ÀÏ Àü ½ÃÁ¡¿¡¼­ Æò°¡ÇÑ °¡°ÝÀ̹ǷΠ±× »çÀÌ °¡°Ýº¯µ¿ÀÌ ÀÖÀ» ¼ö ÀÖ½À´Ï´Ù. ƯÈ÷ °¡°Ý º¯µ¿ÀÌ ½ÉÇÑ ¾ÆÆÄÆ®´Â À¯ÀÇÇÏ¼Å¾ß ÇÕ´Ï´Ù. °¨Á¤°¡°ÝÀ» ³Ê¹« ¹ÏÁö ¸¶½Ã°í ÇöÀç ½Ç¸Å¹° °¡°Ý°ú ½Ç°Å·¡°¡¸¦ È®ÀÎÇϽñ⠹ٶø´Ï´Ù.
°£È¤ °¨Á¤°¡°Ýº¸´Ù ³ô°Ô ³«ÂûµÇ´Â °æ¿ì°¡ Àִµ¥ ´ëºÎºÐ ÀÌ·± ÀÌÀ¯ÀÔ´Ï´Ù.
¡Ø ¹°°Ç Ű¿öµå : µµ½ÃÁö¿ª/»ó¾÷Áö¿ª/ÀϹݻó¾÷Áö¿ª/Â÷·®ÃâÀÔ °¡´É/¹ö½ºÁ¤·ùÀå/ÁÖÂ÷Àå/ÁöÇÏö/ÁöÇÏÁÖÂ÷Àå/ö±ÙÄÜÅ©¸®Æ®±¸Á¶/µµ½Ã°¡½º
Àüü ÄÁ¼³ÆÃÀÌ ºÎ´ã½º·¯¿ì½Å°¡¿ä? ±Ç¸®ºÐ¼®¸¸ ÀÇ·ÚÇϼŵµ ±¦Âú½À´Ï´Ù!
½Ç¼Ó ÀÖ°Ô Çٽɸ¸ ´ãÀº ±Ç¸®ºÐ¼® ¼­ºñ½º!! (±Ç¸®ºÐ¼® + ½Ã¼¼Á¶»ç + ³«Âû°¡ »êÁ¤ + ÀÔÂûÇ¥ ÀÛ¼º¹æ¹ý ±îÁö)
ÃÖ´ë Àüü ÄÁ¼³ÆÃ ºñ¿ëÀÇ 10% ¼öÁØ !!

ÁÖÀÇ»çÇ× (ÃÖ¼±¼øÀ§ ¼³Á¤ÀÏ: 2024. 12. 16.°­Á¦°æ¸Å°³½Ã°áÁ¤ ¼³Á¤)

¸Å°¢À¸·Î ¼Ò¸êµÇÁö ¾Ê´Â µî±âºÎ±Ç¸®: ¸Å¼öÀο¡°Ô ´ëÇ×ÇÒ ¼ö ÀÖ´Â À»±¸ 1¹ø ÀÓÂ÷±Çµî±â(ÀÓ´ëÂ÷º¸Áõ±Ý 78,000,000¿ø, ÀüÀÔÀÏÀÚ 2020. 10. 28. È®Á¤ÀÏÀÚ 2020. 10. 28.) °¡ ÀÖÀ¸¹Ç·Î ¹è´ç¿¡¼­ Àü¾× º¯Á¦µÇÁö ¾Æ´ÏÇϸé Àܾ×Àº ¸Å¼öÀο¡°Ô ÀμöµÉ ¼ö ÀÖÀ½
¸Å°¢À¸·Î ¼³Á¤µÈ °ÍÀ¸·Î º¸´Â Áö»ó±Ç:
¡Ø¹Ì³³°ü¸®ºñ(°ø¿ë) Àμö¿©ºÎ¸¦ ÀÔÂû Àü¿¡ È®ÀÎÇϽñ⠹ٶø´Ï´Ù

 

Áö¿ªºÐ¼®

ÁöÇÏö¸í Á÷¼±°Å¸®

Çб³¸í ÀüÈ­¹øÈ£ ÁÖ¼Ò Á÷¼±°Å¸®

¹ý¿ø

¼ö¿øÁö¹æ¹ý¿ø ¼º³²Áö¿ø (131-43)°æ±âµµ ¼º³²½Ã ¼öÁ¤±¸ »ê¼º´ë·Î 451 (´Ü´ëµ¿)
´ëÇ¥ : 031)737-1558, ¾ß°£ : 031)737-1120
°üÇÒÁö¿ª : ¼º³²½Ã, ±¤ÁÖ½Ã, Çϳ²½Ã

µî±â¼Ò ¼ö¿øÁö¹æ¹ý¿ø ¼º³²Áö¿ø Çϳ²µî±â¼Ò (´ëÇ¥:1544-0773, ÆÑ½º:(031)791-3199, °æ±âµµ Çϳ²½Ã °Ë´Ü·Î 15 (õÇöµ¿ 576-6))
¼¼¹«¼­ °æ±â±¤ÁÖ¼¼¹«¼­ (´ëÇ¥:031-880-92, ÆÑ½º:031-769-0417, °æ±âµµ ±¤Áֽà ¹®È­·Î 127)

Àαٳ«ÂûÅë°è

±â°£ ¸Å°¢°Ç¼ö Æò±Õ°¨Á¤°¡
Æò±Õ¸Å°¢°¡
¸Å°¢°¡À²
Æò±ÕÀ¯Âû¼ö
3°³¿ù 11°Ç 370,181,818¿ø
303,158,636¿ø
77%
1.5ȸ
6°³¿ù 27°Ç 459,037,037¿ø
308,391,785¿ø
73%
1.5ȸ
12°³¿ù 28°Ç 448,107,143¿ø
302,842,079¿ø
74%
1.5ȸ


º» °æ¸ÅÁ¤º¸´Â ¹ý¿øÀÚ·á¿Í ÀÏÄ¡Çϵµ·Ï ÇÏ¿´À¸³ª ±Ç¸®»çÇ׺¯µ¿, ÀÔ·ÂÂø¿À µîÀÇ ¿øÀÎÀ¸·Î »ç½Ç°ú ´Ù¸¦ ¼ö ÀÖ½À´Ï´Ù. ÀÌ¿ë¾à°ü¿¡ ÀǰЏéÃ¥Á¶°ÇÀ¸·Î Á¦°øµÊÀ» ¾Ë¸®¸ç, °æ¸ÅÀÔÂû½Ã ¹Ýµå½Ã °ü·Ã °øºÎ¸¦ ÀçÈ®ÀÎÇϽñ⠹ٶø´Ï´Ù. º¸´Ù Æí¸®ÇÑ °æ¸ÅÁ¤º¸ Á¦°øÀ» À§ÇØ Áö¼ÓÀûÀ¸·Î °³¼±ÇϰڽÀ´Ï´Ù. ÀÌ¿ëÇØ Áּż­ °¨»çÇÕ´Ï´Ù.
°ü½É¹°°ÇÀ¸·Î µî·ÏÇÕ´Ï´Ù