93
¾ÆÆÄÆ®Çü°øÀå
¼ö¿øÁö¹æ¹ý¿ø
 °¨Á¤°¡213,000,000 ¿ø
 ÃÖÀú°¡(70%) 149,100,000 ¿ø
 º¸Áõ±Ý(10%) 14,910,000 ¿ø
 Ã»±¸¾×165,967,766 ¿ø
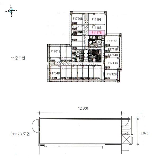
°æ±âµµ ¿À»ê½Ã ¼ö¸ñ¿ø·Î88¹ø±æ 35, Áö½Ä»ê¾÷¼¾Å͵¿ 11Ãþ¿¡ÇÁ1117ºñÈ£ (°¡¼öµ¿,Çö´ëÅ×¶óŸ¿ö¾¾¿¥¾¾)
°æ±âµµ ¿À»ê½Ã °¡¼öµ¿ 399
»ç°Ç¹øÈ£ 2024Ÿ°æ14038
°æ¸ÅÁ¾·ùºÎµ¿»êÀÓÀǰæ¸Å
¸Å°¢´ë»óÅäÁö ¹× °Ç¹°Àϰý ¸Å°¢
¸Å°¢±âÀÏ    2025.12.22(¿ù) 10:00 ÀÔÂû 2ÀÏÀü    
ÅäÁö¸éÀû16.04§³(4.85 Æò)
°Ç¹°¸éÀû49.67§³(15.03 Æò)
乫/¼ÒÀ¯ÀÚÇÑOO / ÇÑOO
ä±ÇÀÚÀ¯OOOOOOOOOOOO OOOO(OOOOOOOO OOOO)
±è¼ºÈÆ ´ëÇ¥ÀÌ»ç
°øÀÎÁß°³»ç, ºÎµ¿»ê°ø°æ¸Å»ç, ÇѾç´ëÇб³ Á¹¾÷
Àü) ÅÂÀÎÄÁ¼³ÆÃ(ÁÖ) ´ëÇ¥ÀÌ»ç
Àü) ¿©ÀÇÁֺε¿»êÁß°³¹ýÀÎ(ÁÖ) ´ëÇ¥ÀÌ»ç
Çö) ¿©ÀÇÁÖ°æ¸Å¹ýÀÎ ´ëÇ¥ÀÌ»ç
010-2371-3237
ÆäÀ̽ººÏ Æ®À§ÅÍ ±¸±Û+
īī¿À½ºÅ丮
īī¿ÀÅå sms¹®ÀÚº¸³»±â
 

±âÀϳ»¿ª

°æ°ú ³¯Â¥ Àú°¨ ÃÖÀú°¡ °á°ú
Á¢¼öÀÏ 2024-12-26 °æ¸ÅÁ¢¼ö
~1ÀÏ 
2024-12-27 °æ¸Å°³½Ã°áÁ¤
~88ÀÏ 
2025-03-24 ¹è´ç¿ä±¸Á¾±âÀÏ
~328ÀÏ 
2025-11-19 100%
213,000,000
À¯Âû
~361ÀÏ 
2025-12-22 70%
149,100,000
ÁøÇà
¹°°Ç¸í¼¼¼­ ÇöȲÁ¶»ç¼­ ¹®°ÇÁ¢¼ö ¼Û´Þ³»¿ª

°¨Á¤Æò°¡ÇöȲ

¸ñ·Ï ÁÖ¼Ò ±¸Á¶/¿ëµµ/´ëÁö±Ç ¸éÀû ºñ°í
´ëÁö±Ç
°¡¼öµ¿ 399 31003ºÐÀÇ 16.04 16.04 §³
(4.85Æò)
°Ç¹°
°¡¼öµ¿ 399 Áö½Ä»ê¾÷¼¾Å͵¿ 11Ãþ¿¡ÇÁ1117ºñÈ£ ö±ÙÄÜÅ©¸®Æ®±¸Á¶ 49.67 §³
(15.03Æò)
1) À§Ä¡/ÀϹݰø¾÷Áö¿ª/ÅäÁö°Å·¡°è¾à¿¡°üÇÑÇã°¡±¸¿ª/³ë¼±¹ö½ºÁ¤·ùÀå/ÁöÇÏÁÖÂ÷Àå/°£¼±µµ·Î/ö±ÙÄÜÅ©¸®Æ®±¸Á¶ ´õº¸±â
°¨Á¤Æò°¡ ¿äÇ×Ç¥
1)À§Ä¡ ¹× ÁÖÀ§È¯°æ
º»°ÇÀº °æ±âµµ ¿À»ê½Ã ¼ÒÀç "¿À»ê¿ª" ³²¼­Ãø Àαٿ¡ À§Ä¡ÇÏ¸ç ºÎ±ÙÀº °øÀå, Áö½Ä»ê¾÷¼¾ÅÍ, Çб³, ÇÏõ
µîÀÌ È¥ÀçµÈ Áö¿ªÀ¸·Î¼­ ÁÖÀ§È¯°æ º¸ÅëÀÓ.
2)±³Åë»óȲ
º»°Ç±îÁö Â÷·® Á¢±Ù ¿ëÀÌÇϸç ÀαÙÀÇ °£¼±µµ·Îº¯¿¡ ´ëÁß±³ÅëÆíÀÎ ³ë¼±¹ö½ºÁ¤·ùÀåÀÌ ¼ÒÀçÇϰí, ºÏµ¿
Ãø Àαٿ¡ "¿À»ê¿ª"ÀÌ ¼ÒÀçÇÏ¿© ´ëÁß±³Åë »çÁ¤ º¸ÅëÀÓ.
3)°Ç¹°ÀÇ ±¸Á¶
2023. 04. 03. »ç¿ë½ÂÀÎµÈ Ã¶±ÙÄÜÅ©¸®Æ®±¸Á¶ ÁöÇÏ 2Ãþ, Áö»ó 29Ãþ °Ç¹° Áß 11Ãþ¿¡ÇÁ1107ºñÈ£·Î¼­,

¿Üº®: º¹ÇÕÆÇ³Ú ¹× °­È­À¯¸® µî ¸¶°¨
³»º®: ¸ôÅ» À§ ÆäÀÎÆÃ µî ¸¶°¨
âȣ: »õ½ÃâȣÀÓ.
4)ÀÌ¿ë»óÅÂ
°øºÎ»ó "°øÀå(Áö½Ä»ê¾÷¼¾ÅÍ)"À̳ª ÇöȲÀº °ü°èÀÎÀÇ ºÎÀç·Î ¹Ì»óÀÓ.
5)¼³ºñ³»¿ª
À§»ý ¹× ±Þ¡¤¹è¼ö½Ã¼³, ½Â°­±â¼³ºñ, ÁöÇÏÁÖÂ÷Àå½Ã¼³ µî °®Ãß¾úÀ½.
6)ÅäÁöÀÇ Çü»ó ¹× ÀÌ¿ë»óÅÂ
ÀÎÁ¢ÇÑ ÅäÁö¿Í °°Àº ³ôÀÌÀÇ 3ÇÊÁö ÀÏ´ÜÀÇ ºÎÁ¤ÇüÀÇ ÅäÁö·Î¼­ "Áö½Ä»ê¾÷¼¾ÅÍ" µîÀÇ °ÇºÎÁö·Î ÀÌ¿ë Áß
ÀÓ.
7)ÀÎÁ¢ µµ·Î»óŵî
³²ÃøÀ¸·Î ³ëÆø ¾à30m, µ¿ÃøÀ¸·Î ³ëÆø ¾à12mÀÇ ¾Æ½ºÄÜÆ÷Àåµµ·Î¿¡ Á¢ÇÔ.
8)ÅäÁöÀÌ¿ë°èȹ ¹× Á¦ÇÑ»óÅÂ
- °¡¼öµ¿ 399

ÀϹݰø¾÷Áö¿ª, ´ë·Î2·ù(Æø 30m-35m)(ÁÖ°£¼±µµ·Î)(Á¢ÇÔ), Áß·Î3·ù(Æø 12m-15m)(±¹Áöµµ·Î)(Á¢ÇÔ),
°¡Ãà»çÀ°Á¦Çѱ¸¿ª(2019-12-06)(ÀüºÎÁ¦ÇÑ)<°¡ÃàºÐ´¢ÀÇ °ü¸® ¹× À̿뿡 °üÇÑ ¹ý·ü>, ¼ºÀå°ü¸®±Ç¿ª
<¼öµµ±ÇÁ¤ºñ°èȹ¹ý>, ÁßÁ¡°æ°ü°ü¸®±¸¿ª, ÅäÁö°Å·¡°è¾à¿¡°üÇÑÇã°¡±¸¿ª(ÁöÁ¤±â°£:2023.11.20.-
2028.11.19.).

- °¡¼öµ¿ 399-1

ÀϹݰø¾÷Áö¿ª, Áß·Î3·ù(Æø 12m-15m)(±¹Áöµµ·Î)(ÀúÃË), °¡Ãà»çÀ°Á¦Çѱ¸¿ª(2019-12-06)(ÀüºÎÁ¦ÇÑ
)<°¡ÃàºÐ´¢ÀÇ °ü¸® ¹× À̿뿡 °üÇÑ ¹ý·ü>, ¼ºÀå°ü¸®±Ç¿ª<¼öµµ±ÇÁ¤ºñ°èȹ¹ý>, ÁßÁ¡°æ°ü°ü¸®±¸¿ª,
ÅäÁö°Å·¡°è¾à¿¡°üÇÑÇã°¡±¸¿ª(ÁöÁ¤±â°£:2023.11.20.-2028.11.19.).

- °¡¼öµ¿ 399-2

ÀϹݰø¾÷Áö¿ª, ´ë·Î2·ù(Æø 30m-35m)(ÁÖ°£¼±µµ·Î)(Á¢ÇÔ), °¡Ãà»çÀ°Á¦Çѱ¸¿ª(2019-12-06)(ÀüºÎÁ¦
ÇÑ)<°¡ÃàºÐ´¢ÀÇ °ü¸® ¹× À̿뿡 °üÇÑ ¹ý·ü>, ¼ºÀå°ü¸®±Ç¿ª<¼öµµ±ÇÁ¤ºñ°èȹ¹ý>, ÁßÁ¡°æ°ü°ü¸®±¸¿ª
, ÅäÁö°Å·¡°è¾à¿¡°üÇÑÇã°¡±¸¿ª(ÁöÁ¤±â°£:2023.11.20.-2028.11.19.).
9)°øºÎ¿ÍÀÇ Â÷ÀÌ
ÇØ´ç»çÇ× ¾øÀ½.
10)±âŸÂü°í»çÇ×(ÀÓ´ë°ü·Ê ¹× ±âŸ)
- ÀÓ´ë°ü°è

¹Ì»óÀÓ.

- ±âŸ

Á¦½Ã¸ñ·Ï ¹× µî±â»çÇ×ÀüºÎÁõ¸í¼­»ó 13ÃþÀÇ ¸éÀûÀº 353452§³À̳ª, ÁýÇÕ°ÇÃ๰´ëÀå»ó ¸éÀûÀº
3,534.52§³ÀÓ.
Âü°í
»çÇ×
1. °øºÎ»ó °øÀå(Áö½Ä»ê¾÷¼¾ÅÍ)À̳ª, ÇöȲÀº °ü°èÀÎÀÇ ºÎÀç·Î ¹Ì»óÀÓ. 2. Á¦½Ã¸ñ·Ï ¹× µî±â»çÇ×ÀüºÎÁõ¸í¼­»ó 13ÃþÀÇ ¸éÀûÀº 353452§³À̳ª, ÁýÇÕ°ÇÃ๰´ëÀå»ó ¸éÀûÀº 3,534.52§³ÀÓ.
º»°Ç ºÎµ¿»êÀÇ ÇöȲÀº ¿Ü

°ÇÃ๰ÇöȲ

¼ÒÀçÁö °æ±âµµ ¿À»ê½Ã °¡¼öµ¿ 399¹øÁö
´ëÁö¸éÀû 31003§³
(9394.85Æò)
¿¬¸éÀû 191925.65§³
(58159.29Æò)
°ÇÃà¸éÀû 15957.53§³
(4835.62Æò)
¿ëÀû·ü»êÁ¤
¿¬¸éÀû
108155.51§³
(32774.4Æò)
°ÇÆóÀ² 51.470922% ¿ëÀû·ü 348.85498%
Áö»óÃþ¼ö 29Ãþ ÁöÇÏÃþ¼ö 2Ãþ
ÁÖ¿ëµµ °øÀå ±¸Á¶ ö±ÙÄÜÅ©¸®Æ®±¸Á¶
Âø°øÀÏÀÚ 2020.03.26 »ç¿ë½ÂÀÎÀÏÀÚ 2023.04.03


µî±âºÎµîº» ¿ä¾à(°Ç¹°)

  Á¢¼öÀÏÀÚ µî±â¸ñÀû/±Ç¸®ÀÚ ±Ç¸®±Ý¾× ±âÁØ
1 2023³â5¿ù31ÀÏ
¼ÒÀ¯±Ç
ÇÑOO
¼Ò¸ê
2 2023³â5¿ù31ÀÏ
±ÙÀú´ç±Ç
(OOOO
199,200,000 ¼Ò¸ê±âÁØ
3 2024³â11¿ù29ÀÏ
°¡¾Ð·ù
±âOOOO
6,655,658 ¼Ò¸ê
4 2024³â12¿ù27ÀÏ
ÀÓÀǰæ¸Å
(OOOO
¼Ò¸ê

ÀÓÂ÷ÀÎÇöȲ (¹è´ç¿ä±¸Á¾±âÀÏ: 2025-03-24)


Á¶»çµÈ ÀÓÂ÷³»¿ªÀÌ ¾ø½À´Ï´Ù


¿©ÀÇÁÖ°æ¸Å Á¶¾ð ÇÑ ¸¶µð

³«Âû ÈÄ¿¡ µî±âºÎ»ó ¼Ò¸êµÇÁö ¾Ê´Â ±Ç¸®´Â ¾ø½À´Ï´Ù.
´ë·«ÀûÀÎ °ËÅäÀǰßÀ̹ǷΠÀÔÂûÀü¿¡ Àü¹®°¡ÀÇ Á¶¾ðÀ» Âü°íÇØ º¸½Ã±æ ±ÇÇØµå¸³´Ï´Ù.
°¨Á¤ ½ÃÁ¡ÀÌ ¿À·¡µÇ¾î °¡°Ýº¯µ¿ÀÌ ÀÖÀ» ¼ö ÀÖ½À´Ï´Ù.
ÀÌ ¹°°ÇÀº 2024³â 12¿ù 27ÀÏ¿¡ °æ¸Å°¡ °³½ÃµÇ¾ú´Âµ¥ Áö±Ý ½ÃÁ¡À¸·Î ¾à 358ÀÏÀÌ ÀÌ °æ°úµÇ¾ú½À´Ï´Ù. °¨Á¤°¡°ÝÀº 358ÀÏ Àü ½ÃÁ¡¿¡¼­ Æò°¡ÇÑ °¡°ÝÀ̹ǷΠ±× »çÀÌ °¡°Ýº¯µ¿ÀÌ ÀÖÀ» ¼ö ÀÖ½À´Ï´Ù. ƯÈ÷ °¡°Ý º¯µ¿ÀÌ ½ÉÇÑ ¾ÆÆÄÆ®´Â À¯ÀÇÇÏ¼Å¾ß ÇÕ´Ï´Ù. °¨Á¤°¡°ÝÀ» ³Ê¹« ¹ÏÁö ¸¶½Ã°í ÇöÀç ½Ç¸Å¹° °¡°Ý°ú ½Ç°Å·¡°¡¸¦ È®ÀÎÇϽñ⠹ٶø´Ï´Ù.
°£È¤ °¨Á¤°¡°Ýº¸´Ù ³ô°Ô ³«ÂûµÇ´Â °æ¿ì°¡ Àִµ¥ ´ëºÎºÐ ÀÌ·± ÀÌÀ¯ÀÔ´Ï´Ù.
¡Ø ¹°°Ç Ű¿öµå : °ø¾÷Áö¿ª/ÀϹݰø¾÷Áö¿ª/ÅäÁö°Å·¡°è¾à¿¡°üÇÑÇã°¡±¸¿ª/¹ö½ºÁ¤·ùÀå/ÁÖÂ÷Àå/³ë¼±¹ö½ºÁ¤·ùÀå/ÁöÇÏÁÖÂ÷Àå/°£¼±µµ·Î/ö±ÙÄÜÅ©¸®Æ®±¸Á¶
Àüü ÄÁ¼³ÆÃÀÌ ºÎ´ã½º·¯¿ì½Å°¡¿ä? ±Ç¸®ºÐ¼®¸¸ ÀÇ·ÚÇϼŵµ ±¦Âú½À´Ï´Ù!
½Ç¼Ó ÀÖ°Ô Çٽɸ¸ ´ãÀº ±Ç¸®ºÐ¼® ¼­ºñ½º!! (±Ç¸®ºÐ¼® + ½Ã¼¼Á¶»ç + ³«Âû°¡ »êÁ¤ + ÀÔÂûÇ¥ ÀÛ¼º¹æ¹ý ±îÁö)
ÃÖ´ë Àüü ÄÁ¼³ÆÃ ºñ¿ëÀÇ 10% ¼öÁØ !!

ÁÖÀÇ»çÇ× (ÃÖ¼±¼øÀ§ ¼³Á¤ÀÏ: 2023.05.31. ±ÙÀú´ç±Ç ¼³Á¤)

¸Å°¢À¸·Î ¼Ò¸êµÇÁö ¾Ê´Â µî±âºÎ±Ç¸®:
¸Å°¢À¸·Î ¼³Á¤µÈ °ÍÀ¸·Î º¸´Â Áö»ó±Ç:
1. °øºÎ»ó °øÀå(Áö½Ä»ê¾÷¼¾ÅÍ)À̳ª, ÇöȲÀº °ü°èÀÎÀÇ ºÎÀç·Î ¹Ì»óÀÓ. 2. Á¦½Ã¸ñ·Ï ¹× µî±â»çÇ×ÀüºÎÁõ¸í¼­»ó 13ÃþÀÇ ¸éÀûÀº 353452§³À̳ª, ÁýÇÕ°ÇÃ๰´ëÀå»ó ¸éÀûÀº 3,534.52§³ÀÓ.
¡Ø¹Ì³³°ü¸®ºñ(°ø¿ë) Àμö¿©ºÎ¸¦ ÀÔÂû Àü¿¡ È®ÀÎÇϽñ⠹ٶø´Ï´Ù

 

Áö¿ªºÐ¼®

ÁöÇÏö¸í Á÷¼±°Å¸®

Çб³¸í ÀüÈ­¹øÈ£ ÁÖ¼Ò Á÷¼±°Å¸®

¹ý¿ø

¼ö¿øÁö¹æ¹ý¿ø (165-12)°æ±âµµ ¼ö¿ø½Ã ¿µÅ뱸 ¹ýÁ¶·Î 105, Çϵ¿, ¼ö¿ø¹ý¿øÁ¾ÇÕû»ç
´ëÇ¥ : 031)210-1114, ¾ß°£ : 031)210-1111
°üÇÒÁö¿ª : ¼ö¿ø½Ã, ¿À»ê½Ã, È­¼º½Ã, ¿ëÀνÃ

µî±â¼Ò ¼ö¿øÁö¹æ¹ý¿ø º»¿ø È­¼ºµî±â¼Ò (´ëÇ¥:1544-0773, ÆÑ½º:(031)375-3964, °æ±âµµ ¿À»ê½Ã ¹ý¿ø·Î 65 (±Èµ¿ 662))
¼¼¹«¼­ µ¿¼ö¿ø¼¼¹«¼­ (´ëÇ¥:031-695-42, ÆÑ½º:031-273-2416, °æ±âµµ ¼ö¿ø½Ã ¿µÅ뱸 û¸í³²·Î 13 (¿µÅ뵿))

Àαٳ«ÂûÅë°è

±â°£ ¸Å°¢°Ç¼ö Æò±Õ°¨Á¤°¡
Æò±Õ¸Å°¢°¡
¸Å°¢°¡À²
Æò±ÕÀ¯Âû¼ö
3°³¿ù 3°Ç 1,534,806,647¿ø
1,150,239,296¿ø
53%
3ȸ
6°³¿ù 6°Ç 3,801,023,090¿ø
2,563,619,648¿ø
59%
2.5ȸ
12°³¿ù 8°Ç 2,880,892,318¿ø
1,938,406,111¿ø
57%
2.4ȸ


º» °æ¸ÅÁ¤º¸´Â ¹ý¿øÀÚ·á¿Í ÀÏÄ¡Çϵµ·Ï ÇÏ¿´À¸³ª ±Ç¸®»çÇ׺¯µ¿, ÀÔ·ÂÂø¿À µîÀÇ ¿øÀÎÀ¸·Î »ç½Ç°ú ´Ù¸¦ ¼ö ÀÖ½À´Ï´Ù. ÀÌ¿ë¾à°ü¿¡ ÀǰЏéÃ¥Á¶°ÇÀ¸·Î Á¦°øµÊÀ» ¾Ë¸®¸ç, °æ¸ÅÀÔÂû½Ã ¹Ýµå½Ã °ü·Ã °øºÎ¸¦ ÀçÈ®ÀÎÇϽñ⠹ٶø´Ï´Ù. º¸´Ù Æí¸®ÇÑ °æ¸ÅÁ¤º¸ Á¦°øÀ» À§ÇØ Áö¼ÓÀûÀ¸·Î °³¼±ÇϰڽÀ´Ï´Ù. ÀÌ¿ëÇØ Áּż­ °¨»çÇÕ´Ï´Ù.
°ü½É¹°°ÇÀ¸·Î µî·ÏÇÕ´Ï´Ù