112
´Ù¼¼´ë(ºô¶ó)
¼­¿ïÁß¾ÓÁö¹æ¹ý¿ø
 °¨Á¤°¡193,000,000 ¿ø
 ÃÖÀú°¡(80%) 154,400,000 ¿ø
 º¸Áõ±Ý(10%) 15,440,000 ¿ø
 Ã»±¸¾×229,000,000 ¿ø
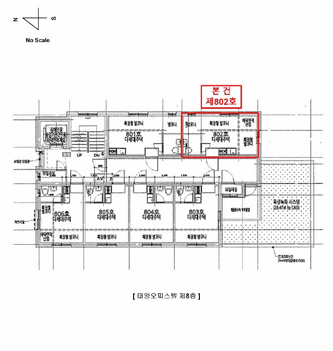
¼­¿ïƯº°½Ã °ü¾Ç±¸ ½Å¸²µ¿ 1437-19 žç¿ÀÇǽºÅÚ 8Ãþ802È£
»ç°Ç¹øÈ£ 2025Ÿ°æ102944
°æ¸ÅÁ¾·ùºÎµ¿»ê°­Á¦°æ¸Å
¸Å°¢´ë»óÅäÁö ¹× °Ç¹°Àϰý ¸Å°¢
¸Å°¢±âÀÏ    2025.12.23(È­) 10:00 ÀÔÂû 3ÀÏÀü    
ÅäÁö¸éÀû5.33§³(1.61 Æò)
°Ç¹°¸éÀû10.59§³(3.20 Æò)
乫/¼ÒÀ¯ÀÚ±èOO / ±èOO
ä±ÇÀÚÁÖOOOOOOO
±è¼ºÈÆ ´ëÇ¥ÀÌ»ç
°øÀÎÁß°³»ç, ºÎµ¿»ê°ø°æ¸Å»ç, ÇѾç´ëÇб³ Á¹¾÷
Àü) ÅÂÀÎÄÁ¼³ÆÃ(ÁÖ) ´ëÇ¥ÀÌ»ç
Àü) ¿©ÀÇÁֺε¿»êÁß°³¹ýÀÎ(ÁÖ) ´ëÇ¥ÀÌ»ç
Çö) ¿©ÀÇÁÖ°æ¸Å¹ýÀÎ ´ëÇ¥ÀÌ»ç
010-2371-3237
ÆäÀ̽ººÏ Æ®À§ÅÍ ±¸±Û+
īī¿À½ºÅ丮
īī¿ÀÅå sms¹®ÀÚº¸³»±â
 

±âÀϳ»¿ª

°æ°ú ³¯Â¥ Àú°¨ ÃÖÀú°¡ °á°ú
Á¢¼öÀÏ 2025-05-15 °æ¸ÅÁ¢¼ö
~4ÀÏ 
2025-05-19 °æ¸Å°³½Ã°áÁ¤
~77ÀÏ 
2025-07-31 ¹è´ç¿ä±¸Á¾±âÀÏ
~187ÀÏ 
2025-11-18 100%
193,000,000
À¯Âû
~222ÀÏ 
2025-12-23 80%
154,400,000
ÁøÇà
¹°°Ç¸í¼¼¼­ ÇöȲÁ¶»ç¼­ ¹®°ÇÁ¢¼ö ¼Û´Þ³»¿ª

°¨Á¤Æò°¡ÇöȲ

¸ñ·Ï ÁÖ¼Ò ±¸Á¶/¿ëµµ/´ëÁö±Ç ¸éÀû ºñ°í
´ëÁö±Ç
½Å¸²µ¿ 1437-19 379.8ºÐÀÇ 5.333 5.333 §³
(1.61Æò)
°Ç¹°
½Å¸²µ¿ 1437-19 8Ãþ802È£ ö±ÙÄÜÅ©¸®Æ®±¸Á¶ 10.59 §³
(3.20Æò)
1) À§Ä¡/ÁØÁÖ°ÅÁö¿ª/Áö±¸´ÜÀ§°èȹ±¸¿ª/¹ö½ºÁ¤·ùÀå/ÁöÇÏö/Â÷·® Á¢±ÙÀÌ °¡´É/Æò½º¶óºêÁöºØ ´õº¸±â
°¨Á¤Æò°¡ ¿äÇ×Ç¥
1)À§Ä¡ ¹× ÁÖÀ§È¯°æ
º»°ÇÀº ¼­¿ïƯº°½Ã °ü¾Ç±¸ ½Å¸²µ¿ ¼ÒÀç ""½Å¸²¿ª"" ºÏ¼­Ãø Àαٿ¡ À§Ä¡Çϰí ÀÖÀ¸¸ç, ÁÖÀ§´Â ´Üµ¶ÁÖÅÃ, ´Ù¼¼´ëÁÖÅà ¹× ±Ù¸°»ýȰ½Ã¼³ÀÌ È¥ÀçÇϰí ÀÖÀ½.
2)±³Åë»óȲ
º»°Ç±îÁö Â÷·® Á¢±ÙÀÌ °¡´ÉÇϰí Àαٿ¡ ÁöÇÏö ½Å¸²¿ª ¹× ¹ö½ºÁ¤·ùÀåÀÌ ¼ÒÀçÇÏ´Â µî ´ëÁß±³Åë»óȲÀº º¸ÅëÀÓ.
3)°Ç¹°ÀÇ ±¸Á¶
ö±ÙÄÜÅ©¸®Æ® Æò½º¶óºêÁöºØ ÁöÇÏ1Ãþ Áö»ó8Ãþ Áß 8Ãþ 802È£·Î¼­,
¿Üº® : ¼®Àç ºÙÀÓ ¸¶°¨ µî,
âȣ : ¼¦½Ã âȣ µîÀÓ.
4)ÀÌ¿ë»óÅÂ
º»°ÇÀº ´Ù¼¼´ëÁÖÅÃÀ¸·Î ÀÌ¿ëÁßÀÓ.(ÈÄ÷:È£º°¹èÄ¡µµ ¹× ³»ºÎ±¸Á¶µµ Âü°í)
5)¼³ºñ³»¿ª
±âº»ÀûÀÎ À§»ý¼³ºñ, ±Þ¹è¼ö¼³ºñ, ³­¹æ¼³ºñ µîÀÓ.
6)ÅäÁöÀÇ Çü»ó ¹× ÀÌ¿ë»óÅÂ
ÀÎÁ¢Áö ´ëºñ µî°í ÆòźÇÑ »ç´Ù¶óÇü ÅäÁö·Î °øµ¿ÁÖÅà ¿Ü2 °ÇºÎÁö·Î ÀÌ¿ëÁßÀÓ.
7)ÀÎÁ¢ µµ·Î»óŵî
º»°Ç ºÏÃøÀ¸·Î Æø ¾à 6¹ÌÅÍ ³»¿Ü Æ÷Àåµµ·Î¿Í Á¢Çϰí ÀÖÀ½.
8)ÅäÁöÀÌ¿ë°èȹ ¹× Á¦ÇÑ»óÅÂ
ÁØÁÖ°ÅÁö¿ª, Áö±¸´ÜÀ§°èȹ±¸¿ª(2024-04-11), ¼Ò·Î3·ù(Æø 8m ¹Ì¸¸)(Á¢ÇÕ), °¡Ãà»çÀ°Á¦Çѱ¸¿ª<°¡ÃàºÐ´¢ÀÇ °ü¸® ¹× À̿뿡 °üÇÑ ¹ý·ü>, ´ë°ø¹æ¾îÇùÁ¶±¸¿ª(À§Å¹°íµµ:194m)<±º»ç±âÁö ¹× ±º»ç½Ã¼³ º¸È£¹ý>, °ú¹Ð¾ïÁ¦±Ç¿ª<¼öµµ±ÇÁ¤ºñ°èȹ¹ý>ÀÓ.
9)°øºÎ¿ÍÀÇ Â÷ÀÌ
-
10)±âŸÂü°í»çÇ×(ÀÓ´ë°ü·Ê ¹× ±âŸ)
-

°ÇÃ๰ÇöȲ

¼ÒÀçÁö ¼­¿ïƯº°½Ã °ü¾Ç±¸ ½Å¸²µ¿ 1437-19¹øÁö
´ëÁö¸éÀû 379.8§³
(115.09Æò)
¿¬¸éÀû 1416.04§³
(429.1Æò)
°ÇÃà¸éÀû 196.56§³
(59.56Æò)
¿ëÀû·ü»êÁ¤
¿¬¸éÀû
1138.08§³
(344.87Æò)
°ÇÆóÀ² 51.75% ¿ëÀû·ü 299.65%
Áö»óÃþ¼ö 8Ãþ ÁöÇÏÃþ¼ö 1Ãþ
ÁÖ¿ëµµ °øµ¿ÁÖÅà ±¸Á¶ ö±ÙÄÜÅ©¸®Æ®±¸Á¶
Âø°øÀÏÀÚ 2020.03.09 »ç¿ë½ÂÀÎÀÏÀÚ 2021.01.28
°ÇÃ๰Ãþº°ÇöȲ [º¸±â]


±¹ÅäºÎ½Ç°Å·¡°¡ ¼­¿ïƯº°½Ã °ü¾Ç±¸ ½Å¸²µ¿

¡Ü ¸Å¸Å

¸éÀû(§³), ±Ý¾×(¸¸¿ø)

¡Ü Àü¼¼

¸éÀû(§³), ±Ý¾×(¸¸¿ø)

°è¾àÀϰǹ°¸íĪÃþ¿¬¸éÀû´ëÁö±Ý¾×°ÇÃà
24.03.30±ÃÀü¿¡¹öºô(713-6)337.9818.0118,1002003
24.03.29Çϳª¾ÆÆ®ºô¶ó246.8622.9219,0002002
24.03.27µ¨·ç½Ã¾Æ.R329.94524.0929,0002022
24.03.27¼º°­ÄÉ·»½Ã¾Æ252.2636.2332,0002018
24.03.27¿î¼­¸Ç¼Ç(°¡)162.9732.2234,5002002
¢Ñ ´õº¸±â

µî±âºÎµîº» ¿ä¾à(°Ç¹°)

  Á¢¼öÀÏÀÚ µî±â¸ñÀû/±Ç¸®ÀÚ ±Ç¸®±Ý¾× ±âÁØ
1 2021³â8¿ù20ÀÏ
¼ÒÀ¯±Ç
±èOO
¼Ò¸ê
2 2021³â8¿ù25ÀÏ
¾àÁ¤/±ÝÁö»çÇ×/ȯ¸ÅƯ¾à
Àμö
3 2023³â1¿ù27ÀÏ
¾Ð·ù
±¹
¼Ò¸ê±âÁØ
4 2023³â8¿ù31ÀÏ
ÀÓÂ÷±Ç¼³Á¤
Á¤OO
229,000,000 ¼Ò¸ê
5 2024³â4¿ù15ÀÏ
¾Ð·ù
±¹
¼Ò¸ê
6 2025³â5¿ù19ÀÏ
°­Á¦°æ¸Å
ÁÖOOOO
¼Ò¸ê

ÀÓÂ÷ÀÎÇöȲ (¹è´ç¿ä±¸Á¾±âÀÏ: 2025-07-31)

ÀÓÂ÷ÀÎ ¿ëµµ/Á¡À¯ º¸Áõ±Ý/¿ù¼¼ ´ëÇ×·Â
ÀüÀÔÀÏ/È®Á¤ÀÏ ¹è´ç¿ä±¸ ºñ°í
COOOOOOOOO 802È£
X
2024.12.20.
ÁÖOOOOOOOOOOOO 802È£ 229,000,000
O
2021.08.20.
2021.07.23.
2025.7.31. 2021.08.20.~
ºñ°í
(¸Å°¢¹°°Ç
¸í¼¼¼­)
ÁÖÅõµ½Ãº¸Áõ°ø»ç(Á¤Á¤ÈÆ):½Åûä±ÇÀÚ °â ÀÓÂ÷ÀÎ Á¤Á¤ÈÆÀÇ ÀÓÂ÷º¸Áõ±Ý ¿ì¼±º¯Á¦±Ç ½Â°èÀÎÀÓ(ÁÖÅÃÀÓ´ëÂ÷º¸È£¹ý Á¦3Á¶ÀÇ2 Á¦7Ç×)

¿©ÀÇÁÖ°æ¸Å Á¶¾ð ÇÑ ¸¶µð

¸Å°¢¹°°Ç¸í¼¼ ºñ°í³­¿¡ ±âÀçµÈ ³»¿ëÀÔ´Ï´Ù.
ÁÖÅõµ½Ãº¸Áõ°ø»ç(Á¤Á¤ÈÆ):½Åûä±ÇÀÚ °â ÀÓÂ÷ÀÎ Á¤Á¤ÈÆÀÇ ÀÓÂ÷º¸Áõ±Ý ¿ì¼±º¯Á¦±Ç ½Â°èÀÎÀÓ(ÁÖÅÃÀÓ´ëÂ÷º¸È£¹ý Á¦3Á¶ÀÇ2 Á¦7Ç×)
³«Âû ÈÄ¿¡ µî±âºÎ»ó ¼Ò¸êµÇÁö ¾Ê´Â ±Ç¸®ÀÔ´Ï´Ù.
À»±¸ 1¹ø, 2023.8.31.Á¢¼ö Á¦129559È£ ÁÖÅÃÀÓÂ÷±Çµî±â(¹è´ç¿¡¼­ º¸Áõ±Ý Àü¾×ÀÌ º¯Á¦µÇÁö ¾ÊÀ¸¸é Àܾ×ÀÇ ¹üÀ§¿¡¼­ ¸»¼ÒµÇÁö ¾Ê °í ¸Å¼öÀÎÀÌ ÀμöÇÔ)
¼±¼øÀ§ ÀÓÂ÷±Çµî±â°¡ µÇ¾î ÀÖ½À´Ï´Ù.
¡Ø ¹°°Ç Ű¿öµå : ÁÖ°ÅÁö¿ª/ÁØÁÖ°ÅÁö¿ª/Áö±¸´ÜÀ§°èȹ±¸¿ª/¹ö½ºÁ¤·ùÀå/ÁöÇÏö/Â÷·® Á¢±ÙÀÌ °¡´É/Æò½º¶óºêÁöºØ/½º¶óºêÁöºØ
Àüü ÄÁ¼³ÆÃÀÌ ºÎ´ã½º·¯¿ì½Å°¡¿ä? ±Ç¸®ºÐ¼®¸¸ ÀÇ·ÚÇϼŵµ ±¦Âú½À´Ï´Ù!
½Ç¼Ó ÀÖ°Ô Çٽɸ¸ ´ãÀº ±Ç¸®ºÐ¼® ¼­ºñ½º!! (±Ç¸®ºÐ¼® + ½Ã¼¼Á¶»ç + ³«Âû°¡ »êÁ¤ + ÀÔÂûÇ¥ ÀÛ¼º¹æ¹ý ±îÁö)
ÃÖ´ë Àüü ÄÁ¼³ÆÃ ºñ¿ëÀÇ 10% ¼öÁØ !!

ÁÖÀÇ»çÇ× (ÃÖ¼±¼øÀ§ ¼³Á¤ÀÏ: 2023.01.27.¾Ð·ù ¼³Á¤)

¸Å°¢À¸·Î ¼Ò¸êµÇÁö ¾Ê´Â µî±âºÎ±Ç¸®: À»±¸ 1¹ø, 2023.8.31.Á¢¼ö Á¦129559È£ ÁÖÅÃÀÓÂ÷±Çµî±â(¹è´ç¿¡¼­ º¸Áõ±Ý Àü¾×ÀÌ º¯Á¦µÇÁö ¾ÊÀ¸¸é Àܾ×ÀÇ ¹üÀ§¿¡¼­ ¸»¼ÒµÇÁö ¾Ê °í ¸Å¼öÀÎÀÌ ÀμöÇÔ)
¸Å°¢À¸·Î ¼³Á¤µÈ °ÍÀ¸·Î º¸´Â Áö»ó±Ç:
¡Ø¹Ì³³°ü¸®ºñ(°ø¿ë) Àμö¿©ºÎ¸¦ ÀÔÂû Àü¿¡ È®ÀÎÇϽñ⠹ٶø´Ï´Ù

 

Áö¿ªºÐ¼®

ÁöÇÏö¸í Á÷¼±°Å¸®

Çб³¸í ÀüÈ­¹øÈ£ ÁÖ¼Ò Á÷¼±°Å¸®

¹ý¿ø

¼­¿ïÁß¾ÓÁö¹æ¹ý¿ø (065-94)¼­¿ïƯº°½Ã ¼­Ãʱ¸ ¼­ÃÊÁß¾Ó·Î 157 (¼­Ãʵ¿)
´ëÇ¥ : 02)530-1114, ¾ß°£ : 02)530-1280/536-8003
°üÇÒÁö¿ª : Á¾·Î±¸, Áß±¸, °­³²±¸, ¼­Ãʱ¸, °ü¾Ç±¸, µ¿ÀÛ±¸

µî±â¼Ò ¼­¿ïÁß¾ÓÁö¹æ¹ý¿ø º»¿ø µî±â±¹ (´ëÇ¥:1544-0773, ÆÑ½º:(02)590-1881, ¼­¿ïƯº°½Ã ¼­Ãʱ¸ ¹ý¿ø·Î3±æ 14 (¼­Ãʵ¿ 1707-4))
¼¼¹«¼­ °ü¾Ç¼¼¹«¼­ (´ëÇ¥:02-2173-42, ÆÑ½º:02-2173-4269, ¼­¿ïƯº°½Ã °ü¾Ç±¸ ¹®¼º·Î 187(½Å¸²µ¿))

Àαٳ«ÂûÅë°è

±â°£ ¸Å°¢°Ç¼ö Æò±Õ°¨Á¤°¡
Æò±Õ¸Å°¢°¡
¸Å°¢°¡À²
Æò±ÕÀ¯Âû¼ö
3°³¿ù 12°Ç 310,916,667¿ø
254,516,730¿ø
82%
2.2ȸ
6°³¿ù 18°Ç 273,277,778¿ø
233,346,703¿ø
85%
1.9ȸ
12°³¿ù 20°Ç 288,050,000¿ø
244,992,033¿ø
85%
1.9ȸ


º» °æ¸ÅÁ¤º¸´Â ¹ý¿øÀÚ·á¿Í ÀÏÄ¡Çϵµ·Ï ÇÏ¿´À¸³ª ±Ç¸®»çÇ׺¯µ¿, ÀÔ·ÂÂø¿À µîÀÇ ¿øÀÎÀ¸·Î »ç½Ç°ú ´Ù¸¦ ¼ö ÀÖ½À´Ï´Ù. ÀÌ¿ë¾à°ü¿¡ ÀǰЏéÃ¥Á¶°ÇÀ¸·Î Á¦°øµÊÀ» ¾Ë¸®¸ç, °æ¸ÅÀÔÂû½Ã ¹Ýµå½Ã °ü·Ã °øºÎ¸¦ ÀçÈ®ÀÎÇϽñ⠹ٶø´Ï´Ù. º¸´Ù Æí¸®ÇÑ °æ¸ÅÁ¤º¸ Á¦°øÀ» À§ÇØ Áö¼ÓÀûÀ¸·Î °³¼±ÇϰڽÀ´Ï´Ù. ÀÌ¿ëÇØ Áּż­ °¨»çÇÕ´Ï´Ù.
°ü½É¹°°ÇÀ¸·Î µî·ÏÇÕ´Ï´Ù