59
´Ù¼¼´ë(ºô¶ó)
¼­¿ï³²ºÎÁö¹æ¹ý¿ø
 °¨Á¤°¡292,000,000 ¿ø
 ÃÖÀú°¡(80%) 233,600,000 ¿ø
 º¸Áõ±Ý(10%) 23,360,000 ¿ø
 Ã»±¸¾×288,000,000 ¿ø
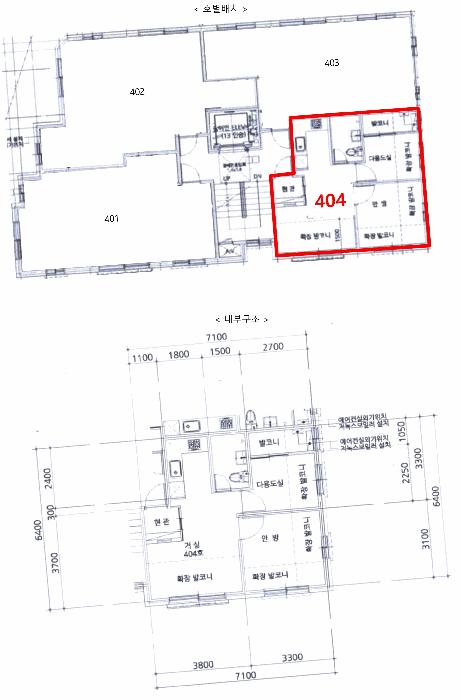
¼­¿ïƯº°½Ã °­¼­±¸ È­°îµ¿ 1037-10 Æ®¸®ºô¸®Áö Á¦4Ãþ Á¦404È£
»ç°Ç¹øÈ£ 2025Ÿ°æ9276
°æ¸ÅÁ¾·ùºÎµ¿»ê°­Á¦°æ¸Å
¸Å°¢´ë»óÅäÁö ¹× °Ç¹°Àϰý ¸Å°¢
¸Å°¢±âÀÏ    2026.01.07(¼ö) 10:00 ÀÔÂû 16ÀÏÀü    
ÅäÁö¸éÀû18.02§³(5.45 Æò)
°Ç¹°¸éÀû27.51§³(8.32 Æò)
乫/¼ÒÀ¯ÀÚ¹éOO / ¹éOO
ä±ÇÀÚÁÖOOOOOOO
±è¼ºÈÆ ´ëÇ¥ÀÌ»ç
°øÀÎÁß°³»ç, ºÎµ¿»ê°ø°æ¸Å»ç, ÇѾç´ëÇб³ Á¹¾÷
Àü) ÅÂÀÎÄÁ¼³ÆÃ(ÁÖ) ´ëÇ¥ÀÌ»ç
Àü) ¿©ÀÇÁֺε¿»êÁß°³¹ýÀÎ(ÁÖ) ´ëÇ¥ÀÌ»ç
Çö) ¿©ÀÇÁÖ°æ¸Å¹ýÀÎ ´ëÇ¥ÀÌ»ç
010-2371-3237
ÆäÀ̽ººÏ Æ®À§ÅÍ ±¸±Û+
īī¿À½ºÅ丮
īī¿ÀÅå sms¹®ÀÚº¸³»±â
 

±âÀϳ»¿ª

°æ°ú ³¯Â¥ Àú°¨ ÃÖÀú°¡ °á°ú
Á¢¼öÀÏ 2025-03-24 °æ¸ÅÁ¢¼ö
~1ÀÏ 
2025-03-25 °æ¸Å°³½Ã°áÁ¤
~92ÀÏ 
2025-06-24 ¹è´ç¿ä±¸Á¾±âÀÏ
~232ÀÏ 
2025-11-11 100%
292,000,000
À¯Âû
~289ÀÏ 
2026-01-07 80%
233,600,000
ÁøÇà
¹°°Ç¸í¼¼¼­ ÇöȲÁ¶»ç¼­ ¹®°ÇÁ¢¼ö ¼Û´Þ³»¿ª

°¨Á¤Æò°¡ÇöȲ

¸ñ·Ï ÁÖ¼Ò ±¸Á¶/¿ëµµ/´ëÁö±Ç ¸éÀû ºñ°í
´ëÁö±Ç
È­°îµ¿ 1037-10 380.7ºÐÀÇ 18.02 18.02 §³
(5.45Æò)
°Ç¹°
È­°îµ¿ 1037-10 Á¦4Ãþ Á¦404È£ ö±ÙÄÜÅ©¸®Æ®±¸Á¶ 27.51 §³
(8.32Æò)
1) À§Ä¡/µµ½ÃÁö¿ª/ÁÖ°ÅÁö¿ª/Â÷·®ÃâÀÔ °¡´É/ÁöÇÏö/³ë¼±¹ö½º Á¤·ùÀå/ö±ÙÄÜÅ©¸®Æ®±¸Á¶/Æò½½·¡ºêÁöºØ ´õº¸±â
°¨Á¤Æò°¡ ¿äÇ×Ç¥
1)À§Ä¡ ¹× ÁÖÀ§È¯°æ
º»°ÇÀº ¼­¿ïƯº°½Ã °­¼­±¸ È­°îµ¿ È­°î3µ¿Áֹμ¾ÅÍ ºÏ¼­Ãø Àαٿ¡ À§Ä¡Çϸç, ÁÖÀ§¿¡´Â ´Üµ¶
ÁÖÅÃ, ÀúÃþ °øµ¿ÁÖÅÃ, ¼Ò±Ô¸ð ±Ù¸°»ýȰ½Ã¼³ µîÀÌ ¼ÒÀçÇÔ.
2)±³Åë»óȲ
º»°Ç±îÁö Â÷·®ÃâÀÔ °¡´ÉÇϰí, Àαٿ¡ ÁöÇÏö 5È£¼± È­°î¿ª ¹× ³ë¼±¹ö½º Á¤·ùÀåÀÌ ¼ÒÀçÇÔ.
3)°Ç¹°ÀÇ ±¸Á¶
ö±ÙÄÜÅ©¸®Æ®±¸Á¶ Æò½½·¡ºêÁöºØÀ¸·Î

¿Üº® : ¼®ÀçŸÀÏ ºÙÀÓ, º®µ¹½×±â µî.
âȣ : ¼¦½Ã âȣ µî.
4)ÀÌ¿ë»óÅÂ
´Ù¼¼´ëÁÖÅÃÀ¸·Î ÀÌ¿ëÁßÀÓ. < ÈÄ÷ ³»ºÎ±¸Á¶µµ ÂüÁ¶ >
5)¼³ºñ³»¿ª
¿¤¸®º£ÀÌÅÍ, ³­¹æ¼³ºñ, À§»ý ¹× ±Þ¹è¼ö ¼³ºñ µîÀ» °®Ãã.
6)ÅäÁöÀÇ Çü»ó ¹× ÀÌ¿ë»óÅÂ
2ÇÊ ÀÏ´ÜÀÇ »ç´Ù¸®Çü ÆòÁö·Î ÁÖ»ó¿ë ºÎÁö·Î ÀÌ¿ëÁßÀÓ.
7)ÀÎÁ¢ µµ·Î»óŵî
¼­ÃøÀ¸·Î µµ·Î¿¡ Á¢ÇÔ.
8)ÅäÁöÀÌ¿ë°èȹ ¹× Á¦ÇÑ»óÅÂ
µµ½ÃÁö¿ª, 2Á¾ÀϹÝÁÖ°ÅÁö¿ª(7ÃþÀÌÇÏ), Áß¿ä½Ã¼³¹°º¸È£Áö±¸(°øÇ×), °¡Ãà»çÀ°Á¦Çѱ¸¿ª(Áö¿ª°æ
Á¦°ú È®ÀÎ ¿ä¸Á){°¡ÃàºÐ´¢ÀÇ °ü¸® ¹× À̿뿡 °üÇÑ ¹ý·ü}, ¼öÆòÇ¥¸é±¸¿ª(¼öÆòÇ¥¸é){°øÇ׽ü³
¹ý}, ´ë°ø¹æ¾îÇùÁ¶±¸¿ª(À§Å¹°íµµ:77~257m){±º»ç±âÁö ¹× ±º»ç½Ã¼³ º¸È£¹ý}, °ú¹Ð¾ïÁ¦±Ç¿ª{¼ö
µµ±ÇÁ¤ºñ°èȹ¹ý}.
9)°øºÎ¿ÍÀÇ Â÷ÀÌ
- -
10)±âŸÂü°í»çÇ×(ÀÓ´ë°ü·Ê ¹× ±âŸ)
1. ÀÓ´ë°ü°è ¹Ì»ó.

2. º»°ÇÀÇ ³»ºÎ±¸Á¶´Â ÀÌÇØ°ü°èÀÎÀÇ ºÎÀç ¹× Æó¹®À¸·Î ÁýÇÕ°ÇÃ๰´ëÀå »ó °ÇÃ๰ÇöȲµµ, ¿Ü
ºÎ¿¡¼­ °üÂûÇÑ ¹Ù¿¡ ÀÇÇÏ¿© ÇöȲ°ú ´Ù¼Ò »óÀÌ ÇÒ ¼ö ÀÖÀ¸´Ï °æ¸ÅÂü¿©½Ã ÀçÈ®ÀÎÇϽñ⠹Ù
¶ø´Ï´Ù.
Âü°í
»çÇ×
ÀÓÂ÷ÀÎ ¹× ÁÖÅÃÀÓÂ÷±Ç ½Â°èÀÎ ÁÖÅõµ½Ãº¸Áõ°ø»çÀÇ ¸Å¼öÀο¡ ´ëÇÑ ´ëÇ×·Â Æ÷±â Á¶°Ç ¸Å°¢

°ÇÃ๰ÇöȲ

¼ÒÀçÁö ¼­¿ïƯº°½Ã °­¼­±¸ È­°îµ¿ 1037-10¹øÁö
´ëÁö¸éÀû 380.7§³
(115.36Æò)
¿¬¸éÀû 682.43§³
(206.8Æò)
°ÇÃà¸éÀû 222.75§³
(67.5Æò)
¿ëÀû·ü»êÁ¤
¿¬¸éÀû
682.43§³
(206.8Æò)
°ÇÆóÀ² 58.51% ¿ëÀû·ü 179.26%
Áö»óÃþ¼ö 6Ãþ ÁöÇÏÃþ¼ö  
ÁÖ¿ëµµ °øµ¿ÁÖÅà ±¸Á¶ ö±ÙÄÜÅ©¸®Æ®±¸Á¶
Âø°øÀÏÀÚ 2020.07.10 »ç¿ë½ÂÀÎÀÏÀÚ 2021.02.01
°ÇÃ๰Ãþº°ÇöȲ [º¸±â]


±¹ÅäºÎ½Ç°Å·¡°¡ ¼­¿ïƯº°½Ã °­¼­±¸ È­°îµ¿

¡Ü ¸Å¸Å

¸éÀû(§³), ±Ý¾×(¸¸¿ø)

¡Ü Àü¼¼

¸éÀû(§³), ±Ý¾×(¸¸¿ø)

°è¾àÀϰǹ°¸íĪÃþ¿¬¸éÀû´ëÁö±Ý¾×°ÇÃà
24.03.30ÇÏÀÌÆ®¸Ç¼Ç159.3127.8923,0002000
24.03.30´õŬ·¡½Ä(857-19)628.5218.221,5002018
24.03.30ÇØºñÄ¡ºô226.2315.3722,2002019
24.03.30µ¿µµÇÏÀÌÃ÷ºô¶ó(56-335)158.5629.415,0002000
24.03.30¸®´õ½ºÅ¸¿î529.8819.321,9002016
¢Ñ ´õº¸±â

µî±âºÎµîº» ¿ä¾à(°Ç¹°)

  Á¢¼öÀÏÀÚ µî±â¸ñÀû/±Ç¸®ÀÚ ±Ç¸®±Ý¾× ±âÁØ
1 2021³â5¿ù11ÀÏ
¼ÒÀ¯±Ç
¹éOO
¼Ò¸ê
2 2021³â5¿ù11ÀÏ
¾àÁ¤/±ÝÁö»çÇ×/ȯ¸ÅƯ¾à
Àμö
3 2022³â11¿ù10ÀÏ
°¡¾Ð·ù
ÁÖOOOO
778,000,000 ¼Ò¸ê±âÁØ
4 2023³â2¿ù15ÀÏ
¾Ð·ù
±¹
¼Ò¸ê
5 2023³â4¿ù7ÀÏ
ÀÓÂ÷±Ç¼³Á¤
Á¶OO
288,000,000 ¼Ò¸ê
6 2025³â3¿ù25ÀÏ
°­Á¦°æ¸Å
ÁÖOOOO
¼Ò¸ê
7 2025³â4¿ù2ÀÏ
¾Ð·ù
±¹OOOO
¼Ò¸ê

ÀÓÂ÷ÀÎÇöȲ (¹è´ç¿ä±¸Á¾±âÀÏ: 2025-06-24)

ÀÓÂ÷ÀÎ ¿ëµµ/Á¡À¯ º¸Áõ±Ý/¿ù¼¼ ´ëÇ×·Â
ÀüÀÔÀÏ/È®Á¤ÀÏ ¹è´ç¿ä±¸ ºñ°í
±èOO ¹Ì»ó ¹Ì»ó
[¿ù]¹Ì»ó
X
2023.07.10
¹Ì»ó
¹Ì»ó
±èOO ¹Ì»ó ¹Ì»ó
[¿ù]¹Ì»ó
X
2024.09.06
¹Ì»ó
¹Ì»ó
Á¶OO ÀüºÎ 288,000,000
O
2021.05.11.
2021.04.19.
2021.05.11.
ÁÖOOOOOOO ÀüºÎ 288,000,000
O
2021.05.11
2021.04.19
2025.6.17. 2021.05.11 ~2023.06.23
ºñ°í
(¸Å°¢¹°°Ç
¸í¼¼¼­)
±è¹Î±â:Áֹεî·Ï»ó ±èÀºÁöÀÇ µ¿°ÅÀÎÀ¸·Î µîÀç Á¶ÇýÁ¤:ÁÖÅÃÀÓÂ÷±Çµî±âÀÏÀÚ 2023. 4. 7. ÁÖÅõµ½Ãº¸Áõ°ø»ç:ÀÌ »ç°Ç ½Åûä±ÇÀÚ·Î ÁÖÅÃÀÓÂ÷±ÇÀÚ Á¶ÇýÁ¤ÀÇ ÁöÀ§¸¦ ½Â°èÇÏ¿© ±Ç¸®½Å°í ¹× ¹è´ç¿ä±¸

¿©ÀÇÁÖ°æ¸Å Á¶¾ð ÇÑ ¸¶µð

¸Å°¢¹°°Ç¸í¼¼ ºñ°í³­¿¡ ±âÀçµÈ ³»¿ëÀÔ´Ï´Ù.
±è¹Î±â:Áֹεî·Ï»ó ±èÀºÁöÀÇ µ¿°ÅÀÎÀ¸·Î µîÀç Á¶ÇýÁ¤:ÁÖÅÃÀÓÂ÷±Çµî±âÀÏÀÚ 2023. 4. 7. ÁÖÅõµ½Ãº¸Áõ°ø»ç:ÀÌ »ç°Ç ½Åûä±ÇÀÚ·Î ÁÖÅÃÀÓÂ÷±ÇÀÚ Á¶ÇýÁ¤ÀÇ ÁöÀ§¸¦ ½Â°èÇÏ¿© ±Ç¸®½Å°í ¹× ¹è´ç¿ä±¸
³«Âû ÈÄ¿¡ µî±âºÎ»ó ¼Ò¸êµÇÁö ¾Ê´Â ±Ç¸®´Â ¾ø½À´Ï´Ù.
´ë·«ÀûÀÎ °ËÅäÀǰßÀ̹ǷΠÀÔÂûÀü¿¡ Àü¹®°¡ÀÇ Á¶¾ðÀ» Âü°íÇØ º¸½Ã±æ ±ÇÇØµå¸³´Ï´Ù.
¼±¼øÀ§ ÀÓÂ÷±Çµî±â°¡ µÇ¾î ÀÖ½À´Ï´Ù.
´Ù¼öÀÇ ÀÓÂ÷ÀÎÀÌ Á¶»ç, ½Å°íµÇ¾î ÀÖ½À´Ï´Ù.
¸Å°¢¹°°Ç¸í¼¼¼­ ¹× ÇöȲÁ¶»ç¼­¿¡ 4¸íÀÇ ÀÓÂ÷ÀÎÀÌ ³ªÅ¸³ª ÀÖ½À´Ï´Ù. ÀÓÂ÷ÀÎÀÌ ¸¹Àº °æ¿ì ¸íµµ¿¡ ¾î·Á¿òÀÌ ÀÖÀ¸´Ï Àü¹®°¡¿Í ÇùÀÇÇÏ¿© ÁøÇàÇÏ½Ã±æ ±ÇÇØ µå¸³´Ï´Ù.
¡Ø ¹°°Ç Ű¿öµå : µµ½ÃÁö¿ª/ÁÖ°ÅÁö¿ª/Â÷·®ÃâÀÔ °¡´É/ÁöÇÏö/³ë¼±¹ö½º Á¤·ùÀå/ö±ÙÄÜÅ©¸®Æ®±¸Á¶/Æò½½·¡ºêÁöºØ/½½·¡ºêÁöºØ
Àüü ÄÁ¼³ÆÃÀÌ ºÎ´ã½º·¯¿ì½Å°¡¿ä? ±Ç¸®ºÐ¼®¸¸ ÀÇ·ÚÇϼŵµ ±¦Âú½À´Ï´Ù!
½Ç¼Ó ÀÖ°Ô Çٽɸ¸ ´ãÀº ±Ç¸®ºÐ¼® ¼­ºñ½º!! (±Ç¸®ºÐ¼® + ½Ã¼¼Á¶»ç + ³«Âû°¡ »êÁ¤ + ÀÔÂûÇ¥ ÀÛ¼º¹æ¹ý ±îÁö)
ÃÖ´ë Àüü ÄÁ¼³ÆÃ ºñ¿ëÀÇ 10% ¼öÁØ !!

ÁÖÀÇ»çÇ× (ÃÖ¼±¼øÀ§ ¼³Á¤ÀÏ: 2022. 11. 10. °¡¾Ð·ù ¼³Á¤)

¸Å°¢À¸·Î ¼Ò¸êµÇÁö ¾Ê´Â µî±âºÎ±Ç¸®:
¸Å°¢À¸·Î ¼³Á¤µÈ °ÍÀ¸·Î º¸´Â Áö»ó±Ç:
Ưº°¸Å°¢Á¶°Ç : ä±ÇÀÚ´Â ¸Å¼öÀο¡ ´ëÇØ ¹è´ç¹ÞÁö ¸øÇÏ´Â Àܾ׿¡ ´ëÇÑ ÀÓ´ëÂ÷º¸Áõ±Ý ¹Ýȯû±¸±ÇÀ» Æ÷±âÇϰí, ÀÓÂ÷±Çµî±â¸¦ ¸» ¼ÒÇÏ´Â °ÍÀ» Á¶°ÇÀ¸·Î ¸Å°¢
¡Ø¹Ì³³°ü¸®ºñ(°ø¿ë) Àμö¿©ºÎ¸¦ ÀÔÂû Àü¿¡ È®ÀÎÇϽñ⠹ٶø´Ï´Ù

 

Áö¿ªºÐ¼®

ÁöÇÏö¸í Á÷¼±°Å¸®

Çб³¸í ÀüÈ­¹øÈ£ ÁÖ¼Ò Á÷¼±°Å¸®

¹ý¿ø

¼­¿ï³²ºÎÁö¹æ¹ý¿ø (080-88)¼­¿ïƯº°½Ã ¾çõ±¸ ½Å¿ù·Î 386(½ÅÁ¤µ¿)
´ëÇ¥ : 02)2192-1114
°üÇÒÁö¿ª : ¿µµîÆ÷±¸, °­¼­±¸, ¾çõ±¸, ±¸·Î±¸, ±Ýõ±¸

µî±â¼Ò ¼­¿ï³²ºÎÁö¹æ¹ý¿ø º»¿ø µî±â±¹ (´ëÇ¥:1544-0773, ÆÑ½º:(02)2629-7307, ¼­¿ïƯº°½Ã ¿µµîÆ÷±¸ °æÀηΠ772 (¹®·¡µ¿ 1°¡))
¼¼¹«¼­ °­¼­¼¼¹«¼­ (´ëÇ¥:02-2630-42, ÆÑ½º:02-2679-8777, ¼­¿ïƯº°½Ã °­¼­±¸ ¸¶°î¼­1·Î 60 (¸¶°îµ¿))

Àαٳ«ÂûÅë°è

±â°£ ¸Å°¢°Ç¼ö Æò±Õ°¨Á¤°¡
Æò±Õ¸Å°¢°¡
¸Å°¢°¡À²
Æò±ÕÀ¯Âû¼ö
3°³¿ù 275°Ç 260,925,128¿ø
200,762,497¿ø
77%
2.2ȸ
6°³¿ù 495°Ç 259,670,442¿ø
200,659,976¿ø
78%
2.2ȸ
12°³¿ù 1,014°Ç 258,545,736¿ø
201,658,657¿ø
79%
2.3ȸ


º» °æ¸ÅÁ¤º¸´Â ¹ý¿øÀÚ·á¿Í ÀÏÄ¡Çϵµ·Ï ÇÏ¿´À¸³ª ±Ç¸®»çÇ׺¯µ¿, ÀÔ·ÂÂø¿À µîÀÇ ¿øÀÎÀ¸·Î »ç½Ç°ú ´Ù¸¦ ¼ö ÀÖ½À´Ï´Ù. ÀÌ¿ë¾à°ü¿¡ ÀǰЏéÃ¥Á¶°ÇÀ¸·Î Á¦°øµÊÀ» ¾Ë¸®¸ç, °æ¸ÅÀÔÂû½Ã ¹Ýµå½Ã °ü·Ã °øºÎ¸¦ ÀçÈ®ÀÎÇϽñ⠹ٶø´Ï´Ù. º¸´Ù Æí¸®ÇÑ °æ¸ÅÁ¤º¸ Á¦°øÀ» À§ÇØ Áö¼ÓÀûÀ¸·Î °³¼±ÇϰڽÀ´Ï´Ù. ÀÌ¿ëÇØ Áּż­ °¨»çÇÕ´Ï´Ù.
°ü½É¹°°ÇÀ¸·Î µî·ÏÇÕ´Ï´Ù