107
¿ÀÇǽºÅÚ
ÀÎõÁö¹æ¹ý¿ø ºÎõÁö¿ø
 °¨Á¤°¡322,000,000 ¿ø
 ÃÖÀú°¡(70%) 225,400,000 ¿ø
 º¸Áõ±Ý(10%) 22,540,000 ¿ø
 Ã»±¸¾×335,000,000 ¿ø
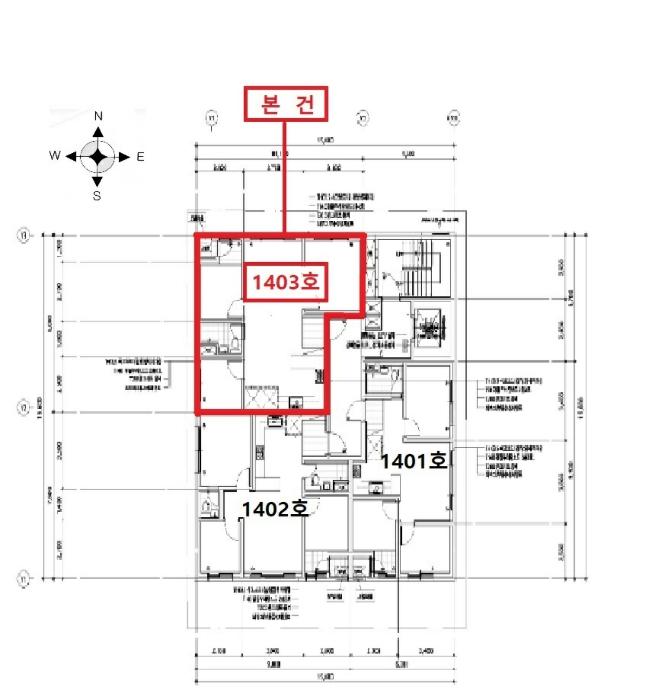
°æ±âµµ ºÎõ½Ã ¼Ò»ç±¸ °æÀηÎ169¹ø±æ 7-5, 14Ãþ1403È£ (¼Û³»µ¿,¿¡ÀÌÄ¡.ºñ¿¤¸²Ä³½½)
°æ±âµµ ºÎõ½Ã ¼Ò»ç±¸ ¼Û³»µ¿ 572-8
»ç°Ç¹øÈ£ 2024Ÿ°æ41623
°æ¸ÅÁ¾·ùºÎµ¿»ê°­Á¦°æ¸Å
¸Å°¢´ë»óÅäÁö ¹× °Ç¹°Àϰý ¸Å°¢
¸Å°¢±âÀÏ    2025.12.11(¸ñ) 10:00 (¿À´Ã ÀÔÂû)    
ÅäÁö¸éÀû10.95§³(3.31 Æò)
°Ç¹°¸éÀû62.46§³(18.89 Æò)
乫/¼ÒÀ¯ÀÚ±èOO / ±èOO
ä±ÇÀÚÀÌOO
±è¼ºÈÆ ´ëÇ¥ÀÌ»ç
°øÀÎÁß°³»ç, ºÎµ¿»ê°ø°æ¸Å»ç, ÇѾç´ëÇб³ Á¹¾÷
Àü) ÅÂÀÎÄÁ¼³ÆÃ(ÁÖ) ´ëÇ¥ÀÌ»ç
Àü) ¿©ÀÇÁֺε¿»êÁß°³¹ýÀÎ(ÁÖ) ´ëÇ¥ÀÌ»ç
Çö) ¿©ÀÇÁÖ°æ¸Å¹ýÀÎ ´ëÇ¥ÀÌ»ç
010-2371-3237
ÆäÀ̽ººÏ Æ®À§ÅÍ ±¸±Û+
īī¿À½ºÅ丮
īī¿ÀÅå sms¹®ÀÚº¸³»±â
 

±âÀϳ»¿ª

°æ°ú ³¯Â¥ Àú°¨ ÃÖÀú°¡ °á°ú
Á¢¼öÀÏ 2024-05-29 °æ¸ÅÁ¢¼ö
~12ÀÏ 
2024-06-10 °æ¸Å°³½Ã°áÁ¤
~105ÀÏ 
2024-09-11 ¹è´ç¿ä±¸Á¾±âÀÏ
~526ÀÏ 
2025-11-06 100%
322,000,000
À¯Âû
~561ÀÏ 
2025-12-11 70%
225,400,000
ÁøÇà
¹°°Ç¸í¼¼¼­ ÇöȲÁ¶»ç¼­ ¹®°ÇÁ¢¼ö ¼Û´Þ³»¿ª

°¨Á¤Æò°¡ÇöȲ

¸ñ·Ï ÁÖ¼Ò ±¸Á¶/¿ëµµ/´ëÁö±Ç ¸éÀû ºñ°í
´ëÁö±Ç
¼Û³»µ¿ 572-8 322.1ºÐÀÇ 10.95 10.95 §³
(3.31Æò)
°Ç¹°
¼Û³»µ¿ 572-8 14Ãþ1403È£ ö±ÙÄÜÅ©¸®Æ®±¸Á¶ 62.46 §³
(18.89Æò)
1) À§Ä¡/ÀϹݻó¾÷Áö¿ª/Â÷·®Á¢±ÙÀÌ °¡´É/³ë¼±¹ö½ºÁ¤·ùÀå/ö±ÙÄÜÅ©¸®Æ®±¸Á¶ ´õº¸±â
°¨Á¤Æò°¡ ¿äÇ×Ç¥
1)À§Ä¡ ¹× ÁÖÀ§È¯°æ
º»°ÇÀº °æ±âµµ ºÎõ½Ã ¼Û³»µ¿ ¼ÒÀç, "³²ºÎõ¿ìü±¹" ºÏµ¿Ãø Àαٿ¡ À§Ä¡ÇÏ´Â ¾÷¹«½Ã¼³(¿ÀÇǽº
ÅÚ)·Î¼­, ÁÖÀ§´Â ¾ÆÆÄÆ®¹× ´Ù¼¼´ëÁÖÆ½, ±Ù¸°»ýȰ½Ã¼³µîÀÌ È¥ÀçµÇ¾î ÀÖÀ¸¸ç ÁÖÀ§È¯°æÀº º¸Åë
ÀÓ.
2)±³Åë»óȲ
º»°Ç±îÁö Â÷·®Á¢±ÙÀÌ °¡´ÉÇϸç, Àαٿ¡ ³ë¼±¹ö½ºÁ¤·ùÀåÀÌ ¼ÒÀçÇÏ´Â µî Á¦¹Ý ±³Åë»óÇ×Àº
º¸ÅëÀÓ.
3)°Ç¹°ÀÇ ±¸Á¶
ö±ÙÄÜÅ©¸®Æ®±¸Á¶ (ö±Ù)ÄÜÅ©¸®Æ®ÁöºØ 15Ãþ °Ç¹°³» Á¦14Ãþ Á¦1403È£·Î,

¿Üº® : ¸ôÅ»À§ ÆäÀÎÆÃ ¹× ÀϺΠ¹ÌÀå½ºÅæ ¸¶°¨ µî
³»º® : º®Áöµµ¹è ¹× ÀϺΠŸÀϸ¶°¨ µî
âȣ : ¼¦½Ã âȣ¸¶°¨ µîÀÓ.

4)ÀÌ¿ë»óÅÂ
¾÷¹«½Ã¼³(¿ÀÇǽºÅÚ)·Î ÀÌ¿ëÁßÀÓ.
5)¼³ºñ³»¿ª
±âº»ÀûÀÎ À§»ý¼³ºñ ¹× ±Þ.¹è¼ö¼³ºñ, ½Â°­±â¼³ºñµîÀÌ µÇ¾îÀÖÀ½.
6)ÅäÁöÀÇ Çü»ó ¹× ÀÌ¿ë»óÅÂ
ÀÎÁ¢Áö ´ëºñ µî°íÆòźÇÑ À广ÇüÀÇ ÅäÁö·Î¼­ ¾÷¹«½Ã¼³(¿ÀÇǽºÅÚ)·Î ÀÌ¿ëÁßÀÓ.
7)ÀÎÁ¢ µµ·Î»óŵî
º»°Ç ³²Ãø°ú ºÏÃøÀ¸·Î ¾à35m¿Í ¾à4m ³»¿ÜÀÇ µµ·Î¿¡ Á¢ÇÔ.

8)ÅäÁöÀÌ¿ë°èȹ ¹× Á¦ÇÑ»óÅÂ
ÀϹݻó¾÷Áö¿ª, ¹æÈ­Áö±¸, ½Ã°¡Áö°æ°üÁö±¸(Áß½É), ´ë·Î1·ù(Æø 35m-40m)(Á¢ÇÕ) °ú¹Ð¾ïÁ¦±Ç¿ª<
¼öµµ±ÇÁ¤ºñ°èȹ¹ý> °ÇÃà¹ý Á¦2Á¶Á¦1Ç×Á¦11È£³ª¸ñ¿¡ µû¸¥ µµ·Î(µµ·ÎÀÏºÎÆ÷ÇÔ) ÁßÁ¡°æ°ü°ü¸®±¸
¿ª
9)°øºÎ¿ÍÀÇ Â÷ÀÌ
¾ø À½.
10)±âŸÂü°í»çÇ×(ÀÓ´ë°ü·Ê ¹× ±âŸ)
ÀÓ´ë°ü°è´Â ¹Ì»óÀÓ.

°ÇÃ๰ÇöȲ

¼ÒÀçÁö °æ±âµµ ºÎõ½Ã ¼Ò»ç±¸ ¼Û³»µ¿ 572-8¹øÁö
´ëÁö¸éÀû 322.1§³
(97.61Æò)
¿¬¸éÀû 3699.51§³
(1121.06Æò)
°ÇÃà¸éÀû 236.36§³
(71.62Æò)
¿ëÀû·ü»êÁ¤
¿¬¸éÀû
2537.53§³
(768.95Æò)
°ÇÆóÀ² 73.38% ¿ëÀû·ü 787.81%
Áö»óÃþ¼ö 15Ãþ ÁöÇÏÃþ¼ö 2Ãþ
ÁÖ¿ëµµ ¾÷¹«½Ã¼³ ±¸Á¶ ö±ÙÄÜÅ©¸®Æ®±¸Á¶
Âø°øÀÏÀÚ 2020.04.17 »ç¿ë½ÂÀÎÀÏÀÚ 2021.03.24
°ÇÃ๰Ãþº°ÇöȲ [º¸±â]


µî±âºÎµîº» ¿ä¾à(°Ç¹°)

  Á¢¼öÀÏÀÚ µî±â¸ñÀû/±Ç¸®ÀÚ ±Ç¸®±Ý¾× ±âÁØ
1 2021³â4¿ù30ÀÏ
¼ÒÀ¯±Ç
±èOO
¼Ò¸ê
2 2023³â2¿ù14ÀÏ
°¡¾Ð·ù
ÁÖOOOO
1,311,500,000 ¼Ò¸ê±âÁØ
3 2023³â3¿ù14ÀÏ
¾Ð·ù
±¹
¼Ò¸ê
4 2023³â5¿ù31ÀÏ
ÀÓÂ÷±Ç¼³Á¤
ÀÌOO
335,000,000 ¼Ò¸ê
5 2023³â9¿ù26ÀÏ
¾Ð·ù
ºÎOO
¼Ò¸ê
6 2024³â5¿ù3ÀÏ
¾Ð·ù
ÀÇOO
¼Ò¸ê
7 2024³â6¿ù10ÀÏ
°­Á¦°æ¸Å
ÀÌOO
¼Ò¸ê
8 2024³â9¿ù3ÀÏ
¾Ð·ù
ÀÇOO
¼Ò¸ê

ÀÓÂ÷ÀÎÇöȲ (¹è´ç¿ä±¸Á¾±âÀÏ: 2024-09-11)

ÀÓÂ÷ÀÎ ¿ëµµ/Á¡À¯ º¸Áõ±Ý/¿ù¼¼ ´ëÇ×·Â
ÀüÀÔÀÏ/È®Á¤ÀÏ ¹è´ç¿ä±¸ ºñ°í
˱OO
O
2022.06.01
ÀÌOO 1403È£Àüü 335,000,000
O
2021. 4. 29.
2021. 4. 5.
2021.4.30.~
ºñ°í
(¸Å°¢¹°°Ç
¸í¼¼¼­)
À±¼øÈñ:À̱ÝÂùÀÇ ¹è¿ìÀÚÀ̸ç, »ó°¡ÀÓ´ëÂ÷ÇöȲ¼­¿¡ »ç¾÷ÀÚµî·Ï½ÅûÀÏÀº 335,000,000¿øÀ¸·Î ±âÀçµÇ¾î ÀÖÀ½. À̱ÝÂù:°æ¸Å½Åû±ÇÀÚÀ̸ç, ¹è´ç¿ä±¸ÀÏÀÚ´Â °æ¸Å½ÅûÀÏÀÓ.

¿©ÀÇÁÖ°æ¸Å Á¶¾ð ÇÑ ¸¶µð

¸Å°¢¹°°Ç¸í¼¼ ºñ°í³­¿¡ ±âÀçµÈ ³»¿ëÀÔ´Ï´Ù.
À±¼øÈñ:À̱ÝÂùÀÇ ¹è¿ìÀÚÀ̸ç, »ó°¡ÀÓ´ëÂ÷ÇöȲ¼­¿¡ »ç¾÷ÀÚµî·Ï½ÅûÀÏÀº 335,000,000¿øÀ¸·Î ±âÀçµÇ¾î ÀÖÀ½. À̱ÝÂù:°æ¸Å½Åû±ÇÀÚÀ̸ç, ¹è´ç¿ä±¸ÀÏÀÚ´Â °æ¸Å½ÅûÀÏÀÓ.
³«Âû ÈÄ¿¡ µî±âºÎ»ó ¼Ò¸êµÇÁö ¾Ê´Â ±Ç¸®´Â ¾ø½À´Ï´Ù.
´ë·«ÀûÀÎ °ËÅäÀǰßÀ̹ǷΠÀÔÂûÀü¿¡ Àü¹®°¡ÀÇ Á¶¾ðÀ» Âü°íÇØ º¸½Ã±æ ±ÇÇØµå¸³´Ï´Ù.
°¨Á¤ ½ÃÁ¡ÀÌ ¿À·¡µÇ¾î °¡°Ýº¯µ¿ÀÌ ÀÖÀ» ¼ö ÀÖ½À´Ï´Ù.
ÀÌ ¹°°ÇÀº 2024³â 6¿ù 10ÀÏ¿¡ °æ¸Å°¡ °³½ÃµÇ¾ú´Âµ¥ Áö±Ý ½ÃÁ¡À¸·Î ¾à 549ÀÏÀÌ ÀÌ °æ°úµÇ¾ú½À´Ï´Ù. °¨Á¤°¡°ÝÀº 549ÀÏ Àü ½ÃÁ¡¿¡¼­ Æò°¡ÇÑ °¡°ÝÀ̹ǷΠ±× »çÀÌ °¡°Ýº¯µ¿ÀÌ ÀÖÀ» ¼ö ÀÖ½À´Ï´Ù. ƯÈ÷ °¡°Ý º¯µ¿ÀÌ ½ÉÇÑ ¾ÆÆÄÆ®´Â À¯ÀÇÇÏ¼Å¾ß ÇÕ´Ï´Ù. °¨Á¤°¡°ÝÀ» ³Ê¹« ¹ÏÁö ¸¶½Ã°í ÇöÀç ½Ç¸Å¹° °¡°Ý°ú ½Ç°Å·¡°¡¸¦ È®ÀÎÇϽñ⠹ٶø´Ï´Ù.
°£È¤ °¨Á¤°¡°Ýº¸´Ù ³ô°Ô ³«ÂûµÇ´Â °æ¿ì°¡ Àִµ¥ ´ëºÎºÐ ÀÌ·± ÀÌÀ¯ÀÔ´Ï´Ù.
¡Ø ¹°°Ç Ű¿öµå : »ó¾÷Áö¿ª/ÀϹݻó¾÷Áö¿ª/¹ö½ºÁ¤·ùÀå/Â÷·®Á¢±ÙÀÌ °¡´É/³ë¼±¹ö½ºÁ¤·ùÀå/ö±ÙÄÜÅ©¸®Æ®±¸Á¶
Àüü ÄÁ¼³ÆÃÀÌ ºÎ´ã½º·¯¿ì½Å°¡¿ä? ±Ç¸®ºÐ¼®¸¸ ÀÇ·ÚÇϼŵµ ±¦Âú½À´Ï´Ù!
½Ç¼Ó ÀÖ°Ô Çٽɸ¸ ´ãÀº ±Ç¸®ºÐ¼® ¼­ºñ½º!! (±Ç¸®ºÐ¼® + ½Ã¼¼Á¶»ç + ³«Âû°¡ »êÁ¤ + ÀÔÂûÇ¥ ÀÛ¼º¹æ¹ý ±îÁö)
ÃÖ´ë Àüü ÄÁ¼³ÆÃ ºñ¿ëÀÇ 10% ¼öÁØ !!

ÁÖÀÇ»çÇ× (ÃÖ¼±¼øÀ§ ¼³Á¤ÀÏ: 2023. 1. 20. ¾Ð·ù ¼³Á¤)

¸Å°¢À¸·Î ¼Ò¸êµÇÁö ¾Ê´Â µî±âºÎ±Ç¸®:
¸Å°¢À¸·Î ¼³Á¤µÈ °ÍÀ¸·Î º¸´Â Áö»ó±Ç:
¡Ø¹Ì³³°ü¸®ºñ(°ø¿ë) Àμö¿©ºÎ¸¦ ÀÔÂû Àü¿¡ È®ÀÎÇϽñ⠹ٶø´Ï´Ù

 

Áö¿ªºÐ¼®

ÁöÇÏö¸í Á÷¼±°Å¸®

Çб³¸í ÀüÈ­¹øÈ£ ÁÖ¼Ò Á÷¼±°Å¸®

¹ý¿ø

ÀÎõÁö¹æ¹ý¿ø ºÎõÁö¿ø (146-02)°æ±âµµ ºÎõ½Ã ¿ø¹Ì±¸ »óÀÏ·Î 129(»óµ¿)
´ëÇ¥ : 032)320-1114, ¹Î¿ø : 032)320-1234
°üÇÒÁö¿ª : ºÎõ½Ã, ±èÆ÷½Ã

µî±â¼Ò ÀÎõÁö¹æ¹ý¿ø ºÎõÁö¿ø µî±â°ú (´ëÇ¥:1544-0773, ÆÑ½º:(032)320-1484, 320-1485, °æ±âµµ ºÎõ½Ã »óÀÏ·Î 129 (»óµ¿ 445-1))
¼¼¹«¼­ ¼¼¹«¼­ (´ëÇ¥:, ÆÑ½º:, )

Àαٳ«ÂûÅë°è

±â°£ ¸Å°¢°Ç¼ö Æò±Õ°¨Á¤°¡
Æò±Õ¸Å°¢°¡
¸Å°¢°¡À²
Æò±ÕÀ¯Âû¼ö
3°³¿ù 9°Ç 316,166,667¿ø
199,382,111¿ø
64%
1.7ȸ
6°³¿ù 9°Ç 316,166,667¿ø
199,382,111¿ø
64%
1.7ȸ
12°³¿ù 10°Ç 312,250,000¿ø
205,283,865¿ø
67%
1.6ȸ


º» °æ¸ÅÁ¤º¸´Â ¹ý¿øÀÚ·á¿Í ÀÏÄ¡Çϵµ·Ï ÇÏ¿´À¸³ª ±Ç¸®»çÇ׺¯µ¿, ÀÔ·ÂÂø¿À µîÀÇ ¿øÀÎÀ¸·Î »ç½Ç°ú ´Ù¸¦ ¼ö ÀÖ½À´Ï´Ù. ÀÌ¿ë¾à°ü¿¡ ÀǰЏéÃ¥Á¶°ÇÀ¸·Î Á¦°øµÊÀ» ¾Ë¸®¸ç, °æ¸ÅÀÔÂû½Ã ¹Ýµå½Ã °ü·Ã °øºÎ¸¦ ÀçÈ®ÀÎÇϽñ⠹ٶø´Ï´Ù. º¸´Ù Æí¸®ÇÑ °æ¸ÅÁ¤º¸ Á¦°øÀ» À§ÇØ Áö¼ÓÀûÀ¸·Î °³¼±ÇϰڽÀ´Ï´Ù. ÀÌ¿ëÇØ Áּż­ °¨»çÇÕ´Ï´Ù.
°ü½É¹°°ÇÀ¸·Î µî·ÏÇÕ´Ï´Ù